На Львівщині на місці колишньої бази ФК "Карпати" збудують приватну школу

На Львівщині на місці колишньої бази ФК "Карпати" збудують приватну школу
Такий вигляд має колишня база футбольного клубу. Фото: з відкритих джерел

У Брюховичах, що на Львівщині, планують побудувати приватну школу на місці колишньої бази футбольного клубу "Карпати". У той же час, в міськраді Львова поки що не видала документів на відповідні будівельні роботи.

Про це повідомляє видання ZAXID.NET.

Реклама
Читайте також:

Про яку територію для будівництва йдеться

Так, йдеться про земельну ділянку на вулиці Широкій, де розташовані адміністративні приміщення і футбольне поле. Їх тривалий час орендував футбольний клуб "Карпати", після — ФК "Львів". 

Згодом, у 2018 році поле перейшло в оренду новоствореного тоді компанії "Спортивно-оздоровчий комплекс "Брюховичі". Право власності за ділянкою підприємство зареєструвало у 2020 році, вона належить до земель, що мають рекреаційне призначення. 

Що відомо про будівництво

За словами місцевої активістки селища Юлії Лацик, нещодавно на адміністративній будівлі почали з'являтися вивіски, що невдовзі на цій території запрацює приватна школа GlobalKids.

На сайті навчального закладу ще 1 грудня оприлюднили інформацію про новий дитсадок і школу в Брюховичах.

"GlobalKids — інноваційний освітній простір, в якому ваша дитина зможе прожити своє найкраще дитинство від 2-ох років і аж до 9-го класу. Ми працюємо з 2018 року та маємо уже 3 локації у Львові та великі плани на цю локацію у Брюховичах", — йдеться у повідомленні на сайті

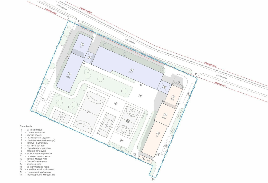
Ймовірно, йдеться про будівництво декількох нових корпусів на території футбольного поля. Там розташують навчальний корпус ліцею, кампус на 200 місць та критий спортзал. 

Що стосується футбольного поля, то його поділять на декілька менших: баскетбольне та футбольне поле, тенісний корт  та волейбольний майданчик. 

null
Інформація щодо будівництва. Фото: GlobalKids

GlobalKids орендує майно в Брюховичах

Як з'ясувалося, GlobalKids орендує в ТзОВ "Спортивно-оздоровчий комплекс "Брюховичі" майно. Це підтвердили в адміністрації школи. Втім пояснили, що документи для будівництва нададуть пізніше. 

Нагадаємо, у селі Таїрове Одеської області планують побудувати новий дитячий садок. Відомо, що на заклад на 90 місць виділять понад 80 мільйонів.

спортзал Львівська область будівництво футбол Львів школа
Реклама
Реклама
Реклама
Реклама
DJDT

Версії

Package Name Версія
Django 4.2.7
Python 3.10.9
ajax_select Ajax Selects 3.0.2
colorfield Colorfield 0.14.0
daphne Daphne 4.2.1
debug_toolbar Debug Toolbar 4.3.0
django_celery_beat Periodic Tasks 2.8.1
django_hosts Hosts 7.0.0
django_q Django Q 1.3.6
django_telegram_logging Django_Telegram_Logging 1.0.2
django_user_agents Django_User_Agents 0.4.0
polymorphic Polymorphic 4.1.0
pymorphy2 Pymorphy2 0.9.1
rangefilter Фільтр діапазону 0.13.3
rest_framework Django REST framework 3.16.1
webpack_loader Webpack Loader 3.2.2

Час

Resource usage

Resource Значення
User CPU time 584.740 msec
System CPU time 3.903 msec
Total CPU time 588.643 msec
Elapsed time 619.854 msec
Context switches 97 voluntary, 20 involuntary

Browser timing

Timing attribute Timeline Milliseconds since navigation start (+length)

Settings from novyny_live.settings.site

Setting Значення
ABSOLUTE_URL_OVERRIDES {}
ADMINS []
ALLOWED_HOSTS ['novunu.live', '.novunu.live', 'localhost', '127.0.0.1', '[::1]']
APPEND_SLASH True
ASGI_APPLICATION 'novyny_live.asgi.application'
AUTHENTICATION_BACKENDS ('users.auth_backends.EmailOrUsernameBackend',)
AUTH_PASSWORD_VALIDATORS '********************'
AUTH_USER_MODEL 'users.User'
BASE_DIR PosixPath('/var/www/news-site-columnist')
CACHES {'default': {'BACKEND': 'django.core.cache.backends.redis.RedisCache', 'LOCATION': 'redis://127.0.0.1:6379'}, 'file_resubmit': {'BACKEND': 'django.core.cache.backends.filebased.FileBasedCache', 'LOCATION': PosixPath('/var/www/news-site-columnist/file_resubmit_cache')}}
CACHE_MIDDLEWARE_ALIAS 'default'
CACHE_MIDDLEWARE_KEY_PREFIX '********************'
CACHE_MIDDLEWARE_SECONDS 600
CELERY_ACCEPT_CONTENT ['json']
CELERY_BROKER_URL 'redis://127.0.0.1:6379/1'
CELERY_ENABLE_UTC False
CELERY_RESULT_BACKEND 'redis://127.0.0.1:6379/2'
CELERY_RESULT_SERIALIZER 'json'
CELERY_TASK_ALWAYS_EAGER False
CELERY_TASK_QUEUES {'default': {}, 'sitemaps': {}}
CELERY_TASK_ROUTES {'sitemaps.*': {'queue': 'sitemaps'}}
CELERY_TASK_SERIALIZER 'json'
CELERY_TIMEZONE 'Europe/Kiev'
CHANNEL_LAYERS {'default': {'BACKEND': 'channels_redis.core.RedisChannelLayer', 'CONFIG': {'hosts': [('127.0.0.1', 6379)]}}}
CKEDITOR_CONFIGS {'default': {'allowedContent': True, 'autoGrow_onStartup': 'true', 'editorplaceholder': 'Введіть текст...', 'embed_provider': '//ckeditor.iframe.ly/api/oembed?url={url}&callback={callback}&api_key=d292da799edc455e287870', 'extraPlugins': ['autoembed', 'autolink', 'embed', 'embedbase', 'image2', 'removeformat', 'selectall', 'sourcedialog', 'textmatch', 'autogrow', 'fixed', 'placeholder', 'clipboard', 'pastefromword', 'mynbsp', 'tagsnews', 'readalsoblock', 'clarificationblock', 'becomecolumnist', 'gallery', 'faq', 'citation', 'guide'], 'filebrowserImageBrowseUrl': '/admin/gallery/image/?_popup=1', 'language': 'uk', 'removePlugins': ['elementspath'], 'scayt_sLang': 'uk_UA', 'toolbar': 'Custom', 'toolbar_Custom': [['Cut', 'Copy', 'Paste', 'PasteText', 'PasteFromWord', '-', 'Undo', 'Redo', '-'], ['Link', 'Unlink', 'Anchor', 'Readalso', 'Readalsoblock', 'Clarificationblock', 'Becomecolumnist'], ['Image', 'Slidergallery', 'Tagsnews', 'Faq', 'Citation', 'Guide', 'Table', 'SpecialChar', 'Embed'], ['SelectAll', 'RemoveFormat', 'Bold', 'Italic', 'Underline'], ['NumberedList', 'BulletedList', '-', 'Outdent', 'Indent', '-', 'JustifyLeft', 'JustifyCenter', 'JustifyRight', 'JustifyBlock'], ['Blockquote', 'Styles', 'Format'], ['Source']], 'width': 'auto'}, 'lang_en': {'allowedContent': True, 'autoGrow_onStartup': 'true', 'editorplaceholder': 'Введіть текст...', 'embed_provider': '//ckeditor.iframe.ly/api/oembed?url={url}&callback={callback}&api_key=d292da799edc455e287870', 'extraPlugins': ['autoembed', 'autolink', 'embed', 'embedbase', 'image2', 'removeformat', 'selectall', 'sourcedialog', 'textmatch', 'autogrow', 'fixed', 'placeholder', 'clipboard', 'pastefromword', 'mynbsp', 'tagsnews', 'readalsoblock', 'clarificationblock', 'becomecolumnist', 'gallery', 'faq', 'citation', 'guide'], 'filebrowserImageBrowseUrl': '/admin/gallery/image/?_popup=1', 'language': 'en', 'removePlugins': ['elementspath'], 'scayt_sLang': 'uk_UA', 'toolbar': 'Custom', 'toolbar_Custom': [['Cut', 'Copy', 'Paste', 'PasteText', 'PasteFromWord', '-', 'Undo', 'Redo', '-'], ['Link', 'Unlink', 'Anchor', 'Readalso', 'Readalsoblock', 'Clarificationblock', 'Becomecolumnist'], ['Image', 'Slidergallery', 'Tagsnews', 'Faq', 'Citation', 'Guide', 'Table', 'SpecialChar', 'Embed'], ['SelectAll', 'RemoveFormat', 'Bold', 'Italic', 'Underline'], ['NumberedList', 'BulletedList', '-', 'Outdent', 'Indent', '-', 'JustifyLeft', 'JustifyCenter', 'JustifyRight', 'JustifyBlock'], ['Blockquote', 'Styles', 'Format'], ['Source']], 'width': 'auto'}, 'lang_ru': {'allowedContent': True, 'autoGrow_onStartup': 'true', 'editorplaceholder': 'Введіть текст...', 'embed_provider': '//ckeditor.iframe.ly/api/oembed?url={url}&callback={callback}&api_key=d292da799edc455e287870', 'extraPlugins': ['autoembed', 'autolink', 'embed', 'embedbase', 'image2', 'removeformat', 'selectall', 'sourcedialog', 'textmatch', 'autogrow', 'fixed', 'placeholder', 'clipboard', 'pastefromword', 'mynbsp', 'tagsnews', 'readalsoblock', 'clarificationblock', 'becomecolumnist', 'gallery', 'faq', 'citation', 'guide'], 'filebrowserImageBrowseUrl': '/admin/gallery/image/?_popup=1', 'language': 'ru', 'removePlugins': ['elementspath'], 'scayt_sLang': 'uk_UA', 'toolbar': 'Custom', 'toolbar_Custom': [['Cut', 'Copy', 'Paste', 'PasteText', 'PasteFromWord', '-', 'Undo', 'Redo', '-'], ['Link', 'Unlink', 'Anchor', 'Readalso', 'Readalsoblock', 'Clarificationblock', 'Becomecolumnist'], ['Image', 'Slidergallery', 'Tagsnews', 'Faq', 'Citation', 'Guide', 'Table', 'SpecialChar', 'Embed'], ['SelectAll', 'RemoveFormat', 'Bold', 'Italic', 'Underline'], ['NumberedList', 'BulletedList', '-', 'Outdent', 'Indent', '-', 'JustifyLeft', 'JustifyCenter', 'JustifyRight', 'JustifyBlock'], ['Blockquote', 'Styles', 'Format'], ['Source']], 'width': 'auto'}, 'lang_uk': {'allowedContent': True, 'autoGrow_onStartup': 'true', 'editorplaceholder': 'Введіть текст...', 'embed_provider': '//ckeditor.iframe.ly/api/oembed?url={url}&callback={callback}&api_key=d292da799edc455e287870', 'extraPlugins': ['autoembed', 'autolink', 'embed', 'embedbase', 'image2', 'removeformat', 'selectall', 'sourcedialog', 'textmatch', 'autogrow', 'fixed', 'placeholder', 'clipboard', 'pastefromword', 'mynbsp', 'tagsnews', 'readalsoblock', 'clarificationblock', 'becomecolumnist', 'gallery', 'faq', 'citation', 'guide'], 'filebrowserImageBrowseUrl': '/admin/gallery/image/?_popup=1', 'language': 'uk', 'removePlugins': ['elementspath'], 'scayt_sLang': 'uk_UA', 'toolbar': 'Custom', 'toolbar_Custom': [['Cut', 'Copy', 'Paste', 'PasteText', 'PasteFromWord', '-', 'Undo', 'Redo', '-'], ['Link', 'Unlink', 'Anchor', 'Readalso', 'Readalsoblock', 'Clarificationblock', 'Becomecolumnist'], ['Image', 'Slidergallery', 'Tagsnews', 'Faq', 'Citation', 'Guide', 'Table', 'SpecialChar', 'Embed'], ['SelectAll', 'RemoveFormat', 'Bold', 'Italic', 'Underline'], ['NumberedList', 'BulletedList', '-', 'Outdent', 'Indent', '-', 'JustifyLeft', 'JustifyCenter', 'JustifyRight', 'JustifyBlock'], ['Blockquote', 'Styles', 'Format'], ['Source']], 'width': 'auto'}, 'simple': {'forcePasteAsPlainText': True, 'height': 150, 'removePlugins': 'stylesheetparser', 'toolbar': [['Bold', 'Italic', 'Underline'], ['NumberedList', 'BulletedList'], ['Link', 'Unlink'], ['RemoveFormat']], 'width': '100%'}, 'stories': {'extraPlugins': ['image2'], 'toolbar': 'Custom', 'toolbar_Custom': [['Cut', 'Copy', 'Paste', 'PasteText', 'PasteFromWord', '-', 'Undo', 'Redo', '-'], ['Link', 'Unlink', 'Anchor'], ['Image', 'Table', 'SpecialChar'], ['SelectAll', 'RemoveFormat', 'Bold', 'Italic', 'Underline'], ['NumberedList', 'BulletedList', '-', 'Outdent', 'Indent', '-', 'JustifyLeft', 'JustifyCenter', 'JustifyRight', 'JustifyBlock'], ['Blockquote', 'Styles', 'Format'], ['Source']], 'width': 'auto'}}
CKEDITOR_UPLOAD_PATH 'ckeditor_uploads/'
CLOUDFLARE_IMAGES_ACCOUNT_HASH '4_JwVYxosZqzJ7gIDJgTLA'
CLOUDFLARE_IMAGES_ACCOUNT_ID 'eb3f89264532d26a3b45d67802a4fcd9'
CLOUDFLARE_IMAGES_API_TOKEN '********************'
CLOUDFLARE_IMAGES_DOMAIN 'novyny.live'
CLOUDFLARE_VIDEOS_ACCOUNT_HASH '4_JwVYxosZqzJ7gIDJgTLA'
CLOUDFLARE_VIDEOS_ACCOUNT_ID 'eb3f89264532d26a3b45d67802a4fcd9'
CLOUDFLARE_VIDEOS_API_TOKEN '********************'
CLOUDFLARE_VIDEOS_CUSTOMER_CODE '194ct854mtpycat8'
CORS_ALLOWED_ORIGINS ['https://googletagmanager.com', 'https://www.googletagmanager.com', 'https://webcache.googleusercontent.com']
CORS_ORIGIN_ALLOW_ALL False
CSRF_COOKIE_AGE 31449600
CSRF_COOKIE_DOMAIN None
CSRF_COOKIE_HTTPONLY False
CSRF_COOKIE_MASKED False
CSRF_COOKIE_NAME 'csrftoken'
CSRF_COOKIE_PATH '/'
CSRF_COOKIE_SAMESITE 'Lax'
CSRF_COOKIE_SECURE False
CSRF_FAILURE_VIEW 'django.views.csrf.csrf_failure'
CSRF_HEADER_NAME 'HTTP_X_CSRFTOKEN'
CSRF_TRUSTED_ORIGINS ['https://None.novunu.live']
CSRF_USE_SESSIONS False
DATABASES {'default': {'ATOMIC_REQUESTS': False, 'AUTOCOMMIT': True, 'CONN_HEALTH_CHECKS': False, 'CONN_MAX_AGE': 0, 'ENGINE': 'django.db.backends.postgresql', 'HOST': 'localhost', 'NAME': 'dev_db', 'OPTIONS': {}, 'PASSWORD': '********************', 'PORT': '5432', 'TEST': {'CHARSET': None, 'COLLATION': None, 'MIGRATE': True, 'MIRROR': None, 'NAME': 'test_novyny_live'}, 'TIME_ZONE': None, 'USER': 'novyny_user'}}
DATABASE_ROUTERS []
DATA_UPLOAD_MAX_MEMORY_SIZE 2621440
DATA_UPLOAD_MAX_NUMBER_FIELDS 1000
DATA_UPLOAD_MAX_NUMBER_FILES 100
DATETIME_FORMAT 'N j, Y, P'
DATETIME_INPUT_FORMATS ['%Y-%m-%d %H:%M:%S', '%Y-%m-%d %H:%M:%S.%f', '%Y-%m-%d %H:%M', '%m/%d/%Y %H:%M:%S', '%m/%d/%Y %H:%M:%S.%f', '%m/%d/%Y %H:%M', '%m/%d/%y %H:%M:%S', '%m/%d/%y %H:%M:%S.%f', '%m/%d/%y %H:%M']
DATE_FORMAT 'N j, Y'
DATE_INPUT_FORMATS ['%Y-%m-%d', '%m/%d/%Y', '%m/%d/%y', '%b %d %Y', '%b %d, %Y', '%d %b %Y', '%d %b, %Y', '%B %d %Y', '%B %d, %Y', '%d %B %Y', '%d %B, %Y']
DEBUG 1
DEBUG_PROPAGATE_EXCEPTIONS False
DEBUG_TOOLBAR_PANELS ['debug_toolbar.panels.versions.VersionsPanel', 'debug_toolbar.panels.timer.TimerPanel', 'debug_toolbar.panels.settings.SettingsPanel', 'debug_toolbar.panels.headers.HeadersPanel', 'debug_toolbar.panels.request.RequestPanel', 'debug_toolbar.panels.sql.SQLPanel', 'debug_toolbar.panels.templates.TemplatesPanel', 'debug_toolbar.panels.cache.CachePanel', 'debug_toolbar.panels.signals.SignalsPanel', 'debug_toolbar.panels.logging.LoggingPanel', 'debug_toolbar.panels.redirects.RedirectsPanel', 'debug_toolbar.panels.profiling.ProfilingPanel', 'template_timings_panel.panels.TemplateTimings.TemplateTimings']
DECIMAL_SEPARATOR '.'
DEEPL_AUTH_KEY '********************'
DEFAULT_AUTO_FIELD 'django.db.models.BigAutoField'
DEFAULT_CHARSET 'utf-8'
DEFAULT_EXCEPTION_REPORTER 'django.views.debug.ExceptionReporter'
DEFAULT_EXCEPTION_REPORTER_FILTER 'django.views.debug.SafeExceptionReporterFilter'
DEFAULT_FILE_STORAGE 'news.storages.MyCloudflareImagesStorage'
DEFAULT_FROM_EMAIL 'webmaster@localhost'
DEFAULT_HOST 'www'
DEFAULT_INDEX_TABLESPACE ''
DEFAULT_SUBDOMAIN ''
DEFAULT_TABLESPACE ''
DISALLOWED_USER_AGENTS []
ELASTICSEARCH_DSL {'default': {'hosts': 'http://localhost:9200'}}
ELASTICSEARCH_DSL_SIGNAL_PROCESSOR 'django_elasticsearch_dsl_polymorphic.signals.PolymorphicRealTimeSignalProcessor'
EMAIL_BACKEND 'django.core.mail.backends.smtp.EmailBackend'
EMAIL_HOST 'localhost'
EMAIL_HOST_PASSWORD '********************'
EMAIL_HOST_USER ''
EMAIL_PORT 25
EMAIL_SSL_CERTFILE None
EMAIL_SSL_KEYFILE '********************'
EMAIL_SUBJECT_PREFIX '[Django] '
EMAIL_TIMEOUT None
EMAIL_USE_LOCALTIME False
EMAIL_USE_SSL False
EMAIL_USE_TLS False
ENABLE_DEBUG_TOOLBAR 1
ENABLE_ELASTICSEARCH '0'
FILE_UPLOAD_DIRECTORY_PERMISSIONS None
FILE_UPLOAD_HANDLERS ['django.core.files.uploadhandler.MemoryFileUploadHandler', 'django.core.files.uploadhandler.TemporaryFileUploadHandler']
FILE_UPLOAD_MAX_MEMORY_SIZE 2621440
FILE_UPLOAD_PERMISSIONS 420
FILE_UPLOAD_TEMP_DIR None
FIRST_DAY_OF_WEEK 0
FIXTURE_DIRS []
FORCE_SCRIPT_NAME None
FORMAT_MODULE_PATH None
FORM_RENDERER 'django.forms.renderers.TemplatesSetting'
GOOGLE_API_KEY_FOR_YOUTUBE '********************'
GOOGLE_APPLICATION_CREDENTIALS './novyny-translate-c430af20fe4e.json'
HOST_PORT ''
HOST_SCHEME 'https'
ICONS_DIR PosixPath('/var/www/news-site-columnist/static/admin/img/custom/menu')
IFRAMELY_API_KEY '********************'
IGNORABLE_404_URLS []
INSTALLED_APPS ['daphne', 'news', 'users', 'gallery', 'olympiad', 'site_settings', 'censorship', 'site_search', 'news_sitemaps', 'django_cloudflare_videos', 'admin_feedback', 'frontend', 'redirects', 'pymorphy2', 'currencies', 'amp_stories', 'vacancies', 'context_section', 'test_indices', 'rangefilter', 'django_celery_beat', 'corsheaders', 'django_user_agents', 'modeltranslation', 'jazzmin', 'django_q', 'django_telegram_logging', 'polymorphic', 'django_countries', 'colorfield', 'django.contrib.admin', 'django.contrib.auth', 'django.contrib.contenttypes', 'django.contrib.sessions', 'django.contrib.messages', 'django.contrib.staticfiles', 'django.contrib.postgres', 'django.contrib.sites', 'django.contrib.sitemaps', 'django.forms', 'rest_framework', 'django_hosts', 'ajax_select', 'debug_toolbar', 'template_timings_panel', 'webpack_loader']
INTERNAL_IPS ['127.0.0.1']
JAZZMIN_SETTINGS {'custom_links': {'news': [{'icon': 'fire-icon.svg', 'name': 'Статистика війни', 'permissions': ['news.view_warstatistics'], 'url': '/admin/news/warstatistics/1/'}, {'icon': 'theme.svg', 'name': 'Елементи сайту', 'permissions': ['news.view_siteelements'], 'url': '/admin/news/siteelements/1/'}]}, 'hide_apps': ['django_q', 'django_cloudflare_videos'], 'hide_models': ['news.ReadAlsoPost', 'news.Region', 'news.WarStatistics', 'news.QuoteAuthor', 'sites.Site', 'news.QuoteOfTheDay', 'news.SiteElements'], 'icons': {'admin_feedback.Feedback': 'advice.svg', 'amp_stories.Story': 'icons8-instagram.svg', 'auth.Group': 'user.svg', 'currencies.Currency': 'ukraine-hryvna.svg', 'currencies.CurrencyCourse': 'currency-exchange.svg', 'django.contrib.auth.models.Group': 'author.svg', 'django.contrib.sites.models.Site': 'website.svg', 'gallery.Gallery': 'gallery.svg', 'gallery.Image': 'gallery.svg', 'news.Category': 'category.svg', 'news.EnglishOnlyPostProxy': 'news.svg', 'news.Post': 'news.svg', 'news.QuoteOfTheDay': 'theme.svg', 'news.SiteElements': 'theme.svg', 'news.SliderItem': 'gallery.svg', 'news.SponsorPost': 'news.svg', 'news.TVHost': 'tv_host.svg', 'news.Tag': 'tag.svg', 'news.Theme': 'theme.svg', 'news.VideoPost': 'video-icon.svg', 'news.VideoProject': 'video-icon.svg', 'redirects.RedirectGroup': 'redirect-group.svg', 'redirects.RedirectURL': 'redirect.svg', 'users.Author': 'author.svg', 'users.User': 'user.svg'}, 'order_with_respect_to': ['auth.Group', 'news', 'news.Post', 'news.EnglishOnlyPostProxy', 'news.VideoPost', 'news.Category', 'news.Theme', 'news.Tag', 'users', 'users.Author', 'users.User', 'gallery'], 'site_logo': 'admin/img/custom/logo.svg'}
JAZZMIN_UI_TWEAKS {'accent': 'accent-primary', 'actions_sticky_top': True, 'body_small_text': False, 'brand_colour': False, 'brand_small_text': True, 'button_classes': {'danger': 'btn-outline-danger', 'info': 'btn-outline-info', 'primary': 'btn-primary', 'secondary': 'btn-outline-secondary', 'success': 'btn-outline-success', 'warning': 'btn-outline-warning'}, 'dark_mode_theme': 'darkly', 'footer_fixed': False, 'footer_small_text': False, 'layout_boxed': False, 'navbar': 'navbar-white navbar-light', 'navbar_fixed': False, 'navbar_small_text': False, 'no_navbar_border': False, 'sidebar': 'sidebar-light-primary', 'sidebar_disable_expand': False, 'sidebar_fixed': True, 'sidebar_nav_child_indent': False, 'sidebar_nav_compact_style': False, 'sidebar_nav_flat_style': False, 'sidebar_nav_legacy_style': False, 'sidebar_nav_small_text': False, 'theme': 'pulse'}
LANGUAGES (('uk', 'Ukrainian'), ('en', 'English'), ('ru', 'Russian'))
LANGUAGES_BIDI ['he', 'ar', 'ar-dz', 'ckb', 'fa', 'ur']
LANGUAGE_CODE 'uk'
LANGUAGE_COOKIE_AGE None
LANGUAGE_COOKIE_DOMAIN None
LANGUAGE_COOKIE_HTTPONLY False
LANGUAGE_COOKIE_NAME 'django_language'
LANGUAGE_COOKIE_PATH '/'
LANGUAGE_COOKIE_SAMESITE None
LANGUAGE_COOKIE_SECURE False
LOCALE_PATHS ('/var/www/news-site-columnist/locale/',)
LOGGING {'disable_existing_loggers': False, 'formatters': {'simple': {'format': '{levelname} {message}', 'style': '{'}, 'verbose': {'format': '{levelname} {asctime} {module} ' '{process:d} {thread:d} {message}', 'style': '{'}}, 'handlers': {'console': {'class': 'logging.StreamHandler', 'formatter': 'simple', 'level': 'DEBUG'}, 'telegram': {'class': 'django_telegram_logging.handler.TelegramHandler', 'level': 'ERROR'}}, 'loggers': {'django': {'handlers': ['console'], 'propagate': True}, 'django.request': {'handlers': ['console'], 'level': 'ERROR', 'propagate': False}}, 'version': 1}
LOGGING_CONFIG 'logging.config.dictConfig'
LOGIN_REDIRECT_URL '/accounts/profile/'
LOGIN_URL '/accounts/login/'
LOGOUT_REDIRECT_URL None
MANAGERS []
MEDIA_ROOT PosixPath('/var/www/news-site-columnist/media')
MEDIA_URL '/media/'
MESSAGE_STORAGE 'django.contrib.messages.storage.session.SessionStorage'
MIDDLEWARE ['django_hosts.middleware.HostsRequestMiddleware', 'redirects.middleware.redirect_middleware.RedirectMiddleware', 'django.middleware.security.SecurityMiddleware', 'django.contrib.sessions.middleware.SessionMiddleware', 'django.middleware.locale.LocaleMiddleware', 'corsheaders.middleware.CorsMiddleware', 'django_user_agents.middleware.UserAgentMiddleware', 'django.middleware.common.CommonMiddleware', 'django.middleware.csrf.CsrfViewMiddleware', 'django.contrib.auth.middleware.AuthenticationMiddleware', 'django.contrib.messages.middleware.MessageMiddleware', 'django.middleware.clickjacking.XFrameOptionsMiddleware', 'debug_toolbar.middleware.DebugToolbarMiddleware', 'news.middleware.my_hosts_request_middleware.MyHostsRequestMiddleware', 'news.middleware.subdomain_middleare.MySubdomainMiddleware']
MIGRATION_MODULES {}
MINFIN_API_KEY '********************'
MODELTRANSLATION_DEFAULT_LANGUAGE 'uk'
MODELTRANSLATION_LANGUAGES ('uk', 'en', 'ru')
MODELTRANSLATION_LANGUAGES_NAMES {'en': 'Англійська', 'ru': 'Російська', 'uk': 'Українська'}
MONTH_DAY_FORMAT 'F j'
MT_LANGUAGES_CHOICES <generator object <genexpr> at 0x7f28ae2cedc0>
NUMBER_GROUPING 0
PARENT_HOST 'novunu.live'
PASSWORD_HASHERS '********************'
PASSWORD_RESET_TIMEOUT '********************'
PING_GOOGLE_SITEMAPS '1'
PREPEND_WWW False
Q_CLUSTER {'ack_failures': True, 'attempt_count': 1, 'compress': True, 'max_attempts': 1, 'name': 'shop', 'redis': {'db': 0, 'host': '127.0.0.1', 'port': 6379}, 'retry': 190, 'timeout': 180, 'workers': 8}
ROOT_HOSTCONF 'novyny_live.hosts'
ROOT_URLCONF 'novyny_live.main_domain_urls'
SECRET_KEY '********************'
SECRET_KEY_FALLBACKS '********************'
SECURE_CONTENT_TYPE_NOSNIFF True
SECURE_CROSS_ORIGIN_OPENER_POLICY 'same-origin'
SECURE_HSTS_INCLUDE_SUBDOMAINS False
SECURE_HSTS_PRELOAD False
SECURE_HSTS_SECONDS 0
SECURE_PROXY_SSL_HEADER None
SECURE_REDIRECT_EXEMPT []
SECURE_REFERRER_POLICY 'no-referrer-when-downgrade'
SECURE_SSL_HOST None
SECURE_SSL_REDIRECT False
SERVER_EMAIL 'root@localhost'
SESSION_CACHE_ALIAS 'default'
SESSION_COOKIE_AGE 1209600
SESSION_COOKIE_DOMAIN None
SESSION_COOKIE_HTTPONLY True
SESSION_COOKIE_NAME 'sessionid'
SESSION_COOKIE_PATH '/'
SESSION_COOKIE_SAMESITE 'Lax'
SESSION_COOKIE_SECURE False
SESSION_ENGINE 'django.contrib.sessions.backends.db'
SESSION_EXPIRE_AT_BROWSER_CLOSE False
SESSION_FILE_PATH None
SESSION_SAVE_EVERY_REQUEST False
SESSION_SERIALIZER 'django.contrib.sessions.serializers.JSONSerializer'
SETTINGS_MODULE 'novyny_live.settings.site'
SHORT_DATETIME_FORMAT 'm/d/Y P'
SHORT_DATE_FORMAT 'm/d/Y'
SIGNING_BACKEND 'django.core.signing.TimestampSigner'
SILENCED_SYSTEM_CHECKS []
SITE_ID 1
SKAYT_LANG_CODES {'en': 'en_US', 'ru': 'ru', 'uk': 'uk_UA'}
STATICFILES_DIRS ['/var/www/news-site-columnist/static', '/var/www/news-site-columnist/news/static']
STATICFILES_FINDERS ['django.contrib.staticfiles.finders.FileSystemFinder', 'django.contrib.staticfiles.finders.AppDirectoriesFinder']
STATICFILES_STORAGE 'django.contrib.staticfiles.storage.StaticFilesStorage'
STATIC_ROOT None
STATIC_URL '/static/'
STORAGES {'default': {'BACKEND': 'news.storages.MyCloudflareImagesStorage'}, 'staticfiles': {'BACKEND': 'django.contrib.staticfiles.storage.StaticFilesStorage'}}
TELEGRAM_LOGGING_CHAT -896657161
TELEGRAM_LOGGING_EMIT_ON_DEBUG False
TELEGRAM_LOGGING_TOKEN '********************'
TEMPLATES [{'APP_DIRS': True, 'BACKEND': 'django.template.backends.django.DjangoTemplates', 'DIRS': [PosixPath('/var/www/news-site-columnist/templates')], 'OPTIONS': {'context_processors': ['django.template.context_processors.debug', 'django.template.context_processors.request', 'django.contrib.auth.context_processors.auth', 'django.contrib.messages.context_processors.messages']}}]
TEMPLATE_CONTEXT_PROCESSORS ('django.core.context_processors.request',)
TEST_NON_SERIALIZED_APPS []
TEST_RUNNER 'django.test.runner.DiscoverRunner'
THOUSAND_SEPARATOR ','
TIME_FORMAT 'P'
TIME_INPUT_FORMATS ['%H:%M:%S', '%H:%M:%S.%f', '%H:%M']
TIME_ZONE 'Europe/Kiev'
TRANSLATABLE_MODEL_MODULES ''
USE_DEPRECATED_PYTZ False
USE_I18N True
USE_L10N True
USE_THOUSAND_SEPARATOR False
USE_TZ True
USE_X_FORWARDED_HOST False
USE_X_FORWARDED_PORT False
WEBPACK_LOADER {'DEFAULT': {'BUNDLE_DIR_NAME': '/frontend/novyny-live-layout/dist/', 'CACHE': False, 'IGNORE': ['.+\\.hot-update.js', '.+\\.map'], 'POLL_INTERVAL': 0.1, 'STATS_FILE': '/var/www/news-site-columnist/frontend/static/frontend/novyny-live-layout/webpack-stats.json'}}
WSGI_APPLICATION 'novyny_live.wsgi.application'
X_FRAME_OPTIONS 'DENY'
YEAR_MONTH_FORMAT 'F Y'

Headers

Request headers

Ключ Значення
Accept */*
Accept-Encoding gzip, br
Cdn-Loop cloudflare; loops=1
Cf-Connecting-Ip 216.73.216.52
Cf-Ipcountry US
Cf-Ray 9ccaad5fed1fb36e-CMH
Cf-Visitor {"scheme":"https"}
Connection Keep-Alive
Host lviv.novunu.live
User-Agent Mozilla/5.0 AppleWebKit/537.36 (KHTML, like Gecko; compatible; ClaudeBot/1.0; [email protected])
X-Forwarded-For 216.73.216.52, 216.73.216.52
X-Forwarded-Proto https
X-Real-Ip 216.73.216.52

Response headers

Ключ Значення
Content-Type text/html; charset=utf-8

WSGI environ

Since the WSGI environ inherits the environment of the server, only a significant subset is shown below.

Ключ Значення
PATH_INFO /na-lvivshchini-na-mistsi-kolishnoyi-bazi-fk-karpati-zbuduiut-privatnu-shkolu-139383.html
QUERY_STRING
REMOTE_ADDR 127.0.0.1
REQUEST_METHOD GET
SCRIPT_NAME
SERVER_NAME 127.0.0.1
SERVER_PORT 8101
SERVER_PROTOCOL HTTP/1.0
SERVER_SOFTWARE gunicorn/23.0.0

Request

View information

View function Arguments Keyword arguments URL name
news.views.post.subdomain_view_post () {'pk': 139383, 'slug': 'na-lvivshchini-na-mistsi-kolishnoyi-bazi-fk-karpati-zbuduiut-privatnu-shkolu'} post_red

No cookies

No session data

Немає GET даних

Немає POST даних

SQL queries from 1 connection

  • default 44,20 ms (46 queries including 29 similar and 22 duplicates )
Запит Timeline Час (мс) Подія
SELECT "category"."subdomain"
  FROM "category"
SELECT ••• FROM "category"
0,79

Connection: default

Transaction status: Idle

/home/youser/.local/share/virtualenvs/news-site-columnist-8tsXn7bh/bin/gunicorn in <module>(8)
  sys.exit(run())

/home/youser/.local/share/virtualenvs/news-site-columnist-8tsXn7bh/lib/python3.10/site-packages/gunicorn/app/wsgiapp.py in run(66)
  WSGIApplication("%(prog)s [OPTIONS] [APP_MODULE]", prog=prog).run()

/home/youser/.local/share/virtualenvs/news-site-columnist-8tsXn7bh/lib/python3.10/site-packages/gunicorn/app/base.py in run(235)
  super().run()

/home/youser/.local/share/virtualenvs/news-site-columnist-8tsXn7bh/lib/python3.10/site-packages/gunicorn/app/base.py in run(71)
  Arbiter(self).run()

/home/youser/.local/share/virtualenvs/news-site-columnist-8tsXn7bh/lib/python3.10/site-packages/gunicorn/arbiter.py in run(210)
  self.manage_workers()

/home/youser/.local/share/virtualenvs/news-site-columnist-8tsXn7bh/lib/python3.10/site-packages/gunicorn/arbiter.py in manage_workers(570)
  self.spawn_workers()

/home/youser/.local/share/virtualenvs/news-site-columnist-8tsXn7bh/lib/python3.10/site-packages/gunicorn/arbiter.py in spawn_workers(641)
  self.spawn_worker()

/home/youser/.local/share/virtualenvs/news-site-columnist-8tsXn7bh/lib/python3.10/site-packages/gunicorn/arbiter.py in spawn_worker(608)
  worker.init_process()

/home/youser/.local/share/virtualenvs/news-site-columnist-8tsXn7bh/lib/python3.10/site-packages/gunicorn/workers/base.py in init_process(143)
  self.run()

/home/youser/.local/share/virtualenvs/news-site-columnist-8tsXn7bh/lib/python3.10/site-packages/gunicorn/workers/sync.py in run(125)
  self.run_for_one(timeout)

/home/youser/.local/share/virtualenvs/news-site-columnist-8tsXn7bh/lib/python3.10/site-packages/gunicorn/workers/sync.py in run_for_one(69)
  self.accept(listener)

/home/youser/.local/share/virtualenvs/news-site-columnist-8tsXn7bh/lib/python3.10/site-packages/gunicorn/workers/sync.py in accept(31)
  self.handle(listener, client, addr)

/home/youser/.local/share/virtualenvs/news-site-columnist-8tsXn7bh/lib/python3.10/site-packages/gunicorn/workers/sync.py in handle(134)
  self.handle_request(listener, req, client, addr)

/home/youser/.local/share/virtualenvs/news-site-columnist-8tsXn7bh/lib/python3.10/site-packages/gunicorn/workers/sync.py in handle_request(177)
  respiter = self.wsgi(environ, resp.start_response)

/home/youser/.local/share/virtualenvs/news-site-columnist-8tsXn7bh/lib/python3.10/site-packages/sentry_sdk/utils.py in runner(1864)
  return sentry_patched_function(*args, **kwargs)

/home/youser/.local/share/virtualenvs/news-site-columnist-8tsXn7bh/lib/python3.10/site-packages/sentry_sdk/integrations/django/__init__.py in sentry_patched_wsgi_handler(191)
  return middleware(environ, start_response)

/home/youser/.local/share/virtualenvs/news-site-columnist-8tsXn7bh/lib/python3.10/site-packages/sentry_sdk/integrations/wsgi.py in __call__(132)
  response = self.app(

/home/youser/.local/share/virtualenvs/news-site-columnist-8tsXn7bh/lib/python3.10/site-packages/sentry_sdk/integrations/django/__init__.py in sentry_patched_get_response(478)
  rv = old_get_response(self, request)

/home/youser/.local/share/virtualenvs/news-site-columnist-8tsXn7bh/lib/python3.10/site-packages/sentry_sdk/integrations/django/middleware.py in __call__(177)
  return f(*args, **kwargs)

/home/youser/.local/share/virtualenvs/news-site-columnist-8tsXn7bh/lib/python3.10/site-packages/sentry_sdk/integrations/django/middleware.py in __call__(177)
  return f(*args, **kwargs)

/var/www/news-site-columnist/redirects/middleware/redirect_middleware.py in __call__(17)
  return self.get_response(request)

/home/youser/.local/share/virtualenvs/news-site-columnist-8tsXn7bh/lib/python3.10/site-packages/sentry_sdk/integrations/django/middleware.py in __call__(177)
  return f(*args, **kwargs)

/home/youser/.local/share/virtualenvs/news-site-columnist-8tsXn7bh/lib/python3.10/site-packages/sentry_sdk/integrations/django/middleware.py in __call__(177)
  return f(*args, **kwargs)

/home/youser/.local/share/virtualenvs/news-site-columnist-8tsXn7bh/lib/python3.10/site-packages/sentry_sdk/integrations/django/middleware.py in __call__(177)
  return f(*args, **kwargs)

/home/youser/.local/share/virtualenvs/news-site-columnist-8tsXn7bh/lib/python3.10/site-packages/sentry_sdk/integrations/django/middleware.py in __call__(177)
  return f(*args, **kwargs)

/home/youser/.local/share/virtualenvs/news-site-columnist-8tsXn7bh/lib/python3.10/site-packages/corsheaders/middleware.py in __call__(53)
  result = self.get_response(request)

/home/youser/.local/share/virtualenvs/news-site-columnist-8tsXn7bh/lib/python3.10/site-packages/sentry_sdk/integrations/django/middleware.py in __call__(177)
  return f(*args, **kwargs)

/home/youser/.local/share/virtualenvs/news-site-columnist-8tsXn7bh/lib/python3.10/site-packages/django_user_agents/middleware.py in __call__(14)
  return self.get_response(request)

/home/youser/.local/share/virtualenvs/news-site-columnist-8tsXn7bh/lib/python3.10/site-packages/sentry_sdk/integrations/django/middleware.py in __call__(177)
  return f(*args, **kwargs)

/home/youser/.local/share/virtualenvs/news-site-columnist-8tsXn7bh/lib/python3.10/site-packages/sentry_sdk/integrations/django/middleware.py in __call__(177)
  return f(*args, **kwargs)

/home/youser/.local/share/virtualenvs/news-site-columnist-8tsXn7bh/lib/python3.10/site-packages/sentry_sdk/integrations/django/middleware.py in __call__(177)
  return f(*args, **kwargs)

/home/youser/.local/share/virtualenvs/news-site-columnist-8tsXn7bh/lib/python3.10/site-packages/sentry_sdk/integrations/django/middleware.py in __call__(177)
  return f(*args, **kwargs)

/home/youser/.local/share/virtualenvs/news-site-columnist-8tsXn7bh/lib/python3.10/site-packages/sentry_sdk/integrations/django/middleware.py in __call__(177)
  return f(*args, **kwargs)

/home/youser/.local/share/virtualenvs/news-site-columnist-8tsXn7bh/lib/python3.10/site-packages/sentry_sdk/integrations/django/middleware.py in __call__(177)
  return f(*args, **kwargs)

/home/youser/.local/share/virtualenvs/news-site-columnist-8tsXn7bh/lib/python3.10/site-packages/sentry_sdk/integrations/django/middleware.py in __call__(177)
  return f(*args, **kwargs)

/home/youser/.local/share/virtualenvs/news-site-columnist-8tsXn7bh/lib/python3.10/site-packages/sentry_sdk/integrations/django/middleware.py in __call__(177)
  return f(*args, **kwargs)

/var/www/news-site-columnist/news/middleware/subdomain_middleare.py in __call__(19)
  if sd != settings.DEFAULT_SUBDOMAIN and sd != 'videos' and sd != 'olympics' and sd not in all_cat_subdomains:

/home/youser/.local/share/virtualenvs/news-site-columnist-8tsXn7bh/lib/python3.10/site-packages/modeltranslation/manager.py in __iter__(570)
  for row in super().__iter__():

/home/youser/.local/share/virtualenvs/news-site-columnist-8tsXn7bh/lib/python3.10/site-packages/modeltranslation/manager.py in __iter__(555)
  for row in super().__iter__():

/home/youser/.local/share/virtualenvs/news-site-columnist-8tsXn7bh/lib/python3.10/site-packages/modeltranslation/manager.py in __iter__(545)
  for row in super().__iter__():

SELECT "category"."id",
       "category"."created_at",
       "category"."updated_at",
       "category"."seo_title",
       "category"."seo_title_uk",
       "category"."seo_title_en",
       "category"."seo_title_ru",
       "category"."seo_description",
       "category"."seo_description_uk",
       "category"."seo_description_en",
       "category"."seo_description_ru",
       "category"."seo_keywords",
       "category"."seo_keywords_uk",
       "category"."seo_keywords_en",
       "category"."seo_keywords_ru",
       "category"."seo_header_one",
       "category"."seo_header_one_uk",
       "category"."seo_header_one_en",
       "category"."seo_header_one_ru",
       "category"."seo_news_title",
       "category"."seo_news_title_uk",
       "category"."seo_news_title_en",
       "category"."seo_news_title_ru",
       "category"."seo_news_description",
       "category"."seo_news_description_uk",
       "category"."seo_news_description_en",
       "category"."seo_news_description_ru",
       "category"."subdomain",
       "category"."parent_id",
       "category"."image",
       "category"."is_active",
       "category"."is_rss_active",
       "category"."is_interesting",
       "category"."ticker_rss_active",
       "category"."show_home",
       "category"."show_home_en",
       "category"."show_video",
       "category"."show_menu",
       "category"."show_menu_uk",
       "category"."show_menu_en",
       "category"."show_menu_ru",
       "category"."show_footer",
       "category"."show_menu_in_en",
       "category"."show_footer_in_en",
       "category"."show_in_search",
       "category"."show_in_header",
       "category"."show_in_header_uk",
       "category"."show_in_header_en",
       "category"."show_in_header_ru",
       "category"."seo_tag_id",
       "category"."sort_weight",
       "category"."sort_weight_en",
       "category"."header_sort_weight",
       "category"."header_sort_weight_uk",
       "category"."header_sort_weight_en",
       "category"."header_sort_weight_ru",
       "category"."footer_sort_weight",
       "category"."menu_sort_weight",
       "category"."name",
       "category"."name_uk",
       "category"."name_en",
       "category"."name_ru",
       "category"."slug",
       "category"."description",
       "category"."description_uk",
       "category"."description_en",
       "category"."description_ru",
       "category"."fb_link",
       "category"."tg_link",
       "category"."show_banner",
       "category"."uk_has_translation",
       "category"."ru_has_translation",
       "category"."en_has_translation",
       "category"."has_infinite_scroll",
       "category"."_show_home_without_subdomain",
       "category"."_show_home_without_subdomain_en",
       "category"."background_id",
       "category"."use_old_design",
       "category"."use_old_design_for_posts",
       "category"."is_context_category",
       "category"."show_stories_on_main",
       "category"."show_posts_table_of_contents",
       "category"."svg_icon"
  FROM "category"
 WHERE "category"."subdomain" = 'lviv'
 LIMIT 21
SELECT ••• FROM "category" WHERE "category"."subdomain" = 'lviv' LIMIT 21
2,28

Connection: default

Transaction status: Idle

/home/youser/.local/share/virtualenvs/news-site-columnist-8tsXn7bh/bin/gunicorn in <module>(8)
  sys.exit(run())

/home/youser/.local/share/virtualenvs/news-site-columnist-8tsXn7bh/lib/python3.10/site-packages/gunicorn/app/wsgiapp.py in run(66)
  WSGIApplication("%(prog)s [OPTIONS] [APP_MODULE]", prog=prog).run()

/home/youser/.local/share/virtualenvs/news-site-columnist-8tsXn7bh/lib/python3.10/site-packages/gunicorn/app/base.py in run(235)
  super().run()

/home/youser/.local/share/virtualenvs/news-site-columnist-8tsXn7bh/lib/python3.10/site-packages/gunicorn/app/base.py in run(71)
  Arbiter(self).run()

/home/youser/.local/share/virtualenvs/news-site-columnist-8tsXn7bh/lib/python3.10/site-packages/gunicorn/arbiter.py in run(210)
  self.manage_workers()

/home/youser/.local/share/virtualenvs/news-site-columnist-8tsXn7bh/lib/python3.10/site-packages/gunicorn/arbiter.py in manage_workers(570)
  self.spawn_workers()

/home/youser/.local/share/virtualenvs/news-site-columnist-8tsXn7bh/lib/python3.10/site-packages/gunicorn/arbiter.py in spawn_workers(641)
  self.spawn_worker()

/home/youser/.local/share/virtualenvs/news-site-columnist-8tsXn7bh/lib/python3.10/site-packages/gunicorn/arbiter.py in spawn_worker(608)
  worker.init_process()

/home/youser/.local/share/virtualenvs/news-site-columnist-8tsXn7bh/lib/python3.10/site-packages/gunicorn/workers/base.py in init_process(143)
  self.run()

/home/youser/.local/share/virtualenvs/news-site-columnist-8tsXn7bh/lib/python3.10/site-packages/gunicorn/workers/sync.py in run(125)
  self.run_for_one(timeout)

/home/youser/.local/share/virtualenvs/news-site-columnist-8tsXn7bh/lib/python3.10/site-packages/gunicorn/workers/sync.py in run_for_one(69)
  self.accept(listener)

/home/youser/.local/share/virtualenvs/news-site-columnist-8tsXn7bh/lib/python3.10/site-packages/gunicorn/workers/sync.py in accept(31)
  self.handle(listener, client, addr)

/home/youser/.local/share/virtualenvs/news-site-columnist-8tsXn7bh/lib/python3.10/site-packages/gunicorn/workers/sync.py in handle(134)
  self.handle_request(listener, req, client, addr)

/home/youser/.local/share/virtualenvs/news-site-columnist-8tsXn7bh/lib/python3.10/site-packages/gunicorn/workers/sync.py in handle_request(177)
  respiter = self.wsgi(environ, resp.start_response)

/home/youser/.local/share/virtualenvs/news-site-columnist-8tsXn7bh/lib/python3.10/site-packages/sentry_sdk/utils.py in runner(1864)
  return sentry_patched_function(*args, **kwargs)

/home/youser/.local/share/virtualenvs/news-site-columnist-8tsXn7bh/lib/python3.10/site-packages/sentry_sdk/integrations/django/__init__.py in sentry_patched_wsgi_handler(191)
  return middleware(environ, start_response)

/home/youser/.local/share/virtualenvs/news-site-columnist-8tsXn7bh/lib/python3.10/site-packages/sentry_sdk/integrations/wsgi.py in __call__(132)
  response = self.app(

/home/youser/.local/share/virtualenvs/news-site-columnist-8tsXn7bh/lib/python3.10/site-packages/sentry_sdk/integrations/django/__init__.py in sentry_patched_get_response(478)
  rv = old_get_response(self, request)

/home/youser/.local/share/virtualenvs/news-site-columnist-8tsXn7bh/lib/python3.10/site-packages/sentry_sdk/integrations/django/middleware.py in __call__(177)
  return f(*args, **kwargs)

/home/youser/.local/share/virtualenvs/news-site-columnist-8tsXn7bh/lib/python3.10/site-packages/sentry_sdk/integrations/django/middleware.py in __call__(177)
  return f(*args, **kwargs)

/var/www/news-site-columnist/redirects/middleware/redirect_middleware.py in __call__(17)
  return self.get_response(request)

/home/youser/.local/share/virtualenvs/news-site-columnist-8tsXn7bh/lib/python3.10/site-packages/sentry_sdk/integrations/django/middleware.py in __call__(177)
  return f(*args, **kwargs)

/home/youser/.local/share/virtualenvs/news-site-columnist-8tsXn7bh/lib/python3.10/site-packages/sentry_sdk/integrations/django/middleware.py in __call__(177)
  return f(*args, **kwargs)

/home/youser/.local/share/virtualenvs/news-site-columnist-8tsXn7bh/lib/python3.10/site-packages/sentry_sdk/integrations/django/middleware.py in __call__(177)
  return f(*args, **kwargs)

/home/youser/.local/share/virtualenvs/news-site-columnist-8tsXn7bh/lib/python3.10/site-packages/sentry_sdk/integrations/django/middleware.py in __call__(177)
  return f(*args, **kwargs)

/home/youser/.local/share/virtualenvs/news-site-columnist-8tsXn7bh/lib/python3.10/site-packages/corsheaders/middleware.py in __call__(53)
  result = self.get_response(request)

/home/youser/.local/share/virtualenvs/news-site-columnist-8tsXn7bh/lib/python3.10/site-packages/sentry_sdk/integrations/django/middleware.py in __call__(177)
  return f(*args, **kwargs)

/home/youser/.local/share/virtualenvs/news-site-columnist-8tsXn7bh/lib/python3.10/site-packages/django_user_agents/middleware.py in __call__(14)
  return self.get_response(request)

/home/youser/.local/share/virtualenvs/news-site-columnist-8tsXn7bh/lib/python3.10/site-packages/sentry_sdk/integrations/django/middleware.py in __call__(177)
  return f(*args, **kwargs)

/home/youser/.local/share/virtualenvs/news-site-columnist-8tsXn7bh/lib/python3.10/site-packages/sentry_sdk/integrations/django/middleware.py in __call__(177)
  return f(*args, **kwargs)

/home/youser/.local/share/virtualenvs/news-site-columnist-8tsXn7bh/lib/python3.10/site-packages/sentry_sdk/integrations/django/middleware.py in __call__(177)
  return f(*args, **kwargs)

/home/youser/.local/share/virtualenvs/news-site-columnist-8tsXn7bh/lib/python3.10/site-packages/sentry_sdk/integrations/django/middleware.py in __call__(177)
  return f(*args, **kwargs)

/home/youser/.local/share/virtualenvs/news-site-columnist-8tsXn7bh/lib/python3.10/site-packages/sentry_sdk/integrations/django/middleware.py in __call__(177)
  return f(*args, **kwargs)

/home/youser/.local/share/virtualenvs/news-site-columnist-8tsXn7bh/lib/python3.10/site-packages/sentry_sdk/integrations/django/middleware.py in __call__(177)
  return f(*args, **kwargs)

/home/youser/.local/share/virtualenvs/news-site-columnist-8tsXn7bh/lib/python3.10/site-packages/sentry_sdk/integrations/django/middleware.py in __call__(177)
  return f(*args, **kwargs)

/home/youser/.local/share/virtualenvs/news-site-columnist-8tsXn7bh/lib/python3.10/site-packages/sentry_sdk/integrations/django/middleware.py in __call__(177)
  return f(*args, **kwargs)

/var/www/news-site-columnist/news/middleware/subdomain_middleare.py in __call__(22)
  response = self.get_response(request)

/home/youser/.local/share/virtualenvs/news-site-columnist-8tsXn7bh/lib/python3.10/site-packages/sentry_sdk/integrations/django/views.py in sentry_wrapped_callback(94)
  return callback(request, *args, **kwargs)

/var/www/news-site-columnist/news/views/post.py in subdomain_view_post(922)
  cat = Category.all_objects.get(subdomain=subdomain)

SELECT "post"."created_at",
       "post"."seo_title",
       "post"."seo_title_uk",
       "post"."seo_title_en",
       "post"."seo_title_ru",
       "post"."seo_description",
       "post"."seo_description_uk",
       "post"."seo_description_en",
       "post"."seo_description_ru",
       "post"."seo_keywords",
       "post"."seo_keywords_uk",
       "post"."seo_keywords_en",
       "post"."seo_keywords_ru",
       "post"."seo_header_one",
       "post"."seo_header_one_uk",
       "post"."seo_header_one_en",
       "post"."seo_header_one_ru",
       "post"."created_by",
       "post"."updated_by",
       "post"."polymorphic_ctype_id",
       "post"."id",
       "post"."head",
       "post"."head_uk",
       "post"."head_en",
       "post"."head_ru",
       "post"."sub_head",
       "post"."sub_head_uk",
       "post"."sub_head_en",
       "post"."sub_head_ru",
       "post"."content",
       "post"."content_uk",
       "post"."content_en",
       "post"."content_ru",
       "post"."author_id",
       "post"."seo_tag_id",
       "post"."publish_at",
       "post"."translated_at",
       "post"."updated_at",
       "post"."show_updated_at",
       "post"."slug",
       "post"."slug_uk",
       "post"."slug_en",
       "post"."slug_ru",
       "post"."aplication_type",
       "post"."last_editor_id",
       "post"."status",
       "post"."show_at_homepage",
       "post"."show_at_news_feed",
       "post"."show_on_broadcast_page",
       "post"."is_category_top",
       "post"."is_homepage_top",
       "post"."is_homepage_top_uk",
       "post"."is_homepage_top_en",
       "post"."is_homepage_top_ru",
       "post"."id_sponsored",
       "post"."is_lightning",
       "post"."is_exclusive",
       "post"."is_photo_report",
       "post"."is_post",
       "post"."is_article",
       "post"."main_page_img_full_width",
       "post"."need_hires",
       "post"."has_photo",
       "post"."has_video",
       "post"."is_editors_choise",
       "post"."show_in_sidebar",
       "post"."category_id",
       "post"."old_category_id",
       "post"."past_region",
       "post"."year_of_war",
       "post"."breaking_news",
       "post"."without_img",
       "post"."show_stories_block",
       "post"."display_type",
       "post"."image",
       "post"."image_alt",
       "post"."image_alt_uk",
       "post"."image_alt_en",
       "post"."image_alt_ru",
       "post"."seo_image",
       "post"."text_under_image",
       "post"."text_under_image_uk",
       "post"."text_under_image_en",
       "post"."text_under_image_ru",
       "post"."image_source",
       "post"."image_source_uk",
       "post"."image_source_en",
       "post"."image_source_ru",
       "post"."theme_id",
       "post"."is_nofollow_disabled",
       "post"."audio_content_id",
       "post"."audio_content_uk_id",
       "post"."audio_content_en_id",
       "post"."audio_content_ru_id",
       "post"."views",
       "post"."views_uk",
       "post"."views_ru",
       "post"."views_analytics",
       "post"."views_analytics_ru",
       "post"."views_analytics_uk",
       "post"."views_analytics_at",
       "post"."busy_by_id",
       "post"."image_editor_id",
       "post"."release_editor_id",
       "post"."special_type",
       "post"."head_longer_than_100",
       "post"."uk_has_translation",
       "post"."ru_has_translation",
       "post"."en_has_translation",
       "post"."homepage_slider_text",
       "post"."homepage_slider_text_uk",
       "post"."homepage_slider_text_en",
       "post"."homepage_slider_text_ru"
  FROM "post"
 INNER JOIN "category"
    ON ("post"."category_id" = "category"."id")
 WHERE ("post"."polymorphic_ctype_id" = 4 AND "category"."slug" = 'lviv' AND "post"."id" = 139383 AND "post"."status" = 2 AND "post"."publish_at" <= '2026-02-12T08:22:18.061551+00:00'::timestamptz)
 LIMIT 21
SELECT ••• FROM "post" INNER JOIN "category" ON ("post"."category_id" = "category"."id") WHERE ("post"."polymorphic_ctype_id" = 4 AND "category"."slug" = 'lviv' AND "post"."id" = 139383 AND "post"."status" = 2 AND "post"."publish_at" <= '2026-02-12T08:22:18.061551+00:00'::timestamptz) LIMIT 21
6 similar queries.
3,60

Connection: default

Transaction status: Idle

/home/youser/.local/share/virtualenvs/news-site-columnist-8tsXn7bh/bin/gunicorn in <module>(8)
  sys.exit(run())

/home/youser/.local/share/virtualenvs/news-site-columnist-8tsXn7bh/lib/python3.10/site-packages/gunicorn/app/wsgiapp.py in run(66)
  WSGIApplication("%(prog)s [OPTIONS] [APP_MODULE]", prog=prog).run()

/home/youser/.local/share/virtualenvs/news-site-columnist-8tsXn7bh/lib/python3.10/site-packages/gunicorn/app/base.py in run(235)
  super().run()

/home/youser/.local/share/virtualenvs/news-site-columnist-8tsXn7bh/lib/python3.10/site-packages/gunicorn/app/base.py in run(71)
  Arbiter(self).run()

/home/youser/.local/share/virtualenvs/news-site-columnist-8tsXn7bh/lib/python3.10/site-packages/gunicorn/arbiter.py in run(210)
  self.manage_workers()

/home/youser/.local/share/virtualenvs/news-site-columnist-8tsXn7bh/lib/python3.10/site-packages/gunicorn/arbiter.py in manage_workers(570)
  self.spawn_workers()

/home/youser/.local/share/virtualenvs/news-site-columnist-8tsXn7bh/lib/python3.10/site-packages/gunicorn/arbiter.py in spawn_workers(641)
  self.spawn_worker()

/home/youser/.local/share/virtualenvs/news-site-columnist-8tsXn7bh/lib/python3.10/site-packages/gunicorn/arbiter.py in spawn_worker(608)
  worker.init_process()

/home/youser/.local/share/virtualenvs/news-site-columnist-8tsXn7bh/lib/python3.10/site-packages/gunicorn/workers/base.py in init_process(143)
  self.run()

/home/youser/.local/share/virtualenvs/news-site-columnist-8tsXn7bh/lib/python3.10/site-packages/gunicorn/workers/sync.py in run(125)
  self.run_for_one(timeout)

/home/youser/.local/share/virtualenvs/news-site-columnist-8tsXn7bh/lib/python3.10/site-packages/gunicorn/workers/sync.py in run_for_one(69)
  self.accept(listener)

/home/youser/.local/share/virtualenvs/news-site-columnist-8tsXn7bh/lib/python3.10/site-packages/gunicorn/workers/sync.py in accept(31)
  self.handle(listener, client, addr)

/home/youser/.local/share/virtualenvs/news-site-columnist-8tsXn7bh/lib/python3.10/site-packages/gunicorn/workers/sync.py in handle(134)
  self.handle_request(listener, req, client, addr)

/home/youser/.local/share/virtualenvs/news-site-columnist-8tsXn7bh/lib/python3.10/site-packages/gunicorn/workers/sync.py in handle_request(177)
  respiter = self.wsgi(environ, resp.start_response)

/home/youser/.local/share/virtualenvs/news-site-columnist-8tsXn7bh/lib/python3.10/site-packages/sentry_sdk/utils.py in runner(1864)
  return sentry_patched_function(*args, **kwargs)

/home/youser/.local/share/virtualenvs/news-site-columnist-8tsXn7bh/lib/python3.10/site-packages/sentry_sdk/integrations/django/__init__.py in sentry_patched_wsgi_handler(191)
  return middleware(environ, start_response)

/home/youser/.local/share/virtualenvs/news-site-columnist-8tsXn7bh/lib/python3.10/site-packages/sentry_sdk/integrations/wsgi.py in __call__(132)
  response = self.app(

/home/youser/.local/share/virtualenvs/news-site-columnist-8tsXn7bh/lib/python3.10/site-packages/sentry_sdk/integrations/django/__init__.py in sentry_patched_get_response(478)
  rv = old_get_response(self, request)

/home/youser/.local/share/virtualenvs/news-site-columnist-8tsXn7bh/lib/python3.10/site-packages/sentry_sdk/integrations/django/middleware.py in __call__(177)
  return f(*args, **kwargs)

/home/youser/.local/share/virtualenvs/news-site-columnist-8tsXn7bh/lib/python3.10/site-packages/sentry_sdk/integrations/django/middleware.py in __call__(177)
  return f(*args, **kwargs)

/var/www/news-site-columnist/redirects/middleware/redirect_middleware.py in __call__(17)
  return self.get_response(request)

/home/youser/.local/share/virtualenvs/news-site-columnist-8tsXn7bh/lib/python3.10/site-packages/sentry_sdk/integrations/django/middleware.py in __call__(177)
  return f(*args, **kwargs)

/home/youser/.local/share/virtualenvs/news-site-columnist-8tsXn7bh/lib/python3.10/site-packages/sentry_sdk/integrations/django/middleware.py in __call__(177)
  return f(*args, **kwargs)

/home/youser/.local/share/virtualenvs/news-site-columnist-8tsXn7bh/lib/python3.10/site-packages/sentry_sdk/integrations/django/middleware.py in __call__(177)
  return f(*args, **kwargs)

/home/youser/.local/share/virtualenvs/news-site-columnist-8tsXn7bh/lib/python3.10/site-packages/sentry_sdk/integrations/django/middleware.py in __call__(177)
  return f(*args, **kwargs)

/home/youser/.local/share/virtualenvs/news-site-columnist-8tsXn7bh/lib/python3.10/site-packages/corsheaders/middleware.py in __call__(53)
  result = self.get_response(request)

/home/youser/.local/share/virtualenvs/news-site-columnist-8tsXn7bh/lib/python3.10/site-packages/sentry_sdk/integrations/django/middleware.py in __call__(177)
  return f(*args, **kwargs)

/home/youser/.local/share/virtualenvs/news-site-columnist-8tsXn7bh/lib/python3.10/site-packages/django_user_agents/middleware.py in __call__(14)
  return self.get_response(request)

/home/youser/.local/share/virtualenvs/news-site-columnist-8tsXn7bh/lib/python3.10/site-packages/sentry_sdk/integrations/django/middleware.py in __call__(177)
  return f(*args, **kwargs)

/home/youser/.local/share/virtualenvs/news-site-columnist-8tsXn7bh/lib/python3.10/site-packages/sentry_sdk/integrations/django/middleware.py in __call__(177)
  return f(*args, **kwargs)

/home/youser/.local/share/virtualenvs/news-site-columnist-8tsXn7bh/lib/python3.10/site-packages/sentry_sdk/integrations/django/middleware.py in __call__(177)
  return f(*args, **kwargs)

/home/youser/.local/share/virtualenvs/news-site-columnist-8tsXn7bh/lib/python3.10/site-packages/sentry_sdk/integrations/django/middleware.py in __call__(177)
  return f(*args, **kwargs)

/home/youser/.local/share/virtualenvs/news-site-columnist-8tsXn7bh/lib/python3.10/site-packages/sentry_sdk/integrations/django/middleware.py in __call__(177)
  return f(*args, **kwargs)

/home/youser/.local/share/virtualenvs/news-site-columnist-8tsXn7bh/lib/python3.10/site-packages/sentry_sdk/integrations/django/middleware.py in __call__(177)
  return f(*args, **kwargs)

/home/youser/.local/share/virtualenvs/news-site-columnist-8tsXn7bh/lib/python3.10/site-packages/sentry_sdk/integrations/django/middleware.py in __call__(177)
  return f(*args, **kwargs)

/home/youser/.local/share/virtualenvs/news-site-columnist-8tsXn7bh/lib/python3.10/site-packages/sentry_sdk/integrations/django/middleware.py in __call__(177)
  return f(*args, **kwargs)

/var/www/news-site-columnist/news/middleware/subdomain_middleare.py in __call__(22)
  response = self.get_response(request)

/home/youser/.local/share/virtualenvs/news-site-columnist-8tsXn7bh/lib/python3.10/site-packages/sentry_sdk/integrations/django/views.py in sentry_wrapped_callback(94)
  return callback(request, *args, **kwargs)

/var/www/news-site-columnist/news/views/post.py in subdomain_view_post(923)
  return GetPost.as_view()(

/home/youser/.local/share/virtualenvs/news-site-columnist-8tsXn7bh/lib/python3.10/site-packages/django/views/generic/base.py in view(104)
  return self.dispatch(request, *args, **kwargs)

/home/youser/.local/share/virtualenvs/news-site-columnist-8tsXn7bh/lib/python3.10/site-packages/django/views/generic/base.py in dispatch(143)
  return handler(request, *args, **kwargs)

/var/www/news-site-columnist/news/views/post.py in get(181)
  post = self.get_object()

/var/www/news-site-columnist/news/views/post.py in get_object(120)
  obj = queryset.get()

/home/youser/.local/share/virtualenvs/news-site-columnist-8tsXn7bh/lib/python3.10/site-packages/polymorphic/query.py in _polymorphic_iterator(57)
  o = next(base_iter)

SELECT "post"."created_at",
       "post"."seo_title",
       "post"."seo_title_uk",
       "post"."seo_title_en",
       "post"."seo_title_ru",
       "post"."seo_description",
       "post"."seo_description_uk",
       "post"."seo_description_en",
       "post"."seo_description_ru",
       "post"."seo_keywords",
       "post"."seo_keywords_uk",
       "post"."seo_keywords_en",
       "post"."seo_keywords_ru",
       "post"."seo_header_one",
       "post"."seo_header_one_uk",
       "post"."seo_header_one_en",
       "post"."seo_header_one_ru",
       "post"."created_by",
       "post"."updated_by",
       "post"."polymorphic_ctype_id",
       "post"."id",
       "post"."head",
       "post"."head_uk",
       "post"."head_en",
       "post"."head_ru",
       "post"."sub_head",
       "post"."sub_head_uk",
       "post"."sub_head_en",
       "post"."sub_head_ru",
       "post"."content",
       "post"."content_uk",
       "post"."content_en",
       "post"."content_ru",
       "post"."author_id",
       "post"."seo_tag_id",
       "post"."publish_at",
       "post"."translated_at",
       "post"."updated_at",
       "post"."show_updated_at",
       "post"."slug",
       "post"."slug_uk",
       "post"."slug_en",
       "post"."slug_ru",
       "post"."aplication_type",
       "post"."last_editor_id",
       "post"."status",
       "post"."show_at_homepage",
       "post"."show_at_news_feed",
       "post"."show_on_broadcast_page",
       "post"."is_category_top",
       "post"."is_homepage_top",
       "post"."is_homepage_top_uk",
       "post"."is_homepage_top_en",
       "post"."is_homepage_top_ru",
       "post"."id_sponsored",
       "post"."is_lightning",
       "post"."is_exclusive",
       "post"."is_photo_report",
       "post"."is_post",
       "post"."is_article",
       "post"."main_page_img_full_width",
       "post"."need_hires",
       "post"."has_photo",
       "post"."has_video",
       "post"."is_editors_choise",
       "post"."show_in_sidebar",
       "post"."category_id",
       "post"."old_category_id",
       "post"."past_region",
       "post"."year_of_war",
       "post"."breaking_news",
       "post"."without_img",
       "post"."show_stories_block",
       "post"."display_type",
       "post"."image",
       "post"."image_alt",
       "post"."image_alt_uk",
       "post"."image_alt_en",
       "post"."image_alt_ru",
       "post"."seo_image",
       "post"."text_under_image",
       "post"."text_under_image_uk",
       "post"."text_under_image_en",
       "post"."text_under_image_ru",
       "post"."image_source",
       "post"."image_source_uk",
       "post"."image_source_en",
       "post"."image_source_ru",
       "post"."theme_id",
       "post"."is_nofollow_disabled",
       "post"."audio_content_id",
       "post"."audio_content_uk_id",
       "post"."audio_content_en_id",
       "post"."audio_content_ru_id",
       "post"."views",
       "post"."views_uk",
       "post"."views_ru",
       "post"."views_analytics",
       "post"."views_analytics_ru",
       "post"."views_analytics_uk",
       "post"."views_analytics_at",
       "post"."busy_by_id",
       "post"."image_editor_id",
       "post"."release_editor_id",
       "post"."special_type",
       "post"."head_longer_than_100",
       "post"."uk_has_translation",
       "post"."ru_has_translation",
       "post"."en_has_translation",
       "post"."homepage_slider_text",
       "post"."homepage_slider_text_uk",
       "post"."homepage_slider_text_en",
       "post"."homepage_slider_text_ru"
  FROM "post"
 INNER JOIN "category"
    ON ("post"."category_id" = "category"."id")
 WHERE ("post"."polymorphic_ctype_id" = 4 AND "category"."slug" = 'lviv' AND "post"."id" = 139383 AND "post"."status" = 2 AND "post"."publish_at" <= '2026-02-12T08:22:18.068110+00:00'::timestamptz)
 LIMIT 21
SELECT ••• FROM "post" INNER JOIN "category" ON ("post"."category_id" = "category"."id") WHERE ("post"."polymorphic_ctype_id" = 4 AND "category"."slug" = 'lviv' AND "post"."id" = 139383 AND "post"."status" = 2 AND "post"."publish_at" <= '2026-02-12T08:22:18.068110+00:00'::timestamptz) LIMIT 21
6 similar queries.
1,47

Connection: default

Transaction status: Idle

/home/youser/.local/share/virtualenvs/news-site-columnist-8tsXn7bh/bin/gunicorn in <module>(8)
  sys.exit(run())

/home/youser/.local/share/virtualenvs/news-site-columnist-8tsXn7bh/lib/python3.10/site-packages/gunicorn/app/wsgiapp.py in run(66)
  WSGIApplication("%(prog)s [OPTIONS] [APP_MODULE]", prog=prog).run()

/home/youser/.local/share/virtualenvs/news-site-columnist-8tsXn7bh/lib/python3.10/site-packages/gunicorn/app/base.py in run(235)
  super().run()

/home/youser/.local/share/virtualenvs/news-site-columnist-8tsXn7bh/lib/python3.10/site-packages/gunicorn/app/base.py in run(71)
  Arbiter(self).run()

/home/youser/.local/share/virtualenvs/news-site-columnist-8tsXn7bh/lib/python3.10/site-packages/gunicorn/arbiter.py in run(210)
  self.manage_workers()

/home/youser/.local/share/virtualenvs/news-site-columnist-8tsXn7bh/lib/python3.10/site-packages/gunicorn/arbiter.py in manage_workers(570)
  self.spawn_workers()

/home/youser/.local/share/virtualenvs/news-site-columnist-8tsXn7bh/lib/python3.10/site-packages/gunicorn/arbiter.py in spawn_workers(641)
  self.spawn_worker()

/home/youser/.local/share/virtualenvs/news-site-columnist-8tsXn7bh/lib/python3.10/site-packages/gunicorn/arbiter.py in spawn_worker(608)
  worker.init_process()

/home/youser/.local/share/virtualenvs/news-site-columnist-8tsXn7bh/lib/python3.10/site-packages/gunicorn/workers/base.py in init_process(143)
  self.run()

/home/youser/.local/share/virtualenvs/news-site-columnist-8tsXn7bh/lib/python3.10/site-packages/gunicorn/workers/sync.py in run(125)
  self.run_for_one(timeout)

/home/youser/.local/share/virtualenvs/news-site-columnist-8tsXn7bh/lib/python3.10/site-packages/gunicorn/workers/sync.py in run_for_one(69)
  self.accept(listener)

/home/youser/.local/share/virtualenvs/news-site-columnist-8tsXn7bh/lib/python3.10/site-packages/gunicorn/workers/sync.py in accept(31)
  self.handle(listener, client, addr)

/home/youser/.local/share/virtualenvs/news-site-columnist-8tsXn7bh/lib/python3.10/site-packages/gunicorn/workers/sync.py in handle(134)
  self.handle_request(listener, req, client, addr)

/home/youser/.local/share/virtualenvs/news-site-columnist-8tsXn7bh/lib/python3.10/site-packages/gunicorn/workers/sync.py in handle_request(177)
  respiter = self.wsgi(environ, resp.start_response)

/home/youser/.local/share/virtualenvs/news-site-columnist-8tsXn7bh/lib/python3.10/site-packages/sentry_sdk/utils.py in runner(1864)
  return sentry_patched_function(*args, **kwargs)

/home/youser/.local/share/virtualenvs/news-site-columnist-8tsXn7bh/lib/python3.10/site-packages/sentry_sdk/integrations/django/__init__.py in sentry_patched_wsgi_handler(191)
  return middleware(environ, start_response)

/home/youser/.local/share/virtualenvs/news-site-columnist-8tsXn7bh/lib/python3.10/site-packages/sentry_sdk/integrations/wsgi.py in __call__(132)
  response = self.app(

/home/youser/.local/share/virtualenvs/news-site-columnist-8tsXn7bh/lib/python3.10/site-packages/sentry_sdk/integrations/django/__init__.py in sentry_patched_get_response(478)
  rv = old_get_response(self, request)

/home/youser/.local/share/virtualenvs/news-site-columnist-8tsXn7bh/lib/python3.10/site-packages/sentry_sdk/integrations/django/middleware.py in __call__(177)
  return f(*args, **kwargs)

/home/youser/.local/share/virtualenvs/news-site-columnist-8tsXn7bh/lib/python3.10/site-packages/sentry_sdk/integrations/django/middleware.py in __call__(177)
  return f(*args, **kwargs)

/var/www/news-site-columnist/redirects/middleware/redirect_middleware.py in __call__(17)
  return self.get_response(request)

/home/youser/.local/share/virtualenvs/news-site-columnist-8tsXn7bh/lib/python3.10/site-packages/sentry_sdk/integrations/django/middleware.py in __call__(177)
  return f(*args, **kwargs)

/home/youser/.local/share/virtualenvs/news-site-columnist-8tsXn7bh/lib/python3.10/site-packages/sentry_sdk/integrations/django/middleware.py in __call__(177)
  return f(*args, **kwargs)

/home/youser/.local/share/virtualenvs/news-site-columnist-8tsXn7bh/lib/python3.10/site-packages/sentry_sdk/integrations/django/middleware.py in __call__(177)
  return f(*args, **kwargs)

/home/youser/.local/share/virtualenvs/news-site-columnist-8tsXn7bh/lib/python3.10/site-packages/sentry_sdk/integrations/django/middleware.py in __call__(177)
  return f(*args, **kwargs)

/home/youser/.local/share/virtualenvs/news-site-columnist-8tsXn7bh/lib/python3.10/site-packages/corsheaders/middleware.py in __call__(53)
  result = self.get_response(request)

/home/youser/.local/share/virtualenvs/news-site-columnist-8tsXn7bh/lib/python3.10/site-packages/sentry_sdk/integrations/django/middleware.py in __call__(177)
  return f(*args, **kwargs)

/home/youser/.local/share/virtualenvs/news-site-columnist-8tsXn7bh/lib/python3.10/site-packages/django_user_agents/middleware.py in __call__(14)
  return self.get_response(request)

/home/youser/.local/share/virtualenvs/news-site-columnist-8tsXn7bh/lib/python3.10/site-packages/sentry_sdk/integrations/django/middleware.py in __call__(177)
  return f(*args, **kwargs)

/home/youser/.local/share/virtualenvs/news-site-columnist-8tsXn7bh/lib/python3.10/site-packages/sentry_sdk/integrations/django/middleware.py in __call__(177)
  return f(*args, **kwargs)

/home/youser/.local/share/virtualenvs/news-site-columnist-8tsXn7bh/lib/python3.10/site-packages/sentry_sdk/integrations/django/middleware.py in __call__(177)
  return f(*args, **kwargs)

/home/youser/.local/share/virtualenvs/news-site-columnist-8tsXn7bh/lib/python3.10/site-packages/sentry_sdk/integrations/django/middleware.py in __call__(177)
  return f(*args, **kwargs)

/home/youser/.local/share/virtualenvs/news-site-columnist-8tsXn7bh/lib/python3.10/site-packages/sentry_sdk/integrations/django/middleware.py in __call__(177)
  return f(*args, **kwargs)

/home/youser/.local/share/virtualenvs/news-site-columnist-8tsXn7bh/lib/python3.10/site-packages/sentry_sdk/integrations/django/middleware.py in __call__(177)
  return f(*args, **kwargs)

/home/youser/.local/share/virtualenvs/news-site-columnist-8tsXn7bh/lib/python3.10/site-packages/sentry_sdk/integrations/django/middleware.py in __call__(177)
  return f(*args, **kwargs)

/home/youser/.local/share/virtualenvs/news-site-columnist-8tsXn7bh/lib/python3.10/site-packages/sentry_sdk/integrations/django/middleware.py in __call__(177)
  return f(*args, **kwargs)

/var/www/news-site-columnist/news/middleware/subdomain_middleare.py in __call__(22)
  response = self.get_response(request)

/home/youser/.local/share/virtualenvs/news-site-columnist-8tsXn7bh/lib/python3.10/site-packages/sentry_sdk/integrations/django/views.py in sentry_wrapped_callback(94)
  return callback(request, *args, **kwargs)

/var/www/news-site-columnist/news/views/post.py in subdomain_view_post(923)
  return GetPost.as_view()(

/home/youser/.local/share/virtualenvs/news-site-columnist-8tsXn7bh/lib/python3.10/site-packages/django/views/generic/base.py in view(104)
  return self.dispatch(request, *args, **kwargs)

/home/youser/.local/share/virtualenvs/news-site-columnist-8tsXn7bh/lib/python3.10/site-packages/django/views/generic/base.py in dispatch(143)
  return handler(request, *args, **kwargs)

/var/www/news-site-columnist/news/views/post.py in get(187)
  return super().get(request, *args, **kwargs)

/var/www/news-site-columnist/news/views/base.py in get(143)
  post = self.get_object()

/var/www/news-site-columnist/news/views/post.py in get_object(120)
  obj = queryset.get()

/home/youser/.local/share/virtualenvs/news-site-columnist-8tsXn7bh/lib/python3.10/site-packages/polymorphic/query.py in _polymorphic_iterator(57)
  o = next(base_iter)

SELECT "django_content_type"."id",
       "django_content_type"."app_label",
       "django_content_type"."model"
  FROM "django_content_type"
 WHERE ("django_content_type"."app_label" = 'news' AND "django_content_type"."model" = 'broadcastpost')
 LIMIT 21
SELECT ••• FROM "django_content_type" WHERE ("django_content_type"."app_label" = 'news' AND "django_content_type"."model" = 'broadcastpost') LIMIT 21
6 similar queries. Duplicated 3 times.
1,00

Connection: default

Transaction status: Idle

/home/youser/.local/share/virtualenvs/news-site-columnist-8tsXn7bh/bin/gunicorn in <module>(8)
  sys.exit(run())

/home/youser/.local/share/virtualenvs/news-site-columnist-8tsXn7bh/lib/python3.10/site-packages/gunicorn/app/wsgiapp.py in run(66)
  WSGIApplication("%(prog)s [OPTIONS] [APP_MODULE]", prog=prog).run()

/home/youser/.local/share/virtualenvs/news-site-columnist-8tsXn7bh/lib/python3.10/site-packages/gunicorn/app/base.py in run(235)
  super().run()

/home/youser/.local/share/virtualenvs/news-site-columnist-8tsXn7bh/lib/python3.10/site-packages/gunicorn/app/base.py in run(71)
  Arbiter(self).run()

/home/youser/.local/share/virtualenvs/news-site-columnist-8tsXn7bh/lib/python3.10/site-packages/gunicorn/arbiter.py in run(210)
  self.manage_workers()

/home/youser/.local/share/virtualenvs/news-site-columnist-8tsXn7bh/lib/python3.10/site-packages/gunicorn/arbiter.py in manage_workers(570)
  self.spawn_workers()

/home/youser/.local/share/virtualenvs/news-site-columnist-8tsXn7bh/lib/python3.10/site-packages/gunicorn/arbiter.py in spawn_workers(641)
  self.spawn_worker()

/home/youser/.local/share/virtualenvs/news-site-columnist-8tsXn7bh/lib/python3.10/site-packages/gunicorn/arbiter.py in spawn_worker(608)
  worker.init_process()

/home/youser/.local/share/virtualenvs/news-site-columnist-8tsXn7bh/lib/python3.10/site-packages/gunicorn/workers/base.py in init_process(143)
  self.run()

/home/youser/.local/share/virtualenvs/news-site-columnist-8tsXn7bh/lib/python3.10/site-packages/gunicorn/workers/sync.py in run(125)
  self.run_for_one(timeout)

/home/youser/.local/share/virtualenvs/news-site-columnist-8tsXn7bh/lib/python3.10/site-packages/gunicorn/workers/sync.py in run_for_one(69)
  self.accept(listener)

/home/youser/.local/share/virtualenvs/news-site-columnist-8tsXn7bh/lib/python3.10/site-packages/gunicorn/workers/sync.py in accept(31)
  self.handle(listener, client, addr)

/home/youser/.local/share/virtualenvs/news-site-columnist-8tsXn7bh/lib/python3.10/site-packages/gunicorn/workers/sync.py in handle(134)
  self.handle_request(listener, req, client, addr)

/home/youser/.local/share/virtualenvs/news-site-columnist-8tsXn7bh/lib/python3.10/site-packages/gunicorn/workers/sync.py in handle_request(177)
  respiter = self.wsgi(environ, resp.start_response)

/home/youser/.local/share/virtualenvs/news-site-columnist-8tsXn7bh/lib/python3.10/site-packages/sentry_sdk/utils.py in runner(1864)
  return sentry_patched_function(*args, **kwargs)

/home/youser/.local/share/virtualenvs/news-site-columnist-8tsXn7bh/lib/python3.10/site-packages/sentry_sdk/integrations/django/__init__.py in sentry_patched_wsgi_handler(191)
  return middleware(environ, start_response)

/home/youser/.local/share/virtualenvs/news-site-columnist-8tsXn7bh/lib/python3.10/site-packages/sentry_sdk/integrations/wsgi.py in __call__(132)
  response = self.app(

/home/youser/.local/share/virtualenvs/news-site-columnist-8tsXn7bh/lib/python3.10/site-packages/sentry_sdk/integrations/django/__init__.py in sentry_patched_get_response(478)
  rv = old_get_response(self, request)

/home/youser/.local/share/virtualenvs/news-site-columnist-8tsXn7bh/lib/python3.10/site-packages/sentry_sdk/integrations/django/middleware.py in __call__(177)
  return f(*args, **kwargs)

/home/youser/.local/share/virtualenvs/news-site-columnist-8tsXn7bh/lib/python3.10/site-packages/sentry_sdk/integrations/django/middleware.py in __call__(177)
  return f(*args, **kwargs)

/var/www/news-site-columnist/redirects/middleware/redirect_middleware.py in __call__(17)
  return self.get_response(request)

/home/youser/.local/share/virtualenvs/news-site-columnist-8tsXn7bh/lib/python3.10/site-packages/sentry_sdk/integrations/django/middleware.py in __call__(177)
  return f(*args, **kwargs)

/home/youser/.local/share/virtualenvs/news-site-columnist-8tsXn7bh/lib/python3.10/site-packages/sentry_sdk/integrations/django/middleware.py in __call__(177)
  return f(*args, **kwargs)

/home/youser/.local/share/virtualenvs/news-site-columnist-8tsXn7bh/lib/python3.10/site-packages/sentry_sdk/integrations/django/middleware.py in __call__(177)
  return f(*args, **kwargs)

/home/youser/.local/share/virtualenvs/news-site-columnist-8tsXn7bh/lib/python3.10/site-packages/sentry_sdk/integrations/django/middleware.py in __call__(177)
  return f(*args, **kwargs)

/home/youser/.local/share/virtualenvs/news-site-columnist-8tsXn7bh/lib/python3.10/site-packages/corsheaders/middleware.py in __call__(53)
  result = self.get_response(request)

/home/youser/.local/share/virtualenvs/news-site-columnist-8tsXn7bh/lib/python3.10/site-packages/sentry_sdk/integrations/django/middleware.py in __call__(177)
  return f(*args, **kwargs)

/home/youser/.local/share/virtualenvs/news-site-columnist-8tsXn7bh/lib/python3.10/site-packages/django_user_agents/middleware.py in __call__(14)
  return self.get_response(request)

/home/youser/.local/share/virtualenvs/news-site-columnist-8tsXn7bh/lib/python3.10/site-packages/sentry_sdk/integrations/django/middleware.py in __call__(177)
  return f(*args, **kwargs)

/home/youser/.local/share/virtualenvs/news-site-columnist-8tsXn7bh/lib/python3.10/site-packages/sentry_sdk/integrations/django/middleware.py in __call__(177)
  return f(*args, **kwargs)

/home/youser/.local/share/virtualenvs/news-site-columnist-8tsXn7bh/lib/python3.10/site-packages/sentry_sdk/integrations/django/middleware.py in __call__(177)
  return f(*args, **kwargs)

/home/youser/.local/share/virtualenvs/news-site-columnist-8tsXn7bh/lib/python3.10/site-packages/sentry_sdk/integrations/django/middleware.py in __call__(177)
  return f(*args, **kwargs)

/home/youser/.local/share/virtualenvs/news-site-columnist-8tsXn7bh/lib/python3.10/site-packages/sentry_sdk/integrations/django/middleware.py in __call__(177)
  return f(*args, **kwargs)

/home/youser/.local/share/virtualenvs/news-site-columnist-8tsXn7bh/lib/python3.10/site-packages/sentry_sdk/integrations/django/middleware.py in __call__(177)
  return f(*args, **kwargs)

/home/youser/.local/share/virtualenvs/news-site-columnist-8tsXn7bh/lib/python3.10/site-packages/sentry_sdk/integrations/django/middleware.py in __call__(177)
  return f(*args, **kwargs)

/home/youser/.local/share/virtualenvs/news-site-columnist-8tsXn7bh/lib/python3.10/site-packages/sentry_sdk/integrations/django/middleware.py in __call__(177)
  return f(*args, **kwargs)

/var/www/news-site-columnist/news/middleware/subdomain_middleare.py in __call__(22)
  response = self.get_response(request)

/home/youser/.local/share/virtualenvs/news-site-columnist-8tsXn7bh/lib/python3.10/site-packages/sentry_sdk/integrations/django/views.py in sentry_wrapped_callback(94)
  return callback(request, *args, **kwargs)

/var/www/news-site-columnist/news/views/post.py in subdomain_view_post(923)
  return GetPost.as_view()(

/home/youser/.local/share/virtualenvs/news-site-columnist-8tsXn7bh/lib/python3.10/site-packages/django/views/generic/base.py in view(104)
  return self.dispatch(request, *args, **kwargs)

/home/youser/.local/share/virtualenvs/news-site-columnist-8tsXn7bh/lib/python3.10/site-packages/django/views/generic/base.py in dispatch(143)
  return handler(request, *args, **kwargs)

/var/www/news-site-columnist/news/views/post.py in get(187)
  return super().get(request, *args, **kwargs)

/var/www/news-site-columnist/news/views/base.py in get(144)
  if not post.is_published:

/var/www/news-site-columnist/news/models/news.py in is_published(708)
  return Post.objects.filter(pk=self.pk).published().exists()

/home/youser/.local/share/virtualenvs/news-site-columnist-8tsXn7bh/lib/python3.10/site-packages/modeltranslation/manager.py in get_queryset(633)
  qs = super().get_queryset()

/home/youser/.local/share/virtualenvs/news-site-columnist-8tsXn7bh/lib/python3.10/site-packages/modeltranslation/manager.py in get_queryset(607)
  qs = super().get_queryset()

/var/www/news-site-columnist/news/models/news.py in get_queryset(51)
  qs = super().get_queryset()

/var/www/news-site-columnist/news/models/news.py in get_queryset(565)
  self.broadcast_ct = ContentType.objects.get(app_label="news", model="broadcastpost")

SELECT "django_content_type"."id",
       "django_content_type"."app_label",
       "django_content_type"."model"
  FROM "django_content_type"
 WHERE ("django_content_type"."app_label" = 'context_section' AND "django_content_type"."model" = 'columnpost')
 LIMIT 21
SELECT ••• FROM "django_content_type" WHERE ("django_content_type"."app_label" = 'context_section' AND "django_content_type"."model" = 'columnpost') LIMIT 21
6 similar queries. Duplicated 3 times.
0,49

Connection: default

Transaction status: Idle

/home/youser/.local/share/virtualenvs/news-site-columnist-8tsXn7bh/bin/gunicorn in <module>(8)
  sys.exit(run())

/home/youser/.local/share/virtualenvs/news-site-columnist-8tsXn7bh/lib/python3.10/site-packages/gunicorn/app/wsgiapp.py in run(66)
  WSGIApplication("%(prog)s [OPTIONS] [APP_MODULE]", prog=prog).run()

/home/youser/.local/share/virtualenvs/news-site-columnist-8tsXn7bh/lib/python3.10/site-packages/gunicorn/app/base.py in run(235)
  super().run()

/home/youser/.local/share/virtualenvs/news-site-columnist-8tsXn7bh/lib/python3.10/site-packages/gunicorn/app/base.py in run(71)
  Arbiter(self).run()

/home/youser/.local/share/virtualenvs/news-site-columnist-8tsXn7bh/lib/python3.10/site-packages/gunicorn/arbiter.py in run(210)
  self.manage_workers()

/home/youser/.local/share/virtualenvs/news-site-columnist-8tsXn7bh/lib/python3.10/site-packages/gunicorn/arbiter.py in manage_workers(570)
  self.spawn_workers()

/home/youser/.local/share/virtualenvs/news-site-columnist-8tsXn7bh/lib/python3.10/site-packages/gunicorn/arbiter.py in spawn_workers(641)
  self.spawn_worker()

/home/youser/.local/share/virtualenvs/news-site-columnist-8tsXn7bh/lib/python3.10/site-packages/gunicorn/arbiter.py in spawn_worker(608)
  worker.init_process()

/home/youser/.local/share/virtualenvs/news-site-columnist-8tsXn7bh/lib/python3.10/site-packages/gunicorn/workers/base.py in init_process(143)
  self.run()

/home/youser/.local/share/virtualenvs/news-site-columnist-8tsXn7bh/lib/python3.10/site-packages/gunicorn/workers/sync.py in run(125)
  self.run_for_one(timeout)

/home/youser/.local/share/virtualenvs/news-site-columnist-8tsXn7bh/lib/python3.10/site-packages/gunicorn/workers/sync.py in run_for_one(69)
  self.accept(listener)

/home/youser/.local/share/virtualenvs/news-site-columnist-8tsXn7bh/lib/python3.10/site-packages/gunicorn/workers/sync.py in accept(31)
  self.handle(listener, client, addr)

/home/youser/.local/share/virtualenvs/news-site-columnist-8tsXn7bh/lib/python3.10/site-packages/gunicorn/workers/sync.py in handle(134)
  self.handle_request(listener, req, client, addr)

/home/youser/.local/share/virtualenvs/news-site-columnist-8tsXn7bh/lib/python3.10/site-packages/gunicorn/workers/sync.py in handle_request(177)
  respiter = self.wsgi(environ, resp.start_response)

/home/youser/.local/share/virtualenvs/news-site-columnist-8tsXn7bh/lib/python3.10/site-packages/sentry_sdk/utils.py in runner(1864)
  return sentry_patched_function(*args, **kwargs)

/home/youser/.local/share/virtualenvs/news-site-columnist-8tsXn7bh/lib/python3.10/site-packages/sentry_sdk/integrations/django/__init__.py in sentry_patched_wsgi_handler(191)
  return middleware(environ, start_response)

/home/youser/.local/share/virtualenvs/news-site-columnist-8tsXn7bh/lib/python3.10/site-packages/sentry_sdk/integrations/wsgi.py in __call__(132)
  response = self.app(

/home/youser/.local/share/virtualenvs/news-site-columnist-8tsXn7bh/lib/python3.10/site-packages/sentry_sdk/integrations/django/__init__.py in sentry_patched_get_response(478)
  rv = old_get_response(self, request)

/home/youser/.local/share/virtualenvs/news-site-columnist-8tsXn7bh/lib/python3.10/site-packages/sentry_sdk/integrations/django/middleware.py in __call__(177)
  return f(*args, **kwargs)

/home/youser/.local/share/virtualenvs/news-site-columnist-8tsXn7bh/lib/python3.10/site-packages/sentry_sdk/integrations/django/middleware.py in __call__(177)
  return f(*args, **kwargs)

/var/www/news-site-columnist/redirects/middleware/redirect_middleware.py in __call__(17)
  return self.get_response(request)

/home/youser/.local/share/virtualenvs/news-site-columnist-8tsXn7bh/lib/python3.10/site-packages/sentry_sdk/integrations/django/middleware.py in __call__(177)
  return f(*args, **kwargs)

/home/youser/.local/share/virtualenvs/news-site-columnist-8tsXn7bh/lib/python3.10/site-packages/sentry_sdk/integrations/django/middleware.py in __call__(177)
  return f(*args, **kwargs)

/home/youser/.local/share/virtualenvs/news-site-columnist-8tsXn7bh/lib/python3.10/site-packages/sentry_sdk/integrations/django/middleware.py in __call__(177)
  return f(*args, **kwargs)

/home/youser/.local/share/virtualenvs/news-site-columnist-8tsXn7bh/lib/python3.10/site-packages/sentry_sdk/integrations/django/middleware.py in __call__(177)
  return f(*args, **kwargs)

/home/youser/.local/share/virtualenvs/news-site-columnist-8tsXn7bh/lib/python3.10/site-packages/corsheaders/middleware.py in __call__(53)
  result = self.get_response(request)

/home/youser/.local/share/virtualenvs/news-site-columnist-8tsXn7bh/lib/python3.10/site-packages/sentry_sdk/integrations/django/middleware.py in __call__(177)
  return f(*args, **kwargs)

/home/youser/.local/share/virtualenvs/news-site-columnist-8tsXn7bh/lib/python3.10/site-packages/django_user_agents/middleware.py in __call__(14)
  return self.get_response(request)

/home/youser/.local/share/virtualenvs/news-site-columnist-8tsXn7bh/lib/python3.10/site-packages/sentry_sdk/integrations/django/middleware.py in __call__(177)
  return f(*args, **kwargs)

/home/youser/.local/share/virtualenvs/news-site-columnist-8tsXn7bh/lib/python3.10/site-packages/sentry_sdk/integrations/django/middleware.py in __call__(177)
  return f(*args, **kwargs)

/home/youser/.local/share/virtualenvs/news-site-columnist-8tsXn7bh/lib/python3.10/site-packages/sentry_sdk/integrations/django/middleware.py in __call__(177)
  return f(*args, **kwargs)

/home/youser/.local/share/virtualenvs/news-site-columnist-8tsXn7bh/lib/python3.10/site-packages/sentry_sdk/integrations/django/middleware.py in __call__(177)
  return f(*args, **kwargs)

/home/youser/.local/share/virtualenvs/news-site-columnist-8tsXn7bh/lib/python3.10/site-packages/sentry_sdk/integrations/django/middleware.py in __call__(177)
  return f(*args, **kwargs)

/home/youser/.local/share/virtualenvs/news-site-columnist-8tsXn7bh/lib/python3.10/site-packages/sentry_sdk/integrations/django/middleware.py in __call__(177)
  return f(*args, **kwargs)

/home/youser/.local/share/virtualenvs/news-site-columnist-8tsXn7bh/lib/python3.10/site-packages/sentry_sdk/integrations/django/middleware.py in __call__(177)
  return f(*args, **kwargs)

/home/youser/.local/share/virtualenvs/news-site-columnist-8tsXn7bh/lib/python3.10/site-packages/sentry_sdk/integrations/django/middleware.py in __call__(177)
  return f(*args, **kwargs)

/var/www/news-site-columnist/news/middleware/subdomain_middleare.py in __call__(22)
  response = self.get_response(request)

/home/youser/.local/share/virtualenvs/news-site-columnist-8tsXn7bh/lib/python3.10/site-packages/sentry_sdk/integrations/django/views.py in sentry_wrapped_callback(94)
  return callback(request, *args, **kwargs)

/var/www/news-site-columnist/news/views/post.py in subdomain_view_post(923)
  return GetPost.as_view()(

/home/youser/.local/share/virtualenvs/news-site-columnist-8tsXn7bh/lib/python3.10/site-packages/django/views/generic/base.py in view(104)
  return self.dispatch(request, *args, **kwargs)

/home/youser/.local/share/virtualenvs/news-site-columnist-8tsXn7bh/lib/python3.10/site-packages/django/views/generic/base.py in dispatch(143)
  return handler(request, *args, **kwargs)

/var/www/news-site-columnist/news/views/post.py in get(187)
  return super().get(request, *args, **kwargs)

/var/www/news-site-columnist/news/views/base.py in get(144)
  if not post.is_published:

/var/www/news-site-columnist/news/models/news.py in is_published(708)
  return Post.objects.filter(pk=self.pk).published().exists()

/home/youser/.local/share/virtualenvs/news-site-columnist-8tsXn7bh/lib/python3.10/site-packages/modeltranslation/manager.py in get_queryset(633)
  qs = super().get_queryset()

/home/youser/.local/share/virtualenvs/news-site-columnist-8tsXn7bh/lib/python3.10/site-packages/modeltranslation/manager.py in get_queryset(607)
  qs = super().get_queryset()

/var/www/news-site-columnist/news/models/news.py in get_queryset(51)
  qs = super().get_queryset()

/var/www/news-site-columnist/news/models/news.py in get_queryset(566)
  self.context_post_ct = ContentType.objects.get(app_label="context_section", model="columnpost")

SELECT 1 AS "a"
  FROM "post"
 WHERE (NOT ("post"."polymorphic_ctype_id" = 64 AND "post"."polymorphic_ctype_id" IS NOT NULL) AND NOT ("post"."polymorphic_ctype_id" = 81 AND "post"."polymorphic_ctype_id" IS NOT NULL) AND "post"."uk_has_translation" AND "post"."id" = 139383 AND "post"."status" = 2 AND "post"."publish_at" <= '2026-02-12T08:22:18.076341+00:00'::timestamptz)
 LIMIT 1
SELECT 1 AS "a" FROM "post" WHERE (NOT ("post"."polymorphic_ctype_id" = 64 AND "post"."polymorphic_ctype_id" IS NOT NULL) AND NOT ("post"."polymorphic_ctype_id" = 81 AND "post"."polymorphic_ctype_id" IS NOT NULL) AND "post"."uk_has_translation" AND "post"."id" = 139383 AND "post"."status" = 2 AND "post"."publish_at" <= '2026-02-12T08:22:18.076341+00:00'::timestamptz) LIMIT 1
0,71

Connection: default

Transaction status: Idle

/home/youser/.local/share/virtualenvs/news-site-columnist-8tsXn7bh/bin/gunicorn in <module>(8)
  sys.exit(run())

/home/youser/.local/share/virtualenvs/news-site-columnist-8tsXn7bh/lib/python3.10/site-packages/gunicorn/app/wsgiapp.py in run(66)
  WSGIApplication("%(prog)s [OPTIONS] [APP_MODULE]", prog=prog).run()

/home/youser/.local/share/virtualenvs/news-site-columnist-8tsXn7bh/lib/python3.10/site-packages/gunicorn/app/base.py in run(235)
  super().run()

/home/youser/.local/share/virtualenvs/news-site-columnist-8tsXn7bh/lib/python3.10/site-packages/gunicorn/app/base.py in run(71)
  Arbiter(self).run()

/home/youser/.local/share/virtualenvs/news-site-columnist-8tsXn7bh/lib/python3.10/site-packages/gunicorn/arbiter.py in run(210)
  self.manage_workers()

/home/youser/.local/share/virtualenvs/news-site-columnist-8tsXn7bh/lib/python3.10/site-packages/gunicorn/arbiter.py in manage_workers(570)
  self.spawn_workers()

/home/youser/.local/share/virtualenvs/news-site-columnist-8tsXn7bh/lib/python3.10/site-packages/gunicorn/arbiter.py in spawn_workers(641)
  self.spawn_worker()

/home/youser/.local/share/virtualenvs/news-site-columnist-8tsXn7bh/lib/python3.10/site-packages/gunicorn/arbiter.py in spawn_worker(608)
  worker.init_process()

/home/youser/.local/share/virtualenvs/news-site-columnist-8tsXn7bh/lib/python3.10/site-packages/gunicorn/workers/base.py in init_process(143)
  self.run()

/home/youser/.local/share/virtualenvs/news-site-columnist-8tsXn7bh/lib/python3.10/site-packages/gunicorn/workers/sync.py in run(125)
  self.run_for_one(timeout)

/home/youser/.local/share/virtualenvs/news-site-columnist-8tsXn7bh/lib/python3.10/site-packages/gunicorn/workers/sync.py in run_for_one(69)
  self.accept(listener)

/home/youser/.local/share/virtualenvs/news-site-columnist-8tsXn7bh/lib/python3.10/site-packages/gunicorn/workers/sync.py in accept(31)
  self.handle(listener, client, addr)

/home/youser/.local/share/virtualenvs/news-site-columnist-8tsXn7bh/lib/python3.10/site-packages/gunicorn/workers/sync.py in handle(134)
  self.handle_request(listener, req, client, addr)

/home/youser/.local/share/virtualenvs/news-site-columnist-8tsXn7bh/lib/python3.10/site-packages/gunicorn/workers/sync.py in handle_request(177)
  respiter = self.wsgi(environ, resp.start_response)

/home/youser/.local/share/virtualenvs/news-site-columnist-8tsXn7bh/lib/python3.10/site-packages/sentry_sdk/utils.py in runner(1864)
  return sentry_patched_function(*args, **kwargs)

/home/youser/.local/share/virtualenvs/news-site-columnist-8tsXn7bh/lib/python3.10/site-packages/sentry_sdk/integrations/django/__init__.py in sentry_patched_wsgi_handler(191)
  return middleware(environ, start_response)

/home/youser/.local/share/virtualenvs/news-site-columnist-8tsXn7bh/lib/python3.10/site-packages/sentry_sdk/integrations/wsgi.py in __call__(132)
  response = self.app(

/home/youser/.local/share/virtualenvs/news-site-columnist-8tsXn7bh/lib/python3.10/site-packages/sentry_sdk/integrations/django/__init__.py in sentry_patched_get_response(478)
  rv = old_get_response(self, request)

/home/youser/.local/share/virtualenvs/news-site-columnist-8tsXn7bh/lib/python3.10/site-packages/sentry_sdk/integrations/django/middleware.py in __call__(177)
  return f(*args, **kwargs)

/home/youser/.local/share/virtualenvs/news-site-columnist-8tsXn7bh/lib/python3.10/site-packages/sentry_sdk/integrations/django/middleware.py in __call__(177)
  return f(*args, **kwargs)

/var/www/news-site-columnist/redirects/middleware/redirect_middleware.py in __call__(17)
  return self.get_response(request)

/home/youser/.local/share/virtualenvs/news-site-columnist-8tsXn7bh/lib/python3.10/site-packages/sentry_sdk/integrations/django/middleware.py in __call__(177)
  return f(*args, **kwargs)

/home/youser/.local/share/virtualenvs/news-site-columnist-8tsXn7bh/lib/python3.10/site-packages/sentry_sdk/integrations/django/middleware.py in __call__(177)
  return f(*args, **kwargs)

/home/youser/.local/share/virtualenvs/news-site-columnist-8tsXn7bh/lib/python3.10/site-packages/sentry_sdk/integrations/django/middleware.py in __call__(177)
  return f(*args, **kwargs)

/home/youser/.local/share/virtualenvs/news-site-columnist-8tsXn7bh/lib/python3.10/site-packages/sentry_sdk/integrations/django/middleware.py in __call__(177)
  return f(*args, **kwargs)

/home/youser/.local/share/virtualenvs/news-site-columnist-8tsXn7bh/lib/python3.10/site-packages/corsheaders/middleware.py in __call__(53)
  result = self.get_response(request)

/home/youser/.local/share/virtualenvs/news-site-columnist-8tsXn7bh/lib/python3.10/site-packages/sentry_sdk/integrations/django/middleware.py in __call__(177)
  return f(*args, **kwargs)

/home/youser/.local/share/virtualenvs/news-site-columnist-8tsXn7bh/lib/python3.10/site-packages/django_user_agents/middleware.py in __call__(14)
  return self.get_response(request)

/home/youser/.local/share/virtualenvs/news-site-columnist-8tsXn7bh/lib/python3.10/site-packages/sentry_sdk/integrations/django/middleware.py in __call__(177)
  return f(*args, **kwargs)

/home/youser/.local/share/virtualenvs/news-site-columnist-8tsXn7bh/lib/python3.10/site-packages/sentry_sdk/integrations/django/middleware.py in __call__(177)
  return f(*args, **kwargs)

/home/youser/.local/share/virtualenvs/news-site-columnist-8tsXn7bh/lib/python3.10/site-packages/sentry_sdk/integrations/django/middleware.py in __call__(177)
  return f(*args, **kwargs)

/home/youser/.local/share/virtualenvs/news-site-columnist-8tsXn7bh/lib/python3.10/site-packages/sentry_sdk/integrations/django/middleware.py in __call__(177)
  return f(*args, **kwargs)

/home/youser/.local/share/virtualenvs/news-site-columnist-8tsXn7bh/lib/python3.10/site-packages/sentry_sdk/integrations/django/middleware.py in __call__(177)
  return f(*args, **kwargs)

/home/youser/.local/share/virtualenvs/news-site-columnist-8tsXn7bh/lib/python3.10/site-packages/sentry_sdk/integrations/django/middleware.py in __call__(177)
  return f(*args, **kwargs)

/home/youser/.local/share/virtualenvs/news-site-columnist-8tsXn7bh/lib/python3.10/site-packages/sentry_sdk/integrations/django/middleware.py in __call__(177)
  return f(*args, **kwargs)

/home/youser/.local/share/virtualenvs/news-site-columnist-8tsXn7bh/lib/python3.10/site-packages/sentry_sdk/integrations/django/middleware.py in __call__(177)
  return f(*args, **kwargs)

/var/www/news-site-columnist/news/middleware/subdomain_middleare.py in __call__(22)
  response = self.get_response(request)

/home/youser/.local/share/virtualenvs/news-site-columnist-8tsXn7bh/lib/python3.10/site-packages/sentry_sdk/integrations/django/views.py in sentry_wrapped_callback(94)
  return callback(request, *args, **kwargs)

/var/www/news-site-columnist/news/views/post.py in subdomain_view_post(923)
  return GetPost.as_view()(

/home/youser/.local/share/virtualenvs/news-site-columnist-8tsXn7bh/lib/python3.10/site-packages/django/views/generic/base.py in view(104)
  return self.dispatch(request, *args, **kwargs)

/home/youser/.local/share/virtualenvs/news-site-columnist-8tsXn7bh/lib/python3.10/site-packages/django/views/generic/base.py in dispatch(143)
  return handler(request, *args, **kwargs)

/var/www/news-site-columnist/news/views/post.py in get(187)
  return super().get(request, *args, **kwargs)

/var/www/news-site-columnist/news/views/base.py in get(144)
  if not post.is_published:

/var/www/news-site-columnist/news/models/news.py in is_published(708)
  return Post.objects.filter(pk=self.pk).published().exists()

SELECT "post"."created_at",
       "post"."seo_title",
       "post"."seo_title_uk",
       "post"."seo_title_en",
       "post"."seo_title_ru",
       "post"."seo_description",
       "post"."seo_description_uk",
       "post"."seo_description_en",
       "post"."seo_description_ru",
       "post"."seo_keywords",
       "post"."seo_keywords_uk",
       "post"."seo_keywords_en",
       "post"."seo_keywords_ru",
       "post"."seo_header_one",
       "post"."seo_header_one_uk",
       "post"."seo_header_one_en",
       "post"."seo_header_one_ru",
       "post"."created_by",
       "post"."updated_by",
       "post"."polymorphic_ctype_id",
       "post"."id",
       "post"."head",
       "post"."head_uk",
       "post"."head_en",
       "post"."head_ru",
       "post"."sub_head",
       "post"."sub_head_uk",
       "post"."sub_head_en",
       "post"."sub_head_ru",
       "post"."content",
       "post"."content_uk",
       "post"."content_en",
       "post"."content_ru",
       "post"."author_id",
       "post"."seo_tag_id",
       "post"."publish_at",
       "post"."translated_at",
       "post"."updated_at",
       "post"."show_updated_at",
       "post"."slug",
       "post"."slug_uk",
       "post"."slug_en",
       "post"."slug_ru",
       "post"."aplication_type",
       "post"."last_editor_id",
       "post"."status",
       "post"."show_at_homepage",
       "post"."show_at_news_feed",
       "post"."show_on_broadcast_page",
       "post"."is_category_top",
       "post"."is_homepage_top",
       "post"."is_homepage_top_uk",
       "post"."is_homepage_top_en",
       "post"."is_homepage_top_ru",
       "post"."id_sponsored",
       "post"."is_lightning",
       "post"."is_exclusive",
       "post"."is_photo_report",
       "post"."is_post",
       "post"."is_article",
       "post"."main_page_img_full_width",
       "post"."need_hires",
       "post"."has_photo",
       "post"."has_video",
       "post"."is_editors_choise",
       "post"."show_in_sidebar",
       "post"."category_id",
       "post"."old_category_id",
       "post"."past_region",
       "post"."year_of_war",
       "post"."breaking_news",
       "post"."without_img",
       "post"."show_stories_block",
       "post"."display_type",
       "post"."image",
       "post"."image_alt",
       "post"."image_alt_uk",
       "post"."image_alt_en",
       "post"."image_alt_ru",
       "post"."seo_image",
       "post"."text_under_image",
       "post"."text_under_image_uk",
       "post"."text_under_image_en",
       "post"."text_under_image_ru",
       "post"."image_source",
       "post"."image_source_uk",
       "post"."image_source_en",
       "post"."image_source_ru",
       "post"."theme_id",
       "post"."is_nofollow_disabled",
       "post"."audio_content_id",
       "post"."audio_content_uk_id",
       "post"."audio_content_en_id",
       "post"."audio_content_ru_id",
       "post"."views",
       "post"."views_uk",
       "post"."views_ru",
       "post"."views_analytics",
       "post"."views_analytics_ru",
       "post"."views_analytics_uk",
       "post"."views_analytics_at",
       "post"."busy_by_id",
       "post"."image_editor_id",
       "post"."release_editor_id",
       "post"."special_type",
       "post"."head_longer_than_100",
       "post"."uk_has_translation",
       "post"."ru_has_translation",
       "post"."en_has_translation",
       "post"."homepage_slider_text",
       "post"."homepage_slider_text_uk",
       "post"."homepage_slider_text_en",
       "post"."homepage_slider_text_ru"
  FROM "post"
 INNER JOIN "category"
    ON ("post"."category_id" = "category"."id")
 WHERE ("post"."polymorphic_ctype_id" = 4 AND "category"."slug" = 'lviv' AND "post"."id" = 139383 AND "post"."status" = 2 AND "post"."publish_at" <= '2026-02-12T08:22:18.078482+00:00'::timestamptz)
 LIMIT 21
SELECT ••• FROM "post" INNER JOIN "category" ON ("post"."category_id" = "category"."id") WHERE ("post"."polymorphic_ctype_id" = 4 AND "category"."slug" = 'lviv' AND "post"."id" = 139383 AND "post"."status" = 2 AND "post"."publish_at" <= '2026-02-12T08:22:18.078482+00:00'::timestamptz) LIMIT 21
6 similar queries.
1,24

Connection: default

Transaction status: Idle

/home/youser/.local/share/virtualenvs/news-site-columnist-8tsXn7bh/bin/gunicorn in <module>(8)
  sys.exit(run())

/home/youser/.local/share/virtualenvs/news-site-columnist-8tsXn7bh/lib/python3.10/site-packages/gunicorn/app/wsgiapp.py in run(66)
  WSGIApplication("%(prog)s [OPTIONS] [APP_MODULE]", prog=prog).run()

/home/youser/.local/share/virtualenvs/news-site-columnist-8tsXn7bh/lib/python3.10/site-packages/gunicorn/app/base.py in run(235)
  super().run()

/home/youser/.local/share/virtualenvs/news-site-columnist-8tsXn7bh/lib/python3.10/site-packages/gunicorn/app/base.py in run(71)
  Arbiter(self).run()

/home/youser/.local/share/virtualenvs/news-site-columnist-8tsXn7bh/lib/python3.10/site-packages/gunicorn/arbiter.py in run(210)
  self.manage_workers()

/home/youser/.local/share/virtualenvs/news-site-columnist-8tsXn7bh/lib/python3.10/site-packages/gunicorn/arbiter.py in manage_workers(570)
  self.spawn_workers()

/home/youser/.local/share/virtualenvs/news-site-columnist-8tsXn7bh/lib/python3.10/site-packages/gunicorn/arbiter.py in spawn_workers(641)
  self.spawn_worker()

/home/youser/.local/share/virtualenvs/news-site-columnist-8tsXn7bh/lib/python3.10/site-packages/gunicorn/arbiter.py in spawn_worker(608)
  worker.init_process()

/home/youser/.local/share/virtualenvs/news-site-columnist-8tsXn7bh/lib/python3.10/site-packages/gunicorn/workers/base.py in init_process(143)
  self.run()

/home/youser/.local/share/virtualenvs/news-site-columnist-8tsXn7bh/lib/python3.10/site-packages/gunicorn/workers/sync.py in run(125)
  self.run_for_one(timeout)

/home/youser/.local/share/virtualenvs/news-site-columnist-8tsXn7bh/lib/python3.10/site-packages/gunicorn/workers/sync.py in run_for_one(69)
  self.accept(listener)

/home/youser/.local/share/virtualenvs/news-site-columnist-8tsXn7bh/lib/python3.10/site-packages/gunicorn/workers/sync.py in accept(31)
  self.handle(listener, client, addr)

/home/youser/.local/share/virtualenvs/news-site-columnist-8tsXn7bh/lib/python3.10/site-packages/gunicorn/workers/sync.py in handle(134)
  self.handle_request(listener, req, client, addr)

/home/youser/.local/share/virtualenvs/news-site-columnist-8tsXn7bh/lib/python3.10/site-packages/gunicorn/workers/sync.py in handle_request(177)
  respiter = self.wsgi(environ, resp.start_response)

/home/youser/.local/share/virtualenvs/news-site-columnist-8tsXn7bh/lib/python3.10/site-packages/sentry_sdk/utils.py in runner(1864)
  return sentry_patched_function(*args, **kwargs)

/home/youser/.local/share/virtualenvs/news-site-columnist-8tsXn7bh/lib/python3.10/site-packages/sentry_sdk/integrations/django/__init__.py in sentry_patched_wsgi_handler(191)
  return middleware(environ, start_response)

/home/youser/.local/share/virtualenvs/news-site-columnist-8tsXn7bh/lib/python3.10/site-packages/sentry_sdk/integrations/wsgi.py in __call__(132)
  response = self.app(

/home/youser/.local/share/virtualenvs/news-site-columnist-8tsXn7bh/lib/python3.10/site-packages/sentry_sdk/integrations/django/__init__.py in sentry_patched_get_response(478)
  rv = old_get_response(self, request)

/home/youser/.local/share/virtualenvs/news-site-columnist-8tsXn7bh/lib/python3.10/site-packages/sentry_sdk/integrations/django/middleware.py in __call__(177)
  return f(*args, **kwargs)

/home/youser/.local/share/virtualenvs/news-site-columnist-8tsXn7bh/lib/python3.10/site-packages/sentry_sdk/integrations/django/middleware.py in __call__(177)
  return f(*args, **kwargs)

/var/www/news-site-columnist/redirects/middleware/redirect_middleware.py in __call__(17)
  return self.get_response(request)

/home/youser/.local/share/virtualenvs/news-site-columnist-8tsXn7bh/lib/python3.10/site-packages/sentry_sdk/integrations/django/middleware.py in __call__(177)
  return f(*args, **kwargs)

/home/youser/.local/share/virtualenvs/news-site-columnist-8tsXn7bh/lib/python3.10/site-packages/sentry_sdk/integrations/django/middleware.py in __call__(177)
  return f(*args, **kwargs)

/home/youser/.local/share/virtualenvs/news-site-columnist-8tsXn7bh/lib/python3.10/site-packages/sentry_sdk/integrations/django/middleware.py in __call__(177)
  return f(*args, **kwargs)

/home/youser/.local/share/virtualenvs/news-site-columnist-8tsXn7bh/lib/python3.10/site-packages/sentry_sdk/integrations/django/middleware.py in __call__(177)
  return f(*args, **kwargs)

/home/youser/.local/share/virtualenvs/news-site-columnist-8tsXn7bh/lib/python3.10/site-packages/corsheaders/middleware.py in __call__(53)
  result = self.get_response(request)

/home/youser/.local/share/virtualenvs/news-site-columnist-8tsXn7bh/lib/python3.10/site-packages/sentry_sdk/integrations/django/middleware.py in __call__(177)
  return f(*args, **kwargs)

/home/youser/.local/share/virtualenvs/news-site-columnist-8tsXn7bh/lib/python3.10/site-packages/django_user_agents/middleware.py in __call__(14)
  return self.get_response(request)

/home/youser/.local/share/virtualenvs/news-site-columnist-8tsXn7bh/lib/python3.10/site-packages/sentry_sdk/integrations/django/middleware.py in __call__(177)
  return f(*args, **kwargs)

/home/youser/.local/share/virtualenvs/news-site-columnist-8tsXn7bh/lib/python3.10/site-packages/sentry_sdk/integrations/django/middleware.py in __call__(177)
  return f(*args, **kwargs)

/home/youser/.local/share/virtualenvs/news-site-columnist-8tsXn7bh/lib/python3.10/site-packages/sentry_sdk/integrations/django/middleware.py in __call__(177)
  return f(*args, **kwargs)

/home/youser/.local/share/virtualenvs/news-site-columnist-8tsXn7bh/lib/python3.10/site-packages/sentry_sdk/integrations/django/middleware.py in __call__(177)
  return f(*args, **kwargs)

/home/youser/.local/share/virtualenvs/news-site-columnist-8tsXn7bh/lib/python3.10/site-packages/sentry_sdk/integrations/django/middleware.py in __call__(177)
  return f(*args, **kwargs)

/home/youser/.local/share/virtualenvs/news-site-columnist-8tsXn7bh/lib/python3.10/site-packages/sentry_sdk/integrations/django/middleware.py in __call__(177)
  return f(*args, **kwargs)

/home/youser/.local/share/virtualenvs/news-site-columnist-8tsXn7bh/lib/python3.10/site-packages/sentry_sdk/integrations/django/middleware.py in __call__(177)
  return f(*args, **kwargs)

/home/youser/.local/share/virtualenvs/news-site-columnist-8tsXn7bh/lib/python3.10/site-packages/sentry_sdk/integrations/django/middleware.py in __call__(177)
  return f(*args, **kwargs)

/var/www/news-site-columnist/news/middleware/subdomain_middleare.py in __call__(22)
  response = self.get_response(request)

/home/youser/.local/share/virtualenvs/news-site-columnist-8tsXn7bh/lib/python3.10/site-packages/sentry_sdk/integrations/django/views.py in sentry_wrapped_callback(94)
  return callback(request, *args, **kwargs)

/var/www/news-site-columnist/news/views/post.py in subdomain_view_post(923)
  return GetPost.as_view()(

/home/youser/.local/share/virtualenvs/news-site-columnist-8tsXn7bh/lib/python3.10/site-packages/django/views/generic/base.py in view(104)
  return self.dispatch(request, *args, **kwargs)

/home/youser/.local/share/virtualenvs/news-site-columnist-8tsXn7bh/lib/python3.10/site-packages/django/views/generic/base.py in dispatch(143)
  return handler(request, *args, **kwargs)

/var/www/news-site-columnist/news/views/post.py in get(187)
  return super().get(request, *args, **kwargs)

/var/www/news-site-columnist/news/views/base.py in get(155)
  return super().get(request, *args, **kwargs)

/var/www/news-site-columnist/news/views/base.py in get(178)
  obj = self.get_object()

/var/www/news-site-columnist/news/views/post.py in get_object(120)
  obj = queryset.get()

/home/youser/.local/share/virtualenvs/news-site-columnist-8tsXn7bh/lib/python3.10/site-packages/polymorphic/query.py in _polymorphic_iterator(57)
  o = next(base_iter)

SELECT "post"."created_at",
       "post"."seo_title",
       "post"."seo_title_uk",
       "post"."seo_title_en",
       "post"."seo_title_ru",
       "post"."seo_description",
       "post"."seo_description_uk",
       "post"."seo_description_en",
       "post"."seo_description_ru",
       "post"."seo_keywords",
       "post"."seo_keywords_uk",
       "post"."seo_keywords_en",
       "post"."seo_keywords_ru",
       "post"."seo_header_one",
       "post"."seo_header_one_uk",
       "post"."seo_header_one_en",
       "post"."seo_header_one_ru",
       "post"."created_by",
       "post"."updated_by",
       "post"."polymorphic_ctype_id",
       "post"."id",
       "post"."head",
       "post"."head_uk",
       "post"."head_en",
       "post"."head_ru",
       "post"."sub_head",
       "post"."sub_head_uk",
       "post"."sub_head_en",
       "post"."sub_head_ru",
       "post"."content",
       "post"."content_uk",
       "post"."content_en",
       "post"."content_ru",
       "post"."author_id",
       "post"."seo_tag_id",
       "post"."publish_at",
       "post"."translated_at",
       "post"."updated_at",
       "post"."show_updated_at",
       "post"."slug",
       "post"."slug_uk",
       "post"."slug_en",
       "post"."slug_ru",
       "post"."aplication_type",
       "post"."last_editor_id",
       "post"."status",
       "post"."show_at_homepage",
       "post"."show_at_news_feed",
       "post"."show_on_broadcast_page",
       "post"."is_category_top",
       "post"."is_homepage_top",
       "post"."is_homepage_top_uk",
       "post"."is_homepage_top_en",
       "post"."is_homepage_top_ru",
       "post"."id_sponsored",
       "post"."is_lightning",
       "post"."is_exclusive",
       "post"."is_photo_report",
       "post"."is_post",
       "post"."is_article",
       "post"."main_page_img_full_width",
       "post"."need_hires",
       "post"."has_photo",
       "post"."has_video",
       "post"."is_editors_choise",
       "post"."show_in_sidebar",
       "post"."category_id",
       "post"."old_category_id",
       "post"."past_region",
       "post"."year_of_war",
       "post"."breaking_news",
       "post"."without_img",
       "post"."show_stories_block",
       "post"."display_type",
       "post"."image",
       "post"."image_alt",
       "post"."image_alt_uk",
       "post"."image_alt_en",
       "post"."image_alt_ru",
       "post"."seo_image",
       "post"."text_under_image",
       "post"."text_under_image_uk",
       "post"."text_under_image_en",
       "post"."text_under_image_ru",
       "post"."image_source",
       "post"."image_source_uk",
       "post"."image_source_en",
       "post"."image_source_ru",
       "post"."theme_id",
       "post"."is_nofollow_disabled",
       "post"."audio_content_id",
       "post"."audio_content_uk_id",
       "post"."audio_content_en_id",
       "post"."audio_content_ru_id",
       "post"."views",
       "post"."views_uk",
       "post"."views_ru",
       "post"."views_analytics",
       "post"."views_analytics_ru",
       "post"."views_analytics_uk",
       "post"."views_analytics_at",
       "post"."busy_by_id",
       "post"."image_editor_id",
       "post"."release_editor_id",
       "post"."special_type",
       "post"."head_longer_than_100",
       "post"."uk_has_translation",
       "post"."ru_has_translation",
       "post"."en_has_translation",
       "post"."homepage_slider_text",
       "post"."homepage_slider_text_uk",
       "post"."homepage_slider_text_en",
       "post"."homepage_slider_text_ru"
  FROM "post"
 INNER JOIN "category"
    ON ("post"."category_id" = "category"."id")
 WHERE ("post"."polymorphic_ctype_id" = 4 AND "category"."slug" = 'lviv' AND "post"."id" = 139383 AND "post"."status" = 2 AND "post"."publish_at" <= '2026-02-12T08:22:18.082397+00:00'::timestamptz)
 LIMIT 21
SELECT ••• FROM "post" INNER JOIN "category" ON ("post"."category_id" = "category"."id") WHERE ("post"."polymorphic_ctype_id" = 4 AND "category"."slug" = 'lviv' AND "post"."id" = 139383 AND "post"."status" = 2 AND "post"."publish_at" <= '2026-02-12T08:22:18.082397+00:00'::timestamptz) LIMIT 21
6 similar queries.
1,11

Connection: default

Transaction status: Idle

/home/youser/.local/share/virtualenvs/news-site-columnist-8tsXn7bh/bin/gunicorn in <module>(8)
  sys.exit(run())

/home/youser/.local/share/virtualenvs/news-site-columnist-8tsXn7bh/lib/python3.10/site-packages/gunicorn/app/wsgiapp.py in run(66)
  WSGIApplication("%(prog)s [OPTIONS] [APP_MODULE]", prog=prog).run()

/home/youser/.local/share/virtualenvs/news-site-columnist-8tsXn7bh/lib/python3.10/site-packages/gunicorn/app/base.py in run(235)
  super().run()

/home/youser/.local/share/virtualenvs/news-site-columnist-8tsXn7bh/lib/python3.10/site-packages/gunicorn/app/base.py in run(71)
  Arbiter(self).run()

/home/youser/.local/share/virtualenvs/news-site-columnist-8tsXn7bh/lib/python3.10/site-packages/gunicorn/arbiter.py in run(210)
  self.manage_workers()

/home/youser/.local/share/virtualenvs/news-site-columnist-8tsXn7bh/lib/python3.10/site-packages/gunicorn/arbiter.py in manage_workers(570)
  self.spawn_workers()

/home/youser/.local/share/virtualenvs/news-site-columnist-8tsXn7bh/lib/python3.10/site-packages/gunicorn/arbiter.py in spawn_workers(641)
  self.spawn_worker()

/home/youser/.local/share/virtualenvs/news-site-columnist-8tsXn7bh/lib/python3.10/site-packages/gunicorn/arbiter.py in spawn_worker(608)
  worker.init_process()

/home/youser/.local/share/virtualenvs/news-site-columnist-8tsXn7bh/lib/python3.10/site-packages/gunicorn/workers/base.py in init_process(143)
  self.run()

/home/youser/.local/share/virtualenvs/news-site-columnist-8tsXn7bh/lib/python3.10/site-packages/gunicorn/workers/sync.py in run(125)
  self.run_for_one(timeout)

/home/youser/.local/share/virtualenvs/news-site-columnist-8tsXn7bh/lib/python3.10/site-packages/gunicorn/workers/sync.py in run_for_one(69)
  self.accept(listener)

/home/youser/.local/share/virtualenvs/news-site-columnist-8tsXn7bh/lib/python3.10/site-packages/gunicorn/workers/sync.py in accept(31)
  self.handle(listener, client, addr)

/home/youser/.local/share/virtualenvs/news-site-columnist-8tsXn7bh/lib/python3.10/site-packages/gunicorn/workers/sync.py in handle(134)
  self.handle_request(listener, req, client, addr)

/home/youser/.local/share/virtualenvs/news-site-columnist-8tsXn7bh/lib/python3.10/site-packages/gunicorn/workers/sync.py in handle_request(177)
  respiter = self.wsgi(environ, resp.start_response)

/home/youser/.local/share/virtualenvs/news-site-columnist-8tsXn7bh/lib/python3.10/site-packages/sentry_sdk/utils.py in runner(1864)
  return sentry_patched_function(*args, **kwargs)

/home/youser/.local/share/virtualenvs/news-site-columnist-8tsXn7bh/lib/python3.10/site-packages/sentry_sdk/integrations/django/__init__.py in sentry_patched_wsgi_handler(191)
  return middleware(environ, start_response)

/home/youser/.local/share/virtualenvs/news-site-columnist-8tsXn7bh/lib/python3.10/site-packages/sentry_sdk/integrations/wsgi.py in __call__(132)
  response = self.app(

/home/youser/.local/share/virtualenvs/news-site-columnist-8tsXn7bh/lib/python3.10/site-packages/sentry_sdk/integrations/django/__init__.py in sentry_patched_get_response(478)
  rv = old_get_response(self, request)

/home/youser/.local/share/virtualenvs/news-site-columnist-8tsXn7bh/lib/python3.10/site-packages/sentry_sdk/integrations/django/middleware.py in __call__(177)
  return f(*args, **kwargs)

/home/youser/.local/share/virtualenvs/news-site-columnist-8tsXn7bh/lib/python3.10/site-packages/sentry_sdk/integrations/django/middleware.py in __call__(177)
  return f(*args, **kwargs)

/var/www/news-site-columnist/redirects/middleware/redirect_middleware.py in __call__(17)
  return self.get_response(request)

/home/youser/.local/share/virtualenvs/news-site-columnist-8tsXn7bh/lib/python3.10/site-packages/sentry_sdk/integrations/django/middleware.py in __call__(177)
  return f(*args, **kwargs)

/home/youser/.local/share/virtualenvs/news-site-columnist-8tsXn7bh/lib/python3.10/site-packages/sentry_sdk/integrations/django/middleware.py in __call__(177)
  return f(*args, **kwargs)

/home/youser/.local/share/virtualenvs/news-site-columnist-8tsXn7bh/lib/python3.10/site-packages/sentry_sdk/integrations/django/middleware.py in __call__(177)
  return f(*args, **kwargs)

/home/youser/.local/share/virtualenvs/news-site-columnist-8tsXn7bh/lib/python3.10/site-packages/sentry_sdk/integrations/django/middleware.py in __call__(177)
  return f(*args, **kwargs)

/home/youser/.local/share/virtualenvs/news-site-columnist-8tsXn7bh/lib/python3.10/site-packages/corsheaders/middleware.py in __call__(53)
  result = self.get_response(request)

/home/youser/.local/share/virtualenvs/news-site-columnist-8tsXn7bh/lib/python3.10/site-packages/sentry_sdk/integrations/django/middleware.py in __call__(177)
  return f(*args, **kwargs)

/home/youser/.local/share/virtualenvs/news-site-columnist-8tsXn7bh/lib/python3.10/site-packages/django_user_agents/middleware.py in __call__(14)
  return self.get_response(request)

/home/youser/.local/share/virtualenvs/news-site-columnist-8tsXn7bh/lib/python3.10/site-packages/sentry_sdk/integrations/django/middleware.py in __call__(177)
  return f(*args, **kwargs)

/home/youser/.local/share/virtualenvs/news-site-columnist-8tsXn7bh/lib/python3.10/site-packages/sentry_sdk/integrations/django/middleware.py in __call__(177)
  return f(*args, **kwargs)

/home/youser/.local/share/virtualenvs/news-site-columnist-8tsXn7bh/lib/python3.10/site-packages/sentry_sdk/integrations/django/middleware.py in __call__(177)
  return f(*args, **kwargs)

/home/youser/.local/share/virtualenvs/news-site-columnist-8tsXn7bh/lib/python3.10/site-packages/sentry_sdk/integrations/django/middleware.py in __call__(177)
  return f(*args, **kwargs)

/home/youser/.local/share/virtualenvs/news-site-columnist-8tsXn7bh/lib/python3.10/site-packages/sentry_sdk/integrations/django/middleware.py in __call__(177)
  return f(*args, **kwargs)

/home/youser/.local/share/virtualenvs/news-site-columnist-8tsXn7bh/lib/python3.10/site-packages/sentry_sdk/integrations/django/middleware.py in __call__(177)
  return f(*args, **kwargs)

/home/youser/.local/share/virtualenvs/news-site-columnist-8tsXn7bh/lib/python3.10/site-packages/sentry_sdk/integrations/django/middleware.py in __call__(177)
  return f(*args, **kwargs)

/home/youser/.local/share/virtualenvs/news-site-columnist-8tsXn7bh/lib/python3.10/site-packages/sentry_sdk/integrations/django/middleware.py in __call__(177)
  return f(*args, **kwargs)

/var/www/news-site-columnist/news/middleware/subdomain_middleare.py in __call__(22)
  response = self.get_response(request)

/home/youser/.local/share/virtualenvs/news-site-columnist-8tsXn7bh/lib/python3.10/site-packages/sentry_sdk/integrations/django/views.py in sentry_wrapped_callback(94)
  return callback(request, *args, **kwargs)

/var/www/news-site-columnist/news/views/post.py in subdomain_view_post(923)
  return GetPost.as_view()(

/home/youser/.local/share/virtualenvs/news-site-columnist-8tsXn7bh/lib/python3.10/site-packages/django/views/generic/base.py in view(104)
  return self.dispatch(request, *args, **kwargs)

/home/youser/.local/share/virtualenvs/news-site-columnist-8tsXn7bh/lib/python3.10/site-packages/django/views/generic/base.py in dispatch(143)
  return handler(request, *args, **kwargs)

/var/www/news-site-columnist/news/views/post.py in get(187)
  return super().get(request, *args, **kwargs)

/var/www/news-site-columnist/news/views/base.py in get(155)
  return super().get(request, *args, **kwargs)

/var/www/news-site-columnist/news/views/base.py in get(182)
  resp = super().get(request, *args, **kwargs)

/home/youser/.local/share/virtualenvs/news-site-columnist-8tsXn7bh/lib/python3.10/site-packages/django/views/generic/detail.py in get(108)
  self.object = self.get_object()

/var/www/news-site-columnist/news/views/post.py in get_object(120)
  obj = queryset.get()

/home/youser/.local/share/virtualenvs/news-site-columnist-8tsXn7bh/lib/python3.10/site-packages/polymorphic/query.py in _polymorphic_iterator(57)
  o = next(base_iter)

SELECT "django_content_type"."id",
       "django_content_type"."app_label",
       "django_content_type"."model"
  FROM "django_content_type"
 WHERE ("django_content_type"."app_label" = 'news' AND "django_content_type"."model" = 'broadcastpost')
 LIMIT 21
SELECT ••• FROM "django_content_type" WHERE ("django_content_type"."app_label" = 'news' AND "django_content_type"."model" = 'broadcastpost') LIMIT 21
6 similar queries. Duplicated 3 times.
0,34

Connection: default

Transaction status: Idle

/home/youser/.local/share/virtualenvs/news-site-columnist-8tsXn7bh/bin/gunicorn in <module>(8)
  sys.exit(run())

/home/youser/.local/share/virtualenvs/news-site-columnist-8tsXn7bh/lib/python3.10/site-packages/gunicorn/app/wsgiapp.py in run(66)
  WSGIApplication("%(prog)s [OPTIONS] [APP_MODULE]", prog=prog).run()

/home/youser/.local/share/virtualenvs/news-site-columnist-8tsXn7bh/lib/python3.10/site-packages/gunicorn/app/base.py in run(235)
  super().run()

/home/youser/.local/share/virtualenvs/news-site-columnist-8tsXn7bh/lib/python3.10/site-packages/gunicorn/app/base.py in run(71)
  Arbiter(self).run()

/home/youser/.local/share/virtualenvs/news-site-columnist-8tsXn7bh/lib/python3.10/site-packages/gunicorn/arbiter.py in run(210)
  self.manage_workers()

/home/youser/.local/share/virtualenvs/news-site-columnist-8tsXn7bh/lib/python3.10/site-packages/gunicorn/arbiter.py in manage_workers(570)
  self.spawn_workers()

/home/youser/.local/share/virtualenvs/news-site-columnist-8tsXn7bh/lib/python3.10/site-packages/gunicorn/arbiter.py in spawn_workers(641)
  self.spawn_worker()

/home/youser/.local/share/virtualenvs/news-site-columnist-8tsXn7bh/lib/python3.10/site-packages/gunicorn/arbiter.py in spawn_worker(608)
  worker.init_process()

/home/youser/.local/share/virtualenvs/news-site-columnist-8tsXn7bh/lib/python3.10/site-packages/gunicorn/workers/base.py in init_process(143)
  self.run()

/home/youser/.local/share/virtualenvs/news-site-columnist-8tsXn7bh/lib/python3.10/site-packages/gunicorn/workers/sync.py in run(125)
  self.run_for_one(timeout)

/home/youser/.local/share/virtualenvs/news-site-columnist-8tsXn7bh/lib/python3.10/site-packages/gunicorn/workers/sync.py in run_for_one(69)
  self.accept(listener)

/home/youser/.local/share/virtualenvs/news-site-columnist-8tsXn7bh/lib/python3.10/site-packages/gunicorn/workers/sync.py in accept(31)
  self.handle(listener, client, addr)

/home/youser/.local/share/virtualenvs/news-site-columnist-8tsXn7bh/lib/python3.10/site-packages/gunicorn/workers/sync.py in handle(134)
  self.handle_request(listener, req, client, addr)

/home/youser/.local/share/virtualenvs/news-site-columnist-8tsXn7bh/lib/python3.10/site-packages/gunicorn/workers/sync.py in handle_request(177)
  respiter = self.wsgi(environ, resp.start_response)

/home/youser/.local/share/virtualenvs/news-site-columnist-8tsXn7bh/lib/python3.10/site-packages/sentry_sdk/utils.py in runner(1864)
  return sentry_patched_function(*args, **kwargs)

/home/youser/.local/share/virtualenvs/news-site-columnist-8tsXn7bh/lib/python3.10/site-packages/sentry_sdk/integrations/django/__init__.py in sentry_patched_wsgi_handler(191)
  return middleware(environ, start_response)

/home/youser/.local/share/virtualenvs/news-site-columnist-8tsXn7bh/lib/python3.10/site-packages/sentry_sdk/integrations/wsgi.py in __call__(132)
  response = self.app(

/home/youser/.local/share/virtualenvs/news-site-columnist-8tsXn7bh/lib/python3.10/site-packages/sentry_sdk/integrations/django/__init__.py in sentry_patched_get_response(478)
  rv = old_get_response(self, request)

/home/youser/.local/share/virtualenvs/news-site-columnist-8tsXn7bh/lib/python3.10/site-packages/sentry_sdk/integrations/django/middleware.py in __call__(177)
  return f(*args, **kwargs)

/home/youser/.local/share/virtualenvs/news-site-columnist-8tsXn7bh/lib/python3.10/site-packages/sentry_sdk/integrations/django/middleware.py in __call__(177)
  return f(*args, **kwargs)

/var/www/news-site-columnist/redirects/middleware/redirect_middleware.py in __call__(17)
  return self.get_response(request)

/home/youser/.local/share/virtualenvs/news-site-columnist-8tsXn7bh/lib/python3.10/site-packages/sentry_sdk/integrations/django/middleware.py in __call__(177)
  return f(*args, **kwargs)

/home/youser/.local/share/virtualenvs/news-site-columnist-8tsXn7bh/lib/python3.10/site-packages/sentry_sdk/integrations/django/middleware.py in __call__(177)
  return f(*args, **kwargs)

/home/youser/.local/share/virtualenvs/news-site-columnist-8tsXn7bh/lib/python3.10/site-packages/sentry_sdk/integrations/django/middleware.py in __call__(177)
  return f(*args, **kwargs)

/home/youser/.local/share/virtualenvs/news-site-columnist-8tsXn7bh/lib/python3.10/site-packages/sentry_sdk/integrations/django/middleware.py in __call__(177)
  return f(*args, **kwargs)

/home/youser/.local/share/virtualenvs/news-site-columnist-8tsXn7bh/lib/python3.10/site-packages/corsheaders/middleware.py in __call__(53)
  result = self.get_response(request)

/home/youser/.local/share/virtualenvs/news-site-columnist-8tsXn7bh/lib/python3.10/site-packages/sentry_sdk/integrations/django/middleware.py in __call__(177)
  return f(*args, **kwargs)

/home/youser/.local/share/virtualenvs/news-site-columnist-8tsXn7bh/lib/python3.10/site-packages/django_user_agents/middleware.py in __call__(14)
  return self.get_response(request)

/home/youser/.local/share/virtualenvs/news-site-columnist-8tsXn7bh/lib/python3.10/site-packages/sentry_sdk/integrations/django/middleware.py in __call__(177)
  return f(*args, **kwargs)

/home/youser/.local/share/virtualenvs/news-site-columnist-8tsXn7bh/lib/python3.10/site-packages/sentry_sdk/integrations/django/middleware.py in __call__(177)
  return f(*args, **kwargs)

/home/youser/.local/share/virtualenvs/news-site-columnist-8tsXn7bh/lib/python3.10/site-packages/sentry_sdk/integrations/django/middleware.py in __call__(177)
  return f(*args, **kwargs)

/home/youser/.local/share/virtualenvs/news-site-columnist-8tsXn7bh/lib/python3.10/site-packages/sentry_sdk/integrations/django/middleware.py in __call__(177)
  return f(*args, **kwargs)

/home/youser/.local/share/virtualenvs/news-site-columnist-8tsXn7bh/lib/python3.10/site-packages/sentry_sdk/integrations/django/middleware.py in __call__(177)
  return f(*args, **kwargs)

/home/youser/.local/share/virtualenvs/news-site-columnist-8tsXn7bh/lib/python3.10/site-packages/sentry_sdk/integrations/django/middleware.py in __call__(177)
  return f(*args, **kwargs)

/home/youser/.local/share/virtualenvs/news-site-columnist-8tsXn7bh/lib/python3.10/site-packages/sentry_sdk/integrations/django/middleware.py in __call__(177)
  return f(*args, **kwargs)

/home/youser/.local/share/virtualenvs/news-site-columnist-8tsXn7bh/lib/python3.10/site-packages/sentry_sdk/integrations/django/middleware.py in __call__(177)
  return f(*args, **kwargs)

/var/www/news-site-columnist/news/middleware/subdomain_middleare.py in __call__(22)
  response = self.get_response(request)

/home/youser/.local/share/virtualenvs/news-site-columnist-8tsXn7bh/lib/python3.10/site-packages/sentry_sdk/integrations/django/views.py in sentry_wrapped_callback(94)
  return callback(request, *args, **kwargs)

/var/www/news-site-columnist/news/views/post.py in subdomain_view_post(923)
  return GetPost.as_view()(

/home/youser/.local/share/virtualenvs/news-site-columnist-8tsXn7bh/lib/python3.10/site-packages/django/views/generic/base.py in view(104)
  return self.dispatch(request, *args, **kwargs)

/home/youser/.local/share/virtualenvs/news-site-columnist-8tsXn7bh/lib/python3.10/site-packages/django/views/generic/base.py in dispatch(143)
  return handler(request, *args, **kwargs)

/var/www/news-site-columnist/news/views/post.py in get(187)
  return super().get(request, *args, **kwargs)

/var/www/news-site-columnist/news/views/base.py in get(155)
  return super().get(request, *args, **kwargs)

/var/www/news-site-columnist/news/views/base.py in get(182)
  resp = super().get(request, *args, **kwargs)

/home/youser/.local/share/virtualenvs/news-site-columnist-8tsXn7bh/lib/python3.10/site-packages/django/views/generic/detail.py in get(109)
  context = self.get_context_data(object=self.object)

/var/www/news-site-columnist/news/views/post.py in get_context_data(135)
  qs = Post.objects.filter(

/home/youser/.local/share/virtualenvs/news-site-columnist-8tsXn7bh/lib/python3.10/site-packages/modeltranslation/manager.py in get_queryset(633)
  qs = super().get_queryset()

/home/youser/.local/share/virtualenvs/news-site-columnist-8tsXn7bh/lib/python3.10/site-packages/modeltranslation/manager.py in get_queryset(607)
  qs = super().get_queryset()

/var/www/news-site-columnist/news/models/news.py in get_queryset(51)
  qs = super().get_queryset()

/var/www/news-site-columnist/news/models/news.py in get_queryset(565)
  self.broadcast_ct = ContentType.objects.get(app_label="news", model="broadcastpost")

SELECT "django_content_type"."id",
       "django_content_type"."app_label",
       "django_content_type"."model"
  FROM "django_content_type"
 WHERE ("django_content_type"."app_label" = 'context_section' AND "django_content_type"."model" = 'columnpost')
 LIMIT 21
SELECT ••• FROM "django_content_type" WHERE ("django_content_type"."app_label" = 'context_section' AND "django_content_type"."model" = 'columnpost') LIMIT 21
6 similar queries. Duplicated 3 times.
0,25

Connection: default

Transaction status: Idle

/home/youser/.local/share/virtualenvs/news-site-columnist-8tsXn7bh/bin/gunicorn in <module>(8)
  sys.exit(run())

/home/youser/.local/share/virtualenvs/news-site-columnist-8tsXn7bh/lib/python3.10/site-packages/gunicorn/app/wsgiapp.py in run(66)
  WSGIApplication("%(prog)s [OPTIONS] [APP_MODULE]", prog=prog).run()

/home/youser/.local/share/virtualenvs/news-site-columnist-8tsXn7bh/lib/python3.10/site-packages/gunicorn/app/base.py in run(235)
  super().run()

/home/youser/.local/share/virtualenvs/news-site-columnist-8tsXn7bh/lib/python3.10/site-packages/gunicorn/app/base.py in run(71)
  Arbiter(self).run()

/home/youser/.local/share/virtualenvs/news-site-columnist-8tsXn7bh/lib/python3.10/site-packages/gunicorn/arbiter.py in run(210)
  self.manage_workers()

/home/youser/.local/share/virtualenvs/news-site-columnist-8tsXn7bh/lib/python3.10/site-packages/gunicorn/arbiter.py in manage_workers(570)
  self.spawn_workers()

/home/youser/.local/share/virtualenvs/news-site-columnist-8tsXn7bh/lib/python3.10/site-packages/gunicorn/arbiter.py in spawn_workers(641)
  self.spawn_worker()

/home/youser/.local/share/virtualenvs/news-site-columnist-8tsXn7bh/lib/python3.10/site-packages/gunicorn/arbiter.py in spawn_worker(608)
  worker.init_process()

/home/youser/.local/share/virtualenvs/news-site-columnist-8tsXn7bh/lib/python3.10/site-packages/gunicorn/workers/base.py in init_process(143)
  self.run()

/home/youser/.local/share/virtualenvs/news-site-columnist-8tsXn7bh/lib/python3.10/site-packages/gunicorn/workers/sync.py in run(125)
  self.run_for_one(timeout)

/home/youser/.local/share/virtualenvs/news-site-columnist-8tsXn7bh/lib/python3.10/site-packages/gunicorn/workers/sync.py in run_for_one(69)
  self.accept(listener)

/home/youser/.local/share/virtualenvs/news-site-columnist-8tsXn7bh/lib/python3.10/site-packages/gunicorn/workers/sync.py in accept(31)
  self.handle(listener, client, addr)

/home/youser/.local/share/virtualenvs/news-site-columnist-8tsXn7bh/lib/python3.10/site-packages/gunicorn/workers/sync.py in handle(134)
  self.handle_request(listener, req, client, addr)

/home/youser/.local/share/virtualenvs/news-site-columnist-8tsXn7bh/lib/python3.10/site-packages/gunicorn/workers/sync.py in handle_request(177)
  respiter = self.wsgi(environ, resp.start_response)

/home/youser/.local/share/virtualenvs/news-site-columnist-8tsXn7bh/lib/python3.10/site-packages/sentry_sdk/utils.py in runner(1864)
  return sentry_patched_function(*args, **kwargs)

/home/youser/.local/share/virtualenvs/news-site-columnist-8tsXn7bh/lib/python3.10/site-packages/sentry_sdk/integrations/django/__init__.py in sentry_patched_wsgi_handler(191)
  return middleware(environ, start_response)

/home/youser/.local/share/virtualenvs/news-site-columnist-8tsXn7bh/lib/python3.10/site-packages/sentry_sdk/integrations/wsgi.py in __call__(132)
  response = self.app(

/home/youser/.local/share/virtualenvs/news-site-columnist-8tsXn7bh/lib/python3.10/site-packages/sentry_sdk/integrations/django/__init__.py in sentry_patched_get_response(478)
  rv = old_get_response(self, request)

/home/youser/.local/share/virtualenvs/news-site-columnist-8tsXn7bh/lib/python3.10/site-packages/sentry_sdk/integrations/django/middleware.py in __call__(177)
  return f(*args, **kwargs)

/home/youser/.local/share/virtualenvs/news-site-columnist-8tsXn7bh/lib/python3.10/site-packages/sentry_sdk/integrations/django/middleware.py in __call__(177)
  return f(*args, **kwargs)

/var/www/news-site-columnist/redirects/middleware/redirect_middleware.py in __call__(17)
  return self.get_response(request)

/home/youser/.local/share/virtualenvs/news-site-columnist-8tsXn7bh/lib/python3.10/site-packages/sentry_sdk/integrations/django/middleware.py in __call__(177)
  return f(*args, **kwargs)

/home/youser/.local/share/virtualenvs/news-site-columnist-8tsXn7bh/lib/python3.10/site-packages/sentry_sdk/integrations/django/middleware.py in __call__(177)
  return f(*args, **kwargs)

/home/youser/.local/share/virtualenvs/news-site-columnist-8tsXn7bh/lib/python3.10/site-packages/sentry_sdk/integrations/django/middleware.py in __call__(177)
  return f(*args, **kwargs)

/home/youser/.local/share/virtualenvs/news-site-columnist-8tsXn7bh/lib/python3.10/site-packages/sentry_sdk/integrations/django/middleware.py in __call__(177)
  return f(*args, **kwargs)

/home/youser/.local/share/virtualenvs/news-site-columnist-8tsXn7bh/lib/python3.10/site-packages/corsheaders/middleware.py in __call__(53)
  result = self.get_response(request)

/home/youser/.local/share/virtualenvs/news-site-columnist-8tsXn7bh/lib/python3.10/site-packages/sentry_sdk/integrations/django/middleware.py in __call__(177)
  return f(*args, **kwargs)

/home/youser/.local/share/virtualenvs/news-site-columnist-8tsXn7bh/lib/python3.10/site-packages/django_user_agents/middleware.py in __call__(14)
  return self.get_response(request)

/home/youser/.local/share/virtualenvs/news-site-columnist-8tsXn7bh/lib/python3.10/site-packages/sentry_sdk/integrations/django/middleware.py in __call__(177)
  return f(*args, **kwargs)

/home/youser/.local/share/virtualenvs/news-site-columnist-8tsXn7bh/lib/python3.10/site-packages/sentry_sdk/integrations/django/middleware.py in __call__(177)
  return f(*args, **kwargs)

/home/youser/.local/share/virtualenvs/news-site-columnist-8tsXn7bh/lib/python3.10/site-packages/sentry_sdk/integrations/django/middleware.py in __call__(177)
  return f(*args, **kwargs)

/home/youser/.local/share/virtualenvs/news-site-columnist-8tsXn7bh/lib/python3.10/site-packages/sentry_sdk/integrations/django/middleware.py in __call__(177)
  return f(*args, **kwargs)

/home/youser/.local/share/virtualenvs/news-site-columnist-8tsXn7bh/lib/python3.10/site-packages/sentry_sdk/integrations/django/middleware.py in __call__(177)
  return f(*args, **kwargs)

/home/youser/.local/share/virtualenvs/news-site-columnist-8tsXn7bh/lib/python3.10/site-packages/sentry_sdk/integrations/django/middleware.py in __call__(177)
  return f(*args, **kwargs)

/home/youser/.local/share/virtualenvs/news-site-columnist-8tsXn7bh/lib/python3.10/site-packages/sentry_sdk/integrations/django/middleware.py in __call__(177)
  return f(*args, **kwargs)

/home/youser/.local/share/virtualenvs/news-site-columnist-8tsXn7bh/lib/python3.10/site-packages/sentry_sdk/integrations/django/middleware.py in __call__(177)
  return f(*args, **kwargs)

/var/www/news-site-columnist/news/middleware/subdomain_middleare.py in __call__(22)
  response = self.get_response(request)

/home/youser/.local/share/virtualenvs/news-site-columnist-8tsXn7bh/lib/python3.10/site-packages/sentry_sdk/integrations/django/views.py in sentry_wrapped_callback(94)
  return callback(request, *args, **kwargs)

/var/www/news-site-columnist/news/views/post.py in subdomain_view_post(923)
  return GetPost.as_view()(

/home/youser/.local/share/virtualenvs/news-site-columnist-8tsXn7bh/lib/python3.10/site-packages/django/views/generic/base.py in view(104)
  return self.dispatch(request, *args, **kwargs)

/home/youser/.local/share/virtualenvs/news-site-columnist-8tsXn7bh/lib/python3.10/site-packages/django/views/generic/base.py in dispatch(143)
  return handler(request, *args, **kwargs)

/var/www/news-site-columnist/news/views/post.py in get(187)
  return super().get(request, *args, **kwargs)

/var/www/news-site-columnist/news/views/base.py in get(155)
  return super().get(request, *args, **kwargs)

/var/www/news-site-columnist/news/views/base.py in get(182)
  resp = super().get(request, *args, **kwargs)

/home/youser/.local/share/virtualenvs/news-site-columnist-8tsXn7bh/lib/python3.10/site-packages/django/views/generic/detail.py in get(109)
  context = self.get_context_data(object=self.object)

/var/www/news-site-columnist/news/views/post.py in get_context_data(135)
  qs = Post.objects.filter(

/home/youser/.local/share/virtualenvs/news-site-columnist-8tsXn7bh/lib/python3.10/site-packages/modeltranslation/manager.py in get_queryset(633)
  qs = super().get_queryset()

/home/youser/.local/share/virtualenvs/news-site-columnist-8tsXn7bh/lib/python3.10/site-packages/modeltranslation/manager.py in get_queryset(607)
  qs = super().get_queryset()

/var/www/news-site-columnist/news/models/news.py in get_queryset(51)
  qs = super().get_queryset()

/var/www/news-site-columnist/news/models/news.py in get_queryset(566)
  self.context_post_ct = ContentType.objects.get(app_label="context_section", model="columnpost")

SELECT "post"."created_at",
       "post"."seo_title",
       "post"."seo_title_uk",
       "post"."seo_title_en",
       "post"."seo_title_ru",
       "post"."seo_description",
       "post"."seo_description_uk",
       "post"."seo_description_en",
       "post"."seo_description_ru",
       "post"."seo_keywords",
       "post"."seo_keywords_uk",
       "post"."seo_keywords_en",
       "post"."seo_keywords_ru",
       "post"."seo_header_one",
       "post"."seo_header_one_uk",
       "post"."seo_header_one_en",
       "post"."seo_header_one_ru",
       "post"."created_by",
       "post"."updated_by",
       "post"."polymorphic_ctype_id",
       "post"."id",
       "post"."head",
       "post"."head_uk",
       "post"."head_en",
       "post"."head_ru",
       "post"."sub_head",
       "post"."sub_head_uk",
       "post"."sub_head_en",
       "post"."sub_head_ru",
       "post"."content",
       "post"."content_uk",
       "post"."content_en",
       "post"."content_ru",
       "post"."author_id",
       "post"."seo_tag_id",
       "post"."publish_at",
       "post"."translated_at",
       "post"."updated_at",
       "post"."show_updated_at",
       "post"."slug",
       "post"."slug_uk",
       "post"."slug_en",
       "post"."slug_ru",
       "post"."aplication_type",
       "post"."last_editor_id",
       "post"."status",
       "post"."show_at_homepage",
       "post"."show_at_news_feed",
       "post"."show_on_broadcast_page",
       "post"."is_category_top",
       "post"."is_homepage_top",
       "post"."is_homepage_top_uk",
       "post"."is_homepage_top_en",
       "post"."is_homepage_top_ru",
       "post"."id_sponsored",
       "post"."is_lightning",
       "post"."is_exclusive",
       "post"."is_photo_report",
       "post"."is_post",
       "post"."is_article",
       "post"."main_page_img_full_width",
       "post"."need_hires",
       "post"."has_photo",
       "post"."has_video",
       "post"."is_editors_choise",
       "post"."show_in_sidebar",
       "post"."category_id",
       "post"."old_category_id",
       "post"."past_region",
       "post"."year_of_war",
       "post"."breaking_news",
       "post"."without_img",
       "post"."show_stories_block",
       "post"."display_type",
       "post"."image",
       "post"."image_alt",
       "post"."image_alt_uk",
       "post"."image_alt_en",
       "post"."image_alt_ru",
       "post"."seo_image",
       "post"."text_under_image",
       "post"."text_under_image_uk",
       "post"."text_under_image_en",
       "post"."text_under_image_ru",
       "post"."image_source",
       "post"."image_source_uk",
       "post"."image_source_en",
       "post"."image_source_ru",
       "post"."theme_id",
       "post"."is_nofollow_disabled",
       "post"."audio_content_id",
       "post"."audio_content_uk_id",
       "post"."audio_content_en_id",
       "post"."audio_content_ru_id",
       "post"."views",
       "post"."views_uk",
       "post"."views_ru",
       "post"."views_analytics",
       "post"."views_analytics_ru",
       "post"."views_analytics_uk",
       "post"."views_analytics_at",
       "post"."busy_by_id",
       "post"."image_editor_id",
       "post"."release_editor_id",
       "post"."special_type",
       "post"."head_longer_than_100",
       "post"."uk_has_translation",
       "post"."ru_has_translation",
       "post"."en_has_translation",
       "post"."homepage_slider_text",
       "post"."homepage_slider_text_uk",
       "post"."homepage_slider_text_en",
       "post"."homepage_slider_text_ru"
  FROM "post"
 INNER JOIN "category"
    ON ("post"."category_id" = "category"."id")
 WHERE ("post"."polymorphic_ctype_id" = 4 AND "category"."slug" = 'lviv' AND "post"."id" = 139383 AND "post"."status" = 2 AND "post"."publish_at" <= '2026-02-12T08:22:18.090087+00:00'::timestamptz)
 LIMIT 21
SELECT ••• FROM "post" INNER JOIN "category" ON ("post"."category_id" = "category"."id") WHERE ("post"."polymorphic_ctype_id" = 4 AND "category"."slug" = 'lviv' AND "post"."id" = 139383 AND "post"."status" = 2 AND "post"."publish_at" <= '2026-02-12T08:22:18.090087+00:00'::timestamptz) LIMIT 21
6 similar queries.
1,11

Connection: default

Transaction status: Idle

/home/youser/.local/share/virtualenvs/news-site-columnist-8tsXn7bh/bin/gunicorn in <module>(8)
  sys.exit(run())

/home/youser/.local/share/virtualenvs/news-site-columnist-8tsXn7bh/lib/python3.10/site-packages/gunicorn/app/wsgiapp.py in run(66)
  WSGIApplication("%(prog)s [OPTIONS] [APP_MODULE]", prog=prog).run()

/home/youser/.local/share/virtualenvs/news-site-columnist-8tsXn7bh/lib/python3.10/site-packages/gunicorn/app/base.py in run(235)
  super().run()

/home/youser/.local/share/virtualenvs/news-site-columnist-8tsXn7bh/lib/python3.10/site-packages/gunicorn/app/base.py in run(71)
  Arbiter(self).run()

/home/youser/.local/share/virtualenvs/news-site-columnist-8tsXn7bh/lib/python3.10/site-packages/gunicorn/arbiter.py in run(210)
  self.manage_workers()

/home/youser/.local/share/virtualenvs/news-site-columnist-8tsXn7bh/lib/python3.10/site-packages/gunicorn/arbiter.py in manage_workers(570)
  self.spawn_workers()

/home/youser/.local/share/virtualenvs/news-site-columnist-8tsXn7bh/lib/python3.10/site-packages/gunicorn/arbiter.py in spawn_workers(641)
  self.spawn_worker()

/home/youser/.local/share/virtualenvs/news-site-columnist-8tsXn7bh/lib/python3.10/site-packages/gunicorn/arbiter.py in spawn_worker(608)
  worker.init_process()

/home/youser/.local/share/virtualenvs/news-site-columnist-8tsXn7bh/lib/python3.10/site-packages/gunicorn/workers/base.py in init_process(143)
  self.run()

/home/youser/.local/share/virtualenvs/news-site-columnist-8tsXn7bh/lib/python3.10/site-packages/gunicorn/workers/sync.py in run(125)
  self.run_for_one(timeout)

/home/youser/.local/share/virtualenvs/news-site-columnist-8tsXn7bh/lib/python3.10/site-packages/gunicorn/workers/sync.py in run_for_one(69)
  self.accept(listener)

/home/youser/.local/share/virtualenvs/news-site-columnist-8tsXn7bh/lib/python3.10/site-packages/gunicorn/workers/sync.py in accept(31)
  self.handle(listener, client, addr)

/home/youser/.local/share/virtualenvs/news-site-columnist-8tsXn7bh/lib/python3.10/site-packages/gunicorn/workers/sync.py in handle(134)
  self.handle_request(listener, req, client, addr)

/home/youser/.local/share/virtualenvs/news-site-columnist-8tsXn7bh/lib/python3.10/site-packages/gunicorn/workers/sync.py in handle_request(177)
  respiter = self.wsgi(environ, resp.start_response)

/home/youser/.local/share/virtualenvs/news-site-columnist-8tsXn7bh/lib/python3.10/site-packages/sentry_sdk/utils.py in runner(1864)
  return sentry_patched_function(*args, **kwargs)

/home/youser/.local/share/virtualenvs/news-site-columnist-8tsXn7bh/lib/python3.10/site-packages/sentry_sdk/integrations/django/__init__.py in sentry_patched_wsgi_handler(191)
  return middleware(environ, start_response)

/home/youser/.local/share/virtualenvs/news-site-columnist-8tsXn7bh/lib/python3.10/site-packages/sentry_sdk/integrations/wsgi.py in __call__(132)
  response = self.app(

/home/youser/.local/share/virtualenvs/news-site-columnist-8tsXn7bh/lib/python3.10/site-packages/sentry_sdk/integrations/django/__init__.py in sentry_patched_get_response(478)
  rv = old_get_response(self, request)

/home/youser/.local/share/virtualenvs/news-site-columnist-8tsXn7bh/lib/python3.10/site-packages/sentry_sdk/integrations/django/middleware.py in __call__(177)
  return f(*args, **kwargs)

/home/youser/.local/share/virtualenvs/news-site-columnist-8tsXn7bh/lib/python3.10/site-packages/sentry_sdk/integrations/django/middleware.py in __call__(177)
  return f(*args, **kwargs)

/var/www/news-site-columnist/redirects/middleware/redirect_middleware.py in __call__(17)
  return self.get_response(request)

/home/youser/.local/share/virtualenvs/news-site-columnist-8tsXn7bh/lib/python3.10/site-packages/sentry_sdk/integrations/django/middleware.py in __call__(177)
  return f(*args, **kwargs)

/home/youser/.local/share/virtualenvs/news-site-columnist-8tsXn7bh/lib/python3.10/site-packages/sentry_sdk/integrations/django/middleware.py in __call__(177)
  return f(*args, **kwargs)

/home/youser/.local/share/virtualenvs/news-site-columnist-8tsXn7bh/lib/python3.10/site-packages/sentry_sdk/integrations/django/middleware.py in __call__(177)
  return f(*args, **kwargs)

/home/youser/.local/share/virtualenvs/news-site-columnist-8tsXn7bh/lib/python3.10/site-packages/sentry_sdk/integrations/django/middleware.py in __call__(177)
  return f(*args, **kwargs)

/home/youser/.local/share/virtualenvs/news-site-columnist-8tsXn7bh/lib/python3.10/site-packages/corsheaders/middleware.py in __call__(53)
  result = self.get_response(request)

/home/youser/.local/share/virtualenvs/news-site-columnist-8tsXn7bh/lib/python3.10/site-packages/sentry_sdk/integrations/django/middleware.py in __call__(177)
  return f(*args, **kwargs)

/home/youser/.local/share/virtualenvs/news-site-columnist-8tsXn7bh/lib/python3.10/site-packages/django_user_agents/middleware.py in __call__(14)
  return self.get_response(request)

/home/youser/.local/share/virtualenvs/news-site-columnist-8tsXn7bh/lib/python3.10/site-packages/sentry_sdk/integrations/django/middleware.py in __call__(177)
  return f(*args, **kwargs)

/home/youser/.local/share/virtualenvs/news-site-columnist-8tsXn7bh/lib/python3.10/site-packages/sentry_sdk/integrations/django/middleware.py in __call__(177)
  return f(*args, **kwargs)

/home/youser/.local/share/virtualenvs/news-site-columnist-8tsXn7bh/lib/python3.10/site-packages/sentry_sdk/integrations/django/middleware.py in __call__(177)
  return f(*args, **kwargs)

/home/youser/.local/share/virtualenvs/news-site-columnist-8tsXn7bh/lib/python3.10/site-packages/sentry_sdk/integrations/django/middleware.py in __call__(177)
  return f(*args, **kwargs)

/home/youser/.local/share/virtualenvs/news-site-columnist-8tsXn7bh/lib/python3.10/site-packages/sentry_sdk/integrations/django/middleware.py in __call__(177)
  return f(*args, **kwargs)

/home/youser/.local/share/virtualenvs/news-site-columnist-8tsXn7bh/lib/python3.10/site-packages/sentry_sdk/integrations/django/middleware.py in __call__(177)
  return f(*args, **kwargs)

/home/youser/.local/share/virtualenvs/news-site-columnist-8tsXn7bh/lib/python3.10/site-packages/sentry_sdk/integrations/django/middleware.py in __call__(177)
  return f(*args, **kwargs)

/home/youser/.local/share/virtualenvs/news-site-columnist-8tsXn7bh/lib/python3.10/site-packages/sentry_sdk/integrations/django/middleware.py in __call__(177)
  return f(*args, **kwargs)

/var/www/news-site-columnist/news/middleware/subdomain_middleare.py in __call__(22)
  response = self.get_response(request)

/home/youser/.local/share/virtualenvs/news-site-columnist-8tsXn7bh/lib/python3.10/site-packages/sentry_sdk/integrations/django/views.py in sentry_wrapped_callback(94)
  return callback(request, *args, **kwargs)

/var/www/news-site-columnist/news/views/post.py in subdomain_view_post(923)
  return GetPost.as_view()(

/home/youser/.local/share/virtualenvs/news-site-columnist-8tsXn7bh/lib/python3.10/site-packages/django/views/generic/base.py in view(104)
  return self.dispatch(request, *args, **kwargs)

/home/youser/.local/share/virtualenvs/news-site-columnist-8tsXn7bh/lib/python3.10/site-packages/django/views/generic/base.py in dispatch(143)
  return handler(request, *args, **kwargs)

/var/www/news-site-columnist/news/views/post.py in get(187)
  return super().get(request, *args, **kwargs)

/var/www/news-site-columnist/news/views/base.py in get(155)
  return super().get(request, *args, **kwargs)

/var/www/news-site-columnist/news/views/base.py in get(182)
  resp = super().get(request, *args, **kwargs)

/home/youser/.local/share/virtualenvs/news-site-columnist-8tsXn7bh/lib/python3.10/site-packages/django/views/generic/detail.py in get(109)
  context = self.get_context_data(object=self.object)

/var/www/news-site-columnist/news/views/post.py in get_context_data(140)
  post = self.get_object()

/var/www/news-site-columnist/news/views/post.py in get_object(120)
  obj = queryset.get()

/home/youser/.local/share/virtualenvs/news-site-columnist-8tsXn7bh/lib/python3.10/site-packages/polymorphic/query.py in _polymorphic_iterator(57)
  o = next(base_iter)

SELECT 1 AS "a"
  FROM "news_telegramlinkreplacement"
 LIMIT 1
SELECT 1 AS "a" FROM "news_telegramlinkreplacement" LIMIT 1
0,40

Connection: default

Transaction status: Idle

/home/youser/.local/share/virtualenvs/news-site-columnist-8tsXn7bh/bin/gunicorn in <module>(8)
  sys.exit(run())

/home/youser/.local/share/virtualenvs/news-site-columnist-8tsXn7bh/lib/python3.10/site-packages/gunicorn/app/wsgiapp.py in run(66)
  WSGIApplication("%(prog)s [OPTIONS] [APP_MODULE]", prog=prog).run()

/home/youser/.local/share/virtualenvs/news-site-columnist-8tsXn7bh/lib/python3.10/site-packages/gunicorn/app/base.py in run(235)
  super().run()

/home/youser/.local/share/virtualenvs/news-site-columnist-8tsXn7bh/lib/python3.10/site-packages/gunicorn/app/base.py in run(71)
  Arbiter(self).run()

/home/youser/.local/share/virtualenvs/news-site-columnist-8tsXn7bh/lib/python3.10/site-packages/gunicorn/arbiter.py in run(210)
  self.manage_workers()

/home/youser/.local/share/virtualenvs/news-site-columnist-8tsXn7bh/lib/python3.10/site-packages/gunicorn/arbiter.py in manage_workers(570)
  self.spawn_workers()

/home/youser/.local/share/virtualenvs/news-site-columnist-8tsXn7bh/lib/python3.10/site-packages/gunicorn/arbiter.py in spawn_workers(641)
  self.spawn_worker()

/home/youser/.local/share/virtualenvs/news-site-columnist-8tsXn7bh/lib/python3.10/site-packages/gunicorn/arbiter.py in spawn_worker(608)
  worker.init_process()

/home/youser/.local/share/virtualenvs/news-site-columnist-8tsXn7bh/lib/python3.10/site-packages/gunicorn/workers/base.py in init_process(143)
  self.run()

/home/youser/.local/share/virtualenvs/news-site-columnist-8tsXn7bh/lib/python3.10/site-packages/gunicorn/workers/sync.py in run(125)
  self.run_for_one(timeout)

/home/youser/.local/share/virtualenvs/news-site-columnist-8tsXn7bh/lib/python3.10/site-packages/gunicorn/workers/sync.py in run_for_one(69)
  self.accept(listener)

/home/youser/.local/share/virtualenvs/news-site-columnist-8tsXn7bh/lib/python3.10/site-packages/gunicorn/workers/sync.py in accept(31)
  self.handle(listener, client, addr)

/home/youser/.local/share/virtualenvs/news-site-columnist-8tsXn7bh/lib/python3.10/site-packages/gunicorn/workers/sync.py in handle(134)
  self.handle_request(listener, req, client, addr)

/home/youser/.local/share/virtualenvs/news-site-columnist-8tsXn7bh/lib/python3.10/site-packages/gunicorn/workers/sync.py in handle_request(177)
  respiter = self.wsgi(environ, resp.start_response)

/home/youser/.local/share/virtualenvs/news-site-columnist-8tsXn7bh/lib/python3.10/site-packages/sentry_sdk/utils.py in runner(1864)
  return sentry_patched_function(*args, **kwargs)

/home/youser/.local/share/virtualenvs/news-site-columnist-8tsXn7bh/lib/python3.10/site-packages/sentry_sdk/integrations/django/__init__.py in sentry_patched_wsgi_handler(191)
  return middleware(environ, start_response)

/home/youser/.local/share/virtualenvs/news-site-columnist-8tsXn7bh/lib/python3.10/site-packages/sentry_sdk/integrations/wsgi.py in __call__(132)
  response = self.app(

/home/youser/.local/share/virtualenvs/news-site-columnist-8tsXn7bh/lib/python3.10/site-packages/sentry_sdk/integrations/django/__init__.py in sentry_patched_get_response(478)
  rv = old_get_response(self, request)

/home/youser/.local/share/virtualenvs/news-site-columnist-8tsXn7bh/lib/python3.10/site-packages/sentry_sdk/integrations/django/middleware.py in __call__(177)
  return f(*args, **kwargs)

/home/youser/.local/share/virtualenvs/news-site-columnist-8tsXn7bh/lib/python3.10/site-packages/sentry_sdk/integrations/django/middleware.py in __call__(177)
  return f(*args, **kwargs)

/var/www/news-site-columnist/redirects/middleware/redirect_middleware.py in __call__(17)
  return self.get_response(request)

/home/youser/.local/share/virtualenvs/news-site-columnist-8tsXn7bh/lib/python3.10/site-packages/sentry_sdk/integrations/django/middleware.py in __call__(177)
  return f(*args, **kwargs)

/home/youser/.local/share/virtualenvs/news-site-columnist-8tsXn7bh/lib/python3.10/site-packages/sentry_sdk/integrations/django/middleware.py in __call__(177)
  return f(*args, **kwargs)

/home/youser/.local/share/virtualenvs/news-site-columnist-8tsXn7bh/lib/python3.10/site-packages/sentry_sdk/integrations/django/middleware.py in __call__(177)
  return f(*args, **kwargs)

/home/youser/.local/share/virtualenvs/news-site-columnist-8tsXn7bh/lib/python3.10/site-packages/sentry_sdk/integrations/django/middleware.py in __call__(177)
  return f(*args, **kwargs)

/home/youser/.local/share/virtualenvs/news-site-columnist-8tsXn7bh/lib/python3.10/site-packages/corsheaders/middleware.py in __call__(53)
  result = self.get_response(request)

/home/youser/.local/share/virtualenvs/news-site-columnist-8tsXn7bh/lib/python3.10/site-packages/sentry_sdk/integrations/django/middleware.py in __call__(177)
  return f(*args, **kwargs)

/home/youser/.local/share/virtualenvs/news-site-columnist-8tsXn7bh/lib/python3.10/site-packages/django_user_agents/middleware.py in __call__(14)
  return self.get_response(request)

/home/youser/.local/share/virtualenvs/news-site-columnist-8tsXn7bh/lib/python3.10/site-packages/sentry_sdk/integrations/django/middleware.py in __call__(177)
  return f(*args, **kwargs)

/home/youser/.local/share/virtualenvs/news-site-columnist-8tsXn7bh/lib/python3.10/site-packages/sentry_sdk/integrations/django/middleware.py in __call__(177)
  return f(*args, **kwargs)

/home/youser/.local/share/virtualenvs/news-site-columnist-8tsXn7bh/lib/python3.10/site-packages/sentry_sdk/integrations/django/middleware.py in __call__(177)
  return f(*args, **kwargs)

/home/youser/.local/share/virtualenvs/news-site-columnist-8tsXn7bh/lib/python3.10/site-packages/sentry_sdk/integrations/django/middleware.py in __call__(177)
  return f(*args, **kwargs)

/home/youser/.local/share/virtualenvs/news-site-columnist-8tsXn7bh/lib/python3.10/site-packages/sentry_sdk/integrations/django/middleware.py in __call__(177)
  return f(*args, **kwargs)

/home/youser/.local/share/virtualenvs/news-site-columnist-8tsXn7bh/lib/python3.10/site-packages/sentry_sdk/integrations/django/middleware.py in __call__(177)
  return f(*args, **kwargs)

/home/youser/.local/share/virtualenvs/news-site-columnist-8tsXn7bh/lib/python3.10/site-packages/sentry_sdk/integrations/django/middleware.py in __call__(177)
  return f(*args, **kwargs)

/home/youser/.local/share/virtualenvs/news-site-columnist-8tsXn7bh/lib/python3.10/site-packages/sentry_sdk/integrations/django/middleware.py in __call__(177)
  return f(*args, **kwargs)

/var/www/news-site-columnist/news/middleware/subdomain_middleare.py in __call__(22)
  response = self.get_response(request)

/home/youser/.local/share/virtualenvs/news-site-columnist-8tsXn7bh/lib/python3.10/site-packages/sentry_sdk/integrations/django/views.py in sentry_wrapped_callback(94)
  return callback(request, *args, **kwargs)

/var/www/news-site-columnist/news/views/post.py in subdomain_view_post(923)
  return GetPost.as_view()(

/home/youser/.local/share/virtualenvs/news-site-columnist-8tsXn7bh/lib/python3.10/site-packages/django/views/generic/base.py in view(104)
  return self.dispatch(request, *args, **kwargs)

/home/youser/.local/share/virtualenvs/news-site-columnist-8tsXn7bh/lib/python3.10/site-packages/django/views/generic/base.py in dispatch(143)
  return handler(request, *args, **kwargs)

/var/www/news-site-columnist/news/views/post.py in get(187)
  return super().get(request, *args, **kwargs)

/var/www/news-site-columnist/news/views/base.py in get(155)
  return super().get(request, *args, **kwargs)

/var/www/news-site-columnist/news/views/base.py in get(182)
  resp = super().get(request, *args, **kwargs)

/home/youser/.local/share/virtualenvs/news-site-columnist-8tsXn7bh/lib/python3.10/site-packages/django/views/generic/detail.py in get(109)
  context = self.get_context_data(object=self.object)

/var/www/news-site-columnist/news/views/post.py in get_context_data(148)
  data["tlp"] = get_telegram_link_replacement()

/var/www/news-site-columnist/news/utils.py in get_telegram_link_replacement(143)
  if TelegramLinkReplacement.objects.all().exists():

SELECT "django_content_type"."id",
       "django_content_type"."app_label",
       "django_content_type"."model"
  FROM "django_content_type"
 WHERE ("django_content_type"."app_label" = 'news' AND "django_content_type"."model" = 'broadcastpost')
 LIMIT 21
SELECT ••• FROM "django_content_type" WHERE ("django_content_type"."app_label" = 'news' AND "django_content_type"."model" = 'broadcastpost') LIMIT 21
6 similar queries. Duplicated 3 times.
0,36

Connection: default

Transaction status: Idle

/home/youser/.local/share/virtualenvs/news-site-columnist-8tsXn7bh/bin/gunicorn in <module>(8)
  sys.exit(run())

/home/youser/.local/share/virtualenvs/news-site-columnist-8tsXn7bh/lib/python3.10/site-packages/gunicorn/app/wsgiapp.py in run(66)
  WSGIApplication("%(prog)s [OPTIONS] [APP_MODULE]", prog=prog).run()

/home/youser/.local/share/virtualenvs/news-site-columnist-8tsXn7bh/lib/python3.10/site-packages/gunicorn/app/base.py in run(235)
  super().run()

/home/youser/.local/share/virtualenvs/news-site-columnist-8tsXn7bh/lib/python3.10/site-packages/gunicorn/app/base.py in run(71)
  Arbiter(self).run()

/home/youser/.local/share/virtualenvs/news-site-columnist-8tsXn7bh/lib/python3.10/site-packages/gunicorn/arbiter.py in run(210)
  self.manage_workers()

/home/youser/.local/share/virtualenvs/news-site-columnist-8tsXn7bh/lib/python3.10/site-packages/gunicorn/arbiter.py in manage_workers(570)
  self.spawn_workers()

/home/youser/.local/share/virtualenvs/news-site-columnist-8tsXn7bh/lib/python3.10/site-packages/gunicorn/arbiter.py in spawn_workers(641)
  self.spawn_worker()

/home/youser/.local/share/virtualenvs/news-site-columnist-8tsXn7bh/lib/python3.10/site-packages/gunicorn/arbiter.py in spawn_worker(608)
  worker.init_process()

/home/youser/.local/share/virtualenvs/news-site-columnist-8tsXn7bh/lib/python3.10/site-packages/gunicorn/workers/base.py in init_process(143)
  self.run()

/home/youser/.local/share/virtualenvs/news-site-columnist-8tsXn7bh/lib/python3.10/site-packages/gunicorn/workers/sync.py in run(125)
  self.run_for_one(timeout)

/home/youser/.local/share/virtualenvs/news-site-columnist-8tsXn7bh/lib/python3.10/site-packages/gunicorn/workers/sync.py in run_for_one(69)
  self.accept(listener)

/home/youser/.local/share/virtualenvs/news-site-columnist-8tsXn7bh/lib/python3.10/site-packages/gunicorn/workers/sync.py in accept(31)
  self.handle(listener, client, addr)

/home/youser/.local/share/virtualenvs/news-site-columnist-8tsXn7bh/lib/python3.10/site-packages/gunicorn/workers/sync.py in handle(134)
  self.handle_request(listener, req, client, addr)

/home/youser/.local/share/virtualenvs/news-site-columnist-8tsXn7bh/lib/python3.10/site-packages/gunicorn/workers/sync.py in handle_request(177)
  respiter = self.wsgi(environ, resp.start_response)

/home/youser/.local/share/virtualenvs/news-site-columnist-8tsXn7bh/lib/python3.10/site-packages/sentry_sdk/utils.py in runner(1864)
  return sentry_patched_function(*args, **kwargs)

/home/youser/.local/share/virtualenvs/news-site-columnist-8tsXn7bh/lib/python3.10/site-packages/sentry_sdk/integrations/django/__init__.py in sentry_patched_wsgi_handler(191)
  return middleware(environ, start_response)

/home/youser/.local/share/virtualenvs/news-site-columnist-8tsXn7bh/lib/python3.10/site-packages/sentry_sdk/integrations/wsgi.py in __call__(132)
  response = self.app(

/home/youser/.local/share/virtualenvs/news-site-columnist-8tsXn7bh/lib/python3.10/site-packages/sentry_sdk/integrations/django/__init__.py in sentry_patched_get_response(478)
  rv = old_get_response(self, request)

/home/youser/.local/share/virtualenvs/news-site-columnist-8tsXn7bh/lib/python3.10/site-packages/sentry_sdk/integrations/django/middleware.py in __call__(177)
  return f(*args, **kwargs)

/home/youser/.local/share/virtualenvs/news-site-columnist-8tsXn7bh/lib/python3.10/site-packages/sentry_sdk/integrations/django/middleware.py in __call__(177)
  return f(*args, **kwargs)

/var/www/news-site-columnist/redirects/middleware/redirect_middleware.py in __call__(17)
  return self.get_response(request)

/home/youser/.local/share/virtualenvs/news-site-columnist-8tsXn7bh/lib/python3.10/site-packages/sentry_sdk/integrations/django/middleware.py in __call__(177)
  return f(*args, **kwargs)

/home/youser/.local/share/virtualenvs/news-site-columnist-8tsXn7bh/lib/python3.10/site-packages/sentry_sdk/integrations/django/middleware.py in __call__(177)
  return f(*args, **kwargs)

/home/youser/.local/share/virtualenvs/news-site-columnist-8tsXn7bh/lib/python3.10/site-packages/sentry_sdk/integrations/django/middleware.py in __call__(177)
  return f(*args, **kwargs)

/home/youser/.local/share/virtualenvs/news-site-columnist-8tsXn7bh/lib/python3.10/site-packages/sentry_sdk/integrations/django/middleware.py in __call__(177)
  return f(*args, **kwargs)

/home/youser/.local/share/virtualenvs/news-site-columnist-8tsXn7bh/lib/python3.10/site-packages/corsheaders/middleware.py in __call__(53)
  result = self.get_response(request)

/home/youser/.local/share/virtualenvs/news-site-columnist-8tsXn7bh/lib/python3.10/site-packages/sentry_sdk/integrations/django/middleware.py in __call__(177)
  return f(*args, **kwargs)

/home/youser/.local/share/virtualenvs/news-site-columnist-8tsXn7bh/lib/python3.10/site-packages/django_user_agents/middleware.py in __call__(14)
  return self.get_response(request)

/home/youser/.local/share/virtualenvs/news-site-columnist-8tsXn7bh/lib/python3.10/site-packages/sentry_sdk/integrations/django/middleware.py in __call__(177)
  return f(*args, **kwargs)

/home/youser/.local/share/virtualenvs/news-site-columnist-8tsXn7bh/lib/python3.10/site-packages/sentry_sdk/integrations/django/middleware.py in __call__(177)
  return f(*args, **kwargs)

/home/youser/.local/share/virtualenvs/news-site-columnist-8tsXn7bh/lib/python3.10/site-packages/sentry_sdk/integrations/django/middleware.py in __call__(177)
  return f(*args, **kwargs)

/home/youser/.local/share/virtualenvs/news-site-columnist-8tsXn7bh/lib/python3.10/site-packages/sentry_sdk/integrations/django/middleware.py in __call__(177)
  return f(*args, **kwargs)

/home/youser/.local/share/virtualenvs/news-site-columnist-8tsXn7bh/lib/python3.10/site-packages/sentry_sdk/integrations/django/middleware.py in __call__(177)
  return f(*args, **kwargs)

/home/youser/.local/share/virtualenvs/news-site-columnist-8tsXn7bh/lib/python3.10/site-packages/sentry_sdk/integrations/django/middleware.py in __call__(177)
  return f(*args, **kwargs)

/home/youser/.local/share/virtualenvs/news-site-columnist-8tsXn7bh/lib/python3.10/site-packages/sentry_sdk/integrations/django/middleware.py in __call__(177)
  return f(*args, **kwargs)

/home/youser/.local/share/virtualenvs/news-site-columnist-8tsXn7bh/lib/python3.10/site-packages/sentry_sdk/integrations/django/middleware.py in __call__(177)
  return f(*args, **kwargs)

/var/www/news-site-columnist/news/middleware/subdomain_middleare.py in __call__(22)
  response = self.get_response(request)

/home/youser/.local/share/virtualenvs/news-site-columnist-8tsXn7bh/lib/python3.10/site-packages/sentry_sdk/integrations/django/views.py in sentry_wrapped_callback(94)
  return callback(request, *args, **kwargs)

/var/www/news-site-columnist/news/views/post.py in subdomain_view_post(923)
  return GetPost.as_view()(

/home/youser/.local/share/virtualenvs/news-site-columnist-8tsXn7bh/lib/python3.10/site-packages/django/views/generic/base.py in view(104)
  return self.dispatch(request, *args, **kwargs)

/home/youser/.local/share/virtualenvs/news-site-columnist-8tsXn7bh/lib/python3.10/site-packages/django/views/generic/base.py in dispatch(143)
  return handler(request, *args, **kwargs)

/var/www/news-site-columnist/news/views/post.py in get(187)
  return super().get(request, *args, **kwargs)

/var/www/news-site-columnist/news/views/base.py in get(155)
  return super().get(request, *args, **kwargs)

/var/www/news-site-columnist/news/views/base.py in get(182)
  resp = super().get(request, *args, **kwargs)

/home/youser/.local/share/virtualenvs/news-site-columnist-8tsXn7bh/lib/python3.10/site-packages/django/views/generic/detail.py in get(109)
  context = self.get_context_data(object=self.object)

/var/www/news-site-columnist/news/views/post.py in get_context_data(148)
  data["tlp"] = get_telegram_link_replacement()

/var/www/news-site-columnist/news/utils.py in get_telegram_link_replacement(148)
  return Post.objects.get(id=tlp.post_id)

/home/youser/.local/share/virtualenvs/news-site-columnist-8tsXn7bh/lib/python3.10/site-packages/modeltranslation/manager.py in get_queryset(633)
  qs = super().get_queryset()

/home/youser/.local/share/virtualenvs/news-site-columnist-8tsXn7bh/lib/python3.10/site-packages/modeltranslation/manager.py in get_queryset(607)
  qs = super().get_queryset()

/var/www/news-site-columnist/news/models/news.py in get_queryset(51)
  qs = super().get_queryset()

/var/www/news-site-columnist/news/models/news.py in get_queryset(565)
  self.broadcast_ct = ContentType.objects.get(app_label="news", model="broadcastpost")

SELECT "django_content_type"."id",
       "django_content_type"."app_label",
       "django_content_type"."model"
  FROM "django_content_type"
 WHERE ("django_content_type"."app_label" = 'context_section' AND "django_content_type"."model" = 'columnpost')
 LIMIT 21
SELECT ••• FROM "django_content_type" WHERE ("django_content_type"."app_label" = 'context_section' AND "django_content_type"."model" = 'columnpost') LIMIT 21
6 similar queries. Duplicated 3 times.
0,26

Connection: default

Transaction status: Idle

/home/youser/.local/share/virtualenvs/news-site-columnist-8tsXn7bh/bin/gunicorn in <module>(8)
  sys.exit(run())

/home/youser/.local/share/virtualenvs/news-site-columnist-8tsXn7bh/lib/python3.10/site-packages/gunicorn/app/wsgiapp.py in run(66)
  WSGIApplication("%(prog)s [OPTIONS] [APP_MODULE]", prog=prog).run()

/home/youser/.local/share/virtualenvs/news-site-columnist-8tsXn7bh/lib/python3.10/site-packages/gunicorn/app/base.py in run(235)
  super().run()

/home/youser/.local/share/virtualenvs/news-site-columnist-8tsXn7bh/lib/python3.10/site-packages/gunicorn/app/base.py in run(71)
  Arbiter(self).run()

/home/youser/.local/share/virtualenvs/news-site-columnist-8tsXn7bh/lib/python3.10/site-packages/gunicorn/arbiter.py in run(210)
  self.manage_workers()

/home/youser/.local/share/virtualenvs/news-site-columnist-8tsXn7bh/lib/python3.10/site-packages/gunicorn/arbiter.py in manage_workers(570)
  self.spawn_workers()

/home/youser/.local/share/virtualenvs/news-site-columnist-8tsXn7bh/lib/python3.10/site-packages/gunicorn/arbiter.py in spawn_workers(641)
  self.spawn_worker()

/home/youser/.local/share/virtualenvs/news-site-columnist-8tsXn7bh/lib/python3.10/site-packages/gunicorn/arbiter.py in spawn_worker(608)
  worker.init_process()

/home/youser/.local/share/virtualenvs/news-site-columnist-8tsXn7bh/lib/python3.10/site-packages/gunicorn/workers/base.py in init_process(143)
  self.run()

/home/youser/.local/share/virtualenvs/news-site-columnist-8tsXn7bh/lib/python3.10/site-packages/gunicorn/workers/sync.py in run(125)
  self.run_for_one(timeout)

/home/youser/.local/share/virtualenvs/news-site-columnist-8tsXn7bh/lib/python3.10/site-packages/gunicorn/workers/sync.py in run_for_one(69)
  self.accept(listener)

/home/youser/.local/share/virtualenvs/news-site-columnist-8tsXn7bh/lib/python3.10/site-packages/gunicorn/workers/sync.py in accept(31)
  self.handle(listener, client, addr)

/home/youser/.local/share/virtualenvs/news-site-columnist-8tsXn7bh/lib/python3.10/site-packages/gunicorn/workers/sync.py in handle(134)
  self.handle_request(listener, req, client, addr)

/home/youser/.local/share/virtualenvs/news-site-columnist-8tsXn7bh/lib/python3.10/site-packages/gunicorn/workers/sync.py in handle_request(177)
  respiter = self.wsgi(environ, resp.start_response)

/home/youser/.local/share/virtualenvs/news-site-columnist-8tsXn7bh/lib/python3.10/site-packages/sentry_sdk/utils.py in runner(1864)
  return sentry_patched_function(*args, **kwargs)

/home/youser/.local/share/virtualenvs/news-site-columnist-8tsXn7bh/lib/python3.10/site-packages/sentry_sdk/integrations/django/__init__.py in sentry_patched_wsgi_handler(191)
  return middleware(environ, start_response)

/home/youser/.local/share/virtualenvs/news-site-columnist-8tsXn7bh/lib/python3.10/site-packages/sentry_sdk/integrations/wsgi.py in __call__(132)
  response = self.app(

/home/youser/.local/share/virtualenvs/news-site-columnist-8tsXn7bh/lib/python3.10/site-packages/sentry_sdk/integrations/django/__init__.py in sentry_patched_get_response(478)
  rv = old_get_response(self, request)

/home/youser/.local/share/virtualenvs/news-site-columnist-8tsXn7bh/lib/python3.10/site-packages/sentry_sdk/integrations/django/middleware.py in __call__(177)
  return f(*args, **kwargs)

/home/youser/.local/share/virtualenvs/news-site-columnist-8tsXn7bh/lib/python3.10/site-packages/sentry_sdk/integrations/django/middleware.py in __call__(177)
  return f(*args, **kwargs)

/var/www/news-site-columnist/redirects/middleware/redirect_middleware.py in __call__(17)
  return self.get_response(request)

/home/youser/.local/share/virtualenvs/news-site-columnist-8tsXn7bh/lib/python3.10/site-packages/sentry_sdk/integrations/django/middleware.py in __call__(177)
  return f(*args, **kwargs)

/home/youser/.local/share/virtualenvs/news-site-columnist-8tsXn7bh/lib/python3.10/site-packages/sentry_sdk/integrations/django/middleware.py in __call__(177)
  return f(*args, **kwargs)

/home/youser/.local/share/virtualenvs/news-site-columnist-8tsXn7bh/lib/python3.10/site-packages/sentry_sdk/integrations/django/middleware.py in __call__(177)
  return f(*args, **kwargs)

/home/youser/.local/share/virtualenvs/news-site-columnist-8tsXn7bh/lib/python3.10/site-packages/sentry_sdk/integrations/django/middleware.py in __call__(177)
  return f(*args, **kwargs)

/home/youser/.local/share/virtualenvs/news-site-columnist-8tsXn7bh/lib/python3.10/site-packages/corsheaders/middleware.py in __call__(53)
  result = self.get_response(request)

/home/youser/.local/share/virtualenvs/news-site-columnist-8tsXn7bh/lib/python3.10/site-packages/sentry_sdk/integrations/django/middleware.py in __call__(177)
  return f(*args, **kwargs)

/home/youser/.local/share/virtualenvs/news-site-columnist-8tsXn7bh/lib/python3.10/site-packages/django_user_agents/middleware.py in __call__(14)
  return self.get_response(request)

/home/youser/.local/share/virtualenvs/news-site-columnist-8tsXn7bh/lib/python3.10/site-packages/sentry_sdk/integrations/django/middleware.py in __call__(177)
  return f(*args, **kwargs)

/home/youser/.local/share/virtualenvs/news-site-columnist-8tsXn7bh/lib/python3.10/site-packages/sentry_sdk/integrations/django/middleware.py in __call__(177)
  return f(*args, **kwargs)

/home/youser/.local/share/virtualenvs/news-site-columnist-8tsXn7bh/lib/python3.10/site-packages/sentry_sdk/integrations/django/middleware.py in __call__(177)
  return f(*args, **kwargs)

/home/youser/.local/share/virtualenvs/news-site-columnist-8tsXn7bh/lib/python3.10/site-packages/sentry_sdk/integrations/django/middleware.py in __call__(177)
  return f(*args, **kwargs)

/home/youser/.local/share/virtualenvs/news-site-columnist-8tsXn7bh/lib/python3.10/site-packages/sentry_sdk/integrations/django/middleware.py in __call__(177)
  return f(*args, **kwargs)

/home/youser/.local/share/virtualenvs/news-site-columnist-8tsXn7bh/lib/python3.10/site-packages/sentry_sdk/integrations/django/middleware.py in __call__(177)
  return f(*args, **kwargs)

/home/youser/.local/share/virtualenvs/news-site-columnist-8tsXn7bh/lib/python3.10/site-packages/sentry_sdk/integrations/django/middleware.py in __call__(177)
  return f(*args, **kwargs)

/home/youser/.local/share/virtualenvs/news-site-columnist-8tsXn7bh/lib/python3.10/site-packages/sentry_sdk/integrations/django/middleware.py in __call__(177)
  return f(*args, **kwargs)

/var/www/news-site-columnist/news/middleware/subdomain_middleare.py in __call__(22)
  response = self.get_response(request)

/home/youser/.local/share/virtualenvs/news-site-columnist-8tsXn7bh/lib/python3.10/site-packages/sentry_sdk/integrations/django/views.py in sentry_wrapped_callback(94)
  return callback(request, *args, **kwargs)

/var/www/news-site-columnist/news/views/post.py in subdomain_view_post(923)
  return GetPost.as_view()(

/home/youser/.local/share/virtualenvs/news-site-columnist-8tsXn7bh/lib/python3.10/site-packages/django/views/generic/base.py in view(104)
  return self.dispatch(request, *args, **kwargs)

/home/youser/.local/share/virtualenvs/news-site-columnist-8tsXn7bh/lib/python3.10/site-packages/django/views/generic/base.py in dispatch(143)
  return handler(request, *args, **kwargs)

/var/www/news-site-columnist/news/views/post.py in get(187)
  return super().get(request, *args, **kwargs)

/var/www/news-site-columnist/news/views/base.py in get(155)
  return super().get(request, *args, **kwargs)

/var/www/news-site-columnist/news/views/base.py in get(182)
  resp = super().get(request, *args, **kwargs)

/home/youser/.local/share/virtualenvs/news-site-columnist-8tsXn7bh/lib/python3.10/site-packages/django/views/generic/detail.py in get(109)
  context = self.get_context_data(object=self.object)

/var/www/news-site-columnist/news/views/post.py in get_context_data(148)
  data["tlp"] = get_telegram_link_replacement()

/var/www/news-site-columnist/news/utils.py in get_telegram_link_replacement(148)
  return Post.objects.get(id=tlp.post_id)

/home/youser/.local/share/virtualenvs/news-site-columnist-8tsXn7bh/lib/python3.10/site-packages/modeltranslation/manager.py in get_queryset(633)
  qs = super().get_queryset()

/home/youser/.local/share/virtualenvs/news-site-columnist-8tsXn7bh/lib/python3.10/site-packages/modeltranslation/manager.py in get_queryset(607)
  qs = super().get_queryset()

/var/www/news-site-columnist/news/models/news.py in get_queryset(51)
  qs = super().get_queryset()

/var/www/news-site-columnist/news/models/news.py in get_queryset(566)
  self.context_post_ct = ContentType.objects.get(app_label="context_section", model="columnpost")

SELECT "post"."created_at",
       "post"."seo_title",
       "post"."seo_title_uk",
       "post"."seo_title_en",
       "post"."seo_title_ru",
       "post"."seo_description",
       "post"."seo_description_uk",
       "post"."seo_description_en",
       "post"."seo_description_ru",
       "post"."seo_keywords",
       "post"."seo_keywords_uk",
       "post"."seo_keywords_en",
       "post"."seo_keywords_ru",
       "post"."seo_header_one",
       "post"."seo_header_one_uk",
       "post"."seo_header_one_en",
       "post"."seo_header_one_ru",
       "post"."created_by",
       "post"."updated_by",
       "post"."polymorphic_ctype_id",
       "post"."id",
       "post"."head",
       "post"."head_uk",
       "post"."head_en",
       "post"."head_ru",
       "post"."sub_head",
       "post"."sub_head_uk",
       "post"."sub_head_en",
       "post"."sub_head_ru",
       "post"."content",
       "post"."content_uk",
       "post"."content_en",
       "post"."content_ru",
       "post"."author_id",
       "post"."seo_tag_id",
       "post"."publish_at",
       "post"."translated_at",
       "post"."updated_at",
       "post"."show_updated_at",
       "post"."slug",
       "post"."slug_uk",
       "post"."slug_en",
       "post"."slug_ru",
       "post"."aplication_type",
       "post"."last_editor_id",
       "post"."status",
       "post"."show_at_homepage",
       "post"."show_at_news_feed",
       "post"."show_on_broadcast_page",
       "post"."is_category_top",
       "post"."is_homepage_top",
       "post"."is_homepage_top_uk",
       "post"."is_homepage_top_en",
       "post"."is_homepage_top_ru",
       "post"."id_sponsored",
       "post"."is_lightning",
       "post"."is_exclusive",
       "post"."is_photo_report",
       "post"."is_post",
       "post"."is_article",
       "post"."main_page_img_full_width",
       "post"."need_hires",
       "post"."has_photo",
       "post"."has_video",
       "post"."is_editors_choise",
       "post"."show_in_sidebar",
       "post"."category_id",
       "post"."old_category_id",
       "post"."past_region",
       "post"."year_of_war",
       "post"."breaking_news",
       "post"."without_img",
       "post"."show_stories_block",
       "post"."display_type",
       "post"."image",
       "post"."image_alt",
       "post"."image_alt_uk",
       "post"."image_alt_en",
       "post"."image_alt_ru",
       "post"."seo_image",
       "post"."text_under_image",
       "post"."text_under_image_uk",
       "post"."text_under_image_en",
       "post"."text_under_image_ru",
       "post"."image_source",
       "post"."image_source_uk",
       "post"."image_source_en",
       "post"."image_source_ru",
       "post"."theme_id",
       "post"."is_nofollow_disabled",
       "post"."audio_content_id",
       "post"."audio_content_uk_id",
       "post"."audio_content_en_id",
       "post"."audio_content_ru_id",
       "post"."views",
       "post"."views_uk",
       "post"."views_ru",
       "post"."views_analytics",
       "post"."views_analytics_ru",
       "post"."views_analytics_uk",
       "post"."views_analytics_at",
       "post"."busy_by_id",
       "post"."image_editor_id",
       "post"."release_editor_id",
       "post"."special_type",
       "post"."head_longer_than_100",
       "post"."uk_has_translation",
       "post"."ru_has_translation",
       "post"."en_has_translation",
       "post"."homepage_slider_text",
       "post"."homepage_slider_text_uk",
       "post"."homepage_slider_text_en",
       "post"."homepage_slider_text_ru"
  FROM "post"
 WHERE (NOT ("post"."polymorphic_ctype_id" = 64 AND "post"."polymorphic_ctype_id" IS NOT NULL) AND NOT ("post"."polymorphic_ctype_id" = 81 AND "post"."polymorphic_ctype_id" IS NOT NULL) AND "post"."uk_has_translation" AND "post"."id" = 259281)
 LIMIT 21
SELECT ••• FROM "post" WHERE (NOT ("post"."polymorphic_ctype_id" = 64 AND "post"."polymorphic_ctype_id" IS NOT NULL) AND NOT ("post"."polymorphic_ctype_id" = 81 AND "post"."polymorphic_ctype_id" IS NOT NULL) AND "post"."uk_has_translation" AND "post"."id" = 259281) LIMIT 21
0,83

Connection: default

Transaction status: Idle

/home/youser/.local/share/virtualenvs/news-site-columnist-8tsXn7bh/bin/gunicorn in <module>(8)
  sys.exit(run())

/home/youser/.local/share/virtualenvs/news-site-columnist-8tsXn7bh/lib/python3.10/site-packages/gunicorn/app/wsgiapp.py in run(66)
  WSGIApplication("%(prog)s [OPTIONS] [APP_MODULE]", prog=prog).run()

/home/youser/.local/share/virtualenvs/news-site-columnist-8tsXn7bh/lib/python3.10/site-packages/gunicorn/app/base.py in run(235)
  super().run()

/home/youser/.local/share/virtualenvs/news-site-columnist-8tsXn7bh/lib/python3.10/site-packages/gunicorn/app/base.py in run(71)
  Arbiter(self).run()

/home/youser/.local/share/virtualenvs/news-site-columnist-8tsXn7bh/lib/python3.10/site-packages/gunicorn/arbiter.py in run(210)
  self.manage_workers()

/home/youser/.local/share/virtualenvs/news-site-columnist-8tsXn7bh/lib/python3.10/site-packages/gunicorn/arbiter.py in manage_workers(570)
  self.spawn_workers()

/home/youser/.local/share/virtualenvs/news-site-columnist-8tsXn7bh/lib/python3.10/site-packages/gunicorn/arbiter.py in spawn_workers(641)
  self.spawn_worker()

/home/youser/.local/share/virtualenvs/news-site-columnist-8tsXn7bh/lib/python3.10/site-packages/gunicorn/arbiter.py in spawn_worker(608)
  worker.init_process()

/home/youser/.local/share/virtualenvs/news-site-columnist-8tsXn7bh/lib/python3.10/site-packages/gunicorn/workers/base.py in init_process(143)
  self.run()

/home/youser/.local/share/virtualenvs/news-site-columnist-8tsXn7bh/lib/python3.10/site-packages/gunicorn/workers/sync.py in run(125)
  self.run_for_one(timeout)

/home/youser/.local/share/virtualenvs/news-site-columnist-8tsXn7bh/lib/python3.10/site-packages/gunicorn/workers/sync.py in run_for_one(69)
  self.accept(listener)

/home/youser/.local/share/virtualenvs/news-site-columnist-8tsXn7bh/lib/python3.10/site-packages/gunicorn/workers/sync.py in accept(31)
  self.handle(listener, client, addr)

/home/youser/.local/share/virtualenvs/news-site-columnist-8tsXn7bh/lib/python3.10/site-packages/gunicorn/workers/sync.py in handle(134)
  self.handle_request(listener, req, client, addr)

/home/youser/.local/share/virtualenvs/news-site-columnist-8tsXn7bh/lib/python3.10/site-packages/gunicorn/workers/sync.py in handle_request(177)
  respiter = self.wsgi(environ, resp.start_response)

/home/youser/.local/share/virtualenvs/news-site-columnist-8tsXn7bh/lib/python3.10/site-packages/sentry_sdk/utils.py in runner(1864)
  return sentry_patched_function(*args, **kwargs)

/home/youser/.local/share/virtualenvs/news-site-columnist-8tsXn7bh/lib/python3.10/site-packages/sentry_sdk/integrations/django/__init__.py in sentry_patched_wsgi_handler(191)
  return middleware(environ, start_response)

/home/youser/.local/share/virtualenvs/news-site-columnist-8tsXn7bh/lib/python3.10/site-packages/sentry_sdk/integrations/wsgi.py in __call__(132)
  response = self.app(

/home/youser/.local/share/virtualenvs/news-site-columnist-8tsXn7bh/lib/python3.10/site-packages/sentry_sdk/integrations/django/__init__.py in sentry_patched_get_response(478)
  rv = old_get_response(self, request)

/home/youser/.local/share/virtualenvs/news-site-columnist-8tsXn7bh/lib/python3.10/site-packages/sentry_sdk/integrations/django/middleware.py in __call__(177)
  return f(*args, **kwargs)

/home/youser/.local/share/virtualenvs/news-site-columnist-8tsXn7bh/lib/python3.10/site-packages/sentry_sdk/integrations/django/middleware.py in __call__(177)
  return f(*args, **kwargs)

/var/www/news-site-columnist/redirects/middleware/redirect_middleware.py in __call__(17)
  return self.get_response(request)

/home/youser/.local/share/virtualenvs/news-site-columnist-8tsXn7bh/lib/python3.10/site-packages/sentry_sdk/integrations/django/middleware.py in __call__(177)
  return f(*args, **kwargs)

/home/youser/.local/share/virtualenvs/news-site-columnist-8tsXn7bh/lib/python3.10/site-packages/sentry_sdk/integrations/django/middleware.py in __call__(177)
  return f(*args, **kwargs)

/home/youser/.local/share/virtualenvs/news-site-columnist-8tsXn7bh/lib/python3.10/site-packages/sentry_sdk/integrations/django/middleware.py in __call__(177)
  return f(*args, **kwargs)

/home/youser/.local/share/virtualenvs/news-site-columnist-8tsXn7bh/lib/python3.10/site-packages/sentry_sdk/integrations/django/middleware.py in __call__(177)
  return f(*args, **kwargs)

/home/youser/.local/share/virtualenvs/news-site-columnist-8tsXn7bh/lib/python3.10/site-packages/corsheaders/middleware.py in __call__(53)
  result = self.get_response(request)

/home/youser/.local/share/virtualenvs/news-site-columnist-8tsXn7bh/lib/python3.10/site-packages/sentry_sdk/integrations/django/middleware.py in __call__(177)
  return f(*args, **kwargs)

/home/youser/.local/share/virtualenvs/news-site-columnist-8tsXn7bh/lib/python3.10/site-packages/django_user_agents/middleware.py in __call__(14)
  return self.get_response(request)

/home/youser/.local/share/virtualenvs/news-site-columnist-8tsXn7bh/lib/python3.10/site-packages/sentry_sdk/integrations/django/middleware.py in __call__(177)
  return f(*args, **kwargs)

/home/youser/.local/share/virtualenvs/news-site-columnist-8tsXn7bh/lib/python3.10/site-packages/sentry_sdk/integrations/django/middleware.py in __call__(177)
  return f(*args, **kwargs)

/home/youser/.local/share/virtualenvs/news-site-columnist-8tsXn7bh/lib/python3.10/site-packages/sentry_sdk/integrations/django/middleware.py in __call__(177)
  return f(*args, **kwargs)

/home/youser/.local/share/virtualenvs/news-site-columnist-8tsXn7bh/lib/python3.10/site-packages/sentry_sdk/integrations/django/middleware.py in __call__(177)
  return f(*args, **kwargs)

/home/youser/.local/share/virtualenvs/news-site-columnist-8tsXn7bh/lib/python3.10/site-packages/sentry_sdk/integrations/django/middleware.py in __call__(177)
  return f(*args, **kwargs)

/home/youser/.local/share/virtualenvs/news-site-columnist-8tsXn7bh/lib/python3.10/site-packages/sentry_sdk/integrations/django/middleware.py in __call__(177)
  return f(*args, **kwargs)

/home/youser/.local/share/virtualenvs/news-site-columnist-8tsXn7bh/lib/python3.10/site-packages/sentry_sdk/integrations/django/middleware.py in __call__(177)
  return f(*args, **kwargs)

/home/youser/.local/share/virtualenvs/news-site-columnist-8tsXn7bh/lib/python3.10/site-packages/sentry_sdk/integrations/django/middleware.py in __call__(177)
  return f(*args, **kwargs)

/var/www/news-site-columnist/news/middleware/subdomain_middleare.py in __call__(22)
  response = self.get_response(request)

/home/youser/.local/share/virtualenvs/news-site-columnist-8tsXn7bh/lib/python3.10/site-packages/sentry_sdk/integrations/django/views.py in sentry_wrapped_callback(94)
  return callback(request, *args, **kwargs)

/var/www/news-site-columnist/news/views/post.py in subdomain_view_post(923)
  return GetPost.as_view()(

/home/youser/.local/share/virtualenvs/news-site-columnist-8tsXn7bh/lib/python3.10/site-packages/django/views/generic/base.py in view(104)
  return self.dispatch(request, *args, **kwargs)

/home/youser/.local/share/virtualenvs/news-site-columnist-8tsXn7bh/lib/python3.10/site-packages/django/views/generic/base.py in dispatch(143)
  return handler(request, *args, **kwargs)

/var/www/news-site-columnist/news/views/post.py in get(187)
  return super().get(request, *args, **kwargs)

/var/www/news-site-columnist/news/views/base.py in get(155)
  return super().get(request, *args, **kwargs)

/var/www/news-site-columnist/news/views/base.py in get(182)
  resp = super().get(request, *args, **kwargs)

/home/youser/.local/share/virtualenvs/news-site-columnist-8tsXn7bh/lib/python3.10/site-packages/django/views/generic/detail.py in get(109)
  context = self.get_context_data(object=self.object)

/var/www/news-site-columnist/news/views/post.py in get_context_data(148)
  data["tlp"] = get_telegram_link_replacement()

/var/www/news-site-columnist/news/utils.py in get_telegram_link_replacement(148)
  return Post.objects.get(id=tlp.post_id)

/home/youser/.local/share/virtualenvs/news-site-columnist-8tsXn7bh/lib/python3.10/site-packages/polymorphic/query.py in _polymorphic_iterator(57)
  o = next(base_iter)

SELECT "post"."created_at",
       "post"."seo_title",
       "post"."seo_title_uk",
       "post"."seo_title_en",
       "post"."seo_title_ru",
       "post"."seo_description",
       "post"."seo_description_uk",
       "post"."seo_description_en",
       "post"."seo_description_ru",
       "post"."seo_keywords",
       "post"."seo_keywords_uk",
       "post"."seo_keywords_en",
       "post"."seo_keywords_ru",
       "post"."seo_header_one",
       "post"."seo_header_one_uk",
       "post"."seo_header_one_en",
       "post"."seo_header_one_ru",
       "post"."created_by",
       "post"."updated_by",
       "post"."polymorphic_ctype_id",
       "post"."id",
       "post"."head",
       "post"."head_uk",
       "post"."head_en",
       "post"."head_ru",
       "post"."sub_head",
       "post"."sub_head_uk",
       "post"."sub_head_en",
       "post"."sub_head_ru",
       "post"."content",
       "post"."content_uk",
       "post"."content_en",
       "post"."content_ru",
       "post"."author_id",
       "post"."seo_tag_id",
       "post"."publish_at",
       "post"."translated_at",
       "post"."updated_at",
       "post"."show_updated_at",
       "post"."slug",
       "post"."slug_uk",
       "post"."slug_en",
       "post"."slug_ru",
       "post"."aplication_type",
       "post"."last_editor_id",
       "post"."status",
       "post"."show_at_homepage",
       "post"."show_at_news_feed",
       "post"."show_on_broadcast_page",
       "post"."is_category_top",
       "post"."is_homepage_top",
       "post"."is_homepage_top_uk",
       "post"."is_homepage_top_en",
       "post"."is_homepage_top_ru",
       "post"."id_sponsored",
       "post"."is_lightning",
       "post"."is_exclusive",
       "post"."is_photo_report",
       "post"."is_post",
       "post"."is_article",
       "post"."main_page_img_full_width",
       "post"."need_hires",
       "post"."has_photo",
       "post"."has_video",
       "post"."is_editors_choise",
       "post"."show_in_sidebar",
       "post"."category_id",
       "post"."old_category_id",
       "post"."past_region",
       "post"."year_of_war",
       "post"."breaking_news",
       "post"."without_img",
       "post"."show_stories_block",
       "post"."display_type",
       "post"."image",
       "post"."image_alt",
       "post"."image_alt_uk",
       "post"."image_alt_en",
       "post"."image_alt_ru",
       "post"."seo_image",
       "post"."text_under_image",
       "post"."text_under_image_uk",
       "post"."text_under_image_en",
       "post"."text_under_image_ru",
       "post"."image_source",
       "post"."image_source_uk",
       "post"."image_source_en",
       "post"."image_source_ru",
       "post"."theme_id",
       "post"."is_nofollow_disabled",
       "post"."audio_content_id",
       "post"."audio_content_uk_id",
       "post"."audio_content_en_id",
       "post"."audio_content_ru_id",
       "post"."views",
       "post"."views_uk",
       "post"."views_ru",
       "post"."views_analytics",
       "post"."views_analytics_ru",
       "post"."views_analytics_uk",
       "post"."views_analytics_at",
       "post"."busy_by_id",
       "post"."image_editor_id",
       "post"."release_editor_id",
       "post"."special_type",
       "post"."head_longer_than_100",
       "post"."uk_has_translation",
       "post"."ru_has_translation",
       "post"."en_has_translation",
       "post"."homepage_slider_text",
       "post"."homepage_slider_text_uk",
       "post"."homepage_slider_text_en",
       "post"."homepage_slider_text_ru",
       "news_videopost"."post_ptr_id",
       "news_videopost"."youtube_video_url",
       "news_videopost"."is_most_important",
       "news_videopost"."additional_image",
       "news_videopost"."video_data",
       "news_videopost"."video_project_id",
       "news_videopost"."is_icon_hidden",
       "news_videopost"."is_custom_image"
  FROM "news_videopost"
 INNER JOIN "post"
    ON ("news_videopost"."post_ptr_id" = "post"."id")
 WHERE "news_videopost"."post_ptr_id" IN (259281)
SELECT ••• FROM "news_videopost" INNER JOIN "post" ON ("news_videopost"."post_ptr_id" = "post"."id") WHERE "news_videopost"."post_ptr_id" IN (259281)
1,25

Connection: default

Transaction status: Idle

/home/youser/.local/share/virtualenvs/news-site-columnist-8tsXn7bh/bin/gunicorn in <module>(8)
  sys.exit(run())

/home/youser/.local/share/virtualenvs/news-site-columnist-8tsXn7bh/lib/python3.10/site-packages/gunicorn/app/wsgiapp.py in run(66)
  WSGIApplication("%(prog)s [OPTIONS] [APP_MODULE]", prog=prog).run()

/home/youser/.local/share/virtualenvs/news-site-columnist-8tsXn7bh/lib/python3.10/site-packages/gunicorn/app/base.py in run(235)
  super().run()

/home/youser/.local/share/virtualenvs/news-site-columnist-8tsXn7bh/lib/python3.10/site-packages/gunicorn/app/base.py in run(71)
  Arbiter(self).run()

/home/youser/.local/share/virtualenvs/news-site-columnist-8tsXn7bh/lib/python3.10/site-packages/gunicorn/arbiter.py in run(210)
  self.manage_workers()

/home/youser/.local/share/virtualenvs/news-site-columnist-8tsXn7bh/lib/python3.10/site-packages/gunicorn/arbiter.py in manage_workers(570)
  self.spawn_workers()

/home/youser/.local/share/virtualenvs/news-site-columnist-8tsXn7bh/lib/python3.10/site-packages/gunicorn/arbiter.py in spawn_workers(641)
  self.spawn_worker()

/home/youser/.local/share/virtualenvs/news-site-columnist-8tsXn7bh/lib/python3.10/site-packages/gunicorn/arbiter.py in spawn_worker(608)
  worker.init_process()

/home/youser/.local/share/virtualenvs/news-site-columnist-8tsXn7bh/lib/python3.10/site-packages/gunicorn/workers/base.py in init_process(143)
  self.run()

/home/youser/.local/share/virtualenvs/news-site-columnist-8tsXn7bh/lib/python3.10/site-packages/gunicorn/workers/sync.py in run(125)
  self.run_for_one(timeout)

/home/youser/.local/share/virtualenvs/news-site-columnist-8tsXn7bh/lib/python3.10/site-packages/gunicorn/workers/sync.py in run_for_one(69)
  self.accept(listener)

/home/youser/.local/share/virtualenvs/news-site-columnist-8tsXn7bh/lib/python3.10/site-packages/gunicorn/workers/sync.py in accept(31)
  self.handle(listener, client, addr)

/home/youser/.local/share/virtualenvs/news-site-columnist-8tsXn7bh/lib/python3.10/site-packages/gunicorn/workers/sync.py in handle(134)
  self.handle_request(listener, req, client, addr)

/home/youser/.local/share/virtualenvs/news-site-columnist-8tsXn7bh/lib/python3.10/site-packages/gunicorn/workers/sync.py in handle_request(177)
  respiter = self.wsgi(environ, resp.start_response)

/home/youser/.local/share/virtualenvs/news-site-columnist-8tsXn7bh/lib/python3.10/site-packages/sentry_sdk/utils.py in runner(1864)
  return sentry_patched_function(*args, **kwargs)

/home/youser/.local/share/virtualenvs/news-site-columnist-8tsXn7bh/lib/python3.10/site-packages/sentry_sdk/integrations/django/__init__.py in sentry_patched_wsgi_handler(191)
  return middleware(environ, start_response)

/home/youser/.local/share/virtualenvs/news-site-columnist-8tsXn7bh/lib/python3.10/site-packages/sentry_sdk/integrations/wsgi.py in __call__(132)
  response = self.app(

/home/youser/.local/share/virtualenvs/news-site-columnist-8tsXn7bh/lib/python3.10/site-packages/sentry_sdk/integrations/django/__init__.py in sentry_patched_get_response(478)
  rv = old_get_response(self, request)

/home/youser/.local/share/virtualenvs/news-site-columnist-8tsXn7bh/lib/python3.10/site-packages/sentry_sdk/integrations/django/middleware.py in __call__(177)
  return f(*args, **kwargs)

/home/youser/.local/share/virtualenvs/news-site-columnist-8tsXn7bh/lib/python3.10/site-packages/sentry_sdk/integrations/django/middleware.py in __call__(177)
  return f(*args, **kwargs)

/var/www/news-site-columnist/redirects/middleware/redirect_middleware.py in __call__(17)
  return self.get_response(request)

/home/youser/.local/share/virtualenvs/news-site-columnist-8tsXn7bh/lib/python3.10/site-packages/sentry_sdk/integrations/django/middleware.py in __call__(177)
  return f(*args, **kwargs)

/home/youser/.local/share/virtualenvs/news-site-columnist-8tsXn7bh/lib/python3.10/site-packages/sentry_sdk/integrations/django/middleware.py in __call__(177)
  return f(*args, **kwargs)

/home/youser/.local/share/virtualenvs/news-site-columnist-8tsXn7bh/lib/python3.10/site-packages/sentry_sdk/integrations/django/middleware.py in __call__(177)
  return f(*args, **kwargs)

/home/youser/.local/share/virtualenvs/news-site-columnist-8tsXn7bh/lib/python3.10/site-packages/sentry_sdk/integrations/django/middleware.py in __call__(177)
  return f(*args, **kwargs)

/home/youser/.local/share/virtualenvs/news-site-columnist-8tsXn7bh/lib/python3.10/site-packages/corsheaders/middleware.py in __call__(53)
  result = self.get_response(request)

/home/youser/.local/share/virtualenvs/news-site-columnist-8tsXn7bh/lib/python3.10/site-packages/sentry_sdk/integrations/django/middleware.py in __call__(177)
  return f(*args, **kwargs)

/home/youser/.local/share/virtualenvs/news-site-columnist-8tsXn7bh/lib/python3.10/site-packages/django_user_agents/middleware.py in __call__(14)
  return self.get_response(request)

/home/youser/.local/share/virtualenvs/news-site-columnist-8tsXn7bh/lib/python3.10/site-packages/sentry_sdk/integrations/django/middleware.py in __call__(177)
  return f(*args, **kwargs)

/home/youser/.local/share/virtualenvs/news-site-columnist-8tsXn7bh/lib/python3.10/site-packages/sentry_sdk/integrations/django/middleware.py in __call__(177)
  return f(*args, **kwargs)

/home/youser/.local/share/virtualenvs/news-site-columnist-8tsXn7bh/lib/python3.10/site-packages/sentry_sdk/integrations/django/middleware.py in __call__(177)
  return f(*args, **kwargs)

/home/youser/.local/share/virtualenvs/news-site-columnist-8tsXn7bh/lib/python3.10/site-packages/sentry_sdk/integrations/django/middleware.py in __call__(177)
  return f(*args, **kwargs)

/home/youser/.local/share/virtualenvs/news-site-columnist-8tsXn7bh/lib/python3.10/site-packages/sentry_sdk/integrations/django/middleware.py in __call__(177)
  return f(*args, **kwargs)

/home/youser/.local/share/virtualenvs/news-site-columnist-8tsXn7bh/lib/python3.10/site-packages/sentry_sdk/integrations/django/middleware.py in __call__(177)
  return f(*args, **kwargs)

/home/youser/.local/share/virtualenvs/news-site-columnist-8tsXn7bh/lib/python3.10/site-packages/sentry_sdk/integrations/django/middleware.py in __call__(177)
  return f(*args, **kwargs)

/home/youser/.local/share/virtualenvs/news-site-columnist-8tsXn7bh/lib/python3.10/site-packages/sentry_sdk/integrations/django/middleware.py in __call__(177)
  return f(*args, **kwargs)

/var/www/news-site-columnist/news/middleware/subdomain_middleare.py in __call__(22)
  response = self.get_response(request)

/home/youser/.local/share/virtualenvs/news-site-columnist-8tsXn7bh/lib/python3.10/site-packages/sentry_sdk/integrations/django/views.py in sentry_wrapped_callback(94)
  return callback(request, *args, **kwargs)

/var/www/news-site-columnist/news/views/post.py in subdomain_view_post(923)
  return GetPost.as_view()(

/home/youser/.local/share/virtualenvs/news-site-columnist-8tsXn7bh/lib/python3.10/site-packages/django/views/generic/base.py in view(104)
  return self.dispatch(request, *args, **kwargs)

/home/youser/.local/share/virtualenvs/news-site-columnist-8tsXn7bh/lib/python3.10/site-packages/django/views/generic/base.py in dispatch(143)
  return handler(request, *args, **kwargs)

/var/www/news-site-columnist/news/views/post.py in get(187)
  return super().get(request, *args, **kwargs)

/var/www/news-site-columnist/news/views/base.py in get(155)
  return super().get(request, *args, **kwargs)

/var/www/news-site-columnist/news/views/base.py in get(182)
  resp = super().get(request, *args, **kwargs)

/home/youser/.local/share/virtualenvs/news-site-columnist-8tsXn7bh/lib/python3.10/site-packages/django/views/generic/detail.py in get(109)
  context = self.get_context_data(object=self.object)

/var/www/news-site-columnist/news/views/post.py in get_context_data(148)
  data["tlp"] = get_telegram_link_replacement()

/var/www/news-site-columnist/news/utils.py in get_telegram_link_replacement(148)
  return Post.objects.get(id=tlp.post_id)

/home/youser/.local/share/virtualenvs/news-site-columnist-8tsXn7bh/lib/python3.10/site-packages/polymorphic/query.py in _polymorphic_iterator(63)
  real_results = self.queryset._get_real_instances(base_result_objects)

/home/youser/.local/share/virtualenvs/news-site-columnist-8tsXn7bh/lib/python3.10/site-packages/polymorphic/query.py in _get_real_instances(439)
  real_objects_dict = {

SELECT "category"."id",
       "category"."created_at",
       "category"."updated_at",
       "category"."seo_title",
       "category"."seo_title_uk",
       "category"."seo_title_en",
       "category"."seo_title_ru",
       "category"."seo_description",
       "category"."seo_description_uk",
       "category"."seo_description_en",
       "category"."seo_description_ru",
       "category"."seo_keywords",
       "category"."seo_keywords_uk",
       "category"."seo_keywords_en",
       "category"."seo_keywords_ru",
       "category"."seo_header_one",
       "category"."seo_header_one_uk",
       "category"."seo_header_one_en",
       "category"."seo_header_one_ru",
       "category"."seo_news_title",
       "category"."seo_news_title_uk",
       "category"."seo_news_title_en",
       "category"."seo_news_title_ru",
       "category"."seo_news_description",
       "category"."seo_news_description_uk",
       "category"."seo_news_description_en",
       "category"."seo_news_description_ru",
       "category"."subdomain",
       "category"."parent_id",
       "category"."image",
       "category"."is_active",
       "category"."is_rss_active",
       "category"."is_interesting",
       "category"."ticker_rss_active",
       "category"."show_home",
       "category"."show_home_en",
       "category"."show_video",
       "category"."show_menu",
       "category"."show_menu_uk",
       "category"."show_menu_en",
       "category"."show_menu_ru",
       "category"."show_footer",
       "category"."show_menu_in_en",
       "category"."show_footer_in_en",
       "category"."show_in_search",
       "category"."show_in_header",
       "category"."show_in_header_uk",
       "category"."show_in_header_en",
       "category"."show_in_header_ru",
       "category"."seo_tag_id",
       "category"."sort_weight",
       "category"."sort_weight_en",
       "category"."header_sort_weight",
       "category"."header_sort_weight_uk",
       "category"."header_sort_weight_en",
       "category"."header_sort_weight_ru",
       "category"."footer_sort_weight",
       "category"."menu_sort_weight",
       "category"."name",
       "category"."name_uk",
       "category"."name_en",
       "category"."name_ru",
       "category"."slug",
       "category"."description",
       "category"."description_uk",
       "category"."description_en",
       "category"."description_ru",
       "category"."fb_link",
       "category"."tg_link",
       "category"."show_banner",
       "category"."uk_has_translation",
       "category"."ru_has_translation",
       "category"."en_has_translation",
       "category"."has_infinite_scroll",
       "category"."_show_home_without_subdomain",
       "category"."_show_home_without_subdomain_en",
       "category"."background_id",
       "category"."use_old_design",
       "category"."use_old_design_for_posts",
       "category"."is_context_category",
       "category"."show_stories_on_main",
       "category"."show_posts_table_of_contents",
       "category"."svg_icon"
  FROM "category"
 WHERE "category"."id" = 41
 LIMIT 21
SELECT ••• FROM "category" WHERE "category"."id" = 41 LIMIT 21
4 similar queries. Duplicated 3 times.
0,71

Connection: default

Transaction status: Idle

/home/youser/.local/share/virtualenvs/news-site-columnist-8tsXn7bh/bin/gunicorn in <module>(8)
  sys.exit(run())

/home/youser/.local/share/virtualenvs/news-site-columnist-8tsXn7bh/lib/python3.10/site-packages/gunicorn/app/wsgiapp.py in run(66)
  WSGIApplication("%(prog)s [OPTIONS] [APP_MODULE]", prog=prog).run()

/home/youser/.local/share/virtualenvs/news-site-columnist-8tsXn7bh/lib/python3.10/site-packages/gunicorn/app/base.py in run(235)
  super().run()

/home/youser/.local/share/virtualenvs/news-site-columnist-8tsXn7bh/lib/python3.10/site-packages/gunicorn/app/base.py in run(71)
  Arbiter(self).run()

/home/youser/.local/share/virtualenvs/news-site-columnist-8tsXn7bh/lib/python3.10/site-packages/gunicorn/arbiter.py in run(210)
  self.manage_workers()

/home/youser/.local/share/virtualenvs/news-site-columnist-8tsXn7bh/lib/python3.10/site-packages/gunicorn/arbiter.py in manage_workers(570)
  self.spawn_workers()

/home/youser/.local/share/virtualenvs/news-site-columnist-8tsXn7bh/lib/python3.10/site-packages/gunicorn/arbiter.py in spawn_workers(641)
  self.spawn_worker()

/home/youser/.local/share/virtualenvs/news-site-columnist-8tsXn7bh/lib/python3.10/site-packages/gunicorn/arbiter.py in spawn_worker(608)
  worker.init_process()

/home/youser/.local/share/virtualenvs/news-site-columnist-8tsXn7bh/lib/python3.10/site-packages/gunicorn/workers/base.py in init_process(143)
  self.run()

/home/youser/.local/share/virtualenvs/news-site-columnist-8tsXn7bh/lib/python3.10/site-packages/gunicorn/workers/sync.py in run(125)
  self.run_for_one(timeout)

/home/youser/.local/share/virtualenvs/news-site-columnist-8tsXn7bh/lib/python3.10/site-packages/gunicorn/workers/sync.py in run_for_one(69)
  self.accept(listener)

/home/youser/.local/share/virtualenvs/news-site-columnist-8tsXn7bh/lib/python3.10/site-packages/gunicorn/workers/sync.py in accept(31)
  self.handle(listener, client, addr)

/home/youser/.local/share/virtualenvs/news-site-columnist-8tsXn7bh/lib/python3.10/site-packages/gunicorn/workers/sync.py in handle(134)
  self.handle_request(listener, req, client, addr)

/home/youser/.local/share/virtualenvs/news-site-columnist-8tsXn7bh/lib/python3.10/site-packages/gunicorn/workers/sync.py in handle_request(177)
  respiter = self.wsgi(environ, resp.start_response)

/home/youser/.local/share/virtualenvs/news-site-columnist-8tsXn7bh/lib/python3.10/site-packages/sentry_sdk/utils.py in runner(1864)
  return sentry_patched_function(*args, **kwargs)

/home/youser/.local/share/virtualenvs/news-site-columnist-8tsXn7bh/lib/python3.10/site-packages/sentry_sdk/integrations/django/__init__.py in sentry_patched_wsgi_handler(191)
  return middleware(environ, start_response)

/home/youser/.local/share/virtualenvs/news-site-columnist-8tsXn7bh/lib/python3.10/site-packages/sentry_sdk/integrations/wsgi.py in __call__(132)
  response = self.app(

/home/youser/.local/share/virtualenvs/news-site-columnist-8tsXn7bh/lib/python3.10/site-packages/sentry_sdk/integrations/django/__init__.py in sentry_patched_get_response(478)
  rv = old_get_response(self, request)

/home/youser/.local/share/virtualenvs/news-site-columnist-8tsXn7bh/lib/python3.10/site-packages/sentry_sdk/integrations/django/middleware.py in __call__(177)
  return f(*args, **kwargs)

/home/youser/.local/share/virtualenvs/news-site-columnist-8tsXn7bh/lib/python3.10/site-packages/sentry_sdk/integrations/django/middleware.py in __call__(177)
  return f(*args, **kwargs)

/var/www/news-site-columnist/redirects/middleware/redirect_middleware.py in __call__(17)
  return self.get_response(request)

/home/youser/.local/share/virtualenvs/news-site-columnist-8tsXn7bh/lib/python3.10/site-packages/sentry_sdk/integrations/django/middleware.py in __call__(177)
  return f(*args, **kwargs)

/home/youser/.local/share/virtualenvs/news-site-columnist-8tsXn7bh/lib/python3.10/site-packages/sentry_sdk/integrations/django/middleware.py in __call__(177)
  return f(*args, **kwargs)

/home/youser/.local/share/virtualenvs/news-site-columnist-8tsXn7bh/lib/python3.10/site-packages/sentry_sdk/integrations/django/middleware.py in __call__(177)
  return f(*args, **kwargs)

/home/youser/.local/share/virtualenvs/news-site-columnist-8tsXn7bh/lib/python3.10/site-packages/sentry_sdk/integrations/django/middleware.py in __call__(177)
  return f(*args, **kwargs)

/home/youser/.local/share/virtualenvs/news-site-columnist-8tsXn7bh/lib/python3.10/site-packages/corsheaders/middleware.py in __call__(53)
  result = self.get_response(request)

/home/youser/.local/share/virtualenvs/news-site-columnist-8tsXn7bh/lib/python3.10/site-packages/sentry_sdk/integrations/django/middleware.py in __call__(177)
  return f(*args, **kwargs)

/home/youser/.local/share/virtualenvs/news-site-columnist-8tsXn7bh/lib/python3.10/site-packages/django_user_agents/middleware.py in __call__(14)
  return self.get_response(request)

/home/youser/.local/share/virtualenvs/news-site-columnist-8tsXn7bh/lib/python3.10/site-packages/sentry_sdk/integrations/django/middleware.py in __call__(177)
  return f(*args, **kwargs)

/home/youser/.local/share/virtualenvs/news-site-columnist-8tsXn7bh/lib/python3.10/site-packages/sentry_sdk/integrations/django/middleware.py in __call__(177)
  return f(*args, **kwargs)

/home/youser/.local/share/virtualenvs/news-site-columnist-8tsXn7bh/lib/python3.10/site-packages/sentry_sdk/integrations/django/middleware.py in __call__(177)
  return f(*args, **kwargs)

/home/youser/.local/share/virtualenvs/news-site-columnist-8tsXn7bh/lib/python3.10/site-packages/sentry_sdk/integrations/django/middleware.py in __call__(177)
  return f(*args, **kwargs)

/home/youser/.local/share/virtualenvs/news-site-columnist-8tsXn7bh/lib/python3.10/site-packages/sentry_sdk/integrations/django/middleware.py in __call__(177)
  return f(*args, **kwargs)

/home/youser/.local/share/virtualenvs/news-site-columnist-8tsXn7bh/lib/python3.10/site-packages/sentry_sdk/integrations/django/middleware.py in __call__(177)
  return f(*args, **kwargs)

/home/youser/.local/share/virtualenvs/news-site-columnist-8tsXn7bh/lib/python3.10/site-packages/sentry_sdk/integrations/django/middleware.py in __call__(177)
  return f(*args, **kwargs)

/home/youser/.local/share/virtualenvs/news-site-columnist-8tsXn7bh/lib/python3.10/site-packages/sentry_sdk/integrations/django/middleware.py in __call__(177)
  return f(*args, **kwargs)

/var/www/news-site-columnist/news/middleware/subdomain_middleare.py in __call__(22)
  response = self.get_response(request)

/home/youser/.local/share/virtualenvs/news-site-columnist-8tsXn7bh/lib/python3.10/site-packages/sentry_sdk/integrations/django/views.py in sentry_wrapped_callback(94)
  return callback(request, *args, **kwargs)

/var/www/news-site-columnist/news/views/post.py in subdomain_view_post(923)
  return GetPost.as_view()(

/home/youser/.local/share/virtualenvs/news-site-columnist-8tsXn7bh/lib/python3.10/site-packages/django/views/generic/base.py in view(104)
  return self.dispatch(request, *args, **kwargs)

/home/youser/.local/share/virtualenvs/news-site-columnist-8tsXn7bh/lib/python3.10/site-packages/django/views/generic/base.py in dispatch(143)
  return handler(request, *args, **kwargs)

/var/www/news-site-columnist/news/views/post.py in get(187)
  return super().get(request, *args, **kwargs)

/var/www/news-site-columnist/news/views/base.py in get(155)
  return super().get(request, *args, **kwargs)

/var/www/news-site-columnist/news/views/base.py in get(182)
  resp = super().get(request, *args, **kwargs)

/home/youser/.local/share/virtualenvs/news-site-columnist-8tsXn7bh/lib/python3.10/site-packages/django/views/generic/detail.py in get(109)
  context = self.get_context_data(object=self.object)

/var/www/news-site-columnist/news/views/post.py in get_context_data(150)
  data['use_old_design'] = post.category.use_old_design_for_posts if post.category else False

SELECT "author"."id",
       "author"."created_at",
       "author"."updated_at",
       "author"."created_by",
       "author"."updated_by",
       "author"."name",
       "author"."name_uk",
       "author"."name_en",
       "author"."name_ru",
       "author"."slug",
       "author"."sort_weight",
       "author"."facebook_url",
       "author"."linked_in_url",
       "author"."instagram_url",
       "author"."rss_url",
       "author"."is_columnist",
       "author"."show_check_mark",
       "author"."gender",
       "author"."is_active",
       "author"."is_chief",
       "author"."is_chief_deputy",
       "author"."image",
       "author"."description",
       "author"."description_uk",
       "author"."description_en",
       "author"."description_ru",
       "author"."show_at_redaction_page",
       "author"."redaction_region",
       "author"."position",
       "author"."position_uk",
       "author"."position_en",
       "author"."position_ru",
       "author"."seo_title",
       "author"."seo_title_uk",
       "author"."seo_title_en",
       "author"."seo_title_ru",
       "author"."seo_description",
       "author"."seo_description_uk",
       "author"."seo_description_en",
       "author"."seo_description_ru"
  FROM "author"
 WHERE "author"."id" = 176
 LIMIT 21
SELECT ••• FROM "author" WHERE "author"."id" = 176 LIMIT 21
2 similar queries. Duplicated 2 times.
0,78

Connection: default

Transaction status: Idle

/home/youser/.local/share/virtualenvs/news-site-columnist-8tsXn7bh/bin/gunicorn in <module>(8)
  sys.exit(run())

/home/youser/.local/share/virtualenvs/news-site-columnist-8tsXn7bh/lib/python3.10/site-packages/gunicorn/app/wsgiapp.py in run(66)
  WSGIApplication("%(prog)s [OPTIONS] [APP_MODULE]", prog=prog).run()

/home/youser/.local/share/virtualenvs/news-site-columnist-8tsXn7bh/lib/python3.10/site-packages/gunicorn/app/base.py in run(235)
  super().run()

/home/youser/.local/share/virtualenvs/news-site-columnist-8tsXn7bh/lib/python3.10/site-packages/gunicorn/app/base.py in run(71)
  Arbiter(self).run()

/home/youser/.local/share/virtualenvs/news-site-columnist-8tsXn7bh/lib/python3.10/site-packages/gunicorn/arbiter.py in run(210)
  self.manage_workers()

/home/youser/.local/share/virtualenvs/news-site-columnist-8tsXn7bh/lib/python3.10/site-packages/gunicorn/arbiter.py in manage_workers(570)
  self.spawn_workers()

/home/youser/.local/share/virtualenvs/news-site-columnist-8tsXn7bh/lib/python3.10/site-packages/gunicorn/arbiter.py in spawn_workers(641)
  self.spawn_worker()

/home/youser/.local/share/virtualenvs/news-site-columnist-8tsXn7bh/lib/python3.10/site-packages/gunicorn/arbiter.py in spawn_worker(608)
  worker.init_process()

/home/youser/.local/share/virtualenvs/news-site-columnist-8tsXn7bh/lib/python3.10/site-packages/gunicorn/workers/base.py in init_process(143)
  self.run()

/home/youser/.local/share/virtualenvs/news-site-columnist-8tsXn7bh/lib/python3.10/site-packages/gunicorn/workers/sync.py in run(125)
  self.run_for_one(timeout)

/home/youser/.local/share/virtualenvs/news-site-columnist-8tsXn7bh/lib/python3.10/site-packages/gunicorn/workers/sync.py in run_for_one(69)
  self.accept(listener)

/home/youser/.local/share/virtualenvs/news-site-columnist-8tsXn7bh/lib/python3.10/site-packages/gunicorn/workers/sync.py in accept(31)
  self.handle(listener, client, addr)

/home/youser/.local/share/virtualenvs/news-site-columnist-8tsXn7bh/lib/python3.10/site-packages/gunicorn/workers/sync.py in handle(134)
  self.handle_request(listener, req, client, addr)

/home/youser/.local/share/virtualenvs/news-site-columnist-8tsXn7bh/lib/python3.10/site-packages/gunicorn/workers/sync.py in handle_request(177)
  respiter = self.wsgi(environ, resp.start_response)

/home/youser/.local/share/virtualenvs/news-site-columnist-8tsXn7bh/lib/python3.10/site-packages/sentry_sdk/utils.py in runner(1864)
  return sentry_patched_function(*args, **kwargs)

/home/youser/.local/share/virtualenvs/news-site-columnist-8tsXn7bh/lib/python3.10/site-packages/sentry_sdk/integrations/django/__init__.py in sentry_patched_wsgi_handler(191)
  return middleware(environ, start_response)

/home/youser/.local/share/virtualenvs/news-site-columnist-8tsXn7bh/lib/python3.10/site-packages/sentry_sdk/integrations/wsgi.py in __call__(132)
  response = self.app(

/home/youser/.local/share/virtualenvs/news-site-columnist-8tsXn7bh/lib/python3.10/site-packages/sentry_sdk/integrations/django/__init__.py in sentry_patched_get_response(478)
  rv = old_get_response(self, request)

/home/youser/.local/share/virtualenvs/news-site-columnist-8tsXn7bh/lib/python3.10/site-packages/sentry_sdk/integrations/django/middleware.py in __call__(177)
  return f(*args, **kwargs)

/home/youser/.local/share/virtualenvs/news-site-columnist-8tsXn7bh/lib/python3.10/site-packages/sentry_sdk/integrations/django/middleware.py in __call__(177)
  return f(*args, **kwargs)

/var/www/news-site-columnist/redirects/middleware/redirect_middleware.py in __call__(17)
  return self.get_response(request)

/home/youser/.local/share/virtualenvs/news-site-columnist-8tsXn7bh/lib/python3.10/site-packages/sentry_sdk/integrations/django/middleware.py in __call__(177)
  return f(*args, **kwargs)

/home/youser/.local/share/virtualenvs/news-site-columnist-8tsXn7bh/lib/python3.10/site-packages/sentry_sdk/integrations/django/middleware.py in __call__(177)
  return f(*args, **kwargs)

/home/youser/.local/share/virtualenvs/news-site-columnist-8tsXn7bh/lib/python3.10/site-packages/sentry_sdk/integrations/django/middleware.py in __call__(177)
  return f(*args, **kwargs)

/home/youser/.local/share/virtualenvs/news-site-columnist-8tsXn7bh/lib/python3.10/site-packages/sentry_sdk/integrations/django/middleware.py in __call__(177)
  return f(*args, **kwargs)

/home/youser/.local/share/virtualenvs/news-site-columnist-8tsXn7bh/lib/python3.10/site-packages/corsheaders/middleware.py in __call__(53)
  result = self.get_response(request)

/home/youser/.local/share/virtualenvs/news-site-columnist-8tsXn7bh/lib/python3.10/site-packages/sentry_sdk/integrations/django/middleware.py in __call__(177)
  return f(*args, **kwargs)

/home/youser/.local/share/virtualenvs/news-site-columnist-8tsXn7bh/lib/python3.10/site-packages/django_user_agents/middleware.py in __call__(14)
  return self.get_response(request)

/home/youser/.local/share/virtualenvs/news-site-columnist-8tsXn7bh/lib/python3.10/site-packages/sentry_sdk/integrations/django/middleware.py in __call__(177)
  return f(*args, **kwargs)

/home/youser/.local/share/virtualenvs/news-site-columnist-8tsXn7bh/lib/python3.10/site-packages/sentry_sdk/integrations/django/middleware.py in __call__(177)
  return f(*args, **kwargs)

/home/youser/.local/share/virtualenvs/news-site-columnist-8tsXn7bh/lib/python3.10/site-packages/sentry_sdk/integrations/django/middleware.py in __call__(177)
  return f(*args, **kwargs)

/home/youser/.local/share/virtualenvs/news-site-columnist-8tsXn7bh/lib/python3.10/site-packages/sentry_sdk/integrations/django/middleware.py in __call__(177)
  return f(*args, **kwargs)

/home/youser/.local/share/virtualenvs/news-site-columnist-8tsXn7bh/lib/python3.10/site-packages/sentry_sdk/integrations/django/middleware.py in __call__(177)
  return f(*args, **kwargs)

/home/youser/.local/share/virtualenvs/news-site-columnist-8tsXn7bh/lib/python3.10/site-packages/sentry_sdk/integrations/django/middleware.py in __call__(177)
  return f(*args, **kwargs)

/home/youser/.local/share/virtualenvs/news-site-columnist-8tsXn7bh/lib/python3.10/site-packages/sentry_sdk/integrations/django/middleware.py in __call__(177)
  return f(*args, **kwargs)

/home/youser/.local/share/virtualenvs/news-site-columnist-8tsXn7bh/lib/python3.10/site-packages/sentry_sdk/integrations/django/middleware.py in __call__(177)
  return f(*args, **kwargs)

/var/www/news-site-columnist/news/middleware/subdomain_middleare.py in __call__(22)
  response = self.get_response(request)

/home/youser/.local/share/virtualenvs/news-site-columnist-8tsXn7bh/lib/python3.10/site-packages/sentry_sdk/integrations/django/views.py in sentry_wrapped_callback(94)
  return callback(request, *args, **kwargs)

/var/www/news-site-columnist/news/views/post.py in subdomain_view_post(923)
  return GetPost.as_view()(

/home/youser/.local/share/virtualenvs/news-site-columnist-8tsXn7bh/lib/python3.10/site-packages/django/views/generic/base.py in view(104)
  return self.dispatch(request, *args, **kwargs)

/home/youser/.local/share/virtualenvs/news-site-columnist-8tsXn7bh/lib/python3.10/site-packages/django/views/generic/base.py in dispatch(143)
  return handler(request, *args, **kwargs)

/var/www/news-site-columnist/news/views/post.py in get(187)
  return super().get(request, *args, **kwargs)

/var/www/news-site-columnist/news/views/base.py in get(155)
  return super().get(request, *args, **kwargs)

/var/www/news-site-columnist/news/views/base.py in get(182)
  resp = super().get(request, *args, **kwargs)

/home/youser/.local/share/virtualenvs/news-site-columnist-8tsXn7bh/lib/python3.10/site-packages/django/views/generic/detail.py in get(109)
  context = self.get_context_data(object=self.object)

/var/www/news-site-columnist/news/views/post.py in get_context_data(154)
  if post.author:

SELECT "users_user"."id",
       "users_user"."password",
       "users_user"."last_login",
       "users_user"."is_superuser",
       "users_user"."first_name",
       "users_user"."last_name",
       "users_user"."is_staff",
       "users_user"."is_active",
       "users_user"."date_joined",
       "users_user"."created_at",
       "users_user"."updated_at",
       "users_user"."created_by",
       "users_user"."updated_by",
       "users_user"."full_name",
       "users_user"."email",
       "users_user"."news_author_id",
       "users_user"."freelancer",
       "users_user"."username",
       "users_user"."can_translate_to_english"
  FROM "users_user"
 WHERE "users_user"."news_author_id" = 176
 LIMIT 21
SELECT ••• FROM "users_user" WHERE "users_user"."news_author_id" = 176 LIMIT 21
0,62

Connection: default

Transaction status: Idle

/home/youser/.local/share/virtualenvs/news-site-columnist-8tsXn7bh/bin/gunicorn in <module>(8)
  sys.exit(run())

/home/youser/.local/share/virtualenvs/news-site-columnist-8tsXn7bh/lib/python3.10/site-packages/gunicorn/app/wsgiapp.py in run(66)
  WSGIApplication("%(prog)s [OPTIONS] [APP_MODULE]", prog=prog).run()

/home/youser/.local/share/virtualenvs/news-site-columnist-8tsXn7bh/lib/python3.10/site-packages/gunicorn/app/base.py in run(235)
  super().run()

/home/youser/.local/share/virtualenvs/news-site-columnist-8tsXn7bh/lib/python3.10/site-packages/gunicorn/app/base.py in run(71)
  Arbiter(self).run()

/home/youser/.local/share/virtualenvs/news-site-columnist-8tsXn7bh/lib/python3.10/site-packages/gunicorn/arbiter.py in run(210)
  self.manage_workers()

/home/youser/.local/share/virtualenvs/news-site-columnist-8tsXn7bh/lib/python3.10/site-packages/gunicorn/arbiter.py in manage_workers(570)
  self.spawn_workers()

/home/youser/.local/share/virtualenvs/news-site-columnist-8tsXn7bh/lib/python3.10/site-packages/gunicorn/arbiter.py in spawn_workers(641)
  self.spawn_worker()

/home/youser/.local/share/virtualenvs/news-site-columnist-8tsXn7bh/lib/python3.10/site-packages/gunicorn/arbiter.py in spawn_worker(608)
  worker.init_process()

/home/youser/.local/share/virtualenvs/news-site-columnist-8tsXn7bh/lib/python3.10/site-packages/gunicorn/workers/base.py in init_process(143)
  self.run()

/home/youser/.local/share/virtualenvs/news-site-columnist-8tsXn7bh/lib/python3.10/site-packages/gunicorn/workers/sync.py in run(125)
  self.run_for_one(timeout)

/home/youser/.local/share/virtualenvs/news-site-columnist-8tsXn7bh/lib/python3.10/site-packages/gunicorn/workers/sync.py in run_for_one(69)
  self.accept(listener)

/home/youser/.local/share/virtualenvs/news-site-columnist-8tsXn7bh/lib/python3.10/site-packages/gunicorn/workers/sync.py in accept(31)
  self.handle(listener, client, addr)

/home/youser/.local/share/virtualenvs/news-site-columnist-8tsXn7bh/lib/python3.10/site-packages/gunicorn/workers/sync.py in handle(134)
  self.handle_request(listener, req, client, addr)

/home/youser/.local/share/virtualenvs/news-site-columnist-8tsXn7bh/lib/python3.10/site-packages/gunicorn/workers/sync.py in handle_request(177)
  respiter = self.wsgi(environ, resp.start_response)

/home/youser/.local/share/virtualenvs/news-site-columnist-8tsXn7bh/lib/python3.10/site-packages/sentry_sdk/utils.py in runner(1864)
  return sentry_patched_function(*args, **kwargs)

/home/youser/.local/share/virtualenvs/news-site-columnist-8tsXn7bh/lib/python3.10/site-packages/sentry_sdk/integrations/django/__init__.py in sentry_patched_wsgi_handler(191)
  return middleware(environ, start_response)

/home/youser/.local/share/virtualenvs/news-site-columnist-8tsXn7bh/lib/python3.10/site-packages/sentry_sdk/integrations/wsgi.py in __call__(132)
  response = self.app(

/home/youser/.local/share/virtualenvs/news-site-columnist-8tsXn7bh/lib/python3.10/site-packages/sentry_sdk/integrations/django/__init__.py in sentry_patched_get_response(478)
  rv = old_get_response(self, request)

/home/youser/.local/share/virtualenvs/news-site-columnist-8tsXn7bh/lib/python3.10/site-packages/sentry_sdk/integrations/django/middleware.py in __call__(177)
  return f(*args, **kwargs)

/home/youser/.local/share/virtualenvs/news-site-columnist-8tsXn7bh/lib/python3.10/site-packages/sentry_sdk/integrations/django/middleware.py in __call__(177)
  return f(*args, **kwargs)

/var/www/news-site-columnist/redirects/middleware/redirect_middleware.py in __call__(17)
  return self.get_response(request)

/home/youser/.local/share/virtualenvs/news-site-columnist-8tsXn7bh/lib/python3.10/site-packages/sentry_sdk/integrations/django/middleware.py in __call__(177)
  return f(*args, **kwargs)

/home/youser/.local/share/virtualenvs/news-site-columnist-8tsXn7bh/lib/python3.10/site-packages/sentry_sdk/integrations/django/middleware.py in __call__(177)
  return f(*args, **kwargs)

/home/youser/.local/share/virtualenvs/news-site-columnist-8tsXn7bh/lib/python3.10/site-packages/sentry_sdk/integrations/django/middleware.py in __call__(177)
  return f(*args, **kwargs)

/home/youser/.local/share/virtualenvs/news-site-columnist-8tsXn7bh/lib/python3.10/site-packages/sentry_sdk/integrations/django/middleware.py in __call__(177)
  return f(*args, **kwargs)

/home/youser/.local/share/virtualenvs/news-site-columnist-8tsXn7bh/lib/python3.10/site-packages/corsheaders/middleware.py in __call__(53)
  result = self.get_response(request)

/home/youser/.local/share/virtualenvs/news-site-columnist-8tsXn7bh/lib/python3.10/site-packages/sentry_sdk/integrations/django/middleware.py in __call__(177)
  return f(*args, **kwargs)

/home/youser/.local/share/virtualenvs/news-site-columnist-8tsXn7bh/lib/python3.10/site-packages/django_user_agents/middleware.py in __call__(14)
  return self.get_response(request)

/home/youser/.local/share/virtualenvs/news-site-columnist-8tsXn7bh/lib/python3.10/site-packages/sentry_sdk/integrations/django/middleware.py in __call__(177)
  return f(*args, **kwargs)

/home/youser/.local/share/virtualenvs/news-site-columnist-8tsXn7bh/lib/python3.10/site-packages/sentry_sdk/integrations/django/middleware.py in __call__(177)
  return f(*args, **kwargs)

/home/youser/.local/share/virtualenvs/news-site-columnist-8tsXn7bh/lib/python3.10/site-packages/sentry_sdk/integrations/django/middleware.py in __call__(177)
  return f(*args, **kwargs)

/home/youser/.local/share/virtualenvs/news-site-columnist-8tsXn7bh/lib/python3.10/site-packages/sentry_sdk/integrations/django/middleware.py in __call__(177)
  return f(*args, **kwargs)

/home/youser/.local/share/virtualenvs/news-site-columnist-8tsXn7bh/lib/python3.10/site-packages/sentry_sdk/integrations/django/middleware.py in __call__(177)
  return f(*args, **kwargs)

/home/youser/.local/share/virtualenvs/news-site-columnist-8tsXn7bh/lib/python3.10/site-packages/sentry_sdk/integrations/django/middleware.py in __call__(177)
  return f(*args, **kwargs)

/home/youser/.local/share/virtualenvs/news-site-columnist-8tsXn7bh/lib/python3.10/site-packages/sentry_sdk/integrations/django/middleware.py in __call__(177)
  return f(*args, **kwargs)

/home/youser/.local/share/virtualenvs/news-site-columnist-8tsXn7bh/lib/python3.10/site-packages/sentry_sdk/integrations/django/middleware.py in __call__(177)
  return f(*args, **kwargs)

/var/www/news-site-columnist/news/middleware/subdomain_middleare.py in __call__(22)
  response = self.get_response(request)

/home/youser/.local/share/virtualenvs/news-site-columnist-8tsXn7bh/lib/python3.10/site-packages/sentry_sdk/integrations/django/views.py in sentry_wrapped_callback(94)
  return callback(request, *args, **kwargs)

/var/www/news-site-columnist/news/views/post.py in subdomain_view_post(923)
  return GetPost.as_view()(

/home/youser/.local/share/virtualenvs/news-site-columnist-8tsXn7bh/lib/python3.10/site-packages/django/views/generic/base.py in view(104)
  return self.dispatch(request, *args, **kwargs)

/home/youser/.local/share/virtualenvs/news-site-columnist-8tsXn7bh/lib/python3.10/site-packages/django/views/generic/base.py in dispatch(143)
  return handler(request, *args, **kwargs)

/var/www/news-site-columnist/news/views/post.py in get(187)
  return super().get(request, *args, **kwargs)

/var/www/news-site-columnist/news/views/base.py in get(155)
  return super().get(request, *args, **kwargs)

/var/www/news-site-columnist/news/views/base.py in get(182)
  resp = super().get(request, *args, **kwargs)

/home/youser/.local/share/virtualenvs/news-site-columnist-8tsXn7bh/lib/python3.10/site-packages/django/views/generic/detail.py in get(109)
  context = self.get_context_data(object=self.object)

/var/www/news-site-columnist/news/views/post.py in get_context_data(155)
  user = User.objects.get(news_author=post.author.id)

SELECT "post"."created_at",
       "post"."seo_title",
       "post"."seo_title_uk",
       "post"."seo_title_en",
       "post"."seo_title_ru",
       "post"."seo_description",
       "post"."seo_description_uk",
       "post"."seo_description_en",
       "post"."seo_description_ru",
       "post"."seo_keywords",
       "post"."seo_keywords_uk",
       "post"."seo_keywords_en",
       "post"."seo_keywords_ru",
       "post"."seo_header_one",
       "post"."seo_header_one_uk",
       "post"."seo_header_one_en",
       "post"."seo_header_one_ru",
       "post"."created_by",
       "post"."updated_by",
       "post"."polymorphic_ctype_id",
       "post"."id",
       "post"."head",
       "post"."head_uk",
       "post"."head_en",
       "post"."head_ru",
       "post"."sub_head",
       "post"."sub_head_uk",
       "post"."sub_head_en",
       "post"."sub_head_ru",
       "post"."content",
       "post"."content_uk",
       "post"."content_en",
       "post"."content_ru",
       "post"."author_id",
       "post"."seo_tag_id",
       "post"."publish_at",
       "post"."translated_at",
       "post"."updated_at",
       "post"."show_updated_at",
       "post"."slug",
       "post"."slug_uk",
       "post"."slug_en",
       "post"."slug_ru",
       "post"."aplication_type",
       "post"."last_editor_id",
       "post"."status",
       "post"."show_at_homepage",
       "post"."show_at_news_feed",
       "post"."show_on_broadcast_page",
       "post"."is_category_top",
       "post"."is_homepage_top",
       "post"."is_homepage_top_uk",
       "post"."is_homepage_top_en",
       "post"."is_homepage_top_ru",
       "post"."id_sponsored",
       "post"."is_lightning",
       "post"."is_exclusive",
       "post"."is_photo_report",
       "post"."is_post",
       "post"."is_article",
       "post"."main_page_img_full_width",
       "post"."need_hires",
       "post"."has_photo",
       "post"."has_video",
       "post"."is_editors_choise",
       "post"."show_in_sidebar",
       "post"."category_id",
       "post"."old_category_id",
       "post"."past_region",
       "post"."year_of_war",
       "post"."breaking_news",
       "post"."without_img",
       "post"."show_stories_block",
       "post"."display_type",
       "post"."image",
       "post"."image_alt",
       "post"."image_alt_uk",
       "post"."image_alt_en",
       "post"."image_alt_ru",
       "post"."seo_image",
       "post"."text_under_image",
       "post"."text_under_image_uk",
       "post"."text_under_image_en",
       "post"."text_under_image_ru",
       "post"."image_source",
       "post"."image_source_uk",
       "post"."image_source_en",
       "post"."image_source_ru",
       "post"."theme_id",
       "post"."is_nofollow_disabled",
       "post"."audio_content_id",
       "post"."audio_content_uk_id",
       "post"."audio_content_en_id",
       "post"."audio_content_ru_id",
       "post"."views",
       "post"."views_uk",
       "post"."views_ru",
       "post"."views_analytics",
       "post"."views_analytics_ru",
       "post"."views_analytics_uk",
       "post"."views_analytics_at",
       "post"."busy_by_id",
       "post"."image_editor_id",
       "post"."release_editor_id",
       "post"."special_type",
       "post"."head_longer_than_100",
       "post"."uk_has_translation",
       "post"."ru_has_translation",
       "post"."en_has_translation",
       "post"."homepage_slider_text",
       "post"."homepage_slider_text_uk",
       "post"."homepage_slider_text_en",
       "post"."homepage_slider_text_ru"
  FROM "post"
 INNER JOIN "category"
    ON ("post"."category_id" = "category"."id")
 WHERE ("post"."polymorphic_ctype_id" = 4 AND "category"."slug" = 'lviv' AND "post"."id" = 139383 AND "post"."status" = 2 AND "post"."publish_at" <= '2026-02-12T08:22:18.112147+00:00'::timestamptz)
 LIMIT 21
SELECT ••• FROM "post" INNER JOIN "category" ON ("post"."category_id" = "category"."id") WHERE ("post"."polymorphic_ctype_id" = 4 AND "category"."slug" = 'lviv' AND "post"."id" = 139383 AND "post"."status" = 2 AND "post"."publish_at" <= '2026-02-12T08:22:18.112147+00:00'::timestamptz) LIMIT 21
6 similar queries.
1,19

Connection: default

Transaction status: Idle

/home/youser/.local/share/virtualenvs/news-site-columnist-8tsXn7bh/bin/gunicorn in <module>(8)
  sys.exit(run())

/home/youser/.local/share/virtualenvs/news-site-columnist-8tsXn7bh/lib/python3.10/site-packages/gunicorn/app/wsgiapp.py in run(66)
  WSGIApplication("%(prog)s [OPTIONS] [APP_MODULE]", prog=prog).run()

/home/youser/.local/share/virtualenvs/news-site-columnist-8tsXn7bh/lib/python3.10/site-packages/gunicorn/app/base.py in run(235)
  super().run()

/home/youser/.local/share/virtualenvs/news-site-columnist-8tsXn7bh/lib/python3.10/site-packages/gunicorn/app/base.py in run(71)
  Arbiter(self).run()

/home/youser/.local/share/virtualenvs/news-site-columnist-8tsXn7bh/lib/python3.10/site-packages/gunicorn/arbiter.py in run(210)
  self.manage_workers()

/home/youser/.local/share/virtualenvs/news-site-columnist-8tsXn7bh/lib/python3.10/site-packages/gunicorn/arbiter.py in manage_workers(570)
  self.spawn_workers()

/home/youser/.local/share/virtualenvs/news-site-columnist-8tsXn7bh/lib/python3.10/site-packages/gunicorn/arbiter.py in spawn_workers(641)
  self.spawn_worker()

/home/youser/.local/share/virtualenvs/news-site-columnist-8tsXn7bh/lib/python3.10/site-packages/gunicorn/arbiter.py in spawn_worker(608)
  worker.init_process()

/home/youser/.local/share/virtualenvs/news-site-columnist-8tsXn7bh/lib/python3.10/site-packages/gunicorn/workers/base.py in init_process(143)
  self.run()

/home/youser/.local/share/virtualenvs/news-site-columnist-8tsXn7bh/lib/python3.10/site-packages/gunicorn/workers/sync.py in run(125)
  self.run_for_one(timeout)

/home/youser/.local/share/virtualenvs/news-site-columnist-8tsXn7bh/lib/python3.10/site-packages/gunicorn/workers/sync.py in run_for_one(69)
  self.accept(listener)

/home/youser/.local/share/virtualenvs/news-site-columnist-8tsXn7bh/lib/python3.10/site-packages/gunicorn/workers/sync.py in accept(31)
  self.handle(listener, client, addr)

/home/youser/.local/share/virtualenvs/news-site-columnist-8tsXn7bh/lib/python3.10/site-packages/gunicorn/workers/sync.py in handle(134)
  self.handle_request(listener, req, client, addr)

/home/youser/.local/share/virtualenvs/news-site-columnist-8tsXn7bh/lib/python3.10/site-packages/gunicorn/workers/sync.py in handle_request(177)
  respiter = self.wsgi(environ, resp.start_response)

/home/youser/.local/share/virtualenvs/news-site-columnist-8tsXn7bh/lib/python3.10/site-packages/sentry_sdk/utils.py in runner(1864)
  return sentry_patched_function(*args, **kwargs)

/home/youser/.local/share/virtualenvs/news-site-columnist-8tsXn7bh/lib/python3.10/site-packages/sentry_sdk/integrations/django/__init__.py in sentry_patched_wsgi_handler(191)
  return middleware(environ, start_response)

/home/youser/.local/share/virtualenvs/news-site-columnist-8tsXn7bh/lib/python3.10/site-packages/sentry_sdk/integrations/wsgi.py in __call__(132)
  response = self.app(

/home/youser/.local/share/virtualenvs/news-site-columnist-8tsXn7bh/lib/python3.10/site-packages/sentry_sdk/integrations/django/__init__.py in sentry_patched_get_response(478)
  rv = old_get_response(self, request)

/home/youser/.local/share/virtualenvs/news-site-columnist-8tsXn7bh/lib/python3.10/site-packages/sentry_sdk/integrations/django/middleware.py in __call__(177)
  return f(*args, **kwargs)

/home/youser/.local/share/virtualenvs/news-site-columnist-8tsXn7bh/lib/python3.10/site-packages/sentry_sdk/integrations/django/middleware.py in __call__(177)
  return f(*args, **kwargs)

/var/www/news-site-columnist/redirects/middleware/redirect_middleware.py in __call__(17)
  return self.get_response(request)

/home/youser/.local/share/virtualenvs/news-site-columnist-8tsXn7bh/lib/python3.10/site-packages/sentry_sdk/integrations/django/middleware.py in __call__(177)
  return f(*args, **kwargs)

/home/youser/.local/share/virtualenvs/news-site-columnist-8tsXn7bh/lib/python3.10/site-packages/sentry_sdk/integrations/django/middleware.py in __call__(177)
  return f(*args, **kwargs)

/home/youser/.local/share/virtualenvs/news-site-columnist-8tsXn7bh/lib/python3.10/site-packages/sentry_sdk/integrations/django/middleware.py in __call__(177)
  return f(*args, **kwargs)

/home/youser/.local/share/virtualenvs/news-site-columnist-8tsXn7bh/lib/python3.10/site-packages/sentry_sdk/integrations/django/middleware.py in __call__(177)
  return f(*args, **kwargs)

/home/youser/.local/share/virtualenvs/news-site-columnist-8tsXn7bh/lib/python3.10/site-packages/corsheaders/middleware.py in __call__(53)
  result = self.get_response(request)

/home/youser/.local/share/virtualenvs/news-site-columnist-8tsXn7bh/lib/python3.10/site-packages/sentry_sdk/integrations/django/middleware.py in __call__(177)
  return f(*args, **kwargs)

/home/youser/.local/share/virtualenvs/news-site-columnist-8tsXn7bh/lib/python3.10/site-packages/django_user_agents/middleware.py in __call__(14)
  return self.get_response(request)

/home/youser/.local/share/virtualenvs/news-site-columnist-8tsXn7bh/lib/python3.10/site-packages/sentry_sdk/integrations/django/middleware.py in __call__(177)
  return f(*args, **kwargs)

/home/youser/.local/share/virtualenvs/news-site-columnist-8tsXn7bh/lib/python3.10/site-packages/sentry_sdk/integrations/django/middleware.py in __call__(177)
  return f(*args, **kwargs)

/home/youser/.local/share/virtualenvs/news-site-columnist-8tsXn7bh/lib/python3.10/site-packages/sentry_sdk/integrations/django/middleware.py in __call__(177)
  return f(*args, **kwargs)

/home/youser/.local/share/virtualenvs/news-site-columnist-8tsXn7bh/lib/python3.10/site-packages/sentry_sdk/integrations/django/middleware.py in __call__(177)
  return f(*args, **kwargs)

/home/youser/.local/share/virtualenvs/news-site-columnist-8tsXn7bh/lib/python3.10/site-packages/sentry_sdk/integrations/django/middleware.py in __call__(177)
  return f(*args, **kwargs)

/home/youser/.local/share/virtualenvs/news-site-columnist-8tsXn7bh/lib/python3.10/site-packages/sentry_sdk/integrations/django/middleware.py in __call__(177)
  return f(*args, **kwargs)

/home/youser/.local/share/virtualenvs/news-site-columnist-8tsXn7bh/lib/python3.10/site-packages/sentry_sdk/integrations/django/middleware.py in __call__(177)
  return f(*args, **kwargs)

/home/youser/.local/share/virtualenvs/news-site-columnist-8tsXn7bh/lib/python3.10/site-packages/sentry_sdk/integrations/django/middleware.py in __call__(177)
  return f(*args, **kwargs)

/var/www/news-site-columnist/news/middleware/subdomain_middleare.py in __call__(22)
  response = self.get_response(request)

/home/youser/.local/share/virtualenvs/news-site-columnist-8tsXn7bh/lib/python3.10/site-packages/sentry_sdk/integrations/django/views.py in sentry_wrapped_callback(94)
  return callback(request, *args, **kwargs)

/var/www/news-site-columnist/news/views/post.py in subdomain_view_post(923)
  return GetPost.as_view()(

/home/youser/.local/share/virtualenvs/news-site-columnist-8tsXn7bh/lib/python3.10/site-packages/django/views/generic/base.py in view(104)
  return self.dispatch(request, *args, **kwargs)

/home/youser/.local/share/virtualenvs/news-site-columnist-8tsXn7bh/lib/python3.10/site-packages/django/views/generic/base.py in dispatch(143)
  return handler(request, *args, **kwargs)

/var/www/news-site-columnist/news/views/post.py in get(187)
  return super().get(request, *args, **kwargs)

/var/www/news-site-columnist/news/views/base.py in get(155)
  return super().get(request, *args, **kwargs)

/var/www/news-site-columnist/news/views/base.py in get(182)
  resp = super().get(request, *args, **kwargs)

/home/youser/.local/share/virtualenvs/news-site-columnist-8tsXn7bh/lib/python3.10/site-packages/django/views/generic/detail.py in get(110)
  return self.render_to_response(context)

/home/youser/.local/share/virtualenvs/news-site-columnist-8tsXn7bh/lib/python3.10/site-packages/django/views/generic/base.py in render_to_response(200)
  template=self.get_template_names(),

/var/www/news-site-columnist/news/views/post.py in get_template_names(108)
  object = self.get_object()

/var/www/news-site-columnist/news/views/post.py in get_object(120)
  obj = queryset.get()

/home/youser/.local/share/virtualenvs/news-site-columnist-8tsXn7bh/lib/python3.10/site-packages/polymorphic/query.py in _polymorphic_iterator(57)
  o = next(base_iter)

SELECT "category"."id",
       "category"."created_at",
       "category"."updated_at",
       "category"."seo_title",
       "category"."seo_title_uk",
       "category"."seo_title_en",
       "category"."seo_title_ru",
       "category"."seo_description",
       "category"."seo_description_uk",
       "category"."seo_description_en",
       "category"."seo_description_ru",
       "category"."seo_keywords",
       "category"."seo_keywords_uk",
       "category"."seo_keywords_en",
       "category"."seo_keywords_ru",
       "category"."seo_header_one",
       "category"."seo_header_one_uk",
       "category"."seo_header_one_en",
       "category"."seo_header_one_ru",
       "category"."seo_news_title",
       "category"."seo_news_title_uk",
       "category"."seo_news_title_en",
       "category"."seo_news_title_ru",
       "category"."seo_news_description",
       "category"."seo_news_description_uk",
       "category"."seo_news_description_en",
       "category"."seo_news_description_ru",
       "category"."subdomain",
       "category"."parent_id",
       "category"."image",
       "category"."is_active",
       "category"."is_rss_active",
       "category"."is_interesting",
       "category"."ticker_rss_active",
       "category"."show_home",
       "category"."show_home_en",
       "category"."show_video",
       "category"."show_menu",
       "category"."show_menu_uk",
       "category"."show_menu_en",
       "category"."show_menu_ru",
       "category"."show_footer",
       "category"."show_menu_in_en",
       "category"."show_footer_in_en",
       "category"."show_in_search",
       "category"."show_in_header",
       "category"."show_in_header_uk",
       "category"."show_in_header_en",
       "category"."show_in_header_ru",
       "category"."seo_tag_id",
       "category"."sort_weight",
       "category"."sort_weight_en",
       "category"."header_sort_weight",
       "category"."header_sort_weight_uk",
       "category"."header_sort_weight_en",
       "category"."header_sort_weight_ru",
       "category"."footer_sort_weight",
       "category"."menu_sort_weight",
       "category"."name",
       "category"."name_uk",
       "category"."name_en",
       "category"."name_ru",
       "category"."slug",
       "category"."description",
       "category"."description_uk",
       "category"."description_en",
       "category"."description_ru",
       "category"."fb_link",
       "category"."tg_link",
       "category"."show_banner",
       "category"."uk_has_translation",
       "category"."ru_has_translation",
       "category"."en_has_translation",
       "category"."has_infinite_scroll",
       "category"."_show_home_without_subdomain",
       "category"."_show_home_without_subdomain_en",
       "category"."background_id",
       "category"."use_old_design",
       "category"."use_old_design_for_posts",
       "category"."is_context_category",
       "category"."show_stories_on_main",
       "category"."show_posts_table_of_contents",
       "category"."svg_icon"
  FROM "category"
 WHERE "category"."id" = 41
 LIMIT 21
SELECT ••• FROM "category" WHERE "category"."id" = 41 LIMIT 21
4 similar queries. Duplicated 3 times.
0,64

Connection: default

Transaction status: Idle

/home/youser/.local/share/virtualenvs/news-site-columnist-8tsXn7bh/bin/gunicorn in <module>(8)
  sys.exit(run())

/home/youser/.local/share/virtualenvs/news-site-columnist-8tsXn7bh/lib/python3.10/site-packages/gunicorn/app/wsgiapp.py in run(66)
  WSGIApplication("%(prog)s [OPTIONS] [APP_MODULE]", prog=prog).run()

/home/youser/.local/share/virtualenvs/news-site-columnist-8tsXn7bh/lib/python3.10/site-packages/gunicorn/app/base.py in run(235)
  super().run()

/home/youser/.local/share/virtualenvs/news-site-columnist-8tsXn7bh/lib/python3.10/site-packages/gunicorn/app/base.py in run(71)
  Arbiter(self).run()

/home/youser/.local/share/virtualenvs/news-site-columnist-8tsXn7bh/lib/python3.10/site-packages/gunicorn/arbiter.py in run(210)
  self.manage_workers()

/home/youser/.local/share/virtualenvs/news-site-columnist-8tsXn7bh/lib/python3.10/site-packages/gunicorn/arbiter.py in manage_workers(570)
  self.spawn_workers()

/home/youser/.local/share/virtualenvs/news-site-columnist-8tsXn7bh/lib/python3.10/site-packages/gunicorn/arbiter.py in spawn_workers(641)
  self.spawn_worker()

/home/youser/.local/share/virtualenvs/news-site-columnist-8tsXn7bh/lib/python3.10/site-packages/gunicorn/arbiter.py in spawn_worker(608)
  worker.init_process()

/home/youser/.local/share/virtualenvs/news-site-columnist-8tsXn7bh/lib/python3.10/site-packages/gunicorn/workers/base.py in init_process(143)
  self.run()

/home/youser/.local/share/virtualenvs/news-site-columnist-8tsXn7bh/lib/python3.10/site-packages/gunicorn/workers/sync.py in run(125)
  self.run_for_one(timeout)

/home/youser/.local/share/virtualenvs/news-site-columnist-8tsXn7bh/lib/python3.10/site-packages/gunicorn/workers/sync.py in run_for_one(69)
  self.accept(listener)

/home/youser/.local/share/virtualenvs/news-site-columnist-8tsXn7bh/lib/python3.10/site-packages/gunicorn/workers/sync.py in accept(31)
  self.handle(listener, client, addr)

/home/youser/.local/share/virtualenvs/news-site-columnist-8tsXn7bh/lib/python3.10/site-packages/gunicorn/workers/sync.py in handle(134)
  self.handle_request(listener, req, client, addr)

/home/youser/.local/share/virtualenvs/news-site-columnist-8tsXn7bh/lib/python3.10/site-packages/gunicorn/workers/sync.py in handle_request(177)
  respiter = self.wsgi(environ, resp.start_response)

/home/youser/.local/share/virtualenvs/news-site-columnist-8tsXn7bh/lib/python3.10/site-packages/sentry_sdk/utils.py in runner(1864)
  return sentry_patched_function(*args, **kwargs)

/home/youser/.local/share/virtualenvs/news-site-columnist-8tsXn7bh/lib/python3.10/site-packages/sentry_sdk/integrations/django/__init__.py in sentry_patched_wsgi_handler(191)
  return middleware(environ, start_response)

/home/youser/.local/share/virtualenvs/news-site-columnist-8tsXn7bh/lib/python3.10/site-packages/sentry_sdk/integrations/wsgi.py in __call__(132)
  response = self.app(

/home/youser/.local/share/virtualenvs/news-site-columnist-8tsXn7bh/lib/python3.10/site-packages/sentry_sdk/integrations/django/__init__.py in sentry_patched_get_response(478)
  rv = old_get_response(self, request)

/home/youser/.local/share/virtualenvs/news-site-columnist-8tsXn7bh/lib/python3.10/site-packages/sentry_sdk/integrations/django/middleware.py in __call__(177)
  return f(*args, **kwargs)

/home/youser/.local/share/virtualenvs/news-site-columnist-8tsXn7bh/lib/python3.10/site-packages/sentry_sdk/integrations/django/middleware.py in __call__(177)
  return f(*args, **kwargs)

/var/www/news-site-columnist/redirects/middleware/redirect_middleware.py in __call__(17)
  return self.get_response(request)

/home/youser/.local/share/virtualenvs/news-site-columnist-8tsXn7bh/lib/python3.10/site-packages/sentry_sdk/integrations/django/middleware.py in __call__(177)
  return f(*args, **kwargs)

/home/youser/.local/share/virtualenvs/news-site-columnist-8tsXn7bh/lib/python3.10/site-packages/sentry_sdk/integrations/django/middleware.py in __call__(177)
  return f(*args, **kwargs)

/home/youser/.local/share/virtualenvs/news-site-columnist-8tsXn7bh/lib/python3.10/site-packages/sentry_sdk/integrations/django/middleware.py in __call__(177)
  return f(*args, **kwargs)

/home/youser/.local/share/virtualenvs/news-site-columnist-8tsXn7bh/lib/python3.10/site-packages/sentry_sdk/integrations/django/middleware.py in __call__(177)
  return f(*args, **kwargs)

/home/youser/.local/share/virtualenvs/news-site-columnist-8tsXn7bh/lib/python3.10/site-packages/corsheaders/middleware.py in __call__(53)
  result = self.get_response(request)

/home/youser/.local/share/virtualenvs/news-site-columnist-8tsXn7bh/lib/python3.10/site-packages/sentry_sdk/integrations/django/middleware.py in __call__(177)
  return f(*args, **kwargs)

/home/youser/.local/share/virtualenvs/news-site-columnist-8tsXn7bh/lib/python3.10/site-packages/django_user_agents/middleware.py in __call__(14)
  return self.get_response(request)

/home/youser/.local/share/virtualenvs/news-site-columnist-8tsXn7bh/lib/python3.10/site-packages/sentry_sdk/integrations/django/middleware.py in __call__(177)
  return f(*args, **kwargs)

/home/youser/.local/share/virtualenvs/news-site-columnist-8tsXn7bh/lib/python3.10/site-packages/sentry_sdk/integrations/django/middleware.py in __call__(177)
  return f(*args, **kwargs)

/home/youser/.local/share/virtualenvs/news-site-columnist-8tsXn7bh/lib/python3.10/site-packages/sentry_sdk/integrations/django/middleware.py in __call__(177)
  return f(*args, **kwargs)

/home/youser/.local/share/virtualenvs/news-site-columnist-8tsXn7bh/lib/python3.10/site-packages/sentry_sdk/integrations/django/middleware.py in __call__(177)
  return f(*args, **kwargs)

/home/youser/.local/share/virtualenvs/news-site-columnist-8tsXn7bh/lib/python3.10/site-packages/sentry_sdk/integrations/django/middleware.py in __call__(177)
  return f(*args, **kwargs)

/home/youser/.local/share/virtualenvs/news-site-columnist-8tsXn7bh/lib/python3.10/site-packages/sentry_sdk/integrations/django/middleware.py in __call__(177)
  return f(*args, **kwargs)

/home/youser/.local/share/virtualenvs/news-site-columnist-8tsXn7bh/lib/python3.10/site-packages/sentry_sdk/integrations/django/middleware.py in __call__(177)
  return f(*args, **kwargs)

/home/youser/.local/share/virtualenvs/news-site-columnist-8tsXn7bh/lib/python3.10/site-packages/sentry_sdk/integrations/django/middleware.py in __call__(177)
  return f(*args, **kwargs)

/var/www/news-site-columnist/news/middleware/subdomain_middleare.py in __call__(22)
  response = self.get_response(request)

/home/youser/.local/share/virtualenvs/news-site-columnist-8tsXn7bh/lib/python3.10/site-packages/sentry_sdk/integrations/django/views.py in sentry_wrapped_callback(94)
  return callback(request, *args, **kwargs)

/var/www/news-site-columnist/news/views/post.py in subdomain_view_post(923)
  return GetPost.as_view()(

/home/youser/.local/share/virtualenvs/news-site-columnist-8tsXn7bh/lib/python3.10/site-packages/django/views/generic/base.py in view(104)
  return self.dispatch(request, *args, **kwargs)

/home/youser/.local/share/virtualenvs/news-site-columnist-8tsXn7bh/lib/python3.10/site-packages/django/views/generic/base.py in dispatch(143)
  return handler(request, *args, **kwargs)

/var/www/news-site-columnist/news/views/post.py in get(187)
  return super().get(request, *args, **kwargs)

/var/www/news-site-columnist/news/views/base.py in get(155)
  return super().get(request, *args, **kwargs)

/var/www/news-site-columnist/news/views/base.py in get(182)
  resp = super().get(request, *args, **kwargs)

/home/youser/.local/share/virtualenvs/news-site-columnist-8tsXn7bh/lib/python3.10/site-packages/django/views/generic/detail.py in get(110)
  return self.render_to_response(context)

/home/youser/.local/share/virtualenvs/news-site-columnist-8tsXn7bh/lib/python3.10/site-packages/django/views/generic/base.py in render_to_response(200)
  template=self.get_template_names(),

/var/www/news-site-columnist/news/views/post.py in get_template_names(109)
  if object.category and object.category.use_old_design_for_posts:

SELECT "category"."id",
       "category"."created_at",
       "category"."updated_at",
       "category"."seo_title",
       "category"."seo_title_uk",
       "category"."seo_title_en",
       "category"."seo_title_ru",
       "category"."seo_description",
       "category"."seo_description_uk",
       "category"."seo_description_en",
       "category"."seo_description_ru",
       "category"."seo_keywords",
       "category"."seo_keywords_uk",
       "category"."seo_keywords_en",
       "category"."seo_keywords_ru",
       "category"."seo_header_one",
       "category"."seo_header_one_uk",
       "category"."seo_header_one_en",
       "category"."seo_header_one_ru",
       "category"."seo_news_title",
       "category"."seo_news_title_uk",
       "category"."seo_news_title_en",
       "category"."seo_news_title_ru",
       "category"."seo_news_description",
       "category"."seo_news_description_uk",
       "category"."seo_news_description_en",
       "category"."seo_news_description_ru",
       "category"."subdomain",
       "category"."parent_id",
       "category"."image",
       "category"."is_active",
       "category"."is_rss_active",
       "category"."is_interesting",
       "category"."ticker_rss_active",
       "category"."show_home",
       "category"."show_home_en",
       "category"."show_video",
       "category"."show_menu",
       "category"."show_menu_uk",
       "category"."show_menu_en",
       "category"."show_menu_ru",
       "category"."show_footer",
       "category"."show_menu_in_en",
       "category"."show_footer_in_en",
       "category"."show_in_search",
       "category"."show_in_header",
       "category"."show_in_header_uk",
       "category"."show_in_header_en",
       "category"."show_in_header_ru",
       "category"."seo_tag_id",
       "category"."sort_weight",
       "category"."sort_weight_en",
       "category"."header_sort_weight",
       "category"."header_sort_weight_uk",
       "category"."header_sort_weight_en",
       "category"."header_sort_weight_ru",
       "category"."footer_sort_weight",
       "category"."menu_sort_weight",
       "category"."name",
       "category"."name_uk",
       "category"."name_en",
       "category"."name_ru",
       "category"."slug",
       "category"."description",
       "category"."description_uk",
       "category"."description_en",
       "category"."description_ru",
       "category"."fb_link",
       "category"."tg_link",
       "category"."show_banner",
       "category"."uk_has_translation",
       "category"."ru_has_translation",
       "category"."en_has_translation",
       "category"."has_infinite_scroll",
       "category"."_show_home_without_subdomain",
       "category"."_show_home_without_subdomain_en",
       "category"."background_id",
       "category"."use_old_design",
       "category"."use_old_design_for_posts",
       "category"."is_context_category",
       "category"."show_stories_on_main",
       "category"."show_posts_table_of_contents",
       "category"."svg_icon"
  FROM "category"
 WHERE "category"."id" = 41
 LIMIT 21
SELECT ••• FROM "category" WHERE "category"."id" = 41 LIMIT 21
4 similar queries. Duplicated 3 times.
0,98

Connection: default

Transaction status: Idle

/home/youser/.local/share/virtualenvs/news-site-columnist-8tsXn7bh/bin/gunicorn in <module>(8)
  sys.exit(run())

/home/youser/.local/share/virtualenvs/news-site-columnist-8tsXn7bh/lib/python3.10/site-packages/gunicorn/app/wsgiapp.py in run(66)
  WSGIApplication("%(prog)s [OPTIONS] [APP_MODULE]", prog=prog).run()

/home/youser/.local/share/virtualenvs/news-site-columnist-8tsXn7bh/lib/python3.10/site-packages/gunicorn/app/base.py in run(235)
  super().run()

/home/youser/.local/share/virtualenvs/news-site-columnist-8tsXn7bh/lib/python3.10/site-packages/gunicorn/app/base.py in run(71)
  Arbiter(self).run()

/home/youser/.local/share/virtualenvs/news-site-columnist-8tsXn7bh/lib/python3.10/site-packages/gunicorn/arbiter.py in run(210)
  self.manage_workers()

/home/youser/.local/share/virtualenvs/news-site-columnist-8tsXn7bh/lib/python3.10/site-packages/gunicorn/arbiter.py in manage_workers(570)
  self.spawn_workers()

/home/youser/.local/share/virtualenvs/news-site-columnist-8tsXn7bh/lib/python3.10/site-packages/gunicorn/arbiter.py in spawn_workers(641)
  self.spawn_worker()

/home/youser/.local/share/virtualenvs/news-site-columnist-8tsXn7bh/lib/python3.10/site-packages/gunicorn/arbiter.py in spawn_worker(608)
  worker.init_process()

/home/youser/.local/share/virtualenvs/news-site-columnist-8tsXn7bh/lib/python3.10/site-packages/gunicorn/workers/base.py in init_process(143)
  self.run()

/home/youser/.local/share/virtualenvs/news-site-columnist-8tsXn7bh/lib/python3.10/site-packages/gunicorn/workers/sync.py in run(125)
  self.run_for_one(timeout)

/home/youser/.local/share/virtualenvs/news-site-columnist-8tsXn7bh/lib/python3.10/site-packages/gunicorn/workers/sync.py in run_for_one(69)
  self.accept(listener)

/home/youser/.local/share/virtualenvs/news-site-columnist-8tsXn7bh/lib/python3.10/site-packages/gunicorn/workers/sync.py in accept(31)
  self.handle(listener, client, addr)

/home/youser/.local/share/virtualenvs/news-site-columnist-8tsXn7bh/lib/python3.10/site-packages/gunicorn/workers/sync.py in handle(134)
  self.handle_request(listener, req, client, addr)

/home/youser/.local/share/virtualenvs/news-site-columnist-8tsXn7bh/lib/python3.10/site-packages/gunicorn/workers/sync.py in handle_request(177)
  respiter = self.wsgi(environ, resp.start_response)

/home/youser/.local/share/virtualenvs/news-site-columnist-8tsXn7bh/lib/python3.10/site-packages/sentry_sdk/utils.py in runner(1864)
  return sentry_patched_function(*args, **kwargs)

/home/youser/.local/share/virtualenvs/news-site-columnist-8tsXn7bh/lib/python3.10/site-packages/sentry_sdk/integrations/django/__init__.py in sentry_patched_wsgi_handler(191)
  return middleware(environ, start_response)

/home/youser/.local/share/virtualenvs/news-site-columnist-8tsXn7bh/lib/python3.10/site-packages/sentry_sdk/integrations/wsgi.py in __call__(132)
  response = self.app(

/home/youser/.local/share/virtualenvs/news-site-columnist-8tsXn7bh/lib/python3.10/site-packages/sentry_sdk/integrations/django/__init__.py in sentry_patched_get_response(478)
  rv = old_get_response(self, request)

/home/youser/.local/share/virtualenvs/news-site-columnist-8tsXn7bh/lib/python3.10/site-packages/sentry_sdk/integrations/django/middleware.py in __call__(177)
  return f(*args, **kwargs)

/home/youser/.local/share/virtualenvs/news-site-columnist-8tsXn7bh/lib/python3.10/site-packages/sentry_sdk/integrations/django/middleware.py in __call__(177)
  return f(*args, **kwargs)

/var/www/news-site-columnist/redirects/middleware/redirect_middleware.py in __call__(17)
  return self.get_response(request)

/home/youser/.local/share/virtualenvs/news-site-columnist-8tsXn7bh/lib/python3.10/site-packages/sentry_sdk/integrations/django/middleware.py in __call__(177)
  return f(*args, **kwargs)

/home/youser/.local/share/virtualenvs/news-site-columnist-8tsXn7bh/lib/python3.10/site-packages/sentry_sdk/integrations/django/middleware.py in __call__(177)
  return f(*args, **kwargs)

/home/youser/.local/share/virtualenvs/news-site-columnist-8tsXn7bh/lib/python3.10/site-packages/sentry_sdk/integrations/django/middleware.py in __call__(177)
  return f(*args, **kwargs)

/home/youser/.local/share/virtualenvs/news-site-columnist-8tsXn7bh/lib/python3.10/site-packages/sentry_sdk/integrations/django/middleware.py in __call__(177)
  return f(*args, **kwargs)

/home/youser/.local/share/virtualenvs/news-site-columnist-8tsXn7bh/lib/python3.10/site-packages/corsheaders/middleware.py in __call__(53)
  result = self.get_response(request)

/home/youser/.local/share/virtualenvs/news-site-columnist-8tsXn7bh/lib/python3.10/site-packages/sentry_sdk/integrations/django/middleware.py in __call__(177)
  return f(*args, **kwargs)

/home/youser/.local/share/virtualenvs/news-site-columnist-8tsXn7bh/lib/python3.10/site-packages/django_user_agents/middleware.py in __call__(14)
  return self.get_response(request)

/home/youser/.local/share/virtualenvs/news-site-columnist-8tsXn7bh/lib/python3.10/site-packages/sentry_sdk/integrations/django/middleware.py in __call__(177)
  return f(*args, **kwargs)

/home/youser/.local/share/virtualenvs/news-site-columnist-8tsXn7bh/lib/python3.10/site-packages/sentry_sdk/integrations/django/middleware.py in __call__(177)
  return f(*args, **kwargs)

/home/youser/.local/share/virtualenvs/news-site-columnist-8tsXn7bh/lib/python3.10/site-packages/sentry_sdk/integrations/django/middleware.py in __call__(177)
  return f(*args, **kwargs)

/home/youser/.local/share/virtualenvs/news-site-columnist-8tsXn7bh/lib/python3.10/site-packages/sentry_sdk/integrations/django/middleware.py in __call__(177)
  return f(*args, **kwargs)

/home/youser/.local/share/virtualenvs/news-site-columnist-8tsXn7bh/lib/python3.10/site-packages/sentry_sdk/integrations/django/middleware.py in __call__(177)
  return f(*args, **kwargs)

/home/youser/.local/share/virtualenvs/news-site-columnist-8tsXn7bh/lib/python3.10/site-packages/sentry_sdk/integrations/django/middleware.py in __call__(177)
  return f(*args, **kwargs)

/home/youser/.local/share/virtualenvs/news-site-columnist-8tsXn7bh/lib/python3.10/site-packages/sentry_sdk/integrations/django/middleware.py in __call__(177)
  return f(*args, **kwargs)

/home/youser/.local/share/virtualenvs/news-site-columnist-8tsXn7bh/lib/python3.10/site-packages/sentry_sdk/integrations/django/middleware.py in __call__(177)
  return f(*args, **kwargs)

/var/www/news-site-columnist/news/middleware/subdomain_middleare.py in __call__(22)
  response = self.get_response(request)

/home/youser/.local/share/virtualenvs/news-site-columnist-8tsXn7bh/lib/python3.10/site-packages/sentry_sdk/integrations/django/views.py in sentry_patched_render(41)
  return old_render(self)

/home/youser/.local/share/virtualenvs/news-site-columnist-8tsXn7bh/lib/python3.10/site-packages/django/template/response.py in render(114)
  self.content = self.rendered_content

/home/youser/.local/share/virtualenvs/news-site-columnist-8tsXn7bh/lib/python3.10/site-packages/sentry_sdk/utils.py in runner(1864)
  return sentry_patched_function(*args, **kwargs)

/home/youser/.local/share/virtualenvs/news-site-columnist-8tsXn7bh/lib/python3.10/site-packages/sentry_sdk/integrations/django/templates.py in rendered_content(77)
  return real_rendered_content.fget(self)

/home/youser/.local/share/virtualenvs/news-site-columnist-8tsXn7bh/lib/python3.10/site-packages/django/template/response.py in rendered_content(92)
  return template.render(context, self._request)

/home/youser/.local/share/virtualenvs/news-site-columnist-8tsXn7bh/lib/python3.10/site-packages/django/template/backends/django.py in render(61)
  return self.template.render(context)

/home/youser/.local/share/virtualenvs/news-site-columnist-8tsXn7bh/lib/python3.10/site-packages/template_timings_panel/panels/TemplateTimings.py in timing_hook(139)
  result = func(self, *args, **kwargs)

/home/youser/.local/share/virtualenvs/news-site-columnist-8tsXn7bh/lib/python3.10/site-packages/django/template/base.py in render(175)
  return self._render(context)

/home/youser/.local/share/virtualenvs/news-site-columnist-8tsXn7bh/lib/python3.10/site-packages/django/test/utils.py in instrumented_test_render(112)
  return self.nodelist.render(context)

/home/youser/.local/share/virtualenvs/news-site-columnist-8tsXn7bh/lib/python3.10/site-packages/django/template/base.py in render(1005)
  return SafeString("".join([node.render_annotated(context) for node in self]))

/home/youser/.local/share/virtualenvs/news-site-columnist-8tsXn7bh/lib/python3.10/site-packages/django/template/base.py in <listcomp>(1005)
  return SafeString("".join([node.render_annotated(context) for node in self]))

/home/youser/.local/share/virtualenvs/news-site-columnist-8tsXn7bh/lib/python3.10/site-packages/django/template/base.py in render_annotated(966)
  return self.render(context)

/home/youser/.local/share/virtualenvs/news-site-columnist-8tsXn7bh/lib/python3.10/site-packages/django/template/loader_tags.py in render(157)
  return compiled_parent._render(context)

/home/youser/.local/share/virtualenvs/news-site-columnist-8tsXn7bh/lib/python3.10/site-packages/django/test/utils.py in instrumented_test_render(112)
  return self.nodelist.render(context)

/home/youser/.local/share/virtualenvs/news-site-columnist-8tsXn7bh/lib/python3.10/site-packages/django/template/base.py in render(1005)
  return SafeString("".join([node.render_annotated(context) for node in self]))

/home/youser/.local/share/virtualenvs/news-site-columnist-8tsXn7bh/lib/python3.10/site-packages/django/template/base.py in <listcomp>(1005)
  return SafeString("".join([node.render_annotated(context) for node in self]))

/home/youser/.local/share/virtualenvs/news-site-columnist-8tsXn7bh/lib/python3.10/site-packages/django/template/base.py in render_annotated(966)
  return self.render(context)

/home/youser/.local/share/virtualenvs/news-site-columnist-8tsXn7bh/lib/python3.10/site-packages/template_timings_panel/panels/TemplateTimings.py in timing_hook(139)
  result = func(self, *args, **kwargs)

/home/youser/.local/share/virtualenvs/news-site-columnist-8tsXn7bh/lib/python3.10/site-packages/django/template/loader_tags.py in render(63)
  result = block.nodelist.render(context)

/home/youser/.local/share/virtualenvs/news-site-columnist-8tsXn7bh/lib/python3.10/site-packages/django/template/base.py in render(1005)
  return SafeString("".join([node.render_annotated(context) for node in self]))

/home/youser/.local/share/virtualenvs/news-site-columnist-8tsXn7bh/lib/python3.10/site-packages/django/template/base.py in <listcomp>(1005)
  return SafeString("".join([node.render_annotated(context) for node in self]))

/home/youser/.local/share/virtualenvs/news-site-columnist-8tsXn7bh/lib/python3.10/site-packages/django/template/base.py in render_annotated(966)
  return self.render(context)

/home/youser/.local/share/virtualenvs/news-site-columnist-8tsXn7bh/lib/python3.10/site-packages/django/template/library.py in render(237)
  output = self.func(*resolved_args, **resolved_kwargs)

/var/www/news-site-columnist/news/templatetags/custom_tags.py in get_post_absolute_url(621)
  return post.get_absolute_url()

/var/www/news-site-columnist/news/models/news.py in get_absolute_url(1017)
  category = self.category

14 {% get_available_languages as LANGUAGES %}
15 {% get_language_info_list for LANGUAGES as languages %}
16 {% get_current_language as SELECTED_LANG %}
17 {% get_post_absolute_url post SELECTED_LANG as post_url %}
18 <link rel="canonical" href="{{ post_url }}"/>
19 {% post_has_translation post 'uk' as is_translated_uk %}
20 {% if is_translated_uk %}
21 {% get_post_absolute_url post 'uk' as uk_post_url %}

/var/www/news-site-columnist/news/templates/new-design/single_post.html

SELECT "author"."id",
       "author"."created_at",
       "author"."updated_at",
       "author"."created_by",
       "author"."updated_by",
       "author"."name",
       "author"."name_uk",
       "author"."name_en",
       "author"."name_ru",
       "author"."slug",
       "author"."sort_weight",
       "author"."facebook_url",
       "author"."linked_in_url",
       "author"."instagram_url",
       "author"."rss_url",
       "author"."is_columnist",
       "author"."show_check_mark",
       "author"."gender",
       "author"."is_active",
       "author"."is_chief",
       "author"."is_chief_deputy",
       "author"."image",
       "author"."description",
       "author"."description_uk",
       "author"."description_en",
       "author"."description_ru",
       "author"."show_at_redaction_page",
       "author"."redaction_region",
       "author"."position",
       "author"."position_uk",
       "author"."position_en",
       "author"."position_ru",
       "author"."seo_title",
       "author"."seo_title_uk",
       "author"."seo_title_en",
       "author"."seo_title_ru",
       "author"."seo_description",
       "author"."seo_description_uk",
       "author"."seo_description_en",
       "author"."seo_description_ru"
  FROM "author"
 WHERE "author"."id" = 176
 LIMIT 21
SELECT ••• FROM "author" WHERE "author"."id" = 176 LIMIT 21
2 similar queries. Duplicated 2 times.
0,76

Connection: default

Transaction status: Idle

/home/youser/.local/share/virtualenvs/news-site-columnist-8tsXn7bh/bin/gunicorn in <module>(8)
  sys.exit(run())

/home/youser/.local/share/virtualenvs/news-site-columnist-8tsXn7bh/lib/python3.10/site-packages/gunicorn/app/wsgiapp.py in run(66)
  WSGIApplication("%(prog)s [OPTIONS] [APP_MODULE]", prog=prog).run()

/home/youser/.local/share/virtualenvs/news-site-columnist-8tsXn7bh/lib/python3.10/site-packages/gunicorn/app/base.py in run(235)
  super().run()

/home/youser/.local/share/virtualenvs/news-site-columnist-8tsXn7bh/lib/python3.10/site-packages/gunicorn/app/base.py in run(71)
  Arbiter(self).run()

/home/youser/.local/share/virtualenvs/news-site-columnist-8tsXn7bh/lib/python3.10/site-packages/gunicorn/arbiter.py in run(210)
  self.manage_workers()

/home/youser/.local/share/virtualenvs/news-site-columnist-8tsXn7bh/lib/python3.10/site-packages/gunicorn/arbiter.py in manage_workers(570)
  self.spawn_workers()

/home/youser/.local/share/virtualenvs/news-site-columnist-8tsXn7bh/lib/python3.10/site-packages/gunicorn/arbiter.py in spawn_workers(641)
  self.spawn_worker()

/home/youser/.local/share/virtualenvs/news-site-columnist-8tsXn7bh/lib/python3.10/site-packages/gunicorn/arbiter.py in spawn_worker(608)
  worker.init_process()

/home/youser/.local/share/virtualenvs/news-site-columnist-8tsXn7bh/lib/python3.10/site-packages/gunicorn/workers/base.py in init_process(143)
  self.run()

/home/youser/.local/share/virtualenvs/news-site-columnist-8tsXn7bh/lib/python3.10/site-packages/gunicorn/workers/sync.py in run(125)
  self.run_for_one(timeout)

/home/youser/.local/share/virtualenvs/news-site-columnist-8tsXn7bh/lib/python3.10/site-packages/gunicorn/workers/sync.py in run_for_one(69)
  self.accept(listener)

/home/youser/.local/share/virtualenvs/news-site-columnist-8tsXn7bh/lib/python3.10/site-packages/gunicorn/workers/sync.py in accept(31)
  self.handle(listener, client, addr)

/home/youser/.local/share/virtualenvs/news-site-columnist-8tsXn7bh/lib/python3.10/site-packages/gunicorn/workers/sync.py in handle(134)
  self.handle_request(listener, req, client, addr)

/home/youser/.local/share/virtualenvs/news-site-columnist-8tsXn7bh/lib/python3.10/site-packages/gunicorn/workers/sync.py in handle_request(177)
  respiter = self.wsgi(environ, resp.start_response)

/home/youser/.local/share/virtualenvs/news-site-columnist-8tsXn7bh/lib/python3.10/site-packages/sentry_sdk/utils.py in runner(1864)
  return sentry_patched_function(*args, **kwargs)

/home/youser/.local/share/virtualenvs/news-site-columnist-8tsXn7bh/lib/python3.10/site-packages/sentry_sdk/integrations/django/__init__.py in sentry_patched_wsgi_handler(191)
  return middleware(environ, start_response)

/home/youser/.local/share/virtualenvs/news-site-columnist-8tsXn7bh/lib/python3.10/site-packages/sentry_sdk/integrations/wsgi.py in __call__(132)
  response = self.app(

/home/youser/.local/share/virtualenvs/news-site-columnist-8tsXn7bh/lib/python3.10/site-packages/sentry_sdk/integrations/django/__init__.py in sentry_patched_get_response(478)
  rv = old_get_response(self, request)

/home/youser/.local/share/virtualenvs/news-site-columnist-8tsXn7bh/lib/python3.10/site-packages/sentry_sdk/integrations/django/middleware.py in __call__(177)
  return f(*args, **kwargs)

/home/youser/.local/share/virtualenvs/news-site-columnist-8tsXn7bh/lib/python3.10/site-packages/sentry_sdk/integrations/django/middleware.py in __call__(177)
  return f(*args, **kwargs)

/var/www/news-site-columnist/redirects/middleware/redirect_middleware.py in __call__(17)
  return self.get_response(request)

/home/youser/.local/share/virtualenvs/news-site-columnist-8tsXn7bh/lib/python3.10/site-packages/sentry_sdk/integrations/django/middleware.py in __call__(177)
  return f(*args, **kwargs)

/home/youser/.local/share/virtualenvs/news-site-columnist-8tsXn7bh/lib/python3.10/site-packages/sentry_sdk/integrations/django/middleware.py in __call__(177)
  return f(*args, **kwargs)

/home/youser/.local/share/virtualenvs/news-site-columnist-8tsXn7bh/lib/python3.10/site-packages/sentry_sdk/integrations/django/middleware.py in __call__(177)
  return f(*args, **kwargs)

/home/youser/.local/share/virtualenvs/news-site-columnist-8tsXn7bh/lib/python3.10/site-packages/sentry_sdk/integrations/django/middleware.py in __call__(177)
  return f(*args, **kwargs)

/home/youser/.local/share/virtualenvs/news-site-columnist-8tsXn7bh/lib/python3.10/site-packages/corsheaders/middleware.py in __call__(53)
  result = self.get_response(request)

/home/youser/.local/share/virtualenvs/news-site-columnist-8tsXn7bh/lib/python3.10/site-packages/sentry_sdk/integrations/django/middleware.py in __call__(177)
  return f(*args, **kwargs)

/home/youser/.local/share/virtualenvs/news-site-columnist-8tsXn7bh/lib/python3.10/site-packages/django_user_agents/middleware.py in __call__(14)
  return self.get_response(request)

/home/youser/.local/share/virtualenvs/news-site-columnist-8tsXn7bh/lib/python3.10/site-packages/sentry_sdk/integrations/django/middleware.py in __call__(177)
  return f(*args, **kwargs)

/home/youser/.local/share/virtualenvs/news-site-columnist-8tsXn7bh/lib/python3.10/site-packages/sentry_sdk/integrations/django/middleware.py in __call__(177)
  return f(*args, **kwargs)

/home/youser/.local/share/virtualenvs/news-site-columnist-8tsXn7bh/lib/python3.10/site-packages/sentry_sdk/integrations/django/middleware.py in __call__(177)
  return f(*args, **kwargs)

/home/youser/.local/share/virtualenvs/news-site-columnist-8tsXn7bh/lib/python3.10/site-packages/sentry_sdk/integrations/django/middleware.py in __call__(177)
  return f(*args, **kwargs)

/home/youser/.local/share/virtualenvs/news-site-columnist-8tsXn7bh/lib/python3.10/site-packages/sentry_sdk/integrations/django/middleware.py in __call__(177)
  return f(*args, **kwargs)

/home/youser/.local/share/virtualenvs/news-site-columnist-8tsXn7bh/lib/python3.10/site-packages/sentry_sdk/integrations/django/middleware.py in __call__(177)
  return f(*args, **kwargs)

/home/youser/.local/share/virtualenvs/news-site-columnist-8tsXn7bh/lib/python3.10/site-packages/sentry_sdk/integrations/django/middleware.py in __call__(177)
  return f(*args, **kwargs)

/home/youser/.local/share/virtualenvs/news-site-columnist-8tsXn7bh/lib/python3.10/site-packages/sentry_sdk/integrations/django/middleware.py in __call__(177)
  return f(*args, **kwargs)

/var/www/news-site-columnist/news/middleware/subdomain_middleare.py in __call__(22)
  response = self.get_response(request)

/home/youser/.local/share/virtualenvs/news-site-columnist-8tsXn7bh/lib/python3.10/site-packages/sentry_sdk/integrations/django/views.py in sentry_patched_render(41)
  return old_render(self)

/home/youser/.local/share/virtualenvs/news-site-columnist-8tsXn7bh/lib/python3.10/site-packages/django/template/response.py in render(114)
  self.content = self.rendered_content

/home/youser/.local/share/virtualenvs/news-site-columnist-8tsXn7bh/lib/python3.10/site-packages/sentry_sdk/utils.py in runner(1864)
  return sentry_patched_function(*args, **kwargs)

/home/youser/.local/share/virtualenvs/news-site-columnist-8tsXn7bh/lib/python3.10/site-packages/sentry_sdk/integrations/django/templates.py in rendered_content(77)
  return real_rendered_content.fget(self)

/home/youser/.local/share/virtualenvs/news-site-columnist-8tsXn7bh/lib/python3.10/site-packages/django/template/response.py in rendered_content(92)
  return template.render(context, self._request)

/home/youser/.local/share/virtualenvs/news-site-columnist-8tsXn7bh/lib/python3.10/site-packages/django/template/backends/django.py in render(61)
  return self.template.render(context)

/home/youser/.local/share/virtualenvs/news-site-columnist-8tsXn7bh/lib/python3.10/site-packages/template_timings_panel/panels/TemplateTimings.py in timing_hook(139)
  result = func(self, *args, **kwargs)

/home/youser/.local/share/virtualenvs/news-site-columnist-8tsXn7bh/lib/python3.10/site-packages/django/template/base.py in render(175)
  return self._render(context)

/home/youser/.local/share/virtualenvs/news-site-columnist-8tsXn7bh/lib/python3.10/site-packages/django/test/utils.py in instrumented_test_render(112)
  return self.nodelist.render(context)

/home/youser/.local/share/virtualenvs/news-site-columnist-8tsXn7bh/lib/python3.10/site-packages/django/template/base.py in render(1005)
  return SafeString("".join([node.render_annotated(context) for node in self]))

/home/youser/.local/share/virtualenvs/news-site-columnist-8tsXn7bh/lib/python3.10/site-packages/django/template/base.py in <listcomp>(1005)
  return SafeString("".join([node.render_annotated(context) for node in self]))

/home/youser/.local/share/virtualenvs/news-site-columnist-8tsXn7bh/lib/python3.10/site-packages/django/template/base.py in render_annotated(966)
  return self.render(context)

/home/youser/.local/share/virtualenvs/news-site-columnist-8tsXn7bh/lib/python3.10/site-packages/django/template/loader_tags.py in render(157)
  return compiled_parent._render(context)

/home/youser/.local/share/virtualenvs/news-site-columnist-8tsXn7bh/lib/python3.10/site-packages/django/test/utils.py in instrumented_test_render(112)
  return self.nodelist.render(context)

/home/youser/.local/share/virtualenvs/news-site-columnist-8tsXn7bh/lib/python3.10/site-packages/django/template/base.py in render(1005)
  return SafeString("".join([node.render_annotated(context) for node in self]))

/home/youser/.local/share/virtualenvs/news-site-columnist-8tsXn7bh/lib/python3.10/site-packages/django/template/base.py in <listcomp>(1005)
  return SafeString("".join([node.render_annotated(context) for node in self]))

/home/youser/.local/share/virtualenvs/news-site-columnist-8tsXn7bh/lib/python3.10/site-packages/django/template/base.py in render_annotated(966)
  return self.render(context)

/home/youser/.local/share/virtualenvs/news-site-columnist-8tsXn7bh/lib/python3.10/site-packages/template_timings_panel/panels/TemplateTimings.py in timing_hook(139)
  result = func(self, *args, **kwargs)

/home/youser/.local/share/virtualenvs/news-site-columnist-8tsXn7bh/lib/python3.10/site-packages/django/template/loader_tags.py in render(63)
  result = block.nodelist.render(context)

/home/youser/.local/share/virtualenvs/news-site-columnist-8tsXn7bh/lib/python3.10/site-packages/django/template/base.py in render(1005)
  return SafeString("".join([node.render_annotated(context) for node in self]))

/home/youser/.local/share/virtualenvs/news-site-columnist-8tsXn7bh/lib/python3.10/site-packages/django/template/base.py in <listcomp>(1005)
  return SafeString("".join([node.render_annotated(context) for node in self]))

/home/youser/.local/share/virtualenvs/news-site-columnist-8tsXn7bh/lib/python3.10/site-packages/django/template/base.py in render_annotated(966)
  return self.render(context)

/home/youser/.local/share/virtualenvs/news-site-columnist-8tsXn7bh/lib/python3.10/site-packages/template_timings_panel/panels/TemplateTimings.py in timing_hook(139)
  result = func(self, *args, **kwargs)

/home/youser/.local/share/virtualenvs/news-site-columnist-8tsXn7bh/lib/python3.10/site-packages/django/template/loader_tags.py in render(63)
  result = block.nodelist.render(context)

/home/youser/.local/share/virtualenvs/news-site-columnist-8tsXn7bh/lib/python3.10/site-packages/django/template/base.py in render(1005)
  return SafeString("".join([node.render_annotated(context) for node in self]))

/home/youser/.local/share/virtualenvs/news-site-columnist-8tsXn7bh/lib/python3.10/site-packages/django/template/base.py in <listcomp>(1005)
  return SafeString("".join([node.render_annotated(context) for node in self]))

/home/youser/.local/share/virtualenvs/news-site-columnist-8tsXn7bh/lib/python3.10/site-packages/django/template/base.py in render_annotated(966)
  return self.render(context)

/home/youser/.local/share/virtualenvs/news-site-columnist-8tsXn7bh/lib/python3.10/site-packages/django/template/loader_tags.py in render(208)
  return template.render(context)

/home/youser/.local/share/virtualenvs/news-site-columnist-8tsXn7bh/lib/python3.10/site-packages/template_timings_panel/panels/TemplateTimings.py in timing_hook(139)
  result = func(self, *args, **kwargs)

/home/youser/.local/share/virtualenvs/news-site-columnist-8tsXn7bh/lib/python3.10/site-packages/django/template/base.py in render(177)
  return self._render(context)

/home/youser/.local/share/virtualenvs/news-site-columnist-8tsXn7bh/lib/python3.10/site-packages/django/test/utils.py in instrumented_test_render(112)
  return self.nodelist.render(context)

/home/youser/.local/share/virtualenvs/news-site-columnist-8tsXn7bh/lib/python3.10/site-packages/django/template/base.py in render(1005)
  return SafeString("".join([node.render_annotated(context) for node in self]))

/home/youser/.local/share/virtualenvs/news-site-columnist-8tsXn7bh/lib/python3.10/site-packages/django/template/base.py in <listcomp>(1005)
  return SafeString("".join([node.render_annotated(context) for node in self]))

/home/youser/.local/share/virtualenvs/news-site-columnist-8tsXn7bh/lib/python3.10/site-packages/django/template/base.py in render_annotated(966)
  return self.render(context)

/home/youser/.local/share/virtualenvs/news-site-columnist-8tsXn7bh/lib/python3.10/site-packages/django/template/defaulttags.py in render(541)
  return self.nodelist.render(context)

/home/youser/.local/share/virtualenvs/news-site-columnist-8tsXn7bh/lib/python3.10/site-packages/django/template/base.py in render(1005)
  return SafeString("".join([node.render_annotated(context) for node in self]))

/home/youser/.local/share/virtualenvs/news-site-columnist-8tsXn7bh/lib/python3.10/site-packages/django/template/base.py in <listcomp>(1005)
  return SafeString("".join([node.render_annotated(context) for node in self]))

/home/youser/.local/share/virtualenvs/news-site-columnist-8tsXn7bh/lib/python3.10/site-packages/django/template/base.py in render_annotated(966)
  return self.render(context)

/home/youser/.local/share/virtualenvs/news-site-columnist-8tsXn7bh/lib/python3.10/site-packages/django/template/base.py in render(1064)
  output = self.filter_expression.resolve(context)

/home/youser/.local/share/virtualenvs/news-site-columnist-8tsXn7bh/lib/python3.10/site-packages/django/template/base.py in resolve(715)
  obj = self.var.resolve(context)

/home/youser/.local/share/virtualenvs/news-site-columnist-8tsXn7bh/lib/python3.10/site-packages/django/template/base.py in resolve(847)
  value = self._resolve_lookup(context)

/home/youser/.local/share/virtualenvs/news-site-columnist-8tsXn7bh/lib/python3.10/site-packages/django/template/base.py in _resolve_lookup(890)
  current = getattr(current, bit)

78 "image": [{% if seo_image %}"{{ seo_image|cf_image_variant:'1x1' }}", "{{ seo_image|cf_image_variant:'4x3' }}", "{{ seo_image|cf_image_variant:'16x9' }}"{% endif %}],
79 "author": [{
80 "@type": "Person",
81 "@id": "{{ post.author.get_absolute_url }}#person",
82 "name": "{{ post.author.name|escapejs }}",
83 "url": "{{ post.author.get_absolute_url }}",
84 "jobTitle": "{{ post.author.position|escapejs }}"
85 }],

/var/www/news-site-columnist/news/templates/news/includes/structured_data.html

SELECT "tag"."id",
       "tag"."created_at",
       "tag"."updated_at",
       "tag"."created_by",
       "tag"."updated_by",
       "tag"."slug",
       "tag"."name",
       "tag"."name_uk",
       "tag"."name_en",
       "tag"."name_ru",
       "tag"."description",
       "tag"."description_uk",
       "tag"."description_en",
       "tag"."description_ru",
       "tag"."seo_title",
       "tag"."seo_title_uk",
       "tag"."seo_title_en",
       "tag"."seo_title_ru",
       "tag"."seo_description",
       "tag"."seo_description_uk",
       "tag"."seo_description_en",
       "tag"."seo_description_ru",
       "tag"."is_active",
       "tag"."show_in_tags_sitemap"
  FROM "tag"
 INNER JOIN "post_tags"
    ON ("tag"."id" = "post_tags"."tag_id")
 WHERE "post_tags"."post_id" = 139383
SELECT ••• FROM "tag" INNER JOIN "post_tags" ON ("tag"."id" = "post_tags"."tag_id") WHERE "post_tags"."post_id" = 139383
2 similar queries. Duplicated 2 times.
1,17

Connection: default

Transaction status: Idle

/home/youser/.local/share/virtualenvs/news-site-columnist-8tsXn7bh/bin/gunicorn in <module>(8)
  sys.exit(run())

/home/youser/.local/share/virtualenvs/news-site-columnist-8tsXn7bh/lib/python3.10/site-packages/gunicorn/app/wsgiapp.py in run(66)
  WSGIApplication("%(prog)s [OPTIONS] [APP_MODULE]", prog=prog).run()

/home/youser/.local/share/virtualenvs/news-site-columnist-8tsXn7bh/lib/python3.10/site-packages/gunicorn/app/base.py in run(235)
  super().run()

/home/youser/.local/share/virtualenvs/news-site-columnist-8tsXn7bh/lib/python3.10/site-packages/gunicorn/app/base.py in run(71)
  Arbiter(self).run()

/home/youser/.local/share/virtualenvs/news-site-columnist-8tsXn7bh/lib/python3.10/site-packages/gunicorn/arbiter.py in run(210)
  self.manage_workers()

/home/youser/.local/share/virtualenvs/news-site-columnist-8tsXn7bh/lib/python3.10/site-packages/gunicorn/arbiter.py in manage_workers(570)
  self.spawn_workers()

/home/youser/.local/share/virtualenvs/news-site-columnist-8tsXn7bh/lib/python3.10/site-packages/gunicorn/arbiter.py in spawn_workers(641)
  self.spawn_worker()

/home/youser/.local/share/virtualenvs/news-site-columnist-8tsXn7bh/lib/python3.10/site-packages/gunicorn/arbiter.py in spawn_worker(608)
  worker.init_process()

/home/youser/.local/share/virtualenvs/news-site-columnist-8tsXn7bh/lib/python3.10/site-packages/gunicorn/workers/base.py in init_process(143)
  self.run()

/home/youser/.local/share/virtualenvs/news-site-columnist-8tsXn7bh/lib/python3.10/site-packages/gunicorn/workers/sync.py in run(125)
  self.run_for_one(timeout)

/home/youser/.local/share/virtualenvs/news-site-columnist-8tsXn7bh/lib/python3.10/site-packages/gunicorn/workers/sync.py in run_for_one(69)
  self.accept(listener)

/home/youser/.local/share/virtualenvs/news-site-columnist-8tsXn7bh/lib/python3.10/site-packages/gunicorn/workers/sync.py in accept(31)
  self.handle(listener, client, addr)

/home/youser/.local/share/virtualenvs/news-site-columnist-8tsXn7bh/lib/python3.10/site-packages/gunicorn/workers/sync.py in handle(134)
  self.handle_request(listener, req, client, addr)

/home/youser/.local/share/virtualenvs/news-site-columnist-8tsXn7bh/lib/python3.10/site-packages/gunicorn/workers/sync.py in handle_request(177)
  respiter = self.wsgi(environ, resp.start_response)

/home/youser/.local/share/virtualenvs/news-site-columnist-8tsXn7bh/lib/python3.10/site-packages/sentry_sdk/utils.py in runner(1864)
  return sentry_patched_function(*args, **kwargs)

/home/youser/.local/share/virtualenvs/news-site-columnist-8tsXn7bh/lib/python3.10/site-packages/sentry_sdk/integrations/django/__init__.py in sentry_patched_wsgi_handler(191)
  return middleware(environ, start_response)

/home/youser/.local/share/virtualenvs/news-site-columnist-8tsXn7bh/lib/python3.10/site-packages/sentry_sdk/integrations/wsgi.py in __call__(132)
  response = self.app(

/home/youser/.local/share/virtualenvs/news-site-columnist-8tsXn7bh/lib/python3.10/site-packages/sentry_sdk/integrations/django/__init__.py in sentry_patched_get_response(478)
  rv = old_get_response(self, request)

/home/youser/.local/share/virtualenvs/news-site-columnist-8tsXn7bh/lib/python3.10/site-packages/sentry_sdk/integrations/django/middleware.py in __call__(177)
  return f(*args, **kwargs)

/home/youser/.local/share/virtualenvs/news-site-columnist-8tsXn7bh/lib/python3.10/site-packages/sentry_sdk/integrations/django/middleware.py in __call__(177)
  return f(*args, **kwargs)

/var/www/news-site-columnist/redirects/middleware/redirect_middleware.py in __call__(17)
  return self.get_response(request)

/home/youser/.local/share/virtualenvs/news-site-columnist-8tsXn7bh/lib/python3.10/site-packages/sentry_sdk/integrations/django/middleware.py in __call__(177)
  return f(*args, **kwargs)

/home/youser/.local/share/virtualenvs/news-site-columnist-8tsXn7bh/lib/python3.10/site-packages/sentry_sdk/integrations/django/middleware.py in __call__(177)
  return f(*args, **kwargs)

/home/youser/.local/share/virtualenvs/news-site-columnist-8tsXn7bh/lib/python3.10/site-packages/sentry_sdk/integrations/django/middleware.py in __call__(177)
  return f(*args, **kwargs)

/home/youser/.local/share/virtualenvs/news-site-columnist-8tsXn7bh/lib/python3.10/site-packages/sentry_sdk/integrations/django/middleware.py in __call__(177)
  return f(*args, **kwargs)

/home/youser/.local/share/virtualenvs/news-site-columnist-8tsXn7bh/lib/python3.10/site-packages/corsheaders/middleware.py in __call__(53)
  result = self.get_response(request)

/home/youser/.local/share/virtualenvs/news-site-columnist-8tsXn7bh/lib/python3.10/site-packages/sentry_sdk/integrations/django/middleware.py in __call__(177)
  return f(*args, **kwargs)

/home/youser/.local/share/virtualenvs/news-site-columnist-8tsXn7bh/lib/python3.10/site-packages/django_user_agents/middleware.py in __call__(14)
  return self.get_response(request)

/home/youser/.local/share/virtualenvs/news-site-columnist-8tsXn7bh/lib/python3.10/site-packages/sentry_sdk/integrations/django/middleware.py in __call__(177)
  return f(*args, **kwargs)

/home/youser/.local/share/virtualenvs/news-site-columnist-8tsXn7bh/lib/python3.10/site-packages/sentry_sdk/integrations/django/middleware.py in __call__(177)
  return f(*args, **kwargs)

/home/youser/.local/share/virtualenvs/news-site-columnist-8tsXn7bh/lib/python3.10/site-packages/sentry_sdk/integrations/django/middleware.py in __call__(177)
  return f(*args, **kwargs)

/home/youser/.local/share/virtualenvs/news-site-columnist-8tsXn7bh/lib/python3.10/site-packages/sentry_sdk/integrations/django/middleware.py in __call__(177)
  return f(*args, **kwargs)

/home/youser/.local/share/virtualenvs/news-site-columnist-8tsXn7bh/lib/python3.10/site-packages/sentry_sdk/integrations/django/middleware.py in __call__(177)
  return f(*args, **kwargs)

/home/youser/.local/share/virtualenvs/news-site-columnist-8tsXn7bh/lib/python3.10/site-packages/sentry_sdk/integrations/django/middleware.py in __call__(177)
  return f(*args, **kwargs)

/home/youser/.local/share/virtualenvs/news-site-columnist-8tsXn7bh/lib/python3.10/site-packages/sentry_sdk/integrations/django/middleware.py in __call__(177)
  return f(*args, **kwargs)

/home/youser/.local/share/virtualenvs/news-site-columnist-8tsXn7bh/lib/python3.10/site-packages/sentry_sdk/integrations/django/middleware.py in __call__(177)
  return f(*args, **kwargs)

/var/www/news-site-columnist/news/middleware/subdomain_middleare.py in __call__(22)
  response = self.get_response(request)

/home/youser/.local/share/virtualenvs/news-site-columnist-8tsXn7bh/lib/python3.10/site-packages/sentry_sdk/integrations/django/views.py in sentry_patched_render(41)
  return old_render(self)

/home/youser/.local/share/virtualenvs/news-site-columnist-8tsXn7bh/lib/python3.10/site-packages/django/template/response.py in render(114)
  self.content = self.rendered_content

/home/youser/.local/share/virtualenvs/news-site-columnist-8tsXn7bh/lib/python3.10/site-packages/sentry_sdk/utils.py in runner(1864)
  return sentry_patched_function(*args, **kwargs)

/home/youser/.local/share/virtualenvs/news-site-columnist-8tsXn7bh/lib/python3.10/site-packages/sentry_sdk/integrations/django/templates.py in rendered_content(77)
  return real_rendered_content.fget(self)

/home/youser/.local/share/virtualenvs/news-site-columnist-8tsXn7bh/lib/python3.10/site-packages/django/template/response.py in rendered_content(92)
  return template.render(context, self._request)

/home/youser/.local/share/virtualenvs/news-site-columnist-8tsXn7bh/lib/python3.10/site-packages/django/template/backends/django.py in render(61)
  return self.template.render(context)

/home/youser/.local/share/virtualenvs/news-site-columnist-8tsXn7bh/lib/python3.10/site-packages/template_timings_panel/panels/TemplateTimings.py in timing_hook(139)
  result = func(self, *args, **kwargs)

/home/youser/.local/share/virtualenvs/news-site-columnist-8tsXn7bh/lib/python3.10/site-packages/django/template/base.py in render(175)
  return self._render(context)

/home/youser/.local/share/virtualenvs/news-site-columnist-8tsXn7bh/lib/python3.10/site-packages/django/test/utils.py in instrumented_test_render(112)
  return self.nodelist.render(context)

/home/youser/.local/share/virtualenvs/news-site-columnist-8tsXn7bh/lib/python3.10/site-packages/django/template/base.py in render(1005)
  return SafeString("".join([node.render_annotated(context) for node in self]))

/home/youser/.local/share/virtualenvs/news-site-columnist-8tsXn7bh/lib/python3.10/site-packages/django/template/base.py in <listcomp>(1005)
  return SafeString("".join([node.render_annotated(context) for node in self]))

/home/youser/.local/share/virtualenvs/news-site-columnist-8tsXn7bh/lib/python3.10/site-packages/django/template/base.py in render_annotated(966)
  return self.render(context)

/home/youser/.local/share/virtualenvs/news-site-columnist-8tsXn7bh/lib/python3.10/site-packages/django/template/loader_tags.py in render(157)
  return compiled_parent._render(context)

/home/youser/.local/share/virtualenvs/news-site-columnist-8tsXn7bh/lib/python3.10/site-packages/django/test/utils.py in instrumented_test_render(112)
  return self.nodelist.render(context)

/home/youser/.local/share/virtualenvs/news-site-columnist-8tsXn7bh/lib/python3.10/site-packages/django/template/base.py in render(1005)
  return SafeString("".join([node.render_annotated(context) for node in self]))

/home/youser/.local/share/virtualenvs/news-site-columnist-8tsXn7bh/lib/python3.10/site-packages/django/template/base.py in <listcomp>(1005)
  return SafeString("".join([node.render_annotated(context) for node in self]))

/home/youser/.local/share/virtualenvs/news-site-columnist-8tsXn7bh/lib/python3.10/site-packages/django/template/base.py in render_annotated(966)
  return self.render(context)

/home/youser/.local/share/virtualenvs/news-site-columnist-8tsXn7bh/lib/python3.10/site-packages/template_timings_panel/panels/TemplateTimings.py in timing_hook(139)
  result = func(self, *args, **kwargs)

/home/youser/.local/share/virtualenvs/news-site-columnist-8tsXn7bh/lib/python3.10/site-packages/django/template/loader_tags.py in render(63)
  result = block.nodelist.render(context)

/home/youser/.local/share/virtualenvs/news-site-columnist-8tsXn7bh/lib/python3.10/site-packages/django/template/base.py in render(1005)
  return SafeString("".join([node.render_annotated(context) for node in self]))

/home/youser/.local/share/virtualenvs/news-site-columnist-8tsXn7bh/lib/python3.10/site-packages/django/template/base.py in <listcomp>(1005)
  return SafeString("".join([node.render_annotated(context) for node in self]))

/home/youser/.local/share/virtualenvs/news-site-columnist-8tsXn7bh/lib/python3.10/site-packages/django/template/base.py in render_annotated(966)
  return self.render(context)

/home/youser/.local/share/virtualenvs/news-site-columnist-8tsXn7bh/lib/python3.10/site-packages/template_timings_panel/panels/TemplateTimings.py in timing_hook(139)
  result = func(self, *args, **kwargs)

/home/youser/.local/share/virtualenvs/news-site-columnist-8tsXn7bh/lib/python3.10/site-packages/django/template/loader_tags.py in render(63)
  result = block.nodelist.render(context)

/home/youser/.local/share/virtualenvs/news-site-columnist-8tsXn7bh/lib/python3.10/site-packages/django/template/base.py in render(1005)
  return SafeString("".join([node.render_annotated(context) for node in self]))

/home/youser/.local/share/virtualenvs/news-site-columnist-8tsXn7bh/lib/python3.10/site-packages/django/template/base.py in <listcomp>(1005)
  return SafeString("".join([node.render_annotated(context) for node in self]))

/home/youser/.local/share/virtualenvs/news-site-columnist-8tsXn7bh/lib/python3.10/site-packages/django/template/base.py in render_annotated(966)
  return self.render(context)

/home/youser/.local/share/virtualenvs/news-site-columnist-8tsXn7bh/lib/python3.10/site-packages/django/template/loader_tags.py in render(208)
  return template.render(context)

/home/youser/.local/share/virtualenvs/news-site-columnist-8tsXn7bh/lib/python3.10/site-packages/template_timings_panel/panels/TemplateTimings.py in timing_hook(139)
  result = func(self, *args, **kwargs)

/home/youser/.local/share/virtualenvs/news-site-columnist-8tsXn7bh/lib/python3.10/site-packages/django/template/base.py in render(177)
  return self._render(context)

/home/youser/.local/share/virtualenvs/news-site-columnist-8tsXn7bh/lib/python3.10/site-packages/django/test/utils.py in instrumented_test_render(112)
  return self.nodelist.render(context)

/home/youser/.local/share/virtualenvs/news-site-columnist-8tsXn7bh/lib/python3.10/site-packages/django/template/base.py in render(1005)
  return SafeString("".join([node.render_annotated(context) for node in self]))

/home/youser/.local/share/virtualenvs/news-site-columnist-8tsXn7bh/lib/python3.10/site-packages/django/template/base.py in <listcomp>(1005)
  return SafeString("".join([node.render_annotated(context) for node in self]))

/home/youser/.local/share/virtualenvs/news-site-columnist-8tsXn7bh/lib/python3.10/site-packages/django/template/base.py in render_annotated(966)
  return self.render(context)

/home/youser/.local/share/virtualenvs/news-site-columnist-8tsXn7bh/lib/python3.10/site-packages/django/template/defaulttags.py in render(541)
  return self.nodelist.render(context)

/home/youser/.local/share/virtualenvs/news-site-columnist-8tsXn7bh/lib/python3.10/site-packages/django/template/base.py in render(1005)
  return SafeString("".join([node.render_annotated(context) for node in self]))

/home/youser/.local/share/virtualenvs/news-site-columnist-8tsXn7bh/lib/python3.10/site-packages/django/template/base.py in <listcomp>(1005)
  return SafeString("".join([node.render_annotated(context) for node in self]))

/home/youser/.local/share/virtualenvs/news-site-columnist-8tsXn7bh/lib/python3.10/site-packages/django/template/base.py in render_annotated(966)
  return self.render(context)

/home/youser/.local/share/virtualenvs/news-site-columnist-8tsXn7bh/lib/python3.10/site-packages/django/template/defaulttags.py in render(320)
  if match:

84 "jobTitle": "{{ post.author.position|escapejs }}"
85 }],
86 "articleSection": "{% if is_column_post %}{% trans 'Контекст' %}{% else %}{{ post.category.name|default_if_none:''|escapejs }}{% endif %}",
87 "keywords": [{% if post.tags.all %}{% for tag in post.tags.all %}"{{ tag.name|escapejs }}"{% if not forloop.last %}, {% endif %}{% endfor %}{% endif %}],
88 "isAccessibleForFree": true,
89 "publisher": {"@id": "https://novyny.live/#organization"}
90 }
91 ]

/var/www/news-site-columnist/news/templates/news/includes/structured_data.html

SELECT "tag"."id",
       "tag"."created_at",
       "tag"."updated_at",
       "tag"."created_by",
       "tag"."updated_by",
       "tag"."slug",
       "tag"."name",
       "tag"."name_uk",
       "tag"."name_en",
       "tag"."name_ru",
       "tag"."description",
       "tag"."description_uk",
       "tag"."description_en",
       "tag"."description_ru",
       "tag"."seo_title",
       "tag"."seo_title_uk",
       "tag"."seo_title_en",
       "tag"."seo_title_ru",
       "tag"."seo_description",
       "tag"."seo_description_uk",
       "tag"."seo_description_en",
       "tag"."seo_description_ru",
       "tag"."is_active",
       "tag"."show_in_tags_sitemap"
  FROM "tag"
 INNER JOIN "post_tags"
    ON ("tag"."id" = "post_tags"."tag_id")
 WHERE "post_tags"."post_id" = 139383
SELECT ••• FROM "tag" INNER JOIN "post_tags" ON ("tag"."id" = "post_tags"."tag_id") WHERE "post_tags"."post_id" = 139383
2 similar queries. Duplicated 2 times.
1,17

Connection: default

Transaction status: Idle

/home/youser/.local/share/virtualenvs/news-site-columnist-8tsXn7bh/bin/gunicorn in <module>(8)
  sys.exit(run())

/home/youser/.local/share/virtualenvs/news-site-columnist-8tsXn7bh/lib/python3.10/site-packages/gunicorn/app/wsgiapp.py in run(66)
  WSGIApplication("%(prog)s [OPTIONS] [APP_MODULE]", prog=prog).run()

/home/youser/.local/share/virtualenvs/news-site-columnist-8tsXn7bh/lib/python3.10/site-packages/gunicorn/app/base.py in run(235)
  super().run()

/home/youser/.local/share/virtualenvs/news-site-columnist-8tsXn7bh/lib/python3.10/site-packages/gunicorn/app/base.py in run(71)
  Arbiter(self).run()

/home/youser/.local/share/virtualenvs/news-site-columnist-8tsXn7bh/lib/python3.10/site-packages/gunicorn/arbiter.py in run(210)
  self.manage_workers()

/home/youser/.local/share/virtualenvs/news-site-columnist-8tsXn7bh/lib/python3.10/site-packages/gunicorn/arbiter.py in manage_workers(570)
  self.spawn_workers()

/home/youser/.local/share/virtualenvs/news-site-columnist-8tsXn7bh/lib/python3.10/site-packages/gunicorn/arbiter.py in spawn_workers(641)
  self.spawn_worker()

/home/youser/.local/share/virtualenvs/news-site-columnist-8tsXn7bh/lib/python3.10/site-packages/gunicorn/arbiter.py in spawn_worker(608)
  worker.init_process()

/home/youser/.local/share/virtualenvs/news-site-columnist-8tsXn7bh/lib/python3.10/site-packages/gunicorn/workers/base.py in init_process(143)
  self.run()

/home/youser/.local/share/virtualenvs/news-site-columnist-8tsXn7bh/lib/python3.10/site-packages/gunicorn/workers/sync.py in run(125)
  self.run_for_one(timeout)

/home/youser/.local/share/virtualenvs/news-site-columnist-8tsXn7bh/lib/python3.10/site-packages/gunicorn/workers/sync.py in run_for_one(69)
  self.accept(listener)

/home/youser/.local/share/virtualenvs/news-site-columnist-8tsXn7bh/lib/python3.10/site-packages/gunicorn/workers/sync.py in accept(31)
  self.handle(listener, client, addr)

/home/youser/.local/share/virtualenvs/news-site-columnist-8tsXn7bh/lib/python3.10/site-packages/gunicorn/workers/sync.py in handle(134)
  self.handle_request(listener, req, client, addr)

/home/youser/.local/share/virtualenvs/news-site-columnist-8tsXn7bh/lib/python3.10/site-packages/gunicorn/workers/sync.py in handle_request(177)
  respiter = self.wsgi(environ, resp.start_response)

/home/youser/.local/share/virtualenvs/news-site-columnist-8tsXn7bh/lib/python3.10/site-packages/sentry_sdk/utils.py in runner(1864)
  return sentry_patched_function(*args, **kwargs)

/home/youser/.local/share/virtualenvs/news-site-columnist-8tsXn7bh/lib/python3.10/site-packages/sentry_sdk/integrations/django/__init__.py in sentry_patched_wsgi_handler(191)
  return middleware(environ, start_response)

/home/youser/.local/share/virtualenvs/news-site-columnist-8tsXn7bh/lib/python3.10/site-packages/sentry_sdk/integrations/wsgi.py in __call__(132)
  response = self.app(

/home/youser/.local/share/virtualenvs/news-site-columnist-8tsXn7bh/lib/python3.10/site-packages/sentry_sdk/integrations/django/__init__.py in sentry_patched_get_response(478)
  rv = old_get_response(self, request)

/home/youser/.local/share/virtualenvs/news-site-columnist-8tsXn7bh/lib/python3.10/site-packages/sentry_sdk/integrations/django/middleware.py in __call__(177)
  return f(*args, **kwargs)

/home/youser/.local/share/virtualenvs/news-site-columnist-8tsXn7bh/lib/python3.10/site-packages/sentry_sdk/integrations/django/middleware.py in __call__(177)
  return f(*args, **kwargs)

/var/www/news-site-columnist/redirects/middleware/redirect_middleware.py in __call__(17)
  return self.get_response(request)

/home/youser/.local/share/virtualenvs/news-site-columnist-8tsXn7bh/lib/python3.10/site-packages/sentry_sdk/integrations/django/middleware.py in __call__(177)
  return f(*args, **kwargs)

/home/youser/.local/share/virtualenvs/news-site-columnist-8tsXn7bh/lib/python3.10/site-packages/sentry_sdk/integrations/django/middleware.py in __call__(177)
  return f(*args, **kwargs)

/home/youser/.local/share/virtualenvs/news-site-columnist-8tsXn7bh/lib/python3.10/site-packages/sentry_sdk/integrations/django/middleware.py in __call__(177)
  return f(*args, **kwargs)

/home/youser/.local/share/virtualenvs/news-site-columnist-8tsXn7bh/lib/python3.10/site-packages/sentry_sdk/integrations/django/middleware.py in __call__(177)
  return f(*args, **kwargs)

/home/youser/.local/share/virtualenvs/news-site-columnist-8tsXn7bh/lib/python3.10/site-packages/corsheaders/middleware.py in __call__(53)
  result = self.get_response(request)

/home/youser/.local/share/virtualenvs/news-site-columnist-8tsXn7bh/lib/python3.10/site-packages/sentry_sdk/integrations/django/middleware.py in __call__(177)
  return f(*args, **kwargs)

/home/youser/.local/share/virtualenvs/news-site-columnist-8tsXn7bh/lib/python3.10/site-packages/django_user_agents/middleware.py in __call__(14)
  return self.get_response(request)

/home/youser/.local/share/virtualenvs/news-site-columnist-8tsXn7bh/lib/python3.10/site-packages/sentry_sdk/integrations/django/middleware.py in __call__(177)
  return f(*args, **kwargs)

/home/youser/.local/share/virtualenvs/news-site-columnist-8tsXn7bh/lib/python3.10/site-packages/sentry_sdk/integrations/django/middleware.py in __call__(177)
  return f(*args, **kwargs)

/home/youser/.local/share/virtualenvs/news-site-columnist-8tsXn7bh/lib/python3.10/site-packages/sentry_sdk/integrations/django/middleware.py in __call__(177)
  return f(*args, **kwargs)

/home/youser/.local/share/virtualenvs/news-site-columnist-8tsXn7bh/lib/python3.10/site-packages/sentry_sdk/integrations/django/middleware.py in __call__(177)
  return f(*args, **kwargs)

/home/youser/.local/share/virtualenvs/news-site-columnist-8tsXn7bh/lib/python3.10/site-packages/sentry_sdk/integrations/django/middleware.py in __call__(177)
  return f(*args, **kwargs)

/home/youser/.local/share/virtualenvs/news-site-columnist-8tsXn7bh/lib/python3.10/site-packages/sentry_sdk/integrations/django/middleware.py in __call__(177)
  return f(*args, **kwargs)

/home/youser/.local/share/virtualenvs/news-site-columnist-8tsXn7bh/lib/python3.10/site-packages/sentry_sdk/integrations/django/middleware.py in __call__(177)
  return f(*args, **kwargs)

/home/youser/.local/share/virtualenvs/news-site-columnist-8tsXn7bh/lib/python3.10/site-packages/sentry_sdk/integrations/django/middleware.py in __call__(177)
  return f(*args, **kwargs)

/var/www/news-site-columnist/news/middleware/subdomain_middleare.py in __call__(22)
  response = self.get_response(request)

/home/youser/.local/share/virtualenvs/news-site-columnist-8tsXn7bh/lib/python3.10/site-packages/sentry_sdk/integrations/django/views.py in sentry_patched_render(41)
  return old_render(self)

/home/youser/.local/share/virtualenvs/news-site-columnist-8tsXn7bh/lib/python3.10/site-packages/django/template/response.py in render(114)
  self.content = self.rendered_content

/home/youser/.local/share/virtualenvs/news-site-columnist-8tsXn7bh/lib/python3.10/site-packages/sentry_sdk/utils.py in runner(1864)
  return sentry_patched_function(*args, **kwargs)

/home/youser/.local/share/virtualenvs/news-site-columnist-8tsXn7bh/lib/python3.10/site-packages/sentry_sdk/integrations/django/templates.py in rendered_content(77)
  return real_rendered_content.fget(self)

/home/youser/.local/share/virtualenvs/news-site-columnist-8tsXn7bh/lib/python3.10/site-packages/django/template/response.py in rendered_content(92)
  return template.render(context, self._request)

/home/youser/.local/share/virtualenvs/news-site-columnist-8tsXn7bh/lib/python3.10/site-packages/django/template/backends/django.py in render(61)
  return self.template.render(context)

/home/youser/.local/share/virtualenvs/news-site-columnist-8tsXn7bh/lib/python3.10/site-packages/template_timings_panel/panels/TemplateTimings.py in timing_hook(139)
  result = func(self, *args, **kwargs)

/home/youser/.local/share/virtualenvs/news-site-columnist-8tsXn7bh/lib/python3.10/site-packages/django/template/base.py in render(175)
  return self._render(context)

/home/youser/.local/share/virtualenvs/news-site-columnist-8tsXn7bh/lib/python3.10/site-packages/django/test/utils.py in instrumented_test_render(112)
  return self.nodelist.render(context)

/home/youser/.local/share/virtualenvs/news-site-columnist-8tsXn7bh/lib/python3.10/site-packages/django/template/base.py in render(1005)
  return SafeString("".join([node.render_annotated(context) for node in self]))

/home/youser/.local/share/virtualenvs/news-site-columnist-8tsXn7bh/lib/python3.10/site-packages/django/template/base.py in <listcomp>(1005)
  return SafeString("".join([node.render_annotated(context) for node in self]))

/home/youser/.local/share/virtualenvs/news-site-columnist-8tsXn7bh/lib/python3.10/site-packages/django/template/base.py in render_annotated(966)
  return self.render(context)

/home/youser/.local/share/virtualenvs/news-site-columnist-8tsXn7bh/lib/python3.10/site-packages/django/template/loader_tags.py in render(157)
  return compiled_parent._render(context)

/home/youser/.local/share/virtualenvs/news-site-columnist-8tsXn7bh/lib/python3.10/site-packages/django/test/utils.py in instrumented_test_render(112)
  return self.nodelist.render(context)

/home/youser/.local/share/virtualenvs/news-site-columnist-8tsXn7bh/lib/python3.10/site-packages/django/template/base.py in render(1005)
  return SafeString("".join([node.render_annotated(context) for node in self]))

/home/youser/.local/share/virtualenvs/news-site-columnist-8tsXn7bh/lib/python3.10/site-packages/django/template/base.py in <listcomp>(1005)
  return SafeString("".join([node.render_annotated(context) for node in self]))

/home/youser/.local/share/virtualenvs/news-site-columnist-8tsXn7bh/lib/python3.10/site-packages/django/template/base.py in render_annotated(966)
  return self.render(context)

/home/youser/.local/share/virtualenvs/news-site-columnist-8tsXn7bh/lib/python3.10/site-packages/template_timings_panel/panels/TemplateTimings.py in timing_hook(139)
  result = func(self, *args, **kwargs)

/home/youser/.local/share/virtualenvs/news-site-columnist-8tsXn7bh/lib/python3.10/site-packages/django/template/loader_tags.py in render(63)
  result = block.nodelist.render(context)

/home/youser/.local/share/virtualenvs/news-site-columnist-8tsXn7bh/lib/python3.10/site-packages/django/template/base.py in render(1005)
  return SafeString("".join([node.render_annotated(context) for node in self]))

/home/youser/.local/share/virtualenvs/news-site-columnist-8tsXn7bh/lib/python3.10/site-packages/django/template/base.py in <listcomp>(1005)
  return SafeString("".join([node.render_annotated(context) for node in self]))

/home/youser/.local/share/virtualenvs/news-site-columnist-8tsXn7bh/lib/python3.10/site-packages/django/template/base.py in render_annotated(966)
  return self.render(context)

/home/youser/.local/share/virtualenvs/news-site-columnist-8tsXn7bh/lib/python3.10/site-packages/template_timings_panel/panels/TemplateTimings.py in timing_hook(139)
  result = func(self, *args, **kwargs)

/home/youser/.local/share/virtualenvs/news-site-columnist-8tsXn7bh/lib/python3.10/site-packages/django/template/loader_tags.py in render(63)
  result = block.nodelist.render(context)

/home/youser/.local/share/virtualenvs/news-site-columnist-8tsXn7bh/lib/python3.10/site-packages/django/template/base.py in render(1005)
  return SafeString("".join([node.render_annotated(context) for node in self]))

/home/youser/.local/share/virtualenvs/news-site-columnist-8tsXn7bh/lib/python3.10/site-packages/django/template/base.py in <listcomp>(1005)
  return SafeString("".join([node.render_annotated(context) for node in self]))

/home/youser/.local/share/virtualenvs/news-site-columnist-8tsXn7bh/lib/python3.10/site-packages/django/template/base.py in render_annotated(966)
  return self.render(context)

/home/youser/.local/share/virtualenvs/news-site-columnist-8tsXn7bh/lib/python3.10/site-packages/django/template/loader_tags.py in render(208)
  return template.render(context)

/home/youser/.local/share/virtualenvs/news-site-columnist-8tsXn7bh/lib/python3.10/site-packages/template_timings_panel/panels/TemplateTimings.py in timing_hook(139)
  result = func(self, *args, **kwargs)

/home/youser/.local/share/virtualenvs/news-site-columnist-8tsXn7bh/lib/python3.10/site-packages/django/template/base.py in render(177)
  return self._render(context)

/home/youser/.local/share/virtualenvs/news-site-columnist-8tsXn7bh/lib/python3.10/site-packages/django/test/utils.py in instrumented_test_render(112)
  return self.nodelist.render(context)

/home/youser/.local/share/virtualenvs/news-site-columnist-8tsXn7bh/lib/python3.10/site-packages/django/template/base.py in render(1005)
  return SafeString("".join([node.render_annotated(context) for node in self]))

/home/youser/.local/share/virtualenvs/news-site-columnist-8tsXn7bh/lib/python3.10/site-packages/django/template/base.py in <listcomp>(1005)
  return SafeString("".join([node.render_annotated(context) for node in self]))

/home/youser/.local/share/virtualenvs/news-site-columnist-8tsXn7bh/lib/python3.10/site-packages/django/template/base.py in render_annotated(966)
  return self.render(context)

/home/youser/.local/share/virtualenvs/news-site-columnist-8tsXn7bh/lib/python3.10/site-packages/django/template/defaulttags.py in render(541)
  return self.nodelist.render(context)

/home/youser/.local/share/virtualenvs/news-site-columnist-8tsXn7bh/lib/python3.10/site-packages/django/template/base.py in render(1005)
  return SafeString("".join([node.render_annotated(context) for node in self]))

/home/youser/.local/share/virtualenvs/news-site-columnist-8tsXn7bh/lib/python3.10/site-packages/django/template/base.py in <listcomp>(1005)
  return SafeString("".join([node.render_annotated(context) for node in self]))

/home/youser/.local/share/virtualenvs/news-site-columnist-8tsXn7bh/lib/python3.10/site-packages/django/template/base.py in render_annotated(966)
  return self.render(context)

/home/youser/.local/share/virtualenvs/news-site-columnist-8tsXn7bh/lib/python3.10/site-packages/django/template/defaulttags.py in render(321)
  return nodelist.render(context)

/home/youser/.local/share/virtualenvs/news-site-columnist-8tsXn7bh/lib/python3.10/site-packages/django/template/base.py in render(1005)
  return SafeString("".join([node.render_annotated(context) for node in self]))

/home/youser/.local/share/virtualenvs/news-site-columnist-8tsXn7bh/lib/python3.10/site-packages/django/template/base.py in <listcomp>(1005)
  return SafeString("".join([node.render_annotated(context) for node in self]))

/home/youser/.local/share/virtualenvs/news-site-columnist-8tsXn7bh/lib/python3.10/site-packages/django/template/base.py in render_annotated(966)
  return self.render(context)

/home/youser/.local/share/virtualenvs/news-site-columnist-8tsXn7bh/lib/python3.10/site-packages/django/template/defaulttags.py in render(194)
  len_values = len(values)

84 "jobTitle": "{{ post.author.position|escapejs }}"
85 }],
86 "articleSection": "{% if is_column_post %}{% trans 'Контекст' %}{% else %}{{ post.category.name|default_if_none:''|escapejs }}{% endif %}",
87 "keywords": [{% if post.tags.all %}{% for tag in post.tags.all %}"{{ tag.name|escapejs }}"{% if not forloop.last %}, {% endif %}{% endfor %}{% endif %}],
88 "isAccessibleForFree": true,
89 "publisher": {"@id": "https://novyny.live/#organization"}
90 }
91 ]

/var/www/news-site-columnist/news/templates/news/includes/structured_data.html

SELECT "users_user"."id",
       "users_user"."password",
       "users_user"."last_login",
       "users_user"."is_superuser",
       "users_user"."first_name",
       "users_user"."last_name",
       "users_user"."is_staff",
       "users_user"."is_active",
       "users_user"."date_joined",
       "users_user"."created_at",
       "users_user"."updated_at",
       "users_user"."created_by",
       "users_user"."updated_by",
       "users_user"."full_name",
       "users_user"."email",
       "users_user"."news_author_id",
       "users_user"."freelancer",
       "users_user"."username",
       "users_user"."can_translate_to_english"
  FROM "users_user"
 INNER JOIN "post_authors"
    ON ("users_user"."id" = "post_authors"."user_id")
 WHERE "post_authors"."post_id" = 139383
SELECT ••• FROM "users_user" INNER JOIN "post_authors" ON ("users_user"."id" = "post_authors"."user_id") WHERE "post_authors"."post_id" = 139383
4 similar queries. Duplicated 4 times.
0,90

Connection: default

Transaction status: Idle

/home/youser/.local/share/virtualenvs/news-site-columnist-8tsXn7bh/bin/gunicorn in <module>(8)
  sys.exit(run())

/home/youser/.local/share/virtualenvs/news-site-columnist-8tsXn7bh/lib/python3.10/site-packages/gunicorn/app/wsgiapp.py in run(66)
  WSGIApplication("%(prog)s [OPTIONS] [APP_MODULE]", prog=prog).run()

/home/youser/.local/share/virtualenvs/news-site-columnist-8tsXn7bh/lib/python3.10/site-packages/gunicorn/app/base.py in run(235)
  super().run()

/home/youser/.local/share/virtualenvs/news-site-columnist-8tsXn7bh/lib/python3.10/site-packages/gunicorn/app/base.py in run(71)
  Arbiter(self).run()

/home/youser/.local/share/virtualenvs/news-site-columnist-8tsXn7bh/lib/python3.10/site-packages/gunicorn/arbiter.py in run(210)
  self.manage_workers()

/home/youser/.local/share/virtualenvs/news-site-columnist-8tsXn7bh/lib/python3.10/site-packages/gunicorn/arbiter.py in manage_workers(570)
  self.spawn_workers()

/home/youser/.local/share/virtualenvs/news-site-columnist-8tsXn7bh/lib/python3.10/site-packages/gunicorn/arbiter.py in spawn_workers(641)
  self.spawn_worker()

/home/youser/.local/share/virtualenvs/news-site-columnist-8tsXn7bh/lib/python3.10/site-packages/gunicorn/arbiter.py in spawn_worker(608)
  worker.init_process()

/home/youser/.local/share/virtualenvs/news-site-columnist-8tsXn7bh/lib/python3.10/site-packages/gunicorn/workers/base.py in init_process(143)
  self.run()

/home/youser/.local/share/virtualenvs/news-site-columnist-8tsXn7bh/lib/python3.10/site-packages/gunicorn/workers/sync.py in run(125)
  self.run_for_one(timeout)

/home/youser/.local/share/virtualenvs/news-site-columnist-8tsXn7bh/lib/python3.10/site-packages/gunicorn/workers/sync.py in run_for_one(69)
  self.accept(listener)

/home/youser/.local/share/virtualenvs/news-site-columnist-8tsXn7bh/lib/python3.10/site-packages/gunicorn/workers/sync.py in accept(31)
  self.handle(listener, client, addr)

/home/youser/.local/share/virtualenvs/news-site-columnist-8tsXn7bh/lib/python3.10/site-packages/gunicorn/workers/sync.py in handle(134)
  self.handle_request(listener, req, client, addr)

/home/youser/.local/share/virtualenvs/news-site-columnist-8tsXn7bh/lib/python3.10/site-packages/gunicorn/workers/sync.py in handle_request(177)
  respiter = self.wsgi(environ, resp.start_response)

/home/youser/.local/share/virtualenvs/news-site-columnist-8tsXn7bh/lib/python3.10/site-packages/sentry_sdk/utils.py in runner(1864)
  return sentry_patched_function(*args, **kwargs)

/home/youser/.local/share/virtualenvs/news-site-columnist-8tsXn7bh/lib/python3.10/site-packages/sentry_sdk/integrations/django/__init__.py in sentry_patched_wsgi_handler(191)
  return middleware(environ, start_response)

/home/youser/.local/share/virtualenvs/news-site-columnist-8tsXn7bh/lib/python3.10/site-packages/sentry_sdk/integrations/wsgi.py in __call__(132)
  response = self.app(

/home/youser/.local/share/virtualenvs/news-site-columnist-8tsXn7bh/lib/python3.10/site-packages/sentry_sdk/integrations/django/__init__.py in sentry_patched_get_response(478)
  rv = old_get_response(self, request)

/home/youser/.local/share/virtualenvs/news-site-columnist-8tsXn7bh/lib/python3.10/site-packages/sentry_sdk/integrations/django/middleware.py in __call__(177)
  return f(*args, **kwargs)

/home/youser/.local/share/virtualenvs/news-site-columnist-8tsXn7bh/lib/python3.10/site-packages/sentry_sdk/integrations/django/middleware.py in __call__(177)
  return f(*args, **kwargs)

/var/www/news-site-columnist/redirects/middleware/redirect_middleware.py in __call__(17)
  return self.get_response(request)

/home/youser/.local/share/virtualenvs/news-site-columnist-8tsXn7bh/lib/python3.10/site-packages/sentry_sdk/integrations/django/middleware.py in __call__(177)
  return f(*args, **kwargs)

/home/youser/.local/share/virtualenvs/news-site-columnist-8tsXn7bh/lib/python3.10/site-packages/sentry_sdk/integrations/django/middleware.py in __call__(177)
  return f(*args, **kwargs)

/home/youser/.local/share/virtualenvs/news-site-columnist-8tsXn7bh/lib/python3.10/site-packages/sentry_sdk/integrations/django/middleware.py in __call__(177)
  return f(*args, **kwargs)

/home/youser/.local/share/virtualenvs/news-site-columnist-8tsXn7bh/lib/python3.10/site-packages/sentry_sdk/integrations/django/middleware.py in __call__(177)
  return f(*args, **kwargs)

/home/youser/.local/share/virtualenvs/news-site-columnist-8tsXn7bh/lib/python3.10/site-packages/corsheaders/middleware.py in __call__(53)
  result = self.get_response(request)

/home/youser/.local/share/virtualenvs/news-site-columnist-8tsXn7bh/lib/python3.10/site-packages/sentry_sdk/integrations/django/middleware.py in __call__(177)
  return f(*args, **kwargs)

/home/youser/.local/share/virtualenvs/news-site-columnist-8tsXn7bh/lib/python3.10/site-packages/django_user_agents/middleware.py in __call__(14)
  return self.get_response(request)

/home/youser/.local/share/virtualenvs/news-site-columnist-8tsXn7bh/lib/python3.10/site-packages/sentry_sdk/integrations/django/middleware.py in __call__(177)
  return f(*args, **kwargs)

/home/youser/.local/share/virtualenvs/news-site-columnist-8tsXn7bh/lib/python3.10/site-packages/sentry_sdk/integrations/django/middleware.py in __call__(177)
  return f(*args, **kwargs)

/home/youser/.local/share/virtualenvs/news-site-columnist-8tsXn7bh/lib/python3.10/site-packages/sentry_sdk/integrations/django/middleware.py in __call__(177)
  return f(*args, **kwargs)

/home/youser/.local/share/virtualenvs/news-site-columnist-8tsXn7bh/lib/python3.10/site-packages/sentry_sdk/integrations/django/middleware.py in __call__(177)
  return f(*args, **kwargs)

/home/youser/.local/share/virtualenvs/news-site-columnist-8tsXn7bh/lib/python3.10/site-packages/sentry_sdk/integrations/django/middleware.py in __call__(177)
  return f(*args, **kwargs)

/home/youser/.local/share/virtualenvs/news-site-columnist-8tsXn7bh/lib/python3.10/site-packages/sentry_sdk/integrations/django/middleware.py in __call__(177)
  return f(*args, **kwargs)

/home/youser/.local/share/virtualenvs/news-site-columnist-8tsXn7bh/lib/python3.10/site-packages/sentry_sdk/integrations/django/middleware.py in __call__(177)
  return f(*args, **kwargs)

/home/youser/.local/share/virtualenvs/news-site-columnist-8tsXn7bh/lib/python3.10/site-packages/sentry_sdk/integrations/django/middleware.py in __call__(177)
  return f(*args, **kwargs)

/var/www/news-site-columnist/news/middleware/subdomain_middleare.py in __call__(22)
  response = self.get_response(request)

/home/youser/.local/share/virtualenvs/news-site-columnist-8tsXn7bh/lib/python3.10/site-packages/sentry_sdk/integrations/django/views.py in sentry_patched_render(41)
  return old_render(self)

/home/youser/.local/share/virtualenvs/news-site-columnist-8tsXn7bh/lib/python3.10/site-packages/django/template/response.py in render(114)
  self.content = self.rendered_content

/home/youser/.local/share/virtualenvs/news-site-columnist-8tsXn7bh/lib/python3.10/site-packages/sentry_sdk/utils.py in runner(1864)
  return sentry_patched_function(*args, **kwargs)

/home/youser/.local/share/virtualenvs/news-site-columnist-8tsXn7bh/lib/python3.10/site-packages/sentry_sdk/integrations/django/templates.py in rendered_content(77)
  return real_rendered_content.fget(self)

/home/youser/.local/share/virtualenvs/news-site-columnist-8tsXn7bh/lib/python3.10/site-packages/django/template/response.py in rendered_content(92)
  return template.render(context, self._request)

/home/youser/.local/share/virtualenvs/news-site-columnist-8tsXn7bh/lib/python3.10/site-packages/django/template/backends/django.py in render(61)
  return self.template.render(context)

/home/youser/.local/share/virtualenvs/news-site-columnist-8tsXn7bh/lib/python3.10/site-packages/template_timings_panel/panels/TemplateTimings.py in timing_hook(139)
  result = func(self, *args, **kwargs)

/home/youser/.local/share/virtualenvs/news-site-columnist-8tsXn7bh/lib/python3.10/site-packages/django/template/base.py in render(175)
  return self._render(context)

/home/youser/.local/share/virtualenvs/news-site-columnist-8tsXn7bh/lib/python3.10/site-packages/django/test/utils.py in instrumented_test_render(112)
  return self.nodelist.render(context)

/home/youser/.local/share/virtualenvs/news-site-columnist-8tsXn7bh/lib/python3.10/site-packages/django/template/base.py in render(1005)
  return SafeString("".join([node.render_annotated(context) for node in self]))

/home/youser/.local/share/virtualenvs/news-site-columnist-8tsXn7bh/lib/python3.10/site-packages/django/template/base.py in <listcomp>(1005)
  return SafeString("".join([node.render_annotated(context) for node in self]))

/home/youser/.local/share/virtualenvs/news-site-columnist-8tsXn7bh/lib/python3.10/site-packages/django/template/base.py in render_annotated(966)
  return self.render(context)

/home/youser/.local/share/virtualenvs/news-site-columnist-8tsXn7bh/lib/python3.10/site-packages/django/template/loader_tags.py in render(157)
  return compiled_parent._render(context)

/home/youser/.local/share/virtualenvs/news-site-columnist-8tsXn7bh/lib/python3.10/site-packages/django/test/utils.py in instrumented_test_render(112)
  return self.nodelist.render(context)

/home/youser/.local/share/virtualenvs/news-site-columnist-8tsXn7bh/lib/python3.10/site-packages/django/template/base.py in render(1005)
  return SafeString("".join([node.render_annotated(context) for node in self]))

/home/youser/.local/share/virtualenvs/news-site-columnist-8tsXn7bh/lib/python3.10/site-packages/django/template/base.py in <listcomp>(1005)
  return SafeString("".join([node.render_annotated(context) for node in self]))

/home/youser/.local/share/virtualenvs/news-site-columnist-8tsXn7bh/lib/python3.10/site-packages/django/template/base.py in render_annotated(966)
  return self.render(context)

/home/youser/.local/share/virtualenvs/news-site-columnist-8tsXn7bh/lib/python3.10/site-packages/template_timings_panel/panels/TemplateTimings.py in timing_hook(139)
  result = func(self, *args, **kwargs)

/home/youser/.local/share/virtualenvs/news-site-columnist-8tsXn7bh/lib/python3.10/site-packages/django/template/loader_tags.py in render(63)
  result = block.nodelist.render(context)

/home/youser/.local/share/virtualenvs/news-site-columnist-8tsXn7bh/lib/python3.10/site-packages/django/template/base.py in render(1005)
  return SafeString("".join([node.render_annotated(context) for node in self]))

/home/youser/.local/share/virtualenvs/news-site-columnist-8tsXn7bh/lib/python3.10/site-packages/django/template/base.py in <listcomp>(1005)
  return SafeString("".join([node.render_annotated(context) for node in self]))

/home/youser/.local/share/virtualenvs/news-site-columnist-8tsXn7bh/lib/python3.10/site-packages/django/template/base.py in render_annotated(966)
  return self.render(context)

/home/youser/.local/share/virtualenvs/news-site-columnist-8tsXn7bh/lib/python3.10/site-packages/django/template/defaulttags.py in render(414)
  return strip_spaces_between_tags(self.nodelist.render(context).strip())

/home/youser/.local/share/virtualenvs/news-site-columnist-8tsXn7bh/lib/python3.10/site-packages/django/template/base.py in render(1005)
  return SafeString("".join([node.render_annotated(context) for node in self]))

/home/youser/.local/share/virtualenvs/news-site-columnist-8tsXn7bh/lib/python3.10/site-packages/django/template/base.py in <listcomp>(1005)
  return SafeString("".join([node.render_annotated(context) for node in self]))

/home/youser/.local/share/virtualenvs/news-site-columnist-8tsXn7bh/lib/python3.10/site-packages/django/template/base.py in render_annotated(966)
  return self.render(context)

/home/youser/.local/share/virtualenvs/news-site-columnist-8tsXn7bh/lib/python3.10/site-packages/django/template/defaulttags.py in render(314)
  match = condition.eval(context)

/home/youser/.local/share/virtualenvs/news-site-columnist-8tsXn7bh/lib/python3.10/site-packages/django/template/smartif.py in eval(60)
  return func(context, self.first, self.second)

/home/youser/.local/share/virtualenvs/news-site-columnist-8tsXn7bh/lib/python3.10/site-packages/django/template/smartif.py in <lambda>(109)
  "<=": infix(10, lambda context, x, y: x.eval(context) <= y.eval(context)),

/home/youser/.local/share/virtualenvs/news-site-columnist-8tsXn7bh/lib/python3.10/site-packages/django/template/defaulttags.py in eval(877)
  return self.value.resolve(context, ignore_failures=True)

/home/youser/.local/share/virtualenvs/news-site-columnist-8tsXn7bh/lib/python3.10/site-packages/django/template/base.py in resolve(742)
  new_obj = func(obj, *arg_vals)

/home/youser/.local/share/virtualenvs/news-site-columnist-8tsXn7bh/lib/python3.10/site-packages/django/template/defaultfilters.py in length(609)
  return len(value)

111 language_type: "{{request.LANGUAGE_CODE}}",
112 article_publication_date: "{{post.publish_at|date:'Y-m-d H:i:s'}}",
113 article_authors:{% spaceless %}
114 {% if post.authors.all|length <= 1 %}
115 ["{{post.author.name}}"],
116 {% else %}
117 [{% for u in post.authors.all %}"{{ u.news_author.name }}"
118 {% if not forloop.last %}, {% endif %}{% endfor %}],

/var/www/news-site-columnist/news/templates/new-design/single_post.html

SELECT "category"."id",
       "category"."created_at",
       "category"."updated_at",
       "category"."seo_title",
       "category"."seo_title_uk",
       "category"."seo_title_en",
       "category"."seo_title_ru",
       "category"."seo_description",
       "category"."seo_description_uk",
       "category"."seo_description_en",
       "category"."seo_description_ru",
       "category"."seo_keywords",
       "category"."seo_keywords_uk",
       "category"."seo_keywords_en",
       "category"."seo_keywords_ru",
       "category"."seo_header_one",
       "category"."seo_header_one_uk",
       "category"."seo_header_one_en",
       "category"."seo_header_one_ru",
       "category"."seo_news_title",
       "category"."seo_news_title_uk",
       "category"."seo_news_title_en",
       "category"."seo_news_title_ru",
       "category"."seo_news_description",
       "category"."seo_news_description_uk",
       "category"."seo_news_description_en",
       "category"."seo_news_description_ru",
       "category"."subdomain",
       "category"."parent_id",
       "category"."image",
       "category"."is_active",
       "category"."is_rss_active",
       "category"."is_interesting",
       "category"."ticker_rss_active",
       "category"."show_home",
       "category"."show_home_en",
       "category"."show_video",
       "category"."show_menu",
       "category"."show_menu_uk",
       "category"."show_menu_en",
       "category"."show_menu_ru",
       "category"."show_footer",
       "category"."show_menu_in_en",
       "category"."show_footer_in_en",
       "category"."show_in_search",
       "category"."show_in_header",
       "category"."show_in_header_uk",
       "category"."show_in_header_en",
       "category"."show_in_header_ru",
       "category"."seo_tag_id",
       "category"."sort_weight",
       "category"."sort_weight_en",
       "category"."header_sort_weight",
       "category"."header_sort_weight_uk",
       "category"."header_sort_weight_en",
       "category"."header_sort_weight_ru",
       "category"."footer_sort_weight",
       "category"."menu_sort_weight",
       "category"."name",
       "category"."name_uk",
       "category"."name_en",
       "category"."name_ru",
       "category"."slug",
       "category"."description",
       "category"."description_uk",
       "category"."description_en",
       "category"."description_ru",
       "category"."fb_link",
       "category"."tg_link",
       "category"."show_banner",
       "category"."uk_has_translation",
       "category"."ru_has_translation",
       "category"."en_has_translation",
       "category"."has_infinite_scroll",
       "category"."_show_home_without_subdomain",
       "category"."_show_home_without_subdomain_en",
       "category"."background_id",
       "category"."use_old_design",
       "category"."use_old_design_for_posts",
       "category"."is_context_category",
       "category"."show_stories_on_main",
       "category"."show_posts_table_of_contents",
       "category"."svg_icon"
  FROM "category"
 WHERE ("category"."uk_has_translation" AND NOT "category"."is_context_category" AND "category"."show_in_header_uk")
 ORDER BY "category"."header_sort_weight_uk" DESC
SELECT ••• FROM "category" WHERE ("category"."uk_has_translation" AND NOT "category"."is_context_category" AND "category"."show_in_header_uk") ORDER BY "category"."header_sort_weight_uk" DESC
3 similar queries. Duplicated 3 times.
1,09

Connection: default

Transaction status: Idle

/home/youser/.local/share/virtualenvs/news-site-columnist-8tsXn7bh/bin/gunicorn in <module>(8)
  sys.exit(run())

/home/youser/.local/share/virtualenvs/news-site-columnist-8tsXn7bh/lib/python3.10/site-packages/gunicorn/app/wsgiapp.py in run(66)
  WSGIApplication("%(prog)s [OPTIONS] [APP_MODULE]", prog=prog).run()

/home/youser/.local/share/virtualenvs/news-site-columnist-8tsXn7bh/lib/python3.10/site-packages/gunicorn/app/base.py in run(235)
  super().run()

/home/youser/.local/share/virtualenvs/news-site-columnist-8tsXn7bh/lib/python3.10/site-packages/gunicorn/app/base.py in run(71)
  Arbiter(self).run()

/home/youser/.local/share/virtualenvs/news-site-columnist-8tsXn7bh/lib/python3.10/site-packages/gunicorn/arbiter.py in run(210)
  self.manage_workers()

/home/youser/.local/share/virtualenvs/news-site-columnist-8tsXn7bh/lib/python3.10/site-packages/gunicorn/arbiter.py in manage_workers(570)
  self.spawn_workers()

/home/youser/.local/share/virtualenvs/news-site-columnist-8tsXn7bh/lib/python3.10/site-packages/gunicorn/arbiter.py in spawn_workers(641)
  self.spawn_worker()

/home/youser/.local/share/virtualenvs/news-site-columnist-8tsXn7bh/lib/python3.10/site-packages/gunicorn/arbiter.py in spawn_worker(608)
  worker.init_process()

/home/youser/.local/share/virtualenvs/news-site-columnist-8tsXn7bh/lib/python3.10/site-packages/gunicorn/workers/base.py in init_process(143)
  self.run()

/home/youser/.local/share/virtualenvs/news-site-columnist-8tsXn7bh/lib/python3.10/site-packages/gunicorn/workers/sync.py in run(125)
  self.run_for_one(timeout)

/home/youser/.local/share/virtualenvs/news-site-columnist-8tsXn7bh/lib/python3.10/site-packages/gunicorn/workers/sync.py in run_for_one(69)
  self.accept(listener)

/home/youser/.local/share/virtualenvs/news-site-columnist-8tsXn7bh/lib/python3.10/site-packages/gunicorn/workers/sync.py in accept(31)
  self.handle(listener, client, addr)

/home/youser/.local/share/virtualenvs/news-site-columnist-8tsXn7bh/lib/python3.10/site-packages/gunicorn/workers/sync.py in handle(134)
  self.handle_request(listener, req, client, addr)

/home/youser/.local/share/virtualenvs/news-site-columnist-8tsXn7bh/lib/python3.10/site-packages/gunicorn/workers/sync.py in handle_request(177)
  respiter = self.wsgi(environ, resp.start_response)

/home/youser/.local/share/virtualenvs/news-site-columnist-8tsXn7bh/lib/python3.10/site-packages/sentry_sdk/utils.py in runner(1864)
  return sentry_patched_function(*args, **kwargs)

/home/youser/.local/share/virtualenvs/news-site-columnist-8tsXn7bh/lib/python3.10/site-packages/sentry_sdk/integrations/django/__init__.py in sentry_patched_wsgi_handler(191)
  return middleware(environ, start_response)

/home/youser/.local/share/virtualenvs/news-site-columnist-8tsXn7bh/lib/python3.10/site-packages/sentry_sdk/integrations/wsgi.py in __call__(132)
  response = self.app(

/home/youser/.local/share/virtualenvs/news-site-columnist-8tsXn7bh/lib/python3.10/site-packages/sentry_sdk/integrations/django/__init__.py in sentry_patched_get_response(478)
  rv = old_get_response(self, request)

/home/youser/.local/share/virtualenvs/news-site-columnist-8tsXn7bh/lib/python3.10/site-packages/sentry_sdk/integrations/django/middleware.py in __call__(177)
  return f(*args, **kwargs)

/home/youser/.local/share/virtualenvs/news-site-columnist-8tsXn7bh/lib/python3.10/site-packages/sentry_sdk/integrations/django/middleware.py in __call__(177)
  return f(*args, **kwargs)

/var/www/news-site-columnist/redirects/middleware/redirect_middleware.py in __call__(17)
  return self.get_response(request)

/home/youser/.local/share/virtualenvs/news-site-columnist-8tsXn7bh/lib/python3.10/site-packages/sentry_sdk/integrations/django/middleware.py in __call__(177)
  return f(*args, **kwargs)

/home/youser/.local/share/virtualenvs/news-site-columnist-8tsXn7bh/lib/python3.10/site-packages/sentry_sdk/integrations/django/middleware.py in __call__(177)
  return f(*args, **kwargs)

/home/youser/.local/share/virtualenvs/news-site-columnist-8tsXn7bh/lib/python3.10/site-packages/sentry_sdk/integrations/django/middleware.py in __call__(177)
  return f(*args, **kwargs)

/home/youser/.local/share/virtualenvs/news-site-columnist-8tsXn7bh/lib/python3.10/site-packages/sentry_sdk/integrations/django/middleware.py in __call__(177)
  return f(*args, **kwargs)

/home/youser/.local/share/virtualenvs/news-site-columnist-8tsXn7bh/lib/python3.10/site-packages/corsheaders/middleware.py in __call__(53)
  result = self.get_response(request)

/home/youser/.local/share/virtualenvs/news-site-columnist-8tsXn7bh/lib/python3.10/site-packages/sentry_sdk/integrations/django/middleware.py in __call__(177)
  return f(*args, **kwargs)

/home/youser/.local/share/virtualenvs/news-site-columnist-8tsXn7bh/lib/python3.10/site-packages/django_user_agents/middleware.py in __call__(14)
  return self.get_response(request)

/home/youser/.local/share/virtualenvs/news-site-columnist-8tsXn7bh/lib/python3.10/site-packages/sentry_sdk/integrations/django/middleware.py in __call__(177)
  return f(*args, **kwargs)

/home/youser/.local/share/virtualenvs/news-site-columnist-8tsXn7bh/lib/python3.10/site-packages/sentry_sdk/integrations/django/middleware.py in __call__(177)
  return f(*args, **kwargs)

/home/youser/.local/share/virtualenvs/news-site-columnist-8tsXn7bh/lib/python3.10/site-packages/sentry_sdk/integrations/django/middleware.py in __call__(177)
  return f(*args, **kwargs)

/home/youser/.local/share/virtualenvs/news-site-columnist-8tsXn7bh/lib/python3.10/site-packages/sentry_sdk/integrations/django/middleware.py in __call__(177)
  return f(*args, **kwargs)

/home/youser/.local/share/virtualenvs/news-site-columnist-8tsXn7bh/lib/python3.10/site-packages/sentry_sdk/integrations/django/middleware.py in __call__(177)
  return f(*args, **kwargs)

/home/youser/.local/share/virtualenvs/news-site-columnist-8tsXn7bh/lib/python3.10/site-packages/sentry_sdk/integrations/django/middleware.py in __call__(177)
  return f(*args, **kwargs)

/home/youser/.local/share/virtualenvs/news-site-columnist-8tsXn7bh/lib/python3.10/site-packages/sentry_sdk/integrations/django/middleware.py in __call__(177)
  return f(*args, **kwargs)

/home/youser/.local/share/virtualenvs/news-site-columnist-8tsXn7bh/lib/python3.10/site-packages/sentry_sdk/integrations/django/middleware.py in __call__(177)
  return f(*args, **kwargs)

/var/www/news-site-columnist/news/middleware/subdomain_middleare.py in __call__(22)
  response = self.get_response(request)

/home/youser/.local/share/virtualenvs/news-site-columnist-8tsXn7bh/lib/python3.10/site-packages/sentry_sdk/integrations/django/views.py in sentry_patched_render(41)
  return old_render(self)

/home/youser/.local/share/virtualenvs/news-site-columnist-8tsXn7bh/lib/python3.10/site-packages/django/template/response.py in render(114)
  self.content = self.rendered_content

/home/youser/.local/share/virtualenvs/news-site-columnist-8tsXn7bh/lib/python3.10/site-packages/sentry_sdk/utils.py in runner(1864)
  return sentry_patched_function(*args, **kwargs)

/home/youser/.local/share/virtualenvs/news-site-columnist-8tsXn7bh/lib/python3.10/site-packages/sentry_sdk/integrations/django/templates.py in rendered_content(77)
  return real_rendered_content.fget(self)

/home/youser/.local/share/virtualenvs/news-site-columnist-8tsXn7bh/lib/python3.10/site-packages/django/template/response.py in rendered_content(92)
  return template.render(context, self._request)

/home/youser/.local/share/virtualenvs/news-site-columnist-8tsXn7bh/lib/python3.10/site-packages/django/template/backends/django.py in render(61)
  return self.template.render(context)

/home/youser/.local/share/virtualenvs/news-site-columnist-8tsXn7bh/lib/python3.10/site-packages/template_timings_panel/panels/TemplateTimings.py in timing_hook(139)
  result = func(self, *args, **kwargs)

/home/youser/.local/share/virtualenvs/news-site-columnist-8tsXn7bh/lib/python3.10/site-packages/django/template/base.py in render(175)
  return self._render(context)

/home/youser/.local/share/virtualenvs/news-site-columnist-8tsXn7bh/lib/python3.10/site-packages/django/test/utils.py in instrumented_test_render(112)
  return self.nodelist.render(context)

/home/youser/.local/share/virtualenvs/news-site-columnist-8tsXn7bh/lib/python3.10/site-packages/django/template/base.py in render(1005)
  return SafeString("".join([node.render_annotated(context) for node in self]))

/home/youser/.local/share/virtualenvs/news-site-columnist-8tsXn7bh/lib/python3.10/site-packages/django/template/base.py in <listcomp>(1005)
  return SafeString("".join([node.render_annotated(context) for node in self]))

/home/youser/.local/share/virtualenvs/news-site-columnist-8tsXn7bh/lib/python3.10/site-packages/django/template/base.py in render_annotated(966)
  return self.render(context)

/home/youser/.local/share/virtualenvs/news-site-columnist-8tsXn7bh/lib/python3.10/site-packages/django/template/loader_tags.py in render(157)
  return compiled_parent._render(context)

/home/youser/.local/share/virtualenvs/news-site-columnist-8tsXn7bh/lib/python3.10/site-packages/django/test/utils.py in instrumented_test_render(112)
  return self.nodelist.render(context)

/home/youser/.local/share/virtualenvs/news-site-columnist-8tsXn7bh/lib/python3.10/site-packages/django/template/base.py in render(1005)
  return SafeString("".join([node.render_annotated(context) for node in self]))

/home/youser/.local/share/virtualenvs/news-site-columnist-8tsXn7bh/lib/python3.10/site-packages/django/template/base.py in <listcomp>(1005)
  return SafeString("".join([node.render_annotated(context) for node in self]))

/home/youser/.local/share/virtualenvs/news-site-columnist-8tsXn7bh/lib/python3.10/site-packages/django/template/base.py in render_annotated(966)
  return self.render(context)

/home/youser/.local/share/virtualenvs/news-site-columnist-8tsXn7bh/lib/python3.10/site-packages/template_timings_panel/panels/TemplateTimings.py in timing_hook(139)
  result = func(self, *args, **kwargs)

/home/youser/.local/share/virtualenvs/news-site-columnist-8tsXn7bh/lib/python3.10/site-packages/django/template/loader_tags.py in render(63)
  result = block.nodelist.render(context)

/home/youser/.local/share/virtualenvs/news-site-columnist-8tsXn7bh/lib/python3.10/site-packages/django/template/base.py in render(1005)
  return SafeString("".join([node.render_annotated(context) for node in self]))

/home/youser/.local/share/virtualenvs/news-site-columnist-8tsXn7bh/lib/python3.10/site-packages/django/template/base.py in <listcomp>(1005)
  return SafeString("".join([node.render_annotated(context) for node in self]))

/home/youser/.local/share/virtualenvs/news-site-columnist-8tsXn7bh/lib/python3.10/site-packages/django/template/base.py in render_annotated(966)
  return self.render(context)

/home/youser/.local/share/virtualenvs/news-site-columnist-8tsXn7bh/lib/python3.10/site-packages/django/template/loader_tags.py in render(208)
  return template.render(context)

/home/youser/.local/share/virtualenvs/news-site-columnist-8tsXn7bh/lib/python3.10/site-packages/template_timings_panel/panels/TemplateTimings.py in timing_hook(139)
  result = func(self, *args, **kwargs)

/home/youser/.local/share/virtualenvs/news-site-columnist-8tsXn7bh/lib/python3.10/site-packages/django/template/base.py in render(177)
  return self._render(context)

/home/youser/.local/share/virtualenvs/news-site-columnist-8tsXn7bh/lib/python3.10/site-packages/django/test/utils.py in instrumented_test_render(112)
  return self.nodelist.render(context)

/home/youser/.local/share/virtualenvs/news-site-columnist-8tsXn7bh/lib/python3.10/site-packages/django/template/base.py in render(1005)
  return SafeString("".join([node.render_annotated(context) for node in self]))

/home/youser/.local/share/virtualenvs/news-site-columnist-8tsXn7bh/lib/python3.10/site-packages/django/template/base.py in <listcomp>(1005)
  return SafeString("".join([node.render_annotated(context) for node in self]))

/home/youser/.local/share/virtualenvs/news-site-columnist-8tsXn7bh/lib/python3.10/site-packages/django/template/base.py in render_annotated(966)
  return self.render(context)

/home/youser/.local/share/virtualenvs/news-site-columnist-8tsXn7bh/lib/python3.10/site-packages/django/template/loader_tags.py in render(157)
  return compiled_parent._render(context)

/home/youser/.local/share/virtualenvs/news-site-columnist-8tsXn7bh/lib/python3.10/site-packages/django/test/utils.py in instrumented_test_render(112)
  return self.nodelist.render(context)

/home/youser/.local/share/virtualenvs/news-site-columnist-8tsXn7bh/lib/python3.10/site-packages/django/template/base.py in render(1005)
  return SafeString("".join([node.render_annotated(context) for node in self]))

/home/youser/.local/share/virtualenvs/news-site-columnist-8tsXn7bh/lib/python3.10/site-packages/django/template/base.py in <listcomp>(1005)
  return SafeString("".join([node.render_annotated(context) for node in self]))

/home/youser/.local/share/virtualenvs/news-site-columnist-8tsXn7bh/lib/python3.10/site-packages/django/template/base.py in render_annotated(966)
  return self.render(context)

/home/youser/.local/share/virtualenvs/news-site-columnist-8tsXn7bh/lib/python3.10/site-packages/django/template/library.py in render(237)
  output = self.func(*resolved_args, **resolved_kwargs)

/var/www/news-site-columnist/news/templatetags/custom_tags.py in get_navigation_items(50)
  for cat in categories.all():

10 </a>
11 <div class="header__center">
12 <nav class="nav">
13 {% get_navigation_items as navigation_items %}
14 {% for item in navigation_items %}
15 {% if item.is_region %}
16 <div class="nav__item nav__item-submenu">
17 <a class="hover-dark-text" href="{{ item.link }}">

/var/www/news-site-columnist/news/templates/new-design/components/header.html

SELECT "category"."id",
       "category"."created_at",
       "category"."updated_at",
       "category"."seo_title",
       "category"."seo_title_uk",
       "category"."seo_title_en",
       "category"."seo_title_ru",
       "category"."seo_description",
       "category"."seo_description_uk",
       "category"."seo_description_en",
       "category"."seo_description_ru",
       "category"."seo_keywords",
       "category"."seo_keywords_uk",
       "category"."seo_keywords_en",
       "category"."seo_keywords_ru",
       "category"."seo_header_one",
       "category"."seo_header_one_uk",
       "category"."seo_header_one_en",
       "category"."seo_header_one_ru",
       "category"."seo_news_title",
       "category"."seo_news_title_uk",
       "category"."seo_news_title_en",
       "category"."seo_news_title_ru",
       "category"."seo_news_description",
       "category"."seo_news_description_uk",
       "category"."seo_news_description_en",
       "category"."seo_news_description_ru",
       "category"."subdomain",
       "category"."parent_id",
       "category"."image",
       "category"."is_active",
       "category"."is_rss_active",
       "category"."is_interesting",
       "category"."ticker_rss_active",
       "category"."show_home",
       "category"."show_home_en",
       "category"."show_video",
       "category"."show_menu",
       "category"."show_menu_uk",
       "category"."show_menu_en",
       "category"."show_menu_ru",
       "category"."show_footer",
       "category"."show_menu_in_en",
       "category"."show_footer_in_en",
       "category"."show_in_search",
       "category"."show_in_header",
       "category"."show_in_header_uk",
       "category"."show_in_header_en",
       "category"."show_in_header_ru",
       "category"."seo_tag_id",
       "category"."sort_weight",
       "category"."sort_weight_en",
       "category"."header_sort_weight",
       "category"."header_sort_weight_uk",
       "category"."header_sort_weight_en",
       "category"."header_sort_weight_ru",
       "category"."footer_sort_weight",
       "category"."menu_sort_weight",
       "category"."name",
       "category"."name_uk",
       "category"."name_en",
       "category"."name_ru",
       "category"."slug",
       "category"."description",
       "category"."description_uk",
       "category"."description_en",
       "category"."description_ru",
       "category"."fb_link",
       "category"."tg_link",
       "category"."show_banner",
       "category"."uk_has_translation",
       "category"."ru_has_translation",
       "category"."en_has_translation",
       "category"."has_infinite_scroll",
       "category"."_show_home_without_subdomain",
       "category"."_show_home_without_subdomain_en",
       "category"."background_id",
       "category"."use_old_design",
       "category"."use_old_design_for_posts",
       "category"."is_context_category",
       "category"."show_stories_on_main",
       "category"."show_posts_table_of_contents",
       "category"."svg_icon"
  FROM "category"
 WHERE ("category"."uk_has_translation" AND NOT "category"."is_context_category" AND "category"."name_uk" IN ('Київ', 'Одеса', 'Харків', 'Львів'))
SELECT ••• FROM "category" WHERE ("category"."uk_has_translation" AND NOT "category"."is_context_category" AND "category"."name_uk" IN ('Київ', 'Одеса', 'Харків', 'Львів'))
2 similar queries. Duplicated 2 times.
1,54

Connection: default

Transaction status: Idle

/home/youser/.local/share/virtualenvs/news-site-columnist-8tsXn7bh/bin/gunicorn in <module>(8)
  sys.exit(run())

/home/youser/.local/share/virtualenvs/news-site-columnist-8tsXn7bh/lib/python3.10/site-packages/gunicorn/app/wsgiapp.py in run(66)
  WSGIApplication("%(prog)s [OPTIONS] [APP_MODULE]", prog=prog).run()

/home/youser/.local/share/virtualenvs/news-site-columnist-8tsXn7bh/lib/python3.10/site-packages/gunicorn/app/base.py in run(235)
  super().run()

/home/youser/.local/share/virtualenvs/news-site-columnist-8tsXn7bh/lib/python3.10/site-packages/gunicorn/app/base.py in run(71)
  Arbiter(self).run()

/home/youser/.local/share/virtualenvs/news-site-columnist-8tsXn7bh/lib/python3.10/site-packages/gunicorn/arbiter.py in run(210)
  self.manage_workers()

/home/youser/.local/share/virtualenvs/news-site-columnist-8tsXn7bh/lib/python3.10/site-packages/gunicorn/arbiter.py in manage_workers(570)
  self.spawn_workers()

/home/youser/.local/share/virtualenvs/news-site-columnist-8tsXn7bh/lib/python3.10/site-packages/gunicorn/arbiter.py in spawn_workers(641)
  self.spawn_worker()

/home/youser/.local/share/virtualenvs/news-site-columnist-8tsXn7bh/lib/python3.10/site-packages/gunicorn/arbiter.py in spawn_worker(608)
  worker.init_process()

/home/youser/.local/share/virtualenvs/news-site-columnist-8tsXn7bh/lib/python3.10/site-packages/gunicorn/workers/base.py in init_process(143)
  self.run()

/home/youser/.local/share/virtualenvs/news-site-columnist-8tsXn7bh/lib/python3.10/site-packages/gunicorn/workers/sync.py in run(125)
  self.run_for_one(timeout)

/home/youser/.local/share/virtualenvs/news-site-columnist-8tsXn7bh/lib/python3.10/site-packages/gunicorn/workers/sync.py in run_for_one(69)
  self.accept(listener)

/home/youser/.local/share/virtualenvs/news-site-columnist-8tsXn7bh/lib/python3.10/site-packages/gunicorn/workers/sync.py in accept(31)
  self.handle(listener, client, addr)

/home/youser/.local/share/virtualenvs/news-site-columnist-8tsXn7bh/lib/python3.10/site-packages/gunicorn/workers/sync.py in handle(134)
  self.handle_request(listener, req, client, addr)

/home/youser/.local/share/virtualenvs/news-site-columnist-8tsXn7bh/lib/python3.10/site-packages/gunicorn/workers/sync.py in handle_request(177)
  respiter = self.wsgi(environ, resp.start_response)

/home/youser/.local/share/virtualenvs/news-site-columnist-8tsXn7bh/lib/python3.10/site-packages/sentry_sdk/utils.py in runner(1864)
  return sentry_patched_function(*args, **kwargs)

/home/youser/.local/share/virtualenvs/news-site-columnist-8tsXn7bh/lib/python3.10/site-packages/sentry_sdk/integrations/django/__init__.py in sentry_patched_wsgi_handler(191)
  return middleware(environ, start_response)

/home/youser/.local/share/virtualenvs/news-site-columnist-8tsXn7bh/lib/python3.10/site-packages/sentry_sdk/integrations/wsgi.py in __call__(132)
  response = self.app(

/home/youser/.local/share/virtualenvs/news-site-columnist-8tsXn7bh/lib/python3.10/site-packages/sentry_sdk/integrations/django/__init__.py in sentry_patched_get_response(478)
  rv = old_get_response(self, request)

/home/youser/.local/share/virtualenvs/news-site-columnist-8tsXn7bh/lib/python3.10/site-packages/sentry_sdk/integrations/django/middleware.py in __call__(177)
  return f(*args, **kwargs)

/home/youser/.local/share/virtualenvs/news-site-columnist-8tsXn7bh/lib/python3.10/site-packages/sentry_sdk/integrations/django/middleware.py in __call__(177)
  return f(*args, **kwargs)

/var/www/news-site-columnist/redirects/middleware/redirect_middleware.py in __call__(17)
  return self.get_response(request)

/home/youser/.local/share/virtualenvs/news-site-columnist-8tsXn7bh/lib/python3.10/site-packages/sentry_sdk/integrations/django/middleware.py in __call__(177)
  return f(*args, **kwargs)

/home/youser/.local/share/virtualenvs/news-site-columnist-8tsXn7bh/lib/python3.10/site-packages/sentry_sdk/integrations/django/middleware.py in __call__(177)
  return f(*args, **kwargs)

/home/youser/.local/share/virtualenvs/news-site-columnist-8tsXn7bh/lib/python3.10/site-packages/sentry_sdk/integrations/django/middleware.py in __call__(177)
  return f(*args, **kwargs)

/home/youser/.local/share/virtualenvs/news-site-columnist-8tsXn7bh/lib/python3.10/site-packages/sentry_sdk/integrations/django/middleware.py in __call__(177)
  return f(*args, **kwargs)

/home/youser/.local/share/virtualenvs/news-site-columnist-8tsXn7bh/lib/python3.10/site-packages/corsheaders/middleware.py in __call__(53)
  result = self.get_response(request)

/home/youser/.local/share/virtualenvs/news-site-columnist-8tsXn7bh/lib/python3.10/site-packages/sentry_sdk/integrations/django/middleware.py in __call__(177)
  return f(*args, **kwargs)

/home/youser/.local/share/virtualenvs/news-site-columnist-8tsXn7bh/lib/python3.10/site-packages/django_user_agents/middleware.py in __call__(14)
  return self.get_response(request)

/home/youser/.local/share/virtualenvs/news-site-columnist-8tsXn7bh/lib/python3.10/site-packages/sentry_sdk/integrations/django/middleware.py in __call__(177)
  return f(*args, **kwargs)

/home/youser/.local/share/virtualenvs/news-site-columnist-8tsXn7bh/lib/python3.10/site-packages/sentry_sdk/integrations/django/middleware.py in __call__(177)
  return f(*args, **kwargs)

/home/youser/.local/share/virtualenvs/news-site-columnist-8tsXn7bh/lib/python3.10/site-packages/sentry_sdk/integrations/django/middleware.py in __call__(177)
  return f(*args, **kwargs)

/home/youser/.local/share/virtualenvs/news-site-columnist-8tsXn7bh/lib/python3.10/site-packages/sentry_sdk/integrations/django/middleware.py in __call__(177)
  return f(*args, **kwargs)

/home/youser/.local/share/virtualenvs/news-site-columnist-8tsXn7bh/lib/python3.10/site-packages/sentry_sdk/integrations/django/middleware.py in __call__(177)
  return f(*args, **kwargs)

/home/youser/.local/share/virtualenvs/news-site-columnist-8tsXn7bh/lib/python3.10/site-packages/sentry_sdk/integrations/django/middleware.py in __call__(177)
  return f(*args, **kwargs)

/home/youser/.local/share/virtualenvs/news-site-columnist-8tsXn7bh/lib/python3.10/site-packages/sentry_sdk/integrations/django/middleware.py in __call__(177)
  return f(*args, **kwargs)

/home/youser/.local/share/virtualenvs/news-site-columnist-8tsXn7bh/lib/python3.10/site-packages/sentry_sdk/integrations/django/middleware.py in __call__(177)
  return f(*args, **kwargs)

/var/www/news-site-columnist/news/middleware/subdomain_middleare.py in __call__(22)
  response = self.get_response(request)

/home/youser/.local/share/virtualenvs/news-site-columnist-8tsXn7bh/lib/python3.10/site-packages/sentry_sdk/integrations/django/views.py in sentry_patched_render(41)
  return old_render(self)

/home/youser/.local/share/virtualenvs/news-site-columnist-8tsXn7bh/lib/python3.10/site-packages/django/template/response.py in render(114)
  self.content = self.rendered_content

/home/youser/.local/share/virtualenvs/news-site-columnist-8tsXn7bh/lib/python3.10/site-packages/sentry_sdk/utils.py in runner(1864)
  return sentry_patched_function(*args, **kwargs)

/home/youser/.local/share/virtualenvs/news-site-columnist-8tsXn7bh/lib/python3.10/site-packages/sentry_sdk/integrations/django/templates.py in rendered_content(77)
  return real_rendered_content.fget(self)

/home/youser/.local/share/virtualenvs/news-site-columnist-8tsXn7bh/lib/python3.10/site-packages/django/template/response.py in rendered_content(92)
  return template.render(context, self._request)

/home/youser/.local/share/virtualenvs/news-site-columnist-8tsXn7bh/lib/python3.10/site-packages/django/template/backends/django.py in render(61)
  return self.template.render(context)

/home/youser/.local/share/virtualenvs/news-site-columnist-8tsXn7bh/lib/python3.10/site-packages/template_timings_panel/panels/TemplateTimings.py in timing_hook(139)
  result = func(self, *args, **kwargs)

/home/youser/.local/share/virtualenvs/news-site-columnist-8tsXn7bh/lib/python3.10/site-packages/django/template/base.py in render(175)
  return self._render(context)

/home/youser/.local/share/virtualenvs/news-site-columnist-8tsXn7bh/lib/python3.10/site-packages/django/test/utils.py in instrumented_test_render(112)
  return self.nodelist.render(context)

/home/youser/.local/share/virtualenvs/news-site-columnist-8tsXn7bh/lib/python3.10/site-packages/django/template/base.py in render(1005)
  return SafeString("".join([node.render_annotated(context) for node in self]))

/home/youser/.local/share/virtualenvs/news-site-columnist-8tsXn7bh/lib/python3.10/site-packages/django/template/base.py in <listcomp>(1005)
  return SafeString("".join([node.render_annotated(context) for node in self]))

/home/youser/.local/share/virtualenvs/news-site-columnist-8tsXn7bh/lib/python3.10/site-packages/django/template/base.py in render_annotated(966)
  return self.render(context)

/home/youser/.local/share/virtualenvs/news-site-columnist-8tsXn7bh/lib/python3.10/site-packages/django/template/loader_tags.py in render(157)
  return compiled_parent._render(context)

/home/youser/.local/share/virtualenvs/news-site-columnist-8tsXn7bh/lib/python3.10/site-packages/django/test/utils.py in instrumented_test_render(112)
  return self.nodelist.render(context)

/home/youser/.local/share/virtualenvs/news-site-columnist-8tsXn7bh/lib/python3.10/site-packages/django/template/base.py in render(1005)
  return SafeString("".join([node.render_annotated(context) for node in self]))

/home/youser/.local/share/virtualenvs/news-site-columnist-8tsXn7bh/lib/python3.10/site-packages/django/template/base.py in <listcomp>(1005)
  return SafeString("".join([node.render_annotated(context) for node in self]))

/home/youser/.local/share/virtualenvs/news-site-columnist-8tsXn7bh/lib/python3.10/site-packages/django/template/base.py in render_annotated(966)
  return self.render(context)

/home/youser/.local/share/virtualenvs/news-site-columnist-8tsXn7bh/lib/python3.10/site-packages/template_timings_panel/panels/TemplateTimings.py in timing_hook(139)
  result = func(self, *args, **kwargs)

/home/youser/.local/share/virtualenvs/news-site-columnist-8tsXn7bh/lib/python3.10/site-packages/django/template/loader_tags.py in render(63)
  result = block.nodelist.render(context)

/home/youser/.local/share/virtualenvs/news-site-columnist-8tsXn7bh/lib/python3.10/site-packages/django/template/base.py in render(1005)
  return SafeString("".join([node.render_annotated(context) for node in self]))

/home/youser/.local/share/virtualenvs/news-site-columnist-8tsXn7bh/lib/python3.10/site-packages/django/template/base.py in <listcomp>(1005)
  return SafeString("".join([node.render_annotated(context) for node in self]))

/home/youser/.local/share/virtualenvs/news-site-columnist-8tsXn7bh/lib/python3.10/site-packages/django/template/base.py in render_annotated(966)
  return self.render(context)

/home/youser/.local/share/virtualenvs/news-site-columnist-8tsXn7bh/lib/python3.10/site-packages/django/template/loader_tags.py in render(208)
  return template.render(context)

/home/youser/.local/share/virtualenvs/news-site-columnist-8tsXn7bh/lib/python3.10/site-packages/template_timings_panel/panels/TemplateTimings.py in timing_hook(139)
  result = func(self, *args, **kwargs)

/home/youser/.local/share/virtualenvs/news-site-columnist-8tsXn7bh/lib/python3.10/site-packages/django/template/base.py in render(177)
  return self._render(context)

/home/youser/.local/share/virtualenvs/news-site-columnist-8tsXn7bh/lib/python3.10/site-packages/django/test/utils.py in instrumented_test_render(112)
  return self.nodelist.render(context)

/home/youser/.local/share/virtualenvs/news-site-columnist-8tsXn7bh/lib/python3.10/site-packages/django/template/base.py in render(1005)
  return SafeString("".join([node.render_annotated(context) for node in self]))

/home/youser/.local/share/virtualenvs/news-site-columnist-8tsXn7bh/lib/python3.10/site-packages/django/template/base.py in <listcomp>(1005)
  return SafeString("".join([node.render_annotated(context) for node in self]))

/home/youser/.local/share/virtualenvs/news-site-columnist-8tsXn7bh/lib/python3.10/site-packages/django/template/base.py in render_annotated(966)
  return self.render(context)

/home/youser/.local/share/virtualenvs/news-site-columnist-8tsXn7bh/lib/python3.10/site-packages/django/template/loader_tags.py in render(157)
  return compiled_parent._render(context)

/home/youser/.local/share/virtualenvs/news-site-columnist-8tsXn7bh/lib/python3.10/site-packages/django/test/utils.py in instrumented_test_render(112)
  return self.nodelist.render(context)

/home/youser/.local/share/virtualenvs/news-site-columnist-8tsXn7bh/lib/python3.10/site-packages/django/template/base.py in render(1005)
  return SafeString("".join([node.render_annotated(context) for node in self]))

/home/youser/.local/share/virtualenvs/news-site-columnist-8tsXn7bh/lib/python3.10/site-packages/django/template/base.py in <listcomp>(1005)
  return SafeString("".join([node.render_annotated(context) for node in self]))

/home/youser/.local/share/virtualenvs/news-site-columnist-8tsXn7bh/lib/python3.10/site-packages/django/template/base.py in render_annotated(966)
  return self.render(context)

/home/youser/.local/share/virtualenvs/news-site-columnist-8tsXn7bh/lib/python3.10/site-packages/django/template/defaulttags.py in render(238)
  nodelist.append(node.render_annotated(context))

/home/youser/.local/share/virtualenvs/news-site-columnist-8tsXn7bh/lib/python3.10/site-packages/django/template/base.py in render_annotated(966)
  return self.render(context)

/home/youser/.local/share/virtualenvs/news-site-columnist-8tsXn7bh/lib/python3.10/site-packages/django/template/defaulttags.py in render(321)
  return nodelist.render(context)

/home/youser/.local/share/virtualenvs/news-site-columnist-8tsXn7bh/lib/python3.10/site-packages/django/template/base.py in render(1005)
  return SafeString("".join([node.render_annotated(context) for node in self]))

/home/youser/.local/share/virtualenvs/news-site-columnist-8tsXn7bh/lib/python3.10/site-packages/django/template/base.py in <listcomp>(1005)
  return SafeString("".join([node.render_annotated(context) for node in self]))

/home/youser/.local/share/virtualenvs/news-site-columnist-8tsXn7bh/lib/python3.10/site-packages/django/template/base.py in render_annotated(966)
  return self.render(context)

/home/youser/.local/share/virtualenvs/news-site-columnist-8tsXn7bh/lib/python3.10/site-packages/django/template/defaulttags.py in render(194)
  len_values = len(values)

28 </a>
29 <nav class="nav__submenu">
30 {% get_regions_categoires as regions %}
31 {% for region in regions %}
32 <a href="{{ region.get_absolute_url }}" class="nav__submenu_itm">{{ region.name }}</a>
33 {% endfor %}
34 </nav>
35 </div>

/var/www/news-site-columnist/news/templates/new-design/components/header.html

SELECT "site_settings_mobiletoolbaritem"."id",
       "site_settings_mobiletoolbaritem"."photo",
       "site_settings_mobiletoolbaritem"."photo_2",
       "site_settings_mobiletoolbaritem"."title",
       "site_settings_mobiletoolbaritem"."title_uk",
       "site_settings_mobiletoolbaritem"."title_en",
       "site_settings_mobiletoolbaritem"."title_ru",
       "site_settings_mobiletoolbaritem"."link",
       "site_settings_mobiletoolbaritem"."link_uk",
       "site_settings_mobiletoolbaritem"."link_en",
       "site_settings_mobiletoolbaritem"."link_ru",
       "site_settings_mobiletoolbaritem"."sort_weight",
       "site_settings_mobiletoolbaritem"."analytics_class"
  FROM "site_settings_mobiletoolbaritem"
 WHERE "site_settings_mobiletoolbaritem"."title_uk" = 'Допомога'
 LIMIT 21
SELECT ••• FROM "site_settings_mobiletoolbaritem" WHERE "site_settings_mobiletoolbaritem"."title_uk" = 'Допомога' LIMIT 21
0,53

Connection: default

Transaction status: Idle

/home/youser/.local/share/virtualenvs/news-site-columnist-8tsXn7bh/bin/gunicorn in <module>(8)
  sys.exit(run())

/home/youser/.local/share/virtualenvs/news-site-columnist-8tsXn7bh/lib/python3.10/site-packages/gunicorn/app/wsgiapp.py in run(66)
  WSGIApplication("%(prog)s [OPTIONS] [APP_MODULE]", prog=prog).run()

/home/youser/.local/share/virtualenvs/news-site-columnist-8tsXn7bh/lib/python3.10/site-packages/gunicorn/app/base.py in run(235)
  super().run()

/home/youser/.local/share/virtualenvs/news-site-columnist-8tsXn7bh/lib/python3.10/site-packages/gunicorn/app/base.py in run(71)
  Arbiter(self).run()

/home/youser/.local/share/virtualenvs/news-site-columnist-8tsXn7bh/lib/python3.10/site-packages/gunicorn/arbiter.py in run(210)
  self.manage_workers()

/home/youser/.local/share/virtualenvs/news-site-columnist-8tsXn7bh/lib/python3.10/site-packages/gunicorn/arbiter.py in manage_workers(570)
  self.spawn_workers()

/home/youser/.local/share/virtualenvs/news-site-columnist-8tsXn7bh/lib/python3.10/site-packages/gunicorn/arbiter.py in spawn_workers(641)
  self.spawn_worker()

/home/youser/.local/share/virtualenvs/news-site-columnist-8tsXn7bh/lib/python3.10/site-packages/gunicorn/arbiter.py in spawn_worker(608)
  worker.init_process()

/home/youser/.local/share/virtualenvs/news-site-columnist-8tsXn7bh/lib/python3.10/site-packages/gunicorn/workers/base.py in init_process(143)
  self.run()

/home/youser/.local/share/virtualenvs/news-site-columnist-8tsXn7bh/lib/python3.10/site-packages/gunicorn/workers/sync.py in run(125)
  self.run_for_one(timeout)

/home/youser/.local/share/virtualenvs/news-site-columnist-8tsXn7bh/lib/python3.10/site-packages/gunicorn/workers/sync.py in run_for_one(69)
  self.accept(listener)

/home/youser/.local/share/virtualenvs/news-site-columnist-8tsXn7bh/lib/python3.10/site-packages/gunicorn/workers/sync.py in accept(31)
  self.handle(listener, client, addr)

/home/youser/.local/share/virtualenvs/news-site-columnist-8tsXn7bh/lib/python3.10/site-packages/gunicorn/workers/sync.py in handle(134)
  self.handle_request(listener, req, client, addr)

/home/youser/.local/share/virtualenvs/news-site-columnist-8tsXn7bh/lib/python3.10/site-packages/gunicorn/workers/sync.py in handle_request(177)
  respiter = self.wsgi(environ, resp.start_response)

/home/youser/.local/share/virtualenvs/news-site-columnist-8tsXn7bh/lib/python3.10/site-packages/sentry_sdk/utils.py in runner(1864)
  return sentry_patched_function(*args, **kwargs)

/home/youser/.local/share/virtualenvs/news-site-columnist-8tsXn7bh/lib/python3.10/site-packages/sentry_sdk/integrations/django/__init__.py in sentry_patched_wsgi_handler(191)
  return middleware(environ, start_response)

/home/youser/.local/share/virtualenvs/news-site-columnist-8tsXn7bh/lib/python3.10/site-packages/sentry_sdk/integrations/wsgi.py in __call__(132)
  response = self.app(

/home/youser/.local/share/virtualenvs/news-site-columnist-8tsXn7bh/lib/python3.10/site-packages/sentry_sdk/integrations/django/__init__.py in sentry_patched_get_response(478)
  rv = old_get_response(self, request)

/home/youser/.local/share/virtualenvs/news-site-columnist-8tsXn7bh/lib/python3.10/site-packages/sentry_sdk/integrations/django/middleware.py in __call__(177)
  return f(*args, **kwargs)

/home/youser/.local/share/virtualenvs/news-site-columnist-8tsXn7bh/lib/python3.10/site-packages/sentry_sdk/integrations/django/middleware.py in __call__(177)
  return f(*args, **kwargs)

/var/www/news-site-columnist/redirects/middleware/redirect_middleware.py in __call__(17)
  return self.get_response(request)

/home/youser/.local/share/virtualenvs/news-site-columnist-8tsXn7bh/lib/python3.10/site-packages/sentry_sdk/integrations/django/middleware.py in __call__(177)
  return f(*args, **kwargs)

/home/youser/.local/share/virtualenvs/news-site-columnist-8tsXn7bh/lib/python3.10/site-packages/sentry_sdk/integrations/django/middleware.py in __call__(177)
  return f(*args, **kwargs)

/home/youser/.local/share/virtualenvs/news-site-columnist-8tsXn7bh/lib/python3.10/site-packages/sentry_sdk/integrations/django/middleware.py in __call__(177)
  return f(*args, **kwargs)

/home/youser/.local/share/virtualenvs/news-site-columnist-8tsXn7bh/lib/python3.10/site-packages/sentry_sdk/integrations/django/middleware.py in __call__(177)
  return f(*args, **kwargs)

/home/youser/.local/share/virtualenvs/news-site-columnist-8tsXn7bh/lib/python3.10/site-packages/corsheaders/middleware.py in __call__(53)
  result = self.get_response(request)

/home/youser/.local/share/virtualenvs/news-site-columnist-8tsXn7bh/lib/python3.10/site-packages/sentry_sdk/integrations/django/middleware.py in __call__(177)
  return f(*args, **kwargs)

/home/youser/.local/share/virtualenvs/news-site-columnist-8tsXn7bh/lib/python3.10/site-packages/django_user_agents/middleware.py in __call__(14)
  return self.get_response(request)

/home/youser/.local/share/virtualenvs/news-site-columnist-8tsXn7bh/lib/python3.10/site-packages/sentry_sdk/integrations/django/middleware.py in __call__(177)
  return f(*args, **kwargs)

/home/youser/.local/share/virtualenvs/news-site-columnist-8tsXn7bh/lib/python3.10/site-packages/sentry_sdk/integrations/django/middleware.py in __call__(177)
  return f(*args, **kwargs)

/home/youser/.local/share/virtualenvs/news-site-columnist-8tsXn7bh/lib/python3.10/site-packages/sentry_sdk/integrations/django/middleware.py in __call__(177)
  return f(*args, **kwargs)

/home/youser/.local/share/virtualenvs/news-site-columnist-8tsXn7bh/lib/python3.10/site-packages/sentry_sdk/integrations/django/middleware.py in __call__(177)
  return f(*args, **kwargs)

/home/youser/.local/share/virtualenvs/news-site-columnist-8tsXn7bh/lib/python3.10/site-packages/sentry_sdk/integrations/django/middleware.py in __call__(177)
  return f(*args, **kwargs)

/home/youser/.local/share/virtualenvs/news-site-columnist-8tsXn7bh/lib/python3.10/site-packages/sentry_sdk/integrations/django/middleware.py in __call__(177)
  return f(*args, **kwargs)

/home/youser/.local/share/virtualenvs/news-site-columnist-8tsXn7bh/lib/python3.10/site-packages/sentry_sdk/integrations/django/middleware.py in __call__(177)
  return f(*args, **kwargs)

/home/youser/.local/share/virtualenvs/news-site-columnist-8tsXn7bh/lib/python3.10/site-packages/sentry_sdk/integrations/django/middleware.py in __call__(177)
  return f(*args, **kwargs)

/var/www/news-site-columnist/news/middleware/subdomain_middleare.py in __call__(22)
  response = self.get_response(request)

/home/youser/.local/share/virtualenvs/news-site-columnist-8tsXn7bh/lib/python3.10/site-packages/sentry_sdk/integrations/django/views.py in sentry_patched_render(41)
  return old_render(self)

/home/youser/.local/share/virtualenvs/news-site-columnist-8tsXn7bh/lib/python3.10/site-packages/django/template/response.py in render(114)
  self.content = self.rendered_content

/home/youser/.local/share/virtualenvs/news-site-columnist-8tsXn7bh/lib/python3.10/site-packages/sentry_sdk/utils.py in runner(1864)
  return sentry_patched_function(*args, **kwargs)

/home/youser/.local/share/virtualenvs/news-site-columnist-8tsXn7bh/lib/python3.10/site-packages/sentry_sdk/integrations/django/templates.py in rendered_content(77)
  return real_rendered_content.fget(self)

/home/youser/.local/share/virtualenvs/news-site-columnist-8tsXn7bh/lib/python3.10/site-packages/django/template/response.py in rendered_content(92)
  return template.render(context, self._request)

/home/youser/.local/share/virtualenvs/news-site-columnist-8tsXn7bh/lib/python3.10/site-packages/django/template/backends/django.py in render(61)
  return self.template.render(context)

/home/youser/.local/share/virtualenvs/news-site-columnist-8tsXn7bh/lib/python3.10/site-packages/template_timings_panel/panels/TemplateTimings.py in timing_hook(139)
  result = func(self, *args, **kwargs)

/home/youser/.local/share/virtualenvs/news-site-columnist-8tsXn7bh/lib/python3.10/site-packages/django/template/base.py in render(175)
  return self._render(context)

/home/youser/.local/share/virtualenvs/news-site-columnist-8tsXn7bh/lib/python3.10/site-packages/django/test/utils.py in instrumented_test_render(112)
  return self.nodelist.render(context)

/home/youser/.local/share/virtualenvs/news-site-columnist-8tsXn7bh/lib/python3.10/site-packages/django/template/base.py in render(1005)
  return SafeString("".join([node.render_annotated(context) for node in self]))

/home/youser/.local/share/virtualenvs/news-site-columnist-8tsXn7bh/lib/python3.10/site-packages/django/template/base.py in <listcomp>(1005)
  return SafeString("".join([node.render_annotated(context) for node in self]))

/home/youser/.local/share/virtualenvs/news-site-columnist-8tsXn7bh/lib/python3.10/site-packages/django/template/base.py in render_annotated(966)
  return self.render(context)

/home/youser/.local/share/virtualenvs/news-site-columnist-8tsXn7bh/lib/python3.10/site-packages/django/template/loader_tags.py in render(157)
  return compiled_parent._render(context)

/home/youser/.local/share/virtualenvs/news-site-columnist-8tsXn7bh/lib/python3.10/site-packages/django/test/utils.py in instrumented_test_render(112)
  return self.nodelist.render(context)

/home/youser/.local/share/virtualenvs/news-site-columnist-8tsXn7bh/lib/python3.10/site-packages/django/template/base.py in render(1005)
  return SafeString("".join([node.render_annotated(context) for node in self]))

/home/youser/.local/share/virtualenvs/news-site-columnist-8tsXn7bh/lib/python3.10/site-packages/django/template/base.py in <listcomp>(1005)
  return SafeString("".join([node.render_annotated(context) for node in self]))

/home/youser/.local/share/virtualenvs/news-site-columnist-8tsXn7bh/lib/python3.10/site-packages/django/template/base.py in render_annotated(966)
  return self.render(context)

/home/youser/.local/share/virtualenvs/news-site-columnist-8tsXn7bh/lib/python3.10/site-packages/template_timings_panel/panels/TemplateTimings.py in timing_hook(139)
  result = func(self, *args, **kwargs)

/home/youser/.local/share/virtualenvs/news-site-columnist-8tsXn7bh/lib/python3.10/site-packages/django/template/loader_tags.py in render(63)
  result = block.nodelist.render(context)

/home/youser/.local/share/virtualenvs/news-site-columnist-8tsXn7bh/lib/python3.10/site-packages/django/template/base.py in render(1005)
  return SafeString("".join([node.render_annotated(context) for node in self]))

/home/youser/.local/share/virtualenvs/news-site-columnist-8tsXn7bh/lib/python3.10/site-packages/django/template/base.py in <listcomp>(1005)
  return SafeString("".join([node.render_annotated(context) for node in self]))

/home/youser/.local/share/virtualenvs/news-site-columnist-8tsXn7bh/lib/python3.10/site-packages/django/template/base.py in render_annotated(966)
  return self.render(context)

/home/youser/.local/share/virtualenvs/news-site-columnist-8tsXn7bh/lib/python3.10/site-packages/django/template/loader_tags.py in render(208)
  return template.render(context)

/home/youser/.local/share/virtualenvs/news-site-columnist-8tsXn7bh/lib/python3.10/site-packages/template_timings_panel/panels/TemplateTimings.py in timing_hook(139)
  result = func(self, *args, **kwargs)

/home/youser/.local/share/virtualenvs/news-site-columnist-8tsXn7bh/lib/python3.10/site-packages/django/template/base.py in render(177)
  return self._render(context)

/home/youser/.local/share/virtualenvs/news-site-columnist-8tsXn7bh/lib/python3.10/site-packages/django/test/utils.py in instrumented_test_render(112)
  return self.nodelist.render(context)

/home/youser/.local/share/virtualenvs/news-site-columnist-8tsXn7bh/lib/python3.10/site-packages/django/template/base.py in render(1005)
  return SafeString("".join([node.render_annotated(context) for node in self]))

/home/youser/.local/share/virtualenvs/news-site-columnist-8tsXn7bh/lib/python3.10/site-packages/django/template/base.py in <listcomp>(1005)
  return SafeString("".join([node.render_annotated(context) for node in self]))

/home/youser/.local/share/virtualenvs/news-site-columnist-8tsXn7bh/lib/python3.10/site-packages/django/template/base.py in render_annotated(966)
  return self.render(context)

/home/youser/.local/share/virtualenvs/news-site-columnist-8tsXn7bh/lib/python3.10/site-packages/django/template/loader_tags.py in render(157)
  return compiled_parent._render(context)

/home/youser/.local/share/virtualenvs/news-site-columnist-8tsXn7bh/lib/python3.10/site-packages/django/test/utils.py in instrumented_test_render(112)
  return self.nodelist.render(context)

/home/youser/.local/share/virtualenvs/news-site-columnist-8tsXn7bh/lib/python3.10/site-packages/django/template/base.py in render(1005)
  return SafeString("".join([node.render_annotated(context) for node in self]))

/home/youser/.local/share/virtualenvs/news-site-columnist-8tsXn7bh/lib/python3.10/site-packages/django/template/base.py in <listcomp>(1005)
  return SafeString("".join([node.render_annotated(context) for node in self]))

/home/youser/.local/share/virtualenvs/news-site-columnist-8tsXn7bh/lib/python3.10/site-packages/django/template/base.py in render_annotated(966)
  return self.render(context)

/home/youser/.local/share/virtualenvs/news-site-columnist-8tsXn7bh/lib/python3.10/site-packages/django/template/library.py in render(237)
  output = self.func(*resolved_args, **resolved_kwargs)

/var/www/news-site-columnist/news/templatetags/component_tags.py in get_support_buttton_link(650)
  mti = MobileToolbarItem.objects.get(

54 {% endif %}
55 </div>
56 <div class="header__right">
57 {% get_support_buttton_link as support_button_link %}
58 <a class="header__supportBtn" href="{{support_button_link}}" target="_blank">
59 <img src="{% static 'news/img/base/heart-icon.png' %}"
60 width="20"
61 height="20"

/var/www/news-site-columnist/news/templates/new-design/components/header.html

SELECT "category"."id",
       "category"."created_at",
       "category"."updated_at",
       "category"."seo_title",
       "category"."seo_title_uk",
       "category"."seo_title_en",
       "category"."seo_title_ru",
       "category"."seo_description",
       "category"."seo_description_uk",
       "category"."seo_description_en",
       "category"."seo_description_ru",
       "category"."seo_keywords",
       "category"."seo_keywords_uk",
       "category"."seo_keywords_en",
       "category"."seo_keywords_ru",
       "category"."seo_header_one",
       "category"."seo_header_one_uk",
       "category"."seo_header_one_en",
       "category"."seo_header_one_ru",
       "category"."seo_news_title",
       "category"."seo_news_title_uk",
       "category"."seo_news_title_en",
       "category"."seo_news_title_ru",
       "category"."seo_news_description",
       "category"."seo_news_description_uk",
       "category"."seo_news_description_en",
       "category"."seo_news_description_ru",
       "category"."subdomain",
       "category"."parent_id",
       "category"."image",
       "category"."is_active",
       "category"."is_rss_active",
       "category"."is_interesting",
       "category"."ticker_rss_active",
       "category"."show_home",
       "category"."show_home_en",
       "category"."show_video",
       "category"."show_menu",
       "category"."show_menu_uk",
       "category"."show_menu_en",
       "category"."show_menu_ru",
       "category"."show_footer",
       "category"."show_menu_in_en",
       "category"."show_footer_in_en",
       "category"."show_in_search",
       "category"."show_in_header",
       "category"."show_in_header_uk",
       "category"."show_in_header_en",
       "category"."show_in_header_ru",
       "category"."seo_tag_id",
       "category"."sort_weight",
       "category"."sort_weight_en",
       "category"."header_sort_weight",
       "category"."header_sort_weight_uk",
       "category"."header_sort_weight_en",
       "category"."header_sort_weight_ru",
       "category"."footer_sort_weight",
       "category"."menu_sort_weight",
       "category"."name",
       "category"."name_uk",
       "category"."name_en",
       "category"."name_ru",
       "category"."slug",
       "category"."description",
       "category"."description_uk",
       "category"."description_en",
       "category"."description_ru",
       "category"."fb_link",
       "category"."tg_link",
       "category"."show_banner",
       "category"."uk_has_translation",
       "category"."ru_has_translation",
       "category"."en_has_translation",
       "category"."has_infinite_scroll",
       "category"."_show_home_without_subdomain",
       "category"."_show_home_without_subdomain_en",
       "category"."background_id",
       "category"."use_old_design",
       "category"."use_old_design_for_posts",
       "category"."is_context_category",
       "category"."show_stories_on_main",
       "category"."show_posts_table_of_contents",
       "category"."svg_icon"
  FROM "category"
 WHERE ("category"."uk_has_translation" AND NOT "category"."is_context_category" AND "category"."show_in_header_uk")
 ORDER BY "category"."header_sort_weight_uk" DESC
SELECT ••• FROM "category" WHERE ("category"."uk_has_translation" AND NOT "category"."is_context_category" AND "category"."show_in_header_uk") ORDER BY "category"."header_sort_weight_uk" DESC
3 similar queries. Duplicated 3 times.
0,74

Connection: default

Transaction status: Idle

/home/youser/.local/share/virtualenvs/news-site-columnist-8tsXn7bh/bin/gunicorn in <module>(8)
  sys.exit(run())

/home/youser/.local/share/virtualenvs/news-site-columnist-8tsXn7bh/lib/python3.10/site-packages/gunicorn/app/wsgiapp.py in run(66)
  WSGIApplication("%(prog)s [OPTIONS] [APP_MODULE]", prog=prog).run()

/home/youser/.local/share/virtualenvs/news-site-columnist-8tsXn7bh/lib/python3.10/site-packages/gunicorn/app/base.py in run(235)
  super().run()

/home/youser/.local/share/virtualenvs/news-site-columnist-8tsXn7bh/lib/python3.10/site-packages/gunicorn/app/base.py in run(71)
  Arbiter(self).run()

/home/youser/.local/share/virtualenvs/news-site-columnist-8tsXn7bh/lib/python3.10/site-packages/gunicorn/arbiter.py in run(210)
  self.manage_workers()

/home/youser/.local/share/virtualenvs/news-site-columnist-8tsXn7bh/lib/python3.10/site-packages/gunicorn/arbiter.py in manage_workers(570)
  self.spawn_workers()

/home/youser/.local/share/virtualenvs/news-site-columnist-8tsXn7bh/lib/python3.10/site-packages/gunicorn/arbiter.py in spawn_workers(641)
  self.spawn_worker()

/home/youser/.local/share/virtualenvs/news-site-columnist-8tsXn7bh/lib/python3.10/site-packages/gunicorn/arbiter.py in spawn_worker(608)
  worker.init_process()

/home/youser/.local/share/virtualenvs/news-site-columnist-8tsXn7bh/lib/python3.10/site-packages/gunicorn/workers/base.py in init_process(143)
  self.run()

/home/youser/.local/share/virtualenvs/news-site-columnist-8tsXn7bh/lib/python3.10/site-packages/gunicorn/workers/sync.py in run(125)
  self.run_for_one(timeout)

/home/youser/.local/share/virtualenvs/news-site-columnist-8tsXn7bh/lib/python3.10/site-packages/gunicorn/workers/sync.py in run_for_one(69)
  self.accept(listener)

/home/youser/.local/share/virtualenvs/news-site-columnist-8tsXn7bh/lib/python3.10/site-packages/gunicorn/workers/sync.py in accept(31)
  self.handle(listener, client, addr)

/home/youser/.local/share/virtualenvs/news-site-columnist-8tsXn7bh/lib/python3.10/site-packages/gunicorn/workers/sync.py in handle(134)
  self.handle_request(listener, req, client, addr)

/home/youser/.local/share/virtualenvs/news-site-columnist-8tsXn7bh/lib/python3.10/site-packages/gunicorn/workers/sync.py in handle_request(177)
  respiter = self.wsgi(environ, resp.start_response)

/home/youser/.local/share/virtualenvs/news-site-columnist-8tsXn7bh/lib/python3.10/site-packages/sentry_sdk/utils.py in runner(1864)
  return sentry_patched_function(*args, **kwargs)

/home/youser/.local/share/virtualenvs/news-site-columnist-8tsXn7bh/lib/python3.10/site-packages/sentry_sdk/integrations/django/__init__.py in sentry_patched_wsgi_handler(191)
  return middleware(environ, start_response)

/home/youser/.local/share/virtualenvs/news-site-columnist-8tsXn7bh/lib/python3.10/site-packages/sentry_sdk/integrations/wsgi.py in __call__(132)
  response = self.app(

/home/youser/.local/share/virtualenvs/news-site-columnist-8tsXn7bh/lib/python3.10/site-packages/sentry_sdk/integrations/django/__init__.py in sentry_patched_get_response(478)
  rv = old_get_response(self, request)

/home/youser/.local/share/virtualenvs/news-site-columnist-8tsXn7bh/lib/python3.10/site-packages/sentry_sdk/integrations/django/middleware.py in __call__(177)
  return f(*args, **kwargs)

/home/youser/.local/share/virtualenvs/news-site-columnist-8tsXn7bh/lib/python3.10/site-packages/sentry_sdk/integrations/django/middleware.py in __call__(177)
  return f(*args, **kwargs)

/var/www/news-site-columnist/redirects/middleware/redirect_middleware.py in __call__(17)
  return self.get_response(request)

/home/youser/.local/share/virtualenvs/news-site-columnist-8tsXn7bh/lib/python3.10/site-packages/sentry_sdk/integrations/django/middleware.py in __call__(177)
  return f(*args, **kwargs)

/home/youser/.local/share/virtualenvs/news-site-columnist-8tsXn7bh/lib/python3.10/site-packages/sentry_sdk/integrations/django/middleware.py in __call__(177)
  return f(*args, **kwargs)

/home/youser/.local/share/virtualenvs/news-site-columnist-8tsXn7bh/lib/python3.10/site-packages/sentry_sdk/integrations/django/middleware.py in __call__(177)
  return f(*args, **kwargs)

/home/youser/.local/share/virtualenvs/news-site-columnist-8tsXn7bh/lib/python3.10/site-packages/sentry_sdk/integrations/django/middleware.py in __call__(177)
  return f(*args, **kwargs)

/home/youser/.local/share/virtualenvs/news-site-columnist-8tsXn7bh/lib/python3.10/site-packages/corsheaders/middleware.py in __call__(53)
  result = self.get_response(request)

/home/youser/.local/share/virtualenvs/news-site-columnist-8tsXn7bh/lib/python3.10/site-packages/sentry_sdk/integrations/django/middleware.py in __call__(177)
  return f(*args, **kwargs)

/home/youser/.local/share/virtualenvs/news-site-columnist-8tsXn7bh/lib/python3.10/site-packages/django_user_agents/middleware.py in __call__(14)
  return self.get_response(request)

/home/youser/.local/share/virtualenvs/news-site-columnist-8tsXn7bh/lib/python3.10/site-packages/sentry_sdk/integrations/django/middleware.py in __call__(177)
  return f(*args, **kwargs)

/home/youser/.local/share/virtualenvs/news-site-columnist-8tsXn7bh/lib/python3.10/site-packages/sentry_sdk/integrations/django/middleware.py in __call__(177)
  return f(*args, **kwargs)

/home/youser/.local/share/virtualenvs/news-site-columnist-8tsXn7bh/lib/python3.10/site-packages/sentry_sdk/integrations/django/middleware.py in __call__(177)
  return f(*args, **kwargs)

/home/youser/.local/share/virtualenvs/news-site-columnist-8tsXn7bh/lib/python3.10/site-packages/sentry_sdk/integrations/django/middleware.py in __call__(177)
  return f(*args, **kwargs)

/home/youser/.local/share/virtualenvs/news-site-columnist-8tsXn7bh/lib/python3.10/site-packages/sentry_sdk/integrations/django/middleware.py in __call__(177)
  return f(*args, **kwargs)

/home/youser/.local/share/virtualenvs/news-site-columnist-8tsXn7bh/lib/python3.10/site-packages/sentry_sdk/integrations/django/middleware.py in __call__(177)
  return f(*args, **kwargs)

/home/youser/.local/share/virtualenvs/news-site-columnist-8tsXn7bh/lib/python3.10/site-packages/sentry_sdk/integrations/django/middleware.py in __call__(177)
  return f(*args, **kwargs)

/home/youser/.local/share/virtualenvs/news-site-columnist-8tsXn7bh/lib/python3.10/site-packages/sentry_sdk/integrations/django/middleware.py in __call__(177)
  return f(*args, **kwargs)

/var/www/news-site-columnist/news/middleware/subdomain_middleare.py in __call__(22)
  response = self.get_response(request)

/home/youser/.local/share/virtualenvs/news-site-columnist-8tsXn7bh/lib/python3.10/site-packages/sentry_sdk/integrations/django/views.py in sentry_patched_render(41)
  return old_render(self)

/home/youser/.local/share/virtualenvs/news-site-columnist-8tsXn7bh/lib/python3.10/site-packages/django/template/response.py in render(114)
  self.content = self.rendered_content

/home/youser/.local/share/virtualenvs/news-site-columnist-8tsXn7bh/lib/python3.10/site-packages/sentry_sdk/utils.py in runner(1864)
  return sentry_patched_function(*args, **kwargs)

/home/youser/.local/share/virtualenvs/news-site-columnist-8tsXn7bh/lib/python3.10/site-packages/sentry_sdk/integrations/django/templates.py in rendered_content(77)
  return real_rendered_content.fget(self)

/home/youser/.local/share/virtualenvs/news-site-columnist-8tsXn7bh/lib/python3.10/site-packages/django/template/response.py in rendered_content(92)
  return template.render(context, self._request)

/home/youser/.local/share/virtualenvs/news-site-columnist-8tsXn7bh/lib/python3.10/site-packages/django/template/backends/django.py in render(61)
  return self.template.render(context)

/home/youser/.local/share/virtualenvs/news-site-columnist-8tsXn7bh/lib/python3.10/site-packages/template_timings_panel/panels/TemplateTimings.py in timing_hook(139)
  result = func(self, *args, **kwargs)

/home/youser/.local/share/virtualenvs/news-site-columnist-8tsXn7bh/lib/python3.10/site-packages/django/template/base.py in render(175)
  return self._render(context)

/home/youser/.local/share/virtualenvs/news-site-columnist-8tsXn7bh/lib/python3.10/site-packages/django/test/utils.py in instrumented_test_render(112)
  return self.nodelist.render(context)

/home/youser/.local/share/virtualenvs/news-site-columnist-8tsXn7bh/lib/python3.10/site-packages/django/template/base.py in render(1005)
  return SafeString("".join([node.render_annotated(context) for node in self]))

/home/youser/.local/share/virtualenvs/news-site-columnist-8tsXn7bh/lib/python3.10/site-packages/django/template/base.py in <listcomp>(1005)
  return SafeString("".join([node.render_annotated(context) for node in self]))

/home/youser/.local/share/virtualenvs/news-site-columnist-8tsXn7bh/lib/python3.10/site-packages/django/template/base.py in render_annotated(966)
  return self.render(context)

/home/youser/.local/share/virtualenvs/news-site-columnist-8tsXn7bh/lib/python3.10/site-packages/django/template/loader_tags.py in render(157)
  return compiled_parent._render(context)

/home/youser/.local/share/virtualenvs/news-site-columnist-8tsXn7bh/lib/python3.10/site-packages/django/test/utils.py in instrumented_test_render(112)
  return self.nodelist.render(context)

/home/youser/.local/share/virtualenvs/news-site-columnist-8tsXn7bh/lib/python3.10/site-packages/django/template/base.py in render(1005)
  return SafeString("".join([node.render_annotated(context) for node in self]))

/home/youser/.local/share/virtualenvs/news-site-columnist-8tsXn7bh/lib/python3.10/site-packages/django/template/base.py in <listcomp>(1005)
  return SafeString("".join([node.render_annotated(context) for node in self]))

/home/youser/.local/share/virtualenvs/news-site-columnist-8tsXn7bh/lib/python3.10/site-packages/django/template/base.py in render_annotated(966)
  return self.render(context)

/home/youser/.local/share/virtualenvs/news-site-columnist-8tsXn7bh/lib/python3.10/site-packages/template_timings_panel/panels/TemplateTimings.py in timing_hook(139)
  result = func(self, *args, **kwargs)

/home/youser/.local/share/virtualenvs/news-site-columnist-8tsXn7bh/lib/python3.10/site-packages/django/template/loader_tags.py in render(63)
  result = block.nodelist.render(context)

/home/youser/.local/share/virtualenvs/news-site-columnist-8tsXn7bh/lib/python3.10/site-packages/django/template/base.py in render(1005)
  return SafeString("".join([node.render_annotated(context) for node in self]))

/home/youser/.local/share/virtualenvs/news-site-columnist-8tsXn7bh/lib/python3.10/site-packages/django/template/base.py in <listcomp>(1005)
  return SafeString("".join([node.render_annotated(context) for node in self]))

/home/youser/.local/share/virtualenvs/news-site-columnist-8tsXn7bh/lib/python3.10/site-packages/django/template/base.py in render_annotated(966)
  return self.render(context)

/home/youser/.local/share/virtualenvs/news-site-columnist-8tsXn7bh/lib/python3.10/site-packages/django/template/loader_tags.py in render(208)
  return template.render(context)

/home/youser/.local/share/virtualenvs/news-site-columnist-8tsXn7bh/lib/python3.10/site-packages/template_timings_panel/panels/TemplateTimings.py in timing_hook(139)
  result = func(self, *args, **kwargs)

/home/youser/.local/share/virtualenvs/news-site-columnist-8tsXn7bh/lib/python3.10/site-packages/django/template/base.py in render(177)
  return self._render(context)

/home/youser/.local/share/virtualenvs/news-site-columnist-8tsXn7bh/lib/python3.10/site-packages/django/test/utils.py in instrumented_test_render(112)
  return self.nodelist.render(context)

/home/youser/.local/share/virtualenvs/news-site-columnist-8tsXn7bh/lib/python3.10/site-packages/django/template/base.py in render(1005)
  return SafeString("".join([node.render_annotated(context) for node in self]))

/home/youser/.local/share/virtualenvs/news-site-columnist-8tsXn7bh/lib/python3.10/site-packages/django/template/base.py in <listcomp>(1005)
  return SafeString("".join([node.render_annotated(context) for node in self]))

/home/youser/.local/share/virtualenvs/news-site-columnist-8tsXn7bh/lib/python3.10/site-packages/django/template/base.py in render_annotated(966)
  return self.render(context)

/home/youser/.local/share/virtualenvs/news-site-columnist-8tsXn7bh/lib/python3.10/site-packages/django/template/loader_tags.py in render(157)
  return compiled_parent._render(context)

/home/youser/.local/share/virtualenvs/news-site-columnist-8tsXn7bh/lib/python3.10/site-packages/django/test/utils.py in instrumented_test_render(112)
  return self.nodelist.render(context)

/home/youser/.local/share/virtualenvs/news-site-columnist-8tsXn7bh/lib/python3.10/site-packages/django/template/base.py in render(1005)
  return SafeString("".join([node.render_annotated(context) for node in self]))

/home/youser/.local/share/virtualenvs/news-site-columnist-8tsXn7bh/lib/python3.10/site-packages/django/template/base.py in <listcomp>(1005)
  return SafeString("".join([node.render_annotated(context) for node in self]))

/home/youser/.local/share/virtualenvs/news-site-columnist-8tsXn7bh/lib/python3.10/site-packages/django/template/base.py in render_annotated(966)
  return self.render(context)

/home/youser/.local/share/virtualenvs/news-site-columnist-8tsXn7bh/lib/python3.10/site-packages/django/template/library.py in render(237)
  output = self.func(*resolved_args, **resolved_kwargs)

/var/www/news-site-columnist/news/templatetags/custom_tags.py in get_navigation_items(50)
  for cat in categories.all():

119 </div>
120 <div class="header-mobile-subnav">
121 <div class="header-mobile-subnav__container">
122 {% get_navigation_items as navigation_items %}
123 <div class="container {% if LANGUAGE_CODE == 'en' %}header-mobile-subnav__container_en{% endif %}">
124 {% for item in navigation_items %}
125 {% if item.is_region %}
126 <div class="header-categories__mainItem-title nav__item-submenu header-mobile-subnav__item">

/var/www/news-site-columnist/news/templates/new-design/components/header.html

SELECT "category"."id",
       "category"."created_at",
       "category"."updated_at",
       "category"."seo_title",
       "category"."seo_title_uk",
       "category"."seo_title_en",
       "category"."seo_title_ru",
       "category"."seo_description",
       "category"."seo_description_uk",
       "category"."seo_description_en",
       "category"."seo_description_ru",
       "category"."seo_keywords",
       "category"."seo_keywords_uk",
       "category"."seo_keywords_en",
       "category"."seo_keywords_ru",
       "category"."seo_header_one",
       "category"."seo_header_one_uk",
       "category"."seo_header_one_en",
       "category"."seo_header_one_ru",
       "category"."seo_news_title",
       "category"."seo_news_title_uk",
       "category"."seo_news_title_en",
       "category"."seo_news_title_ru",
       "category"."seo_news_description",
       "category"."seo_news_description_uk",
       "category"."seo_news_description_en",
       "category"."seo_news_description_ru",
       "category"."subdomain",
       "category"."parent_id",
       "category"."image",
       "category"."is_active",
       "category"."is_rss_active",
       "category"."is_interesting",
       "category"."ticker_rss_active",
       "category"."show_home",
       "category"."show_home_en",
       "category"."show_video",
       "category"."show_menu",
       "category"."show_menu_uk",
       "category"."show_menu_en",
       "category"."show_menu_ru",
       "category"."show_footer",
       "category"."show_menu_in_en",
       "category"."show_footer_in_en",
       "category"."show_in_search",
       "category"."show_in_header",
       "category"."show_in_header_uk",
       "category"."show_in_header_en",
       "category"."show_in_header_ru",
       "category"."seo_tag_id",
       "category"."sort_weight",
       "category"."sort_weight_en",
       "category"."header_sort_weight",
       "category"."header_sort_weight_uk",
       "category"."header_sort_weight_en",
       "category"."header_sort_weight_ru",
       "category"."footer_sort_weight",
       "category"."menu_sort_weight",
       "category"."name",
       "category"."name_uk",
       "category"."name_en",
       "category"."name_ru",
       "category"."slug",
       "category"."description",
       "category"."description_uk",
       "category"."description_en",
       "category"."description_ru",
       "category"."fb_link",
       "category"."tg_link",
       "category"."show_banner",
       "category"."uk_has_translation",
       "category"."ru_has_translation",
       "category"."en_has_translation",
       "category"."has_infinite_scroll",
       "category"."_show_home_without_subdomain",
       "category"."_show_home_without_subdomain_en",
       "category"."background_id",
       "category"."use_old_design",
       "category"."use_old_design_for_posts",
       "category"."is_context_category",
       "category"."show_stories_on_main",
       "category"."show_posts_table_of_contents",
       "category"."svg_icon"
  FROM "category"
 WHERE ("category"."uk_has_translation" AND NOT "category"."is_context_category" AND "category"."name_uk" IN ('Київ', 'Одеса', 'Харків', 'Львів'))
SELECT ••• FROM "category" WHERE ("category"."uk_has_translation" AND NOT "category"."is_context_category" AND "category"."name_uk" IN ('Київ', 'Одеса', 'Харків', 'Львів'))
2 similar queries. Duplicated 2 times.
1,28

Connection: default

Transaction status: Idle

/home/youser/.local/share/virtualenvs/news-site-columnist-8tsXn7bh/bin/gunicorn in <module>(8)
  sys.exit(run())

/home/youser/.local/share/virtualenvs/news-site-columnist-8tsXn7bh/lib/python3.10/site-packages/gunicorn/app/wsgiapp.py in run(66)
  WSGIApplication("%(prog)s [OPTIONS] [APP_MODULE]", prog=prog).run()

/home/youser/.local/share/virtualenvs/news-site-columnist-8tsXn7bh/lib/python3.10/site-packages/gunicorn/app/base.py in run(235)
  super().run()

/home/youser/.local/share/virtualenvs/news-site-columnist-8tsXn7bh/lib/python3.10/site-packages/gunicorn/app/base.py in run(71)
  Arbiter(self).run()

/home/youser/.local/share/virtualenvs/news-site-columnist-8tsXn7bh/lib/python3.10/site-packages/gunicorn/arbiter.py in run(210)
  self.manage_workers()

/home/youser/.local/share/virtualenvs/news-site-columnist-8tsXn7bh/lib/python3.10/site-packages/gunicorn/arbiter.py in manage_workers(570)
  self.spawn_workers()

/home/youser/.local/share/virtualenvs/news-site-columnist-8tsXn7bh/lib/python3.10/site-packages/gunicorn/arbiter.py in spawn_workers(641)
  self.spawn_worker()

/home/youser/.local/share/virtualenvs/news-site-columnist-8tsXn7bh/lib/python3.10/site-packages/gunicorn/arbiter.py in spawn_worker(608)
  worker.init_process()

/home/youser/.local/share/virtualenvs/news-site-columnist-8tsXn7bh/lib/python3.10/site-packages/gunicorn/workers/base.py in init_process(143)
  self.run()

/home/youser/.local/share/virtualenvs/news-site-columnist-8tsXn7bh/lib/python3.10/site-packages/gunicorn/workers/sync.py in run(125)
  self.run_for_one(timeout)

/home/youser/.local/share/virtualenvs/news-site-columnist-8tsXn7bh/lib/python3.10/site-packages/gunicorn/workers/sync.py in run_for_one(69)
  self.accept(listener)

/home/youser/.local/share/virtualenvs/news-site-columnist-8tsXn7bh/lib/python3.10/site-packages/gunicorn/workers/sync.py in accept(31)
  self.handle(listener, client, addr)

/home/youser/.local/share/virtualenvs/news-site-columnist-8tsXn7bh/lib/python3.10/site-packages/gunicorn/workers/sync.py in handle(134)
  self.handle_request(listener, req, client, addr)

/home/youser/.local/share/virtualenvs/news-site-columnist-8tsXn7bh/lib/python3.10/site-packages/gunicorn/workers/sync.py in handle_request(177)
  respiter = self.wsgi(environ, resp.start_response)

/home/youser/.local/share/virtualenvs/news-site-columnist-8tsXn7bh/lib/python3.10/site-packages/sentry_sdk/utils.py in runner(1864)
  return sentry_patched_function(*args, **kwargs)

/home/youser/.local/share/virtualenvs/news-site-columnist-8tsXn7bh/lib/python3.10/site-packages/sentry_sdk/integrations/django/__init__.py in sentry_patched_wsgi_handler(191)
  return middleware(environ, start_response)

/home/youser/.local/share/virtualenvs/news-site-columnist-8tsXn7bh/lib/python3.10/site-packages/sentry_sdk/integrations/wsgi.py in __call__(132)
  response = self.app(

/home/youser/.local/share/virtualenvs/news-site-columnist-8tsXn7bh/lib/python3.10/site-packages/sentry_sdk/integrations/django/__init__.py in sentry_patched_get_response(478)
  rv = old_get_response(self, request)

/home/youser/.local/share/virtualenvs/news-site-columnist-8tsXn7bh/lib/python3.10/site-packages/sentry_sdk/integrations/django/middleware.py in __call__(177)
  return f(*args, **kwargs)

/home/youser/.local/share/virtualenvs/news-site-columnist-8tsXn7bh/lib/python3.10/site-packages/sentry_sdk/integrations/django/middleware.py in __call__(177)
  return f(*args, **kwargs)

/var/www/news-site-columnist/redirects/middleware/redirect_middleware.py in __call__(17)
  return self.get_response(request)

/home/youser/.local/share/virtualenvs/news-site-columnist-8tsXn7bh/lib/python3.10/site-packages/sentry_sdk/integrations/django/middleware.py in __call__(177)
  return f(*args, **kwargs)

/home/youser/.local/share/virtualenvs/news-site-columnist-8tsXn7bh/lib/python3.10/site-packages/sentry_sdk/integrations/django/middleware.py in __call__(177)
  return f(*args, **kwargs)

/home/youser/.local/share/virtualenvs/news-site-columnist-8tsXn7bh/lib/python3.10/site-packages/sentry_sdk/integrations/django/middleware.py in __call__(177)
  return f(*args, **kwargs)

/home/youser/.local/share/virtualenvs/news-site-columnist-8tsXn7bh/lib/python3.10/site-packages/sentry_sdk/integrations/django/middleware.py in __call__(177)
  return f(*args, **kwargs)

/home/youser/.local/share/virtualenvs/news-site-columnist-8tsXn7bh/lib/python3.10/site-packages/corsheaders/middleware.py in __call__(53)
  result = self.get_response(request)

/home/youser/.local/share/virtualenvs/news-site-columnist-8tsXn7bh/lib/python3.10/site-packages/sentry_sdk/integrations/django/middleware.py in __call__(177)
  return f(*args, **kwargs)

/home/youser/.local/share/virtualenvs/news-site-columnist-8tsXn7bh/lib/python3.10/site-packages/django_user_agents/middleware.py in __call__(14)
  return self.get_response(request)

/home/youser/.local/share/virtualenvs/news-site-columnist-8tsXn7bh/lib/python3.10/site-packages/sentry_sdk/integrations/django/middleware.py in __call__(177)
  return f(*args, **kwargs)

/home/youser/.local/share/virtualenvs/news-site-columnist-8tsXn7bh/lib/python3.10/site-packages/sentry_sdk/integrations/django/middleware.py in __call__(177)
  return f(*args, **kwargs)

/home/youser/.local/share/virtualenvs/news-site-columnist-8tsXn7bh/lib/python3.10/site-packages/sentry_sdk/integrations/django/middleware.py in __call__(177)
  return f(*args, **kwargs)

/home/youser/.local/share/virtualenvs/news-site-columnist-8tsXn7bh/lib/python3.10/site-packages/sentry_sdk/integrations/django/middleware.py in __call__(177)
  return f(*args, **kwargs)

/home/youser/.local/share/virtualenvs/news-site-columnist-8tsXn7bh/lib/python3.10/site-packages/sentry_sdk/integrations/django/middleware.py in __call__(177)
  return f(*args, **kwargs)

/home/youser/.local/share/virtualenvs/news-site-columnist-8tsXn7bh/lib/python3.10/site-packages/sentry_sdk/integrations/django/middleware.py in __call__(177)
  return f(*args, **kwargs)

/home/youser/.local/share/virtualenvs/news-site-columnist-8tsXn7bh/lib/python3.10/site-packages/sentry_sdk/integrations/django/middleware.py in __call__(177)
  return f(*args, **kwargs)

/home/youser/.local/share/virtualenvs/news-site-columnist-8tsXn7bh/lib/python3.10/site-packages/sentry_sdk/integrations/django/middleware.py in __call__(177)
  return f(*args, **kwargs)

/var/www/news-site-columnist/news/middleware/subdomain_middleare.py in __call__(22)
  response = self.get_response(request)

/home/youser/.local/share/virtualenvs/news-site-columnist-8tsXn7bh/lib/python3.10/site-packages/sentry_sdk/integrations/django/views.py in sentry_patched_render(41)
  return old_render(self)

/home/youser/.local/share/virtualenvs/news-site-columnist-8tsXn7bh/lib/python3.10/site-packages/django/template/response.py in render(114)
  self.content = self.rendered_content

/home/youser/.local/share/virtualenvs/news-site-columnist-8tsXn7bh/lib/python3.10/site-packages/sentry_sdk/utils.py in runner(1864)
  return sentry_patched_function(*args, **kwargs)

/home/youser/.local/share/virtualenvs/news-site-columnist-8tsXn7bh/lib/python3.10/site-packages/sentry_sdk/integrations/django/templates.py in rendered_content(77)
  return real_rendered_content.fget(self)

/home/youser/.local/share/virtualenvs/news-site-columnist-8tsXn7bh/lib/python3.10/site-packages/django/template/response.py in rendered_content(92)
  return template.render(context, self._request)

/home/youser/.local/share/virtualenvs/news-site-columnist-8tsXn7bh/lib/python3.10/site-packages/django/template/backends/django.py in render(61)
  return self.template.render(context)

/home/youser/.local/share/virtualenvs/news-site-columnist-8tsXn7bh/lib/python3.10/site-packages/template_timings_panel/panels/TemplateTimings.py in timing_hook(139)
  result = func(self, *args, **kwargs)

/home/youser/.local/share/virtualenvs/news-site-columnist-8tsXn7bh/lib/python3.10/site-packages/django/template/base.py in render(175)
  return self._render(context)

/home/youser/.local/share/virtualenvs/news-site-columnist-8tsXn7bh/lib/python3.10/site-packages/django/test/utils.py in instrumented_test_render(112)
  return self.nodelist.render(context)

/home/youser/.local/share/virtualenvs/news-site-columnist-8tsXn7bh/lib/python3.10/site-packages/django/template/base.py in render(1005)
  return SafeString("".join([node.render_annotated(context) for node in self]))

/home/youser/.local/share/virtualenvs/news-site-columnist-8tsXn7bh/lib/python3.10/site-packages/django/template/base.py in <listcomp>(1005)
  return SafeString("".join([node.render_annotated(context) for node in self]))

/home/youser/.local/share/virtualenvs/news-site-columnist-8tsXn7bh/lib/python3.10/site-packages/django/template/base.py in render_annotated(966)
  return self.render(context)

/home/youser/.local/share/virtualenvs/news-site-columnist-8tsXn7bh/lib/python3.10/site-packages/django/template/loader_tags.py in render(157)
  return compiled_parent._render(context)

/home/youser/.local/share/virtualenvs/news-site-columnist-8tsXn7bh/lib/python3.10/site-packages/django/test/utils.py in instrumented_test_render(112)
  return self.nodelist.render(context)

/home/youser/.local/share/virtualenvs/news-site-columnist-8tsXn7bh/lib/python3.10/site-packages/django/template/base.py in render(1005)
  return SafeString("".join([node.render_annotated(context) for node in self]))

/home/youser/.local/share/virtualenvs/news-site-columnist-8tsXn7bh/lib/python3.10/site-packages/django/template/base.py in <listcomp>(1005)
  return SafeString("".join([node.render_annotated(context) for node in self]))

/home/youser/.local/share/virtualenvs/news-site-columnist-8tsXn7bh/lib/python3.10/site-packages/django/template/base.py in render_annotated(966)
  return self.render(context)

/home/youser/.local/share/virtualenvs/news-site-columnist-8tsXn7bh/lib/python3.10/site-packages/template_timings_panel/panels/TemplateTimings.py in timing_hook(139)
  result = func(self, *args, **kwargs)

/home/youser/.local/share/virtualenvs/news-site-columnist-8tsXn7bh/lib/python3.10/site-packages/django/template/loader_tags.py in render(63)
  result = block.nodelist.render(context)

/home/youser/.local/share/virtualenvs/news-site-columnist-8tsXn7bh/lib/python3.10/site-packages/django/template/base.py in render(1005)
  return SafeString("".join([node.render_annotated(context) for node in self]))

/home/youser/.local/share/virtualenvs/news-site-columnist-8tsXn7bh/lib/python3.10/site-packages/django/template/base.py in <listcomp>(1005)
  return SafeString("".join([node.render_annotated(context) for node in self]))

/home/youser/.local/share/virtualenvs/news-site-columnist-8tsXn7bh/lib/python3.10/site-packages/django/template/base.py in render_annotated(966)
  return self.render(context)

/home/youser/.local/share/virtualenvs/news-site-columnist-8tsXn7bh/lib/python3.10/site-packages/django/template/loader_tags.py in render(208)
  return template.render(context)

/home/youser/.local/share/virtualenvs/news-site-columnist-8tsXn7bh/lib/python3.10/site-packages/template_timings_panel/panels/TemplateTimings.py in timing_hook(139)
  result = func(self, *args, **kwargs)

/home/youser/.local/share/virtualenvs/news-site-columnist-8tsXn7bh/lib/python3.10/site-packages/django/template/base.py in render(177)
  return self._render(context)

/home/youser/.local/share/virtualenvs/news-site-columnist-8tsXn7bh/lib/python3.10/site-packages/django/test/utils.py in instrumented_test_render(112)
  return self.nodelist.render(context)

/home/youser/.local/share/virtualenvs/news-site-columnist-8tsXn7bh/lib/python3.10/site-packages/django/template/base.py in render(1005)
  return SafeString("".join([node.render_annotated(context) for node in self]))

/home/youser/.local/share/virtualenvs/news-site-columnist-8tsXn7bh/lib/python3.10/site-packages/django/template/base.py in <listcomp>(1005)
  return SafeString("".join([node.render_annotated(context) for node in self]))

/home/youser/.local/share/virtualenvs/news-site-columnist-8tsXn7bh/lib/python3.10/site-packages/django/template/base.py in render_annotated(966)
  return self.render(context)

/home/youser/.local/share/virtualenvs/news-site-columnist-8tsXn7bh/lib/python3.10/site-packages/django/template/loader_tags.py in render(157)
  return compiled_parent._render(context)

/home/youser/.local/share/virtualenvs/news-site-columnist-8tsXn7bh/lib/python3.10/site-packages/django/test/utils.py in instrumented_test_render(112)
  return self.nodelist.render(context)

/home/youser/.local/share/virtualenvs/news-site-columnist-8tsXn7bh/lib/python3.10/site-packages/django/template/base.py in render(1005)
  return SafeString("".join([node.render_annotated(context) for node in self]))

/home/youser/.local/share/virtualenvs/news-site-columnist-8tsXn7bh/lib/python3.10/site-packages/django/template/base.py in <listcomp>(1005)
  return SafeString("".join([node.render_annotated(context) for node in self]))

/home/youser/.local/share/virtualenvs/news-site-columnist-8tsXn7bh/lib/python3.10/site-packages/django/template/base.py in render_annotated(966)
  return self.render(context)

/home/youser/.local/share/virtualenvs/news-site-columnist-8tsXn7bh/lib/python3.10/site-packages/django/template/defaulttags.py in render(238)
  nodelist.append(node.render_annotated(context))

/home/youser/.local/share/virtualenvs/news-site-columnist-8tsXn7bh/lib/python3.10/site-packages/django/template/base.py in render_annotated(966)
  return self.render(context)

/home/youser/.local/share/virtualenvs/news-site-columnist-8tsXn7bh/lib/python3.10/site-packages/django/template/defaulttags.py in render(321)
  return nodelist.render(context)

/home/youser/.local/share/virtualenvs/news-site-columnist-8tsXn7bh/lib/python3.10/site-packages/django/template/base.py in render(1005)
  return SafeString("".join([node.render_annotated(context) for node in self]))

/home/youser/.local/share/virtualenvs/news-site-columnist-8tsXn7bh/lib/python3.10/site-packages/django/template/base.py in <listcomp>(1005)
  return SafeString("".join([node.render_annotated(context) for node in self]))

/home/youser/.local/share/virtualenvs/news-site-columnist-8tsXn7bh/lib/python3.10/site-packages/django/template/base.py in render_annotated(966)
  return self.render(context)

/home/youser/.local/share/virtualenvs/news-site-columnist-8tsXn7bh/lib/python3.10/site-packages/django/template/defaulttags.py in render(194)
  len_values = len(values)

138 </a>
139 <nav class="nav__submenu">
140 {% get_regions_categoires as regions %}
141 {% for region in regions %}
142 <a href="{{ region.get_absolute_url }}" class="nav__submenu_itm">{{ region.name }}</a>
143 {% endfor %}
144 </nav>
145 </div>

/var/www/news-site-columnist/news/templates/new-design/components/header.html

SELECT "category"."id",
       "category"."created_at",
       "category"."updated_at",
       "category"."seo_title",
       "category"."seo_title_uk",
       "category"."seo_title_en",
       "category"."seo_title_ru",
       "category"."seo_description",
       "category"."seo_description_uk",
       "category"."seo_description_en",
       "category"."seo_description_ru",
       "category"."seo_keywords",
       "category"."seo_keywords_uk",
       "category"."seo_keywords_en",
       "category"."seo_keywords_ru",
       "category"."seo_header_one",
       "category"."seo_header_one_uk",
       "category"."seo_header_one_en",
       "category"."seo_header_one_ru",
       "category"."seo_news_title",
       "category"."seo_news_title_uk",
       "category"."seo_news_title_en",
       "category"."seo_news_title_ru",
       "category"."seo_news_description",
       "category"."seo_news_description_uk",
       "category"."seo_news_description_en",
       "category"."seo_news_description_ru",
       "category"."subdomain",
       "category"."parent_id",
       "category"."image",
       "category"."is_active",
       "category"."is_rss_active",
       "category"."is_interesting",
       "category"."ticker_rss_active",
       "category"."show_home",
       "category"."show_home_en",
       "category"."show_video",
       "category"."show_menu",
       "category"."show_menu_uk",
       "category"."show_menu_en",
       "category"."show_menu_ru",
       "category"."show_footer",
       "category"."show_menu_in_en",
       "category"."show_footer_in_en",
       "category"."show_in_search",
       "category"."show_in_header",
       "category"."show_in_header_uk",
       "category"."show_in_header_en",
       "category"."show_in_header_ru",
       "category"."seo_tag_id",
       "category"."sort_weight",
       "category"."sort_weight_en",
       "category"."header_sort_weight",
       "category"."header_sort_weight_uk",
       "category"."header_sort_weight_en",
       "category"."header_sort_weight_ru",
       "category"."footer_sort_weight",
       "category"."menu_sort_weight",
       "category"."name",
       "category"."name_uk",
       "category"."name_en",
       "category"."name_ru",
       "category"."slug",
       "category"."description",
       "category"."description_uk",
       "category"."description_en",
       "category"."description_ru",
       "category"."fb_link",
       "category"."tg_link",
       "category"."show_banner",
       "category"."uk_has_translation",
       "category"."ru_has_translation",
       "category"."en_has_translation",
       "category"."has_infinite_scroll",
       "category"."_show_home_without_subdomain",
       "category"."_show_home_without_subdomain_en",
       "category"."background_id",
       "category"."use_old_design",
       "category"."use_old_design_for_posts",
       "category"."is_context_category",
       "category"."show_stories_on_main",
       "category"."show_posts_table_of_contents",
       "category"."svg_icon"
  FROM "category"
 WHERE ("category"."uk_has_translation" AND NOT "category"."is_context_category" AND "category"."is_active" AND "category"."parent_id" IS NULL)
SELECT ••• FROM "category" WHERE ("category"."uk_has_translation" AND NOT "category"."is_context_category" AND "category"."is_active" AND "category"."parent_id" IS NULL)
1,71

Connection: default

Transaction status: Idle

/home/youser/.local/share/virtualenvs/news-site-columnist-8tsXn7bh/bin/gunicorn in <module>(8)
  sys.exit(run())

/home/youser/.local/share/virtualenvs/news-site-columnist-8tsXn7bh/lib/python3.10/site-packages/gunicorn/app/wsgiapp.py in run(66)
  WSGIApplication("%(prog)s [OPTIONS] [APP_MODULE]", prog=prog).run()

/home/youser/.local/share/virtualenvs/news-site-columnist-8tsXn7bh/lib/python3.10/site-packages/gunicorn/app/base.py in run(235)
  super().run()

/home/youser/.local/share/virtualenvs/news-site-columnist-8tsXn7bh/lib/python3.10/site-packages/gunicorn/app/base.py in run(71)
  Arbiter(self).run()

/home/youser/.local/share/virtualenvs/news-site-columnist-8tsXn7bh/lib/python3.10/site-packages/gunicorn/arbiter.py in run(210)
  self.manage_workers()

/home/youser/.local/share/virtualenvs/news-site-columnist-8tsXn7bh/lib/python3.10/site-packages/gunicorn/arbiter.py in manage_workers(570)
  self.spawn_workers()

/home/youser/.local/share/virtualenvs/news-site-columnist-8tsXn7bh/lib/python3.10/site-packages/gunicorn/arbiter.py in spawn_workers(641)
  self.spawn_worker()

/home/youser/.local/share/virtualenvs/news-site-columnist-8tsXn7bh/lib/python3.10/site-packages/gunicorn/arbiter.py in spawn_worker(608)
  worker.init_process()

/home/youser/.local/share/virtualenvs/news-site-columnist-8tsXn7bh/lib/python3.10/site-packages/gunicorn/workers/base.py in init_process(143)
  self.run()

/home/youser/.local/share/virtualenvs/news-site-columnist-8tsXn7bh/lib/python3.10/site-packages/gunicorn/workers/sync.py in run(125)
  self.run_for_one(timeout)

/home/youser/.local/share/virtualenvs/news-site-columnist-8tsXn7bh/lib/python3.10/site-packages/gunicorn/workers/sync.py in run_for_one(69)
  self.accept(listener)

/home/youser/.local/share/virtualenvs/news-site-columnist-8tsXn7bh/lib/python3.10/site-packages/gunicorn/workers/sync.py in accept(31)
  self.handle(listener, client, addr)

/home/youser/.local/share/virtualenvs/news-site-columnist-8tsXn7bh/lib/python3.10/site-packages/gunicorn/workers/sync.py in handle(134)
  self.handle_request(listener, req, client, addr)

/home/youser/.local/share/virtualenvs/news-site-columnist-8tsXn7bh/lib/python3.10/site-packages/gunicorn/workers/sync.py in handle_request(177)
  respiter = self.wsgi(environ, resp.start_response)

/home/youser/.local/share/virtualenvs/news-site-columnist-8tsXn7bh/lib/python3.10/site-packages/sentry_sdk/utils.py in runner(1864)
  return sentry_patched_function(*args, **kwargs)

/home/youser/.local/share/virtualenvs/news-site-columnist-8tsXn7bh/lib/python3.10/site-packages/sentry_sdk/integrations/django/__init__.py in sentry_patched_wsgi_handler(191)
  return middleware(environ, start_response)

/home/youser/.local/share/virtualenvs/news-site-columnist-8tsXn7bh/lib/python3.10/site-packages/sentry_sdk/integrations/wsgi.py in __call__(132)
  response = self.app(

/home/youser/.local/share/virtualenvs/news-site-columnist-8tsXn7bh/lib/python3.10/site-packages/sentry_sdk/integrations/django/__init__.py in sentry_patched_get_response(478)
  rv = old_get_response(self, request)

/home/youser/.local/share/virtualenvs/news-site-columnist-8tsXn7bh/lib/python3.10/site-packages/sentry_sdk/integrations/django/middleware.py in __call__(177)
  return f(*args, **kwargs)

/home/youser/.local/share/virtualenvs/news-site-columnist-8tsXn7bh/lib/python3.10/site-packages/sentry_sdk/integrations/django/middleware.py in __call__(177)
  return f(*args, **kwargs)

/var/www/news-site-columnist/redirects/middleware/redirect_middleware.py in __call__(17)
  return self.get_response(request)

/home/youser/.local/share/virtualenvs/news-site-columnist-8tsXn7bh/lib/python3.10/site-packages/sentry_sdk/integrations/django/middleware.py in __call__(177)
  return f(*args, **kwargs)

/home/youser/.local/share/virtualenvs/news-site-columnist-8tsXn7bh/lib/python3.10/site-packages/sentry_sdk/integrations/django/middleware.py in __call__(177)
  return f(*args, **kwargs)

/home/youser/.local/share/virtualenvs/news-site-columnist-8tsXn7bh/lib/python3.10/site-packages/sentry_sdk/integrations/django/middleware.py in __call__(177)
  return f(*args, **kwargs)

/home/youser/.local/share/virtualenvs/news-site-columnist-8tsXn7bh/lib/python3.10/site-packages/sentry_sdk/integrations/django/middleware.py in __call__(177)
  return f(*args, **kwargs)

/home/youser/.local/share/virtualenvs/news-site-columnist-8tsXn7bh/lib/python3.10/site-packages/corsheaders/middleware.py in __call__(53)
  result = self.get_response(request)

/home/youser/.local/share/virtualenvs/news-site-columnist-8tsXn7bh/lib/python3.10/site-packages/sentry_sdk/integrations/django/middleware.py in __call__(177)
  return f(*args, **kwargs)

/home/youser/.local/share/virtualenvs/news-site-columnist-8tsXn7bh/lib/python3.10/site-packages/django_user_agents/middleware.py in __call__(14)
  return self.get_response(request)

/home/youser/.local/share/virtualenvs/news-site-columnist-8tsXn7bh/lib/python3.10/site-packages/sentry_sdk/integrations/django/middleware.py in __call__(177)
  return f(*args, **kwargs)

/home/youser/.local/share/virtualenvs/news-site-columnist-8tsXn7bh/lib/python3.10/site-packages/sentry_sdk/integrations/django/middleware.py in __call__(177)
  return f(*args, **kwargs)

/home/youser/.local/share/virtualenvs/news-site-columnist-8tsXn7bh/lib/python3.10/site-packages/sentry_sdk/integrations/django/middleware.py in __call__(177)
  return f(*args, **kwargs)

/home/youser/.local/share/virtualenvs/news-site-columnist-8tsXn7bh/lib/python3.10/site-packages/sentry_sdk/integrations/django/middleware.py in __call__(177)
  return f(*args, **kwargs)

/home/youser/.local/share/virtualenvs/news-site-columnist-8tsXn7bh/lib/python3.10/site-packages/sentry_sdk/integrations/django/middleware.py in __call__(177)
  return f(*args, **kwargs)

/home/youser/.local/share/virtualenvs/news-site-columnist-8tsXn7bh/lib/python3.10/site-packages/sentry_sdk/integrations/django/middleware.py in __call__(177)
  return f(*args, **kwargs)

/home/youser/.local/share/virtualenvs/news-site-columnist-8tsXn7bh/lib/python3.10/site-packages/sentry_sdk/integrations/django/middleware.py in __call__(177)
  return f(*args, **kwargs)

/home/youser/.local/share/virtualenvs/news-site-columnist-8tsXn7bh/lib/python3.10/site-packages/sentry_sdk/integrations/django/middleware.py in __call__(177)
  return f(*args, **kwargs)

/var/www/news-site-columnist/news/middleware/subdomain_middleare.py in __call__(22)
  response = self.get_response(request)

/home/youser/.local/share/virtualenvs/news-site-columnist-8tsXn7bh/lib/python3.10/site-packages/sentry_sdk/integrations/django/views.py in sentry_patched_render(41)
  return old_render(self)

/home/youser/.local/share/virtualenvs/news-site-columnist-8tsXn7bh/lib/python3.10/site-packages/django/template/response.py in render(114)
  self.content = self.rendered_content

/home/youser/.local/share/virtualenvs/news-site-columnist-8tsXn7bh/lib/python3.10/site-packages/sentry_sdk/utils.py in runner(1864)
  return sentry_patched_function(*args, **kwargs)

/home/youser/.local/share/virtualenvs/news-site-columnist-8tsXn7bh/lib/python3.10/site-packages/sentry_sdk/integrations/django/templates.py in rendered_content(77)
  return real_rendered_content.fget(self)

/home/youser/.local/share/virtualenvs/news-site-columnist-8tsXn7bh/lib/python3.10/site-packages/django/template/response.py in rendered_content(92)
  return template.render(context, self._request)

/home/youser/.local/share/virtualenvs/news-site-columnist-8tsXn7bh/lib/python3.10/site-packages/django/template/backends/django.py in render(61)
  return self.template.render(context)

/home/youser/.local/share/virtualenvs/news-site-columnist-8tsXn7bh/lib/python3.10/site-packages/template_timings_panel/panels/TemplateTimings.py in timing_hook(139)
  result = func(self, *args, **kwargs)

/home/youser/.local/share/virtualenvs/news-site-columnist-8tsXn7bh/lib/python3.10/site-packages/django/template/base.py in render(175)
  return self._render(context)

/home/youser/.local/share/virtualenvs/news-site-columnist-8tsXn7bh/lib/python3.10/site-packages/django/test/utils.py in instrumented_test_render(112)
  return self.nodelist.render(context)

/home/youser/.local/share/virtualenvs/news-site-columnist-8tsXn7bh/lib/python3.10/site-packages/django/template/base.py in render(1005)
  return SafeString("".join([node.render_annotated(context) for node in self]))

/home/youser/.local/share/virtualenvs/news-site-columnist-8tsXn7bh/lib/python3.10/site-packages/django/template/base.py in <listcomp>(1005)
  return SafeString("".join([node.render_annotated(context) for node in self]))

/home/youser/.local/share/virtualenvs/news-site-columnist-8tsXn7bh/lib/python3.10/site-packages/django/template/base.py in render_annotated(966)
  return self.render(context)

/home/youser/.local/share/virtualenvs/news-site-columnist-8tsXn7bh/lib/python3.10/site-packages/django/template/loader_tags.py in render(157)
  return compiled_parent._render(context)

/home/youser/.local/share/virtualenvs/news-site-columnist-8tsXn7bh/lib/python3.10/site-packages/django/test/utils.py in instrumented_test_render(112)
  return self.nodelist.render(context)

/home/youser/.local/share/virtualenvs/news-site-columnist-8tsXn7bh/lib/python3.10/site-packages/django/template/base.py in render(1005)
  return SafeString("".join([node.render_annotated(context) for node in self]))

/home/youser/.local/share/virtualenvs/news-site-columnist-8tsXn7bh/lib/python3.10/site-packages/django/template/base.py in <listcomp>(1005)
  return SafeString("".join([node.render_annotated(context) for node in self]))

/home/youser/.local/share/virtualenvs/news-site-columnist-8tsXn7bh/lib/python3.10/site-packages/django/template/base.py in render_annotated(966)
  return self.render(context)

/home/youser/.local/share/virtualenvs/news-site-columnist-8tsXn7bh/lib/python3.10/site-packages/template_timings_panel/panels/TemplateTimings.py in timing_hook(139)
  result = func(self, *args, **kwargs)

/home/youser/.local/share/virtualenvs/news-site-columnist-8tsXn7bh/lib/python3.10/site-packages/django/template/loader_tags.py in render(63)
  result = block.nodelist.render(context)

/home/youser/.local/share/virtualenvs/news-site-columnist-8tsXn7bh/lib/python3.10/site-packages/django/template/base.py in render(1005)
  return SafeString("".join([node.render_annotated(context) for node in self]))

/home/youser/.local/share/virtualenvs/news-site-columnist-8tsXn7bh/lib/python3.10/site-packages/django/template/base.py in <listcomp>(1005)
  return SafeString("".join([node.render_annotated(context) for node in self]))

/home/youser/.local/share/virtualenvs/news-site-columnist-8tsXn7bh/lib/python3.10/site-packages/django/template/base.py in render_annotated(966)
  return self.render(context)

/home/youser/.local/share/virtualenvs/news-site-columnist-8tsXn7bh/lib/python3.10/site-packages/django/template/loader_tags.py in render(208)
  return template.render(context)

/home/youser/.local/share/virtualenvs/news-site-columnist-8tsXn7bh/lib/python3.10/site-packages/template_timings_panel/panels/TemplateTimings.py in timing_hook(139)
  result = func(self, *args, **kwargs)

/home/youser/.local/share/virtualenvs/news-site-columnist-8tsXn7bh/lib/python3.10/site-packages/django/template/base.py in render(177)
  return self._render(context)

/home/youser/.local/share/virtualenvs/news-site-columnist-8tsXn7bh/lib/python3.10/site-packages/django/test/utils.py in instrumented_test_render(112)
  return self.nodelist.render(context)

/home/youser/.local/share/virtualenvs/news-site-columnist-8tsXn7bh/lib/python3.10/site-packages/django/template/base.py in render(1005)
  return SafeString("".join([node.render_annotated(context) for node in self]))

/home/youser/.local/share/virtualenvs/news-site-columnist-8tsXn7bh/lib/python3.10/site-packages/django/template/base.py in <listcomp>(1005)
  return SafeString("".join([node.render_annotated(context) for node in self]))

/home/youser/.local/share/virtualenvs/news-site-columnist-8tsXn7bh/lib/python3.10/site-packages/django/template/base.py in render_annotated(966)
  return self.render(context)

/home/youser/.local/share/virtualenvs/news-site-columnist-8tsXn7bh/lib/python3.10/site-packages/django/template/loader_tags.py in render(157)
  return compiled_parent._render(context)

/home/youser/.local/share/virtualenvs/news-site-columnist-8tsXn7bh/lib/python3.10/site-packages/django/test/utils.py in instrumented_test_render(112)
  return self.nodelist.render(context)

/home/youser/.local/share/virtualenvs/news-site-columnist-8tsXn7bh/lib/python3.10/site-packages/django/template/base.py in render(1005)
  return SafeString("".join([node.render_annotated(context) for node in self]))

/home/youser/.local/share/virtualenvs/news-site-columnist-8tsXn7bh/lib/python3.10/site-packages/django/template/base.py in <listcomp>(1005)
  return SafeString("".join([node.render_annotated(context) for node in self]))

/home/youser/.local/share/virtualenvs/news-site-columnist-8tsXn7bh/lib/python3.10/site-packages/django/template/base.py in render_annotated(966)
  return self.render(context)

/home/youser/.local/share/virtualenvs/news-site-columnist-8tsXn7bh/lib/python3.10/site-packages/django/template/loader_tags.py in render(208)
  return template.render(context)

/home/youser/.local/share/virtualenvs/news-site-columnist-8tsXn7bh/lib/python3.10/site-packages/template_timings_panel/panels/TemplateTimings.py in timing_hook(139)
  result = func(self, *args, **kwargs)

/home/youser/.local/share/virtualenvs/news-site-columnist-8tsXn7bh/lib/python3.10/site-packages/django/template/base.py in render(177)
  return self._render(context)

/home/youser/.local/share/virtualenvs/news-site-columnist-8tsXn7bh/lib/python3.10/site-packages/django/test/utils.py in instrumented_test_render(112)
  return self.nodelist.render(context)

/home/youser/.local/share/virtualenvs/news-site-columnist-8tsXn7bh/lib/python3.10/site-packages/django/template/base.py in render(1005)
  return SafeString("".join([node.render_annotated(context) for node in self]))

/home/youser/.local/share/virtualenvs/news-site-columnist-8tsXn7bh/lib/python3.10/site-packages/django/template/base.py in <listcomp>(1005)
  return SafeString("".join([node.render_annotated(context) for node in self]))

/home/youser/.local/share/virtualenvs/news-site-columnist-8tsXn7bh/lib/python3.10/site-packages/django/template/base.py in render_annotated(966)
  return self.render(context)

/home/youser/.local/share/virtualenvs/news-site-columnist-8tsXn7bh/lib/python3.10/site-packages/django/template/defaulttags.py in render(194)
  len_values = len(values)

18
19 <div class="dropdown-content dropdown-content-categories">
20 {% get_categories as categories %}
21 {% for c in categories %}<span class="dropdown__item" data-value="{{ c.pk }}">{{ c.name }}</span>{% endfor %}
22 </div>
23
24 <button type="submit"
25 class="search__submit-btn"

/var/www/news-site-columnist/news/templates/new-design/components/header-popup.html

SELECT "site_search_searchquery"."id",
       "site_search_searchquery"."query",
       "site_search_searchquery"."created_at",
       "site_search_searchquery"."is_censored",
       "site_search_searchquery"."count"
  FROM "site_search_searchquery"
 WHERE NOT "site_search_searchquery"."is_censored"
 ORDER BY "site_search_searchquery"."count" DESC
 LIMIT 8
SELECT ••• FROM "site_search_searchquery" WHERE NOT "site_search_searchquery"."is_censored" ORDER BY "site_search_searchquery"."count" DESC LIMIT 8
0,83

Connection: default

Transaction status: Idle

/home/youser/.local/share/virtualenvs/news-site-columnist-8tsXn7bh/bin/gunicorn in <module>(8)
  sys.exit(run())

/home/youser/.local/share/virtualenvs/news-site-columnist-8tsXn7bh/lib/python3.10/site-packages/gunicorn/app/wsgiapp.py in run(66)
  WSGIApplication("%(prog)s [OPTIONS] [APP_MODULE]", prog=prog).run()

/home/youser/.local/share/virtualenvs/news-site-columnist-8tsXn7bh/lib/python3.10/site-packages/gunicorn/app/base.py in run(235)
  super().run()

/home/youser/.local/share/virtualenvs/news-site-columnist-8tsXn7bh/lib/python3.10/site-packages/gunicorn/app/base.py in run(71)
  Arbiter(self).run()

/home/youser/.local/share/virtualenvs/news-site-columnist-8tsXn7bh/lib/python3.10/site-packages/gunicorn/arbiter.py in run(210)
  self.manage_workers()

/home/youser/.local/share/virtualenvs/news-site-columnist-8tsXn7bh/lib/python3.10/site-packages/gunicorn/arbiter.py in manage_workers(570)
  self.spawn_workers()

/home/youser/.local/share/virtualenvs/news-site-columnist-8tsXn7bh/lib/python3.10/site-packages/gunicorn/arbiter.py in spawn_workers(641)
  self.spawn_worker()

/home/youser/.local/share/virtualenvs/news-site-columnist-8tsXn7bh/lib/python3.10/site-packages/gunicorn/arbiter.py in spawn_worker(608)
  worker.init_process()

/home/youser/.local/share/virtualenvs/news-site-columnist-8tsXn7bh/lib/python3.10/site-packages/gunicorn/workers/base.py in init_process(143)
  self.run()

/home/youser/.local/share/virtualenvs/news-site-columnist-8tsXn7bh/lib/python3.10/site-packages/gunicorn/workers/sync.py in run(125)
  self.run_for_one(timeout)

/home/youser/.local/share/virtualenvs/news-site-columnist-8tsXn7bh/lib/python3.10/site-packages/gunicorn/workers/sync.py in run_for_one(69)
  self.accept(listener)

/home/youser/.local/share/virtualenvs/news-site-columnist-8tsXn7bh/lib/python3.10/site-packages/gunicorn/workers/sync.py in accept(31)
  self.handle(listener, client, addr)

/home/youser/.local/share/virtualenvs/news-site-columnist-8tsXn7bh/lib/python3.10/site-packages/gunicorn/workers/sync.py in handle(134)
  self.handle_request(listener, req, client, addr)

/home/youser/.local/share/virtualenvs/news-site-columnist-8tsXn7bh/lib/python3.10/site-packages/gunicorn/workers/sync.py in handle_request(177)
  respiter = self.wsgi(environ, resp.start_response)

/home/youser/.local/share/virtualenvs/news-site-columnist-8tsXn7bh/lib/python3.10/site-packages/sentry_sdk/utils.py in runner(1864)
  return sentry_patched_function(*args, **kwargs)

/home/youser/.local/share/virtualenvs/news-site-columnist-8tsXn7bh/lib/python3.10/site-packages/sentry_sdk/integrations/django/__init__.py in sentry_patched_wsgi_handler(191)
  return middleware(environ, start_response)

/home/youser/.local/share/virtualenvs/news-site-columnist-8tsXn7bh/lib/python3.10/site-packages/sentry_sdk/integrations/wsgi.py in __call__(132)
  response = self.app(

/home/youser/.local/share/virtualenvs/news-site-columnist-8tsXn7bh/lib/python3.10/site-packages/sentry_sdk/integrations/django/__init__.py in sentry_patched_get_response(478)
  rv = old_get_response(self, request)

/home/youser/.local/share/virtualenvs/news-site-columnist-8tsXn7bh/lib/python3.10/site-packages/sentry_sdk/integrations/django/middleware.py in __call__(177)
  return f(*args, **kwargs)

/home/youser/.local/share/virtualenvs/news-site-columnist-8tsXn7bh/lib/python3.10/site-packages/sentry_sdk/integrations/django/middleware.py in __call__(177)
  return f(*args, **kwargs)

/var/www/news-site-columnist/redirects/middleware/redirect_middleware.py in __call__(17)
  return self.get_response(request)

/home/youser/.local/share/virtualenvs/news-site-columnist-8tsXn7bh/lib/python3.10/site-packages/sentry_sdk/integrations/django/middleware.py in __call__(177)
  return f(*args, **kwargs)

/home/youser/.local/share/virtualenvs/news-site-columnist-8tsXn7bh/lib/python3.10/site-packages/sentry_sdk/integrations/django/middleware.py in __call__(177)
  return f(*args, **kwargs)

/home/youser/.local/share/virtualenvs/news-site-columnist-8tsXn7bh/lib/python3.10/site-packages/sentry_sdk/integrations/django/middleware.py in __call__(177)
  return f(*args, **kwargs)

/home/youser/.local/share/virtualenvs/news-site-columnist-8tsXn7bh/lib/python3.10/site-packages/sentry_sdk/integrations/django/middleware.py in __call__(177)
  return f(*args, **kwargs)

/home/youser/.local/share/virtualenvs/news-site-columnist-8tsXn7bh/lib/python3.10/site-packages/corsheaders/middleware.py in __call__(53)
  result = self.get_response(request)

/home/youser/.local/share/virtualenvs/news-site-columnist-8tsXn7bh/lib/python3.10/site-packages/sentry_sdk/integrations/django/middleware.py in __call__(177)
  return f(*args, **kwargs)

/home/youser/.local/share/virtualenvs/news-site-columnist-8tsXn7bh/lib/python3.10/site-packages/django_user_agents/middleware.py in __call__(14)
  return self.get_response(request)

/home/youser/.local/share/virtualenvs/news-site-columnist-8tsXn7bh/lib/python3.10/site-packages/sentry_sdk/integrations/django/middleware.py in __call__(177)
  return f(*args, **kwargs)

/home/youser/.local/share/virtualenvs/news-site-columnist-8tsXn7bh/lib/python3.10/site-packages/sentry_sdk/integrations/django/middleware.py in __call__(177)
  return f(*args, **kwargs)

/home/youser/.local/share/virtualenvs/news-site-columnist-8tsXn7bh/lib/python3.10/site-packages/sentry_sdk/integrations/django/middleware.py in __call__(177)
  return f(*args, **kwargs)

/home/youser/.local/share/virtualenvs/news-site-columnist-8tsXn7bh/lib/python3.10/site-packages/sentry_sdk/integrations/django/middleware.py in __call__(177)
  return f(*args, **kwargs)

/home/youser/.local/share/virtualenvs/news-site-columnist-8tsXn7bh/lib/python3.10/site-packages/sentry_sdk/integrations/django/middleware.py in __call__(177)
  return f(*args, **kwargs)

/home/youser/.local/share/virtualenvs/news-site-columnist-8tsXn7bh/lib/python3.10/site-packages/sentry_sdk/integrations/django/middleware.py in __call__(177)
  return f(*args, **kwargs)

/home/youser/.local/share/virtualenvs/news-site-columnist-8tsXn7bh/lib/python3.10/site-packages/sentry_sdk/integrations/django/middleware.py in __call__(177)
  return f(*args, **kwargs)

/home/youser/.local/share/virtualenvs/news-site-columnist-8tsXn7bh/lib/python3.10/site-packages/sentry_sdk/integrations/django/middleware.py in __call__(177)
  return f(*args, **kwargs)

/var/www/news-site-columnist/news/middleware/subdomain_middleare.py in __call__(22)
  response = self.get_response(request)

/home/youser/.local/share/virtualenvs/news-site-columnist-8tsXn7bh/lib/python3.10/site-packages/sentry_sdk/integrations/django/views.py in sentry_patched_render(41)
  return old_render(self)

/home/youser/.local/share/virtualenvs/news-site-columnist-8tsXn7bh/lib/python3.10/site-packages/django/template/response.py in render(114)
  self.content = self.rendered_content

/home/youser/.local/share/virtualenvs/news-site-columnist-8tsXn7bh/lib/python3.10/site-packages/sentry_sdk/utils.py in runner(1864)
  return sentry_patched_function(*args, **kwargs)

/home/youser/.local/share/virtualenvs/news-site-columnist-8tsXn7bh/lib/python3.10/site-packages/sentry_sdk/integrations/django/templates.py in rendered_content(77)
  return real_rendered_content.fget(self)

/home/youser/.local/share/virtualenvs/news-site-columnist-8tsXn7bh/lib/python3.10/site-packages/django/template/response.py in rendered_content(92)
  return template.render(context, self._request)

/home/youser/.local/share/virtualenvs/news-site-columnist-8tsXn7bh/lib/python3.10/site-packages/django/template/backends/django.py in render(61)
  return self.template.render(context)

/home/youser/.local/share/virtualenvs/news-site-columnist-8tsXn7bh/lib/python3.10/site-packages/template_timings_panel/panels/TemplateTimings.py in timing_hook(139)
  result = func(self, *args, **kwargs)

/home/youser/.local/share/virtualenvs/news-site-columnist-8tsXn7bh/lib/python3.10/site-packages/django/template/base.py in render(175)
  return self._render(context)

/home/youser/.local/share/virtualenvs/news-site-columnist-8tsXn7bh/lib/python3.10/site-packages/django/test/utils.py in instrumented_test_render(112)
  return self.nodelist.render(context)

/home/youser/.local/share/virtualenvs/news-site-columnist-8tsXn7bh/lib/python3.10/site-packages/django/template/base.py in render(1005)
  return SafeString("".join([node.render_annotated(context) for node in self]))

/home/youser/.local/share/virtualenvs/news-site-columnist-8tsXn7bh/lib/python3.10/site-packages/django/template/base.py in <listcomp>(1005)
  return SafeString("".join([node.render_annotated(context) for node in self]))

/home/youser/.local/share/virtualenvs/news-site-columnist-8tsXn7bh/lib/python3.10/site-packages/django/template/base.py in render_annotated(966)
  return self.render(context)

/home/youser/.local/share/virtualenvs/news-site-columnist-8tsXn7bh/lib/python3.10/site-packages/django/template/loader_tags.py in render(157)
  return compiled_parent._render(context)

/home/youser/.local/share/virtualenvs/news-site-columnist-8tsXn7bh/lib/python3.10/site-packages/django/test/utils.py in instrumented_test_render(112)
  return self.nodelist.render(context)

/home/youser/.local/share/virtualenvs/news-site-columnist-8tsXn7bh/lib/python3.10/site-packages/django/template/base.py in render(1005)
  return SafeString("".join([node.render_annotated(context) for node in self]))

/home/youser/.local/share/virtualenvs/news-site-columnist-8tsXn7bh/lib/python3.10/site-packages/django/template/base.py in <listcomp>(1005)
  return SafeString("".join([node.render_annotated(context) for node in self]))

/home/youser/.local/share/virtualenvs/news-site-columnist-8tsXn7bh/lib/python3.10/site-packages/django/template/base.py in render_annotated(966)
  return self.render(context)

/home/youser/.local/share/virtualenvs/news-site-columnist-8tsXn7bh/lib/python3.10/site-packages/template_timings_panel/panels/TemplateTimings.py in timing_hook(139)
  result = func(self, *args, **kwargs)

/home/youser/.local/share/virtualenvs/news-site-columnist-8tsXn7bh/lib/python3.10/site-packages/django/template/loader_tags.py in render(63)
  result = block.nodelist.render(context)

/home/youser/.local/share/virtualenvs/news-site-columnist-8tsXn7bh/lib/python3.10/site-packages/django/template/base.py in render(1005)
  return SafeString("".join([node.render_annotated(context) for node in self]))

/home/youser/.local/share/virtualenvs/news-site-columnist-8tsXn7bh/lib/python3.10/site-packages/django/template/base.py in <listcomp>(1005)
  return SafeString("".join([node.render_annotated(context) for node in self]))

/home/youser/.local/share/virtualenvs/news-site-columnist-8tsXn7bh/lib/python3.10/site-packages/django/template/base.py in render_annotated(966)
  return self.render(context)

/home/youser/.local/share/virtualenvs/news-site-columnist-8tsXn7bh/lib/python3.10/site-packages/django/template/loader_tags.py in render(208)
  return template.render(context)

/home/youser/.local/share/virtualenvs/news-site-columnist-8tsXn7bh/lib/python3.10/site-packages/template_timings_panel/panels/TemplateTimings.py in timing_hook(139)
  result = func(self, *args, **kwargs)

/home/youser/.local/share/virtualenvs/news-site-columnist-8tsXn7bh/lib/python3.10/site-packages/django/template/base.py in render(177)
  return self._render(context)

/home/youser/.local/share/virtualenvs/news-site-columnist-8tsXn7bh/lib/python3.10/site-packages/django/test/utils.py in instrumented_test_render(112)
  return self.nodelist.render(context)

/home/youser/.local/share/virtualenvs/news-site-columnist-8tsXn7bh/lib/python3.10/site-packages/django/template/base.py in render(1005)
  return SafeString("".join([node.render_annotated(context) for node in self]))

/home/youser/.local/share/virtualenvs/news-site-columnist-8tsXn7bh/lib/python3.10/site-packages/django/template/base.py in <listcomp>(1005)
  return SafeString("".join([node.render_annotated(context) for node in self]))

/home/youser/.local/share/virtualenvs/news-site-columnist-8tsXn7bh/lib/python3.10/site-packages/django/template/base.py in render_annotated(966)
  return self.render(context)

/home/youser/.local/share/virtualenvs/news-site-columnist-8tsXn7bh/lib/python3.10/site-packages/django/template/loader_tags.py in render(157)
  return compiled_parent._render(context)

/home/youser/.local/share/virtualenvs/news-site-columnist-8tsXn7bh/lib/python3.10/site-packages/django/test/utils.py in instrumented_test_render(112)
  return self.nodelist.render(context)

/home/youser/.local/share/virtualenvs/news-site-columnist-8tsXn7bh/lib/python3.10/site-packages/django/template/base.py in render(1005)
  return SafeString("".join([node.render_annotated(context) for node in self]))

/home/youser/.local/share/virtualenvs/news-site-columnist-8tsXn7bh/lib/python3.10/site-packages/django/template/base.py in <listcomp>(1005)
  return SafeString("".join([node.render_annotated(context) for node in self]))

/home/youser/.local/share/virtualenvs/news-site-columnist-8tsXn7bh/lib/python3.10/site-packages/django/template/base.py in render_annotated(966)
  return self.render(context)

/home/youser/.local/share/virtualenvs/news-site-columnist-8tsXn7bh/lib/python3.10/site-packages/django/template/loader_tags.py in render(208)
  return template.render(context)

/home/youser/.local/share/virtualenvs/news-site-columnist-8tsXn7bh/lib/python3.10/site-packages/template_timings_panel/panels/TemplateTimings.py in timing_hook(139)
  result = func(self, *args, **kwargs)

/home/youser/.local/share/virtualenvs/news-site-columnist-8tsXn7bh/lib/python3.10/site-packages/django/template/base.py in render(177)
  return self._render(context)

/home/youser/.local/share/virtualenvs/news-site-columnist-8tsXn7bh/lib/python3.10/site-packages/django/test/utils.py in instrumented_test_render(112)
  return self.nodelist.render(context)

/home/youser/.local/share/virtualenvs/news-site-columnist-8tsXn7bh/lib/python3.10/site-packages/django/template/base.py in render(1005)
  return SafeString("".join([node.render_annotated(context) for node in self]))

/home/youser/.local/share/virtualenvs/news-site-columnist-8tsXn7bh/lib/python3.10/site-packages/django/template/base.py in <listcomp>(1005)
  return SafeString("".join([node.render_annotated(context) for node in self]))

/home/youser/.local/share/virtualenvs/news-site-columnist-8tsXn7bh/lib/python3.10/site-packages/django/template/base.py in render_annotated(966)
  return self.render(context)

/home/youser/.local/share/virtualenvs/news-site-columnist-8tsXn7bh/lib/python3.10/site-packages/django/template/defaulttags.py in render(321)
  return nodelist.render(context)

/home/youser/.local/share/virtualenvs/news-site-columnist-8tsXn7bh/lib/python3.10/site-packages/django/template/base.py in render(1005)
  return SafeString("".join([node.render_annotated(context) for node in self]))

/home/youser/.local/share/virtualenvs/news-site-columnist-8tsXn7bh/lib/python3.10/site-packages/django/template/base.py in <listcomp>(1005)
  return SafeString("".join([node.render_annotated(context) for node in self]))

/home/youser/.local/share/virtualenvs/news-site-columnist-8tsXn7bh/lib/python3.10/site-packages/django/template/base.py in render_annotated(966)
  return self.render(context)

/home/youser/.local/share/virtualenvs/news-site-columnist-8tsXn7bh/lib/python3.10/site-packages/django/template/loader_tags.py in render(208)
  return template.render(context)

/home/youser/.local/share/virtualenvs/news-site-columnist-8tsXn7bh/lib/python3.10/site-packages/template_timings_panel/panels/TemplateTimings.py in timing_hook(139)
  result = func(self, *args, **kwargs)

/home/youser/.local/share/virtualenvs/news-site-columnist-8tsXn7bh/lib/python3.10/site-packages/django/template/base.py in render(177)
  return self._render(context)

/home/youser/.local/share/virtualenvs/news-site-columnist-8tsXn7bh/lib/python3.10/site-packages/django/test/utils.py in instrumented_test_render(112)
  return self.nodelist.render(context)

/home/youser/.local/share/virtualenvs/news-site-columnist-8tsXn7bh/lib/python3.10/site-packages/django/template/base.py in render(1005)
  return SafeString("".join([node.render_annotated(context) for node in self]))

/home/youser/.local/share/virtualenvs/news-site-columnist-8tsXn7bh/lib/python3.10/site-packages/django/template/base.py in <listcomp>(1005)
  return SafeString("".join([node.render_annotated(context) for node in self]))

/home/youser/.local/share/virtualenvs/news-site-columnist-8tsXn7bh/lib/python3.10/site-packages/django/template/base.py in render_annotated(966)
  return self.render(context)

/home/youser/.local/share/virtualenvs/news-site-columnist-8tsXn7bh/lib/python3.10/site-packages/django/template/library.py in render(237)
  output = self.func(*resolved_args, **resolved_kwargs)

/var/www/news-site-columnist/site_search/templatetags/search_tags.py in get_popular_searches(18)
  chunked_searches = chunk_queryset(popular_searches, 2)

/var/www/news-site-columnist/site_search/templatetags/search_tags.py in chunk_queryset(15)
  args = [iter(queryset)] * chunk_size

1 {% load i18n search_tags %}
2 <div class="popular-searches {{ class }}">
3 <p class="popular-searches__title">{% trans "Популярні запити" %}</p>
4 {% get_popular_searches as chunked_searches %}
5 {% for row in chunked_searches %}
6 <div class="popular-searches__items">
7 {% for search in row %}
8 {% if search %}

/var/www/news-site-columnist/news/templates/new-design/components/search/popular-searches.html

SELECT "category"."id",
       "category"."created_at",
       "category"."updated_at",
       "category"."seo_title",
       "category"."seo_title_uk",
       "category"."seo_title_en",
       "category"."seo_title_ru",
       "category"."seo_description",
       "category"."seo_description_uk",
       "category"."seo_description_en",
       "category"."seo_description_ru",
       "category"."seo_keywords",
       "category"."seo_keywords_uk",
       "category"."seo_keywords_en",
       "category"."seo_keywords_ru",
       "category"."seo_header_one",
       "category"."seo_header_one_uk",
       "category"."seo_header_one_en",
       "category"."seo_header_one_ru",
       "category"."seo_news_title",
       "category"."seo_news_title_uk",
       "category"."seo_news_title_en",
       "category"."seo_news_title_ru",
       "category"."seo_news_description",
       "category"."seo_news_description_uk",
       "category"."seo_news_description_en",
       "category"."seo_news_description_ru",
       "category"."subdomain",
       "category"."parent_id",
       "category"."image",
       "category"."is_active",
       "category"."is_rss_active",
       "category"."is_interesting",
       "category"."ticker_rss_active",
       "category"."show_home",
       "category"."show_home_en",
       "category"."show_video",
       "category"."show_menu",
       "category"."show_menu_uk",
       "category"."show_menu_en",
       "category"."show_menu_ru",
       "category"."show_footer",
       "category"."show_menu_in_en",
       "category"."show_footer_in_en",
       "category"."show_in_search",
       "category"."show_in_header",
       "category"."show_in_header_uk",
       "category"."show_in_header_en",
       "category"."show_in_header_ru",
       "category"."seo_tag_id",
       "category"."sort_weight",
       "category"."sort_weight_en",
       "category"."header_sort_weight",
       "category"."header_sort_weight_uk",
       "category"."header_sort_weight_en",
       "category"."header_sort_weight_ru",
       "category"."footer_sort_weight",
       "category"."menu_sort_weight",
       "category"."name",
       "category"."name_uk",
       "category"."name_en",
       "category"."name_ru",
       "category"."slug",
       "category"."description",
       "category"."description_uk",
       "category"."description_en",
       "category"."description_ru",
       "category"."fb_link",
       "category"."tg_link",
       "category"."show_banner",
       "category"."uk_has_translation",
       "category"."ru_has_translation",
       "category"."en_has_translation",
       "category"."has_infinite_scroll",
       "category"."_show_home_without_subdomain",
       "category"."_show_home_without_subdomain_en",
       "category"."background_id",
       "category"."use_old_design",
       "category"."use_old_design_for_posts",
       "category"."is_context_category",
       "category"."show_stories_on_main",
       "category"."show_posts_table_of_contents",
       "category"."svg_icon"
  FROM "category"
 WHERE ("category"."uk_has_translation" AND NOT "category"."is_context_category" AND "category"."show_in_header_uk")
 ORDER BY "category"."header_sort_weight_uk" DESC
SELECT ••• FROM "category" WHERE ("category"."uk_has_translation" AND NOT "category"."is_context_category" AND "category"."show_in_header_uk") ORDER BY "category"."header_sort_weight_uk" DESC
3 similar queries. Duplicated 3 times.
0,73

Connection: default

Transaction status: Idle

/home/youser/.local/share/virtualenvs/news-site-columnist-8tsXn7bh/bin/gunicorn in <module>(8)
  sys.exit(run())

/home/youser/.local/share/virtualenvs/news-site-columnist-8tsXn7bh/lib/python3.10/site-packages/gunicorn/app/wsgiapp.py in run(66)
  WSGIApplication("%(prog)s [OPTIONS] [APP_MODULE]", prog=prog).run()

/home/youser/.local/share/virtualenvs/news-site-columnist-8tsXn7bh/lib/python3.10/site-packages/gunicorn/app/base.py in run(235)
  super().run()

/home/youser/.local/share/virtualenvs/news-site-columnist-8tsXn7bh/lib/python3.10/site-packages/gunicorn/app/base.py in run(71)
  Arbiter(self).run()

/home/youser/.local/share/virtualenvs/news-site-columnist-8tsXn7bh/lib/python3.10/site-packages/gunicorn/arbiter.py in run(210)
  self.manage_workers()

/home/youser/.local/share/virtualenvs/news-site-columnist-8tsXn7bh/lib/python3.10/site-packages/gunicorn/arbiter.py in manage_workers(570)
  self.spawn_workers()

/home/youser/.local/share/virtualenvs/news-site-columnist-8tsXn7bh/lib/python3.10/site-packages/gunicorn/arbiter.py in spawn_workers(641)
  self.spawn_worker()

/home/youser/.local/share/virtualenvs/news-site-columnist-8tsXn7bh/lib/python3.10/site-packages/gunicorn/arbiter.py in spawn_worker(608)
  worker.init_process()

/home/youser/.local/share/virtualenvs/news-site-columnist-8tsXn7bh/lib/python3.10/site-packages/gunicorn/workers/base.py in init_process(143)
  self.run()

/home/youser/.local/share/virtualenvs/news-site-columnist-8tsXn7bh/lib/python3.10/site-packages/gunicorn/workers/sync.py in run(125)
  self.run_for_one(timeout)

/home/youser/.local/share/virtualenvs/news-site-columnist-8tsXn7bh/lib/python3.10/site-packages/gunicorn/workers/sync.py in run_for_one(69)
  self.accept(listener)

/home/youser/.local/share/virtualenvs/news-site-columnist-8tsXn7bh/lib/python3.10/site-packages/gunicorn/workers/sync.py in accept(31)
  self.handle(listener, client, addr)

/home/youser/.local/share/virtualenvs/news-site-columnist-8tsXn7bh/lib/python3.10/site-packages/gunicorn/workers/sync.py in handle(134)
  self.handle_request(listener, req, client, addr)

/home/youser/.local/share/virtualenvs/news-site-columnist-8tsXn7bh/lib/python3.10/site-packages/gunicorn/workers/sync.py in handle_request(177)
  respiter = self.wsgi(environ, resp.start_response)

/home/youser/.local/share/virtualenvs/news-site-columnist-8tsXn7bh/lib/python3.10/site-packages/sentry_sdk/utils.py in runner(1864)
  return sentry_patched_function(*args, **kwargs)

/home/youser/.local/share/virtualenvs/news-site-columnist-8tsXn7bh/lib/python3.10/site-packages/sentry_sdk/integrations/django/__init__.py in sentry_patched_wsgi_handler(191)
  return middleware(environ, start_response)

/home/youser/.local/share/virtualenvs/news-site-columnist-8tsXn7bh/lib/python3.10/site-packages/sentry_sdk/integrations/wsgi.py in __call__(132)
  response = self.app(

/home/youser/.local/share/virtualenvs/news-site-columnist-8tsXn7bh/lib/python3.10/site-packages/sentry_sdk/integrations/django/__init__.py in sentry_patched_get_response(478)
  rv = old_get_response(self, request)

/home/youser/.local/share/virtualenvs/news-site-columnist-8tsXn7bh/lib/python3.10/site-packages/sentry_sdk/integrations/django/middleware.py in __call__(177)
  return f(*args, **kwargs)

/home/youser/.local/share/virtualenvs/news-site-columnist-8tsXn7bh/lib/python3.10/site-packages/sentry_sdk/integrations/django/middleware.py in __call__(177)
  return f(*args, **kwargs)

/var/www/news-site-columnist/redirects/middleware/redirect_middleware.py in __call__(17)
  return self.get_response(request)

/home/youser/.local/share/virtualenvs/news-site-columnist-8tsXn7bh/lib/python3.10/site-packages/sentry_sdk/integrations/django/middleware.py in __call__(177)
  return f(*args, **kwargs)

/home/youser/.local/share/virtualenvs/news-site-columnist-8tsXn7bh/lib/python3.10/site-packages/sentry_sdk/integrations/django/middleware.py in __call__(177)
  return f(*args, **kwargs)

/home/youser/.local/share/virtualenvs/news-site-columnist-8tsXn7bh/lib/python3.10/site-packages/sentry_sdk/integrations/django/middleware.py in __call__(177)
  return f(*args, **kwargs)

/home/youser/.local/share/virtualenvs/news-site-columnist-8tsXn7bh/lib/python3.10/site-packages/sentry_sdk/integrations/django/middleware.py in __call__(177)
  return f(*args, **kwargs)

/home/youser/.local/share/virtualenvs/news-site-columnist-8tsXn7bh/lib/python3.10/site-packages/corsheaders/middleware.py in __call__(53)
  result = self.get_response(request)

/home/youser/.local/share/virtualenvs/news-site-columnist-8tsXn7bh/lib/python3.10/site-packages/sentry_sdk/integrations/django/middleware.py in __call__(177)
  return f(*args, **kwargs)

/home/youser/.local/share/virtualenvs/news-site-columnist-8tsXn7bh/lib/python3.10/site-packages/django_user_agents/middleware.py in __call__(14)
  return self.get_response(request)

/home/youser/.local/share/virtualenvs/news-site-columnist-8tsXn7bh/lib/python3.10/site-packages/sentry_sdk/integrations/django/middleware.py in __call__(177)
  return f(*args, **kwargs)

/home/youser/.local/share/virtualenvs/news-site-columnist-8tsXn7bh/lib/python3.10/site-packages/sentry_sdk/integrations/django/middleware.py in __call__(177)
  return f(*args, **kwargs)

/home/youser/.local/share/virtualenvs/news-site-columnist-8tsXn7bh/lib/python3.10/site-packages/sentry_sdk/integrations/django/middleware.py in __call__(177)
  return f(*args, **kwargs)

/home/youser/.local/share/virtualenvs/news-site-columnist-8tsXn7bh/lib/python3.10/site-packages/sentry_sdk/integrations/django/middleware.py in __call__(177)
  return f(*args, **kwargs)

/home/youser/.local/share/virtualenvs/news-site-columnist-8tsXn7bh/lib/python3.10/site-packages/sentry_sdk/integrations/django/middleware.py in __call__(177)
  return f(*args, **kwargs)

/home/youser/.local/share/virtualenvs/news-site-columnist-8tsXn7bh/lib/python3.10/site-packages/sentry_sdk/integrations/django/middleware.py in __call__(177)
  return f(*args, **kwargs)

/home/youser/.local/share/virtualenvs/news-site-columnist-8tsXn7bh/lib/python3.10/site-packages/sentry_sdk/integrations/django/middleware.py in __call__(177)
  return f(*args, **kwargs)

/home/youser/.local/share/virtualenvs/news-site-columnist-8tsXn7bh/lib/python3.10/site-packages/sentry_sdk/integrations/django/middleware.py in __call__(177)
  return f(*args, **kwargs)

/var/www/news-site-columnist/news/middleware/subdomain_middleare.py in __call__(22)
  response = self.get_response(request)

/home/youser/.local/share/virtualenvs/news-site-columnist-8tsXn7bh/lib/python3.10/site-packages/sentry_sdk/integrations/django/views.py in sentry_patched_render(41)
  return old_render(self)

/home/youser/.local/share/virtualenvs/news-site-columnist-8tsXn7bh/lib/python3.10/site-packages/django/template/response.py in render(114)
  self.content = self.rendered_content

/home/youser/.local/share/virtualenvs/news-site-columnist-8tsXn7bh/lib/python3.10/site-packages/sentry_sdk/utils.py in runner(1864)
  return sentry_patched_function(*args, **kwargs)

/home/youser/.local/share/virtualenvs/news-site-columnist-8tsXn7bh/lib/python3.10/site-packages/sentry_sdk/integrations/django/templates.py in rendered_content(77)
  return real_rendered_content.fget(self)

/home/youser/.local/share/virtualenvs/news-site-columnist-8tsXn7bh/lib/python3.10/site-packages/django/template/response.py in rendered_content(92)
  return template.render(context, self._request)

/home/youser/.local/share/virtualenvs/news-site-columnist-8tsXn7bh/lib/python3.10/site-packages/django/template/backends/django.py in render(61)
  return self.template.render(context)

/home/youser/.local/share/virtualenvs/news-site-columnist-8tsXn7bh/lib/python3.10/site-packages/template_timings_panel/panels/TemplateTimings.py in timing_hook(139)
  result = func(self, *args, **kwargs)

/home/youser/.local/share/virtualenvs/news-site-columnist-8tsXn7bh/lib/python3.10/site-packages/django/template/base.py in render(175)
  return self._render(context)

/home/youser/.local/share/virtualenvs/news-site-columnist-8tsXn7bh/lib/python3.10/site-packages/django/test/utils.py in instrumented_test_render(112)
  return self.nodelist.render(context)

/home/youser/.local/share/virtualenvs/news-site-columnist-8tsXn7bh/lib/python3.10/site-packages/django/template/base.py in render(1005)
  return SafeString("".join([node.render_annotated(context) for node in self]))

/home/youser/.local/share/virtualenvs/news-site-columnist-8tsXn7bh/lib/python3.10/site-packages/django/template/base.py in <listcomp>(1005)
  return SafeString("".join([node.render_annotated(context) for node in self]))

/home/youser/.local/share/virtualenvs/news-site-columnist-8tsXn7bh/lib/python3.10/site-packages/django/template/base.py in render_annotated(966)
  return self.render(context)

/home/youser/.local/share/virtualenvs/news-site-columnist-8tsXn7bh/lib/python3.10/site-packages/django/template/loader_tags.py in render(157)
  return compiled_parent._render(context)

/home/youser/.local/share/virtualenvs/news-site-columnist-8tsXn7bh/lib/python3.10/site-packages/django/test/utils.py in instrumented_test_render(112)
  return self.nodelist.render(context)

/home/youser/.local/share/virtualenvs/news-site-columnist-8tsXn7bh/lib/python3.10/site-packages/django/template/base.py in render(1005)
  return SafeString("".join([node.render_annotated(context) for node in self]))

/home/youser/.local/share/virtualenvs/news-site-columnist-8tsXn7bh/lib/python3.10/site-packages/django/template/base.py in <listcomp>(1005)
  return SafeString("".join([node.render_annotated(context) for node in self]))

/home/youser/.local/share/virtualenvs/news-site-columnist-8tsXn7bh/lib/python3.10/site-packages/django/template/base.py in render_annotated(966)
  return self.render(context)

/home/youser/.local/share/virtualenvs/news-site-columnist-8tsXn7bh/lib/python3.10/site-packages/template_timings_panel/panels/TemplateTimings.py in timing_hook(139)
  result = func(self, *args, **kwargs)

/home/youser/.local/share/virtualenvs/news-site-columnist-8tsXn7bh/lib/python3.10/site-packages/django/template/loader_tags.py in render(63)
  result = block.nodelist.render(context)

/home/youser/.local/share/virtualenvs/news-site-columnist-8tsXn7bh/lib/python3.10/site-packages/django/template/base.py in render(1005)
  return SafeString("".join([node.render_annotated(context) for node in self]))

/home/youser/.local/share/virtualenvs/news-site-columnist-8tsXn7bh/lib/python3.10/site-packages/django/template/base.py in <listcomp>(1005)
  return SafeString("".join([node.render_annotated(context) for node in self]))

/home/youser/.local/share/virtualenvs/news-site-columnist-8tsXn7bh/lib/python3.10/site-packages/django/template/base.py in render_annotated(966)
  return self.render(context)

/home/youser/.local/share/virtualenvs/news-site-columnist-8tsXn7bh/lib/python3.10/site-packages/django/template/loader_tags.py in render(208)
  return template.render(context)

/home/youser/.local/share/virtualenvs/news-site-columnist-8tsXn7bh/lib/python3.10/site-packages/template_timings_panel/panels/TemplateTimings.py in timing_hook(139)
  result = func(self, *args, **kwargs)

/home/youser/.local/share/virtualenvs/news-site-columnist-8tsXn7bh/lib/python3.10/site-packages/django/template/base.py in render(177)
  return self._render(context)

/home/youser/.local/share/virtualenvs/news-site-columnist-8tsXn7bh/lib/python3.10/site-packages/django/test/utils.py in instrumented_test_render(112)
  return self.nodelist.render(context)

/home/youser/.local/share/virtualenvs/news-site-columnist-8tsXn7bh/lib/python3.10/site-packages/django/template/base.py in render(1005)
  return SafeString("".join([node.render_annotated(context) for node in self]))

/home/youser/.local/share/virtualenvs/news-site-columnist-8tsXn7bh/lib/python3.10/site-packages/django/template/base.py in <listcomp>(1005)
  return SafeString("".join([node.render_annotated(context) for node in self]))

/home/youser/.local/share/virtualenvs/news-site-columnist-8tsXn7bh/lib/python3.10/site-packages/django/template/base.py in render_annotated(966)
  return self.render(context)

/home/youser/.local/share/virtualenvs/news-site-columnist-8tsXn7bh/lib/python3.10/site-packages/django/template/loader_tags.py in render(157)
  return compiled_parent._render(context)

/home/youser/.local/share/virtualenvs/news-site-columnist-8tsXn7bh/lib/python3.10/site-packages/django/test/utils.py in instrumented_test_render(112)
  return self.nodelist.render(context)

/home/youser/.local/share/virtualenvs/news-site-columnist-8tsXn7bh/lib/python3.10/site-packages/django/template/base.py in render(1005)
  return SafeString("".join([node.render_annotated(context) for node in self]))

/home/youser/.local/share/virtualenvs/news-site-columnist-8tsXn7bh/lib/python3.10/site-packages/django/template/base.py in <listcomp>(1005)
  return SafeString("".join([node.render_annotated(context) for node in self]))

/home/youser/.local/share/virtualenvs/news-site-columnist-8tsXn7bh/lib/python3.10/site-packages/django/template/base.py in render_annotated(966)
  return self.render(context)

/home/youser/.local/share/virtualenvs/news-site-columnist-8tsXn7bh/lib/python3.10/site-packages/django/template/loader_tags.py in render(208)
  return template.render(context)

/home/youser/.local/share/virtualenvs/news-site-columnist-8tsXn7bh/lib/python3.10/site-packages/template_timings_panel/panels/TemplateTimings.py in timing_hook(139)
  result = func(self, *args, **kwargs)

/home/youser/.local/share/virtualenvs/news-site-columnist-8tsXn7bh/lib/python3.10/site-packages/django/template/base.py in render(177)
  return self._render(context)

/home/youser/.local/share/virtualenvs/news-site-columnist-8tsXn7bh/lib/python3.10/site-packages/django/test/utils.py in instrumented_test_render(112)
  return self.nodelist.render(context)

/home/youser/.local/share/virtualenvs/news-site-columnist-8tsXn7bh/lib/python3.10/site-packages/django/template/base.py in render(1005)
  return SafeString("".join([node.render_annotated(context) for node in self]))

/home/youser/.local/share/virtualenvs/news-site-columnist-8tsXn7bh/lib/python3.10/site-packages/django/template/base.py in <listcomp>(1005)
  return SafeString("".join([node.render_annotated(context) for node in self]))

/home/youser/.local/share/virtualenvs/news-site-columnist-8tsXn7bh/lib/python3.10/site-packages/django/template/base.py in render_annotated(966)
  return self.render(context)

/home/youser/.local/share/virtualenvs/news-site-columnist-8tsXn7bh/lib/python3.10/site-packages/django/template/library.py in render(237)
  output = self.func(*resolved_args, **resolved_kwargs)

/var/www/news-site-columnist/news/templatetags/custom_tags.py in get_navigation_items(50)
  for cat in categories.all():

62 {% endfor %}
63 </nav>
64 </div> {% endcomment %}
65 {% get_navigation_items as navigation_items %}
66 {% comment %} {% for item in navigation_items %}
67 <div class="header-categories__item header-categories__item_mob-only">
68 <div class="header-categories__mainItem">
69 <a href="{{ item.link }}" class="header-categories__mainItem-title">{{ item.name }}</a>

/var/www/news-site-columnist/news/templates/new-design/components/header-popup.html

SELECT "category"."id",
       "category"."created_at",
       "category"."updated_at",
       "category"."seo_title",
       "category"."seo_title_uk",
       "category"."seo_title_en",
       "category"."seo_title_ru",
       "category"."seo_description",
       "category"."seo_description_uk",
       "category"."seo_description_en",
       "category"."seo_description_ru",
       "category"."seo_keywords",
       "category"."seo_keywords_uk",
       "category"."seo_keywords_en",
       "category"."seo_keywords_ru",
       "category"."seo_header_one",
       "category"."seo_header_one_uk",
       "category"."seo_header_one_en",
       "category"."seo_header_one_ru",
       "category"."seo_news_title",
       "category"."seo_news_title_uk",
       "category"."seo_news_title_en",
       "category"."seo_news_title_ru",
       "category"."seo_news_description",
       "category"."seo_news_description_uk",
       "category"."seo_news_description_en",
       "category"."seo_news_description_ru",
       "category"."subdomain",
       "category"."parent_id",
       "category"."image",
       "category"."is_active",
       "category"."is_rss_active",
       "category"."is_interesting",
       "category"."ticker_rss_active",
       "category"."show_home",
       "category"."show_home_en",
       "category"."show_video",
       "category"."show_menu",
       "category"."show_menu_uk",
       "category"."show_menu_en",
       "category"."show_menu_ru",
       "category"."show_footer",
       "category"."show_menu_in_en",
       "category"."show_footer_in_en",
       "category"."show_in_search",
       "category"."show_in_header",
       "category"."show_in_header_uk",
       "category"."show_in_header_en",
       "category"."show_in_header_ru",
       "category"."seo_tag_id",
       "category"."sort_weight",
       "category"."sort_weight_en",
       "category"."header_sort_weight",
       "category"."header_sort_weight_uk",
       "category"."header_sort_weight_en",
       "category"."header_sort_weight_ru",
       "category"."footer_sort_weight",
       "category"."menu_sort_weight",
       "category"."name",
       "category"."name_uk",
       "category"."name_en",
       "category"."name_ru",
       "category"."slug",
       "category"."description",
       "category"."description_uk",
       "category"."description_en",
       "category"."description_ru",
       "category"."fb_link",
       "category"."tg_link",
       "category"."show_banner",
       "category"."uk_has_translation",
       "category"."ru_has_translation",
       "category"."en_has_translation",
       "category"."has_infinite_scroll",
       "category"."_show_home_without_subdomain",
       "category"."_show_home_without_subdomain_en",
       "category"."background_id",
       "category"."use_old_design",
       "category"."use_old_design_for_posts",
       "category"."is_context_category",
       "category"."show_stories_on_main",
       "category"."show_posts_table_of_contents",
       "category"."svg_icon"
  FROM "category"
 WHERE ("category"."uk_has_translation" AND NOT "category"."is_context_category" AND "category"."is_active" AND "category"."parent_id" IS NULL AND "category"."show_menu_uk")
 ORDER BY "category"."menu_sort_weight" DESC,
          "category"."name_uk" ASC
SELECT ••• FROM "category" WHERE ("category"."uk_has_translation" AND NOT "category"."is_context_category" AND "category"."is_active" AND "category"."parent_id" IS NULL AND "category"."show_menu_uk") ORDER BY "category"."menu_sort_weight" DESC, "category"."name_uk" ASC
1,82

Connection: default

Transaction status: Idle

/home/youser/.local/share/virtualenvs/news-site-columnist-8tsXn7bh/bin/gunicorn in <module>(8)
  sys.exit(run())

/home/youser/.local/share/virtualenvs/news-site-columnist-8tsXn7bh/lib/python3.10/site-packages/gunicorn/app/wsgiapp.py in run(66)
  WSGIApplication("%(prog)s [OPTIONS] [APP_MODULE]", prog=prog).run()

/home/youser/.local/share/virtualenvs/news-site-columnist-8tsXn7bh/lib/python3.10/site-packages/gunicorn/app/base.py in run(235)
  super().run()

/home/youser/.local/share/virtualenvs/news-site-columnist-8tsXn7bh/lib/python3.10/site-packages/gunicorn/app/base.py in run(71)
  Arbiter(self).run()

/home/youser/.local/share/virtualenvs/news-site-columnist-8tsXn7bh/lib/python3.10/site-packages/gunicorn/arbiter.py in run(210)
  self.manage_workers()

/home/youser/.local/share/virtualenvs/news-site-columnist-8tsXn7bh/lib/python3.10/site-packages/gunicorn/arbiter.py in manage_workers(570)
  self.spawn_workers()

/home/youser/.local/share/virtualenvs/news-site-columnist-8tsXn7bh/lib/python3.10/site-packages/gunicorn/arbiter.py in spawn_workers(641)
  self.spawn_worker()

/home/youser/.local/share/virtualenvs/news-site-columnist-8tsXn7bh/lib/python3.10/site-packages/gunicorn/arbiter.py in spawn_worker(608)
  worker.init_process()

/home/youser/.local/share/virtualenvs/news-site-columnist-8tsXn7bh/lib/python3.10/site-packages/gunicorn/workers/base.py in init_process(143)
  self.run()

/home/youser/.local/share/virtualenvs/news-site-columnist-8tsXn7bh/lib/python3.10/site-packages/gunicorn/workers/sync.py in run(125)
  self.run_for_one(timeout)

/home/youser/.local/share/virtualenvs/news-site-columnist-8tsXn7bh/lib/python3.10/site-packages/gunicorn/workers/sync.py in run_for_one(69)
  self.accept(listener)

/home/youser/.local/share/virtualenvs/news-site-columnist-8tsXn7bh/lib/python3.10/site-packages/gunicorn/workers/sync.py in accept(31)
  self.handle(listener, client, addr)

/home/youser/.local/share/virtualenvs/news-site-columnist-8tsXn7bh/lib/python3.10/site-packages/gunicorn/workers/sync.py in handle(134)
  self.handle_request(listener, req, client, addr)

/home/youser/.local/share/virtualenvs/news-site-columnist-8tsXn7bh/lib/python3.10/site-packages/gunicorn/workers/sync.py in handle_request(177)
  respiter = self.wsgi(environ, resp.start_response)

/home/youser/.local/share/virtualenvs/news-site-columnist-8tsXn7bh/lib/python3.10/site-packages/sentry_sdk/utils.py in runner(1864)
  return sentry_patched_function(*args, **kwargs)

/home/youser/.local/share/virtualenvs/news-site-columnist-8tsXn7bh/lib/python3.10/site-packages/sentry_sdk/integrations/django/__init__.py in sentry_patched_wsgi_handler(191)
  return middleware(environ, start_response)

/home/youser/.local/share/virtualenvs/news-site-columnist-8tsXn7bh/lib/python3.10/site-packages/sentry_sdk/integrations/wsgi.py in __call__(132)
  response = self.app(

/home/youser/.local/share/virtualenvs/news-site-columnist-8tsXn7bh/lib/python3.10/site-packages/sentry_sdk/integrations/django/__init__.py in sentry_patched_get_response(478)
  rv = old_get_response(self, request)

/home/youser/.local/share/virtualenvs/news-site-columnist-8tsXn7bh/lib/python3.10/site-packages/sentry_sdk/integrations/django/middleware.py in __call__(177)
  return f(*args, **kwargs)

/home/youser/.local/share/virtualenvs/news-site-columnist-8tsXn7bh/lib/python3.10/site-packages/sentry_sdk/integrations/django/middleware.py in __call__(177)
  return f(*args, **kwargs)

/var/www/news-site-columnist/redirects/middleware/redirect_middleware.py in __call__(17)
  return self.get_response(request)

/home/youser/.local/share/virtualenvs/news-site-columnist-8tsXn7bh/lib/python3.10/site-packages/sentry_sdk/integrations/django/middleware.py in __call__(177)
  return f(*args, **kwargs)

/home/youser/.local/share/virtualenvs/news-site-columnist-8tsXn7bh/lib/python3.10/site-packages/sentry_sdk/integrations/django/middleware.py in __call__(177)
  return f(*args, **kwargs)

/home/youser/.local/share/virtualenvs/news-site-columnist-8tsXn7bh/lib/python3.10/site-packages/sentry_sdk/integrations/django/middleware.py in __call__(177)
  return f(*args, **kwargs)

/home/youser/.local/share/virtualenvs/news-site-columnist-8tsXn7bh/lib/python3.10/site-packages/sentry_sdk/integrations/django/middleware.py in __call__(177)
  return f(*args, **kwargs)

/home/youser/.local/share/virtualenvs/news-site-columnist-8tsXn7bh/lib/python3.10/site-packages/corsheaders/middleware.py in __call__(53)
  result = self.get_response(request)

/home/youser/.local/share/virtualenvs/news-site-columnist-8tsXn7bh/lib/python3.10/site-packages/sentry_sdk/integrations/django/middleware.py in __call__(177)
  return f(*args, **kwargs)

/home/youser/.local/share/virtualenvs/news-site-columnist-8tsXn7bh/lib/python3.10/site-packages/django_user_agents/middleware.py in __call__(14)
  return self.get_response(request)

/home/youser/.local/share/virtualenvs/news-site-columnist-8tsXn7bh/lib/python3.10/site-packages/sentry_sdk/integrations/django/middleware.py in __call__(177)
  return f(*args, **kwargs)

/home/youser/.local/share/virtualenvs/news-site-columnist-8tsXn7bh/lib/python3.10/site-packages/sentry_sdk/integrations/django/middleware.py in __call__(177)
  return f(*args, **kwargs)

/home/youser/.local/share/virtualenvs/news-site-columnist-8tsXn7bh/lib/python3.10/site-packages/sentry_sdk/integrations/django/middleware.py in __call__(177)
  return f(*args, **kwargs)

/home/youser/.local/share/virtualenvs/news-site-columnist-8tsXn7bh/lib/python3.10/site-packages/sentry_sdk/integrations/django/middleware.py in __call__(177)
  return f(*args, **kwargs)

/home/youser/.local/share/virtualenvs/news-site-columnist-8tsXn7bh/lib/python3.10/site-packages/sentry_sdk/integrations/django/middleware.py in __call__(177)
  return f(*args, **kwargs)

/home/youser/.local/share/virtualenvs/news-site-columnist-8tsXn7bh/lib/python3.10/site-packages/sentry_sdk/integrations/django/middleware.py in __call__(177)
  return f(*args, **kwargs)

/home/youser/.local/share/virtualenvs/news-site-columnist-8tsXn7bh/lib/python3.10/site-packages/sentry_sdk/integrations/django/middleware.py in __call__(177)
  return f(*args, **kwargs)

/home/youser/.local/share/virtualenvs/news-site-columnist-8tsXn7bh/lib/python3.10/site-packages/sentry_sdk/integrations/django/middleware.py in __call__(177)
  return f(*args, **kwargs)

/var/www/news-site-columnist/news/middleware/subdomain_middleare.py in __call__(22)
  response = self.get_response(request)

/home/youser/.local/share/virtualenvs/news-site-columnist-8tsXn7bh/lib/python3.10/site-packages/sentry_sdk/integrations/django/views.py in sentry_patched_render(41)
  return old_render(self)

/home/youser/.local/share/virtualenvs/news-site-columnist-8tsXn7bh/lib/python3.10/site-packages/django/template/response.py in render(114)
  self.content = self.rendered_content

/home/youser/.local/share/virtualenvs/news-site-columnist-8tsXn7bh/lib/python3.10/site-packages/sentry_sdk/utils.py in runner(1864)
  return sentry_patched_function(*args, **kwargs)

/home/youser/.local/share/virtualenvs/news-site-columnist-8tsXn7bh/lib/python3.10/site-packages/sentry_sdk/integrations/django/templates.py in rendered_content(77)
  return real_rendered_content.fget(self)

/home/youser/.local/share/virtualenvs/news-site-columnist-8tsXn7bh/lib/python3.10/site-packages/django/template/response.py in rendered_content(92)
  return template.render(context, self._request)

/home/youser/.local/share/virtualenvs/news-site-columnist-8tsXn7bh/lib/python3.10/site-packages/django/template/backends/django.py in render(61)
  return self.template.render(context)

/home/youser/.local/share/virtualenvs/news-site-columnist-8tsXn7bh/lib/python3.10/site-packages/template_timings_panel/panels/TemplateTimings.py in timing_hook(139)
  result = func(self, *args, **kwargs)

/home/youser/.local/share/virtualenvs/news-site-columnist-8tsXn7bh/lib/python3.10/site-packages/django/template/base.py in render(175)
  return self._render(context)

/home/youser/.local/share/virtualenvs/news-site-columnist-8tsXn7bh/lib/python3.10/site-packages/django/test/utils.py in instrumented_test_render(112)
  return self.nodelist.render(context)

/home/youser/.local/share/virtualenvs/news-site-columnist-8tsXn7bh/lib/python3.10/site-packages/django/template/base.py in render(1005)
  return SafeString("".join([node.render_annotated(context) for node in self]))

/home/youser/.local/share/virtualenvs/news-site-columnist-8tsXn7bh/lib/python3.10/site-packages/django/template/base.py in <listcomp>(1005)
  return SafeString("".join([node.render_annotated(context) for node in self]))

/home/youser/.local/share/virtualenvs/news-site-columnist-8tsXn7bh/lib/python3.10/site-packages/django/template/base.py in render_annotated(966)
  return self.render(context)

/home/youser/.local/share/virtualenvs/news-site-columnist-8tsXn7bh/lib/python3.10/site-packages/django/template/loader_tags.py in render(157)
  return compiled_parent._render(context)

/home/youser/.local/share/virtualenvs/news-site-columnist-8tsXn7bh/lib/python3.10/site-packages/django/test/utils.py in instrumented_test_render(112)
  return self.nodelist.render(context)

/home/youser/.local/share/virtualenvs/news-site-columnist-8tsXn7bh/lib/python3.10/site-packages/django/template/base.py in render(1005)
  return SafeString("".join([node.render_annotated(context) for node in self]))

/home/youser/.local/share/virtualenvs/news-site-columnist-8tsXn7bh/lib/python3.10/site-packages/django/template/base.py in <listcomp>(1005)
  return SafeString("".join([node.render_annotated(context) for node in self]))

/home/youser/.local/share/virtualenvs/news-site-columnist-8tsXn7bh/lib/python3.10/site-packages/django/template/base.py in render_annotated(966)
  return self.render(context)

/home/youser/.local/share/virtualenvs/news-site-columnist-8tsXn7bh/lib/python3.10/site-packages/template_timings_panel/panels/TemplateTimings.py in timing_hook(139)
  result = func(self, *args, **kwargs)

/home/youser/.local/share/virtualenvs/news-site-columnist-8tsXn7bh/lib/python3.10/site-packages/django/template/loader_tags.py in render(63)
  result = block.nodelist.render(context)

/home/youser/.local/share/virtualenvs/news-site-columnist-8tsXn7bh/lib/python3.10/site-packages/django/template/base.py in render(1005)
  return SafeString("".join([node.render_annotated(context) for node in self]))

/home/youser/.local/share/virtualenvs/news-site-columnist-8tsXn7bh/lib/python3.10/site-packages/django/template/base.py in <listcomp>(1005)
  return SafeString("".join([node.render_annotated(context) for node in self]))

/home/youser/.local/share/virtualenvs/news-site-columnist-8tsXn7bh/lib/python3.10/site-packages/django/template/base.py in render_annotated(966)
  return self.render(context)

/home/youser/.local/share/virtualenvs/news-site-columnist-8tsXn7bh/lib/python3.10/site-packages/django/template/loader_tags.py in render(208)
  return template.render(context)

/home/youser/.local/share/virtualenvs/news-site-columnist-8tsXn7bh/lib/python3.10/site-packages/template_timings_panel/panels/TemplateTimings.py in timing_hook(139)
  result = func(self, *args, **kwargs)

/home/youser/.local/share/virtualenvs/news-site-columnist-8tsXn7bh/lib/python3.10/site-packages/django/template/base.py in render(177)
  return self._render(context)

/home/youser/.local/share/virtualenvs/news-site-columnist-8tsXn7bh/lib/python3.10/site-packages/django/test/utils.py in instrumented_test_render(112)
  return self.nodelist.render(context)

/home/youser/.local/share/virtualenvs/news-site-columnist-8tsXn7bh/lib/python3.10/site-packages/django/template/base.py in render(1005)
  return SafeString("".join([node.render_annotated(context) for node in self]))

/home/youser/.local/share/virtualenvs/news-site-columnist-8tsXn7bh/lib/python3.10/site-packages/django/template/base.py in <listcomp>(1005)
  return SafeString("".join([node.render_annotated(context) for node in self]))

/home/youser/.local/share/virtualenvs/news-site-columnist-8tsXn7bh/lib/python3.10/site-packages/django/template/base.py in render_annotated(966)
  return self.render(context)

/home/youser/.local/share/virtualenvs/news-site-columnist-8tsXn7bh/lib/python3.10/site-packages/django/template/loader_tags.py in render(157)
  return compiled_parent._render(context)

/home/youser/.local/share/virtualenvs/news-site-columnist-8tsXn7bh/lib/python3.10/site-packages/django/test/utils.py in instrumented_test_render(112)
  return self.nodelist.render(context)

/home/youser/.local/share/virtualenvs/news-site-columnist-8tsXn7bh/lib/python3.10/site-packages/django/template/base.py in render(1005)
  return SafeString("".join([node.render_annotated(context) for node in self]))

/home/youser/.local/share/virtualenvs/news-site-columnist-8tsXn7bh/lib/python3.10/site-packages/django/template/base.py in <listcomp>(1005)
  return SafeString("".join([node.render_annotated(context) for node in self]))

/home/youser/.local/share/virtualenvs/news-site-columnist-8tsXn7bh/lib/python3.10/site-packages/django/template/base.py in render_annotated(966)
  return self.render(context)

/home/youser/.local/share/virtualenvs/news-site-columnist-8tsXn7bh/lib/python3.10/site-packages/django/template/loader_tags.py in render(208)
  return template.render(context)

/home/youser/.local/share/virtualenvs/news-site-columnist-8tsXn7bh/lib/python3.10/site-packages/template_timings_panel/panels/TemplateTimings.py in timing_hook(139)
  result = func(self, *args, **kwargs)

/home/youser/.local/share/virtualenvs/news-site-columnist-8tsXn7bh/lib/python3.10/site-packages/django/template/base.py in render(177)
  return self._render(context)

/home/youser/.local/share/virtualenvs/news-site-columnist-8tsXn7bh/lib/python3.10/site-packages/django/test/utils.py in instrumented_test_render(112)
  return self.nodelist.render(context)

/home/youser/.local/share/virtualenvs/news-site-columnist-8tsXn7bh/lib/python3.10/site-packages/django/template/base.py in render(1005)
  return SafeString("".join([node.render_annotated(context) for node in self]))

/home/youser/.local/share/virtualenvs/news-site-columnist-8tsXn7bh/lib/python3.10/site-packages/django/template/base.py in <listcomp>(1005)
  return SafeString("".join([node.render_annotated(context) for node in self]))

/home/youser/.local/share/virtualenvs/news-site-columnist-8tsXn7bh/lib/python3.10/site-packages/django/template/base.py in render_annotated(966)
  return self.render(context)

/home/youser/.local/share/virtualenvs/news-site-columnist-8tsXn7bh/lib/python3.10/site-packages/django/template/defaulttags.py in render(194)
  len_values = len(values)

70 </div>
71 </div>
72 {% endfor %} {% endcomment %}
73 {% for p_cat in parent_categories_menu %}
74 <div class="header-categories__item">
75 <div class="header-categories__mainItem">
76 <a href="{{ p_cat.get_absolute_url }}"
77 class="header-categories__mainItem-title hover-dark-text">{{ p_cat.name }}</a>

/var/www/news-site-columnist/news/templates/new-design/components/header-popup.html

SELECT "category"."id",
       "category"."created_at",
       "category"."updated_at",
       "category"."seo_title",
       "category"."seo_title_uk",
       "category"."seo_title_en",
       "category"."seo_title_ru",
       "category"."seo_description",
       "category"."seo_description_uk",
       "category"."seo_description_en",
       "category"."seo_description_ru",
       "category"."seo_keywords",
       "category"."seo_keywords_uk",
       "category"."seo_keywords_en",
       "category"."seo_keywords_ru",
       "category"."seo_header_one",
       "category"."seo_header_one_uk",
       "category"."seo_header_one_en",
       "category"."seo_header_one_ru",
       "category"."seo_news_title",
       "category"."seo_news_title_uk",
       "category"."seo_news_title_en",
       "category"."seo_news_title_ru",
       "category"."seo_news_description",
       "category"."seo_news_description_uk",
       "category"."seo_news_description_en",
       "category"."seo_news_description_ru",
       "category"."subdomain",
       "category"."parent_id",
       "category"."image",
       "category"."is_active",
       "category"."is_rss_active",
       "category"."is_interesting",
       "category"."ticker_rss_active",
       "category"."show_home",
       "category"."show_home_en",
       "category"."show_video",
       "category"."show_menu",
       "category"."show_menu_uk",
       "category"."show_menu_en",
       "category"."show_menu_ru",
       "category"."show_footer",
       "category"."show_menu_in_en",
       "category"."show_footer_in_en",
       "category"."show_in_search",
       "category"."show_in_header",
       "category"."show_in_header_uk",
       "category"."show_in_header_en",
       "category"."show_in_header_ru",
       "category"."seo_tag_id",
       "category"."sort_weight",
       "category"."sort_weight_en",
       "category"."header_sort_weight",
       "category"."header_sort_weight_uk",
       "category"."header_sort_weight_en",
       "category"."header_sort_weight_ru",
       "category"."footer_sort_weight",
       "category"."menu_sort_weight",
       "category"."name",
       "category"."name_uk",
       "category"."name_en",
       "category"."name_ru",
       "category"."slug",
       "category"."description",
       "category"."description_uk",
       "category"."description_en",
       "category"."description_ru",
       "category"."fb_link",
       "category"."tg_link",
       "category"."show_banner",
       "category"."uk_has_translation",
       "category"."ru_has_translation",
       "category"."en_has_translation",
       "category"."has_infinite_scroll",
       "category"."_show_home_without_subdomain",
       "category"."_show_home_without_subdomain_en",
       "category"."background_id",
       "category"."use_old_design",
       "category"."use_old_design_for_posts",
       "category"."is_context_category",
       "category"."show_stories_on_main",
       "category"."show_posts_table_of_contents",
       "category"."svg_icon"
  FROM "category"
 WHERE ("category"."uk_has_translation" AND NOT "category"."is_context_category" AND "category"."show_menu_uk" AND "category"."is_active" AND "category"."parent_id" IN (78465, 78468, 78445, 78501, 78506, 78514, 78519, 78516, 78504, 78456, 78517, 78466, 43, 78521, 78522, 78515, 78508, 78510, 78518, 78505, 78472, 78523, 78483))
 ORDER BY "category"."menu_sort_weight" DESC
SELECT ••• FROM "category" WHERE ("category"."uk_has_translation" AND NOT "category"."is_context_category" AND "category"."show_menu_uk" AND "category"."is_active" AND "category"."parent_id" IN (78465, 78468, 78445, 78501, 78506, 78514, 78519, 78516, 78504, 78456, 78517, 78466, 43, 78521, 78522, 78515, 78508, 78510, 78518, 78505, 78472, 78523, 78483)) ORDER BY "category"."menu_sort_weight" DESC
0,93

Connection: default

Transaction status: Idle

/home/youser/.local/share/virtualenvs/news-site-columnist-8tsXn7bh/bin/gunicorn in <module>(8)
  sys.exit(run())

/home/youser/.local/share/virtualenvs/news-site-columnist-8tsXn7bh/lib/python3.10/site-packages/gunicorn/app/wsgiapp.py in run(66)
  WSGIApplication("%(prog)s [OPTIONS] [APP_MODULE]", prog=prog).run()

/home/youser/.local/share/virtualenvs/news-site-columnist-8tsXn7bh/lib/python3.10/site-packages/gunicorn/app/base.py in run(235)
  super().run()

/home/youser/.local/share/virtualenvs/news-site-columnist-8tsXn7bh/lib/python3.10/site-packages/gunicorn/app/base.py in run(71)
  Arbiter(self).run()

/home/youser/.local/share/virtualenvs/news-site-columnist-8tsXn7bh/lib/python3.10/site-packages/gunicorn/arbiter.py in run(210)
  self.manage_workers()

/home/youser/.local/share/virtualenvs/news-site-columnist-8tsXn7bh/lib/python3.10/site-packages/gunicorn/arbiter.py in manage_workers(570)
  self.spawn_workers()

/home/youser/.local/share/virtualenvs/news-site-columnist-8tsXn7bh/lib/python3.10/site-packages/gunicorn/arbiter.py in spawn_workers(641)
  self.spawn_worker()

/home/youser/.local/share/virtualenvs/news-site-columnist-8tsXn7bh/lib/python3.10/site-packages/gunicorn/arbiter.py in spawn_worker(608)
  worker.init_process()

/home/youser/.local/share/virtualenvs/news-site-columnist-8tsXn7bh/lib/python3.10/site-packages/gunicorn/workers/base.py in init_process(143)
  self.run()

/home/youser/.local/share/virtualenvs/news-site-columnist-8tsXn7bh/lib/python3.10/site-packages/gunicorn/workers/sync.py in run(125)
  self.run_for_one(timeout)

/home/youser/.local/share/virtualenvs/news-site-columnist-8tsXn7bh/lib/python3.10/site-packages/gunicorn/workers/sync.py in run_for_one(69)
  self.accept(listener)

/home/youser/.local/share/virtualenvs/news-site-columnist-8tsXn7bh/lib/python3.10/site-packages/gunicorn/workers/sync.py in accept(31)
  self.handle(listener, client, addr)

/home/youser/.local/share/virtualenvs/news-site-columnist-8tsXn7bh/lib/python3.10/site-packages/gunicorn/workers/sync.py in handle(134)
  self.handle_request(listener, req, client, addr)

/home/youser/.local/share/virtualenvs/news-site-columnist-8tsXn7bh/lib/python3.10/site-packages/gunicorn/workers/sync.py in handle_request(177)
  respiter = self.wsgi(environ, resp.start_response)

/home/youser/.local/share/virtualenvs/news-site-columnist-8tsXn7bh/lib/python3.10/site-packages/sentry_sdk/utils.py in runner(1864)
  return sentry_patched_function(*args, **kwargs)

/home/youser/.local/share/virtualenvs/news-site-columnist-8tsXn7bh/lib/python3.10/site-packages/sentry_sdk/integrations/django/__init__.py in sentry_patched_wsgi_handler(191)
  return middleware(environ, start_response)

/home/youser/.local/share/virtualenvs/news-site-columnist-8tsXn7bh/lib/python3.10/site-packages/sentry_sdk/integrations/wsgi.py in __call__(132)
  response = self.app(

/home/youser/.local/share/virtualenvs/news-site-columnist-8tsXn7bh/lib/python3.10/site-packages/sentry_sdk/integrations/django/__init__.py in sentry_patched_get_response(478)
  rv = old_get_response(self, request)

/home/youser/.local/share/virtualenvs/news-site-columnist-8tsXn7bh/lib/python3.10/site-packages/sentry_sdk/integrations/django/middleware.py in __call__(177)
  return f(*args, **kwargs)

/home/youser/.local/share/virtualenvs/news-site-columnist-8tsXn7bh/lib/python3.10/site-packages/sentry_sdk/integrations/django/middleware.py in __call__(177)
  return f(*args, **kwargs)

/var/www/news-site-columnist/redirects/middleware/redirect_middleware.py in __call__(17)
  return self.get_response(request)

/home/youser/.local/share/virtualenvs/news-site-columnist-8tsXn7bh/lib/python3.10/site-packages/sentry_sdk/integrations/django/middleware.py in __call__(177)
  return f(*args, **kwargs)

/home/youser/.local/share/virtualenvs/news-site-columnist-8tsXn7bh/lib/python3.10/site-packages/sentry_sdk/integrations/django/middleware.py in __call__(177)
  return f(*args, **kwargs)

/home/youser/.local/share/virtualenvs/news-site-columnist-8tsXn7bh/lib/python3.10/site-packages/sentry_sdk/integrations/django/middleware.py in __call__(177)
  return f(*args, **kwargs)

/home/youser/.local/share/virtualenvs/news-site-columnist-8tsXn7bh/lib/python3.10/site-packages/sentry_sdk/integrations/django/middleware.py in __call__(177)
  return f(*args, **kwargs)

/home/youser/.local/share/virtualenvs/news-site-columnist-8tsXn7bh/lib/python3.10/site-packages/corsheaders/middleware.py in __call__(53)
  result = self.get_response(request)

/home/youser/.local/share/virtualenvs/news-site-columnist-8tsXn7bh/lib/python3.10/site-packages/sentry_sdk/integrations/django/middleware.py in __call__(177)
  return f(*args, **kwargs)

/home/youser/.local/share/virtualenvs/news-site-columnist-8tsXn7bh/lib/python3.10/site-packages/django_user_agents/middleware.py in __call__(14)
  return self.get_response(request)

/home/youser/.local/share/virtualenvs/news-site-columnist-8tsXn7bh/lib/python3.10/site-packages/sentry_sdk/integrations/django/middleware.py in __call__(177)
  return f(*args, **kwargs)

/home/youser/.local/share/virtualenvs/news-site-columnist-8tsXn7bh/lib/python3.10/site-packages/sentry_sdk/integrations/django/middleware.py in __call__(177)
  return f(*args, **kwargs)

/home/youser/.local/share/virtualenvs/news-site-columnist-8tsXn7bh/lib/python3.10/site-packages/sentry_sdk/integrations/django/middleware.py in __call__(177)
  return f(*args, **kwargs)

/home/youser/.local/share/virtualenvs/news-site-columnist-8tsXn7bh/lib/python3.10/site-packages/sentry_sdk/integrations/django/middleware.py in __call__(177)
  return f(*args, **kwargs)

/home/youser/.local/share/virtualenvs/news-site-columnist-8tsXn7bh/lib/python3.10/site-packages/sentry_sdk/integrations/django/middleware.py in __call__(177)
  return f(*args, **kwargs)

/home/youser/.local/share/virtualenvs/news-site-columnist-8tsXn7bh/lib/python3.10/site-packages/sentry_sdk/integrations/django/middleware.py in __call__(177)
  return f(*args, **kwargs)

/home/youser/.local/share/virtualenvs/news-site-columnist-8tsXn7bh/lib/python3.10/site-packages/sentry_sdk/integrations/django/middleware.py in __call__(177)
  return f(*args, **kwargs)

/home/youser/.local/share/virtualenvs/news-site-columnist-8tsXn7bh/lib/python3.10/site-packages/sentry_sdk/integrations/django/middleware.py in __call__(177)
  return f(*args, **kwargs)

/var/www/news-site-columnist/news/middleware/subdomain_middleare.py in __call__(22)
  response = self.get_response(request)

/home/youser/.local/share/virtualenvs/news-site-columnist-8tsXn7bh/lib/python3.10/site-packages/sentry_sdk/integrations/django/views.py in sentry_patched_render(41)
  return old_render(self)

/home/youser/.local/share/virtualenvs/news-site-columnist-8tsXn7bh/lib/python3.10/site-packages/django/template/response.py in render(114)
  self.content = self.rendered_content

/home/youser/.local/share/virtualenvs/news-site-columnist-8tsXn7bh/lib/python3.10/site-packages/sentry_sdk/utils.py in runner(1864)
  return sentry_patched_function(*args, **kwargs)

/home/youser/.local/share/virtualenvs/news-site-columnist-8tsXn7bh/lib/python3.10/site-packages/sentry_sdk/integrations/django/templates.py in rendered_content(77)
  return real_rendered_content.fget(self)

/home/youser/.local/share/virtualenvs/news-site-columnist-8tsXn7bh/lib/python3.10/site-packages/django/template/response.py in rendered_content(92)
  return template.render(context, self._request)

/home/youser/.local/share/virtualenvs/news-site-columnist-8tsXn7bh/lib/python3.10/site-packages/django/template/backends/django.py in render(61)
  return self.template.render(context)

/home/youser/.local/share/virtualenvs/news-site-columnist-8tsXn7bh/lib/python3.10/site-packages/template_timings_panel/panels/TemplateTimings.py in timing_hook(139)
  result = func(self, *args, **kwargs)

/home/youser/.local/share/virtualenvs/news-site-columnist-8tsXn7bh/lib/python3.10/site-packages/django/template/base.py in render(175)
  return self._render(context)

/home/youser/.local/share/virtualenvs/news-site-columnist-8tsXn7bh/lib/python3.10/site-packages/django/test/utils.py in instrumented_test_render(112)
  return self.nodelist.render(context)

/home/youser/.local/share/virtualenvs/news-site-columnist-8tsXn7bh/lib/python3.10/site-packages/django/template/base.py in render(1005)
  return SafeString("".join([node.render_annotated(context) for node in self]))

/home/youser/.local/share/virtualenvs/news-site-columnist-8tsXn7bh/lib/python3.10/site-packages/django/template/base.py in <listcomp>(1005)
  return SafeString("".join([node.render_annotated(context) for node in self]))

/home/youser/.local/share/virtualenvs/news-site-columnist-8tsXn7bh/lib/python3.10/site-packages/django/template/base.py in render_annotated(966)
  return self.render(context)

/home/youser/.local/share/virtualenvs/news-site-columnist-8tsXn7bh/lib/python3.10/site-packages/django/template/loader_tags.py in render(157)
  return compiled_parent._render(context)

/home/youser/.local/share/virtualenvs/news-site-columnist-8tsXn7bh/lib/python3.10/site-packages/django/test/utils.py in instrumented_test_render(112)
  return self.nodelist.render(context)

/home/youser/.local/share/virtualenvs/news-site-columnist-8tsXn7bh/lib/python3.10/site-packages/django/template/base.py in render(1005)
  return SafeString("".join([node.render_annotated(context) for node in self]))

/home/youser/.local/share/virtualenvs/news-site-columnist-8tsXn7bh/lib/python3.10/site-packages/django/template/base.py in <listcomp>(1005)
  return SafeString("".join([node.render_annotated(context) for node in self]))

/home/youser/.local/share/virtualenvs/news-site-columnist-8tsXn7bh/lib/python3.10/site-packages/django/template/base.py in render_annotated(966)
  return self.render(context)

/home/youser/.local/share/virtualenvs/news-site-columnist-8tsXn7bh/lib/python3.10/site-packages/template_timings_panel/panels/TemplateTimings.py in timing_hook(139)
  result = func(self, *args, **kwargs)

/home/youser/.local/share/virtualenvs/news-site-columnist-8tsXn7bh/lib/python3.10/site-packages/django/template/loader_tags.py in render(63)
  result = block.nodelist.render(context)

/home/youser/.local/share/virtualenvs/news-site-columnist-8tsXn7bh/lib/python3.10/site-packages/django/template/base.py in render(1005)
  return SafeString("".join([node.render_annotated(context) for node in self]))

/home/youser/.local/share/virtualenvs/news-site-columnist-8tsXn7bh/lib/python3.10/site-packages/django/template/base.py in <listcomp>(1005)
  return SafeString("".join([node.render_annotated(context) for node in self]))

/home/youser/.local/share/virtualenvs/news-site-columnist-8tsXn7bh/lib/python3.10/site-packages/django/template/base.py in render_annotated(966)
  return self.render(context)

/home/youser/.local/share/virtualenvs/news-site-columnist-8tsXn7bh/lib/python3.10/site-packages/django/template/loader_tags.py in render(208)
  return template.render(context)

/home/youser/.local/share/virtualenvs/news-site-columnist-8tsXn7bh/lib/python3.10/site-packages/template_timings_panel/panels/TemplateTimings.py in timing_hook(139)
  result = func(self, *args, **kwargs)

/home/youser/.local/share/virtualenvs/news-site-columnist-8tsXn7bh/lib/python3.10/site-packages/django/template/base.py in render(177)
  return self._render(context)

/home/youser/.local/share/virtualenvs/news-site-columnist-8tsXn7bh/lib/python3.10/site-packages/django/test/utils.py in instrumented_test_render(112)
  return self.nodelist.render(context)

/home/youser/.local/share/virtualenvs/news-site-columnist-8tsXn7bh/lib/python3.10/site-packages/django/template/base.py in render(1005)
  return SafeString("".join([node.render_annotated(context) for node in self]))

/home/youser/.local/share/virtualenvs/news-site-columnist-8tsXn7bh/lib/python3.10/site-packages/django/template/base.py in <listcomp>(1005)
  return SafeString("".join([node.render_annotated(context) for node in self]))

/home/youser/.local/share/virtualenvs/news-site-columnist-8tsXn7bh/lib/python3.10/site-packages/django/template/base.py in render_annotated(966)
  return self.render(context)

/home/youser/.local/share/virtualenvs/news-site-columnist-8tsXn7bh/lib/python3.10/site-packages/django/template/loader_tags.py in render(157)
  return compiled_parent._render(context)

/home/youser/.local/share/virtualenvs/news-site-columnist-8tsXn7bh/lib/python3.10/site-packages/django/test/utils.py in instrumented_test_render(112)
  return self.nodelist.render(context)

/home/youser/.local/share/virtualenvs/news-site-columnist-8tsXn7bh/lib/python3.10/site-packages/django/template/base.py in render(1005)
  return SafeString("".join([node.render_annotated(context) for node in self]))

/home/youser/.local/share/virtualenvs/news-site-columnist-8tsXn7bh/lib/python3.10/site-packages/django/template/base.py in <listcomp>(1005)
  return SafeString("".join([node.render_annotated(context) for node in self]))

/home/youser/.local/share/virtualenvs/news-site-columnist-8tsXn7bh/lib/python3.10/site-packages/django/template/base.py in render_annotated(966)
  return self.render(context)

/home/youser/.local/share/virtualenvs/news-site-columnist-8tsXn7bh/lib/python3.10/site-packages/django/template/loader_tags.py in render(208)
  return template.render(context)

/home/youser/.local/share/virtualenvs/news-site-columnist-8tsXn7bh/lib/python3.10/site-packages/template_timings_panel/panels/TemplateTimings.py in timing_hook(139)
  result = func(self, *args, **kwargs)

/home/youser/.local/share/virtualenvs/news-site-columnist-8tsXn7bh/lib/python3.10/site-packages/django/template/base.py in render(177)
  return self._render(context)

/home/youser/.local/share/virtualenvs/news-site-columnist-8tsXn7bh/lib/python3.10/site-packages/django/test/utils.py in instrumented_test_render(112)
  return self.nodelist.render(context)

/home/youser/.local/share/virtualenvs/news-site-columnist-8tsXn7bh/lib/python3.10/site-packages/django/template/base.py in render(1005)
  return SafeString("".join([node.render_annotated(context) for node in self]))

/home/youser/.local/share/virtualenvs/news-site-columnist-8tsXn7bh/lib/python3.10/site-packages/django/template/base.py in <listcomp>(1005)
  return SafeString("".join([node.render_annotated(context) for node in self]))

/home/youser/.local/share/virtualenvs/news-site-columnist-8tsXn7bh/lib/python3.10/site-packages/django/template/base.py in render_annotated(966)
  return self.render(context)

/home/youser/.local/share/virtualenvs/news-site-columnist-8tsXn7bh/lib/python3.10/site-packages/django/template/defaulttags.py in render(194)
  len_values = len(values)

70 </div>
71 </div>
72 {% endfor %} {% endcomment %}
73 {% for p_cat in parent_categories_menu %}
74 <div class="header-categories__item">
75 <div class="header-categories__mainItem">
76 <a href="{{ p_cat.get_absolute_url }}"
77 class="header-categories__mainItem-title hover-dark-text">{{ p_cat.name }}</a>

/var/www/news-site-columnist/news/templates/new-design/components/header-popup.html

SELECT "post"."created_at",
       "post"."seo_title",
       "post"."seo_title_uk",
       "post"."seo_title_en",
       "post"."seo_title_ru",
       "post"."seo_description",
       "post"."seo_description_uk",
       "post"."seo_description_en",
       "post"."seo_description_ru",
       "post"."seo_keywords",
       "post"."seo_keywords_uk",
       "post"."seo_keywords_en",
       "post"."seo_keywords_ru",
       "post"."seo_header_one",
       "post"."seo_header_one_uk",
       "post"."seo_header_one_en",
       "post"."seo_header_one_ru",
       "post"."created_by",
       "post"."updated_by",
       "post"."polymorphic_ctype_id",
       "post"."id",
       "post"."head",
       "post"."head_uk",
       "post"."head_en",
       "post"."head_ru",
       "post"."sub_head",
       "post"."sub_head_uk",
       "post"."sub_head_en",
       "post"."sub_head_ru",
       "post"."content",
       "post"."content_uk",
       "post"."content_en",
       "post"."content_ru",
       "post"."author_id",
       "post"."seo_tag_id",
       "post"."publish_at",
       "post"."translated_at",
       "post"."updated_at",
       "post"."show_updated_at",
       "post"."slug",
       "post"."slug_uk",
       "post"."slug_en",
       "post"."slug_ru",
       "post"."aplication_type",
       "post"."last_editor_id",
       "post"."status",
       "post"."show_at_homepage",
       "post"."show_at_news_feed",
       "post"."show_on_broadcast_page",
       "post"."is_category_top",
       "post"."is_homepage_top",
       "post"."is_homepage_top_uk",
       "post"."is_homepage_top_en",
       "post"."is_homepage_top_ru",
       "post"."id_sponsored",
       "post"."is_lightning",
       "post"."is_exclusive",
       "post"."is_photo_report",
       "post"."is_post",
       "post"."is_article",
       "post"."main_page_img_full_width",
       "post"."need_hires",
       "post"."has_photo",
       "post"."has_video",
       "post"."is_editors_choise",
       "post"."show_in_sidebar",
       "post"."category_id",
       "post"."old_category_id",
       "post"."past_region",
       "post"."year_of_war",
       "post"."breaking_news",
       "post"."without_img",
       "post"."show_stories_block",
       "post"."display_type",
       "post"."image",
       "post"."image_alt",
       "post"."image_alt_uk",
       "post"."image_alt_en",
       "post"."image_alt_ru",
       "post"."seo_image",
       "post"."text_under_image",
       "post"."text_under_image_uk",
       "post"."text_under_image_en",
       "post"."text_under_image_ru",
       "post"."image_source",
       "post"."image_source_uk",
       "post"."image_source_en",
       "post"."image_source_ru",
       "post"."theme_id",
       "post"."is_nofollow_disabled",
       "post"."audio_content_id",
       "post"."audio_content_uk_id",
       "post"."audio_content_en_id",
       "post"."audio_content_ru_id",
       "post"."views",
       "post"."views_uk",
       "post"."views_ru",
       "post"."views_analytics",
       "post"."views_analytics_ru",
       "post"."views_analytics_uk",
       "post"."views_analytics_at",
       "post"."busy_by_id",
       "post"."image_editor_id",
       "post"."release_editor_id",
       "post"."special_type",
       "post"."head_longer_than_100",
       "post"."uk_has_translation",
       "post"."ru_has_translation",
       "post"."en_has_translation",
       "post"."homepage_slider_text",
       "post"."homepage_slider_text_uk",
       "post"."homepage_slider_text_en",
       "post"."homepage_slider_text_ru"
  FROM "post"
 WHERE "post"."id" = 259018
 LIMIT 21
SELECT ••• FROM "post" WHERE "post"."id" = 259018 LIMIT 21
1,33

Connection: default

Transaction status: Idle

/home/youser/.local/share/virtualenvs/news-site-columnist-8tsXn7bh/bin/gunicorn in <module>(8)
  sys.exit(run())

/home/youser/.local/share/virtualenvs/news-site-columnist-8tsXn7bh/lib/python3.10/site-packages/gunicorn/app/wsgiapp.py in run(66)
  WSGIApplication("%(prog)s [OPTIONS] [APP_MODULE]", prog=prog).run()

/home/youser/.local/share/virtualenvs/news-site-columnist-8tsXn7bh/lib/python3.10/site-packages/gunicorn/app/base.py in run(235)
  super().run()

/home/youser/.local/share/virtualenvs/news-site-columnist-8tsXn7bh/lib/python3.10/site-packages/gunicorn/app/base.py in run(71)
  Arbiter(self).run()

/home/youser/.local/share/virtualenvs/news-site-columnist-8tsXn7bh/lib/python3.10/site-packages/gunicorn/arbiter.py in run(210)
  self.manage_workers()

/home/youser/.local/share/virtualenvs/news-site-columnist-8tsXn7bh/lib/python3.10/site-packages/gunicorn/arbiter.py in manage_workers(570)
  self.spawn_workers()

/home/youser/.local/share/virtualenvs/news-site-columnist-8tsXn7bh/lib/python3.10/site-packages/gunicorn/arbiter.py in spawn_workers(641)
  self.spawn_worker()

/home/youser/.local/share/virtualenvs/news-site-columnist-8tsXn7bh/lib/python3.10/site-packages/gunicorn/arbiter.py in spawn_worker(608)
  worker.init_process()

/home/youser/.local/share/virtualenvs/news-site-columnist-8tsXn7bh/lib/python3.10/site-packages/gunicorn/workers/base.py in init_process(143)
  self.run()

/home/youser/.local/share/virtualenvs/news-site-columnist-8tsXn7bh/lib/python3.10/site-packages/gunicorn/workers/sync.py in run(125)
  self.run_for_one(timeout)

/home/youser/.local/share/virtualenvs/news-site-columnist-8tsXn7bh/lib/python3.10/site-packages/gunicorn/workers/sync.py in run_for_one(69)
  self.accept(listener)

/home/youser/.local/share/virtualenvs/news-site-columnist-8tsXn7bh/lib/python3.10/site-packages/gunicorn/workers/sync.py in accept(31)
  self.handle(listener, client, addr)

/home/youser/.local/share/virtualenvs/news-site-columnist-8tsXn7bh/lib/python3.10/site-packages/gunicorn/workers/sync.py in handle(134)
  self.handle_request(listener, req, client, addr)

/home/youser/.local/share/virtualenvs/news-site-columnist-8tsXn7bh/lib/python3.10/site-packages/gunicorn/workers/sync.py in handle_request(177)
  respiter = self.wsgi(environ, resp.start_response)

/home/youser/.local/share/virtualenvs/news-site-columnist-8tsXn7bh/lib/python3.10/site-packages/sentry_sdk/utils.py in runner(1864)
  return sentry_patched_function(*args, **kwargs)

/home/youser/.local/share/virtualenvs/news-site-columnist-8tsXn7bh/lib/python3.10/site-packages/sentry_sdk/integrations/django/__init__.py in sentry_patched_wsgi_handler(191)
  return middleware(environ, start_response)

/home/youser/.local/share/virtualenvs/news-site-columnist-8tsXn7bh/lib/python3.10/site-packages/sentry_sdk/integrations/wsgi.py in __call__(132)
  response = self.app(

/home/youser/.local/share/virtualenvs/news-site-columnist-8tsXn7bh/lib/python3.10/site-packages/sentry_sdk/integrations/django/__init__.py in sentry_patched_get_response(478)
  rv = old_get_response(self, request)

/home/youser/.local/share/virtualenvs/news-site-columnist-8tsXn7bh/lib/python3.10/site-packages/sentry_sdk/integrations/django/middleware.py in __call__(177)
  return f(*args, **kwargs)

/home/youser/.local/share/virtualenvs/news-site-columnist-8tsXn7bh/lib/python3.10/site-packages/sentry_sdk/integrations/django/middleware.py in __call__(177)
  return f(*args, **kwargs)

/var/www/news-site-columnist/redirects/middleware/redirect_middleware.py in __call__(17)
  return self.get_response(request)

/home/youser/.local/share/virtualenvs/news-site-columnist-8tsXn7bh/lib/python3.10/site-packages/sentry_sdk/integrations/django/middleware.py in __call__(177)
  return f(*args, **kwargs)

/home/youser/.local/share/virtualenvs/news-site-columnist-8tsXn7bh/lib/python3.10/site-packages/sentry_sdk/integrations/django/middleware.py in __call__(177)
  return f(*args, **kwargs)

/home/youser/.local/share/virtualenvs/news-site-columnist-8tsXn7bh/lib/python3.10/site-packages/sentry_sdk/integrations/django/middleware.py in __call__(177)
  return f(*args, **kwargs)

/home/youser/.local/share/virtualenvs/news-site-columnist-8tsXn7bh/lib/python3.10/site-packages/sentry_sdk/integrations/django/middleware.py in __call__(177)
  return f(*args, **kwargs)

/home/youser/.local/share/virtualenvs/news-site-columnist-8tsXn7bh/lib/python3.10/site-packages/corsheaders/middleware.py in __call__(53)
  result = self.get_response(request)

/home/youser/.local/share/virtualenvs/news-site-columnist-8tsXn7bh/lib/python3.10/site-packages/sentry_sdk/integrations/django/middleware.py in __call__(177)
  return f(*args, **kwargs)

/home/youser/.local/share/virtualenvs/news-site-columnist-8tsXn7bh/lib/python3.10/site-packages/django_user_agents/middleware.py in __call__(14)
  return self.get_response(request)

/home/youser/.local/share/virtualenvs/news-site-columnist-8tsXn7bh/lib/python3.10/site-packages/sentry_sdk/integrations/django/middleware.py in __call__(177)
  return f(*args, **kwargs)

/home/youser/.local/share/virtualenvs/news-site-columnist-8tsXn7bh/lib/python3.10/site-packages/sentry_sdk/integrations/django/middleware.py in __call__(177)
  return f(*args, **kwargs)

/home/youser/.local/share/virtualenvs/news-site-columnist-8tsXn7bh/lib/python3.10/site-packages/sentry_sdk/integrations/django/middleware.py in __call__(177)
  return f(*args, **kwargs)

/home/youser/.local/share/virtualenvs/news-site-columnist-8tsXn7bh/lib/python3.10/site-packages/sentry_sdk/integrations/django/middleware.py in __call__(177)
  return f(*args, **kwargs)

/home/youser/.local/share/virtualenvs/news-site-columnist-8tsXn7bh/lib/python3.10/site-packages/sentry_sdk/integrations/django/middleware.py in __call__(177)
  return f(*args, **kwargs)

/home/youser/.local/share/virtualenvs/news-site-columnist-8tsXn7bh/lib/python3.10/site-packages/sentry_sdk/integrations/django/middleware.py in __call__(177)
  return f(*args, **kwargs)

/home/youser/.local/share/virtualenvs/news-site-columnist-8tsXn7bh/lib/python3.10/site-packages/sentry_sdk/integrations/django/middleware.py in __call__(177)
  return f(*args, **kwargs)

/home/youser/.local/share/virtualenvs/news-site-columnist-8tsXn7bh/lib/python3.10/site-packages/sentry_sdk/integrations/django/middleware.py in __call__(177)
  return f(*args, **kwargs)

/var/www/news-site-columnist/news/middleware/subdomain_middleare.py in __call__(22)
  response = self.get_response(request)

/home/youser/.local/share/virtualenvs/news-site-columnist-8tsXn7bh/lib/python3.10/site-packages/sentry_sdk/integrations/django/views.py in sentry_patched_render(41)
  return old_render(self)

/home/youser/.local/share/virtualenvs/news-site-columnist-8tsXn7bh/lib/python3.10/site-packages/django/template/response.py in render(114)
  self.content = self.rendered_content

/home/youser/.local/share/virtualenvs/news-site-columnist-8tsXn7bh/lib/python3.10/site-packages/sentry_sdk/utils.py in runner(1864)
  return sentry_patched_function(*args, **kwargs)

/home/youser/.local/share/virtualenvs/news-site-columnist-8tsXn7bh/lib/python3.10/site-packages/sentry_sdk/integrations/django/templates.py in rendered_content(77)
  return real_rendered_content.fget(self)

/home/youser/.local/share/virtualenvs/news-site-columnist-8tsXn7bh/lib/python3.10/site-packages/django/template/response.py in rendered_content(92)
  return template.render(context, self._request)

/home/youser/.local/share/virtualenvs/news-site-columnist-8tsXn7bh/lib/python3.10/site-packages/django/template/backends/django.py in render(61)
  return self.template.render(context)

/home/youser/.local/share/virtualenvs/news-site-columnist-8tsXn7bh/lib/python3.10/site-packages/template_timings_panel/panels/TemplateTimings.py in timing_hook(139)
  result = func(self, *args, **kwargs)

/home/youser/.local/share/virtualenvs/news-site-columnist-8tsXn7bh/lib/python3.10/site-packages/django/template/base.py in render(175)
  return self._render(context)

/home/youser/.local/share/virtualenvs/news-site-columnist-8tsXn7bh/lib/python3.10/site-packages/django/test/utils.py in instrumented_test_render(112)
  return self.nodelist.render(context)

/home/youser/.local/share/virtualenvs/news-site-columnist-8tsXn7bh/lib/python3.10/site-packages/django/template/base.py in render(1005)
  return SafeString("".join([node.render_annotated(context) for node in self]))

/home/youser/.local/share/virtualenvs/news-site-columnist-8tsXn7bh/lib/python3.10/site-packages/django/template/base.py in <listcomp>(1005)
  return SafeString("".join([node.render_annotated(context) for node in self]))

/home/youser/.local/share/virtualenvs/news-site-columnist-8tsXn7bh/lib/python3.10/site-packages/django/template/base.py in render_annotated(966)
  return self.render(context)

/home/youser/.local/share/virtualenvs/news-site-columnist-8tsXn7bh/lib/python3.10/site-packages/django/template/loader_tags.py in render(157)
  return compiled_parent._render(context)

/home/youser/.local/share/virtualenvs/news-site-columnist-8tsXn7bh/lib/python3.10/site-packages/django/test/utils.py in instrumented_test_render(112)
  return self.nodelist.render(context)

/home/youser/.local/share/virtualenvs/news-site-columnist-8tsXn7bh/lib/python3.10/site-packages/django/template/base.py in render(1005)
  return SafeString("".join([node.render_annotated(context) for node in self]))

/home/youser/.local/share/virtualenvs/news-site-columnist-8tsXn7bh/lib/python3.10/site-packages/django/template/base.py in <listcomp>(1005)
  return SafeString("".join([node.render_annotated(context) for node in self]))

/home/youser/.local/share/virtualenvs/news-site-columnist-8tsXn7bh/lib/python3.10/site-packages/django/template/base.py in render_annotated(966)
  return self.render(context)

/home/youser/.local/share/virtualenvs/news-site-columnist-8tsXn7bh/lib/python3.10/site-packages/template_timings_panel/panels/TemplateTimings.py in timing_hook(139)
  result = func(self, *args, **kwargs)

/home/youser/.local/share/virtualenvs/news-site-columnist-8tsXn7bh/lib/python3.10/site-packages/django/template/loader_tags.py in render(63)
  result = block.nodelist.render(context)

/home/youser/.local/share/virtualenvs/news-site-columnist-8tsXn7bh/lib/python3.10/site-packages/django/template/base.py in render(1005)
  return SafeString("".join([node.render_annotated(context) for node in self]))

/home/youser/.local/share/virtualenvs/news-site-columnist-8tsXn7bh/lib/python3.10/site-packages/django/template/base.py in <listcomp>(1005)
  return SafeString("".join([node.render_annotated(context) for node in self]))

/home/youser/.local/share/virtualenvs/news-site-columnist-8tsXn7bh/lib/python3.10/site-packages/django/template/base.py in render_annotated(966)
  return self.render(context)

/home/youser/.local/share/virtualenvs/news-site-columnist-8tsXn7bh/lib/python3.10/site-packages/django/template/loader_tags.py in render(208)
  return template.render(context)

/home/youser/.local/share/virtualenvs/news-site-columnist-8tsXn7bh/lib/python3.10/site-packages/template_timings_panel/panels/TemplateTimings.py in timing_hook(139)
  result = func(self, *args, **kwargs)

/home/youser/.local/share/virtualenvs/news-site-columnist-8tsXn7bh/lib/python3.10/site-packages/django/template/base.py in render(177)
  return self._render(context)

/home/youser/.local/share/virtualenvs/news-site-columnist-8tsXn7bh/lib/python3.10/site-packages/django/test/utils.py in instrumented_test_render(112)
  return self.nodelist.render(context)

/home/youser/.local/share/virtualenvs/news-site-columnist-8tsXn7bh/lib/python3.10/site-packages/django/template/base.py in render(1005)
  return SafeString("".join([node.render_annotated(context) for node in self]))

/home/youser/.local/share/virtualenvs/news-site-columnist-8tsXn7bh/lib/python3.10/site-packages/django/template/base.py in <listcomp>(1005)
  return SafeString("".join([node.render_annotated(context) for node in self]))

/home/youser/.local/share/virtualenvs/news-site-columnist-8tsXn7bh/lib/python3.10/site-packages/django/template/base.py in render_annotated(966)
  return self.render(context)

/home/youser/.local/share/virtualenvs/news-site-columnist-8tsXn7bh/lib/python3.10/site-packages/django/template/defaulttags.py in render(321)
  return nodelist.render(context)

/home/youser/.local/share/virtualenvs/news-site-columnist-8tsXn7bh/lib/python3.10/site-packages/django/template/base.py in render(1005)
  return SafeString("".join([node.render_annotated(context) for node in self]))

/home/youser/.local/share/virtualenvs/news-site-columnist-8tsXn7bh/lib/python3.10/site-packages/django/template/base.py in <listcomp>(1005)
  return SafeString("".join([node.render_annotated(context) for node in self]))

/home/youser/.local/share/virtualenvs/news-site-columnist-8tsXn7bh/lib/python3.10/site-packages/django/template/base.py in render_annotated(966)
  return self.render(context)

/home/youser/.local/share/virtualenvs/news-site-columnist-8tsXn7bh/lib/python3.10/site-packages/django/template/defaulttags.py in render(314)
  match = condition.eval(context)

/home/youser/.local/share/virtualenvs/news-site-columnist-8tsXn7bh/lib/python3.10/site-packages/django/template/smartif.py in eval(60)
  return func(context, self.first, self.second)

/home/youser/.local/share/virtualenvs/news-site-columnist-8tsXn7bh/lib/python3.10/site-packages/django/template/smartif.py in <lambda>(98)
  "and": infix(7, lambda context, x, y: x.eval(context) and y.eval(context)),

/home/youser/.local/share/virtualenvs/news-site-columnist-8tsXn7bh/lib/python3.10/site-packages/django/template/defaulttags.py in eval(877)
  return self.value.resolve(context, ignore_failures=True)

/home/youser/.local/share/virtualenvs/news-site-columnist-8tsXn7bh/lib/python3.10/site-packages/django/template/base.py in resolve(715)
  obj = self.var.resolve(context)

/home/youser/.local/share/virtualenvs/news-site-columnist-8tsXn7bh/lib/python3.10/site-packages/django/template/base.py in resolve(847)
  value = self._resolve_lookup(context)

/home/youser/.local/share/virtualenvs/news-site-columnist-8tsXn7bh/lib/python3.10/site-packages/django/template/base.py in _resolve_lookup(890)
  current = getattr(current, bit)

2 {% get_site_elements as se %}
3 {% get_current_language as LANGUAGE_CODE %}
4 {% if LANGUAGE_CODE != 'en' %}
5 {% if se.pinned_to_header_post and post_id != se.pinned_to_header_post.id %}
6 {% if request.COOKIES.hot_line_closed_id != se.pinned_to_header_post.id|stringformat:"s" %}
7 <div data-id="{{se.pinned_to_header_post.id}}" class="hot-line-wrapper">
8 <div class="hot-line {{ class }}">
9 <div class="container">

/var/www/news-site-columnist/news/templates/new-design/components/hot-line.html

SELECT "category"."id",
       "category"."created_at",
       "category"."updated_at",
       "category"."seo_title",
       "category"."seo_title_uk",
       "category"."seo_title_en",
       "category"."seo_title_ru",
       "category"."seo_description",
       "category"."seo_description_uk",
       "category"."seo_description_en",
       "category"."seo_description_ru",
       "category"."seo_keywords",
       "category"."seo_keywords_uk",
       "category"."seo_keywords_en",
       "category"."seo_keywords_ru",
       "category"."seo_header_one",
       "category"."seo_header_one_uk",
       "category"."seo_header_one_en",
       "category"."seo_header_one_ru",
       "category"."seo_news_title",
       "category"."seo_news_title_uk",
       "category"."seo_news_title_en",
       "category"."seo_news_title_ru",
       "category"."seo_news_description",
       "category"."seo_news_description_uk",
       "category"."seo_news_description_en",
       "category"."seo_news_description_ru",
       "category"."subdomain",
       "category"."parent_id",
       "category"."image",
       "category"."is_active",
       "category"."is_rss_active",
       "category"."is_interesting",
       "category"."ticker_rss_active",
       "category"."show_home",
       "category"."show_home_en",
       "category"."show_video",
       "category"."show_menu",
       "category"."show_menu_uk",
       "category"."show_menu_en",
       "category"."show_menu_ru",
       "category"."show_footer",
       "category"."show_menu_in_en",
       "category"."show_footer_in_en",
       "category"."show_in_search",
       "category"."show_in_header",
       "category"."show_in_header_uk",
       "category"."show_in_header_en",
       "category"."show_in_header_ru",
       "category"."seo_tag_id",
       "category"."sort_weight",
       "category"."sort_weight_en",
       "category"."header_sort_weight",
       "category"."header_sort_weight_uk",
       "category"."header_sort_weight_en",
       "category"."header_sort_weight_ru",
       "category"."footer_sort_weight",
       "category"."menu_sort_weight",
       "category"."name",
       "category"."name_uk",
       "category"."name_en",
       "category"."name_ru",
       "category"."slug",
       "category"."description",
       "category"."description_uk",
       "category"."description_en",
       "category"."description_ru",
       "category"."fb_link",
       "category"."tg_link",
       "category"."show_banner",
       "category"."uk_has_translation",
       "category"."ru_has_translation",
       "category"."en_has_translation",
       "category"."has_infinite_scroll",
       "category"."_show_home_without_subdomain",
       "category"."_show_home_without_subdomain_en",
       "category"."background_id",
       "category"."use_old_design",
       "category"."use_old_design_for_posts",
       "category"."is_context_category",
       "category"."show_stories_on_main",
       "category"."show_posts_table_of_contents",
       "category"."svg_icon"
  FROM "category"
 WHERE "category"."id" = 2
 LIMIT 21
SELECT ••• FROM "category" WHERE "category"."id" = 2 LIMIT 21
4 similar queries.
0,80

Connection: default

Transaction status: Idle

/home/youser/.local/share/virtualenvs/news-site-columnist-8tsXn7bh/bin/gunicorn in <module>(8)
  sys.exit(run())

/home/youser/.local/share/virtualenvs/news-site-columnist-8tsXn7bh/lib/python3.10/site-packages/gunicorn/app/wsgiapp.py in run(66)
  WSGIApplication("%(prog)s [OPTIONS] [APP_MODULE]", prog=prog).run()

/home/youser/.local/share/virtualenvs/news-site-columnist-8tsXn7bh/lib/python3.10/site-packages/gunicorn/app/base.py in run(235)
  super().run()

/home/youser/.local/share/virtualenvs/news-site-columnist-8tsXn7bh/lib/python3.10/site-packages/gunicorn/app/base.py in run(71)
  Arbiter(self).run()

/home/youser/.local/share/virtualenvs/news-site-columnist-8tsXn7bh/lib/python3.10/site-packages/gunicorn/arbiter.py in run(210)
  self.manage_workers()

/home/youser/.local/share/virtualenvs/news-site-columnist-8tsXn7bh/lib/python3.10/site-packages/gunicorn/arbiter.py in manage_workers(570)
  self.spawn_workers()

/home/youser/.local/share/virtualenvs/news-site-columnist-8tsXn7bh/lib/python3.10/site-packages/gunicorn/arbiter.py in spawn_workers(641)
  self.spawn_worker()

/home/youser/.local/share/virtualenvs/news-site-columnist-8tsXn7bh/lib/python3.10/site-packages/gunicorn/arbiter.py in spawn_worker(608)
  worker.init_process()

/home/youser/.local/share/virtualenvs/news-site-columnist-8tsXn7bh/lib/python3.10/site-packages/gunicorn/workers/base.py in init_process(143)
  self.run()

/home/youser/.local/share/virtualenvs/news-site-columnist-8tsXn7bh/lib/python3.10/site-packages/gunicorn/workers/sync.py in run(125)
  self.run_for_one(timeout)

/home/youser/.local/share/virtualenvs/news-site-columnist-8tsXn7bh/lib/python3.10/site-packages/gunicorn/workers/sync.py in run_for_one(69)
  self.accept(listener)

/home/youser/.local/share/virtualenvs/news-site-columnist-8tsXn7bh/lib/python3.10/site-packages/gunicorn/workers/sync.py in accept(31)
  self.handle(listener, client, addr)

/home/youser/.local/share/virtualenvs/news-site-columnist-8tsXn7bh/lib/python3.10/site-packages/gunicorn/workers/sync.py in handle(134)
  self.handle_request(listener, req, client, addr)

/home/youser/.local/share/virtualenvs/news-site-columnist-8tsXn7bh/lib/python3.10/site-packages/gunicorn/workers/sync.py in handle_request(177)
  respiter = self.wsgi(environ, resp.start_response)

/home/youser/.local/share/virtualenvs/news-site-columnist-8tsXn7bh/lib/python3.10/site-packages/sentry_sdk/utils.py in runner(1864)
  return sentry_patched_function(*args, **kwargs)

/home/youser/.local/share/virtualenvs/news-site-columnist-8tsXn7bh/lib/python3.10/site-packages/sentry_sdk/integrations/django/__init__.py in sentry_patched_wsgi_handler(191)
  return middleware(environ, start_response)

/home/youser/.local/share/virtualenvs/news-site-columnist-8tsXn7bh/lib/python3.10/site-packages/sentry_sdk/integrations/wsgi.py in __call__(132)
  response = self.app(

/home/youser/.local/share/virtualenvs/news-site-columnist-8tsXn7bh/lib/python3.10/site-packages/sentry_sdk/integrations/django/__init__.py in sentry_patched_get_response(478)
  rv = old_get_response(self, request)

/home/youser/.local/share/virtualenvs/news-site-columnist-8tsXn7bh/lib/python3.10/site-packages/sentry_sdk/integrations/django/middleware.py in __call__(177)
  return f(*args, **kwargs)

/home/youser/.local/share/virtualenvs/news-site-columnist-8tsXn7bh/lib/python3.10/site-packages/sentry_sdk/integrations/django/middleware.py in __call__(177)
  return f(*args, **kwargs)

/var/www/news-site-columnist/redirects/middleware/redirect_middleware.py in __call__(17)
  return self.get_response(request)

/home/youser/.local/share/virtualenvs/news-site-columnist-8tsXn7bh/lib/python3.10/site-packages/sentry_sdk/integrations/django/middleware.py in __call__(177)
  return f(*args, **kwargs)

/home/youser/.local/share/virtualenvs/news-site-columnist-8tsXn7bh/lib/python3.10/site-packages/sentry_sdk/integrations/django/middleware.py in __call__(177)
  return f(*args, **kwargs)

/home/youser/.local/share/virtualenvs/news-site-columnist-8tsXn7bh/lib/python3.10/site-packages/sentry_sdk/integrations/django/middleware.py in __call__(177)
  return f(*args, **kwargs)

/home/youser/.local/share/virtualenvs/news-site-columnist-8tsXn7bh/lib/python3.10/site-packages/sentry_sdk/integrations/django/middleware.py in __call__(177)
  return f(*args, **kwargs)

/home/youser/.local/share/virtualenvs/news-site-columnist-8tsXn7bh/lib/python3.10/site-packages/corsheaders/middleware.py in __call__(53)
  result = self.get_response(request)

/home/youser/.local/share/virtualenvs/news-site-columnist-8tsXn7bh/lib/python3.10/site-packages/sentry_sdk/integrations/django/middleware.py in __call__(177)
  return f(*args, **kwargs)

/home/youser/.local/share/virtualenvs/news-site-columnist-8tsXn7bh/lib/python3.10/site-packages/django_user_agents/middleware.py in __call__(14)
  return self.get_response(request)

/home/youser/.local/share/virtualenvs/news-site-columnist-8tsXn7bh/lib/python3.10/site-packages/sentry_sdk/integrations/django/middleware.py in __call__(177)
  return f(*args, **kwargs)

/home/youser/.local/share/virtualenvs/news-site-columnist-8tsXn7bh/lib/python3.10/site-packages/sentry_sdk/integrations/django/middleware.py in __call__(177)
  return f(*args, **kwargs)

/home/youser/.local/share/virtualenvs/news-site-columnist-8tsXn7bh/lib/python3.10/site-packages/sentry_sdk/integrations/django/middleware.py in __call__(177)
  return f(*args, **kwargs)

/home/youser/.local/share/virtualenvs/news-site-columnist-8tsXn7bh/lib/python3.10/site-packages/sentry_sdk/integrations/django/middleware.py in __call__(177)
  return f(*args, **kwargs)

/home/youser/.local/share/virtualenvs/news-site-columnist-8tsXn7bh/lib/python3.10/site-packages/sentry_sdk/integrations/django/middleware.py in __call__(177)
  return f(*args, **kwargs)

/home/youser/.local/share/virtualenvs/news-site-columnist-8tsXn7bh/lib/python3.10/site-packages/sentry_sdk/integrations/django/middleware.py in __call__(177)
  return f(*args, **kwargs)

/home/youser/.local/share/virtualenvs/news-site-columnist-8tsXn7bh/lib/python3.10/site-packages/sentry_sdk/integrations/django/middleware.py in __call__(177)
  return f(*args, **kwargs)

/home/youser/.local/share/virtualenvs/news-site-columnist-8tsXn7bh/lib/python3.10/site-packages/sentry_sdk/integrations/django/middleware.py in __call__(177)
  return f(*args, **kwargs)

/var/www/news-site-columnist/news/middleware/subdomain_middleare.py in __call__(22)
  response = self.get_response(request)

/home/youser/.local/share/virtualenvs/news-site-columnist-8tsXn7bh/lib/python3.10/site-packages/sentry_sdk/integrations/django/views.py in sentry_patched_render(41)
  return old_render(self)

/home/youser/.local/share/virtualenvs/news-site-columnist-8tsXn7bh/lib/python3.10/site-packages/django/template/response.py in render(114)
  self.content = self.rendered_content

/home/youser/.local/share/virtualenvs/news-site-columnist-8tsXn7bh/lib/python3.10/site-packages/sentry_sdk/utils.py in runner(1864)
  return sentry_patched_function(*args, **kwargs)

/home/youser/.local/share/virtualenvs/news-site-columnist-8tsXn7bh/lib/python3.10/site-packages/sentry_sdk/integrations/django/templates.py in rendered_content(77)
  return real_rendered_content.fget(self)

/home/youser/.local/share/virtualenvs/news-site-columnist-8tsXn7bh/lib/python3.10/site-packages/django/template/response.py in rendered_content(92)
  return template.render(context, self._request)

/home/youser/.local/share/virtualenvs/news-site-columnist-8tsXn7bh/lib/python3.10/site-packages/django/template/backends/django.py in render(61)
  return self.template.render(context)

/home/youser/.local/share/virtualenvs/news-site-columnist-8tsXn7bh/lib/python3.10/site-packages/template_timings_panel/panels/TemplateTimings.py in timing_hook(139)
  result = func(self, *args, **kwargs)

/home/youser/.local/share/virtualenvs/news-site-columnist-8tsXn7bh/lib/python3.10/site-packages/django/template/base.py in render(175)
  return self._render(context)

/home/youser/.local/share/virtualenvs/news-site-columnist-8tsXn7bh/lib/python3.10/site-packages/django/test/utils.py in instrumented_test_render(112)
  return self.nodelist.render(context)

/home/youser/.local/share/virtualenvs/news-site-columnist-8tsXn7bh/lib/python3.10/site-packages/django/template/base.py in render(1005)
  return SafeString("".join([node.render_annotated(context) for node in self]))

/home/youser/.local/share/virtualenvs/news-site-columnist-8tsXn7bh/lib/python3.10/site-packages/django/template/base.py in <listcomp>(1005)
  return SafeString("".join([node.render_annotated(context) for node in self]))

/home/youser/.local/share/virtualenvs/news-site-columnist-8tsXn7bh/lib/python3.10/site-packages/django/template/base.py in render_annotated(966)
  return self.render(context)

/home/youser/.local/share/virtualenvs/news-site-columnist-8tsXn7bh/lib/python3.10/site-packages/django/template/loader_tags.py in render(157)
  return compiled_parent._render(context)

/home/youser/.local/share/virtualenvs/news-site-columnist-8tsXn7bh/lib/python3.10/site-packages/django/test/utils.py in instrumented_test_render(112)
  return self.nodelist.render(context)

/home/youser/.local/share/virtualenvs/news-site-columnist-8tsXn7bh/lib/python3.10/site-packages/django/template/base.py in render(1005)
  return SafeString("".join([node.render_annotated(context) for node in self]))

/home/youser/.local/share/virtualenvs/news-site-columnist-8tsXn7bh/lib/python3.10/site-packages/django/template/base.py in <listcomp>(1005)
  return SafeString("".join([node.render_annotated(context) for node in self]))

/home/youser/.local/share/virtualenvs/news-site-columnist-8tsXn7bh/lib/python3.10/site-packages/django/template/base.py in render_annotated(966)
  return self.render(context)

/home/youser/.local/share/virtualenvs/news-site-columnist-8tsXn7bh/lib/python3.10/site-packages/template_timings_panel/panels/TemplateTimings.py in timing_hook(139)
  result = func(self, *args, **kwargs)

/home/youser/.local/share/virtualenvs/news-site-columnist-8tsXn7bh/lib/python3.10/site-packages/django/template/loader_tags.py in render(63)
  result = block.nodelist.render(context)

/home/youser/.local/share/virtualenvs/news-site-columnist-8tsXn7bh/lib/python3.10/site-packages/django/template/base.py in render(1005)
  return SafeString("".join([node.render_annotated(context) for node in self]))

/home/youser/.local/share/virtualenvs/news-site-columnist-8tsXn7bh/lib/python3.10/site-packages/django/template/base.py in <listcomp>(1005)
  return SafeString("".join([node.render_annotated(context) for node in self]))

/home/youser/.local/share/virtualenvs/news-site-columnist-8tsXn7bh/lib/python3.10/site-packages/django/template/base.py in render_annotated(966)
  return self.render(context)

/home/youser/.local/share/virtualenvs/news-site-columnist-8tsXn7bh/lib/python3.10/site-packages/django/template/loader_tags.py in render(208)
  return template.render(context)

/home/youser/.local/share/virtualenvs/news-site-columnist-8tsXn7bh/lib/python3.10/site-packages/template_timings_panel/panels/TemplateTimings.py in timing_hook(139)
  result = func(self, *args, **kwargs)

/home/youser/.local/share/virtualenvs/news-site-columnist-8tsXn7bh/lib/python3.10/site-packages/django/template/base.py in render(177)
  return self._render(context)

/home/youser/.local/share/virtualenvs/news-site-columnist-8tsXn7bh/lib/python3.10/site-packages/django/test/utils.py in instrumented_test_render(112)
  return self.nodelist.render(context)

/home/youser/.local/share/virtualenvs/news-site-columnist-8tsXn7bh/lib/python3.10/site-packages/django/template/base.py in render(1005)
  return SafeString("".join([node.render_annotated(context) for node in self]))

/home/youser/.local/share/virtualenvs/news-site-columnist-8tsXn7bh/lib/python3.10/site-packages/django/template/base.py in <listcomp>(1005)
  return SafeString("".join([node.render_annotated(context) for node in self]))

/home/youser/.local/share/virtualenvs/news-site-columnist-8tsXn7bh/lib/python3.10/site-packages/django/template/base.py in render_annotated(966)
  return self.render(context)

/home/youser/.local/share/virtualenvs/news-site-columnist-8tsXn7bh/lib/python3.10/site-packages/django/template/defaulttags.py in render(321)
  return nodelist.render(context)

/home/youser/.local/share/virtualenvs/news-site-columnist-8tsXn7bh/lib/python3.10/site-packages/django/template/base.py in render(1005)
  return SafeString("".join([node.render_annotated(context) for node in self]))

/home/youser/.local/share/virtualenvs/news-site-columnist-8tsXn7bh/lib/python3.10/site-packages/django/template/base.py in <listcomp>(1005)
  return SafeString("".join([node.render_annotated(context) for node in self]))

/home/youser/.local/share/virtualenvs/news-site-columnist-8tsXn7bh/lib/python3.10/site-packages/django/template/base.py in render_annotated(966)
  return self.render(context)

/home/youser/.local/share/virtualenvs/news-site-columnist-8tsXn7bh/lib/python3.10/site-packages/django/template/defaulttags.py in render(321)
  return nodelist.render(context)

/home/youser/.local/share/virtualenvs/news-site-columnist-8tsXn7bh/lib/python3.10/site-packages/django/template/base.py in render(1005)
  return SafeString("".join([node.render_annotated(context) for node in self]))

/home/youser/.local/share/virtualenvs/news-site-columnist-8tsXn7bh/lib/python3.10/site-packages/django/template/base.py in <listcomp>(1005)
  return SafeString("".join([node.render_annotated(context) for node in self]))

/home/youser/.local/share/virtualenvs/news-site-columnist-8tsXn7bh/lib/python3.10/site-packages/django/template/base.py in render_annotated(966)
  return self.render(context)

/home/youser/.local/share/virtualenvs/news-site-columnist-8tsXn7bh/lib/python3.10/site-packages/django/template/defaulttags.py in render(321)
  return nodelist.render(context)

/home/youser/.local/share/virtualenvs/news-site-columnist-8tsXn7bh/lib/python3.10/site-packages/django/template/base.py in render(1005)
  return SafeString("".join([node.render_annotated(context) for node in self]))

/home/youser/.local/share/virtualenvs/news-site-columnist-8tsXn7bh/lib/python3.10/site-packages/django/template/base.py in <listcomp>(1005)
  return SafeString("".join([node.render_annotated(context) for node in self]))

/home/youser/.local/share/virtualenvs/news-site-columnist-8tsXn7bh/lib/python3.10/site-packages/django/template/base.py in render_annotated(966)
  return self.render(context)

/home/youser/.local/share/virtualenvs/news-site-columnist-8tsXn7bh/lib/python3.10/site-packages/django/template/base.py in render(1064)
  output = self.filter_expression.resolve(context)

/home/youser/.local/share/virtualenvs/news-site-columnist-8tsXn7bh/lib/python3.10/site-packages/django/template/base.py in resolve(715)
  obj = self.var.resolve(context)

/home/youser/.local/share/virtualenvs/news-site-columnist-8tsXn7bh/lib/python3.10/site-packages/django/template/base.py in resolve(847)
  value = self._resolve_lookup(context)

/home/youser/.local/share/virtualenvs/news-site-columnist-8tsXn7bh/lib/python3.10/site-packages/django/template/base.py in _resolve_lookup(914)
  current = current()

/var/www/news-site-columnist/news/models/news.py in get_absolute_url(1017)
  category = self.category

7 <div data-id="{{se.pinned_to_header_post.id}}" class="hot-line-wrapper">
8 <div class="hot-line {{ class }}">
9 <div class="container">
10 <a href="{{ se.pinned_to_header_post.get_absolute_url }}"
11 class="hot-line__link" target="_blank">
12 <span>{{ se.pinned_to_header_post.head }}</span>
13 </a>
14 <button class="hot-line__close">

/var/www/news-site-columnist/news/templates/new-design/components/hot-line.html

SELECT "news_postcontentheading"."attr_id",
       "news_postcontentheading"."text"
  FROM "news_postcontentheading"
 WHERE ("news_postcontentheading"."language" = 'uk' AND "news_postcontentheading"."post_id" = 139383)
SELECT ••• FROM "news_postcontentheading" WHERE ("news_postcontentheading"."language" = 'uk' AND "news_postcontentheading"."post_id" = 139383)
0,60

Connection: default

Transaction status: Idle

/home/youser/.local/share/virtualenvs/news-site-columnist-8tsXn7bh/bin/gunicorn in <module>(8)
  sys.exit(run())

/home/youser/.local/share/virtualenvs/news-site-columnist-8tsXn7bh/lib/python3.10/site-packages/gunicorn/app/wsgiapp.py in run(66)
  WSGIApplication("%(prog)s [OPTIONS] [APP_MODULE]", prog=prog).run()

/home/youser/.local/share/virtualenvs/news-site-columnist-8tsXn7bh/lib/python3.10/site-packages/gunicorn/app/base.py in run(235)
  super().run()

/home/youser/.local/share/virtualenvs/news-site-columnist-8tsXn7bh/lib/python3.10/site-packages/gunicorn/app/base.py in run(71)
  Arbiter(self).run()

/home/youser/.local/share/virtualenvs/news-site-columnist-8tsXn7bh/lib/python3.10/site-packages/gunicorn/arbiter.py in run(210)
  self.manage_workers()

/home/youser/.local/share/virtualenvs/news-site-columnist-8tsXn7bh/lib/python3.10/site-packages/gunicorn/arbiter.py in manage_workers(570)
  self.spawn_workers()

/home/youser/.local/share/virtualenvs/news-site-columnist-8tsXn7bh/lib/python3.10/site-packages/gunicorn/arbiter.py in spawn_workers(641)
  self.spawn_worker()

/home/youser/.local/share/virtualenvs/news-site-columnist-8tsXn7bh/lib/python3.10/site-packages/gunicorn/arbiter.py in spawn_worker(608)
  worker.init_process()

/home/youser/.local/share/virtualenvs/news-site-columnist-8tsXn7bh/lib/python3.10/site-packages/gunicorn/workers/base.py in init_process(143)
  self.run()

/home/youser/.local/share/virtualenvs/news-site-columnist-8tsXn7bh/lib/python3.10/site-packages/gunicorn/workers/sync.py in run(125)
  self.run_for_one(timeout)

/home/youser/.local/share/virtualenvs/news-site-columnist-8tsXn7bh/lib/python3.10/site-packages/gunicorn/workers/sync.py in run_for_one(69)
  self.accept(listener)

/home/youser/.local/share/virtualenvs/news-site-columnist-8tsXn7bh/lib/python3.10/site-packages/gunicorn/workers/sync.py in accept(31)
  self.handle(listener, client, addr)

/home/youser/.local/share/virtualenvs/news-site-columnist-8tsXn7bh/lib/python3.10/site-packages/gunicorn/workers/sync.py in handle(134)
  self.handle_request(listener, req, client, addr)

/home/youser/.local/share/virtualenvs/news-site-columnist-8tsXn7bh/lib/python3.10/site-packages/gunicorn/workers/sync.py in handle_request(177)
  respiter = self.wsgi(environ, resp.start_response)

/home/youser/.local/share/virtualenvs/news-site-columnist-8tsXn7bh/lib/python3.10/site-packages/sentry_sdk/utils.py in runner(1864)
  return sentry_patched_function(*args, **kwargs)

/home/youser/.local/share/virtualenvs/news-site-columnist-8tsXn7bh/lib/python3.10/site-packages/sentry_sdk/integrations/django/__init__.py in sentry_patched_wsgi_handler(191)
  return middleware(environ, start_response)

/home/youser/.local/share/virtualenvs/news-site-columnist-8tsXn7bh/lib/python3.10/site-packages/sentry_sdk/integrations/wsgi.py in __call__(132)
  response = self.app(

/home/youser/.local/share/virtualenvs/news-site-columnist-8tsXn7bh/lib/python3.10/site-packages/sentry_sdk/integrations/django/__init__.py in sentry_patched_get_response(478)
  rv = old_get_response(self, request)

/home/youser/.local/share/virtualenvs/news-site-columnist-8tsXn7bh/lib/python3.10/site-packages/sentry_sdk/integrations/django/middleware.py in __call__(177)
  return f(*args, **kwargs)

/home/youser/.local/share/virtualenvs/news-site-columnist-8tsXn7bh/lib/python3.10/site-packages/sentry_sdk/integrations/django/middleware.py in __call__(177)
  return f(*args, **kwargs)

/var/www/news-site-columnist/redirects/middleware/redirect_middleware.py in __call__(17)
  return self.get_response(request)

/home/youser/.local/share/virtualenvs/news-site-columnist-8tsXn7bh/lib/python3.10/site-packages/sentry_sdk/integrations/django/middleware.py in __call__(177)
  return f(*args, **kwargs)

/home/youser/.local/share/virtualenvs/news-site-columnist-8tsXn7bh/lib/python3.10/site-packages/sentry_sdk/integrations/django/middleware.py in __call__(177)
  return f(*args, **kwargs)

/home/youser/.local/share/virtualenvs/news-site-columnist-8tsXn7bh/lib/python3.10/site-packages/sentry_sdk/integrations/django/middleware.py in __call__(177)
  return f(*args, **kwargs)

/home/youser/.local/share/virtualenvs/news-site-columnist-8tsXn7bh/lib/python3.10/site-packages/sentry_sdk/integrations/django/middleware.py in __call__(177)
  return f(*args, **kwargs)

/home/youser/.local/share/virtualenvs/news-site-columnist-8tsXn7bh/lib/python3.10/site-packages/corsheaders/middleware.py in __call__(53)
  result = self.get_response(request)

/home/youser/.local/share/virtualenvs/news-site-columnist-8tsXn7bh/lib/python3.10/site-packages/sentry_sdk/integrations/django/middleware.py in __call__(177)
  return f(*args, **kwargs)

/home/youser/.local/share/virtualenvs/news-site-columnist-8tsXn7bh/lib/python3.10/site-packages/django_user_agents/middleware.py in __call__(14)
  return self.get_response(request)

/home/youser/.local/share/virtualenvs/news-site-columnist-8tsXn7bh/lib/python3.10/site-packages/sentry_sdk/integrations/django/middleware.py in __call__(177)
  return f(*args, **kwargs)

/home/youser/.local/share/virtualenvs/news-site-columnist-8tsXn7bh/lib/python3.10/site-packages/sentry_sdk/integrations/django/middleware.py in __call__(177)
  return f(*args, **kwargs)

/home/youser/.local/share/virtualenvs/news-site-columnist-8tsXn7bh/lib/python3.10/site-packages/sentry_sdk/integrations/django/middleware.py in __call__(177)
  return f(*args, **kwargs)

/home/youser/.local/share/virtualenvs/news-site-columnist-8tsXn7bh/lib/python3.10/site-packages/sentry_sdk/integrations/django/middleware.py in __call__(177)
  return f(*args, **kwargs)

/home/youser/.local/share/virtualenvs/news-site-columnist-8tsXn7bh/lib/python3.10/site-packages/sentry_sdk/integrations/django/middleware.py in __call__(177)
  return f(*args, **kwargs)

/home/youser/.local/share/virtualenvs/news-site-columnist-8tsXn7bh/lib/python3.10/site-packages/sentry_sdk/integrations/django/middleware.py in __call__(177)
  return f(*args, **kwargs)

/home/youser/.local/share/virtualenvs/news-site-columnist-8tsXn7bh/lib/python3.10/site-packages/sentry_sdk/integrations/django/middleware.py in __call__(177)
  return f(*args, **kwargs)

/home/youser/.local/share/virtualenvs/news-site-columnist-8tsXn7bh/lib/python3.10/site-packages/sentry_sdk/integrations/django/middleware.py in __call__(177)
  return f(*args, **kwargs)

/var/www/news-site-columnist/news/middleware/subdomain_middleare.py in __call__(22)
  response = self.get_response(request)

/home/youser/.local/share/virtualenvs/news-site-columnist-8tsXn7bh/lib/python3.10/site-packages/sentry_sdk/integrations/django/views.py in sentry_patched_render(41)
  return old_render(self)

/home/youser/.local/share/virtualenvs/news-site-columnist-8tsXn7bh/lib/python3.10/site-packages/django/template/response.py in render(114)
  self.content = self.rendered_content

/home/youser/.local/share/virtualenvs/news-site-columnist-8tsXn7bh/lib/python3.10/site-packages/sentry_sdk/utils.py in runner(1864)
  return sentry_patched_function(*args, **kwargs)

/home/youser/.local/share/virtualenvs/news-site-columnist-8tsXn7bh/lib/python3.10/site-packages/sentry_sdk/integrations/django/templates.py in rendered_content(77)
  return real_rendered_content.fget(self)

/home/youser/.local/share/virtualenvs/news-site-columnist-8tsXn7bh/lib/python3.10/site-packages/django/template/response.py in rendered_content(92)
  return template.render(context, self._request)

/home/youser/.local/share/virtualenvs/news-site-columnist-8tsXn7bh/lib/python3.10/site-packages/django/template/backends/django.py in render(61)
  return self.template.render(context)

/home/youser/.local/share/virtualenvs/news-site-columnist-8tsXn7bh/lib/python3.10/site-packages/template_timings_panel/panels/TemplateTimings.py in timing_hook(139)
  result = func(self, *args, **kwargs)

/home/youser/.local/share/virtualenvs/news-site-columnist-8tsXn7bh/lib/python3.10/site-packages/django/template/base.py in render(175)
  return self._render(context)

/home/youser/.local/share/virtualenvs/news-site-columnist-8tsXn7bh/lib/python3.10/site-packages/django/test/utils.py in instrumented_test_render(112)
  return self.nodelist.render(context)

/home/youser/.local/share/virtualenvs/news-site-columnist-8tsXn7bh/lib/python3.10/site-packages/django/template/base.py in render(1005)
  return SafeString("".join([node.render_annotated(context) for node in self]))

/home/youser/.local/share/virtualenvs/news-site-columnist-8tsXn7bh/lib/python3.10/site-packages/django/template/base.py in <listcomp>(1005)
  return SafeString("".join([node.render_annotated(context) for node in self]))

/home/youser/.local/share/virtualenvs/news-site-columnist-8tsXn7bh/lib/python3.10/site-packages/django/template/base.py in render_annotated(966)
  return self.render(context)

/home/youser/.local/share/virtualenvs/news-site-columnist-8tsXn7bh/lib/python3.10/site-packages/django/template/loader_tags.py in render(157)
  return compiled_parent._render(context)

/home/youser/.local/share/virtualenvs/news-site-columnist-8tsXn7bh/lib/python3.10/site-packages/django/test/utils.py in instrumented_test_render(112)
  return self.nodelist.render(context)

/home/youser/.local/share/virtualenvs/news-site-columnist-8tsXn7bh/lib/python3.10/site-packages/django/template/base.py in render(1005)
  return SafeString("".join([node.render_annotated(context) for node in self]))

/home/youser/.local/share/virtualenvs/news-site-columnist-8tsXn7bh/lib/python3.10/site-packages/django/template/base.py in <listcomp>(1005)
  return SafeString("".join([node.render_annotated(context) for node in self]))

/home/youser/.local/share/virtualenvs/news-site-columnist-8tsXn7bh/lib/python3.10/site-packages/django/template/base.py in render_annotated(966)
  return self.render(context)

/home/youser/.local/share/virtualenvs/news-site-columnist-8tsXn7bh/lib/python3.10/site-packages/template_timings_panel/panels/TemplateTimings.py in timing_hook(139)
  result = func(self, *args, **kwargs)

/home/youser/.local/share/virtualenvs/news-site-columnist-8tsXn7bh/lib/python3.10/site-packages/django/template/loader_tags.py in render(63)
  result = block.nodelist.render(context)

/home/youser/.local/share/virtualenvs/news-site-columnist-8tsXn7bh/lib/python3.10/site-packages/django/template/base.py in render(1005)
  return SafeString("".join([node.render_annotated(context) for node in self]))

/home/youser/.local/share/virtualenvs/news-site-columnist-8tsXn7bh/lib/python3.10/site-packages/django/template/base.py in <listcomp>(1005)
  return SafeString("".join([node.render_annotated(context) for node in self]))

/home/youser/.local/share/virtualenvs/news-site-columnist-8tsXn7bh/lib/python3.10/site-packages/django/template/base.py in render_annotated(966)
  return self.render(context)

/home/youser/.local/share/virtualenvs/news-site-columnist-8tsXn7bh/lib/python3.10/site-packages/template_timings_panel/panels/TemplateTimings.py in timing_hook(139)
  result = func(self, *args, **kwargs)

/home/youser/.local/share/virtualenvs/news-site-columnist-8tsXn7bh/lib/python3.10/site-packages/django/template/loader_tags.py in render(63)
  result = block.nodelist.render(context)

/home/youser/.local/share/virtualenvs/news-site-columnist-8tsXn7bh/lib/python3.10/site-packages/django/template/base.py in render(1005)
  return SafeString("".join([node.render_annotated(context) for node in self]))

/home/youser/.local/share/virtualenvs/news-site-columnist-8tsXn7bh/lib/python3.10/site-packages/django/template/base.py in <listcomp>(1005)
  return SafeString("".join([node.render_annotated(context) for node in self]))

/home/youser/.local/share/virtualenvs/news-site-columnist-8tsXn7bh/lib/python3.10/site-packages/django/template/base.py in render_annotated(966)
  return self.render(context)

/home/youser/.local/share/virtualenvs/news-site-columnist-8tsXn7bh/lib/python3.10/site-packages/django/template/loader_tags.py in render(208)
  return template.render(context)

/home/youser/.local/share/virtualenvs/news-site-columnist-8tsXn7bh/lib/python3.10/site-packages/template_timings_panel/panels/TemplateTimings.py in timing_hook(139)
  result = func(self, *args, **kwargs)

/home/youser/.local/share/virtualenvs/news-site-columnist-8tsXn7bh/lib/python3.10/site-packages/django/template/base.py in render(177)
  return self._render(context)

/home/youser/.local/share/virtualenvs/news-site-columnist-8tsXn7bh/lib/python3.10/site-packages/django/test/utils.py in instrumented_test_render(112)
  return self.nodelist.render(context)

/home/youser/.local/share/virtualenvs/news-site-columnist-8tsXn7bh/lib/python3.10/site-packages/django/template/base.py in render(1005)
  return SafeString("".join([node.render_annotated(context) for node in self]))

/home/youser/.local/share/virtualenvs/news-site-columnist-8tsXn7bh/lib/python3.10/site-packages/django/template/base.py in <listcomp>(1005)
  return SafeString("".join([node.render_annotated(context) for node in self]))

/home/youser/.local/share/virtualenvs/news-site-columnist-8tsXn7bh/lib/python3.10/site-packages/django/template/base.py in render_annotated(966)
  return self.render(context)

/home/youser/.local/share/virtualenvs/news-site-columnist-8tsXn7bh/lib/python3.10/site-packages/django/template/defaulttags.py in render(320)
  if match:

50 {% endif %}
51 <div class="content__wrapp">
52 <div class="content__hint">{{ post.text_under_image }}</div>
53 {% if post.category.show_posts_table_of_contents and table_of_contents %}
54 <div class="key-moments">
55 <span class="key-moments__title">{% trans 'Ключові моменти' %}</span>
56 {% for attr_id, text in table_of_contents %}
57 <a href="#{{ attr_id }}" class="key-moments__item">{{ text }}</a>

/var/www/news-site-columnist/news/templates/new-design/includes/post_content.html

SELECT "tag"."id",
       "tag"."created_at",
       "tag"."updated_at",
       "tag"."created_by",
       "tag"."updated_by",
       "tag"."slug",
       "tag"."name",
       "tag"."name_uk",
       "tag"."name_en",
       "tag"."name_ru",
       "tag"."description",
       "tag"."description_uk",
       "tag"."description_en",
       "tag"."description_ru",
       "tag"."seo_title",
       "tag"."seo_title_uk",
       "tag"."seo_title_en",
       "tag"."seo_title_ru",
       "tag"."seo_description",
       "tag"."seo_description_uk",
       "tag"."seo_description_en",
       "tag"."seo_description_ru",
       "tag"."is_active",
       "tag"."show_in_tags_sitemap"
  FROM "tag"
 INNER JOIN "post_tags"
    ON ("tag"."id" = "post_tags"."tag_id")
 WHERE (NOT ("tag"."name_uk" = '' AND "tag"."name_uk" IS NOT NULL) AND NOT ("tag"."name_uk" IS NULL) AND "post_tags"."post_id" = 139383)
SELECT ••• FROM "tag" INNER JOIN "post_tags" ON ("tag"."id" = "post_tags"."tag_id") WHERE (NOT ("tag"."name_uk" = '' AND "tag"."name_uk" IS NOT NULL) AND NOT ("tag"."name_uk" IS NULL) AND "post_tags"."post_id" = 139383)
0,64

Connection: default

Transaction status: Idle

/home/youser/.local/share/virtualenvs/news-site-columnist-8tsXn7bh/bin/gunicorn in <module>(8)
  sys.exit(run())

/home/youser/.local/share/virtualenvs/news-site-columnist-8tsXn7bh/lib/python3.10/site-packages/gunicorn/app/wsgiapp.py in run(66)
  WSGIApplication("%(prog)s [OPTIONS] [APP_MODULE]", prog=prog).run()

/home/youser/.local/share/virtualenvs/news-site-columnist-8tsXn7bh/lib/python3.10/site-packages/gunicorn/app/base.py in run(235)
  super().run()

/home/youser/.local/share/virtualenvs/news-site-columnist-8tsXn7bh/lib/python3.10/site-packages/gunicorn/app/base.py in run(71)
  Arbiter(self).run()

/home/youser/.local/share/virtualenvs/news-site-columnist-8tsXn7bh/lib/python3.10/site-packages/gunicorn/arbiter.py in run(210)
  self.manage_workers()

/home/youser/.local/share/virtualenvs/news-site-columnist-8tsXn7bh/lib/python3.10/site-packages/gunicorn/arbiter.py in manage_workers(570)
  self.spawn_workers()

/home/youser/.local/share/virtualenvs/news-site-columnist-8tsXn7bh/lib/python3.10/site-packages/gunicorn/arbiter.py in spawn_workers(641)
  self.spawn_worker()

/home/youser/.local/share/virtualenvs/news-site-columnist-8tsXn7bh/lib/python3.10/site-packages/gunicorn/arbiter.py in spawn_worker(608)
  worker.init_process()

/home/youser/.local/share/virtualenvs/news-site-columnist-8tsXn7bh/lib/python3.10/site-packages/gunicorn/workers/base.py in init_process(143)
  self.run()

/home/youser/.local/share/virtualenvs/news-site-columnist-8tsXn7bh/lib/python3.10/site-packages/gunicorn/workers/sync.py in run(125)
  self.run_for_one(timeout)

/home/youser/.local/share/virtualenvs/news-site-columnist-8tsXn7bh/lib/python3.10/site-packages/gunicorn/workers/sync.py in run_for_one(69)
  self.accept(listener)

/home/youser/.local/share/virtualenvs/news-site-columnist-8tsXn7bh/lib/python3.10/site-packages/gunicorn/workers/sync.py in accept(31)
  self.handle(listener, client, addr)

/home/youser/.local/share/virtualenvs/news-site-columnist-8tsXn7bh/lib/python3.10/site-packages/gunicorn/workers/sync.py in handle(134)
  self.handle_request(listener, req, client, addr)

/home/youser/.local/share/virtualenvs/news-site-columnist-8tsXn7bh/lib/python3.10/site-packages/gunicorn/workers/sync.py in handle_request(177)
  respiter = self.wsgi(environ, resp.start_response)

/home/youser/.local/share/virtualenvs/news-site-columnist-8tsXn7bh/lib/python3.10/site-packages/sentry_sdk/utils.py in runner(1864)
  return sentry_patched_function(*args, **kwargs)

/home/youser/.local/share/virtualenvs/news-site-columnist-8tsXn7bh/lib/python3.10/site-packages/sentry_sdk/integrations/django/__init__.py in sentry_patched_wsgi_handler(191)
  return middleware(environ, start_response)

/home/youser/.local/share/virtualenvs/news-site-columnist-8tsXn7bh/lib/python3.10/site-packages/sentry_sdk/integrations/wsgi.py in __call__(132)
  response = self.app(

/home/youser/.local/share/virtualenvs/news-site-columnist-8tsXn7bh/lib/python3.10/site-packages/sentry_sdk/integrations/django/__init__.py in sentry_patched_get_response(478)
  rv = old_get_response(self, request)

/home/youser/.local/share/virtualenvs/news-site-columnist-8tsXn7bh/lib/python3.10/site-packages/sentry_sdk/integrations/django/middleware.py in __call__(177)
  return f(*args, **kwargs)

/home/youser/.local/share/virtualenvs/news-site-columnist-8tsXn7bh/lib/python3.10/site-packages/sentry_sdk/integrations/django/middleware.py in __call__(177)
  return f(*args, **kwargs)

/var/www/news-site-columnist/redirects/middleware/redirect_middleware.py in __call__(17)
  return self.get_response(request)

/home/youser/.local/share/virtualenvs/news-site-columnist-8tsXn7bh/lib/python3.10/site-packages/sentry_sdk/integrations/django/middleware.py in __call__(177)
  return f(*args, **kwargs)

/home/youser/.local/share/virtualenvs/news-site-columnist-8tsXn7bh/lib/python3.10/site-packages/sentry_sdk/integrations/django/middleware.py in __call__(177)
  return f(*args, **kwargs)

/home/youser/.local/share/virtualenvs/news-site-columnist-8tsXn7bh/lib/python3.10/site-packages/sentry_sdk/integrations/django/middleware.py in __call__(177)
  return f(*args, **kwargs)

/home/youser/.local/share/virtualenvs/news-site-columnist-8tsXn7bh/lib/python3.10/site-packages/sentry_sdk/integrations/django/middleware.py in __call__(177)
  return f(*args, **kwargs)

/home/youser/.local/share/virtualenvs/news-site-columnist-8tsXn7bh/lib/python3.10/site-packages/corsheaders/middleware.py in __call__(53)
  result = self.get_response(request)

/home/youser/.local/share/virtualenvs/news-site-columnist-8tsXn7bh/lib/python3.10/site-packages/sentry_sdk/integrations/django/middleware.py in __call__(177)
  return f(*args, **kwargs)

/home/youser/.local/share/virtualenvs/news-site-columnist-8tsXn7bh/lib/python3.10/site-packages/django_user_agents/middleware.py in __call__(14)
  return self.get_response(request)

/home/youser/.local/share/virtualenvs/news-site-columnist-8tsXn7bh/lib/python3.10/site-packages/sentry_sdk/integrations/django/middleware.py in __call__(177)
  return f(*args, **kwargs)

/home/youser/.local/share/virtualenvs/news-site-columnist-8tsXn7bh/lib/python3.10/site-packages/sentry_sdk/integrations/django/middleware.py in __call__(177)
  return f(*args, **kwargs)

/home/youser/.local/share/virtualenvs/news-site-columnist-8tsXn7bh/lib/python3.10/site-packages/sentry_sdk/integrations/django/middleware.py in __call__(177)
  return f(*args, **kwargs)

/home/youser/.local/share/virtualenvs/news-site-columnist-8tsXn7bh/lib/python3.10/site-packages/sentry_sdk/integrations/django/middleware.py in __call__(177)
  return f(*args, **kwargs)

/home/youser/.local/share/virtualenvs/news-site-columnist-8tsXn7bh/lib/python3.10/site-packages/sentry_sdk/integrations/django/middleware.py in __call__(177)
  return f(*args, **kwargs)

/home/youser/.local/share/virtualenvs/news-site-columnist-8tsXn7bh/lib/python3.10/site-packages/sentry_sdk/integrations/django/middleware.py in __call__(177)
  return f(*args, **kwargs)

/home/youser/.local/share/virtualenvs/news-site-columnist-8tsXn7bh/lib/python3.10/site-packages/sentry_sdk/integrations/django/middleware.py in __call__(177)
  return f(*args, **kwargs)

/home/youser/.local/share/virtualenvs/news-site-columnist-8tsXn7bh/lib/python3.10/site-packages/sentry_sdk/integrations/django/middleware.py in __call__(177)
  return f(*args, **kwargs)

/var/www/news-site-columnist/news/middleware/subdomain_middleare.py in __call__(22)
  response = self.get_response(request)

/home/youser/.local/share/virtualenvs/news-site-columnist-8tsXn7bh/lib/python3.10/site-packages/sentry_sdk/integrations/django/views.py in sentry_patched_render(41)
  return old_render(self)

/home/youser/.local/share/virtualenvs/news-site-columnist-8tsXn7bh/lib/python3.10/site-packages/django/template/response.py in render(114)
  self.content = self.rendered_content

/home/youser/.local/share/virtualenvs/news-site-columnist-8tsXn7bh/lib/python3.10/site-packages/sentry_sdk/utils.py in runner(1864)
  return sentry_patched_function(*args, **kwargs)

/home/youser/.local/share/virtualenvs/news-site-columnist-8tsXn7bh/lib/python3.10/site-packages/sentry_sdk/integrations/django/templates.py in rendered_content(77)
  return real_rendered_content.fget(self)

/home/youser/.local/share/virtualenvs/news-site-columnist-8tsXn7bh/lib/python3.10/site-packages/django/template/response.py in rendered_content(92)
  return template.render(context, self._request)

/home/youser/.local/share/virtualenvs/news-site-columnist-8tsXn7bh/lib/python3.10/site-packages/django/template/backends/django.py in render(61)
  return self.template.render(context)

/home/youser/.local/share/virtualenvs/news-site-columnist-8tsXn7bh/lib/python3.10/site-packages/template_timings_panel/panels/TemplateTimings.py in timing_hook(139)
  result = func(self, *args, **kwargs)

/home/youser/.local/share/virtualenvs/news-site-columnist-8tsXn7bh/lib/python3.10/site-packages/django/template/base.py in render(175)
  return self._render(context)

/home/youser/.local/share/virtualenvs/news-site-columnist-8tsXn7bh/lib/python3.10/site-packages/django/test/utils.py in instrumented_test_render(112)
  return self.nodelist.render(context)

/home/youser/.local/share/virtualenvs/news-site-columnist-8tsXn7bh/lib/python3.10/site-packages/django/template/base.py in render(1005)
  return SafeString("".join([node.render_annotated(context) for node in self]))

/home/youser/.local/share/virtualenvs/news-site-columnist-8tsXn7bh/lib/python3.10/site-packages/django/template/base.py in <listcomp>(1005)
  return SafeString("".join([node.render_annotated(context) for node in self]))

/home/youser/.local/share/virtualenvs/news-site-columnist-8tsXn7bh/lib/python3.10/site-packages/django/template/base.py in render_annotated(966)
  return self.render(context)

/home/youser/.local/share/virtualenvs/news-site-columnist-8tsXn7bh/lib/python3.10/site-packages/django/template/loader_tags.py in render(157)
  return compiled_parent._render(context)

/home/youser/.local/share/virtualenvs/news-site-columnist-8tsXn7bh/lib/python3.10/site-packages/django/test/utils.py in instrumented_test_render(112)
  return self.nodelist.render(context)

/home/youser/.local/share/virtualenvs/news-site-columnist-8tsXn7bh/lib/python3.10/site-packages/django/template/base.py in render(1005)
  return SafeString("".join([node.render_annotated(context) for node in self]))

/home/youser/.local/share/virtualenvs/news-site-columnist-8tsXn7bh/lib/python3.10/site-packages/django/template/base.py in <listcomp>(1005)
  return SafeString("".join([node.render_annotated(context) for node in self]))

/home/youser/.local/share/virtualenvs/news-site-columnist-8tsXn7bh/lib/python3.10/site-packages/django/template/base.py in render_annotated(966)
  return self.render(context)

/home/youser/.local/share/virtualenvs/news-site-columnist-8tsXn7bh/lib/python3.10/site-packages/template_timings_panel/panels/TemplateTimings.py in timing_hook(139)
  result = func(self, *args, **kwargs)

/home/youser/.local/share/virtualenvs/news-site-columnist-8tsXn7bh/lib/python3.10/site-packages/django/template/loader_tags.py in render(63)
  result = block.nodelist.render(context)

/home/youser/.local/share/virtualenvs/news-site-columnist-8tsXn7bh/lib/python3.10/site-packages/django/template/base.py in render(1005)
  return SafeString("".join([node.render_annotated(context) for node in self]))

/home/youser/.local/share/virtualenvs/news-site-columnist-8tsXn7bh/lib/python3.10/site-packages/django/template/base.py in <listcomp>(1005)
  return SafeString("".join([node.render_annotated(context) for node in self]))

/home/youser/.local/share/virtualenvs/news-site-columnist-8tsXn7bh/lib/python3.10/site-packages/django/template/base.py in render_annotated(966)
  return self.render(context)

/home/youser/.local/share/virtualenvs/news-site-columnist-8tsXn7bh/lib/python3.10/site-packages/template_timings_panel/panels/TemplateTimings.py in timing_hook(139)
  result = func(self, *args, **kwargs)

/home/youser/.local/share/virtualenvs/news-site-columnist-8tsXn7bh/lib/python3.10/site-packages/django/template/loader_tags.py in render(63)
  result = block.nodelist.render(context)

/home/youser/.local/share/virtualenvs/news-site-columnist-8tsXn7bh/lib/python3.10/site-packages/django/template/base.py in render(1005)
  return SafeString("".join([node.render_annotated(context) for node in self]))

/home/youser/.local/share/virtualenvs/news-site-columnist-8tsXn7bh/lib/python3.10/site-packages/django/template/base.py in <listcomp>(1005)
  return SafeString("".join([node.render_annotated(context) for node in self]))

/home/youser/.local/share/virtualenvs/news-site-columnist-8tsXn7bh/lib/python3.10/site-packages/django/template/base.py in render_annotated(966)
  return self.render(context)

/home/youser/.local/share/virtualenvs/news-site-columnist-8tsXn7bh/lib/python3.10/site-packages/django/template/loader_tags.py in render(208)
  return template.render(context)

/home/youser/.local/share/virtualenvs/news-site-columnist-8tsXn7bh/lib/python3.10/site-packages/template_timings_panel/panels/TemplateTimings.py in timing_hook(139)
  result = func(self, *args, **kwargs)

/home/youser/.local/share/virtualenvs/news-site-columnist-8tsXn7bh/lib/python3.10/site-packages/django/template/base.py in render(177)
  return self._render(context)

/home/youser/.local/share/virtualenvs/news-site-columnist-8tsXn7bh/lib/python3.10/site-packages/django/test/utils.py in instrumented_test_render(112)
  return self.nodelist.render(context)

/home/youser/.local/share/virtualenvs/news-site-columnist-8tsXn7bh/lib/python3.10/site-packages/django/template/base.py in render(1005)
  return SafeString("".join([node.render_annotated(context) for node in self]))

/home/youser/.local/share/virtualenvs/news-site-columnist-8tsXn7bh/lib/python3.10/site-packages/django/template/base.py in <listcomp>(1005)
  return SafeString("".join([node.render_annotated(context) for node in self]))

/home/youser/.local/share/virtualenvs/news-site-columnist-8tsXn7bh/lib/python3.10/site-packages/django/template/base.py in render_annotated(966)
  return self.render(context)

/home/youser/.local/share/virtualenvs/news-site-columnist-8tsXn7bh/lib/python3.10/site-packages/django/template/defaulttags.py in render(321)
  return nodelist.render(context)

/home/youser/.local/share/virtualenvs/news-site-columnist-8tsXn7bh/lib/python3.10/site-packages/django/template/base.py in render(1005)
  return SafeString("".join([node.render_annotated(context) for node in self]))

/home/youser/.local/share/virtualenvs/news-site-columnist-8tsXn7bh/lib/python3.10/site-packages/django/template/base.py in <listcomp>(1005)
  return SafeString("".join([node.render_annotated(context) for node in self]))

/home/youser/.local/share/virtualenvs/news-site-columnist-8tsXn7bh/lib/python3.10/site-packages/django/template/base.py in render_annotated(966)
  return self.render(context)

/home/youser/.local/share/virtualenvs/news-site-columnist-8tsXn7bh/lib/python3.10/site-packages/django/template/defaulttags.py in render(194)
  len_values = len(values)

72 {% if not only_post %}
73 <div class="article-categories">
74 <div class="article-categories__inner">
75 {% for tag in tags %}
76 <a href="{% host_url 'news:home' host 'www' %}tag/{{ tag.slug }}"
77 target="_blank"
78 class="article-categories__item">{{ tag.name }}</a>
79 {% endfor %}

/var/www/news-site-columnist/news/templates/new-design/includes/post_content.html

SELECT "users_user"."id",
       "users_user"."password",
       "users_user"."last_login",
       "users_user"."is_superuser",
       "users_user"."first_name",
       "users_user"."last_name",
       "users_user"."is_staff",
       "users_user"."is_active",
       "users_user"."date_joined",
       "users_user"."created_at",
       "users_user"."updated_at",
       "users_user"."created_by",
       "users_user"."updated_by",
       "users_user"."full_name",
       "users_user"."email",
       "users_user"."news_author_id",
       "users_user"."freelancer",
       "users_user"."username",
       "users_user"."can_translate_to_english"
  FROM "users_user"
 INNER JOIN "post_authors"
    ON ("users_user"."id" = "post_authors"."user_id")
 WHERE "post_authors"."post_id" = 139383
SELECT ••• FROM "users_user" INNER JOIN "post_authors" ON ("users_user"."id" = "post_authors"."user_id") WHERE "post_authors"."post_id" = 139383
4 similar queries. Duplicated 4 times.
0,58

Connection: default

Transaction status: Idle

/home/youser/.local/share/virtualenvs/news-site-columnist-8tsXn7bh/bin/gunicorn in <module>(8)
  sys.exit(run())

/home/youser/.local/share/virtualenvs/news-site-columnist-8tsXn7bh/lib/python3.10/site-packages/gunicorn/app/wsgiapp.py in run(66)
  WSGIApplication("%(prog)s [OPTIONS] [APP_MODULE]", prog=prog).run()

/home/youser/.local/share/virtualenvs/news-site-columnist-8tsXn7bh/lib/python3.10/site-packages/gunicorn/app/base.py in run(235)
  super().run()

/home/youser/.local/share/virtualenvs/news-site-columnist-8tsXn7bh/lib/python3.10/site-packages/gunicorn/app/base.py in run(71)
  Arbiter(self).run()

/home/youser/.local/share/virtualenvs/news-site-columnist-8tsXn7bh/lib/python3.10/site-packages/gunicorn/arbiter.py in run(210)
  self.manage_workers()

/home/youser/.local/share/virtualenvs/news-site-columnist-8tsXn7bh/lib/python3.10/site-packages/gunicorn/arbiter.py in manage_workers(570)
  self.spawn_workers()

/home/youser/.local/share/virtualenvs/news-site-columnist-8tsXn7bh/lib/python3.10/site-packages/gunicorn/arbiter.py in spawn_workers(641)
  self.spawn_worker()

/home/youser/.local/share/virtualenvs/news-site-columnist-8tsXn7bh/lib/python3.10/site-packages/gunicorn/arbiter.py in spawn_worker(608)
  worker.init_process()

/home/youser/.local/share/virtualenvs/news-site-columnist-8tsXn7bh/lib/python3.10/site-packages/gunicorn/workers/base.py in init_process(143)
  self.run()

/home/youser/.local/share/virtualenvs/news-site-columnist-8tsXn7bh/lib/python3.10/site-packages/gunicorn/workers/sync.py in run(125)
  self.run_for_one(timeout)

/home/youser/.local/share/virtualenvs/news-site-columnist-8tsXn7bh/lib/python3.10/site-packages/gunicorn/workers/sync.py in run_for_one(69)
  self.accept(listener)

/home/youser/.local/share/virtualenvs/news-site-columnist-8tsXn7bh/lib/python3.10/site-packages/gunicorn/workers/sync.py in accept(31)
  self.handle(listener, client, addr)

/home/youser/.local/share/virtualenvs/news-site-columnist-8tsXn7bh/lib/python3.10/site-packages/gunicorn/workers/sync.py in handle(134)
  self.handle_request(listener, req, client, addr)

/home/youser/.local/share/virtualenvs/news-site-columnist-8tsXn7bh/lib/python3.10/site-packages/gunicorn/workers/sync.py in handle_request(177)
  respiter = self.wsgi(environ, resp.start_response)

/home/youser/.local/share/virtualenvs/news-site-columnist-8tsXn7bh/lib/python3.10/site-packages/sentry_sdk/utils.py in runner(1864)
  return sentry_patched_function(*args, **kwargs)

/home/youser/.local/share/virtualenvs/news-site-columnist-8tsXn7bh/lib/python3.10/site-packages/sentry_sdk/integrations/django/__init__.py in sentry_patched_wsgi_handler(191)
  return middleware(environ, start_response)

/home/youser/.local/share/virtualenvs/news-site-columnist-8tsXn7bh/lib/python3.10/site-packages/sentry_sdk/integrations/wsgi.py in __call__(132)
  response = self.app(

/home/youser/.local/share/virtualenvs/news-site-columnist-8tsXn7bh/lib/python3.10/site-packages/sentry_sdk/integrations/django/__init__.py in sentry_patched_get_response(478)
  rv = old_get_response(self, request)

/home/youser/.local/share/virtualenvs/news-site-columnist-8tsXn7bh/lib/python3.10/site-packages/sentry_sdk/integrations/django/middleware.py in __call__(177)
  return f(*args, **kwargs)

/home/youser/.local/share/virtualenvs/news-site-columnist-8tsXn7bh/lib/python3.10/site-packages/sentry_sdk/integrations/django/middleware.py in __call__(177)
  return f(*args, **kwargs)

/var/www/news-site-columnist/redirects/middleware/redirect_middleware.py in __call__(17)
  return self.get_response(request)

/home/youser/.local/share/virtualenvs/news-site-columnist-8tsXn7bh/lib/python3.10/site-packages/sentry_sdk/integrations/django/middleware.py in __call__(177)
  return f(*args, **kwargs)

/home/youser/.local/share/virtualenvs/news-site-columnist-8tsXn7bh/lib/python3.10/site-packages/sentry_sdk/integrations/django/middleware.py in __call__(177)
  return f(*args, **kwargs)

/home/youser/.local/share/virtualenvs/news-site-columnist-8tsXn7bh/lib/python3.10/site-packages/sentry_sdk/integrations/django/middleware.py in __call__(177)
  return f(*args, **kwargs)

/home/youser/.local/share/virtualenvs/news-site-columnist-8tsXn7bh/lib/python3.10/site-packages/sentry_sdk/integrations/django/middleware.py in __call__(177)
  return f(*args, **kwargs)

/home/youser/.local/share/virtualenvs/news-site-columnist-8tsXn7bh/lib/python3.10/site-packages/corsheaders/middleware.py in __call__(53)
  result = self.get_response(request)

/home/youser/.local/share/virtualenvs/news-site-columnist-8tsXn7bh/lib/python3.10/site-packages/sentry_sdk/integrations/django/middleware.py in __call__(177)
  return f(*args, **kwargs)

/home/youser/.local/share/virtualenvs/news-site-columnist-8tsXn7bh/lib/python3.10/site-packages/django_user_agents/middleware.py in __call__(14)
  return self.get_response(request)

/home/youser/.local/share/virtualenvs/news-site-columnist-8tsXn7bh/lib/python3.10/site-packages/sentry_sdk/integrations/django/middleware.py in __call__(177)
  return f(*args, **kwargs)

/home/youser/.local/share/virtualenvs/news-site-columnist-8tsXn7bh/lib/python3.10/site-packages/sentry_sdk/integrations/django/middleware.py in __call__(177)
  return f(*args, **kwargs)

/home/youser/.local/share/virtualenvs/news-site-columnist-8tsXn7bh/lib/python3.10/site-packages/sentry_sdk/integrations/django/middleware.py in __call__(177)
  return f(*args, **kwargs)

/home/youser/.local/share/virtualenvs/news-site-columnist-8tsXn7bh/lib/python3.10/site-packages/sentry_sdk/integrations/django/middleware.py in __call__(177)
  return f(*args, **kwargs)

/home/youser/.local/share/virtualenvs/news-site-columnist-8tsXn7bh/lib/python3.10/site-packages/sentry_sdk/integrations/django/middleware.py in __call__(177)
  return f(*args, **kwargs)

/home/youser/.local/share/virtualenvs/news-site-columnist-8tsXn7bh/lib/python3.10/site-packages/sentry_sdk/integrations/django/middleware.py in __call__(177)
  return f(*args, **kwargs)

/home/youser/.local/share/virtualenvs/news-site-columnist-8tsXn7bh/lib/python3.10/site-packages/sentry_sdk/integrations/django/middleware.py in __call__(177)
  return f(*args, **kwargs)

/home/youser/.local/share/virtualenvs/news-site-columnist-8tsXn7bh/lib/python3.10/site-packages/sentry_sdk/integrations/django/middleware.py in __call__(177)
  return f(*args, **kwargs)

/var/www/news-site-columnist/news/middleware/subdomain_middleare.py in __call__(22)
  response = self.get_response(request)

/home/youser/.local/share/virtualenvs/news-site-columnist-8tsXn7bh/lib/python3.10/site-packages/sentry_sdk/integrations/django/views.py in sentry_patched_render(41)
  return old_render(self)

/home/youser/.local/share/virtualenvs/news-site-columnist-8tsXn7bh/lib/python3.10/site-packages/django/template/response.py in render(114)
  self.content = self.rendered_content

/home/youser/.local/share/virtualenvs/news-site-columnist-8tsXn7bh/lib/python3.10/site-packages/sentry_sdk/utils.py in runner(1864)
  return sentry_patched_function(*args, **kwargs)

/home/youser/.local/share/virtualenvs/news-site-columnist-8tsXn7bh/lib/python3.10/site-packages/sentry_sdk/integrations/django/templates.py in rendered_content(77)
  return real_rendered_content.fget(self)

/home/youser/.local/share/virtualenvs/news-site-columnist-8tsXn7bh/lib/python3.10/site-packages/django/template/response.py in rendered_content(92)
  return template.render(context, self._request)

/home/youser/.local/share/virtualenvs/news-site-columnist-8tsXn7bh/lib/python3.10/site-packages/django/template/backends/django.py in render(61)
  return self.template.render(context)

/home/youser/.local/share/virtualenvs/news-site-columnist-8tsXn7bh/lib/python3.10/site-packages/template_timings_panel/panels/TemplateTimings.py in timing_hook(139)
  result = func(self, *args, **kwargs)

/home/youser/.local/share/virtualenvs/news-site-columnist-8tsXn7bh/lib/python3.10/site-packages/django/template/base.py in render(175)
  return self._render(context)

/home/youser/.local/share/virtualenvs/news-site-columnist-8tsXn7bh/lib/python3.10/site-packages/django/test/utils.py in instrumented_test_render(112)
  return self.nodelist.render(context)

/home/youser/.local/share/virtualenvs/news-site-columnist-8tsXn7bh/lib/python3.10/site-packages/django/template/base.py in render(1005)
  return SafeString("".join([node.render_annotated(context) for node in self]))

/home/youser/.local/share/virtualenvs/news-site-columnist-8tsXn7bh/lib/python3.10/site-packages/django/template/base.py in <listcomp>(1005)
  return SafeString("".join([node.render_annotated(context) for node in self]))

/home/youser/.local/share/virtualenvs/news-site-columnist-8tsXn7bh/lib/python3.10/site-packages/django/template/base.py in render_annotated(966)
  return self.render(context)

/home/youser/.local/share/virtualenvs/news-site-columnist-8tsXn7bh/lib/python3.10/site-packages/django/template/loader_tags.py in render(157)
  return compiled_parent._render(context)

/home/youser/.local/share/virtualenvs/news-site-columnist-8tsXn7bh/lib/python3.10/site-packages/django/test/utils.py in instrumented_test_render(112)
  return self.nodelist.render(context)

/home/youser/.local/share/virtualenvs/news-site-columnist-8tsXn7bh/lib/python3.10/site-packages/django/template/base.py in render(1005)
  return SafeString("".join([node.render_annotated(context) for node in self]))

/home/youser/.local/share/virtualenvs/news-site-columnist-8tsXn7bh/lib/python3.10/site-packages/django/template/base.py in <listcomp>(1005)
  return SafeString("".join([node.render_annotated(context) for node in self]))

/home/youser/.local/share/virtualenvs/news-site-columnist-8tsXn7bh/lib/python3.10/site-packages/django/template/base.py in render_annotated(966)
  return self.render(context)

/home/youser/.local/share/virtualenvs/news-site-columnist-8tsXn7bh/lib/python3.10/site-packages/template_timings_panel/panels/TemplateTimings.py in timing_hook(139)
  result = func(self, *args, **kwargs)

/home/youser/.local/share/virtualenvs/news-site-columnist-8tsXn7bh/lib/python3.10/site-packages/django/template/loader_tags.py in render(63)
  result = block.nodelist.render(context)

/home/youser/.local/share/virtualenvs/news-site-columnist-8tsXn7bh/lib/python3.10/site-packages/django/template/base.py in render(1005)
  return SafeString("".join([node.render_annotated(context) for node in self]))

/home/youser/.local/share/virtualenvs/news-site-columnist-8tsXn7bh/lib/python3.10/site-packages/django/template/base.py in <listcomp>(1005)
  return SafeString("".join([node.render_annotated(context) for node in self]))

/home/youser/.local/share/virtualenvs/news-site-columnist-8tsXn7bh/lib/python3.10/site-packages/django/template/base.py in render_annotated(966)
  return self.render(context)

/home/youser/.local/share/virtualenvs/news-site-columnist-8tsXn7bh/lib/python3.10/site-packages/template_timings_panel/panels/TemplateTimings.py in timing_hook(139)
  result = func(self, *args, **kwargs)

/home/youser/.local/share/virtualenvs/news-site-columnist-8tsXn7bh/lib/python3.10/site-packages/django/template/loader_tags.py in render(63)
  result = block.nodelist.render(context)

/home/youser/.local/share/virtualenvs/news-site-columnist-8tsXn7bh/lib/python3.10/site-packages/django/template/base.py in render(1005)
  return SafeString("".join([node.render_annotated(context) for node in self]))

/home/youser/.local/share/virtualenvs/news-site-columnist-8tsXn7bh/lib/python3.10/site-packages/django/template/base.py in <listcomp>(1005)
  return SafeString("".join([node.render_annotated(context) for node in self]))

/home/youser/.local/share/virtualenvs/news-site-columnist-8tsXn7bh/lib/python3.10/site-packages/django/template/base.py in render_annotated(966)
  return self.render(context)

/home/youser/.local/share/virtualenvs/news-site-columnist-8tsXn7bh/lib/python3.10/site-packages/django/template/loader_tags.py in render(208)
  return template.render(context)

/home/youser/.local/share/virtualenvs/news-site-columnist-8tsXn7bh/lib/python3.10/site-packages/template_timings_panel/panels/TemplateTimings.py in timing_hook(139)
  result = func(self, *args, **kwargs)

/home/youser/.local/share/virtualenvs/news-site-columnist-8tsXn7bh/lib/python3.10/site-packages/django/template/base.py in render(177)
  return self._render(context)

/home/youser/.local/share/virtualenvs/news-site-columnist-8tsXn7bh/lib/python3.10/site-packages/django/test/utils.py in instrumented_test_render(112)
  return self.nodelist.render(context)

/home/youser/.local/share/virtualenvs/news-site-columnist-8tsXn7bh/lib/python3.10/site-packages/django/template/base.py in render(1005)
  return SafeString("".join([node.render_annotated(context) for node in self]))

/home/youser/.local/share/virtualenvs/news-site-columnist-8tsXn7bh/lib/python3.10/site-packages/django/template/base.py in <listcomp>(1005)
  return SafeString("".join([node.render_annotated(context) for node in self]))

/home/youser/.local/share/virtualenvs/news-site-columnist-8tsXn7bh/lib/python3.10/site-packages/django/template/base.py in render_annotated(966)
  return self.render(context)

/home/youser/.local/share/virtualenvs/news-site-columnist-8tsXn7bh/lib/python3.10/site-packages/django/template/defaulttags.py in render(321)
  return nodelist.render(context)

/home/youser/.local/share/virtualenvs/news-site-columnist-8tsXn7bh/lib/python3.10/site-packages/django/template/base.py in render(1005)
  return SafeString("".join([node.render_annotated(context) for node in self]))

/home/youser/.local/share/virtualenvs/news-site-columnist-8tsXn7bh/lib/python3.10/site-packages/django/template/base.py in <listcomp>(1005)
  return SafeString("".join([node.render_annotated(context) for node in self]))

/home/youser/.local/share/virtualenvs/news-site-columnist-8tsXn7bh/lib/python3.10/site-packages/django/template/base.py in render_annotated(966)
  return self.render(context)

/home/youser/.local/share/virtualenvs/news-site-columnist-8tsXn7bh/lib/python3.10/site-packages/django/template/loader_tags.py in render(208)
  return template.render(context)

/home/youser/.local/share/virtualenvs/news-site-columnist-8tsXn7bh/lib/python3.10/site-packages/template_timings_panel/panels/TemplateTimings.py in timing_hook(139)
  result = func(self, *args, **kwargs)

/home/youser/.local/share/virtualenvs/news-site-columnist-8tsXn7bh/lib/python3.10/site-packages/django/template/base.py in render(177)
  return self._render(context)

/home/youser/.local/share/virtualenvs/news-site-columnist-8tsXn7bh/lib/python3.10/site-packages/django/test/utils.py in instrumented_test_render(112)
  return self.nodelist.render(context)

/home/youser/.local/share/virtualenvs/news-site-columnist-8tsXn7bh/lib/python3.10/site-packages/django/template/base.py in render(1005)
  return SafeString("".join([node.render_annotated(context) for node in self]))

/home/youser/.local/share/virtualenvs/news-site-columnist-8tsXn7bh/lib/python3.10/site-packages/django/template/base.py in <listcomp>(1005)
  return SafeString("".join([node.render_annotated(context) for node in self]))

/home/youser/.local/share/virtualenvs/news-site-columnist-8tsXn7bh/lib/python3.10/site-packages/django/template/base.py in render_annotated(966)
  return self.render(context)

/home/youser/.local/share/virtualenvs/news-site-columnist-8tsXn7bh/lib/python3.10/site-packages/django/template/defaulttags.py in render(314)
  match = condition.eval(context)

/home/youser/.local/share/virtualenvs/news-site-columnist-8tsXn7bh/lib/python3.10/site-packages/django/template/smartif.py in eval(60)
  return func(context, self.first, self.second)

/home/youser/.local/share/virtualenvs/news-site-columnist-8tsXn7bh/lib/python3.10/site-packages/django/template/smartif.py in <lambda>(106)
  ">": infix(10, lambda context, x, y: x.eval(context) > y.eval(context)),

/home/youser/.local/share/virtualenvs/news-site-columnist-8tsXn7bh/lib/python3.10/site-packages/django/template/defaulttags.py in eval(877)
  return self.value.resolve(context, ignore_failures=True)

/home/youser/.local/share/virtualenvs/news-site-columnist-8tsXn7bh/lib/python3.10/site-packages/django/template/base.py in resolve(742)
  new_obj = func(obj, *arg_vals)

/home/youser/.local/share/virtualenvs/news-site-columnist-8tsXn7bh/lib/python3.10/site-packages/django/template/defaultfilters.py in length(609)
  return len(value)

9 {# </span>#}
10 <div class="article-author__inner">
11 <div class="article-author__images">
12 {% if post.authors.all|length > 1 %}
13 {% for author in post.authors.all %}
14 <a href='{{ author.news_author.get_absolute_url }}'>
15 <img src="{% if author.news_author.image %}https://imagedelivery.net/4_JwVYxosZqzJ7gIDJgTLA/{{ author.news_author.image }}/usersm{% endif %}"
16 width="48"

/var/www/news-site-columnist/news/templates/new-design/components/article/article-author.html

SELECT "users_user"."id",
       "users_user"."password",
       "users_user"."last_login",
       "users_user"."is_superuser",
       "users_user"."first_name",
       "users_user"."last_name",
       "users_user"."is_staff",
       "users_user"."is_active",
       "users_user"."date_joined",
       "users_user"."created_at",
       "users_user"."updated_at",
       "users_user"."created_by",
       "users_user"."updated_by",
       "users_user"."full_name",
       "users_user"."email",
       "users_user"."news_author_id",
       "users_user"."freelancer",
       "users_user"."username",
       "users_user"."can_translate_to_english"
  FROM "users_user"
 INNER JOIN "post_authors"
    ON ("users_user"."id" = "post_authors"."user_id")
 WHERE "post_authors"."post_id" = 139383
SELECT ••• FROM "users_user" INNER JOIN "post_authors" ON ("users_user"."id" = "post_authors"."user_id") WHERE "post_authors"."post_id" = 139383
4 similar queries. Duplicated 4 times.
0,47

Connection: default

Transaction status: Idle

/home/youser/.local/share/virtualenvs/news-site-columnist-8tsXn7bh/bin/gunicorn in <module>(8)
  sys.exit(run())

/home/youser/.local/share/virtualenvs/news-site-columnist-8tsXn7bh/lib/python3.10/site-packages/gunicorn/app/wsgiapp.py in run(66)
  WSGIApplication("%(prog)s [OPTIONS] [APP_MODULE]", prog=prog).run()

/home/youser/.local/share/virtualenvs/news-site-columnist-8tsXn7bh/lib/python3.10/site-packages/gunicorn/app/base.py in run(235)
  super().run()

/home/youser/.local/share/virtualenvs/news-site-columnist-8tsXn7bh/lib/python3.10/site-packages/gunicorn/app/base.py in run(71)
  Arbiter(self).run()

/home/youser/.local/share/virtualenvs/news-site-columnist-8tsXn7bh/lib/python3.10/site-packages/gunicorn/arbiter.py in run(210)
  self.manage_workers()

/home/youser/.local/share/virtualenvs/news-site-columnist-8tsXn7bh/lib/python3.10/site-packages/gunicorn/arbiter.py in manage_workers(570)
  self.spawn_workers()

/home/youser/.local/share/virtualenvs/news-site-columnist-8tsXn7bh/lib/python3.10/site-packages/gunicorn/arbiter.py in spawn_workers(641)
  self.spawn_worker()

/home/youser/.local/share/virtualenvs/news-site-columnist-8tsXn7bh/lib/python3.10/site-packages/gunicorn/arbiter.py in spawn_worker(608)
  worker.init_process()

/home/youser/.local/share/virtualenvs/news-site-columnist-8tsXn7bh/lib/python3.10/site-packages/gunicorn/workers/base.py in init_process(143)
  self.run()

/home/youser/.local/share/virtualenvs/news-site-columnist-8tsXn7bh/lib/python3.10/site-packages/gunicorn/workers/sync.py in run(125)
  self.run_for_one(timeout)

/home/youser/.local/share/virtualenvs/news-site-columnist-8tsXn7bh/lib/python3.10/site-packages/gunicorn/workers/sync.py in run_for_one(69)
  self.accept(listener)

/home/youser/.local/share/virtualenvs/news-site-columnist-8tsXn7bh/lib/python3.10/site-packages/gunicorn/workers/sync.py in accept(31)
  self.handle(listener, client, addr)

/home/youser/.local/share/virtualenvs/news-site-columnist-8tsXn7bh/lib/python3.10/site-packages/gunicorn/workers/sync.py in handle(134)
  self.handle_request(listener, req, client, addr)

/home/youser/.local/share/virtualenvs/news-site-columnist-8tsXn7bh/lib/python3.10/site-packages/gunicorn/workers/sync.py in handle_request(177)
  respiter = self.wsgi(environ, resp.start_response)

/home/youser/.local/share/virtualenvs/news-site-columnist-8tsXn7bh/lib/python3.10/site-packages/sentry_sdk/utils.py in runner(1864)
  return sentry_patched_function(*args, **kwargs)

/home/youser/.local/share/virtualenvs/news-site-columnist-8tsXn7bh/lib/python3.10/site-packages/sentry_sdk/integrations/django/__init__.py in sentry_patched_wsgi_handler(191)
  return middleware(environ, start_response)

/home/youser/.local/share/virtualenvs/news-site-columnist-8tsXn7bh/lib/python3.10/site-packages/sentry_sdk/integrations/wsgi.py in __call__(132)
  response = self.app(

/home/youser/.local/share/virtualenvs/news-site-columnist-8tsXn7bh/lib/python3.10/site-packages/sentry_sdk/integrations/django/__init__.py in sentry_patched_get_response(478)
  rv = old_get_response(self, request)

/home/youser/.local/share/virtualenvs/news-site-columnist-8tsXn7bh/lib/python3.10/site-packages/sentry_sdk/integrations/django/middleware.py in __call__(177)
  return f(*args, **kwargs)

/home/youser/.local/share/virtualenvs/news-site-columnist-8tsXn7bh/lib/python3.10/site-packages/sentry_sdk/integrations/django/middleware.py in __call__(177)
  return f(*args, **kwargs)

/var/www/news-site-columnist/redirects/middleware/redirect_middleware.py in __call__(17)
  return self.get_response(request)

/home/youser/.local/share/virtualenvs/news-site-columnist-8tsXn7bh/lib/python3.10/site-packages/sentry_sdk/integrations/django/middleware.py in __call__(177)
  return f(*args, **kwargs)

/home/youser/.local/share/virtualenvs/news-site-columnist-8tsXn7bh/lib/python3.10/site-packages/sentry_sdk/integrations/django/middleware.py in __call__(177)
  return f(*args, **kwargs)

/home/youser/.local/share/virtualenvs/news-site-columnist-8tsXn7bh/lib/python3.10/site-packages/sentry_sdk/integrations/django/middleware.py in __call__(177)
  return f(*args, **kwargs)

/home/youser/.local/share/virtualenvs/news-site-columnist-8tsXn7bh/lib/python3.10/site-packages/sentry_sdk/integrations/django/middleware.py in __call__(177)
  return f(*args, **kwargs)

/home/youser/.local/share/virtualenvs/news-site-columnist-8tsXn7bh/lib/python3.10/site-packages/corsheaders/middleware.py in __call__(53)
  result = self.get_response(request)

/home/youser/.local/share/virtualenvs/news-site-columnist-8tsXn7bh/lib/python3.10/site-packages/sentry_sdk/integrations/django/middleware.py in __call__(177)
  return f(*args, **kwargs)

/home/youser/.local/share/virtualenvs/news-site-columnist-8tsXn7bh/lib/python3.10/site-packages/django_user_agents/middleware.py in __call__(14)
  return self.get_response(request)

/home/youser/.local/share/virtualenvs/news-site-columnist-8tsXn7bh/lib/python3.10/site-packages/sentry_sdk/integrations/django/middleware.py in __call__(177)
  return f(*args, **kwargs)

/home/youser/.local/share/virtualenvs/news-site-columnist-8tsXn7bh/lib/python3.10/site-packages/sentry_sdk/integrations/django/middleware.py in __call__(177)
  return f(*args, **kwargs)

/home/youser/.local/share/virtualenvs/news-site-columnist-8tsXn7bh/lib/python3.10/site-packages/sentry_sdk/integrations/django/middleware.py in __call__(177)
  return f(*args, **kwargs)

/home/youser/.local/share/virtualenvs/news-site-columnist-8tsXn7bh/lib/python3.10/site-packages/sentry_sdk/integrations/django/middleware.py in __call__(177)
  return f(*args, **kwargs)

/home/youser/.local/share/virtualenvs/news-site-columnist-8tsXn7bh/lib/python3.10/site-packages/sentry_sdk/integrations/django/middleware.py in __call__(177)
  return f(*args, **kwargs)

/home/youser/.local/share/virtualenvs/news-site-columnist-8tsXn7bh/lib/python3.10/site-packages/sentry_sdk/integrations/django/middleware.py in __call__(177)
  return f(*args, **kwargs)

/home/youser/.local/share/virtualenvs/news-site-columnist-8tsXn7bh/lib/python3.10/site-packages/sentry_sdk/integrations/django/middleware.py in __call__(177)
  return f(*args, **kwargs)

/home/youser/.local/share/virtualenvs/news-site-columnist-8tsXn7bh/lib/python3.10/site-packages/sentry_sdk/integrations/django/middleware.py in __call__(177)
  return f(*args, **kwargs)

/var/www/news-site-columnist/news/middleware/subdomain_middleare.py in __call__(22)
  response = self.get_response(request)

/home/youser/.local/share/virtualenvs/news-site-columnist-8tsXn7bh/lib/python3.10/site-packages/sentry_sdk/integrations/django/views.py in sentry_patched_render(41)
  return old_render(self)

/home/youser/.local/share/virtualenvs/news-site-columnist-8tsXn7bh/lib/python3.10/site-packages/django/template/response.py in render(114)
  self.content = self.rendered_content

/home/youser/.local/share/virtualenvs/news-site-columnist-8tsXn7bh/lib/python3.10/site-packages/sentry_sdk/utils.py in runner(1864)
  return sentry_patched_function(*args, **kwargs)

/home/youser/.local/share/virtualenvs/news-site-columnist-8tsXn7bh/lib/python3.10/site-packages/sentry_sdk/integrations/django/templates.py in rendered_content(77)
  return real_rendered_content.fget(self)

/home/youser/.local/share/virtualenvs/news-site-columnist-8tsXn7bh/lib/python3.10/site-packages/django/template/response.py in rendered_content(92)
  return template.render(context, self._request)

/home/youser/.local/share/virtualenvs/news-site-columnist-8tsXn7bh/lib/python3.10/site-packages/django/template/backends/django.py in render(61)
  return self.template.render(context)

/home/youser/.local/share/virtualenvs/news-site-columnist-8tsXn7bh/lib/python3.10/site-packages/template_timings_panel/panels/TemplateTimings.py in timing_hook(139)
  result = func(self, *args, **kwargs)

/home/youser/.local/share/virtualenvs/news-site-columnist-8tsXn7bh/lib/python3.10/site-packages/django/template/base.py in render(175)
  return self._render(context)

/home/youser/.local/share/virtualenvs/news-site-columnist-8tsXn7bh/lib/python3.10/site-packages/django/test/utils.py in instrumented_test_render(112)
  return self.nodelist.render(context)

/home/youser/.local/share/virtualenvs/news-site-columnist-8tsXn7bh/lib/python3.10/site-packages/django/template/base.py in render(1005)
  return SafeString("".join([node.render_annotated(context) for node in self]))

/home/youser/.local/share/virtualenvs/news-site-columnist-8tsXn7bh/lib/python3.10/site-packages/django/template/base.py in <listcomp>(1005)
  return SafeString("".join([node.render_annotated(context) for node in self]))

/home/youser/.local/share/virtualenvs/news-site-columnist-8tsXn7bh/lib/python3.10/site-packages/django/template/base.py in render_annotated(966)
  return self.render(context)

/home/youser/.local/share/virtualenvs/news-site-columnist-8tsXn7bh/lib/python3.10/site-packages/django/template/loader_tags.py in render(157)
  return compiled_parent._render(context)

/home/youser/.local/share/virtualenvs/news-site-columnist-8tsXn7bh/lib/python3.10/site-packages/django/test/utils.py in instrumented_test_render(112)
  return self.nodelist.render(context)

/home/youser/.local/share/virtualenvs/news-site-columnist-8tsXn7bh/lib/python3.10/site-packages/django/template/base.py in render(1005)
  return SafeString("".join([node.render_annotated(context) for node in self]))

/home/youser/.local/share/virtualenvs/news-site-columnist-8tsXn7bh/lib/python3.10/site-packages/django/template/base.py in <listcomp>(1005)
  return SafeString("".join([node.render_annotated(context) for node in self]))

/home/youser/.local/share/virtualenvs/news-site-columnist-8tsXn7bh/lib/python3.10/site-packages/django/template/base.py in render_annotated(966)
  return self.render(context)

/home/youser/.local/share/virtualenvs/news-site-columnist-8tsXn7bh/lib/python3.10/site-packages/template_timings_panel/panels/TemplateTimings.py in timing_hook(139)
  result = func(self, *args, **kwargs)

/home/youser/.local/share/virtualenvs/news-site-columnist-8tsXn7bh/lib/python3.10/site-packages/django/template/loader_tags.py in render(63)
  result = block.nodelist.render(context)

/home/youser/.local/share/virtualenvs/news-site-columnist-8tsXn7bh/lib/python3.10/site-packages/django/template/base.py in render(1005)
  return SafeString("".join([node.render_annotated(context) for node in self]))

/home/youser/.local/share/virtualenvs/news-site-columnist-8tsXn7bh/lib/python3.10/site-packages/django/template/base.py in <listcomp>(1005)
  return SafeString("".join([node.render_annotated(context) for node in self]))

/home/youser/.local/share/virtualenvs/news-site-columnist-8tsXn7bh/lib/python3.10/site-packages/django/template/base.py in render_annotated(966)
  return self.render(context)

/home/youser/.local/share/virtualenvs/news-site-columnist-8tsXn7bh/lib/python3.10/site-packages/template_timings_panel/panels/TemplateTimings.py in timing_hook(139)
  result = func(self, *args, **kwargs)

/home/youser/.local/share/virtualenvs/news-site-columnist-8tsXn7bh/lib/python3.10/site-packages/django/template/loader_tags.py in render(63)
  result = block.nodelist.render(context)

/home/youser/.local/share/virtualenvs/news-site-columnist-8tsXn7bh/lib/python3.10/site-packages/django/template/base.py in render(1005)
  return SafeString("".join([node.render_annotated(context) for node in self]))

/home/youser/.local/share/virtualenvs/news-site-columnist-8tsXn7bh/lib/python3.10/site-packages/django/template/base.py in <listcomp>(1005)
  return SafeString("".join([node.render_annotated(context) for node in self]))

/home/youser/.local/share/virtualenvs/news-site-columnist-8tsXn7bh/lib/python3.10/site-packages/django/template/base.py in render_annotated(966)
  return self.render(context)

/home/youser/.local/share/virtualenvs/news-site-columnist-8tsXn7bh/lib/python3.10/site-packages/django/template/loader_tags.py in render(208)
  return template.render(context)

/home/youser/.local/share/virtualenvs/news-site-columnist-8tsXn7bh/lib/python3.10/site-packages/template_timings_panel/panels/TemplateTimings.py in timing_hook(139)
  result = func(self, *args, **kwargs)

/home/youser/.local/share/virtualenvs/news-site-columnist-8tsXn7bh/lib/python3.10/site-packages/django/template/base.py in render(177)
  return self._render(context)

/home/youser/.local/share/virtualenvs/news-site-columnist-8tsXn7bh/lib/python3.10/site-packages/django/test/utils.py in instrumented_test_render(112)
  return self.nodelist.render(context)

/home/youser/.local/share/virtualenvs/news-site-columnist-8tsXn7bh/lib/python3.10/site-packages/django/template/base.py in render(1005)
  return SafeString("".join([node.render_annotated(context) for node in self]))

/home/youser/.local/share/virtualenvs/news-site-columnist-8tsXn7bh/lib/python3.10/site-packages/django/template/base.py in <listcomp>(1005)
  return SafeString("".join([node.render_annotated(context) for node in self]))

/home/youser/.local/share/virtualenvs/news-site-columnist-8tsXn7bh/lib/python3.10/site-packages/django/template/base.py in render_annotated(966)
  return self.render(context)

/home/youser/.local/share/virtualenvs/news-site-columnist-8tsXn7bh/lib/python3.10/site-packages/django/template/defaulttags.py in render(321)
  return nodelist.render(context)

/home/youser/.local/share/virtualenvs/news-site-columnist-8tsXn7bh/lib/python3.10/site-packages/django/template/base.py in render(1005)
  return SafeString("".join([node.render_annotated(context) for node in self]))

/home/youser/.local/share/virtualenvs/news-site-columnist-8tsXn7bh/lib/python3.10/site-packages/django/template/base.py in <listcomp>(1005)
  return SafeString("".join([node.render_annotated(context) for node in self]))

/home/youser/.local/share/virtualenvs/news-site-columnist-8tsXn7bh/lib/python3.10/site-packages/django/template/base.py in render_annotated(966)
  return self.render(context)

/home/youser/.local/share/virtualenvs/news-site-columnist-8tsXn7bh/lib/python3.10/site-packages/django/template/loader_tags.py in render(208)
  return template.render(context)

/home/youser/.local/share/virtualenvs/news-site-columnist-8tsXn7bh/lib/python3.10/site-packages/template_timings_panel/panels/TemplateTimings.py in timing_hook(139)
  result = func(self, *args, **kwargs)

/home/youser/.local/share/virtualenvs/news-site-columnist-8tsXn7bh/lib/python3.10/site-packages/django/template/base.py in render(177)
  return self._render(context)

/home/youser/.local/share/virtualenvs/news-site-columnist-8tsXn7bh/lib/python3.10/site-packages/django/test/utils.py in instrumented_test_render(112)
  return self.nodelist.render(context)

/home/youser/.local/share/virtualenvs/news-site-columnist-8tsXn7bh/lib/python3.10/site-packages/django/template/base.py in render(1005)
  return SafeString("".join([node.render_annotated(context) for node in self]))

/home/youser/.local/share/virtualenvs/news-site-columnist-8tsXn7bh/lib/python3.10/site-packages/django/template/base.py in <listcomp>(1005)
  return SafeString("".join([node.render_annotated(context) for node in self]))

/home/youser/.local/share/virtualenvs/news-site-columnist-8tsXn7bh/lib/python3.10/site-packages/django/template/base.py in render_annotated(966)
  return self.render(context)

/home/youser/.local/share/virtualenvs/news-site-columnist-8tsXn7bh/lib/python3.10/site-packages/django/template/defaulttags.py in render(314)
  match = condition.eval(context)

/home/youser/.local/share/virtualenvs/news-site-columnist-8tsXn7bh/lib/python3.10/site-packages/django/template/smartif.py in eval(60)
  return func(context, self.first, self.second)

/home/youser/.local/share/virtualenvs/news-site-columnist-8tsXn7bh/lib/python3.10/site-packages/django/template/smartif.py in <lambda>(106)
  ">": infix(10, lambda context, x, y: x.eval(context) > y.eval(context)),

/home/youser/.local/share/virtualenvs/news-site-columnist-8tsXn7bh/lib/python3.10/site-packages/django/template/defaulttags.py in eval(877)
  return self.value.resolve(context, ignore_failures=True)

/home/youser/.local/share/virtualenvs/news-site-columnist-8tsXn7bh/lib/python3.10/site-packages/django/template/base.py in resolve(742)
  new_obj = func(obj, *arg_vals)

/home/youser/.local/share/virtualenvs/news-site-columnist-8tsXn7bh/lib/python3.10/site-packages/django/template/defaultfilters.py in length(609)
  return len(value)

31 </div>
32 <div class="article-author__preparedBy">
33 <span class="article-author__title">
34 {% if post.authors.all|length > 1 %}
35 {% trans "Автори:" %}
36 {% else %}
37 {% trans "Автор:" %}
38 {% endif %}

/var/www/news-site-columnist/news/templates/new-design/components/article/article-author.html

SELECT "users_user"."id",
       "users_user"."password",
       "users_user"."last_login",
       "users_user"."is_superuser",
       "users_user"."first_name",
       "users_user"."last_name",
       "users_user"."is_staff",
       "users_user"."is_active",
       "users_user"."date_joined",
       "users_user"."created_at",
       "users_user"."updated_at",
       "users_user"."created_by",
       "users_user"."updated_by",
       "users_user"."full_name",
       "users_user"."email",
       "users_user"."news_author_id",
       "users_user"."freelancer",
       "users_user"."username",
       "users_user"."can_translate_to_english"
  FROM "users_user"
 INNER JOIN "post_authors"
    ON ("users_user"."id" = "post_authors"."user_id")
 WHERE "post_authors"."post_id" = 139383
SELECT ••• FROM "users_user" INNER JOIN "post_authors" ON ("users_user"."id" = "post_authors"."user_id") WHERE "post_authors"."post_id" = 139383
4 similar queries. Duplicated 4 times.
0,45

Connection: default

Transaction status: Idle

/home/youser/.local/share/virtualenvs/news-site-columnist-8tsXn7bh/bin/gunicorn in <module>(8)
  sys.exit(run())

/home/youser/.local/share/virtualenvs/news-site-columnist-8tsXn7bh/lib/python3.10/site-packages/gunicorn/app/wsgiapp.py in run(66)
  WSGIApplication("%(prog)s [OPTIONS] [APP_MODULE]", prog=prog).run()

/home/youser/.local/share/virtualenvs/news-site-columnist-8tsXn7bh/lib/python3.10/site-packages/gunicorn/app/base.py in run(235)
  super().run()

/home/youser/.local/share/virtualenvs/news-site-columnist-8tsXn7bh/lib/python3.10/site-packages/gunicorn/app/base.py in run(71)
  Arbiter(self).run()

/home/youser/.local/share/virtualenvs/news-site-columnist-8tsXn7bh/lib/python3.10/site-packages/gunicorn/arbiter.py in run(210)
  self.manage_workers()

/home/youser/.local/share/virtualenvs/news-site-columnist-8tsXn7bh/lib/python3.10/site-packages/gunicorn/arbiter.py in manage_workers(570)
  self.spawn_workers()

/home/youser/.local/share/virtualenvs/news-site-columnist-8tsXn7bh/lib/python3.10/site-packages/gunicorn/arbiter.py in spawn_workers(641)
  self.spawn_worker()

/home/youser/.local/share/virtualenvs/news-site-columnist-8tsXn7bh/lib/python3.10/site-packages/gunicorn/arbiter.py in spawn_worker(608)
  worker.init_process()

/home/youser/.local/share/virtualenvs/news-site-columnist-8tsXn7bh/lib/python3.10/site-packages/gunicorn/workers/base.py in init_process(143)
  self.run()

/home/youser/.local/share/virtualenvs/news-site-columnist-8tsXn7bh/lib/python3.10/site-packages/gunicorn/workers/sync.py in run(125)
  self.run_for_one(timeout)

/home/youser/.local/share/virtualenvs/news-site-columnist-8tsXn7bh/lib/python3.10/site-packages/gunicorn/workers/sync.py in run_for_one(69)
  self.accept(listener)

/home/youser/.local/share/virtualenvs/news-site-columnist-8tsXn7bh/lib/python3.10/site-packages/gunicorn/workers/sync.py in accept(31)
  self.handle(listener, client, addr)

/home/youser/.local/share/virtualenvs/news-site-columnist-8tsXn7bh/lib/python3.10/site-packages/gunicorn/workers/sync.py in handle(134)
  self.handle_request(listener, req, client, addr)

/home/youser/.local/share/virtualenvs/news-site-columnist-8tsXn7bh/lib/python3.10/site-packages/gunicorn/workers/sync.py in handle_request(177)
  respiter = self.wsgi(environ, resp.start_response)

/home/youser/.local/share/virtualenvs/news-site-columnist-8tsXn7bh/lib/python3.10/site-packages/sentry_sdk/utils.py in runner(1864)
  return sentry_patched_function(*args, **kwargs)

/home/youser/.local/share/virtualenvs/news-site-columnist-8tsXn7bh/lib/python3.10/site-packages/sentry_sdk/integrations/django/__init__.py in sentry_patched_wsgi_handler(191)
  return middleware(environ, start_response)

/home/youser/.local/share/virtualenvs/news-site-columnist-8tsXn7bh/lib/python3.10/site-packages/sentry_sdk/integrations/wsgi.py in __call__(132)
  response = self.app(

/home/youser/.local/share/virtualenvs/news-site-columnist-8tsXn7bh/lib/python3.10/site-packages/sentry_sdk/integrations/django/__init__.py in sentry_patched_get_response(478)
  rv = old_get_response(self, request)

/home/youser/.local/share/virtualenvs/news-site-columnist-8tsXn7bh/lib/python3.10/site-packages/sentry_sdk/integrations/django/middleware.py in __call__(177)
  return f(*args, **kwargs)

/home/youser/.local/share/virtualenvs/news-site-columnist-8tsXn7bh/lib/python3.10/site-packages/sentry_sdk/integrations/django/middleware.py in __call__(177)
  return f(*args, **kwargs)

/var/www/news-site-columnist/redirects/middleware/redirect_middleware.py in __call__(17)
  return self.get_response(request)

/home/youser/.local/share/virtualenvs/news-site-columnist-8tsXn7bh/lib/python3.10/site-packages/sentry_sdk/integrations/django/middleware.py in __call__(177)
  return f(*args, **kwargs)

/home/youser/.local/share/virtualenvs/news-site-columnist-8tsXn7bh/lib/python3.10/site-packages/sentry_sdk/integrations/django/middleware.py in __call__(177)
  return f(*args, **kwargs)

/home/youser/.local/share/virtualenvs/news-site-columnist-8tsXn7bh/lib/python3.10/site-packages/sentry_sdk/integrations/django/middleware.py in __call__(177)
  return f(*args, **kwargs)

/home/youser/.local/share/virtualenvs/news-site-columnist-8tsXn7bh/lib/python3.10/site-packages/sentry_sdk/integrations/django/middleware.py in __call__(177)
  return f(*args, **kwargs)

/home/youser/.local/share/virtualenvs/news-site-columnist-8tsXn7bh/lib/python3.10/site-packages/corsheaders/middleware.py in __call__(53)
  result = self.get_response(request)

/home/youser/.local/share/virtualenvs/news-site-columnist-8tsXn7bh/lib/python3.10/site-packages/sentry_sdk/integrations/django/middleware.py in __call__(177)
  return f(*args, **kwargs)

/home/youser/.local/share/virtualenvs/news-site-columnist-8tsXn7bh/lib/python3.10/site-packages/django_user_agents/middleware.py in __call__(14)
  return self.get_response(request)

/home/youser/.local/share/virtualenvs/news-site-columnist-8tsXn7bh/lib/python3.10/site-packages/sentry_sdk/integrations/django/middleware.py in __call__(177)
  return f(*args, **kwargs)

/home/youser/.local/share/virtualenvs/news-site-columnist-8tsXn7bh/lib/python3.10/site-packages/sentry_sdk/integrations/django/middleware.py in __call__(177)
  return f(*args, **kwargs)

/home/youser/.local/share/virtualenvs/news-site-columnist-8tsXn7bh/lib/python3.10/site-packages/sentry_sdk/integrations/django/middleware.py in __call__(177)
  return f(*args, **kwargs)

/home/youser/.local/share/virtualenvs/news-site-columnist-8tsXn7bh/lib/python3.10/site-packages/sentry_sdk/integrations/django/middleware.py in __call__(177)
  return f(*args, **kwargs)

/home/youser/.local/share/virtualenvs/news-site-columnist-8tsXn7bh/lib/python3.10/site-packages/sentry_sdk/integrations/django/middleware.py in __call__(177)
  return f(*args, **kwargs)

/home/youser/.local/share/virtualenvs/news-site-columnist-8tsXn7bh/lib/python3.10/site-packages/sentry_sdk/integrations/django/middleware.py in __call__(177)
  return f(*args, **kwargs)

/home/youser/.local/share/virtualenvs/news-site-columnist-8tsXn7bh/lib/python3.10/site-packages/sentry_sdk/integrations/django/middleware.py in __call__(177)
  return f(*args, **kwargs)

/home/youser/.local/share/virtualenvs/news-site-columnist-8tsXn7bh/lib/python3.10/site-packages/sentry_sdk/integrations/django/middleware.py in __call__(177)
  return f(*args, **kwargs)

/var/www/news-site-columnist/news/middleware/subdomain_middleare.py in __call__(22)
  response = self.get_response(request)

/home/youser/.local/share/virtualenvs/news-site-columnist-8tsXn7bh/lib/python3.10/site-packages/sentry_sdk/integrations/django/views.py in sentry_patched_render(41)
  return old_render(self)

/home/youser/.local/share/virtualenvs/news-site-columnist-8tsXn7bh/lib/python3.10/site-packages/django/template/response.py in render(114)
  self.content = self.rendered_content

/home/youser/.local/share/virtualenvs/news-site-columnist-8tsXn7bh/lib/python3.10/site-packages/sentry_sdk/utils.py in runner(1864)
  return sentry_patched_function(*args, **kwargs)

/home/youser/.local/share/virtualenvs/news-site-columnist-8tsXn7bh/lib/python3.10/site-packages/sentry_sdk/integrations/django/templates.py in rendered_content(77)
  return real_rendered_content.fget(self)

/home/youser/.local/share/virtualenvs/news-site-columnist-8tsXn7bh/lib/python3.10/site-packages/django/template/response.py in rendered_content(92)
  return template.render(context, self._request)

/home/youser/.local/share/virtualenvs/news-site-columnist-8tsXn7bh/lib/python3.10/site-packages/django/template/backends/django.py in render(61)
  return self.template.render(context)

/home/youser/.local/share/virtualenvs/news-site-columnist-8tsXn7bh/lib/python3.10/site-packages/template_timings_panel/panels/TemplateTimings.py in timing_hook(139)
  result = func(self, *args, **kwargs)

/home/youser/.local/share/virtualenvs/news-site-columnist-8tsXn7bh/lib/python3.10/site-packages/django/template/base.py in render(175)
  return self._render(context)

/home/youser/.local/share/virtualenvs/news-site-columnist-8tsXn7bh/lib/python3.10/site-packages/django/test/utils.py in instrumented_test_render(112)
  return self.nodelist.render(context)

/home/youser/.local/share/virtualenvs/news-site-columnist-8tsXn7bh/lib/python3.10/site-packages/django/template/base.py in render(1005)
  return SafeString("".join([node.render_annotated(context) for node in self]))

/home/youser/.local/share/virtualenvs/news-site-columnist-8tsXn7bh/lib/python3.10/site-packages/django/template/base.py in <listcomp>(1005)
  return SafeString("".join([node.render_annotated(context) for node in self]))

/home/youser/.local/share/virtualenvs/news-site-columnist-8tsXn7bh/lib/python3.10/site-packages/django/template/base.py in render_annotated(966)
  return self.render(context)

/home/youser/.local/share/virtualenvs/news-site-columnist-8tsXn7bh/lib/python3.10/site-packages/django/template/loader_tags.py in render(157)
  return compiled_parent._render(context)

/home/youser/.local/share/virtualenvs/news-site-columnist-8tsXn7bh/lib/python3.10/site-packages/django/test/utils.py in instrumented_test_render(112)
  return self.nodelist.render(context)

/home/youser/.local/share/virtualenvs/news-site-columnist-8tsXn7bh/lib/python3.10/site-packages/django/template/base.py in render(1005)
  return SafeString("".join([node.render_annotated(context) for node in self]))

/home/youser/.local/share/virtualenvs/news-site-columnist-8tsXn7bh/lib/python3.10/site-packages/django/template/base.py in <listcomp>(1005)
  return SafeString("".join([node.render_annotated(context) for node in self]))

/home/youser/.local/share/virtualenvs/news-site-columnist-8tsXn7bh/lib/python3.10/site-packages/django/template/base.py in render_annotated(966)
  return self.render(context)

/home/youser/.local/share/virtualenvs/news-site-columnist-8tsXn7bh/lib/python3.10/site-packages/template_timings_panel/panels/TemplateTimings.py in timing_hook(139)
  result = func(self, *args, **kwargs)

/home/youser/.local/share/virtualenvs/news-site-columnist-8tsXn7bh/lib/python3.10/site-packages/django/template/loader_tags.py in render(63)
  result = block.nodelist.render(context)

/home/youser/.local/share/virtualenvs/news-site-columnist-8tsXn7bh/lib/python3.10/site-packages/django/template/base.py in render(1005)
  return SafeString("".join([node.render_annotated(context) for node in self]))

/home/youser/.local/share/virtualenvs/news-site-columnist-8tsXn7bh/lib/python3.10/site-packages/django/template/base.py in <listcomp>(1005)
  return SafeString("".join([node.render_annotated(context) for node in self]))

/home/youser/.local/share/virtualenvs/news-site-columnist-8tsXn7bh/lib/python3.10/site-packages/django/template/base.py in render_annotated(966)
  return self.render(context)

/home/youser/.local/share/virtualenvs/news-site-columnist-8tsXn7bh/lib/python3.10/site-packages/template_timings_panel/panels/TemplateTimings.py in timing_hook(139)
  result = func(self, *args, **kwargs)

/home/youser/.local/share/virtualenvs/news-site-columnist-8tsXn7bh/lib/python3.10/site-packages/django/template/loader_tags.py in render(63)
  result = block.nodelist.render(context)

/home/youser/.local/share/virtualenvs/news-site-columnist-8tsXn7bh/lib/python3.10/site-packages/django/template/base.py in render(1005)
  return SafeString("".join([node.render_annotated(context) for node in self]))

/home/youser/.local/share/virtualenvs/news-site-columnist-8tsXn7bh/lib/python3.10/site-packages/django/template/base.py in <listcomp>(1005)
  return SafeString("".join([node.render_annotated(context) for node in self]))

/home/youser/.local/share/virtualenvs/news-site-columnist-8tsXn7bh/lib/python3.10/site-packages/django/template/base.py in render_annotated(966)
  return self.render(context)

/home/youser/.local/share/virtualenvs/news-site-columnist-8tsXn7bh/lib/python3.10/site-packages/django/template/loader_tags.py in render(208)
  return template.render(context)

/home/youser/.local/share/virtualenvs/news-site-columnist-8tsXn7bh/lib/python3.10/site-packages/template_timings_panel/panels/TemplateTimings.py in timing_hook(139)
  result = func(self, *args, **kwargs)

/home/youser/.local/share/virtualenvs/news-site-columnist-8tsXn7bh/lib/python3.10/site-packages/django/template/base.py in render(177)
  return self._render(context)

/home/youser/.local/share/virtualenvs/news-site-columnist-8tsXn7bh/lib/python3.10/site-packages/django/test/utils.py in instrumented_test_render(112)
  return self.nodelist.render(context)

/home/youser/.local/share/virtualenvs/news-site-columnist-8tsXn7bh/lib/python3.10/site-packages/django/template/base.py in render(1005)
  return SafeString("".join([node.render_annotated(context) for node in self]))

/home/youser/.local/share/virtualenvs/news-site-columnist-8tsXn7bh/lib/python3.10/site-packages/django/template/base.py in <listcomp>(1005)
  return SafeString("".join([node.render_annotated(context) for node in self]))

/home/youser/.local/share/virtualenvs/news-site-columnist-8tsXn7bh/lib/python3.10/site-packages/django/template/base.py in render_annotated(966)
  return self.render(context)

/home/youser/.local/share/virtualenvs/news-site-columnist-8tsXn7bh/lib/python3.10/site-packages/django/template/defaulttags.py in render(321)
  return nodelist.render(context)

/home/youser/.local/share/virtualenvs/news-site-columnist-8tsXn7bh/lib/python3.10/site-packages/django/template/base.py in render(1005)
  return SafeString("".join([node.render_annotated(context) for node in self]))

/home/youser/.local/share/virtualenvs/news-site-columnist-8tsXn7bh/lib/python3.10/site-packages/django/template/base.py in <listcomp>(1005)
  return SafeString("".join([node.render_annotated(context) for node in self]))

/home/youser/.local/share/virtualenvs/news-site-columnist-8tsXn7bh/lib/python3.10/site-packages/django/template/base.py in render_annotated(966)
  return self.render(context)

/home/youser/.local/share/virtualenvs/news-site-columnist-8tsXn7bh/lib/python3.10/site-packages/django/template/loader_tags.py in render(208)
  return template.render(context)

/home/youser/.local/share/virtualenvs/news-site-columnist-8tsXn7bh/lib/python3.10/site-packages/template_timings_panel/panels/TemplateTimings.py in timing_hook(139)
  result = func(self, *args, **kwargs)

/home/youser/.local/share/virtualenvs/news-site-columnist-8tsXn7bh/lib/python3.10/site-packages/django/template/base.py in render(177)
  return self._render(context)

/home/youser/.local/share/virtualenvs/news-site-columnist-8tsXn7bh/lib/python3.10/site-packages/django/test/utils.py in instrumented_test_render(112)
  return self.nodelist.render(context)

/home/youser/.local/share/virtualenvs/news-site-columnist-8tsXn7bh/lib/python3.10/site-packages/django/template/base.py in render(1005)
  return SafeString("".join([node.render_annotated(context) for node in self]))

/home/youser/.local/share/virtualenvs/news-site-columnist-8tsXn7bh/lib/python3.10/site-packages/django/template/base.py in <listcomp>(1005)
  return SafeString("".join([node.render_annotated(context) for node in self]))

/home/youser/.local/share/virtualenvs/news-site-columnist-8tsXn7bh/lib/python3.10/site-packages/django/template/base.py in render_annotated(966)
  return self.render(context)

/home/youser/.local/share/virtualenvs/news-site-columnist-8tsXn7bh/lib/python3.10/site-packages/django/template/defaulttags.py in render(314)
  match = condition.eval(context)

/home/youser/.local/share/virtualenvs/news-site-columnist-8tsXn7bh/lib/python3.10/site-packages/django/template/smartif.py in eval(60)
  return func(context, self.first, self.second)

/home/youser/.local/share/virtualenvs/news-site-columnist-8tsXn7bh/lib/python3.10/site-packages/django/template/smartif.py in <lambda>(106)
  ">": infix(10, lambda context, x, y: x.eval(context) > y.eval(context)),

/home/youser/.local/share/virtualenvs/news-site-columnist-8tsXn7bh/lib/python3.10/site-packages/django/template/defaulttags.py in eval(877)
  return self.value.resolve(context, ignore_failures=True)

/home/youser/.local/share/virtualenvs/news-site-columnist-8tsXn7bh/lib/python3.10/site-packages/django/template/base.py in resolve(742)
  new_obj = func(obj, *arg_vals)

/home/youser/.local/share/virtualenvs/news-site-columnist-8tsXn7bh/lib/python3.10/site-packages/django/template/defaultfilters.py in length(609)
  return len(value)

38 {% endif %}
39 </span>
40 <div class="article-author__preparedBy_items">
41 {% if post.authors.all|length > 1 %}
42 {% for author in post.authors.all %}
43 <a href='{{ author.news_author.get_absolute_url }}'>{{ author.news_author.name }}</a>
44 {% if not forloop.last %}
45 <span>{% trans "та" %}</span>

/var/www/news-site-columnist/news/templates/new-design/components/article/article-author.html

SELECT "category"."id",
       "category"."created_at",
       "category"."updated_at",
       "category"."seo_title",
       "category"."seo_title_uk",
       "category"."seo_title_en",
       "category"."seo_title_ru",
       "category"."seo_description",
       "category"."seo_description_uk",
       "category"."seo_description_en",
       "category"."seo_description_ru",
       "category"."seo_keywords",
       "category"."seo_keywords_uk",
       "category"."seo_keywords_en",
       "category"."seo_keywords_ru",
       "category"."seo_header_one",
       "category"."seo_header_one_uk",
       "category"."seo_header_one_en",
       "category"."seo_header_one_ru",
       "category"."seo_news_title",
       "category"."seo_news_title_uk",
       "category"."seo_news_title_en",
       "category"."seo_news_title_ru",
       "category"."seo_news_description",
       "category"."seo_news_description_uk",
       "category"."seo_news_description_en",
       "category"."seo_news_description_ru",
       "category"."subdomain",
       "category"."parent_id",
       "category"."image",
       "category"."is_active",
       "category"."is_rss_active",
       "category"."is_interesting",
       "category"."ticker_rss_active",
       "category"."show_home",
       "category"."show_home_en",
       "category"."show_video",
       "category"."show_menu",
       "category"."show_menu_uk",
       "category"."show_menu_en",
       "category"."show_menu_ru",
       "category"."show_footer",
       "category"."show_menu_in_en",
       "category"."show_footer_in_en",
       "category"."show_in_search",
       "category"."show_in_header",
       "category"."show_in_header_uk",
       "category"."show_in_header_en",
       "category"."show_in_header_ru",
       "category"."seo_tag_id",
       "category"."sort_weight",
       "category"."sort_weight_en",
       "category"."header_sort_weight",
       "category"."header_sort_weight_uk",
       "category"."header_sort_weight_en",
       "category"."header_sort_weight_ru",
       "category"."footer_sort_weight",
       "category"."menu_sort_weight",
       "category"."name",
       "category"."name_uk",
       "category"."name_en",
       "category"."name_ru",
       "category"."slug",
       "category"."description",
       "category"."description_uk",
       "category"."description_en",
       "category"."description_ru",
       "category"."fb_link",
       "category"."tg_link",
       "category"."show_banner",
       "category"."uk_has_translation",
       "category"."ru_has_translation",
       "category"."en_has_translation",
       "category"."has_infinite_scroll",
       "category"."_show_home_without_subdomain",
       "category"."_show_home_without_subdomain_en",
       "category"."background_id",
       "category"."use_old_design",
       "category"."use_old_design_for_posts",
       "category"."is_context_category",
       "category"."show_stories_on_main",
       "category"."show_posts_table_of_contents",
       "category"."svg_icon"
  FROM "category"
 WHERE ("category"."uk_has_translation" AND NOT "category"."is_context_category" AND "category"."is_active" AND "category"."parent_id" IS NULL AND "category"."show_footer")
 ORDER BY "category"."footer_sort_weight" DESC,
          "category"."name_uk" ASC
SELECT ••• FROM "category" WHERE ("category"."uk_has_translation" AND NOT "category"."is_context_category" AND "category"."is_active" AND "category"."parent_id" IS NULL AND "category"."show_footer") ORDER BY "category"."footer_sort_weight" DESC, "category"."name_uk" ASC
1,09

Connection: default

Transaction status: Idle

/home/youser/.local/share/virtualenvs/news-site-columnist-8tsXn7bh/bin/gunicorn in <module>(8)
  sys.exit(run())

/home/youser/.local/share/virtualenvs/news-site-columnist-8tsXn7bh/lib/python3.10/site-packages/gunicorn/app/wsgiapp.py in run(66)
  WSGIApplication("%(prog)s [OPTIONS] [APP_MODULE]", prog=prog).run()

/home/youser/.local/share/virtualenvs/news-site-columnist-8tsXn7bh/lib/python3.10/site-packages/gunicorn/app/base.py in run(235)
  super().run()

/home/youser/.local/share/virtualenvs/news-site-columnist-8tsXn7bh/lib/python3.10/site-packages/gunicorn/app/base.py in run(71)
  Arbiter(self).run()

/home/youser/.local/share/virtualenvs/news-site-columnist-8tsXn7bh/lib/python3.10/site-packages/gunicorn/arbiter.py in run(210)
  self.manage_workers()

/home/youser/.local/share/virtualenvs/news-site-columnist-8tsXn7bh/lib/python3.10/site-packages/gunicorn/arbiter.py in manage_workers(570)
  self.spawn_workers()

/home/youser/.local/share/virtualenvs/news-site-columnist-8tsXn7bh/lib/python3.10/site-packages/gunicorn/arbiter.py in spawn_workers(641)
  self.spawn_worker()

/home/youser/.local/share/virtualenvs/news-site-columnist-8tsXn7bh/lib/python3.10/site-packages/gunicorn/arbiter.py in spawn_worker(608)
  worker.init_process()

/home/youser/.local/share/virtualenvs/news-site-columnist-8tsXn7bh/lib/python3.10/site-packages/gunicorn/workers/base.py in init_process(143)
  self.run()

/home/youser/.local/share/virtualenvs/news-site-columnist-8tsXn7bh/lib/python3.10/site-packages/gunicorn/workers/sync.py in run(125)
  self.run_for_one(timeout)

/home/youser/.local/share/virtualenvs/news-site-columnist-8tsXn7bh/lib/python3.10/site-packages/gunicorn/workers/sync.py in run_for_one(69)
  self.accept(listener)

/home/youser/.local/share/virtualenvs/news-site-columnist-8tsXn7bh/lib/python3.10/site-packages/gunicorn/workers/sync.py in accept(31)
  self.handle(listener, client, addr)

/home/youser/.local/share/virtualenvs/news-site-columnist-8tsXn7bh/lib/python3.10/site-packages/gunicorn/workers/sync.py in handle(134)
  self.handle_request(listener, req, client, addr)

/home/youser/.local/share/virtualenvs/news-site-columnist-8tsXn7bh/lib/python3.10/site-packages/gunicorn/workers/sync.py in handle_request(177)
  respiter = self.wsgi(environ, resp.start_response)

/home/youser/.local/share/virtualenvs/news-site-columnist-8tsXn7bh/lib/python3.10/site-packages/sentry_sdk/utils.py in runner(1864)
  return sentry_patched_function(*args, **kwargs)

/home/youser/.local/share/virtualenvs/news-site-columnist-8tsXn7bh/lib/python3.10/site-packages/sentry_sdk/integrations/django/__init__.py in sentry_patched_wsgi_handler(191)
  return middleware(environ, start_response)

/home/youser/.local/share/virtualenvs/news-site-columnist-8tsXn7bh/lib/python3.10/site-packages/sentry_sdk/integrations/wsgi.py in __call__(132)
  response = self.app(

/home/youser/.local/share/virtualenvs/news-site-columnist-8tsXn7bh/lib/python3.10/site-packages/sentry_sdk/integrations/django/__init__.py in sentry_patched_get_response(478)
  rv = old_get_response(self, request)

/home/youser/.local/share/virtualenvs/news-site-columnist-8tsXn7bh/lib/python3.10/site-packages/sentry_sdk/integrations/django/middleware.py in __call__(177)
  return f(*args, **kwargs)

/home/youser/.local/share/virtualenvs/news-site-columnist-8tsXn7bh/lib/python3.10/site-packages/sentry_sdk/integrations/django/middleware.py in __call__(177)
  return f(*args, **kwargs)

/var/www/news-site-columnist/redirects/middleware/redirect_middleware.py in __call__(17)
  return self.get_response(request)

/home/youser/.local/share/virtualenvs/news-site-columnist-8tsXn7bh/lib/python3.10/site-packages/sentry_sdk/integrations/django/middleware.py in __call__(177)
  return f(*args, **kwargs)

/home/youser/.local/share/virtualenvs/news-site-columnist-8tsXn7bh/lib/python3.10/site-packages/sentry_sdk/integrations/django/middleware.py in __call__(177)
  return f(*args, **kwargs)

/home/youser/.local/share/virtualenvs/news-site-columnist-8tsXn7bh/lib/python3.10/site-packages/sentry_sdk/integrations/django/middleware.py in __call__(177)
  return f(*args, **kwargs)

/home/youser/.local/share/virtualenvs/news-site-columnist-8tsXn7bh/lib/python3.10/site-packages/sentry_sdk/integrations/django/middleware.py in __call__(177)
  return f(*args, **kwargs)

/home/youser/.local/share/virtualenvs/news-site-columnist-8tsXn7bh/lib/python3.10/site-packages/corsheaders/middleware.py in __call__(53)
  result = self.get_response(request)

/home/youser/.local/share/virtualenvs/news-site-columnist-8tsXn7bh/lib/python3.10/site-packages/sentry_sdk/integrations/django/middleware.py in __call__(177)
  return f(*args, **kwargs)

/home/youser/.local/share/virtualenvs/news-site-columnist-8tsXn7bh/lib/python3.10/site-packages/django_user_agents/middleware.py in __call__(14)
  return self.get_response(request)

/home/youser/.local/share/virtualenvs/news-site-columnist-8tsXn7bh/lib/python3.10/site-packages/sentry_sdk/integrations/django/middleware.py in __call__(177)
  return f(*args, **kwargs)

/home/youser/.local/share/virtualenvs/news-site-columnist-8tsXn7bh/lib/python3.10/site-packages/sentry_sdk/integrations/django/middleware.py in __call__(177)
  return f(*args, **kwargs)

/home/youser/.local/share/virtualenvs/news-site-columnist-8tsXn7bh/lib/python3.10/site-packages/sentry_sdk/integrations/django/middleware.py in __call__(177)
  return f(*args, **kwargs)

/home/youser/.local/share/virtualenvs/news-site-columnist-8tsXn7bh/lib/python3.10/site-packages/sentry_sdk/integrations/django/middleware.py in __call__(177)
  return f(*args, **kwargs)

/home/youser/.local/share/virtualenvs/news-site-columnist-8tsXn7bh/lib/python3.10/site-packages/sentry_sdk/integrations/django/middleware.py in __call__(177)
  return f(*args, **kwargs)

/home/youser/.local/share/virtualenvs/news-site-columnist-8tsXn7bh/lib/python3.10/site-packages/sentry_sdk/integrations/django/middleware.py in __call__(177)
  return f(*args, **kwargs)

/home/youser/.local/share/virtualenvs/news-site-columnist-8tsXn7bh/lib/python3.10/site-packages/sentry_sdk/integrations/django/middleware.py in __call__(177)
  return f(*args, **kwargs)

/home/youser/.local/share/virtualenvs/news-site-columnist-8tsXn7bh/lib/python3.10/site-packages/sentry_sdk/integrations/django/middleware.py in __call__(177)
  return f(*args, **kwargs)

/var/www/news-site-columnist/news/middleware/subdomain_middleare.py in __call__(22)
  response = self.get_response(request)

/home/youser/.local/share/virtualenvs/news-site-columnist-8tsXn7bh/lib/python3.10/site-packages/sentry_sdk/integrations/django/views.py in sentry_patched_render(41)
  return old_render(self)

/home/youser/.local/share/virtualenvs/news-site-columnist-8tsXn7bh/lib/python3.10/site-packages/django/template/response.py in render(114)
  self.content = self.rendered_content

/home/youser/.local/share/virtualenvs/news-site-columnist-8tsXn7bh/lib/python3.10/site-packages/sentry_sdk/utils.py in runner(1864)
  return sentry_patched_function(*args, **kwargs)

/home/youser/.local/share/virtualenvs/news-site-columnist-8tsXn7bh/lib/python3.10/site-packages/sentry_sdk/integrations/django/templates.py in rendered_content(77)
  return real_rendered_content.fget(self)

/home/youser/.local/share/virtualenvs/news-site-columnist-8tsXn7bh/lib/python3.10/site-packages/django/template/response.py in rendered_content(92)
  return template.render(context, self._request)

/home/youser/.local/share/virtualenvs/news-site-columnist-8tsXn7bh/lib/python3.10/site-packages/django/template/backends/django.py in render(61)
  return self.template.render(context)

/home/youser/.local/share/virtualenvs/news-site-columnist-8tsXn7bh/lib/python3.10/site-packages/template_timings_panel/panels/TemplateTimings.py in timing_hook(139)
  result = func(self, *args, **kwargs)

/home/youser/.local/share/virtualenvs/news-site-columnist-8tsXn7bh/lib/python3.10/site-packages/django/template/base.py in render(175)
  return self._render(context)

/home/youser/.local/share/virtualenvs/news-site-columnist-8tsXn7bh/lib/python3.10/site-packages/django/test/utils.py in instrumented_test_render(112)
  return self.nodelist.render(context)

/home/youser/.local/share/virtualenvs/news-site-columnist-8tsXn7bh/lib/python3.10/site-packages/django/template/base.py in render(1005)
  return SafeString("".join([node.render_annotated(context) for node in self]))

/home/youser/.local/share/virtualenvs/news-site-columnist-8tsXn7bh/lib/python3.10/site-packages/django/template/base.py in <listcomp>(1005)
  return SafeString("".join([node.render_annotated(context) for node in self]))

/home/youser/.local/share/virtualenvs/news-site-columnist-8tsXn7bh/lib/python3.10/site-packages/django/template/base.py in render_annotated(966)
  return self.render(context)

/home/youser/.local/share/virtualenvs/news-site-columnist-8tsXn7bh/lib/python3.10/site-packages/django/template/loader_tags.py in render(157)
  return compiled_parent._render(context)

/home/youser/.local/share/virtualenvs/news-site-columnist-8tsXn7bh/lib/python3.10/site-packages/django/test/utils.py in instrumented_test_render(112)
  return self.nodelist.render(context)

/home/youser/.local/share/virtualenvs/news-site-columnist-8tsXn7bh/lib/python3.10/site-packages/django/template/base.py in render(1005)
  return SafeString("".join([node.render_annotated(context) for node in self]))

/home/youser/.local/share/virtualenvs/news-site-columnist-8tsXn7bh/lib/python3.10/site-packages/django/template/base.py in <listcomp>(1005)
  return SafeString("".join([node.render_annotated(context) for node in self]))

/home/youser/.local/share/virtualenvs/news-site-columnist-8tsXn7bh/lib/python3.10/site-packages/django/template/base.py in render_annotated(966)
  return self.render(context)

/home/youser/.local/share/virtualenvs/news-site-columnist-8tsXn7bh/lib/python3.10/site-packages/django/template/loader_tags.py in render(208)
  return template.render(context)

/home/youser/.local/share/virtualenvs/news-site-columnist-8tsXn7bh/lib/python3.10/site-packages/template_timings_panel/panels/TemplateTimings.py in timing_hook(139)
  result = func(self, *args, **kwargs)

/home/youser/.local/share/virtualenvs/news-site-columnist-8tsXn7bh/lib/python3.10/site-packages/django/template/base.py in render(177)
  return self._render(context)

/home/youser/.local/share/virtualenvs/news-site-columnist-8tsXn7bh/lib/python3.10/site-packages/django/test/utils.py in instrumented_test_render(112)
  return self.nodelist.render(context)

/home/youser/.local/share/virtualenvs/news-site-columnist-8tsXn7bh/lib/python3.10/site-packages/django/template/base.py in render(1005)
  return SafeString("".join([node.render_annotated(context) for node in self]))

/home/youser/.local/share/virtualenvs/news-site-columnist-8tsXn7bh/lib/python3.10/site-packages/django/template/base.py in <listcomp>(1005)
  return SafeString("".join([node.render_annotated(context) for node in self]))

/home/youser/.local/share/virtualenvs/news-site-columnist-8tsXn7bh/lib/python3.10/site-packages/django/template/base.py in render_annotated(966)
  return self.render(context)

/home/youser/.local/share/virtualenvs/news-site-columnist-8tsXn7bh/lib/python3.10/site-packages/django/template/defaulttags.py in render(194)
  len_values = len(values)

4 <div class="footer__firstBlock">
5 <div class="container">
6 <div class="footer__grid footer__grid_bordered footer-show-more">
7 {% for p_category in parent_categories %}
8 <div class="footer__grid-col">
9 <a href="{{ p_category.get_absolute_url }}" class="footer__title hover-dark-text">{{ p_category.name }}</a>
10 {% if p_category.subcategories.all|length > 0 %}
11 <div class="footer__subitems">

/var/www/news-site-columnist/news/templates/new-design/components/footer.html

SELECT "category"."id",
       "category"."created_at",
       "category"."updated_at",
       "category"."seo_title",
       "category"."seo_title_uk",
       "category"."seo_title_en",
       "category"."seo_title_ru",
       "category"."seo_description",
       "category"."seo_description_uk",
       "category"."seo_description_en",
       "category"."seo_description_ru",
       "category"."seo_keywords",
       "category"."seo_keywords_uk",
       "category"."seo_keywords_en",
       "category"."seo_keywords_ru",
       "category"."seo_header_one",
       "category"."seo_header_one_uk",
       "category"."seo_header_one_en",
       "category"."seo_header_one_ru",
       "category"."seo_news_title",
       "category"."seo_news_title_uk",
       "category"."seo_news_title_en",
       "category"."seo_news_title_ru",
       "category"."seo_news_description",
       "category"."seo_news_description_uk",
       "category"."seo_news_description_en",
       "category"."seo_news_description_ru",
       "category"."subdomain",
       "category"."parent_id",
       "category"."image",
       "category"."is_active",
       "category"."is_rss_active",
       "category"."is_interesting",
       "category"."ticker_rss_active",
       "category"."show_home",
       "category"."show_home_en",
       "category"."show_video",
       "category"."show_menu",
       "category"."show_menu_uk",
       "category"."show_menu_en",
       "category"."show_menu_ru",
       "category"."show_footer",
       "category"."show_menu_in_en",
       "category"."show_footer_in_en",
       "category"."show_in_search",
       "category"."show_in_header",
       "category"."show_in_header_uk",
       "category"."show_in_header_en",
       "category"."show_in_header_ru",
       "category"."seo_tag_id",
       "category"."sort_weight",
       "category"."sort_weight_en",
       "category"."header_sort_weight",
       "category"."header_sort_weight_uk",
       "category"."header_sort_weight_en",
       "category"."header_sort_weight_ru",
       "category"."footer_sort_weight",
       "category"."menu_sort_weight",
       "category"."name",
       "category"."name_uk",
       "category"."name_en",
       "category"."name_ru",
       "category"."slug",
       "category"."description",
       "category"."description_uk",
       "category"."description_en",
       "category"."description_ru",
       "category"."fb_link",
       "category"."tg_link",
       "category"."show_banner",
       "category"."uk_has_translation",
       "category"."ru_has_translation",
       "category"."en_has_translation",
       "category"."has_infinite_scroll",
       "category"."_show_home_without_subdomain",
       "category"."_show_home_without_subdomain_en",
       "category"."background_id",
       "category"."use_old_design",
       "category"."use_old_design_for_posts",
       "category"."is_context_category",
       "category"."show_stories_on_main",
       "category"."show_posts_table_of_contents",
       "category"."svg_icon"
  FROM "category"
 WHERE ("category"."uk_has_translation" AND NOT "category"."is_context_category" AND "category"."show_footer" AND "category"."is_active" AND "category"."parent_id" IN (78465, 78468, 78445, 78501, 78506, 78514, 78519, 78516, 78504, 78456, 78517, 78466, 43, 78521, 78522, 78515, 78508, 78510, 78518, 78505, 78472, 78523, 78483))
 ORDER BY "category"."footer_sort_weight" DESC
SELECT ••• FROM "category" WHERE ("category"."uk_has_translation" AND NOT "category"."is_context_category" AND "category"."show_footer" AND "category"."is_active" AND "category"."parent_id" IN (78465, 78468, 78445, 78501, 78506, 78514, 78519, 78516, 78504, 78456, 78517, 78466, 43, 78521, 78522, 78515, 78508, 78510, 78518, 78505, 78472, 78523, 78483)) ORDER BY "category"."footer_sort_weight" DESC
0,65

Connection: default

Transaction status: Idle

/home/youser/.local/share/virtualenvs/news-site-columnist-8tsXn7bh/bin/gunicorn in <module>(8)
  sys.exit(run())

/home/youser/.local/share/virtualenvs/news-site-columnist-8tsXn7bh/lib/python3.10/site-packages/gunicorn/app/wsgiapp.py in run(66)
  WSGIApplication("%(prog)s [OPTIONS] [APP_MODULE]", prog=prog).run()

/home/youser/.local/share/virtualenvs/news-site-columnist-8tsXn7bh/lib/python3.10/site-packages/gunicorn/app/base.py in run(235)
  super().run()

/home/youser/.local/share/virtualenvs/news-site-columnist-8tsXn7bh/lib/python3.10/site-packages/gunicorn/app/base.py in run(71)
  Arbiter(self).run()

/home/youser/.local/share/virtualenvs/news-site-columnist-8tsXn7bh/lib/python3.10/site-packages/gunicorn/arbiter.py in run(210)
  self.manage_workers()

/home/youser/.local/share/virtualenvs/news-site-columnist-8tsXn7bh/lib/python3.10/site-packages/gunicorn/arbiter.py in manage_workers(570)
  self.spawn_workers()

/home/youser/.local/share/virtualenvs/news-site-columnist-8tsXn7bh/lib/python3.10/site-packages/gunicorn/arbiter.py in spawn_workers(641)
  self.spawn_worker()

/home/youser/.local/share/virtualenvs/news-site-columnist-8tsXn7bh/lib/python3.10/site-packages/gunicorn/arbiter.py in spawn_worker(608)
  worker.init_process()

/home/youser/.local/share/virtualenvs/news-site-columnist-8tsXn7bh/lib/python3.10/site-packages/gunicorn/workers/base.py in init_process(143)
  self.run()

/home/youser/.local/share/virtualenvs/news-site-columnist-8tsXn7bh/lib/python3.10/site-packages/gunicorn/workers/sync.py in run(125)
  self.run_for_one(timeout)

/home/youser/.local/share/virtualenvs/news-site-columnist-8tsXn7bh/lib/python3.10/site-packages/gunicorn/workers/sync.py in run_for_one(69)
  self.accept(listener)

/home/youser/.local/share/virtualenvs/news-site-columnist-8tsXn7bh/lib/python3.10/site-packages/gunicorn/workers/sync.py in accept(31)
  self.handle(listener, client, addr)

/home/youser/.local/share/virtualenvs/news-site-columnist-8tsXn7bh/lib/python3.10/site-packages/gunicorn/workers/sync.py in handle(134)
  self.handle_request(listener, req, client, addr)

/home/youser/.local/share/virtualenvs/news-site-columnist-8tsXn7bh/lib/python3.10/site-packages/gunicorn/workers/sync.py in handle_request(177)
  respiter = self.wsgi(environ, resp.start_response)

/home/youser/.local/share/virtualenvs/news-site-columnist-8tsXn7bh/lib/python3.10/site-packages/sentry_sdk/utils.py in runner(1864)
  return sentry_patched_function(*args, **kwargs)

/home/youser/.local/share/virtualenvs/news-site-columnist-8tsXn7bh/lib/python3.10/site-packages/sentry_sdk/integrations/django/__init__.py in sentry_patched_wsgi_handler(191)
  return middleware(environ, start_response)

/home/youser/.local/share/virtualenvs/news-site-columnist-8tsXn7bh/lib/python3.10/site-packages/sentry_sdk/integrations/wsgi.py in __call__(132)
  response = self.app(

/home/youser/.local/share/virtualenvs/news-site-columnist-8tsXn7bh/lib/python3.10/site-packages/sentry_sdk/integrations/django/__init__.py in sentry_patched_get_response(478)
  rv = old_get_response(self, request)

/home/youser/.local/share/virtualenvs/news-site-columnist-8tsXn7bh/lib/python3.10/site-packages/sentry_sdk/integrations/django/middleware.py in __call__(177)
  return f(*args, **kwargs)

/home/youser/.local/share/virtualenvs/news-site-columnist-8tsXn7bh/lib/python3.10/site-packages/sentry_sdk/integrations/django/middleware.py in __call__(177)
  return f(*args, **kwargs)

/var/www/news-site-columnist/redirects/middleware/redirect_middleware.py in __call__(17)
  return self.get_response(request)

/home/youser/.local/share/virtualenvs/news-site-columnist-8tsXn7bh/lib/python3.10/site-packages/sentry_sdk/integrations/django/middleware.py in __call__(177)
  return f(*args, **kwargs)

/home/youser/.local/share/virtualenvs/news-site-columnist-8tsXn7bh/lib/python3.10/site-packages/sentry_sdk/integrations/django/middleware.py in __call__(177)
  return f(*args, **kwargs)

/home/youser/.local/share/virtualenvs/news-site-columnist-8tsXn7bh/lib/python3.10/site-packages/sentry_sdk/integrations/django/middleware.py in __call__(177)
  return f(*args, **kwargs)

/home/youser/.local/share/virtualenvs/news-site-columnist-8tsXn7bh/lib/python3.10/site-packages/sentry_sdk/integrations/django/middleware.py in __call__(177)
  return f(*args, **kwargs)

/home/youser/.local/share/virtualenvs/news-site-columnist-8tsXn7bh/lib/python3.10/site-packages/corsheaders/middleware.py in __call__(53)
  result = self.get_response(request)

/home/youser/.local/share/virtualenvs/news-site-columnist-8tsXn7bh/lib/python3.10/site-packages/sentry_sdk/integrations/django/middleware.py in __call__(177)
  return f(*args, **kwargs)

/home/youser/.local/share/virtualenvs/news-site-columnist-8tsXn7bh/lib/python3.10/site-packages/django_user_agents/middleware.py in __call__(14)
  return self.get_response(request)

/home/youser/.local/share/virtualenvs/news-site-columnist-8tsXn7bh/lib/python3.10/site-packages/sentry_sdk/integrations/django/middleware.py in __call__(177)
  return f(*args, **kwargs)

/home/youser/.local/share/virtualenvs/news-site-columnist-8tsXn7bh/lib/python3.10/site-packages/sentry_sdk/integrations/django/middleware.py in __call__(177)
  return f(*args, **kwargs)

/home/youser/.local/share/virtualenvs/news-site-columnist-8tsXn7bh/lib/python3.10/site-packages/sentry_sdk/integrations/django/middleware.py in __call__(177)
  return f(*args, **kwargs)

/home/youser/.local/share/virtualenvs/news-site-columnist-8tsXn7bh/lib/python3.10/site-packages/sentry_sdk/integrations/django/middleware.py in __call__(177)
  return f(*args, **kwargs)

/home/youser/.local/share/virtualenvs/news-site-columnist-8tsXn7bh/lib/python3.10/site-packages/sentry_sdk/integrations/django/middleware.py in __call__(177)
  return f(*args, **kwargs)

/home/youser/.local/share/virtualenvs/news-site-columnist-8tsXn7bh/lib/python3.10/site-packages/sentry_sdk/integrations/django/middleware.py in __call__(177)
  return f(*args, **kwargs)

/home/youser/.local/share/virtualenvs/news-site-columnist-8tsXn7bh/lib/python3.10/site-packages/sentry_sdk/integrations/django/middleware.py in __call__(177)
  return f(*args, **kwargs)

/home/youser/.local/share/virtualenvs/news-site-columnist-8tsXn7bh/lib/python3.10/site-packages/sentry_sdk/integrations/django/middleware.py in __call__(177)
  return f(*args, **kwargs)

/var/www/news-site-columnist/news/middleware/subdomain_middleare.py in __call__(22)
  response = self.get_response(request)

/home/youser/.local/share/virtualenvs/news-site-columnist-8tsXn7bh/lib/python3.10/site-packages/sentry_sdk/integrations/django/views.py in sentry_patched_render(41)
  return old_render(self)

/home/youser/.local/share/virtualenvs/news-site-columnist-8tsXn7bh/lib/python3.10/site-packages/django/template/response.py in render(114)
  self.content = self.rendered_content

/home/youser/.local/share/virtualenvs/news-site-columnist-8tsXn7bh/lib/python3.10/site-packages/sentry_sdk/utils.py in runner(1864)
  return sentry_patched_function(*args, **kwargs)

/home/youser/.local/share/virtualenvs/news-site-columnist-8tsXn7bh/lib/python3.10/site-packages/sentry_sdk/integrations/django/templates.py in rendered_content(77)
  return real_rendered_content.fget(self)

/home/youser/.local/share/virtualenvs/news-site-columnist-8tsXn7bh/lib/python3.10/site-packages/django/template/response.py in rendered_content(92)
  return template.render(context, self._request)

/home/youser/.local/share/virtualenvs/news-site-columnist-8tsXn7bh/lib/python3.10/site-packages/django/template/backends/django.py in render(61)
  return self.template.render(context)

/home/youser/.local/share/virtualenvs/news-site-columnist-8tsXn7bh/lib/python3.10/site-packages/template_timings_panel/panels/TemplateTimings.py in timing_hook(139)
  result = func(self, *args, **kwargs)

/home/youser/.local/share/virtualenvs/news-site-columnist-8tsXn7bh/lib/python3.10/site-packages/django/template/base.py in render(175)
  return self._render(context)

/home/youser/.local/share/virtualenvs/news-site-columnist-8tsXn7bh/lib/python3.10/site-packages/django/test/utils.py in instrumented_test_render(112)
  return self.nodelist.render(context)

/home/youser/.local/share/virtualenvs/news-site-columnist-8tsXn7bh/lib/python3.10/site-packages/django/template/base.py in render(1005)
  return SafeString("".join([node.render_annotated(context) for node in self]))

/home/youser/.local/share/virtualenvs/news-site-columnist-8tsXn7bh/lib/python3.10/site-packages/django/template/base.py in <listcomp>(1005)
  return SafeString("".join([node.render_annotated(context) for node in self]))

/home/youser/.local/share/virtualenvs/news-site-columnist-8tsXn7bh/lib/python3.10/site-packages/django/template/base.py in render_annotated(966)
  return self.render(context)

/home/youser/.local/share/virtualenvs/news-site-columnist-8tsXn7bh/lib/python3.10/site-packages/django/template/loader_tags.py in render(157)
  return compiled_parent._render(context)

/home/youser/.local/share/virtualenvs/news-site-columnist-8tsXn7bh/lib/python3.10/site-packages/django/test/utils.py in instrumented_test_render(112)
  return self.nodelist.render(context)

/home/youser/.local/share/virtualenvs/news-site-columnist-8tsXn7bh/lib/python3.10/site-packages/django/template/base.py in render(1005)
  return SafeString("".join([node.render_annotated(context) for node in self]))

/home/youser/.local/share/virtualenvs/news-site-columnist-8tsXn7bh/lib/python3.10/site-packages/django/template/base.py in <listcomp>(1005)
  return SafeString("".join([node.render_annotated(context) for node in self]))

/home/youser/.local/share/virtualenvs/news-site-columnist-8tsXn7bh/lib/python3.10/site-packages/django/template/base.py in render_annotated(966)
  return self.render(context)

/home/youser/.local/share/virtualenvs/news-site-columnist-8tsXn7bh/lib/python3.10/site-packages/django/template/loader_tags.py in render(208)
  return template.render(context)

/home/youser/.local/share/virtualenvs/news-site-columnist-8tsXn7bh/lib/python3.10/site-packages/template_timings_panel/panels/TemplateTimings.py in timing_hook(139)
  result = func(self, *args, **kwargs)

/home/youser/.local/share/virtualenvs/news-site-columnist-8tsXn7bh/lib/python3.10/site-packages/django/template/base.py in render(177)
  return self._render(context)

/home/youser/.local/share/virtualenvs/news-site-columnist-8tsXn7bh/lib/python3.10/site-packages/django/test/utils.py in instrumented_test_render(112)
  return self.nodelist.render(context)

/home/youser/.local/share/virtualenvs/news-site-columnist-8tsXn7bh/lib/python3.10/site-packages/django/template/base.py in render(1005)
  return SafeString("".join([node.render_annotated(context) for node in self]))

/home/youser/.local/share/virtualenvs/news-site-columnist-8tsXn7bh/lib/python3.10/site-packages/django/template/base.py in <listcomp>(1005)
  return SafeString("".join([node.render_annotated(context) for node in self]))

/home/youser/.local/share/virtualenvs/news-site-columnist-8tsXn7bh/lib/python3.10/site-packages/django/template/base.py in render_annotated(966)
  return self.render(context)

/home/youser/.local/share/virtualenvs/news-site-columnist-8tsXn7bh/lib/python3.10/site-packages/django/template/defaulttags.py in render(194)
  len_values = len(values)

4 <div class="footer__firstBlock">
5 <div class="container">
6 <div class="footer__grid footer__grid_bordered footer-show-more">
7 {% for p_category in parent_categories %}
8 <div class="footer__grid-col">
9 <a href="{{ p_category.get_absolute_url }}" class="footer__title hover-dark-text">{{ p_category.name }}</a>
10 {% if p_category.subcategories.all|length > 0 %}
11 <div class="footer__subitems">

/var/www/news-site-columnist/news/templates/new-design/components/footer.html

Шаблони (оброблено 27)

Template path

  1. /var/www/news-site-columnist/templates

Шаблонів

new-design/single_post.html
/var/www/news-site-columnist/news/templates/new-design/single_post.html
Toggle context {'False': False, 'None': None, 'True': True} {'DEFAULT_MESSAGE_LEVELS': {'DEBUG': 10, 'ERROR': 40, 'INFO': 20, 'SUCCESS': 25, 'WARNING': 30}, 'csrf_token': '<SimpleLazyObject: <function csrf.<locals>._get_val at ' '0x7f289d619d80>>', 'debug': True, 'messages': <SessionStorage: request=<WSGIRequest: GET '/na-lvivshchini-na-mistsi-kolishnoyi-bazi-fk-karpati-zbuduiut-privatnu-shkolu-139383.html'>>, 'perms': PermWrapper(<SimpleLazyObject: <function AuthenticationMiddleware.process_request.<locals>.<lambda> at 0x7f289d61b6d0>>), 'request': '<<request>>', 'sql_queries': <function debug.<locals>.<lambda> at 0x7f289da7b5b0>, 'user': '<SimpleLazyObject: <function ' 'AuthenticationMiddleware.process_request.<locals>.<lambda> at ' '0x7f289d61b6d0>>'} {'LANGUAGES': [('uk', 'Українська'), ('en', 'Англійська'), ('ru', 'Російська')], 'LANGUAGE_CODE': 'uk', 'SELECTED_LANG': 'uk', 'all_posts': '<<multilinguallanguagefilteredpostqueryset of news.Post>>', 'amp_stories': '<<multilingualqueryset of amp_stories.Story>>', 'author_email': '[email protected]', 'languages': [{'bidi': False, 'code': 'uk', 'name': 'Ukrainian', 'name_local': 'Українська', 'name_translated': 'Українська'}, {'bidi': False, 'code': 'en', 'name': 'English', 'name_local': 'English', 'name_translated': 'Англійська'}, {'bidi': False, 'code': 'ru', 'name': 'Russian', 'name_local': 'Русский', 'name_translated': 'Російська'}], 'object': <Post: На Львівщині на місці колишньої бази ФК "Карпати" збудують приватну школу>, 'parent_categories': '<<multilingualqueryset of news.Category>>', 'parent_categories_menu': '<<multilingualqueryset of news.Category>>', 'post': <Post: На Львівщині на місці колишньої бази ФК "Карпати" збудують приватну школу>, 'show_banner': False, 'table_of_contents': '<<queryset of news.PostContentHeading>>', 'tags': '<<multilingualqueryset of news.Tag>>', 'tlp': <VideoPost: Кислиця жорстко висловився щодо переговорів у Стамбулі>, 'use_old_design': False, 'view': <news.views.post.GetPost object at 0x7f289df3bc10>}
news/base.html
/var/www/news-site-columnist/news/templates/news/base.html
Toggle context {'False': False, 'None': None, 'True': True} {'DEFAULT_MESSAGE_LEVELS': {'DEBUG': 10, 'ERROR': 40, 'INFO': 20, 'SUCCESS': 25, 'WARNING': 30}, 'csrf_token': '<SimpleLazyObject: <function csrf.<locals>._get_val at ' '0x7f289d619d80>>', 'debug': True, 'messages': <SessionStorage: request=<WSGIRequest: GET '/na-lvivshchini-na-mistsi-kolishnoyi-bazi-fk-karpati-zbuduiut-privatnu-shkolu-139383.html'>>, 'perms': PermWrapper(<SimpleLazyObject: <function AuthenticationMiddleware.process_request.<locals>.<lambda> at 0x7f289d61b6d0>>), 'request': '<<request>>', 'sql_queries': <function debug.<locals>.<lambda> at 0x7f289da7b5b0>, 'user': '<SimpleLazyObject: <function ' 'AuthenticationMiddleware.process_request.<locals>.<lambda> at ' '0x7f289d61b6d0>>'} {'LANGUAGES': [('uk', 'Українська'), ('en', 'Англійська'), ('ru', 'Російська')], 'LANGUAGE_CODE': 'uk', 'SELECTED_LANG': 'uk', 'all_posts': '<<multilinguallanguagefilteredpostqueryset of news.Post>>', 'amp_stories': '<<multilingualqueryset of amp_stories.Story>>', 'author_email': '[email protected]', 'languages': [{'bidi': False, 'code': 'uk', 'name': 'Ukrainian', 'name_local': 'Українська', 'name_translated': 'Українська'}, {'bidi': False, 'code': 'en', 'name': 'English', 'name_local': 'English', 'name_translated': 'Англійська'}, {'bidi': False, 'code': 'ru', 'name': 'Russian', 'name_local': 'Русский', 'name_translated': 'Російська'}], 'object': <Post: На Львівщині на місці колишньої бази ФК "Карпати" збудують приватну школу>, 'parent_categories': '<<multilingualqueryset of news.Category>>', 'parent_categories_menu': '<<multilingualqueryset of news.Category>>', 'post': <Post: На Львівщині на місці колишньої бази ФК "Карпати" збудують приватну школу>, 'show_banner': False, 'table_of_contents': '<<queryset of news.PostContentHeading>>', 'tags': '<<multilingualqueryset of news.Tag>>', 'tlp': <VideoPost: Кислиця жорстко висловився щодо переговорів у Стамбулі>, 'use_old_design': False, 'view': <news.views.post.GetPost object at 0x7f289df3bc10>}
news/includes/structured_data.html
/var/www/news-site-columnist/news/templates/news/includes/structured_data.html
Toggle context {'False': False, 'None': None, 'True': True} {'DEFAULT_MESSAGE_LEVELS': {'DEBUG': 10, 'ERROR': 40, 'INFO': 20, 'SUCCESS': 25, 'WARNING': 30}, 'csrf_token': '<SimpleLazyObject: <function csrf.<locals>._get_val at ' '0x7f289d619d80>>', 'debug': True, 'messages': <SessionStorage: request=<WSGIRequest: GET '/na-lvivshchini-na-mistsi-kolishnoyi-bazi-fk-karpati-zbuduiut-privatnu-shkolu-139383.html'>>, 'perms': PermWrapper(<SimpleLazyObject: <function AuthenticationMiddleware.process_request.<locals>.<lambda> at 0x7f289d61b6d0>>), 'request': '<<request>>', 'sql_queries': <function debug.<locals>.<lambda> at 0x7f289da7b5b0>, 'user': '<SimpleLazyObject: <function ' 'AuthenticationMiddleware.process_request.<locals>.<lambda> at ' '0x7f289d61b6d0>>'} {'LANGUAGES': [('uk', 'Українська'), ('en', 'Англійська'), ('ru', 'Російська')], 'LANGUAGE_CODE': 'uk', 'SELECTED_LANG': 'uk', 'all_posts': '<<multilinguallanguagefilteredpostqueryset of news.Post>>', 'amp_stories': '<<multilingualqueryset of amp_stories.Story>>', 'author_email': '[email protected]', 'languages': [{'bidi': False, 'code': 'uk', 'name': 'Ukrainian', 'name_local': 'Українська', 'name_translated': 'Українська'}, {'bidi': False, 'code': 'en', 'name': 'English', 'name_local': 'English', 'name_translated': 'Англійська'}, {'bidi': False, 'code': 'ru', 'name': 'Russian', 'name_local': 'Русский', 'name_translated': 'Російська'}], 'object': <Post: На Львівщині на місці колишньої бази ФК "Карпати" збудують приватну школу>, 'parent_categories': '<<multilingualqueryset of news.Category>>', 'parent_categories_menu': '<<multilingualqueryset of news.Category>>', 'post': <Post: На Львівщині на місці колишньої бази ФК "Карпати" збудують приватну школу>, 'show_banner': False, 'table_of_contents': '<<queryset of news.PostContentHeading>>', 'tags': '<<multilingualqueryset of news.Tag>>', 'tlp': <VideoPost: Кислиця жорстко висловився щодо переговорів у Стамбулі>, 'use_old_design': False, 'view': <news.views.post.GetPost object at 0x7f289df3bc10>} {'LANGUAGE_CODE': 'uk', 'block': <Block Node: extrahead. Contents: [<TextNode: '\n '>, <IfNode>, <TextNode: '\n '>, <django.templatetags.i18n.GetCurrentLanguageNode object at 0x7f289e589600>, <TextNode: '\n '>, <django.template.library.SimpleNode object at 0x7f289e58b7f0>, <TextNode: '\n <meta property="og:i'>, <Variable Node: post.image.url>, <TextNode: '">\n <meta name="twitte'>, <Variable Node: post.image.url>, <TextNode: '">\n\n <link rel="amphtm'>, <Variable Node: request.build_absolute_uri>, <TextNode: '/amp">\n\n '>, <Block Node: og_tags. Contents: [<TextNode: '\n <meta property="'>, <Variable Node: post_url>, <TextNode: '"/>\n <meta name="t'>, <Variable Node: post_url>, <TextNode: '">\n\n <meta propert'>, <IfNode>, <TextNode: '"/>\n\n <meta proper'>, <django.template.defaulttags.SpacelessNode object at 0x7f289e58a740>, <TextNode: '"/>\n <meta name="t'>, <django.template.defaulttags.SpacelessNode object at 0x7f289e58a8f0>, <TextNode: '"/>\n\n <meta proper'>, <Variable Node: post.get_seo_image>, <TextNode: '"/>\n <meta name="t'>, <Variable Node: post.get_seo_image>, <TextNode: '"/>\n\n <meta proper'>, <Variable Node: request.LANGUAGE_CODE>, <TextNode: '"/>\n\n <meta proper'>, <Variable Node: post.publish_at|date:'Y-m-d H:i:s'>, <TextNode: '"/>\n <meta propert'>, <Variable Node: post.updated_at|date:'Y-m-d H:i:s'>, <TextNode: '"/>\n\n <meta proper'>, <IncludeNode: template=<FilterExpression '"news/includes/structured_data.html"'>>, <TextNode: '\n\n '>]>, <TextNode: '\n\n '>, <Block Node: base_css. Contents: [<TextNode: '\n '>, <django.template.library.SimpleNode object at 0x7f289e589a20>, <TextNode: '\n '>]>, <TextNode: '\n '>, <Block Node: extra_css_slider_style. Contents: []>, <TextNode: '\n\n\n <script async src='>, <Variable Node: request.build_absolute_uri|remove_query_params>, <TextNode: '",\n page_title'>, <IfNode>, <TextNode: '",\n page_type:'>, <Variable Node: request.LANGUAGE_CODE>, <TextNode: '",\n language_t'>, <Variable Node: request.LANGUAGE_CODE>, <TextNode: '",\n article_pu'>, <Variable Node: post.publish_at|date:'Y-m-d H:i:s'>, <TextNode: '",\n article_au'>, <django.template.defaulttags.SpacelessNode object at 0x7f289e58b4f0>, <TextNode: '\n article_categori'>, <Variable Node: post.category>, <TextNode: '"]\n })\n ;\n '>, <Variable Node: post.id>, <TextNode: '"] = {\n page_u'>, <Variable Node: request.build_absolute_uri|remove_query_params>, <TextNode: '",\n page_title'>, <IfNode>, <TextNode: '",\n page_type:'>, <Variable Node: request.LANGUAGE_CODE>, <TextNode: '",\n language_t'>, <Variable Node: request.LANGUAGE_CODE>, <TextNode: '",\n article_pu'>, <Variable Node: post.publish_at|date:'Y-m-d H:i:s'>, <TextNode: '",\n article_au'>, <django.template.defaulttags.SpacelessNode object at 0x7f289e562f20>, <TextNode: '\n article_cate'>, <Variable Node: post.category>, <TextNode: '"]\n };\n\n wi'>, <Variable Node: post.id>, <TextNode: '"]);\n </script>\n\n \n '>, <django.template.defaulttags.CommentNode object at 0x7f289e563190>, <TextNode: '\n '>, <django.template.library.SimpleNode object at 0x7f289e563520>, <TextNode: '\n\n'>]>, 'post_url': 'https://lviv.novunu.live/na-lvivshchini-na-mistsi-kolishnoyi-bazi-fk-karpati-zbuduiut-privatnu-shkolu-139383.html'} {'block': <Block Node: og_tags. Contents: [<TextNode: '\n <meta property="'>, <Variable Node: post_url>, <TextNode: '"/>\n <meta name="t'>, <Variable Node: post_url>, <TextNode: '">\n\n <meta propert'>, <IfNode>, <TextNode: '"/>\n\n <meta proper'>, <django.template.defaulttags.SpacelessNode object at 0x7f289e58a740>, <TextNode: '"/>\n <meta name="t'>, <django.template.defaulttags.SpacelessNode object at 0x7f289e58a8f0>, <TextNode: '"/>\n\n <meta proper'>, <Variable Node: post.get_seo_image>, <TextNode: '"/>\n <meta name="t'>, <Variable Node: post.get_seo_image>, <TextNode: '"/>\n\n <meta proper'>, <Variable Node: request.LANGUAGE_CODE>, <TextNode: '"/>\n\n <meta proper'>, <Variable Node: post.publish_at|date:'Y-m-d H:i:s'>, <TextNode: '"/>\n <meta propert'>, <Variable Node: post.updated_at|date:'Y-m-d H:i:s'>, <TextNode: '"/>\n\n <meta proper'>, <IncludeNode: template=<FilterExpression '"news/includes/structured_data.html"'>>, <TextNode: '\n\n '>]>} {'post_url': 'https://lviv.novunu.live/na-lvivshchini-na-mistsi-kolishnoyi-bazi-fk-karpati-zbuduiut-privatnu-shkolu-139383.html'}
new-design/components/article-header.html
/var/www/news-site-columnist/news/templates/new-design/components/article-header.html
Toggle context {'False': False, 'None': None, 'True': True} {'DEFAULT_MESSAGE_LEVELS': {'DEBUG': 10, 'ERROR': 40, 'INFO': 20, 'SUCCESS': 25, 'WARNING': 30}, 'csrf_token': '<SimpleLazyObject: <function csrf.<locals>._get_val at ' '0x7f289d619d80>>', 'debug': True, 'messages': <SessionStorage: request=<WSGIRequest: GET '/na-lvivshchini-na-mistsi-kolishnoyi-bazi-fk-karpati-zbuduiut-privatnu-shkolu-139383.html'>>, 'perms': PermWrapper(<SimpleLazyObject: <function AuthenticationMiddleware.process_request.<locals>.<lambda> at 0x7f289d61b6d0>>), 'request': '<<request>>', 'sql_queries': <function debug.<locals>.<lambda> at 0x7f289da7b5b0>, 'user': '<SimpleLazyObject: <function ' 'AuthenticationMiddleware.process_request.<locals>.<lambda> at ' '0x7f289d61b6d0>>'} {'LANGUAGES': [('uk', 'Українська'), ('en', 'Англійська'), ('ru', 'Російська')], 'LANGUAGE_CODE': 'uk', 'SELECTED_LANG': 'uk', 'all_posts': '<<multilinguallanguagefilteredpostqueryset of news.Post>>', 'amp_stories': '<<multilingualqueryset of amp_stories.Story>>', 'author_email': '[email protected]', 'languages': [{'bidi': False, 'code': 'uk', 'name': 'Ukrainian', 'name_local': 'Українська', 'name_translated': 'Українська'}, {'bidi': False, 'code': 'en', 'name': 'English', 'name_local': 'English', 'name_translated': 'Англійська'}, {'bidi': False, 'code': 'ru', 'name': 'Russian', 'name_local': 'Русский', 'name_translated': 'Російська'}], 'object': <Post: На Львівщині на місці колишньої бази ФК "Карпати" збудують приватну школу>, 'parent_categories': '<<multilingualqueryset of news.Category>>', 'parent_categories_menu': '<<multilingualqueryset of news.Category>>', 'post': <Post: На Львівщині на місці колишньої бази ФК "Карпати" збудують приватну школу>, 'show_banner': False, 'table_of_contents': '<<queryset of news.PostContentHeading>>', 'tags': '<<multilingualqueryset of news.Tag>>', 'tlp': <VideoPost: Кислиця жорстко висловився щодо переговорів у Стамбулі>, 'use_old_design': False, 'view': <news.views.post.GetPost object at 0x7f289df3bc10>} {'available_languages': ['uk', 'ru'], 'block': <Block Node: custom_header. Contents: [<TextNode: '\n'>, <django.template.library.SimpleNode object at 0x7f289e563850>, <TextNode: '\n'>, <IncludeNode: template=<FilterExpression '"new-design/components/article-header.html"'>>, <TextNode: '\n'>, <IncludeNode: template=<FilterExpression '"new-design/components/hot-line.html"'>>, <TextNode: '\n'>]>} {'LANGUAGE_CODE': 'uk', 'available_languages': ['uk', 'ru'], 'navigation_items': [{'is_region': True, 'link': 'https://ukrayina.novunu.live/', 'name': 'Україна'}, {'link': '/news/', 'name': 'Новини'}, {'link': 'https://novunu.live/context/', 'name': 'Контекст'}], 'support_button_link': 'https://t.me/SlipioCkUa/4132'}
new-design/components/header.html
/var/www/news-site-columnist/news/templates/new-design/components/header.html
Toggle context {'False': False, 'None': None, 'True': True} {'DEFAULT_MESSAGE_LEVELS': {'DEBUG': 10, 'ERROR': 40, 'INFO': 20, 'SUCCESS': 25, 'WARNING': 30}, 'csrf_token': '<SimpleLazyObject: <function csrf.<locals>._get_val at ' '0x7f289d619d80>>', 'debug': True, 'messages': <SessionStorage: request=<WSGIRequest: GET '/na-lvivshchini-na-mistsi-kolishnoyi-bazi-fk-karpati-zbuduiut-privatnu-shkolu-139383.html'>>, 'perms': PermWrapper(<SimpleLazyObject: <function AuthenticationMiddleware.process_request.<locals>.<lambda> at 0x7f289d61b6d0>>), 'request': '<<request>>', 'sql_queries': <function debug.<locals>.<lambda> at 0x7f289da7b5b0>, 'user': '<SimpleLazyObject: <function ' 'AuthenticationMiddleware.process_request.<locals>.<lambda> at ' '0x7f289d61b6d0>>'} {'LANGUAGES': [('uk', 'Українська'), ('en', 'Англійська'), ('ru', 'Російська')], 'LANGUAGE_CODE': 'uk', 'SELECTED_LANG': 'uk', 'all_posts': '<<multilinguallanguagefilteredpostqueryset of news.Post>>', 'amp_stories': '<<multilingualqueryset of amp_stories.Story>>', 'author_email': '[email protected]', 'languages': [{'bidi': False, 'code': 'uk', 'name': 'Ukrainian', 'name_local': 'Українська', 'name_translated': 'Українська'}, {'bidi': False, 'code': 'en', 'name': 'English', 'name_local': 'English', 'name_translated': 'Англійська'}, {'bidi': False, 'code': 'ru', 'name': 'Russian', 'name_local': 'Русский', 'name_translated': 'Російська'}], 'object': <Post: На Львівщині на місці колишньої бази ФК "Карпати" збудують приватну школу>, 'parent_categories': '<<multilingualqueryset of news.Category>>', 'parent_categories_menu': '<<multilingualqueryset of news.Category>>', 'post': <Post: На Львівщині на місці колишньої бази ФК "Карпати" збудують приватну школу>, 'show_banner': False, 'table_of_contents': '<<queryset of news.PostContentHeading>>', 'tags': '<<multilingualqueryset of news.Tag>>', 'tlp': <VideoPost: Кислиця жорстко висловився щодо переговорів у Стамбулі>, 'use_old_design': False, 'view': <news.views.post.GetPost object at 0x7f289df3bc10>} {'available_languages': ['uk', 'ru'], 'block': <Block Node: custom_header. Contents: [<TextNode: '\n'>, <django.template.library.SimpleNode object at 0x7f289e563850>, <TextNode: '\n'>, <IncludeNode: template=<FilterExpression '"new-design/components/article-header.html"'>>, <TextNode: '\n'>, <IncludeNode: template=<FilterExpression '"new-design/components/hot-line.html"'>>, <TextNode: '\n'>]>} {'LANGUAGE_CODE': 'uk', 'available_languages': ['uk', 'ru'], 'navigation_items': [{'is_region': True, 'link': 'https://ukrayina.novunu.live/', 'name': 'Україна'}, {'link': '/news/', 'name': 'Новини'}, {'link': 'https://novunu.live/context/', 'name': 'Контекст'}], 'support_button_link': 'https://t.me/SlipioCkUa/4132'}
new-design/components/header-popup.html
/var/www/news-site-columnist/news/templates/new-design/components/header-popup.html
Toggle context {'False': False, 'None': None, 'True': True} {'DEFAULT_MESSAGE_LEVELS': {'DEBUG': 10, 'ERROR': 40, 'INFO': 20, 'SUCCESS': 25, 'WARNING': 30}, 'csrf_token': '<SimpleLazyObject: <function csrf.<locals>._get_val at ' '0x7f289d619d80>>', 'debug': True, 'messages': <SessionStorage: request=<WSGIRequest: GET '/na-lvivshchini-na-mistsi-kolishnoyi-bazi-fk-karpati-zbuduiut-privatnu-shkolu-139383.html'>>, 'perms': PermWrapper(<SimpleLazyObject: <function AuthenticationMiddleware.process_request.<locals>.<lambda> at 0x7f289d61b6d0>>), 'request': '<<request>>', 'sql_queries': <function debug.<locals>.<lambda> at 0x7f289da7b5b0>, 'user': '<SimpleLazyObject: <function ' 'AuthenticationMiddleware.process_request.<locals>.<lambda> at ' '0x7f289d61b6d0>>'} {'LANGUAGES': [('uk', 'Українська'), ('en', 'Англійська'), ('ru', 'Російська')], 'LANGUAGE_CODE': 'uk', 'SELECTED_LANG': 'uk', 'all_posts': '<<multilinguallanguagefilteredpostqueryset of news.Post>>', 'amp_stories': '<<multilingualqueryset of amp_stories.Story>>', 'author_email': '[email protected]', 'languages': [{'bidi': False, 'code': 'uk', 'name': 'Ukrainian', 'name_local': 'Українська', 'name_translated': 'Українська'}, {'bidi': False, 'code': 'en', 'name': 'English', 'name_local': 'English', 'name_translated': 'Англійська'}, {'bidi': False, 'code': 'ru', 'name': 'Russian', 'name_local': 'Русский', 'name_translated': 'Російська'}], 'object': <Post: На Львівщині на місці колишньої бази ФК "Карпати" збудують приватну школу>, 'parent_categories': '<<multilingualqueryset of news.Category>>', 'parent_categories_menu': '<<multilingualqueryset of news.Category>>', 'post': <Post: На Львівщині на місці колишньої бази ФК "Карпати" збудують приватну школу>, 'show_banner': False, 'table_of_contents': '<<queryset of news.PostContentHeading>>', 'tags': '<<multilingualqueryset of news.Tag>>', 'tlp': <VideoPost: Кислиця жорстко висловився щодо переговорів у Стамбулі>, 'use_old_design': False, 'view': <news.views.post.GetPost object at 0x7f289df3bc10>} {'available_languages': ['uk', 'ru'], 'block': <Block Node: custom_header. Contents: [<TextNode: '\n'>, <django.template.library.SimpleNode object at 0x7f289e563850>, <TextNode: '\n'>, <IncludeNode: template=<FilterExpression '"new-design/components/article-header.html"'>>, <TextNode: '\n'>, <IncludeNode: template=<FilterExpression '"new-design/components/hot-line.html"'>>, <TextNode: '\n'>]>} {'LANGUAGE_CODE': 'uk', 'available_languages': ['uk', 'ru'], 'navigation_items': [{'is_region': True, 'link': 'https://ukrayina.novunu.live/', 'name': 'Україна'}, {'link': '/news/', 'name': 'Новини'}, {'link': 'https://novunu.live/context/', 'name': 'Контекст'}], 'support_button_link': 'https://t.me/SlipioCkUa/4132'}
new-design/components/search/popular-searches.html
/var/www/news-site-columnist/news/templates/new-design/components/search/popular-searches.html
Toggle context {'False': False, 'None': None, 'True': True} {'DEFAULT_MESSAGE_LEVELS': {'DEBUG': 10, 'ERROR': 40, 'INFO': 20, 'SUCCESS': 25, 'WARNING': 30}, 'csrf_token': '<SimpleLazyObject: <function csrf.<locals>._get_val at ' '0x7f289d619d80>>', 'debug': True, 'messages': <SessionStorage: request=<WSGIRequest: GET '/na-lvivshchini-na-mistsi-kolishnoyi-bazi-fk-karpati-zbuduiut-privatnu-shkolu-139383.html'>>, 'perms': PermWrapper(<SimpleLazyObject: <function AuthenticationMiddleware.process_request.<locals>.<lambda> at 0x7f289d61b6d0>>), 'request': '<<request>>', 'sql_queries': <function debug.<locals>.<lambda> at 0x7f289da7b5b0>, 'user': '<SimpleLazyObject: <function ' 'AuthenticationMiddleware.process_request.<locals>.<lambda> at ' '0x7f289d61b6d0>>'} {'LANGUAGES': [('uk', 'Українська'), ('en', 'Англійська'), ('ru', 'Російська')], 'LANGUAGE_CODE': 'uk', 'SELECTED_LANG': 'uk', 'all_posts': '<<multilinguallanguagefilteredpostqueryset of news.Post>>', 'amp_stories': '<<multilingualqueryset of amp_stories.Story>>', 'author_email': '[email protected]', 'languages': [{'bidi': False, 'code': 'uk', 'name': 'Ukrainian', 'name_local': 'Українська', 'name_translated': 'Українська'}, {'bidi': False, 'code': 'en', 'name': 'English', 'name_local': 'English', 'name_translated': 'Англійська'}, {'bidi': False, 'code': 'ru', 'name': 'Russian', 'name_local': 'Русский', 'name_translated': 'Російська'}], 'object': <Post: На Львівщині на місці колишньої бази ФК "Карпати" збудують приватну школу>, 'parent_categories': '<<multilingualqueryset of news.Category>>', 'parent_categories_menu': '<<multilingualqueryset of news.Category>>', 'post': <Post: На Львівщині на місці колишньої бази ФК "Карпати" збудують приватну школу>, 'show_banner': False, 'table_of_contents': '<<queryset of news.PostContentHeading>>', 'tags': '<<multilingualqueryset of news.Tag>>', 'tlp': <VideoPost: Кислиця жорстко висловився щодо переговорів у Стамбулі>, 'use_old_design': False, 'view': <news.views.post.GetPost object at 0x7f289df3bc10>} {'available_languages': ['uk', 'ru'], 'block': <Block Node: custom_header. Contents: [<TextNode: '\n'>, <django.template.library.SimpleNode object at 0x7f289e563850>, <TextNode: '\n'>, <IncludeNode: template=<FilterExpression '"new-design/components/article-header.html"'>>, <TextNode: '\n'>, <IncludeNode: template=<FilterExpression '"new-design/components/hot-line.html"'>>, <TextNode: '\n'>]>} {'LANGUAGE_CODE': 'uk', 'available_languages': ['uk', 'ru'], 'navigation_items': [{'is_region': True, 'link': 'https://ukrayina.novunu.live/', 'name': 'Україна'}, {'link': '/news/', 'name': 'Новини'}, {'link': 'https://novunu.live/context/', 'name': 'Контекст'}], 'support_button_link': 'https://t.me/SlipioCkUa/4132'} {'categories': '<<multilingualqueryset of news.Category>>', 'navigation_items': [{'is_region': True, 'link': 'https://ukrayina.novunu.live/', 'name': 'Україна'}, {'link': '/news/', 'name': 'Новини'}, {'link': 'https://novunu.live/context/', 'name': 'Контекст'}]} {'chunked_searches': <itertools.zip_longest object at 0x7f289fe05580>, 'class': 'header-popup__searches'}
new-design/components/socials-list.html
/var/www/news-site-columnist/news/templates/new-design/components/socials-list.html
Toggle context {'False': False, 'None': None, 'True': True} {'DEFAULT_MESSAGE_LEVELS': {'DEBUG': 10, 'ERROR': 40, 'INFO': 20, 'SUCCESS': 25, 'WARNING': 30}, 'csrf_token': '<SimpleLazyObject: <function csrf.<locals>._get_val at ' '0x7f289d619d80>>', 'debug': True, 'messages': <SessionStorage: request=<WSGIRequest: GET '/na-lvivshchini-na-mistsi-kolishnoyi-bazi-fk-karpati-zbuduiut-privatnu-shkolu-139383.html'>>, 'perms': PermWrapper(<SimpleLazyObject: <function AuthenticationMiddleware.process_request.<locals>.<lambda> at 0x7f289d61b6d0>>), 'request': '<<request>>', 'sql_queries': <function debug.<locals>.<lambda> at 0x7f289da7b5b0>, 'user': '<SimpleLazyObject: <function ' 'AuthenticationMiddleware.process_request.<locals>.<lambda> at ' '0x7f289d61b6d0>>'} {'LANGUAGES': [('uk', 'Українська'), ('en', 'Англійська'), ('ru', 'Російська')], 'LANGUAGE_CODE': 'uk', 'SELECTED_LANG': 'uk', 'all_posts': '<<multilinguallanguagefilteredpostqueryset of news.Post>>', 'amp_stories': '<<multilingualqueryset of amp_stories.Story>>', 'author_email': '[email protected]', 'languages': [{'bidi': False, 'code': 'uk', 'name': 'Ukrainian', 'name_local': 'Українська', 'name_translated': 'Українська'}, {'bidi': False, 'code': 'en', 'name': 'English', 'name_local': 'English', 'name_translated': 'Англійська'}, {'bidi': False, 'code': 'ru', 'name': 'Russian', 'name_local': 'Русский', 'name_translated': 'Російська'}], 'object': <Post: На Львівщині на місці колишньої бази ФК "Карпати" збудують приватну школу>, 'parent_categories': '<<multilingualqueryset of news.Category>>', 'parent_categories_menu': '<<multilingualqueryset of news.Category>>', 'post': <Post: На Львівщині на місці колишньої бази ФК "Карпати" збудують приватну школу>, 'show_banner': False, 'table_of_contents': '<<queryset of news.PostContentHeading>>', 'tags': '<<multilingualqueryset of news.Tag>>', 'tlp': <VideoPost: Кислиця жорстко висловився щодо переговорів у Стамбулі>, 'use_old_design': False, 'view': <news.views.post.GetPost object at 0x7f289df3bc10>} {'available_languages': ['uk', 'ru'], 'block': <Block Node: custom_header. Contents: [<TextNode: '\n'>, <django.template.library.SimpleNode object at 0x7f289e563850>, <TextNode: '\n'>, <IncludeNode: template=<FilterExpression '"new-design/components/article-header.html"'>>, <TextNode: '\n'>, <IncludeNode: template=<FilterExpression '"new-design/components/hot-line.html"'>>, <TextNode: '\n'>]>} {'LANGUAGE_CODE': 'uk', 'available_languages': ['uk', 'ru'], 'navigation_items': [{'is_region': True, 'link': 'https://ukrayina.novunu.live/', 'name': 'Україна'}, {'link': '/news/', 'name': 'Новини'}, {'link': 'https://novunu.live/context/', 'name': 'Контекст'}], 'support_button_link': 'https://t.me/SlipioCkUa/4132'} {'categories': '<<multilingualqueryset of news.Category>>', 'navigation_items': [{'is_region': True, 'link': 'https://ukrayina.novunu.live/', 'name': 'Україна'}, {'link': '/news/', 'name': 'Новини'}, {'link': 'https://novunu.live/context/', 'name': 'Контекст'}]}
new-design/components/hot-line.html
/var/www/news-site-columnist/news/templates/new-design/components/hot-line.html
Toggle context {'False': False, 'None': None, 'True': True} {'DEFAULT_MESSAGE_LEVELS': {'DEBUG': 10, 'ERROR': 40, 'INFO': 20, 'SUCCESS': 25, 'WARNING': 30}, 'csrf_token': '<SimpleLazyObject: <function csrf.<locals>._get_val at ' '0x7f289d619d80>>', 'debug': True, 'messages': <SessionStorage: request=<WSGIRequest: GET '/na-lvivshchini-na-mistsi-kolishnoyi-bazi-fk-karpati-zbuduiut-privatnu-shkolu-139383.html'>>, 'perms': PermWrapper(<SimpleLazyObject: <function AuthenticationMiddleware.process_request.<locals>.<lambda> at 0x7f289d61b6d0>>), 'request': '<<request>>', 'sql_queries': <function debug.<locals>.<lambda> at 0x7f289da7b5b0>, 'user': '<SimpleLazyObject: <function ' 'AuthenticationMiddleware.process_request.<locals>.<lambda> at ' '0x7f289d61b6d0>>'} {'LANGUAGES': [('uk', 'Українська'), ('en', 'Англійська'), ('ru', 'Російська')], 'LANGUAGE_CODE': 'uk', 'SELECTED_LANG': 'uk', 'all_posts': '<<multilinguallanguagefilteredpostqueryset of news.Post>>', 'amp_stories': '<<multilingualqueryset of amp_stories.Story>>', 'author_email': '[email protected]', 'languages': [{'bidi': False, 'code': 'uk', 'name': 'Ukrainian', 'name_local': 'Українська', 'name_translated': 'Українська'}, {'bidi': False, 'code': 'en', 'name': 'English', 'name_local': 'English', 'name_translated': 'Англійська'}, {'bidi': False, 'code': 'ru', 'name': 'Russian', 'name_local': 'Русский', 'name_translated': 'Російська'}], 'object': <Post: На Львівщині на місці колишньої бази ФК "Карпати" збудують приватну школу>, 'parent_categories': '<<multilingualqueryset of news.Category>>', 'parent_categories_menu': '<<multilingualqueryset of news.Category>>', 'post': <Post: На Львівщині на місці колишньої бази ФК "Карпати" збудують приватну школу>, 'show_banner': False, 'table_of_contents': '<<queryset of news.PostContentHeading>>', 'tags': '<<multilingualqueryset of news.Tag>>', 'tlp': <VideoPost: Кислиця жорстко висловився щодо переговорів у Стамбулі>, 'use_old_design': False, 'view': <news.views.post.GetPost object at 0x7f289df3bc10>} {'available_languages': ['uk', 'ru'], 'block': <Block Node: custom_header. Contents: [<TextNode: '\n'>, <django.template.library.SimpleNode object at 0x7f289e563850>, <TextNode: '\n'>, <IncludeNode: template=<FilterExpression '"new-design/components/article-header.html"'>>, <TextNode: '\n'>, <IncludeNode: template=<FilterExpression '"new-design/components/hot-line.html"'>>, <TextNode: '\n'>]>} {'LANGUAGE_CODE': 'uk', 'post_id': 139383, 'se': <SiteElements: Елементи сайту>}
new-design/components/breadcrumbs.html
/var/www/news-site-columnist/news/templates/new-design/components/breadcrumbs.html
Toggle context {'False': False, 'None': None, 'True': True} {'DEFAULT_MESSAGE_LEVELS': {'DEBUG': 10, 'ERROR': 40, 'INFO': 20, 'SUCCESS': 25, 'WARNING': 30}, 'csrf_token': '<SimpleLazyObject: <function csrf.<locals>._get_val at ' '0x7f289d619d80>>', 'debug': True, 'messages': <SessionStorage: request=<WSGIRequest: GET '/na-lvivshchini-na-mistsi-kolishnoyi-bazi-fk-karpati-zbuduiut-privatnu-shkolu-139383.html'>>, 'perms': PermWrapper(<SimpleLazyObject: <function AuthenticationMiddleware.process_request.<locals>.<lambda> at 0x7f289d61b6d0>>), 'request': '<<request>>', 'sql_queries': <function debug.<locals>.<lambda> at 0x7f289da7b5b0>, 'user': '<SimpleLazyObject: <function ' 'AuthenticationMiddleware.process_request.<locals>.<lambda> at ' '0x7f289d61b6d0>>'} {'LANGUAGES': [('uk', 'Українська'), ('en', 'Англійська'), ('ru', 'Російська')], 'LANGUAGE_CODE': 'uk', 'SELECTED_LANG': 'uk', 'all_posts': '<<multilinguallanguagefilteredpostqueryset of news.Post>>', 'amp_stories': '<<multilingualqueryset of amp_stories.Story>>', 'author_email': '[email protected]', 'languages': [{'bidi': False, 'code': 'uk', 'name': 'Ukrainian', 'name_local': 'Українська', 'name_translated': 'Українська'}, {'bidi': False, 'code': 'en', 'name': 'English', 'name_local': 'English', 'name_translated': 'Англійська'}, {'bidi': False, 'code': 'ru', 'name': 'Russian', 'name_local': 'Русский', 'name_translated': 'Російська'}], 'object': <Post: На Львівщині на місці колишньої бази ФК "Карпати" збудують приватну школу>, 'parent_categories': '<<multilingualqueryset of news.Category>>', 'parent_categories_menu': '<<multilingualqueryset of news.Category>>', 'post': <Post: На Львівщині на місці колишньої бази ФК "Карпати" збудують приватну школу>, 'show_banner': False, 'table_of_contents': '<<queryset of news.PostContentHeading>>', 'tags': '<<multilingualqueryset of news.Tag>>', 'tlp': <VideoPost: Кислиця жорстко висловився щодо переговорів у Стамбулі>, 'use_old_design': False, 'view': <news.views.post.GetPost object at 0x7f289df3bc10>} {'block': <Block Node: content. Contents: [<TextNode: '\n <div class="containe'>, <IfNode>, <TextNode: '\n '>, <IfNode>, <TextNode: '\n <div id="news-co'>, <Variable Node: request.build_absolute_uri|remove_query_params>, <TextNode: '">\n '>, <Block Node: post_content. Contents: [<TextNode: '\n '>, <IncludeNode: template=<FilterExpression "'new-design/includes/post_content.html'">>, <TextNode: '\n '>]>, <TextNode: '\n </div>\n </div'>, <django.template.defaulttags.CommentNode object at 0x7f289e562e60>, <TextNode: '\n\n'>, <IfNode>, <TextNode: '\n\n'>]>} {'last_title': 'На Львівщині на місці колишньої бази ФК "Карпати" збудують ' 'приватну школу', 'second_level_link': 'https://lviv.novunu.live/', 'second_level_title': 'Львів'}
new-design/includes/post_content.html
/var/www/news-site-columnist/news/templates/new-design/includes/post_content.html
Toggle context {'False': False, 'None': None, 'True': True} {'DEFAULT_MESSAGE_LEVELS': {'DEBUG': 10, 'ERROR': 40, 'INFO': 20, 'SUCCESS': 25, 'WARNING': 30}, 'csrf_token': '<SimpleLazyObject: <function csrf.<locals>._get_val at ' '0x7f289d619d80>>', 'debug': True, 'messages': <SessionStorage: request=<WSGIRequest: GET '/na-lvivshchini-na-mistsi-kolishnoyi-bazi-fk-karpati-zbuduiut-privatnu-shkolu-139383.html'>>, 'perms': PermWrapper(<SimpleLazyObject: <function AuthenticationMiddleware.process_request.<locals>.<lambda> at 0x7f289d61b6d0>>), 'request': '<<request>>', 'sql_queries': <function debug.<locals>.<lambda> at 0x7f289da7b5b0>, 'user': '<SimpleLazyObject: <function ' 'AuthenticationMiddleware.process_request.<locals>.<lambda> at ' '0x7f289d61b6d0>>'} {'LANGUAGES': [('uk', 'Українська'), ('en', 'Англійська'), ('ru', 'Російська')], 'LANGUAGE_CODE': 'uk', 'SELECTED_LANG': 'uk', 'all_posts': '<<multilinguallanguagefilteredpostqueryset of news.Post>>', 'amp_stories': '<<multilingualqueryset of amp_stories.Story>>', 'author_email': '[email protected]', 'languages': [{'bidi': False, 'code': 'uk', 'name': 'Ukrainian', 'name_local': 'Українська', 'name_translated': 'Українська'}, {'bidi': False, 'code': 'en', 'name': 'English', 'name_local': 'English', 'name_translated': 'Англійська'}, {'bidi': False, 'code': 'ru', 'name': 'Russian', 'name_local': 'Русский', 'name_translated': 'Російська'}], 'object': <Post: На Львівщині на місці колишньої бази ФК "Карпати" збудують приватну школу>, 'parent_categories': '<<multilingualqueryset of news.Category>>', 'parent_categories_menu': '<<multilingualqueryset of news.Category>>', 'post': <Post: На Львівщині на місці колишньої бази ФК "Карпати" збудують приватну школу>, 'show_banner': False, 'table_of_contents': '<<queryset of news.PostContentHeading>>', 'tags': '<<multilingualqueryset of news.Tag>>', 'tlp': <VideoPost: Кислиця жорстко висловився щодо переговорів у Стамбулі>, 'use_old_design': False, 'view': <news.views.post.GetPost object at 0x7f289df3bc10>} {'block': <Block Node: content. Contents: [<TextNode: '\n <div class="containe'>, <IfNode>, <TextNode: '\n '>, <IfNode>, <TextNode: '\n <div id="news-co'>, <Variable Node: request.build_absolute_uri|remove_query_params>, <TextNode: '">\n '>, <Block Node: post_content. Contents: [<TextNode: '\n '>, <IncludeNode: template=<FilterExpression "'new-design/includes/post_content.html'">>, <TextNode: '\n '>]>, <TextNode: '\n </div>\n </div'>, <django.template.defaulttags.CommentNode object at 0x7f289e562e60>, <TextNode: '\n\n'>, <IfNode>, <TextNode: '\n\n'>]>} {'block': <Block Node: post_content. Contents: [<TextNode: '\n '>, <IncludeNode: template=<FilterExpression "'new-design/includes/post_content.html'">>, <TextNode: '\n '>]>} {'LANGUAGE_CODE': 'uk', 'only_post': False, 'post': <Post: На Львівщині на місці колишньої бази ФК "Карпати" збудують приватну школу>}
new-design/components/article/article-head.html
/var/www/news-site-columnist/news/templates/new-design/components/article/article-head.html
Toggle context {'False': False, 'None': None, 'True': True} {'DEFAULT_MESSAGE_LEVELS': {'DEBUG': 10, 'ERROR': 40, 'INFO': 20, 'SUCCESS': 25, 'WARNING': 30}, 'csrf_token': '<SimpleLazyObject: <function csrf.<locals>._get_val at ' '0x7f289d619d80>>', 'debug': True, 'messages': <SessionStorage: request=<WSGIRequest: GET '/na-lvivshchini-na-mistsi-kolishnoyi-bazi-fk-karpati-zbuduiut-privatnu-shkolu-139383.html'>>, 'perms': PermWrapper(<SimpleLazyObject: <function AuthenticationMiddleware.process_request.<locals>.<lambda> at 0x7f289d61b6d0>>), 'request': '<<request>>', 'sql_queries': <function debug.<locals>.<lambda> at 0x7f289da7b5b0>, 'user': '<SimpleLazyObject: <function ' 'AuthenticationMiddleware.process_request.<locals>.<lambda> at ' '0x7f289d61b6d0>>'} {'LANGUAGES': [('uk', 'Українська'), ('en', 'Англійська'), ('ru', 'Російська')], 'LANGUAGE_CODE': 'uk', 'SELECTED_LANG': 'uk', 'all_posts': '<<multilinguallanguagefilteredpostqueryset of news.Post>>', 'amp_stories': '<<multilingualqueryset of amp_stories.Story>>', 'author_email': '[email protected]', 'languages': [{'bidi': False, 'code': 'uk', 'name': 'Ukrainian', 'name_local': 'Українська', 'name_translated': 'Українська'}, {'bidi': False, 'code': 'en', 'name': 'English', 'name_local': 'English', 'name_translated': 'Англійська'}, {'bidi': False, 'code': 'ru', 'name': 'Russian', 'name_local': 'Русский', 'name_translated': 'Російська'}], 'object': <Post: На Львівщині на місці колишньої бази ФК "Карпати" збудують приватну школу>, 'parent_categories': '<<multilingualqueryset of news.Category>>', 'parent_categories_menu': '<<multilingualqueryset of news.Category>>', 'post': <Post: На Львівщині на місці колишньої бази ФК "Карпати" збудують приватну школу>, 'show_banner': False, 'table_of_contents': '<<queryset of news.PostContentHeading>>', 'tags': '<<multilingualqueryset of news.Tag>>', 'tlp': <VideoPost: Кислиця жорстко висловився щодо переговорів у Стамбулі>, 'use_old_design': False, 'view': <news.views.post.GetPost object at 0x7f289df3bc10>} {'block': <Block Node: content. Contents: [<TextNode: '\n <div class="containe'>, <IfNode>, <TextNode: '\n '>, <IfNode>, <TextNode: '\n <div id="news-co'>, <Variable Node: request.build_absolute_uri|remove_query_params>, <TextNode: '">\n '>, <Block Node: post_content. Contents: [<TextNode: '\n '>, <IncludeNode: template=<FilterExpression "'new-design/includes/post_content.html'">>, <TextNode: '\n '>]>, <TextNode: '\n </div>\n </div'>, <django.template.defaulttags.CommentNode object at 0x7f289e562e60>, <TextNode: '\n\n'>, <IfNode>, <TextNode: '\n\n'>]>} {'block': <Block Node: post_content. Contents: [<TextNode: '\n '>, <IncludeNode: template=<FilterExpression "'new-design/includes/post_content.html'">>, <TextNode: '\n '>]>} {'LANGUAGE_CODE': 'uk', 'only_post': False, 'post': <Post: На Львівщині на місці колишньої бази ФК "Карпати" збудують приватну школу>}
new-design/components/socials-share-btn.html
/var/www/news-site-columnist/news/templates/new-design/components/socials-share-btn.html
Toggle context {'False': False, 'None': None, 'True': True} {'DEFAULT_MESSAGE_LEVELS': {'DEBUG': 10, 'ERROR': 40, 'INFO': 20, 'SUCCESS': 25, 'WARNING': 30}, 'csrf_token': '<SimpleLazyObject: <function csrf.<locals>._get_val at ' '0x7f289d619d80>>', 'debug': True, 'messages': <SessionStorage: request=<WSGIRequest: GET '/na-lvivshchini-na-mistsi-kolishnoyi-bazi-fk-karpati-zbuduiut-privatnu-shkolu-139383.html'>>, 'perms': PermWrapper(<SimpleLazyObject: <function AuthenticationMiddleware.process_request.<locals>.<lambda> at 0x7f289d61b6d0>>), 'request': '<<request>>', 'sql_queries': <function debug.<locals>.<lambda> at 0x7f289da7b5b0>, 'user': '<SimpleLazyObject: <function ' 'AuthenticationMiddleware.process_request.<locals>.<lambda> at ' '0x7f289d61b6d0>>'} {'LANGUAGES': [('uk', 'Українська'), ('en', 'Англійська'), ('ru', 'Російська')], 'LANGUAGE_CODE': 'uk', 'SELECTED_LANG': 'uk', 'all_posts': '<<multilinguallanguagefilteredpostqueryset of news.Post>>', 'amp_stories': '<<multilingualqueryset of amp_stories.Story>>', 'author_email': '[email protected]', 'languages': [{'bidi': False, 'code': 'uk', 'name': 'Ukrainian', 'name_local': 'Українська', 'name_translated': 'Українська'}, {'bidi': False, 'code': 'en', 'name': 'English', 'name_local': 'English', 'name_translated': 'Англійська'}, {'bidi': False, 'code': 'ru', 'name': 'Russian', 'name_local': 'Русский', 'name_translated': 'Російська'}], 'object': <Post: На Львівщині на місці колишньої бази ФК "Карпати" збудують приватну школу>, 'parent_categories': '<<multilingualqueryset of news.Category>>', 'parent_categories_menu': '<<multilingualqueryset of news.Category>>', 'post': <Post: На Львівщині на місці колишньої бази ФК "Карпати" збудують приватну школу>, 'show_banner': False, 'table_of_contents': '<<queryset of news.PostContentHeading>>', 'tags': '<<multilingualqueryset of news.Tag>>', 'tlp': <VideoPost: Кислиця жорстко висловився щодо переговорів у Стамбулі>, 'use_old_design': False, 'view': <news.views.post.GetPost object at 0x7f289df3bc10>} {'block': <Block Node: content. Contents: [<TextNode: '\n <div class="containe'>, <IfNode>, <TextNode: '\n '>, <IfNode>, <TextNode: '\n <div id="news-co'>, <Variable Node: request.build_absolute_uri|remove_query_params>, <TextNode: '">\n '>, <Block Node: post_content. Contents: [<TextNode: '\n '>, <IncludeNode: template=<FilterExpression "'new-design/includes/post_content.html'">>, <TextNode: '\n '>]>, <TextNode: '\n </div>\n </div'>, <django.template.defaulttags.CommentNode object at 0x7f289e562e60>, <TextNode: '\n\n'>, <IfNode>, <TextNode: '\n\n'>]>} {'block': <Block Node: post_content. Contents: [<TextNode: '\n '>, <IncludeNode: template=<FilterExpression "'new-design/includes/post_content.html'">>, <TextNode: '\n '>]>} {'LANGUAGE_CODE': 'uk', 'only_post': False, 'post': <Post: На Львівщині на місці колишньої бази ФК "Карпати" збудують приватну школу>} {'CURRENT_LANGUAGE': 'uk', 'DEFAULT_LC': 'uk', 'LANGUAGES': [('uk', 'Українська'), ('en', 'Англійська'), ('ru', 'Російська')], 'languages': [{'bidi': False, 'code': 'uk', 'name': 'Ukrainian', 'name_local': 'Українська', 'name_translated': 'Українська'}, {'bidi': False, 'code': 'en', 'name': 'English', 'name_local': 'English', 'name_translated': 'Англійська'}, {'bidi': False, 'code': 'ru', 'name': 'Russian', 'name_local': 'Русский', 'name_translated': 'Російська'}]} {'hide_text_mobile': 1}
new-design/components/article/loupe-btn.html
/var/www/news-site-columnist/news/templates/new-design/components/article/loupe-btn.html
Toggle context {'False': False, 'None': None, 'True': True} {'DEFAULT_MESSAGE_LEVELS': {'DEBUG': 10, 'ERROR': 40, 'INFO': 20, 'SUCCESS': 25, 'WARNING': 30}, 'csrf_token': '<SimpleLazyObject: <function csrf.<locals>._get_val at ' '0x7f289d619d80>>', 'debug': True, 'messages': <SessionStorage: request=<WSGIRequest: GET '/na-lvivshchini-na-mistsi-kolishnoyi-bazi-fk-karpati-zbuduiut-privatnu-shkolu-139383.html'>>, 'perms': PermWrapper(<SimpleLazyObject: <function AuthenticationMiddleware.process_request.<locals>.<lambda> at 0x7f289d61b6d0>>), 'request': '<<request>>', 'sql_queries': <function debug.<locals>.<lambda> at 0x7f289da7b5b0>, 'user': '<SimpleLazyObject: <function ' 'AuthenticationMiddleware.process_request.<locals>.<lambda> at ' '0x7f289d61b6d0>>'} {'LANGUAGES': [('uk', 'Українська'), ('en', 'Англійська'), ('ru', 'Російська')], 'LANGUAGE_CODE': 'uk', 'SELECTED_LANG': 'uk', 'all_posts': '<<multilinguallanguagefilteredpostqueryset of news.Post>>', 'amp_stories': '<<multilingualqueryset of amp_stories.Story>>', 'author_email': '[email protected]', 'languages': [{'bidi': False, 'code': 'uk', 'name': 'Ukrainian', 'name_local': 'Українська', 'name_translated': 'Українська'}, {'bidi': False, 'code': 'en', 'name': 'English', 'name_local': 'English', 'name_translated': 'Англійська'}, {'bidi': False, 'code': 'ru', 'name': 'Russian', 'name_local': 'Русский', 'name_translated': 'Російська'}], 'object': <Post: На Львівщині на місці колишньої бази ФК "Карпати" збудують приватну школу>, 'parent_categories': '<<multilingualqueryset of news.Category>>', 'parent_categories_menu': '<<multilingualqueryset of news.Category>>', 'post': <Post: На Львівщині на місці колишньої бази ФК "Карпати" збудують приватну школу>, 'show_banner': False, 'table_of_contents': '<<queryset of news.PostContentHeading>>', 'tags': '<<multilingualqueryset of news.Tag>>', 'tlp': <VideoPost: Кислиця жорстко висловився щодо переговорів у Стамбулі>, 'use_old_design': False, 'view': <news.views.post.GetPost object at 0x7f289df3bc10>} {'block': <Block Node: content. Contents: [<TextNode: '\n <div class="containe'>, <IfNode>, <TextNode: '\n '>, <IfNode>, <TextNode: '\n <div id="news-co'>, <Variable Node: request.build_absolute_uri|remove_query_params>, <TextNode: '">\n '>, <Block Node: post_content. Contents: [<TextNode: '\n '>, <IncludeNode: template=<FilterExpression "'new-design/includes/post_content.html'">>, <TextNode: '\n '>]>, <TextNode: '\n </div>\n </div'>, <django.template.defaulttags.CommentNode object at 0x7f289e562e60>, <TextNode: '\n\n'>, <IfNode>, <TextNode: '\n\n'>]>} {'block': <Block Node: post_content. Contents: [<TextNode: '\n '>, <IncludeNode: template=<FilterExpression "'new-design/includes/post_content.html'">>, <TextNode: '\n '>]>} {'LANGUAGE_CODE': 'uk', 'only_post': False, 'post': <Post: На Львівщині на місці колишньої бази ФК "Карпати" збудують приватну школу>}
new-design/components/article/source-url.html
/var/www/news-site-columnist/news/templates/new-design/components/article/source-url.html
Toggle context {'False': False, 'None': None, 'True': True} {'DEFAULT_MESSAGE_LEVELS': {'DEBUG': 10, 'ERROR': 40, 'INFO': 20, 'SUCCESS': 25, 'WARNING': 30}, 'csrf_token': '<SimpleLazyObject: <function csrf.<locals>._get_val at ' '0x7f289d619d80>>', 'debug': True, 'messages': <SessionStorage: request=<WSGIRequest: GET '/na-lvivshchini-na-mistsi-kolishnoyi-bazi-fk-karpati-zbuduiut-privatnu-shkolu-139383.html'>>, 'perms': PermWrapper(<SimpleLazyObject: <function AuthenticationMiddleware.process_request.<locals>.<lambda> at 0x7f289d61b6d0>>), 'request': '<<request>>', 'sql_queries': <function debug.<locals>.<lambda> at 0x7f289da7b5b0>, 'user': '<SimpleLazyObject: <function ' 'AuthenticationMiddleware.process_request.<locals>.<lambda> at ' '0x7f289d61b6d0>>'} {'LANGUAGES': [('uk', 'Українська'), ('en', 'Англійська'), ('ru', 'Російська')], 'LANGUAGE_CODE': 'uk', 'SELECTED_LANG': 'uk', 'all_posts': '<<multilinguallanguagefilteredpostqueryset of news.Post>>', 'amp_stories': '<<multilingualqueryset of amp_stories.Story>>', 'author_email': '[email protected]', 'languages': [{'bidi': False, 'code': 'uk', 'name': 'Ukrainian', 'name_local': 'Українська', 'name_translated': 'Українська'}, {'bidi': False, 'code': 'en', 'name': 'English', 'name_local': 'English', 'name_translated': 'Англійська'}, {'bidi': False, 'code': 'ru', 'name': 'Russian', 'name_local': 'Русский', 'name_translated': 'Російська'}], 'object': <Post: На Львівщині на місці колишньої бази ФК "Карпати" збудують приватну школу>, 'parent_categories': '<<multilingualqueryset of news.Category>>', 'parent_categories_menu': '<<multilingualqueryset of news.Category>>', 'post': <Post: На Львівщині на місці колишньої бази ФК "Карпати" збудують приватну школу>, 'show_banner': False, 'table_of_contents': '<<queryset of news.PostContentHeading>>', 'tags': '<<multilingualqueryset of news.Tag>>', 'tlp': <VideoPost: Кислиця жорстко висловився щодо переговорів у Стамбулі>, 'use_old_design': False, 'view': <news.views.post.GetPost object at 0x7f289df3bc10>} {'block': <Block Node: content. Contents: [<TextNode: '\n <div class="containe'>, <IfNode>, <TextNode: '\n '>, <IfNode>, <TextNode: '\n <div id="news-co'>, <Variable Node: request.build_absolute_uri|remove_query_params>, <TextNode: '">\n '>, <Block Node: post_content. Contents: [<TextNode: '\n '>, <IncludeNode: template=<FilterExpression "'new-design/includes/post_content.html'">>, <TextNode: '\n '>]>, <TextNode: '\n </div>\n </div'>, <django.template.defaulttags.CommentNode object at 0x7f289e562e60>, <TextNode: '\n\n'>, <IfNode>, <TextNode: '\n\n'>]>} {'block': <Block Node: post_content. Contents: [<TextNode: '\n '>, <IncludeNode: template=<FilterExpression "'new-design/includes/post_content.html'">>, <TextNode: '\n '>]>} {'LANGUAGE_CODE': 'uk', 'only_post': False, 'post': <Post: На Львівщині на місці колишньої бази ФК "Карпати" збудують приватну школу>}
news/includes/read_more-ajax.html
/var/www/news-site-columnist/news/templates/news/includes/read_more-ajax.html
Toggle context {'False': False, 'None': None, 'True': True} {'post': <Post: На Львівщині на місці колишньої бази ФК "Карпати" збудують приватну школу>, 'read_more_posts': ''}
news/includes/adsense/posts/post_p3_desktop.html
/var/www/news-site-columnist/news/templates/news/includes/adsense/posts/post_p3_desktop.html
Toggle context {'False': False, 'None': None, 'True': True}
new-design/components/article/article-author.html
/var/www/news-site-columnist/news/templates/new-design/components/article/article-author.html
Toggle context {'False': False, 'None': None, 'True': True} {'DEFAULT_MESSAGE_LEVELS': {'DEBUG': 10, 'ERROR': 40, 'INFO': 20, 'SUCCESS': 25, 'WARNING': 30}, 'csrf_token': '<SimpleLazyObject: <function csrf.<locals>._get_val at ' '0x7f289d619d80>>', 'debug': True, 'messages': <SessionStorage: request=<WSGIRequest: GET '/na-lvivshchini-na-mistsi-kolishnoyi-bazi-fk-karpati-zbuduiut-privatnu-shkolu-139383.html'>>, 'perms': PermWrapper(<SimpleLazyObject: <function AuthenticationMiddleware.process_request.<locals>.<lambda> at 0x7f289d61b6d0>>), 'request': '<<request>>', 'sql_queries': <function debug.<locals>.<lambda> at 0x7f289da7b5b0>, 'user': '<SimpleLazyObject: <function ' 'AuthenticationMiddleware.process_request.<locals>.<lambda> at ' '0x7f289d61b6d0>>'} {'LANGUAGES': [('uk', 'Українська'), ('en', 'Англійська'), ('ru', 'Російська')], 'LANGUAGE_CODE': 'uk', 'SELECTED_LANG': 'uk', 'all_posts': '<<multilinguallanguagefilteredpostqueryset of news.Post>>', 'amp_stories': '<<multilingualqueryset of amp_stories.Story>>', 'author_email': '[email protected]', 'languages': [{'bidi': False, 'code': 'uk', 'name': 'Ukrainian', 'name_local': 'Українська', 'name_translated': 'Українська'}, {'bidi': False, 'code': 'en', 'name': 'English', 'name_local': 'English', 'name_translated': 'Англійська'}, {'bidi': False, 'code': 'ru', 'name': 'Russian', 'name_local': 'Русский', 'name_translated': 'Російська'}], 'object': <Post: На Львівщині на місці колишньої бази ФК "Карпати" збудують приватну школу>, 'parent_categories': '<<multilingualqueryset of news.Category>>', 'parent_categories_menu': '<<multilingualqueryset of news.Category>>', 'post': <Post: На Львівщині на місці колишньої бази ФК "Карпати" збудують приватну школу>, 'show_banner': False, 'table_of_contents': '<<queryset of news.PostContentHeading>>', 'tags': '<<multilingualqueryset of news.Tag>>', 'tlp': <VideoPost: Кислиця жорстко висловився щодо переговорів у Стамбулі>, 'use_old_design': False, 'view': <news.views.post.GetPost object at 0x7f289df3bc10>} {'block': <Block Node: content. Contents: [<TextNode: '\n <div class="containe'>, <IfNode>, <TextNode: '\n '>, <IfNode>, <TextNode: '\n <div id="news-co'>, <Variable Node: request.build_absolute_uri|remove_query_params>, <TextNode: '">\n '>, <Block Node: post_content. Contents: [<TextNode: '\n '>, <IncludeNode: template=<FilterExpression "'new-design/includes/post_content.html'">>, <TextNode: '\n '>]>, <TextNode: '\n </div>\n </div'>, <django.template.defaulttags.CommentNode object at 0x7f289e562e60>, <TextNode: '\n\n'>, <IfNode>, <TextNode: '\n\n'>]>} {'block': <Block Node: post_content. Contents: [<TextNode: '\n '>, <IncludeNode: template=<FilterExpression "'new-design/includes/post_content.html'">>, <TextNode: '\n '>]>} {'LANGUAGE_CODE': 'uk', 'only_post': False, 'post': <Post: На Львівщині на місці колишньої бази ФК "Карпати" збудують приватну школу>}
new-design/components/socials-share-btn.html
/var/www/news-site-columnist/news/templates/new-design/components/socials-share-btn.html
Toggle context {'False': False, 'None': None, 'True': True} {'DEFAULT_MESSAGE_LEVELS': {'DEBUG': 10, 'ERROR': 40, 'INFO': 20, 'SUCCESS': 25, 'WARNING': 30}, 'csrf_token': '<SimpleLazyObject: <function csrf.<locals>._get_val at ' '0x7f289d619d80>>', 'debug': True, 'messages': <SessionStorage: request=<WSGIRequest: GET '/na-lvivshchini-na-mistsi-kolishnoyi-bazi-fk-karpati-zbuduiut-privatnu-shkolu-139383.html'>>, 'perms': PermWrapper(<SimpleLazyObject: <function AuthenticationMiddleware.process_request.<locals>.<lambda> at 0x7f289d61b6d0>>), 'request': '<<request>>', 'sql_queries': <function debug.<locals>.<lambda> at 0x7f289da7b5b0>, 'user': '<SimpleLazyObject: <function ' 'AuthenticationMiddleware.process_request.<locals>.<lambda> at ' '0x7f289d61b6d0>>'} {'LANGUAGES': [('uk', 'Українська'), ('en', 'Англійська'), ('ru', 'Російська')], 'LANGUAGE_CODE': 'uk', 'SELECTED_LANG': 'uk', 'all_posts': '<<multilinguallanguagefilteredpostqueryset of news.Post>>', 'amp_stories': '<<multilingualqueryset of amp_stories.Story>>', 'author_email': '[email protected]', 'languages': [{'bidi': False, 'code': 'uk', 'name': 'Ukrainian', 'name_local': 'Українська', 'name_translated': 'Українська'}, {'bidi': False, 'code': 'en', 'name': 'English', 'name_local': 'English', 'name_translated': 'Англійська'}, {'bidi': False, 'code': 'ru', 'name': 'Russian', 'name_local': 'Русский', 'name_translated': 'Російська'}], 'object': <Post: На Львівщині на місці колишньої бази ФК "Карпати" збудують приватну школу>, 'parent_categories': '<<multilingualqueryset of news.Category>>', 'parent_categories_menu': '<<multilingualqueryset of news.Category>>', 'post': <Post: На Львівщині на місці колишньої бази ФК "Карпати" збудують приватну школу>, 'show_banner': False, 'table_of_contents': '<<queryset of news.PostContentHeading>>', 'tags': '<<multilingualqueryset of news.Tag>>', 'tlp': <VideoPost: Кислиця жорстко висловився щодо переговорів у Стамбулі>, 'use_old_design': False, 'view': <news.views.post.GetPost object at 0x7f289df3bc10>} {'block': <Block Node: content. Contents: [<TextNode: '\n <div class="containe'>, <IfNode>, <TextNode: '\n '>, <IfNode>, <TextNode: '\n <div id="news-co'>, <Variable Node: request.build_absolute_uri|remove_query_params>, <TextNode: '">\n '>, <Block Node: post_content. Contents: [<TextNode: '\n '>, <IncludeNode: template=<FilterExpression "'new-design/includes/post_content.html'">>, <TextNode: '\n '>]>, <TextNode: '\n </div>\n </div'>, <django.template.defaulttags.CommentNode object at 0x7f289e562e60>, <TextNode: '\n\n'>, <IfNode>, <TextNode: '\n\n'>]>} {'block': <Block Node: post_content. Contents: [<TextNode: '\n '>, <IncludeNode: template=<FilterExpression "'new-design/includes/post_content.html'">>, <TextNode: '\n '>]>} {'LANGUAGE_CODE': 'uk', 'only_post': False, 'post': <Post: На Львівщині на місці колишньої бази ФК "Карпати" збудують приватну школу>} {'exclude_google_news': 1, 'hide_text_mobile': 1}
news/includes/external_scripts/idealmedia.html
/var/www/news-site-columnist/news/templates/news/includes/external_scripts/idealmedia.html
Toggle context {'False': False, 'None': None, 'True': True} {'DEFAULT_MESSAGE_LEVELS': {'DEBUG': 10, 'ERROR': 40, 'INFO': 20, 'SUCCESS': 25, 'WARNING': 30}, 'csrf_token': '<SimpleLazyObject: <function csrf.<locals>._get_val at ' '0x7f289d619d80>>', 'debug': True, 'messages': <SessionStorage: request=<WSGIRequest: GET '/na-lvivshchini-na-mistsi-kolishnoyi-bazi-fk-karpati-zbuduiut-privatnu-shkolu-139383.html'>>, 'perms': PermWrapper(<SimpleLazyObject: <function AuthenticationMiddleware.process_request.<locals>.<lambda> at 0x7f289d61b6d0>>), 'request': '<<request>>', 'sql_queries': <function debug.<locals>.<lambda> at 0x7f289da7b5b0>, 'user': '<SimpleLazyObject: <function ' 'AuthenticationMiddleware.process_request.<locals>.<lambda> at ' '0x7f289d61b6d0>>'} {'LANGUAGES': [('uk', 'Українська'), ('en', 'Англійська'), ('ru', 'Російська')], 'LANGUAGE_CODE': 'uk', 'SELECTED_LANG': 'uk', 'all_posts': '<<multilinguallanguagefilteredpostqueryset of news.Post>>', 'amp_stories': '<<multilingualqueryset of amp_stories.Story>>', 'author_email': '[email protected]', 'languages': [{'bidi': False, 'code': 'uk', 'name': 'Ukrainian', 'name_local': 'Українська', 'name_translated': 'Українська'}, {'bidi': False, 'code': 'en', 'name': 'English', 'name_local': 'English', 'name_translated': 'Англійська'}, {'bidi': False, 'code': 'ru', 'name': 'Russian', 'name_local': 'Русский', 'name_translated': 'Російська'}], 'object': <Post: На Львівщині на місці колишньої бази ФК "Карпати" збудують приватну школу>, 'parent_categories': '<<multilingualqueryset of news.Category>>', 'parent_categories_menu': '<<multilingualqueryset of news.Category>>', 'post': <Post: На Львівщині на місці колишньої бази ФК "Карпати" збудують приватну школу>, 'show_banner': False, 'table_of_contents': '<<queryset of news.PostContentHeading>>', 'tags': '<<multilingualqueryset of news.Tag>>', 'tlp': <VideoPost: Кислиця жорстко висловився щодо переговорів у Стамбулі>, 'use_old_design': False, 'view': <news.views.post.GetPost object at 0x7f289df3bc10>} {'block': <Block Node: content. Contents: [<TextNode: '\n <div class="containe'>, <IfNode>, <TextNode: '\n '>, <IfNode>, <TextNode: '\n <div id="news-co'>, <Variable Node: request.build_absolute_uri|remove_query_params>, <TextNode: '">\n '>, <Block Node: post_content. Contents: [<TextNode: '\n '>, <IncludeNode: template=<FilterExpression "'new-design/includes/post_content.html'">>, <TextNode: '\n '>]>, <TextNode: '\n </div>\n </div'>, <django.template.defaulttags.CommentNode object at 0x7f289e562e60>, <TextNode: '\n\n'>, <IfNode>, <TextNode: '\n\n'>]>} {'block': <Block Node: post_content. Contents: [<TextNode: '\n '>, <IncludeNode: template=<FilterExpression "'new-design/includes/post_content.html'">>, <TextNode: '\n '>]>} {'LANGUAGE_CODE': 'uk', 'only_post': False, 'post': <Post: На Львівщині на місці колишньої бази ФК "Карпати" збудують приватну школу>}
news/includes/adsense/posts/post_beforeend_desktop.html
/var/www/news-site-columnist/news/templates/news/includes/adsense/posts/post_beforeend_desktop.html
Toggle context {'False': False, 'None': None, 'True': True} {'DEFAULT_MESSAGE_LEVELS': {'DEBUG': 10, 'ERROR': 40, 'INFO': 20, 'SUCCESS': 25, 'WARNING': 30}, 'csrf_token': '<SimpleLazyObject: <function csrf.<locals>._get_val at ' '0x7f289d619d80>>', 'debug': True, 'messages': <SessionStorage: request=<WSGIRequest: GET '/na-lvivshchini-na-mistsi-kolishnoyi-bazi-fk-karpati-zbuduiut-privatnu-shkolu-139383.html'>>, 'perms': PermWrapper(<SimpleLazyObject: <function AuthenticationMiddleware.process_request.<locals>.<lambda> at 0x7f289d61b6d0>>), 'request': '<<request>>', 'sql_queries': <function debug.<locals>.<lambda> at 0x7f289da7b5b0>, 'user': '<SimpleLazyObject: <function ' 'AuthenticationMiddleware.process_request.<locals>.<lambda> at ' '0x7f289d61b6d0>>'} {'LANGUAGES': [('uk', 'Українська'), ('en', 'Англійська'), ('ru', 'Російська')], 'LANGUAGE_CODE': 'uk', 'SELECTED_LANG': 'uk', 'all_posts': '<<multilinguallanguagefilteredpostqueryset of news.Post>>', 'amp_stories': '<<multilingualqueryset of amp_stories.Story>>', 'author_email': '[email protected]', 'languages': [{'bidi': False, 'code': 'uk', 'name': 'Ukrainian', 'name_local': 'Українська', 'name_translated': 'Українська'}, {'bidi': False, 'code': 'en', 'name': 'English', 'name_local': 'English', 'name_translated': 'Англійська'}, {'bidi': False, 'code': 'ru', 'name': 'Russian', 'name_local': 'Русский', 'name_translated': 'Російська'}], 'object': <Post: На Львівщині на місці колишньої бази ФК "Карпати" збудують приватну школу>, 'parent_categories': '<<multilingualqueryset of news.Category>>', 'parent_categories_menu': '<<multilingualqueryset of news.Category>>', 'post': <Post: На Львівщині на місці колишньої бази ФК "Карпати" збудують приватну школу>, 'show_banner': False, 'table_of_contents': '<<queryset of news.PostContentHeading>>', 'tags': '<<multilingualqueryset of news.Tag>>', 'tlp': <VideoPost: Кислиця жорстко висловився щодо переговорів у Стамбулі>, 'use_old_design': False, 'view': <news.views.post.GetPost object at 0x7f289df3bc10>} {'block': <Block Node: content. Contents: [<TextNode: '\n <div class="containe'>, <IfNode>, <TextNode: '\n '>, <IfNode>, <TextNode: '\n <div id="news-co'>, <Variable Node: request.build_absolute_uri|remove_query_params>, <TextNode: '">\n '>, <Block Node: post_content. Contents: [<TextNode: '\n '>, <IncludeNode: template=<FilterExpression "'new-design/includes/post_content.html'">>, <TextNode: '\n '>]>, <TextNode: '\n </div>\n </div'>, <django.template.defaulttags.CommentNode object at 0x7f289e562e60>, <TextNode: '\n\n'>, <IfNode>, <TextNode: '\n\n'>]>} {'block': <Block Node: post_content. Contents: [<TextNode: '\n '>, <IncludeNode: template=<FilterExpression "'new-design/includes/post_content.html'">>, <TextNode: '\n '>]>} {'LANGUAGE_CODE': 'uk', 'only_post': False, 'post': <Post: На Львівщині на місці колишньої бази ФК "Карпати" збудують приватну школу>}
new-design/includes/news_sidebars/article-right-sidebar.html
/var/www/news-site-columnist/news/templates/new-design/includes/news_sidebars/article-right-sidebar.html
Toggle context {'False': False, 'None': None, 'True': True} {'DEFAULT_MESSAGE_LEVELS': {'DEBUG': 10, 'ERROR': 40, 'INFO': 20, 'SUCCESS': 25, 'WARNING': 30}, 'csrf_token': '<SimpleLazyObject: <function csrf.<locals>._get_val at ' '0x7f289d619d80>>', 'debug': True, 'messages': <SessionStorage: request=<WSGIRequest: GET '/na-lvivshchini-na-mistsi-kolishnoyi-bazi-fk-karpati-zbuduiut-privatnu-shkolu-139383.html'>>, 'perms': PermWrapper(<SimpleLazyObject: <function AuthenticationMiddleware.process_request.<locals>.<lambda> at 0x7f289d61b6d0>>), 'request': '<<request>>', 'sql_queries': <function debug.<locals>.<lambda> at 0x7f289da7b5b0>, 'user': '<SimpleLazyObject: <function ' 'AuthenticationMiddleware.process_request.<locals>.<lambda> at ' '0x7f289d61b6d0>>'} {'LANGUAGES': [('uk', 'Українська'), ('en', 'Англійська'), ('ru', 'Російська')], 'LANGUAGE_CODE': 'uk', 'SELECTED_LANG': 'uk', 'all_posts': '<<multilinguallanguagefilteredpostqueryset of news.Post>>', 'amp_stories': '<<multilingualqueryset of amp_stories.Story>>', 'author_email': '[email protected]', 'languages': [{'bidi': False, 'code': 'uk', 'name': 'Ukrainian', 'name_local': 'Українська', 'name_translated': 'Українська'}, {'bidi': False, 'code': 'en', 'name': 'English', 'name_local': 'English', 'name_translated': 'Англійська'}, {'bidi': False, 'code': 'ru', 'name': 'Russian', 'name_local': 'Русский', 'name_translated': 'Російська'}], 'object': <Post: На Львівщині на місці колишньої бази ФК "Карпати" збудують приватну школу>, 'parent_categories': '<<multilingualqueryset of news.Category>>', 'parent_categories_menu': '<<multilingualqueryset of news.Category>>', 'post': <Post: На Львівщині на місці колишньої бази ФК "Карпати" збудують приватну школу>, 'show_banner': False, 'table_of_contents': '<<queryset of news.PostContentHeading>>', 'tags': '<<multilingualqueryset of news.Tag>>', 'tlp': <VideoPost: Кислиця жорстко висловився щодо переговорів у Стамбулі>, 'use_old_design': False, 'view': <news.views.post.GetPost object at 0x7f289df3bc10>} {'block': <Block Node: content. Contents: [<TextNode: '\n <div class="containe'>, <IfNode>, <TextNode: '\n '>, <IfNode>, <TextNode: '\n <div id="news-co'>, <Variable Node: request.build_absolute_uri|remove_query_params>, <TextNode: '">\n '>, <Block Node: post_content. Contents: [<TextNode: '\n '>, <IncludeNode: template=<FilterExpression "'new-design/includes/post_content.html'">>, <TextNode: '\n '>]>, <TextNode: '\n </div>\n </div'>, <django.template.defaulttags.CommentNode object at 0x7f289e562e60>, <TextNode: '\n\n'>, <IfNode>, <TextNode: '\n\n'>]>} {'block': <Block Node: post_content. Contents: [<TextNode: '\n '>, <IncludeNode: template=<FilterExpression "'new-design/includes/post_content.html'">>, <TextNode: '\n '>]>} {'LANGUAGE_CODE': 'uk', 'only_post': False, 'post': <Post: На Львівщині на місці колишньої бази ФК "Карпати" збудують приватну школу>}
news/includes/adsense/sidebar.html
/var/www/news-site-columnist/news/templates/news/includes/adsense/sidebar.html
Toggle context {'False': False, 'None': None, 'True': True} {'DEFAULT_MESSAGE_LEVELS': {'DEBUG': 10, 'ERROR': 40, 'INFO': 20, 'SUCCESS': 25, 'WARNING': 30}, 'csrf_token': '<SimpleLazyObject: <function csrf.<locals>._get_val at ' '0x7f289d619d80>>', 'debug': True, 'messages': <SessionStorage: request=<WSGIRequest: GET '/na-lvivshchini-na-mistsi-kolishnoyi-bazi-fk-karpati-zbuduiut-privatnu-shkolu-139383.html'>>, 'perms': PermWrapper(<SimpleLazyObject: <function AuthenticationMiddleware.process_request.<locals>.<lambda> at 0x7f289d61b6d0>>), 'request': '<<request>>', 'sql_queries': <function debug.<locals>.<lambda> at 0x7f289da7b5b0>, 'user': '<SimpleLazyObject: <function ' 'AuthenticationMiddleware.process_request.<locals>.<lambda> at ' '0x7f289d61b6d0>>'} {'LANGUAGES': [('uk', 'Українська'), ('en', 'Англійська'), ('ru', 'Російська')], 'LANGUAGE_CODE': 'uk', 'SELECTED_LANG': 'uk', 'all_posts': '<<multilinguallanguagefilteredpostqueryset of news.Post>>', 'amp_stories': '<<multilingualqueryset of amp_stories.Story>>', 'author_email': '[email protected]', 'languages': [{'bidi': False, 'code': 'uk', 'name': 'Ukrainian', 'name_local': 'Українська', 'name_translated': 'Українська'}, {'bidi': False, 'code': 'en', 'name': 'English', 'name_local': 'English', 'name_translated': 'Англійська'}, {'bidi': False, 'code': 'ru', 'name': 'Russian', 'name_local': 'Русский', 'name_translated': 'Російська'}], 'object': <Post: На Львівщині на місці колишньої бази ФК "Карпати" збудують приватну школу>, 'parent_categories': '<<multilingualqueryset of news.Category>>', 'parent_categories_menu': '<<multilingualqueryset of news.Category>>', 'post': <Post: На Львівщині на місці колишньої бази ФК "Карпати" збудують приватну школу>, 'show_banner': False, 'table_of_contents': '<<queryset of news.PostContentHeading>>', 'tags': '<<multilingualqueryset of news.Tag>>', 'tlp': <VideoPost: Кислиця жорстко висловився щодо переговорів у Стамбулі>, 'use_old_design': False, 'view': <news.views.post.GetPost object at 0x7f289df3bc10>} {'block': <Block Node: content. Contents: [<TextNode: '\n <div class="containe'>, <IfNode>, <TextNode: '\n '>, <IfNode>, <TextNode: '\n <div id="news-co'>, <Variable Node: request.build_absolute_uri|remove_query_params>, <TextNode: '">\n '>, <Block Node: post_content. Contents: [<TextNode: '\n '>, <IncludeNode: template=<FilterExpression "'new-design/includes/post_content.html'">>, <TextNode: '\n '>]>, <TextNode: '\n </div>\n </div'>, <django.template.defaulttags.CommentNode object at 0x7f289e562e60>, <TextNode: '\n\n'>, <IfNode>, <TextNode: '\n\n'>]>} {'block': <Block Node: post_content. Contents: [<TextNode: '\n '>, <IncludeNode: template=<FilterExpression "'new-design/includes/post_content.html'">>, <TextNode: '\n '>]>} {'LANGUAGE_CODE': 'uk', 'only_post': False, 'post': <Post: На Львівщині на місці колишньої бази ФК "Карпати" збудують приватну школу>}
new-design/components/socials-share-btn.html
/var/www/news-site-columnist/news/templates/new-design/components/socials-share-btn.html
Toggle context {'False': False, 'None': None, 'True': True} {'DEFAULT_MESSAGE_LEVELS': {'DEBUG': 10, 'ERROR': 40, 'INFO': 20, 'SUCCESS': 25, 'WARNING': 30}, 'csrf_token': '<SimpleLazyObject: <function csrf.<locals>._get_val at ' '0x7f289d619d80>>', 'debug': True, 'messages': <SessionStorage: request=<WSGIRequest: GET '/na-lvivshchini-na-mistsi-kolishnoyi-bazi-fk-karpati-zbuduiut-privatnu-shkolu-139383.html'>>, 'perms': PermWrapper(<SimpleLazyObject: <function AuthenticationMiddleware.process_request.<locals>.<lambda> at 0x7f289d61b6d0>>), 'request': '<<request>>', 'sql_queries': <function debug.<locals>.<lambda> at 0x7f289da7b5b0>, 'user': '<SimpleLazyObject: <function ' 'AuthenticationMiddleware.process_request.<locals>.<lambda> at ' '0x7f289d61b6d0>>'} {'LANGUAGES': [('uk', 'Українська'), ('en', 'Англійська'), ('ru', 'Російська')], 'LANGUAGE_CODE': 'uk', 'SELECTED_LANG': 'uk', 'all_posts': '<<multilinguallanguagefilteredpostqueryset of news.Post>>', 'amp_stories': '<<multilingualqueryset of amp_stories.Story>>', 'author_email': '[email protected]', 'languages': [{'bidi': False, 'code': 'uk', 'name': 'Ukrainian', 'name_local': 'Українська', 'name_translated': 'Українська'}, {'bidi': False, 'code': 'en', 'name': 'English', 'name_local': 'English', 'name_translated': 'Англійська'}, {'bidi': False, 'code': 'ru', 'name': 'Russian', 'name_local': 'Русский', 'name_translated': 'Російська'}], 'object': <Post: На Львівщині на місці колишньої бази ФК "Карпати" збудують приватну школу>, 'parent_categories': '<<multilingualqueryset of news.Category>>', 'parent_categories_menu': '<<multilingualqueryset of news.Category>>', 'post': <Post: На Львівщині на місці колишньої бази ФК "Карпати" збудують приватну школу>, 'show_banner': False, 'table_of_contents': '<<queryset of news.PostContentHeading>>', 'tags': '<<multilingualqueryset of news.Tag>>', 'tlp': <VideoPost: Кислиця жорстко висловився щодо переговорів у Стамбулі>, 'use_old_design': False, 'view': <news.views.post.GetPost object at 0x7f289df3bc10>} {'block': <Block Node: content. Contents: [<TextNode: '\n <div class="containe'>, <IfNode>, <TextNode: '\n '>, <IfNode>, <TextNode: '\n <div id="news-co'>, <Variable Node: request.build_absolute_uri|remove_query_params>, <TextNode: '">\n '>, <Block Node: post_content. Contents: [<TextNode: '\n '>, <IncludeNode: template=<FilterExpression "'new-design/includes/post_content.html'">>, <TextNode: '\n '>]>, <TextNode: '\n </div>\n </div'>, <django.template.defaulttags.CommentNode object at 0x7f289e562e60>, <TextNode: '\n\n'>, <IfNode>, <TextNode: '\n\n'>]>} {'block': <Block Node: post_content. Contents: [<TextNode: '\n '>, <IncludeNode: template=<FilterExpression "'new-design/includes/post_content.html'">>, <TextNode: '\n '>]>} {'LANGUAGE_CODE': 'uk', 'only_post': False, 'post': <Post: На Львівщині на місці колишньої бази ФК "Карпати" збудують приватну школу>} {'class': 'share-btn-wrapper_white'}
new-design/components/footer.html
/var/www/news-site-columnist/news/templates/new-design/components/footer.html
Toggle context {'False': False, 'None': None, 'True': True} {'DEFAULT_MESSAGE_LEVELS': {'DEBUG': 10, 'ERROR': 40, 'INFO': 20, 'SUCCESS': 25, 'WARNING': 30}, 'csrf_token': '<SimpleLazyObject: <function csrf.<locals>._get_val at ' '0x7f289d619d80>>', 'debug': True, 'messages': <SessionStorage: request=<WSGIRequest: GET '/na-lvivshchini-na-mistsi-kolishnoyi-bazi-fk-karpati-zbuduiut-privatnu-shkolu-139383.html'>>, 'perms': PermWrapper(<SimpleLazyObject: <function AuthenticationMiddleware.process_request.<locals>.<lambda> at 0x7f289d61b6d0>>), 'request': '<<request>>', 'sql_queries': <function debug.<locals>.<lambda> at 0x7f289da7b5b0>, 'user': '<SimpleLazyObject: <function ' 'AuthenticationMiddleware.process_request.<locals>.<lambda> at ' '0x7f289d61b6d0>>'} {'LANGUAGES': [('uk', 'Українська'), ('en', 'Англійська'), ('ru', 'Російська')], 'LANGUAGE_CODE': 'uk', 'SELECTED_LANG': 'uk', 'all_posts': '<<multilinguallanguagefilteredpostqueryset of news.Post>>', 'amp_stories': '<<multilingualqueryset of amp_stories.Story>>', 'author_email': '[email protected]', 'languages': [{'bidi': False, 'code': 'uk', 'name': 'Ukrainian', 'name_local': 'Українська', 'name_translated': 'Українська'}, {'bidi': False, 'code': 'en', 'name': 'English', 'name_local': 'English', 'name_translated': 'Англійська'}, {'bidi': False, 'code': 'ru', 'name': 'Russian', 'name_local': 'Русский', 'name_translated': 'Російська'}], 'object': <Post: На Львівщині на місці колишньої бази ФК "Карпати" збудують приватну школу>, 'parent_categories': '<<multilingualqueryset of news.Category>>', 'parent_categories_menu': '<<multilingualqueryset of news.Category>>', 'post': <Post: На Львівщині на місці колишньої бази ФК "Карпати" збудують приватну школу>, 'show_banner': False, 'table_of_contents': '<<queryset of news.PostContentHeading>>', 'tags': '<<multilingualqueryset of news.Tag>>', 'tlp': <VideoPost: Кислиця жорстко висловився щодо переговорів у Стамбулі>, 'use_old_design': False, 'view': <news.views.post.GetPost object at 0x7f289df3bc10>}
new-design/components/socials-list.html
/var/www/news-site-columnist/news/templates/new-design/components/socials-list.html
Toggle context {'False': False, 'None': None, 'True': True} {'DEFAULT_MESSAGE_LEVELS': {'DEBUG': 10, 'ERROR': 40, 'INFO': 20, 'SUCCESS': 25, 'WARNING': 30}, 'csrf_token': '<SimpleLazyObject: <function csrf.<locals>._get_val at ' '0x7f289d619d80>>', 'debug': True, 'messages': <SessionStorage: request=<WSGIRequest: GET '/na-lvivshchini-na-mistsi-kolishnoyi-bazi-fk-karpati-zbuduiut-privatnu-shkolu-139383.html'>>, 'perms': PermWrapper(<SimpleLazyObject: <function AuthenticationMiddleware.process_request.<locals>.<lambda> at 0x7f289d61b6d0>>), 'request': '<<request>>', 'sql_queries': <function debug.<locals>.<lambda> at 0x7f289da7b5b0>, 'user': '<SimpleLazyObject: <function ' 'AuthenticationMiddleware.process_request.<locals>.<lambda> at ' '0x7f289d61b6d0>>'} {'LANGUAGES': [('uk', 'Українська'), ('en', 'Англійська'), ('ru', 'Російська')], 'LANGUAGE_CODE': 'uk', 'SELECTED_LANG': 'uk', 'all_posts': '<<multilinguallanguagefilteredpostqueryset of news.Post>>', 'amp_stories': '<<multilingualqueryset of amp_stories.Story>>', 'author_email': '[email protected]', 'languages': [{'bidi': False, 'code': 'uk', 'name': 'Ukrainian', 'name_local': 'Українська', 'name_translated': 'Українська'}, {'bidi': False, 'code': 'en', 'name': 'English', 'name_local': 'English', 'name_translated': 'Англійська'}, {'bidi': False, 'code': 'ru', 'name': 'Russian', 'name_local': 'Русский', 'name_translated': 'Російська'}], 'object': <Post: На Львівщині на місці колишньої бази ФК "Карпати" збудують приватну школу>, 'parent_categories': '<<multilingualqueryset of news.Category>>', 'parent_categories_menu': '<<multilingualqueryset of news.Category>>', 'post': <Post: На Львівщині на місці колишньої бази ФК "Карпати" збудують приватну школу>, 'show_banner': False, 'table_of_contents': '<<queryset of news.PostContentHeading>>', 'tags': '<<multilingualqueryset of news.Tag>>', 'tlp': <VideoPost: Кислиця жорстко висловився щодо переговорів у Стамбулі>, 'use_old_design': False, 'view': <news.views.post.GetPost object at 0x7f289df3bc10>} {'LANGUAGE_CODE': 'uk'} {'LANGUAGE_CODE': 'uk', 'footer': 1}
news/includes/views_counter.html
/var/www/news-site-columnist/news/templates/news/includes/views_counter.html
Toggle context {'False': False, 'None': None, 'True': True} {'DEFAULT_MESSAGE_LEVELS': {'DEBUG': 10, 'ERROR': 40, 'INFO': 20, 'SUCCESS': 25, 'WARNING': 30}, 'csrf_token': '<SimpleLazyObject: <function csrf.<locals>._get_val at ' '0x7f289d619d80>>', 'debug': True, 'messages': <SessionStorage: request=<WSGIRequest: GET '/na-lvivshchini-na-mistsi-kolishnoyi-bazi-fk-karpati-zbuduiut-privatnu-shkolu-139383.html'>>, 'perms': PermWrapper(<SimpleLazyObject: <function AuthenticationMiddleware.process_request.<locals>.<lambda> at 0x7f289d61b6d0>>), 'request': '<<request>>', 'sql_queries': <function debug.<locals>.<lambda> at 0x7f289da7b5b0>, 'user': '<SimpleLazyObject: <function ' 'AuthenticationMiddleware.process_request.<locals>.<lambda> at ' '0x7f289d61b6d0>>'} {'LANGUAGES': [('uk', 'Українська'), ('en', 'Англійська'), ('ru', 'Російська')], 'LANGUAGE_CODE': 'uk', 'SELECTED_LANG': 'uk', 'all_posts': '<<multilinguallanguagefilteredpostqueryset of news.Post>>', 'amp_stories': '<<multilingualqueryset of amp_stories.Story>>', 'author_email': '[email protected]', 'languages': [{'bidi': False, 'code': 'uk', 'name': 'Ukrainian', 'name_local': 'Українська', 'name_translated': 'Українська'}, {'bidi': False, 'code': 'en', 'name': 'English', 'name_local': 'English', 'name_translated': 'Англійська'}, {'bidi': False, 'code': 'ru', 'name': 'Russian', 'name_local': 'Русский', 'name_translated': 'Російська'}], 'object': <Post: На Львівщині на місці колишньої бази ФК "Карпати" збудують приватну школу>, 'parent_categories': '<<multilingualqueryset of news.Category>>', 'parent_categories_menu': '<<multilingualqueryset of news.Category>>', 'post': <Post: На Львівщині на місці колишньої бази ФК "Карпати" збудують приватну школу>, 'show_banner': False, 'table_of_contents': '<<queryset of news.PostContentHeading>>', 'tags': '<<multilingualqueryset of news.Tag>>', 'tlp': <VideoPost: Кислиця жорстко висловився щодо переговорів у Стамбулі>, 'use_old_design': False, 'view': <news.views.post.GetPost object at 0x7f289df3bc10>} {'LANGUAGE_CODE': 'uk', 'block': <Block Node: extrajs. Contents: [<TextNode: '\n <!-- iframely script'>, <django.template.library.SimpleNode object at 0x7f289e561120>, <TextNode: '\n '>, <django.template.library.SimpleNode object at 0x7f289e5612d0>, <TextNode: '\n '>, <django.template.library.SimpleNode object at 0x7f289e561480>, <TextNode: '\n <script src="'>, StaticNode(varname=None, path=<FilterExpression "'news/js/single_new.js'">), <TextNode: '?ver=1.0" defer></script>'>, <django.templatetags.i18n.GetCurrentLanguageNode object at 0x7f289e561780>, <TextNode: '\n window.postData = '>, <Variable Node: post.id>, <TextNode: '", theme: "'>, <Variable Node: post.theme>, <TextNode: '", lang: "'>, <Variable Node: LANGUAGE_CODE>, <TextNode: '"};\n </script>\n <sc'>, <Variable Node: post.id>, <TextNode: ';\n window.useOldDe'>, <Variable Node: post.category.use_old_design_for_posts|yesno:"true,false">, <TextNode: ';\n const LANG = "'>, <Variable Node: LANGUAGE_CODE>, <TextNode: '";\n </script>\n <scr'>, StaticNode(varname=None, path=<FilterExpression "'news/js/tags_news_new.js'">), <TextNode: '" defer></script>\n\n '>, <IfNode>, <TextNode: '\n\n '>, <IncludeNode: template=<FilterExpression "'news/includes/views_counter.html'">>, <TextNode: '\n'>]>} {'object': <Post: На Львівщині на місці колишньої бази ФК "Карпати" збудують приватну школу>}

Context processors

django.template.context_processors.csrf
Toggle context {'csrf_token': <SimpleLazyObject: <function csrf.<locals>._get_val at 0x7f289d619d80>>}
django.template.context_processors.debug
Toggle context {'debug': True, 'sql_queries': <function debug.<locals>.<lambda> at 0x7f289da7b5b0>}
django.template.context_processors.request
Toggle context {'request': <WSGIRequest: GET '/na-lvivshchini-na-mistsi-kolishnoyi-bazi-fk-karpati-zbuduiut-privatnu-shkolu-139383.html'>}
django.contrib.auth.context_processors.auth
Toggle context {'user': <SimpleLazyObject: <function AuthenticationMiddleware.process_request.<locals>.<lambda> at 0x7f289d61b6d0>>, 'perms': PermWrapper(<SimpleLazyObject: <function AuthenticationMiddleware.process_request.<locals>.<lambda> at 0x7f289d61b6d0>>)}
django.contrib.messages.context_processors.messages
Toggle context {'messages': <SessionStorage: request=<WSGIRequest: GET '/na-lvivshchini-na-mistsi-kolishnoyi-bazi-fk-karpati-zbuduiut-privatnu-shkolu-139383.html'>>, 'DEFAULT_MESSAGE_LEVELS': {'DEBUG': 10, 'INFO': 20, 'SUCCESS': 25, 'WARNING': 30, 'ERROR': 40}}

Cache calls from 2 backends

Резюме

Total calls Total time Cache hits Cache misses
7 3,4142369404435158 ms 7 0

Commands

add get set get_or_set touch delete clear get_many set_many delete_many has_key incr decr incr_version decr_version
0 7 0 0 0 0 0 0 0 0 0 0 0 0 0

Calls

Час (мс) Тип Arguments Keyword arguments Backend
0,4257 get ('django_user_agents.fac378ac3b3d3886829021b3309d4fd1',) {} <django.core.cache.backends.redis.RedisCache object at 0x7f28a55b5450>
/home/youser/.local/share/virtualenvs/news-site-columnist-8tsXn7bh/bin/gunicorn in <module>(8)
  sys.exit(run())

/home/youser/.local/share/virtualenvs/news-site-columnist-8tsXn7bh/lib/python3.10/site-packages/gunicorn/app/wsgiapp.py in run(66)
  WSGIApplication("%(prog)s [OPTIONS] [APP_MODULE]", prog=prog).run()

/home/youser/.local/share/virtualenvs/news-site-columnist-8tsXn7bh/lib/python3.10/site-packages/gunicorn/app/base.py in run(235)
  super().run()

/home/youser/.local/share/virtualenvs/news-site-columnist-8tsXn7bh/lib/python3.10/site-packages/gunicorn/app/base.py in run(71)
  Arbiter(self).run()

/home/youser/.local/share/virtualenvs/news-site-columnist-8tsXn7bh/lib/python3.10/site-packages/gunicorn/arbiter.py in run(210)
  self.manage_workers()

/home/youser/.local/share/virtualenvs/news-site-columnist-8tsXn7bh/lib/python3.10/site-packages/gunicorn/arbiter.py in manage_workers(570)
  self.spawn_workers()

/home/youser/.local/share/virtualenvs/news-site-columnist-8tsXn7bh/lib/python3.10/site-packages/gunicorn/arbiter.py in spawn_workers(641)
  self.spawn_worker()

/home/youser/.local/share/virtualenvs/news-site-columnist-8tsXn7bh/lib/python3.10/site-packages/gunicorn/arbiter.py in spawn_worker(608)
  worker.init_process()

/home/youser/.local/share/virtualenvs/news-site-columnist-8tsXn7bh/lib/python3.10/site-packages/gunicorn/workers/base.py in init_process(143)
  self.run()

/home/youser/.local/share/virtualenvs/news-site-columnist-8tsXn7bh/lib/python3.10/site-packages/gunicorn/workers/sync.py in run(125)
  self.run_for_one(timeout)

/home/youser/.local/share/virtualenvs/news-site-columnist-8tsXn7bh/lib/python3.10/site-packages/gunicorn/workers/sync.py in run_for_one(69)
  self.accept(listener)

/home/youser/.local/share/virtualenvs/news-site-columnist-8tsXn7bh/lib/python3.10/site-packages/gunicorn/workers/sync.py in accept(31)
  self.handle(listener, client, addr)

/home/youser/.local/share/virtualenvs/news-site-columnist-8tsXn7bh/lib/python3.10/site-packages/gunicorn/workers/sync.py in handle(134)
  self.handle_request(listener, req, client, addr)

/home/youser/.local/share/virtualenvs/news-site-columnist-8tsXn7bh/lib/python3.10/site-packages/gunicorn/workers/sync.py in handle_request(177)
  respiter = self.wsgi(environ, resp.start_response)

/home/youser/.local/share/virtualenvs/news-site-columnist-8tsXn7bh/lib/python3.10/site-packages/sentry_sdk/utils.py in runner(1864)
  return sentry_patched_function(*args, **kwargs)

/home/youser/.local/share/virtualenvs/news-site-columnist-8tsXn7bh/lib/python3.10/site-packages/sentry_sdk/integrations/django/__init__.py in sentry_patched_wsgi_handler(191)
  return middleware(environ, start_response)

/home/youser/.local/share/virtualenvs/news-site-columnist-8tsXn7bh/lib/python3.10/site-packages/sentry_sdk/integrations/wsgi.py in __call__(132)
  response = self.app(

/home/youser/.local/share/virtualenvs/news-site-columnist-8tsXn7bh/lib/python3.10/site-packages/sentry_sdk/integrations/django/__init__.py in sentry_patched_get_response(478)
  rv = old_get_response(self, request)

/home/youser/.local/share/virtualenvs/news-site-columnist-8tsXn7bh/lib/python3.10/site-packages/sentry_sdk/integrations/django/middleware.py in __call__(177)
  return f(*args, **kwargs)

/home/youser/.local/share/virtualenvs/news-site-columnist-8tsXn7bh/lib/python3.10/site-packages/sentry_sdk/integrations/django/middleware.py in __call__(177)
  return f(*args, **kwargs)

/var/www/news-site-columnist/redirects/middleware/redirect_middleware.py in __call__(17)
  return self.get_response(request)

/home/youser/.local/share/virtualenvs/news-site-columnist-8tsXn7bh/lib/python3.10/site-packages/sentry_sdk/integrations/django/middleware.py in __call__(177)
  return f(*args, **kwargs)

/home/youser/.local/share/virtualenvs/news-site-columnist-8tsXn7bh/lib/python3.10/site-packages/sentry_sdk/integrations/django/middleware.py in __call__(177)
  return f(*args, **kwargs)

/home/youser/.local/share/virtualenvs/news-site-columnist-8tsXn7bh/lib/python3.10/site-packages/sentry_sdk/integrations/django/middleware.py in __call__(177)
  return f(*args, **kwargs)

/home/youser/.local/share/virtualenvs/news-site-columnist-8tsXn7bh/lib/python3.10/site-packages/sentry_sdk/integrations/django/middleware.py in __call__(177)
  return f(*args, **kwargs)

/home/youser/.local/share/virtualenvs/news-site-columnist-8tsXn7bh/lib/python3.10/site-packages/corsheaders/middleware.py in __call__(53)
  result = self.get_response(request)

/home/youser/.local/share/virtualenvs/news-site-columnist-8tsXn7bh/lib/python3.10/site-packages/sentry_sdk/integrations/django/middleware.py in __call__(177)
  return f(*args, **kwargs)

/home/youser/.local/share/virtualenvs/news-site-columnist-8tsXn7bh/lib/python3.10/site-packages/django_user_agents/middleware.py in __call__(14)
  return self.get_response(request)

/home/youser/.local/share/virtualenvs/news-site-columnist-8tsXn7bh/lib/python3.10/site-packages/sentry_sdk/integrations/django/middleware.py in __call__(177)
  return f(*args, **kwargs)

/home/youser/.local/share/virtualenvs/news-site-columnist-8tsXn7bh/lib/python3.10/site-packages/sentry_sdk/integrations/django/middleware.py in __call__(177)
  return f(*args, **kwargs)

/home/youser/.local/share/virtualenvs/news-site-columnist-8tsXn7bh/lib/python3.10/site-packages/sentry_sdk/integrations/django/middleware.py in __call__(177)
  return f(*args, **kwargs)

/home/youser/.local/share/virtualenvs/news-site-columnist-8tsXn7bh/lib/python3.10/site-packages/sentry_sdk/integrations/django/middleware.py in __call__(177)
  return f(*args, **kwargs)

/home/youser/.local/share/virtualenvs/news-site-columnist-8tsXn7bh/lib/python3.10/site-packages/sentry_sdk/integrations/django/middleware.py in __call__(177)
  return f(*args, **kwargs)

/home/youser/.local/share/virtualenvs/news-site-columnist-8tsXn7bh/lib/python3.10/site-packages/sentry_sdk/integrations/django/middleware.py in __call__(177)
  return f(*args, **kwargs)

/home/youser/.local/share/virtualenvs/news-site-columnist-8tsXn7bh/lib/python3.10/site-packages/sentry_sdk/integrations/django/middleware.py in __call__(177)
  return f(*args, **kwargs)

/home/youser/.local/share/virtualenvs/news-site-columnist-8tsXn7bh/lib/python3.10/site-packages/sentry_sdk/integrations/django/middleware.py in __call__(177)
  return f(*args, **kwargs)

/var/www/news-site-columnist/news/middleware/subdomain_middleare.py in __call__(22)
  response = self.get_response(request)

/home/youser/.local/share/virtualenvs/news-site-columnist-8tsXn7bh/lib/python3.10/site-packages/sentry_sdk/integrations/django/views.py in sentry_wrapped_callback(94)
  return callback(request, *args, **kwargs)

/var/www/news-site-columnist/news/views/post.py in subdomain_view_post(923)
  return GetPost.as_view()(

/home/youser/.local/share/virtualenvs/news-site-columnist-8tsXn7bh/lib/python3.10/site-packages/django/views/generic/base.py in view(104)
  return self.dispatch(request, *args, **kwargs)

/home/youser/.local/share/virtualenvs/news-site-columnist-8tsXn7bh/lib/python3.10/site-packages/django/views/generic/base.py in dispatch(143)
  return handler(request, *args, **kwargs)

/var/www/news-site-columnist/news/views/post.py in get(187)
  return super().get(request, *args, **kwargs)

/var/www/news-site-columnist/news/views/base.py in get(155)
  return super().get(request, *args, **kwargs)

/var/www/news-site-columnist/news/views/base.py in get(182)
  resp = super().get(request, *args, **kwargs)

/home/youser/.local/share/virtualenvs/news-site-columnist-8tsXn7bh/lib/python3.10/site-packages/django/views/generic/detail.py in get(109)
  context = self.get_context_data(object=self.object)

/var/www/news-site-columnist/news/views/post.py in get_context_data(127)
  user_agent = get_user_agent(self.request)

/home/youser/.local/share/virtualenvs/news-site-columnist-8tsXn7bh/lib/python3.10/site-packages/django_user_agents/utils.py in get_user_agent(54)
  user_agent = cache.get(key)

0,4446 get ('TelegramLinkReplacement',) {} <django.core.cache.backends.redis.RedisCache object at 0x7f28a55b5450>
/home/youser/.local/share/virtualenvs/news-site-columnist-8tsXn7bh/bin/gunicorn in <module>(8)
  sys.exit(run())

/home/youser/.local/share/virtualenvs/news-site-columnist-8tsXn7bh/lib/python3.10/site-packages/gunicorn/app/wsgiapp.py in run(66)
  WSGIApplication("%(prog)s [OPTIONS] [APP_MODULE]", prog=prog).run()

/home/youser/.local/share/virtualenvs/news-site-columnist-8tsXn7bh/lib/python3.10/site-packages/gunicorn/app/base.py in run(235)
  super().run()

/home/youser/.local/share/virtualenvs/news-site-columnist-8tsXn7bh/lib/python3.10/site-packages/gunicorn/app/base.py in run(71)
  Arbiter(self).run()

/home/youser/.local/share/virtualenvs/news-site-columnist-8tsXn7bh/lib/python3.10/site-packages/gunicorn/arbiter.py in run(210)
  self.manage_workers()

/home/youser/.local/share/virtualenvs/news-site-columnist-8tsXn7bh/lib/python3.10/site-packages/gunicorn/arbiter.py in manage_workers(570)
  self.spawn_workers()

/home/youser/.local/share/virtualenvs/news-site-columnist-8tsXn7bh/lib/python3.10/site-packages/gunicorn/arbiter.py in spawn_workers(641)
  self.spawn_worker()

/home/youser/.local/share/virtualenvs/news-site-columnist-8tsXn7bh/lib/python3.10/site-packages/gunicorn/arbiter.py in spawn_worker(608)
  worker.init_process()

/home/youser/.local/share/virtualenvs/news-site-columnist-8tsXn7bh/lib/python3.10/site-packages/gunicorn/workers/base.py in init_process(143)
  self.run()

/home/youser/.local/share/virtualenvs/news-site-columnist-8tsXn7bh/lib/python3.10/site-packages/gunicorn/workers/sync.py in run(125)
  self.run_for_one(timeout)

/home/youser/.local/share/virtualenvs/news-site-columnist-8tsXn7bh/lib/python3.10/site-packages/gunicorn/workers/sync.py in run_for_one(69)
  self.accept(listener)

/home/youser/.local/share/virtualenvs/news-site-columnist-8tsXn7bh/lib/python3.10/site-packages/gunicorn/workers/sync.py in accept(31)
  self.handle(listener, client, addr)

/home/youser/.local/share/virtualenvs/news-site-columnist-8tsXn7bh/lib/python3.10/site-packages/gunicorn/workers/sync.py in handle(134)
  self.handle_request(listener, req, client, addr)

/home/youser/.local/share/virtualenvs/news-site-columnist-8tsXn7bh/lib/python3.10/site-packages/gunicorn/workers/sync.py in handle_request(177)
  respiter = self.wsgi(environ, resp.start_response)

/home/youser/.local/share/virtualenvs/news-site-columnist-8tsXn7bh/lib/python3.10/site-packages/sentry_sdk/utils.py in runner(1864)
  return sentry_patched_function(*args, **kwargs)

/home/youser/.local/share/virtualenvs/news-site-columnist-8tsXn7bh/lib/python3.10/site-packages/sentry_sdk/integrations/django/__init__.py in sentry_patched_wsgi_handler(191)
  return middleware(environ, start_response)

/home/youser/.local/share/virtualenvs/news-site-columnist-8tsXn7bh/lib/python3.10/site-packages/sentry_sdk/integrations/wsgi.py in __call__(132)
  response = self.app(

/home/youser/.local/share/virtualenvs/news-site-columnist-8tsXn7bh/lib/python3.10/site-packages/sentry_sdk/integrations/django/__init__.py in sentry_patched_get_response(478)
  rv = old_get_response(self, request)

/home/youser/.local/share/virtualenvs/news-site-columnist-8tsXn7bh/lib/python3.10/site-packages/sentry_sdk/integrations/django/middleware.py in __call__(177)
  return f(*args, **kwargs)

/home/youser/.local/share/virtualenvs/news-site-columnist-8tsXn7bh/lib/python3.10/site-packages/sentry_sdk/integrations/django/middleware.py in __call__(177)
  return f(*args, **kwargs)

/var/www/news-site-columnist/redirects/middleware/redirect_middleware.py in __call__(17)
  return self.get_response(request)

/home/youser/.local/share/virtualenvs/news-site-columnist-8tsXn7bh/lib/python3.10/site-packages/sentry_sdk/integrations/django/middleware.py in __call__(177)
  return f(*args, **kwargs)

/home/youser/.local/share/virtualenvs/news-site-columnist-8tsXn7bh/lib/python3.10/site-packages/sentry_sdk/integrations/django/middleware.py in __call__(177)
  return f(*args, **kwargs)

/home/youser/.local/share/virtualenvs/news-site-columnist-8tsXn7bh/lib/python3.10/site-packages/sentry_sdk/integrations/django/middleware.py in __call__(177)
  return f(*args, **kwargs)

/home/youser/.local/share/virtualenvs/news-site-columnist-8tsXn7bh/lib/python3.10/site-packages/sentry_sdk/integrations/django/middleware.py in __call__(177)
  return f(*args, **kwargs)

/home/youser/.local/share/virtualenvs/news-site-columnist-8tsXn7bh/lib/python3.10/site-packages/corsheaders/middleware.py in __call__(53)
  result = self.get_response(request)

/home/youser/.local/share/virtualenvs/news-site-columnist-8tsXn7bh/lib/python3.10/site-packages/sentry_sdk/integrations/django/middleware.py in __call__(177)
  return f(*args, **kwargs)

/home/youser/.local/share/virtualenvs/news-site-columnist-8tsXn7bh/lib/python3.10/site-packages/django_user_agents/middleware.py in __call__(14)
  return self.get_response(request)

/home/youser/.local/share/virtualenvs/news-site-columnist-8tsXn7bh/lib/python3.10/site-packages/sentry_sdk/integrations/django/middleware.py in __call__(177)
  return f(*args, **kwargs)

/home/youser/.local/share/virtualenvs/news-site-columnist-8tsXn7bh/lib/python3.10/site-packages/sentry_sdk/integrations/django/middleware.py in __call__(177)
  return f(*args, **kwargs)

/home/youser/.local/share/virtualenvs/news-site-columnist-8tsXn7bh/lib/python3.10/site-packages/sentry_sdk/integrations/django/middleware.py in __call__(177)
  return f(*args, **kwargs)

/home/youser/.local/share/virtualenvs/news-site-columnist-8tsXn7bh/lib/python3.10/site-packages/sentry_sdk/integrations/django/middleware.py in __call__(177)
  return f(*args, **kwargs)

/home/youser/.local/share/virtualenvs/news-site-columnist-8tsXn7bh/lib/python3.10/site-packages/sentry_sdk/integrations/django/middleware.py in __call__(177)
  return f(*args, **kwargs)

/home/youser/.local/share/virtualenvs/news-site-columnist-8tsXn7bh/lib/python3.10/site-packages/sentry_sdk/integrations/django/middleware.py in __call__(177)
  return f(*args, **kwargs)

/home/youser/.local/share/virtualenvs/news-site-columnist-8tsXn7bh/lib/python3.10/site-packages/sentry_sdk/integrations/django/middleware.py in __call__(177)
  return f(*args, **kwargs)

/home/youser/.local/share/virtualenvs/news-site-columnist-8tsXn7bh/lib/python3.10/site-packages/sentry_sdk/integrations/django/middleware.py in __call__(177)
  return f(*args, **kwargs)

/var/www/news-site-columnist/news/middleware/subdomain_middleare.py in __call__(22)
  response = self.get_response(request)

/home/youser/.local/share/virtualenvs/news-site-columnist-8tsXn7bh/lib/python3.10/site-packages/sentry_sdk/integrations/django/views.py in sentry_wrapped_callback(94)
  return callback(request, *args, **kwargs)

/var/www/news-site-columnist/news/views/post.py in subdomain_view_post(923)
  return GetPost.as_view()(

/home/youser/.local/share/virtualenvs/news-site-columnist-8tsXn7bh/lib/python3.10/site-packages/django/views/generic/base.py in view(104)
  return self.dispatch(request, *args, **kwargs)

/home/youser/.local/share/virtualenvs/news-site-columnist-8tsXn7bh/lib/python3.10/site-packages/django/views/generic/base.py in dispatch(143)
  return handler(request, *args, **kwargs)

/var/www/news-site-columnist/news/views/post.py in get(187)
  return super().get(request, *args, **kwargs)

/var/www/news-site-columnist/news/views/base.py in get(155)
  return super().get(request, *args, **kwargs)

/var/www/news-site-columnist/news/views/base.py in get(182)
  resp = super().get(request, *args, **kwargs)

/home/youser/.local/share/virtualenvs/news-site-columnist-8tsXn7bh/lib/python3.10/site-packages/django/views/generic/detail.py in get(109)
  context = self.get_context_data(object=self.object)

/var/www/news-site-columnist/news/views/post.py in get_context_data(148)
  data["tlp"] = get_telegram_link_replacement()

/var/www/news-site-columnist/news/utils.py in get_telegram_link_replacement(144)
  tlp = TelegramLinkReplacement.load()

/var/www/news-site-columnist/novyny_live/models.py in load(26)
  if cache.get(cls.__name__) is None:

0,3464 get ('TelegramLinkReplacement',) {} <django.core.cache.backends.redis.RedisCache object at 0x7f28a55b5450>
/home/youser/.local/share/virtualenvs/news-site-columnist-8tsXn7bh/bin/gunicorn in <module>(8)
  sys.exit(run())

/home/youser/.local/share/virtualenvs/news-site-columnist-8tsXn7bh/lib/python3.10/site-packages/gunicorn/app/wsgiapp.py in run(66)
  WSGIApplication("%(prog)s [OPTIONS] [APP_MODULE]", prog=prog).run()

/home/youser/.local/share/virtualenvs/news-site-columnist-8tsXn7bh/lib/python3.10/site-packages/gunicorn/app/base.py in run(235)
  super().run()

/home/youser/.local/share/virtualenvs/news-site-columnist-8tsXn7bh/lib/python3.10/site-packages/gunicorn/app/base.py in run(71)
  Arbiter(self).run()

/home/youser/.local/share/virtualenvs/news-site-columnist-8tsXn7bh/lib/python3.10/site-packages/gunicorn/arbiter.py in run(210)
  self.manage_workers()

/home/youser/.local/share/virtualenvs/news-site-columnist-8tsXn7bh/lib/python3.10/site-packages/gunicorn/arbiter.py in manage_workers(570)
  self.spawn_workers()

/home/youser/.local/share/virtualenvs/news-site-columnist-8tsXn7bh/lib/python3.10/site-packages/gunicorn/arbiter.py in spawn_workers(641)
  self.spawn_worker()

/home/youser/.local/share/virtualenvs/news-site-columnist-8tsXn7bh/lib/python3.10/site-packages/gunicorn/arbiter.py in spawn_worker(608)
  worker.init_process()

/home/youser/.local/share/virtualenvs/news-site-columnist-8tsXn7bh/lib/python3.10/site-packages/gunicorn/workers/base.py in init_process(143)
  self.run()

/home/youser/.local/share/virtualenvs/news-site-columnist-8tsXn7bh/lib/python3.10/site-packages/gunicorn/workers/sync.py in run(125)
  self.run_for_one(timeout)

/home/youser/.local/share/virtualenvs/news-site-columnist-8tsXn7bh/lib/python3.10/site-packages/gunicorn/workers/sync.py in run_for_one(69)
  self.accept(listener)

/home/youser/.local/share/virtualenvs/news-site-columnist-8tsXn7bh/lib/python3.10/site-packages/gunicorn/workers/sync.py in accept(31)
  self.handle(listener, client, addr)

/home/youser/.local/share/virtualenvs/news-site-columnist-8tsXn7bh/lib/python3.10/site-packages/gunicorn/workers/sync.py in handle(134)
  self.handle_request(listener, req, client, addr)

/home/youser/.local/share/virtualenvs/news-site-columnist-8tsXn7bh/lib/python3.10/site-packages/gunicorn/workers/sync.py in handle_request(177)
  respiter = self.wsgi(environ, resp.start_response)

/home/youser/.local/share/virtualenvs/news-site-columnist-8tsXn7bh/lib/python3.10/site-packages/sentry_sdk/utils.py in runner(1864)
  return sentry_patched_function(*args, **kwargs)

/home/youser/.local/share/virtualenvs/news-site-columnist-8tsXn7bh/lib/python3.10/site-packages/sentry_sdk/integrations/django/__init__.py in sentry_patched_wsgi_handler(191)
  return middleware(environ, start_response)

/home/youser/.local/share/virtualenvs/news-site-columnist-8tsXn7bh/lib/python3.10/site-packages/sentry_sdk/integrations/wsgi.py in __call__(132)
  response = self.app(

/home/youser/.local/share/virtualenvs/news-site-columnist-8tsXn7bh/lib/python3.10/site-packages/sentry_sdk/integrations/django/__init__.py in sentry_patched_get_response(478)
  rv = old_get_response(self, request)

/home/youser/.local/share/virtualenvs/news-site-columnist-8tsXn7bh/lib/python3.10/site-packages/sentry_sdk/integrations/django/middleware.py in __call__(177)
  return f(*args, **kwargs)

/home/youser/.local/share/virtualenvs/news-site-columnist-8tsXn7bh/lib/python3.10/site-packages/sentry_sdk/integrations/django/middleware.py in __call__(177)
  return f(*args, **kwargs)

/var/www/news-site-columnist/redirects/middleware/redirect_middleware.py in __call__(17)
  return self.get_response(request)

/home/youser/.local/share/virtualenvs/news-site-columnist-8tsXn7bh/lib/python3.10/site-packages/sentry_sdk/integrations/django/middleware.py in __call__(177)
  return f(*args, **kwargs)

/home/youser/.local/share/virtualenvs/news-site-columnist-8tsXn7bh/lib/python3.10/site-packages/sentry_sdk/integrations/django/middleware.py in __call__(177)
  return f(*args, **kwargs)

/home/youser/.local/share/virtualenvs/news-site-columnist-8tsXn7bh/lib/python3.10/site-packages/sentry_sdk/integrations/django/middleware.py in __call__(177)
  return f(*args, **kwargs)

/home/youser/.local/share/virtualenvs/news-site-columnist-8tsXn7bh/lib/python3.10/site-packages/sentry_sdk/integrations/django/middleware.py in __call__(177)
  return f(*args, **kwargs)

/home/youser/.local/share/virtualenvs/news-site-columnist-8tsXn7bh/lib/python3.10/site-packages/corsheaders/middleware.py in __call__(53)
  result = self.get_response(request)

/home/youser/.local/share/virtualenvs/news-site-columnist-8tsXn7bh/lib/python3.10/site-packages/sentry_sdk/integrations/django/middleware.py in __call__(177)
  return f(*args, **kwargs)

/home/youser/.local/share/virtualenvs/news-site-columnist-8tsXn7bh/lib/python3.10/site-packages/django_user_agents/middleware.py in __call__(14)
  return self.get_response(request)

/home/youser/.local/share/virtualenvs/news-site-columnist-8tsXn7bh/lib/python3.10/site-packages/sentry_sdk/integrations/django/middleware.py in __call__(177)
  return f(*args, **kwargs)

/home/youser/.local/share/virtualenvs/news-site-columnist-8tsXn7bh/lib/python3.10/site-packages/sentry_sdk/integrations/django/middleware.py in __call__(177)
  return f(*args, **kwargs)

/home/youser/.local/share/virtualenvs/news-site-columnist-8tsXn7bh/lib/python3.10/site-packages/sentry_sdk/integrations/django/middleware.py in __call__(177)
  return f(*args, **kwargs)

/home/youser/.local/share/virtualenvs/news-site-columnist-8tsXn7bh/lib/python3.10/site-packages/sentry_sdk/integrations/django/middleware.py in __call__(177)
  return f(*args, **kwargs)

/home/youser/.local/share/virtualenvs/news-site-columnist-8tsXn7bh/lib/python3.10/site-packages/sentry_sdk/integrations/django/middleware.py in __call__(177)
  return f(*args, **kwargs)

/home/youser/.local/share/virtualenvs/news-site-columnist-8tsXn7bh/lib/python3.10/site-packages/sentry_sdk/integrations/django/middleware.py in __call__(177)
  return f(*args, **kwargs)

/home/youser/.local/share/virtualenvs/news-site-columnist-8tsXn7bh/lib/python3.10/site-packages/sentry_sdk/integrations/django/middleware.py in __call__(177)
  return f(*args, **kwargs)

/home/youser/.local/share/virtualenvs/news-site-columnist-8tsXn7bh/lib/python3.10/site-packages/sentry_sdk/integrations/django/middleware.py in __call__(177)
  return f(*args, **kwargs)

/var/www/news-site-columnist/news/middleware/subdomain_middleare.py in __call__(22)
  response = self.get_response(request)

/home/youser/.local/share/virtualenvs/news-site-columnist-8tsXn7bh/lib/python3.10/site-packages/sentry_sdk/integrations/django/views.py in sentry_wrapped_callback(94)
  return callback(request, *args, **kwargs)

/var/www/news-site-columnist/news/views/post.py in subdomain_view_post(923)
  return GetPost.as_view()(

/home/youser/.local/share/virtualenvs/news-site-columnist-8tsXn7bh/lib/python3.10/site-packages/django/views/generic/base.py in view(104)
  return self.dispatch(request, *args, **kwargs)

/home/youser/.local/share/virtualenvs/news-site-columnist-8tsXn7bh/lib/python3.10/site-packages/django/views/generic/base.py in dispatch(143)
  return handler(request, *args, **kwargs)

/var/www/news-site-columnist/news/views/post.py in get(187)
  return super().get(request, *args, **kwargs)

/var/www/news-site-columnist/news/views/base.py in get(155)
  return super().get(request, *args, **kwargs)

/var/www/news-site-columnist/news/views/base.py in get(182)
  resp = super().get(request, *args, **kwargs)

/home/youser/.local/share/virtualenvs/news-site-columnist-8tsXn7bh/lib/python3.10/site-packages/django/views/generic/detail.py in get(109)
  context = self.get_context_data(object=self.object)

/var/www/news-site-columnist/news/views/post.py in get_context_data(148)
  data["tlp"] = get_telegram_link_replacement()

/var/www/news-site-columnist/news/utils.py in get_telegram_link_replacement(144)
  tlp = TelegramLinkReplacement.load()

/var/www/news-site-columnist/novyny_live/models.py in load(30)
  return cache.get(cls.__name__)

0,4215 get ('django_user_agents.fac378ac3b3d3886829021b3309d4fd1',) {} <django.core.cache.backends.redis.RedisCache object at 0x7f28a55b5450>
/home/youser/.local/share/virtualenvs/news-site-columnist-8tsXn7bh/bin/gunicorn in <module>(8)
  sys.exit(run())

/home/youser/.local/share/virtualenvs/news-site-columnist-8tsXn7bh/lib/python3.10/site-packages/gunicorn/app/wsgiapp.py in run(66)
  WSGIApplication("%(prog)s [OPTIONS] [APP_MODULE]", prog=prog).run()

/home/youser/.local/share/virtualenvs/news-site-columnist-8tsXn7bh/lib/python3.10/site-packages/gunicorn/app/base.py in run(235)
  super().run()

/home/youser/.local/share/virtualenvs/news-site-columnist-8tsXn7bh/lib/python3.10/site-packages/gunicorn/app/base.py in run(71)
  Arbiter(self).run()

/home/youser/.local/share/virtualenvs/news-site-columnist-8tsXn7bh/lib/python3.10/site-packages/gunicorn/arbiter.py in run(210)
  self.manage_workers()

/home/youser/.local/share/virtualenvs/news-site-columnist-8tsXn7bh/lib/python3.10/site-packages/gunicorn/arbiter.py in manage_workers(570)
  self.spawn_workers()

/home/youser/.local/share/virtualenvs/news-site-columnist-8tsXn7bh/lib/python3.10/site-packages/gunicorn/arbiter.py in spawn_workers(641)
  self.spawn_worker()

/home/youser/.local/share/virtualenvs/news-site-columnist-8tsXn7bh/lib/python3.10/site-packages/gunicorn/arbiter.py in spawn_worker(608)
  worker.init_process()

/home/youser/.local/share/virtualenvs/news-site-columnist-8tsXn7bh/lib/python3.10/site-packages/gunicorn/workers/base.py in init_process(143)
  self.run()

/home/youser/.local/share/virtualenvs/news-site-columnist-8tsXn7bh/lib/python3.10/site-packages/gunicorn/workers/sync.py in run(125)
  self.run_for_one(timeout)

/home/youser/.local/share/virtualenvs/news-site-columnist-8tsXn7bh/lib/python3.10/site-packages/gunicorn/workers/sync.py in run_for_one(69)
  self.accept(listener)

/home/youser/.local/share/virtualenvs/news-site-columnist-8tsXn7bh/lib/python3.10/site-packages/gunicorn/workers/sync.py in accept(31)
  self.handle(listener, client, addr)

/home/youser/.local/share/virtualenvs/news-site-columnist-8tsXn7bh/lib/python3.10/site-packages/gunicorn/workers/sync.py in handle(134)
  self.handle_request(listener, req, client, addr)

/home/youser/.local/share/virtualenvs/news-site-columnist-8tsXn7bh/lib/python3.10/site-packages/gunicorn/workers/sync.py in handle_request(177)
  respiter = self.wsgi(environ, resp.start_response)

/home/youser/.local/share/virtualenvs/news-site-columnist-8tsXn7bh/lib/python3.10/site-packages/sentry_sdk/utils.py in runner(1864)
  return sentry_patched_function(*args, **kwargs)

/home/youser/.local/share/virtualenvs/news-site-columnist-8tsXn7bh/lib/python3.10/site-packages/sentry_sdk/integrations/django/__init__.py in sentry_patched_wsgi_handler(191)
  return middleware(environ, start_response)

/home/youser/.local/share/virtualenvs/news-site-columnist-8tsXn7bh/lib/python3.10/site-packages/sentry_sdk/integrations/wsgi.py in __call__(132)
  response = self.app(

/home/youser/.local/share/virtualenvs/news-site-columnist-8tsXn7bh/lib/python3.10/site-packages/sentry_sdk/integrations/django/__init__.py in sentry_patched_get_response(478)
  rv = old_get_response(self, request)

/home/youser/.local/share/virtualenvs/news-site-columnist-8tsXn7bh/lib/python3.10/site-packages/sentry_sdk/integrations/django/middleware.py in __call__(177)
  return f(*args, **kwargs)

/home/youser/.local/share/virtualenvs/news-site-columnist-8tsXn7bh/lib/python3.10/site-packages/sentry_sdk/integrations/django/middleware.py in __call__(177)
  return f(*args, **kwargs)

/var/www/news-site-columnist/redirects/middleware/redirect_middleware.py in __call__(17)
  return self.get_response(request)

/home/youser/.local/share/virtualenvs/news-site-columnist-8tsXn7bh/lib/python3.10/site-packages/sentry_sdk/integrations/django/middleware.py in __call__(177)
  return f(*args, **kwargs)

/home/youser/.local/share/virtualenvs/news-site-columnist-8tsXn7bh/lib/python3.10/site-packages/sentry_sdk/integrations/django/middleware.py in __call__(177)
  return f(*args, **kwargs)

/home/youser/.local/share/virtualenvs/news-site-columnist-8tsXn7bh/lib/python3.10/site-packages/sentry_sdk/integrations/django/middleware.py in __call__(177)
  return f(*args, **kwargs)

/home/youser/.local/share/virtualenvs/news-site-columnist-8tsXn7bh/lib/python3.10/site-packages/sentry_sdk/integrations/django/middleware.py in __call__(177)
  return f(*args, **kwargs)

/home/youser/.local/share/virtualenvs/news-site-columnist-8tsXn7bh/lib/python3.10/site-packages/corsheaders/middleware.py in __call__(53)
  result = self.get_response(request)

/home/youser/.local/share/virtualenvs/news-site-columnist-8tsXn7bh/lib/python3.10/site-packages/sentry_sdk/integrations/django/middleware.py in __call__(177)
  return f(*args, **kwargs)

/home/youser/.local/share/virtualenvs/news-site-columnist-8tsXn7bh/lib/python3.10/site-packages/django_user_agents/middleware.py in __call__(14)
  return self.get_response(request)

/home/youser/.local/share/virtualenvs/news-site-columnist-8tsXn7bh/lib/python3.10/site-packages/sentry_sdk/integrations/django/middleware.py in __call__(177)
  return f(*args, **kwargs)

/home/youser/.local/share/virtualenvs/news-site-columnist-8tsXn7bh/lib/python3.10/site-packages/sentry_sdk/integrations/django/middleware.py in __call__(177)
  return f(*args, **kwargs)

/home/youser/.local/share/virtualenvs/news-site-columnist-8tsXn7bh/lib/python3.10/site-packages/sentry_sdk/integrations/django/middleware.py in __call__(177)
  return f(*args, **kwargs)

/home/youser/.local/share/virtualenvs/news-site-columnist-8tsXn7bh/lib/python3.10/site-packages/sentry_sdk/integrations/django/middleware.py in __call__(177)
  return f(*args, **kwargs)

/home/youser/.local/share/virtualenvs/news-site-columnist-8tsXn7bh/lib/python3.10/site-packages/sentry_sdk/integrations/django/middleware.py in __call__(177)
  return f(*args, **kwargs)

/home/youser/.local/share/virtualenvs/news-site-columnist-8tsXn7bh/lib/python3.10/site-packages/sentry_sdk/integrations/django/middleware.py in __call__(177)
  return f(*args, **kwargs)

/home/youser/.local/share/virtualenvs/news-site-columnist-8tsXn7bh/lib/python3.10/site-packages/sentry_sdk/integrations/django/middleware.py in __call__(177)
  return f(*args, **kwargs)

/home/youser/.local/share/virtualenvs/news-site-columnist-8tsXn7bh/lib/python3.10/site-packages/sentry_sdk/integrations/django/middleware.py in __call__(177)
  return f(*args, **kwargs)

/var/www/news-site-columnist/news/middleware/subdomain_middleare.py in __call__(22)
  response = self.get_response(request)

/home/youser/.local/share/virtualenvs/news-site-columnist-8tsXn7bh/lib/python3.10/site-packages/sentry_sdk/integrations/django/views.py in sentry_patched_render(41)
  return old_render(self)

/home/youser/.local/share/virtualenvs/news-site-columnist-8tsXn7bh/lib/python3.10/site-packages/django/template/response.py in render(114)
  self.content = self.rendered_content

/home/youser/.local/share/virtualenvs/news-site-columnist-8tsXn7bh/lib/python3.10/site-packages/sentry_sdk/utils.py in runner(1864)
  return sentry_patched_function(*args, **kwargs)

/home/youser/.local/share/virtualenvs/news-site-columnist-8tsXn7bh/lib/python3.10/site-packages/sentry_sdk/integrations/django/templates.py in rendered_content(77)
  return real_rendered_content.fget(self)

/home/youser/.local/share/virtualenvs/news-site-columnist-8tsXn7bh/lib/python3.10/site-packages/django/template/response.py in rendered_content(92)
  return template.render(context, self._request)

/home/youser/.local/share/virtualenvs/news-site-columnist-8tsXn7bh/lib/python3.10/site-packages/django/template/backends/django.py in render(61)
  return self.template.render(context)

/home/youser/.local/share/virtualenvs/news-site-columnist-8tsXn7bh/lib/python3.10/site-packages/template_timings_panel/panels/TemplateTimings.py in timing_hook(139)
  result = func(self, *args, **kwargs)

/home/youser/.local/share/virtualenvs/news-site-columnist-8tsXn7bh/lib/python3.10/site-packages/django/template/base.py in render(175)
  return self._render(context)

/home/youser/.local/share/virtualenvs/news-site-columnist-8tsXn7bh/lib/python3.10/site-packages/django/test/utils.py in instrumented_test_render(112)
  return self.nodelist.render(context)

/home/youser/.local/share/virtualenvs/news-site-columnist-8tsXn7bh/lib/python3.10/site-packages/django/template/base.py in render(1005)
  return SafeString("".join([node.render_annotated(context) for node in self]))

/home/youser/.local/share/virtualenvs/news-site-columnist-8tsXn7bh/lib/python3.10/site-packages/django/template/base.py in <listcomp>(1005)
  return SafeString("".join([node.render_annotated(context) for node in self]))

/home/youser/.local/share/virtualenvs/news-site-columnist-8tsXn7bh/lib/python3.10/site-packages/django/template/base.py in render_annotated(966)
  return self.render(context)

/home/youser/.local/share/virtualenvs/news-site-columnist-8tsXn7bh/lib/python3.10/site-packages/django/template/loader_tags.py in render(157)
  return compiled_parent._render(context)

/home/youser/.local/share/virtualenvs/news-site-columnist-8tsXn7bh/lib/python3.10/site-packages/django/test/utils.py in instrumented_test_render(112)
  return self.nodelist.render(context)

/home/youser/.local/share/virtualenvs/news-site-columnist-8tsXn7bh/lib/python3.10/site-packages/django/template/base.py in render(1005)
  return SafeString("".join([node.render_annotated(context) for node in self]))

/home/youser/.local/share/virtualenvs/news-site-columnist-8tsXn7bh/lib/python3.10/site-packages/django/template/base.py in <listcomp>(1005)
  return SafeString("".join([node.render_annotated(context) for node in self]))

/home/youser/.local/share/virtualenvs/news-site-columnist-8tsXn7bh/lib/python3.10/site-packages/django/template/base.py in render_annotated(966)
  return self.render(context)

/home/youser/.local/share/virtualenvs/news-site-columnist-8tsXn7bh/lib/python3.10/site-packages/template_timings_panel/panels/TemplateTimings.py in timing_hook(139)
  result = func(self, *args, **kwargs)

/home/youser/.local/share/virtualenvs/news-site-columnist-8tsXn7bh/lib/python3.10/site-packages/django/template/loader_tags.py in render(63)
  result = block.nodelist.render(context)

/home/youser/.local/share/virtualenvs/news-site-columnist-8tsXn7bh/lib/python3.10/site-packages/django/template/base.py in render(1005)
  return SafeString("".join([node.render_annotated(context) for node in self]))

/home/youser/.local/share/virtualenvs/news-site-columnist-8tsXn7bh/lib/python3.10/site-packages/django/template/base.py in <listcomp>(1005)
  return SafeString("".join([node.render_annotated(context) for node in self]))

/home/youser/.local/share/virtualenvs/news-site-columnist-8tsXn7bh/lib/python3.10/site-packages/django/template/base.py in render_annotated(966)
  return self.render(context)

/home/youser/.local/share/virtualenvs/news-site-columnist-8tsXn7bh/lib/python3.10/site-packages/django/template/defaulttags.py in render(314)
  match = condition.eval(context)

/home/youser/.local/share/virtualenvs/news-site-columnist-8tsXn7bh/lib/python3.10/site-packages/django/template/smartif.py in eval(60)
  return func(context, self.first, self.second)

/home/youser/.local/share/virtualenvs/news-site-columnist-8tsXn7bh/lib/python3.10/site-packages/django/template/smartif.py in <lambda>(97)
  "or": infix(6, lambda context, x, y: x.eval(context) or y.eval(context)),

/home/youser/.local/share/virtualenvs/news-site-columnist-8tsXn7bh/lib/python3.10/site-packages/django/template/defaulttags.py in eval(877)
  return self.value.resolve(context, ignore_failures=True)

/home/youser/.local/share/virtualenvs/news-site-columnist-8tsXn7bh/lib/python3.10/site-packages/django/template/base.py in resolve(715)
  obj = self.var.resolve(context)

/home/youser/.local/share/virtualenvs/news-site-columnist-8tsXn7bh/lib/python3.10/site-packages/django/template/base.py in resolve(847)
  value = self._resolve_lookup(context)

/home/youser/.local/share/virtualenvs/news-site-columnist-8tsXn7bh/lib/python3.10/site-packages/django/template/base.py in _resolve_lookup(880)
  current = current[bit]

/home/youser/.local/share/virtualenvs/news-site-columnist-8tsXn7bh/lib/python3.10/site-packages/django_user_agents/middleware.py in <lambda>(17)
  request.user_agent = SimpleLazyObject(lambda: get_user_agent(request))

/home/youser/.local/share/virtualenvs/news-site-columnist-8tsXn7bh/lib/python3.10/site-packages/django_user_agents/utils.py in get_user_agent(54)
  user_agent = cache.get(key)

0,7119 get ('SiteElements',) {} <django.core.cache.backends.redis.RedisCache object at 0x7f28a55b5450>
/home/youser/.local/share/virtualenvs/news-site-columnist-8tsXn7bh/bin/gunicorn in <module>(8)
  sys.exit(run())

/home/youser/.local/share/virtualenvs/news-site-columnist-8tsXn7bh/lib/python3.10/site-packages/gunicorn/app/wsgiapp.py in run(66)
  WSGIApplication("%(prog)s [OPTIONS] [APP_MODULE]", prog=prog).run()

/home/youser/.local/share/virtualenvs/news-site-columnist-8tsXn7bh/lib/python3.10/site-packages/gunicorn/app/base.py in run(235)
  super().run()

/home/youser/.local/share/virtualenvs/news-site-columnist-8tsXn7bh/lib/python3.10/site-packages/gunicorn/app/base.py in run(71)
  Arbiter(self).run()

/home/youser/.local/share/virtualenvs/news-site-columnist-8tsXn7bh/lib/python3.10/site-packages/gunicorn/arbiter.py in run(210)
  self.manage_workers()

/home/youser/.local/share/virtualenvs/news-site-columnist-8tsXn7bh/lib/python3.10/site-packages/gunicorn/arbiter.py in manage_workers(570)
  self.spawn_workers()

/home/youser/.local/share/virtualenvs/news-site-columnist-8tsXn7bh/lib/python3.10/site-packages/gunicorn/arbiter.py in spawn_workers(641)
  self.spawn_worker()

/home/youser/.local/share/virtualenvs/news-site-columnist-8tsXn7bh/lib/python3.10/site-packages/gunicorn/arbiter.py in spawn_worker(608)
  worker.init_process()

/home/youser/.local/share/virtualenvs/news-site-columnist-8tsXn7bh/lib/python3.10/site-packages/gunicorn/workers/base.py in init_process(143)
  self.run()

/home/youser/.local/share/virtualenvs/news-site-columnist-8tsXn7bh/lib/python3.10/site-packages/gunicorn/workers/sync.py in run(125)
  self.run_for_one(timeout)

/home/youser/.local/share/virtualenvs/news-site-columnist-8tsXn7bh/lib/python3.10/site-packages/gunicorn/workers/sync.py in run_for_one(69)
  self.accept(listener)

/home/youser/.local/share/virtualenvs/news-site-columnist-8tsXn7bh/lib/python3.10/site-packages/gunicorn/workers/sync.py in accept(31)
  self.handle(listener, client, addr)

/home/youser/.local/share/virtualenvs/news-site-columnist-8tsXn7bh/lib/python3.10/site-packages/gunicorn/workers/sync.py in handle(134)
  self.handle_request(listener, req, client, addr)

/home/youser/.local/share/virtualenvs/news-site-columnist-8tsXn7bh/lib/python3.10/site-packages/gunicorn/workers/sync.py in handle_request(177)
  respiter = self.wsgi(environ, resp.start_response)

/home/youser/.local/share/virtualenvs/news-site-columnist-8tsXn7bh/lib/python3.10/site-packages/sentry_sdk/utils.py in runner(1864)
  return sentry_patched_function(*args, **kwargs)

/home/youser/.local/share/virtualenvs/news-site-columnist-8tsXn7bh/lib/python3.10/site-packages/sentry_sdk/integrations/django/__init__.py in sentry_patched_wsgi_handler(191)
  return middleware(environ, start_response)

/home/youser/.local/share/virtualenvs/news-site-columnist-8tsXn7bh/lib/python3.10/site-packages/sentry_sdk/integrations/wsgi.py in __call__(132)
  response = self.app(

/home/youser/.local/share/virtualenvs/news-site-columnist-8tsXn7bh/lib/python3.10/site-packages/sentry_sdk/integrations/django/__init__.py in sentry_patched_get_response(478)
  rv = old_get_response(self, request)

/home/youser/.local/share/virtualenvs/news-site-columnist-8tsXn7bh/lib/python3.10/site-packages/sentry_sdk/integrations/django/middleware.py in __call__(177)
  return f(*args, **kwargs)

/home/youser/.local/share/virtualenvs/news-site-columnist-8tsXn7bh/lib/python3.10/site-packages/sentry_sdk/integrations/django/middleware.py in __call__(177)
  return f(*args, **kwargs)

/var/www/news-site-columnist/redirects/middleware/redirect_middleware.py in __call__(17)
  return self.get_response(request)

/home/youser/.local/share/virtualenvs/news-site-columnist-8tsXn7bh/lib/python3.10/site-packages/sentry_sdk/integrations/django/middleware.py in __call__(177)
  return f(*args, **kwargs)

/home/youser/.local/share/virtualenvs/news-site-columnist-8tsXn7bh/lib/python3.10/site-packages/sentry_sdk/integrations/django/middleware.py in __call__(177)
  return f(*args, **kwargs)

/home/youser/.local/share/virtualenvs/news-site-columnist-8tsXn7bh/lib/python3.10/site-packages/sentry_sdk/integrations/django/middleware.py in __call__(177)
  return f(*args, **kwargs)

/home/youser/.local/share/virtualenvs/news-site-columnist-8tsXn7bh/lib/python3.10/site-packages/sentry_sdk/integrations/django/middleware.py in __call__(177)
  return f(*args, **kwargs)

/home/youser/.local/share/virtualenvs/news-site-columnist-8tsXn7bh/lib/python3.10/site-packages/corsheaders/middleware.py in __call__(53)
  result = self.get_response(request)

/home/youser/.local/share/virtualenvs/news-site-columnist-8tsXn7bh/lib/python3.10/site-packages/sentry_sdk/integrations/django/middleware.py in __call__(177)
  return f(*args, **kwargs)

/home/youser/.local/share/virtualenvs/news-site-columnist-8tsXn7bh/lib/python3.10/site-packages/django_user_agents/middleware.py in __call__(14)
  return self.get_response(request)

/home/youser/.local/share/virtualenvs/news-site-columnist-8tsXn7bh/lib/python3.10/site-packages/sentry_sdk/integrations/django/middleware.py in __call__(177)
  return f(*args, **kwargs)

/home/youser/.local/share/virtualenvs/news-site-columnist-8tsXn7bh/lib/python3.10/site-packages/sentry_sdk/integrations/django/middleware.py in __call__(177)
  return f(*args, **kwargs)

/home/youser/.local/share/virtualenvs/news-site-columnist-8tsXn7bh/lib/python3.10/site-packages/sentry_sdk/integrations/django/middleware.py in __call__(177)
  return f(*args, **kwargs)

/home/youser/.local/share/virtualenvs/news-site-columnist-8tsXn7bh/lib/python3.10/site-packages/sentry_sdk/integrations/django/middleware.py in __call__(177)
  return f(*args, **kwargs)

/home/youser/.local/share/virtualenvs/news-site-columnist-8tsXn7bh/lib/python3.10/site-packages/sentry_sdk/integrations/django/middleware.py in __call__(177)
  return f(*args, **kwargs)

/home/youser/.local/share/virtualenvs/news-site-columnist-8tsXn7bh/lib/python3.10/site-packages/sentry_sdk/integrations/django/middleware.py in __call__(177)
  return f(*args, **kwargs)

/home/youser/.local/share/virtualenvs/news-site-columnist-8tsXn7bh/lib/python3.10/site-packages/sentry_sdk/integrations/django/middleware.py in __call__(177)
  return f(*args, **kwargs)

/home/youser/.local/share/virtualenvs/news-site-columnist-8tsXn7bh/lib/python3.10/site-packages/sentry_sdk/integrations/django/middleware.py in __call__(177)
  return f(*args, **kwargs)

/var/www/news-site-columnist/news/middleware/subdomain_middleare.py in __call__(22)
  response = self.get_response(request)

/home/youser/.local/share/virtualenvs/news-site-columnist-8tsXn7bh/lib/python3.10/site-packages/sentry_sdk/integrations/django/views.py in sentry_patched_render(41)
  return old_render(self)

/home/youser/.local/share/virtualenvs/news-site-columnist-8tsXn7bh/lib/python3.10/site-packages/django/template/response.py in render(114)
  self.content = self.rendered_content

/home/youser/.local/share/virtualenvs/news-site-columnist-8tsXn7bh/lib/python3.10/site-packages/sentry_sdk/utils.py in runner(1864)
  return sentry_patched_function(*args, **kwargs)

/home/youser/.local/share/virtualenvs/news-site-columnist-8tsXn7bh/lib/python3.10/site-packages/sentry_sdk/integrations/django/templates.py in rendered_content(77)
  return real_rendered_content.fget(self)

/home/youser/.local/share/virtualenvs/news-site-columnist-8tsXn7bh/lib/python3.10/site-packages/django/template/response.py in rendered_content(92)
  return template.render(context, self._request)

/home/youser/.local/share/virtualenvs/news-site-columnist-8tsXn7bh/lib/python3.10/site-packages/django/template/backends/django.py in render(61)
  return self.template.render(context)

/home/youser/.local/share/virtualenvs/news-site-columnist-8tsXn7bh/lib/python3.10/site-packages/template_timings_panel/panels/TemplateTimings.py in timing_hook(139)
  result = func(self, *args, **kwargs)

/home/youser/.local/share/virtualenvs/news-site-columnist-8tsXn7bh/lib/python3.10/site-packages/django/template/base.py in render(175)
  return self._render(context)

/home/youser/.local/share/virtualenvs/news-site-columnist-8tsXn7bh/lib/python3.10/site-packages/django/test/utils.py in instrumented_test_render(112)
  return self.nodelist.render(context)

/home/youser/.local/share/virtualenvs/news-site-columnist-8tsXn7bh/lib/python3.10/site-packages/django/template/base.py in render(1005)
  return SafeString("".join([node.render_annotated(context) for node in self]))

/home/youser/.local/share/virtualenvs/news-site-columnist-8tsXn7bh/lib/python3.10/site-packages/django/template/base.py in <listcomp>(1005)
  return SafeString("".join([node.render_annotated(context) for node in self]))

/home/youser/.local/share/virtualenvs/news-site-columnist-8tsXn7bh/lib/python3.10/site-packages/django/template/base.py in render_annotated(966)
  return self.render(context)

/home/youser/.local/share/virtualenvs/news-site-columnist-8tsXn7bh/lib/python3.10/site-packages/django/template/loader_tags.py in render(157)
  return compiled_parent._render(context)

/home/youser/.local/share/virtualenvs/news-site-columnist-8tsXn7bh/lib/python3.10/site-packages/django/test/utils.py in instrumented_test_render(112)
  return self.nodelist.render(context)

/home/youser/.local/share/virtualenvs/news-site-columnist-8tsXn7bh/lib/python3.10/site-packages/django/template/base.py in render(1005)
  return SafeString("".join([node.render_annotated(context) for node in self]))

/home/youser/.local/share/virtualenvs/news-site-columnist-8tsXn7bh/lib/python3.10/site-packages/django/template/base.py in <listcomp>(1005)
  return SafeString("".join([node.render_annotated(context) for node in self]))

/home/youser/.local/share/virtualenvs/news-site-columnist-8tsXn7bh/lib/python3.10/site-packages/django/template/base.py in render_annotated(966)
  return self.render(context)

/home/youser/.local/share/virtualenvs/news-site-columnist-8tsXn7bh/lib/python3.10/site-packages/template_timings_panel/panels/TemplateTimings.py in timing_hook(139)
  result = func(self, *args, **kwargs)

/home/youser/.local/share/virtualenvs/news-site-columnist-8tsXn7bh/lib/python3.10/site-packages/django/template/loader_tags.py in render(63)
  result = block.nodelist.render(context)

/home/youser/.local/share/virtualenvs/news-site-columnist-8tsXn7bh/lib/python3.10/site-packages/django/template/base.py in render(1005)
  return SafeString("".join([node.render_annotated(context) for node in self]))

/home/youser/.local/share/virtualenvs/news-site-columnist-8tsXn7bh/lib/python3.10/site-packages/django/template/base.py in <listcomp>(1005)
  return SafeString("".join([node.render_annotated(context) for node in self]))

/home/youser/.local/share/virtualenvs/news-site-columnist-8tsXn7bh/lib/python3.10/site-packages/django/template/base.py in render_annotated(966)
  return self.render(context)

/home/youser/.local/share/virtualenvs/news-site-columnist-8tsXn7bh/lib/python3.10/site-packages/django/template/loader_tags.py in render(208)
  return template.render(context)

/home/youser/.local/share/virtualenvs/news-site-columnist-8tsXn7bh/lib/python3.10/site-packages/template_timings_panel/panels/TemplateTimings.py in timing_hook(139)
  result = func(self, *args, **kwargs)

/home/youser/.local/share/virtualenvs/news-site-columnist-8tsXn7bh/lib/python3.10/site-packages/django/template/base.py in render(177)
  return self._render(context)

/home/youser/.local/share/virtualenvs/news-site-columnist-8tsXn7bh/lib/python3.10/site-packages/django/test/utils.py in instrumented_test_render(112)
  return self.nodelist.render(context)

/home/youser/.local/share/virtualenvs/news-site-columnist-8tsXn7bh/lib/python3.10/site-packages/django/template/base.py in render(1005)
  return SafeString("".join([node.render_annotated(context) for node in self]))

/home/youser/.local/share/virtualenvs/news-site-columnist-8tsXn7bh/lib/python3.10/site-packages/django/template/base.py in <listcomp>(1005)
  return SafeString("".join([node.render_annotated(context) for node in self]))

/home/youser/.local/share/virtualenvs/news-site-columnist-8tsXn7bh/lib/python3.10/site-packages/django/template/base.py in render_annotated(966)
  return self.render(context)

/home/youser/.local/share/virtualenvs/news-site-columnist-8tsXn7bh/lib/python3.10/site-packages/django/template/library.py in render(237)
  output = self.func(*resolved_args, **resolved_kwargs)

/var/www/news-site-columnist/news/templatetags/custom_tags.py in get_site_elements(528)
  return SiteElements.load()

/var/www/news-site-columnist/novyny_live/models.py in load(26)
  if cache.get(cls.__name__) is None:

0,6124 get ('SiteElements',) {} <django.core.cache.backends.redis.RedisCache object at 0x7f28a55b5450>
/home/youser/.local/share/virtualenvs/news-site-columnist-8tsXn7bh/bin/gunicorn in <module>(8)
  sys.exit(run())

/home/youser/.local/share/virtualenvs/news-site-columnist-8tsXn7bh/lib/python3.10/site-packages/gunicorn/app/wsgiapp.py in run(66)
  WSGIApplication("%(prog)s [OPTIONS] [APP_MODULE]", prog=prog).run()

/home/youser/.local/share/virtualenvs/news-site-columnist-8tsXn7bh/lib/python3.10/site-packages/gunicorn/app/base.py in run(235)
  super().run()

/home/youser/.local/share/virtualenvs/news-site-columnist-8tsXn7bh/lib/python3.10/site-packages/gunicorn/app/base.py in run(71)
  Arbiter(self).run()

/home/youser/.local/share/virtualenvs/news-site-columnist-8tsXn7bh/lib/python3.10/site-packages/gunicorn/arbiter.py in run(210)
  self.manage_workers()

/home/youser/.local/share/virtualenvs/news-site-columnist-8tsXn7bh/lib/python3.10/site-packages/gunicorn/arbiter.py in manage_workers(570)
  self.spawn_workers()

/home/youser/.local/share/virtualenvs/news-site-columnist-8tsXn7bh/lib/python3.10/site-packages/gunicorn/arbiter.py in spawn_workers(641)
  self.spawn_worker()

/home/youser/.local/share/virtualenvs/news-site-columnist-8tsXn7bh/lib/python3.10/site-packages/gunicorn/arbiter.py in spawn_worker(608)
  worker.init_process()

/home/youser/.local/share/virtualenvs/news-site-columnist-8tsXn7bh/lib/python3.10/site-packages/gunicorn/workers/base.py in init_process(143)
  self.run()

/home/youser/.local/share/virtualenvs/news-site-columnist-8tsXn7bh/lib/python3.10/site-packages/gunicorn/workers/sync.py in run(125)
  self.run_for_one(timeout)

/home/youser/.local/share/virtualenvs/news-site-columnist-8tsXn7bh/lib/python3.10/site-packages/gunicorn/workers/sync.py in run_for_one(69)
  self.accept(listener)

/home/youser/.local/share/virtualenvs/news-site-columnist-8tsXn7bh/lib/python3.10/site-packages/gunicorn/workers/sync.py in accept(31)
  self.handle(listener, client, addr)

/home/youser/.local/share/virtualenvs/news-site-columnist-8tsXn7bh/lib/python3.10/site-packages/gunicorn/workers/sync.py in handle(134)
  self.handle_request(listener, req, client, addr)

/home/youser/.local/share/virtualenvs/news-site-columnist-8tsXn7bh/lib/python3.10/site-packages/gunicorn/workers/sync.py in handle_request(177)
  respiter = self.wsgi(environ, resp.start_response)

/home/youser/.local/share/virtualenvs/news-site-columnist-8tsXn7bh/lib/python3.10/site-packages/sentry_sdk/utils.py in runner(1864)
  return sentry_patched_function(*args, **kwargs)

/home/youser/.local/share/virtualenvs/news-site-columnist-8tsXn7bh/lib/python3.10/site-packages/sentry_sdk/integrations/django/__init__.py in sentry_patched_wsgi_handler(191)
  return middleware(environ, start_response)

/home/youser/.local/share/virtualenvs/news-site-columnist-8tsXn7bh/lib/python3.10/site-packages/sentry_sdk/integrations/wsgi.py in __call__(132)
  response = self.app(

/home/youser/.local/share/virtualenvs/news-site-columnist-8tsXn7bh/lib/python3.10/site-packages/sentry_sdk/integrations/django/__init__.py in sentry_patched_get_response(478)
  rv = old_get_response(self, request)

/home/youser/.local/share/virtualenvs/news-site-columnist-8tsXn7bh/lib/python3.10/site-packages/sentry_sdk/integrations/django/middleware.py in __call__(177)
  return f(*args, **kwargs)

/home/youser/.local/share/virtualenvs/news-site-columnist-8tsXn7bh/lib/python3.10/site-packages/sentry_sdk/integrations/django/middleware.py in __call__(177)
  return f(*args, **kwargs)

/var/www/news-site-columnist/redirects/middleware/redirect_middleware.py in __call__(17)
  return self.get_response(request)

/home/youser/.local/share/virtualenvs/news-site-columnist-8tsXn7bh/lib/python3.10/site-packages/sentry_sdk/integrations/django/middleware.py in __call__(177)
  return f(*args, **kwargs)

/home/youser/.local/share/virtualenvs/news-site-columnist-8tsXn7bh/lib/python3.10/site-packages/sentry_sdk/integrations/django/middleware.py in __call__(177)
  return f(*args, **kwargs)

/home/youser/.local/share/virtualenvs/news-site-columnist-8tsXn7bh/lib/python3.10/site-packages/sentry_sdk/integrations/django/middleware.py in __call__(177)
  return f(*args, **kwargs)

/home/youser/.local/share/virtualenvs/news-site-columnist-8tsXn7bh/lib/python3.10/site-packages/sentry_sdk/integrations/django/middleware.py in __call__(177)
  return f(*args, **kwargs)

/home/youser/.local/share/virtualenvs/news-site-columnist-8tsXn7bh/lib/python3.10/site-packages/corsheaders/middleware.py in __call__(53)
  result = self.get_response(request)

/home/youser/.local/share/virtualenvs/news-site-columnist-8tsXn7bh/lib/python3.10/site-packages/sentry_sdk/integrations/django/middleware.py in __call__(177)
  return f(*args, **kwargs)

/home/youser/.local/share/virtualenvs/news-site-columnist-8tsXn7bh/lib/python3.10/site-packages/django_user_agents/middleware.py in __call__(14)
  return self.get_response(request)

/home/youser/.local/share/virtualenvs/news-site-columnist-8tsXn7bh/lib/python3.10/site-packages/sentry_sdk/integrations/django/middleware.py in __call__(177)
  return f(*args, **kwargs)

/home/youser/.local/share/virtualenvs/news-site-columnist-8tsXn7bh/lib/python3.10/site-packages/sentry_sdk/integrations/django/middleware.py in __call__(177)
  return f(*args, **kwargs)

/home/youser/.local/share/virtualenvs/news-site-columnist-8tsXn7bh/lib/python3.10/site-packages/sentry_sdk/integrations/django/middleware.py in __call__(177)
  return f(*args, **kwargs)

/home/youser/.local/share/virtualenvs/news-site-columnist-8tsXn7bh/lib/python3.10/site-packages/sentry_sdk/integrations/django/middleware.py in __call__(177)
  return f(*args, **kwargs)

/home/youser/.local/share/virtualenvs/news-site-columnist-8tsXn7bh/lib/python3.10/site-packages/sentry_sdk/integrations/django/middleware.py in __call__(177)
  return f(*args, **kwargs)

/home/youser/.local/share/virtualenvs/news-site-columnist-8tsXn7bh/lib/python3.10/site-packages/sentry_sdk/integrations/django/middleware.py in __call__(177)
  return f(*args, **kwargs)

/home/youser/.local/share/virtualenvs/news-site-columnist-8tsXn7bh/lib/python3.10/site-packages/sentry_sdk/integrations/django/middleware.py in __call__(177)
  return f(*args, **kwargs)

/home/youser/.local/share/virtualenvs/news-site-columnist-8tsXn7bh/lib/python3.10/site-packages/sentry_sdk/integrations/django/middleware.py in __call__(177)
  return f(*args, **kwargs)

/var/www/news-site-columnist/news/middleware/subdomain_middleare.py in __call__(22)
  response = self.get_response(request)

/home/youser/.local/share/virtualenvs/news-site-columnist-8tsXn7bh/lib/python3.10/site-packages/sentry_sdk/integrations/django/views.py in sentry_patched_render(41)
  return old_render(self)

/home/youser/.local/share/virtualenvs/news-site-columnist-8tsXn7bh/lib/python3.10/site-packages/django/template/response.py in render(114)
  self.content = self.rendered_content

/home/youser/.local/share/virtualenvs/news-site-columnist-8tsXn7bh/lib/python3.10/site-packages/sentry_sdk/utils.py in runner(1864)
  return sentry_patched_function(*args, **kwargs)

/home/youser/.local/share/virtualenvs/news-site-columnist-8tsXn7bh/lib/python3.10/site-packages/sentry_sdk/integrations/django/templates.py in rendered_content(77)
  return real_rendered_content.fget(self)

/home/youser/.local/share/virtualenvs/news-site-columnist-8tsXn7bh/lib/python3.10/site-packages/django/template/response.py in rendered_content(92)
  return template.render(context, self._request)

/home/youser/.local/share/virtualenvs/news-site-columnist-8tsXn7bh/lib/python3.10/site-packages/django/template/backends/django.py in render(61)
  return self.template.render(context)

/home/youser/.local/share/virtualenvs/news-site-columnist-8tsXn7bh/lib/python3.10/site-packages/template_timings_panel/panels/TemplateTimings.py in timing_hook(139)
  result = func(self, *args, **kwargs)

/home/youser/.local/share/virtualenvs/news-site-columnist-8tsXn7bh/lib/python3.10/site-packages/django/template/base.py in render(175)
  return self._render(context)

/home/youser/.local/share/virtualenvs/news-site-columnist-8tsXn7bh/lib/python3.10/site-packages/django/test/utils.py in instrumented_test_render(112)
  return self.nodelist.render(context)

/home/youser/.local/share/virtualenvs/news-site-columnist-8tsXn7bh/lib/python3.10/site-packages/django/template/base.py in render(1005)
  return SafeString("".join([node.render_annotated(context) for node in self]))

/home/youser/.local/share/virtualenvs/news-site-columnist-8tsXn7bh/lib/python3.10/site-packages/django/template/base.py in <listcomp>(1005)
  return SafeString("".join([node.render_annotated(context) for node in self]))

/home/youser/.local/share/virtualenvs/news-site-columnist-8tsXn7bh/lib/python3.10/site-packages/django/template/base.py in render_annotated(966)
  return self.render(context)

/home/youser/.local/share/virtualenvs/news-site-columnist-8tsXn7bh/lib/python3.10/site-packages/django/template/loader_tags.py in render(157)
  return compiled_parent._render(context)

/home/youser/.local/share/virtualenvs/news-site-columnist-8tsXn7bh/lib/python3.10/site-packages/django/test/utils.py in instrumented_test_render(112)
  return self.nodelist.render(context)

/home/youser/.local/share/virtualenvs/news-site-columnist-8tsXn7bh/lib/python3.10/site-packages/django/template/base.py in render(1005)
  return SafeString("".join([node.render_annotated(context) for node in self]))

/home/youser/.local/share/virtualenvs/news-site-columnist-8tsXn7bh/lib/python3.10/site-packages/django/template/base.py in <listcomp>(1005)
  return SafeString("".join([node.render_annotated(context) for node in self]))

/home/youser/.local/share/virtualenvs/news-site-columnist-8tsXn7bh/lib/python3.10/site-packages/django/template/base.py in render_annotated(966)
  return self.render(context)

/home/youser/.local/share/virtualenvs/news-site-columnist-8tsXn7bh/lib/python3.10/site-packages/template_timings_panel/panels/TemplateTimings.py in timing_hook(139)
  result = func(self, *args, **kwargs)

/home/youser/.local/share/virtualenvs/news-site-columnist-8tsXn7bh/lib/python3.10/site-packages/django/template/loader_tags.py in render(63)
  result = block.nodelist.render(context)

/home/youser/.local/share/virtualenvs/news-site-columnist-8tsXn7bh/lib/python3.10/site-packages/django/template/base.py in render(1005)
  return SafeString("".join([node.render_annotated(context) for node in self]))

/home/youser/.local/share/virtualenvs/news-site-columnist-8tsXn7bh/lib/python3.10/site-packages/django/template/base.py in <listcomp>(1005)
  return SafeString("".join([node.render_annotated(context) for node in self]))

/home/youser/.local/share/virtualenvs/news-site-columnist-8tsXn7bh/lib/python3.10/site-packages/django/template/base.py in render_annotated(966)
  return self.render(context)

/home/youser/.local/share/virtualenvs/news-site-columnist-8tsXn7bh/lib/python3.10/site-packages/django/template/loader_tags.py in render(208)
  return template.render(context)

/home/youser/.local/share/virtualenvs/news-site-columnist-8tsXn7bh/lib/python3.10/site-packages/template_timings_panel/panels/TemplateTimings.py in timing_hook(139)
  result = func(self, *args, **kwargs)

/home/youser/.local/share/virtualenvs/news-site-columnist-8tsXn7bh/lib/python3.10/site-packages/django/template/base.py in render(177)
  return self._render(context)

/home/youser/.local/share/virtualenvs/news-site-columnist-8tsXn7bh/lib/python3.10/site-packages/django/test/utils.py in instrumented_test_render(112)
  return self.nodelist.render(context)

/home/youser/.local/share/virtualenvs/news-site-columnist-8tsXn7bh/lib/python3.10/site-packages/django/template/base.py in render(1005)
  return SafeString("".join([node.render_annotated(context) for node in self]))

/home/youser/.local/share/virtualenvs/news-site-columnist-8tsXn7bh/lib/python3.10/site-packages/django/template/base.py in <listcomp>(1005)
  return SafeString("".join([node.render_annotated(context) for node in self]))

/home/youser/.local/share/virtualenvs/news-site-columnist-8tsXn7bh/lib/python3.10/site-packages/django/template/base.py in render_annotated(966)
  return self.render(context)

/home/youser/.local/share/virtualenvs/news-site-columnist-8tsXn7bh/lib/python3.10/site-packages/django/template/library.py in render(237)
  output = self.func(*resolved_args, **resolved_kwargs)

/var/www/news-site-columnist/news/templatetags/custom_tags.py in get_site_elements(528)
  return SiteElements.load()

/var/www/news-site-columnist/novyny_live/models.py in load(30)
  return cache.get(cls.__name__)

0,4518 get ('django_user_agents.fac378ac3b3d3886829021b3309d4fd1',) {} <django.core.cache.backends.redis.RedisCache object at 0x7f28a55b5450>
/home/youser/.local/share/virtualenvs/news-site-columnist-8tsXn7bh/bin/gunicorn in <module>(8)
  sys.exit(run())

/home/youser/.local/share/virtualenvs/news-site-columnist-8tsXn7bh/lib/python3.10/site-packages/gunicorn/app/wsgiapp.py in run(66)
  WSGIApplication("%(prog)s [OPTIONS] [APP_MODULE]", prog=prog).run()

/home/youser/.local/share/virtualenvs/news-site-columnist-8tsXn7bh/lib/python3.10/site-packages/gunicorn/app/base.py in run(235)
  super().run()

/home/youser/.local/share/virtualenvs/news-site-columnist-8tsXn7bh/lib/python3.10/site-packages/gunicorn/app/base.py in run(71)
  Arbiter(self).run()

/home/youser/.local/share/virtualenvs/news-site-columnist-8tsXn7bh/lib/python3.10/site-packages/gunicorn/arbiter.py in run(210)
  self.manage_workers()

/home/youser/.local/share/virtualenvs/news-site-columnist-8tsXn7bh/lib/python3.10/site-packages/gunicorn/arbiter.py in manage_workers(570)
  self.spawn_workers()

/home/youser/.local/share/virtualenvs/news-site-columnist-8tsXn7bh/lib/python3.10/site-packages/gunicorn/arbiter.py in spawn_workers(641)
  self.spawn_worker()

/home/youser/.local/share/virtualenvs/news-site-columnist-8tsXn7bh/lib/python3.10/site-packages/gunicorn/arbiter.py in spawn_worker(608)
  worker.init_process()

/home/youser/.local/share/virtualenvs/news-site-columnist-8tsXn7bh/lib/python3.10/site-packages/gunicorn/workers/base.py in init_process(143)
  self.run()

/home/youser/.local/share/virtualenvs/news-site-columnist-8tsXn7bh/lib/python3.10/site-packages/gunicorn/workers/sync.py in run(125)
  self.run_for_one(timeout)

/home/youser/.local/share/virtualenvs/news-site-columnist-8tsXn7bh/lib/python3.10/site-packages/gunicorn/workers/sync.py in run_for_one(69)
  self.accept(listener)

/home/youser/.local/share/virtualenvs/news-site-columnist-8tsXn7bh/lib/python3.10/site-packages/gunicorn/workers/sync.py in accept(31)
  self.handle(listener, client, addr)

/home/youser/.local/share/virtualenvs/news-site-columnist-8tsXn7bh/lib/python3.10/site-packages/gunicorn/workers/sync.py in handle(134)
  self.handle_request(listener, req, client, addr)

/home/youser/.local/share/virtualenvs/news-site-columnist-8tsXn7bh/lib/python3.10/site-packages/gunicorn/workers/sync.py in handle_request(177)
  respiter = self.wsgi(environ, resp.start_response)

/home/youser/.local/share/virtualenvs/news-site-columnist-8tsXn7bh/lib/python3.10/site-packages/sentry_sdk/utils.py in runner(1864)
  return sentry_patched_function(*args, **kwargs)

/home/youser/.local/share/virtualenvs/news-site-columnist-8tsXn7bh/lib/python3.10/site-packages/sentry_sdk/integrations/django/__init__.py in sentry_patched_wsgi_handler(191)
  return middleware(environ, start_response)

/home/youser/.local/share/virtualenvs/news-site-columnist-8tsXn7bh/lib/python3.10/site-packages/sentry_sdk/integrations/wsgi.py in __call__(132)
  response = self.app(

/home/youser/.local/share/virtualenvs/news-site-columnist-8tsXn7bh/lib/python3.10/site-packages/sentry_sdk/integrations/django/__init__.py in sentry_patched_get_response(478)
  rv = old_get_response(self, request)

/home/youser/.local/share/virtualenvs/news-site-columnist-8tsXn7bh/lib/python3.10/site-packages/sentry_sdk/integrations/django/middleware.py in __call__(177)
  return f(*args, **kwargs)

/home/youser/.local/share/virtualenvs/news-site-columnist-8tsXn7bh/lib/python3.10/site-packages/sentry_sdk/integrations/django/middleware.py in __call__(177)
  return f(*args, **kwargs)

/var/www/news-site-columnist/redirects/middleware/redirect_middleware.py in __call__(17)
  return self.get_response(request)

/home/youser/.local/share/virtualenvs/news-site-columnist-8tsXn7bh/lib/python3.10/site-packages/sentry_sdk/integrations/django/middleware.py in __call__(177)
  return f(*args, **kwargs)

/home/youser/.local/share/virtualenvs/news-site-columnist-8tsXn7bh/lib/python3.10/site-packages/sentry_sdk/integrations/django/middleware.py in __call__(177)
  return f(*args, **kwargs)

/home/youser/.local/share/virtualenvs/news-site-columnist-8tsXn7bh/lib/python3.10/site-packages/sentry_sdk/integrations/django/middleware.py in __call__(177)
  return f(*args, **kwargs)

/home/youser/.local/share/virtualenvs/news-site-columnist-8tsXn7bh/lib/python3.10/site-packages/sentry_sdk/integrations/django/middleware.py in __call__(177)
  return f(*args, **kwargs)

/home/youser/.local/share/virtualenvs/news-site-columnist-8tsXn7bh/lib/python3.10/site-packages/corsheaders/middleware.py in __call__(53)
  result = self.get_response(request)

/home/youser/.local/share/virtualenvs/news-site-columnist-8tsXn7bh/lib/python3.10/site-packages/sentry_sdk/integrations/django/middleware.py in __call__(177)
  return f(*args, **kwargs)

/home/youser/.local/share/virtualenvs/news-site-columnist-8tsXn7bh/lib/python3.10/site-packages/django_user_agents/middleware.py in __call__(14)
  return self.get_response(request)

/home/youser/.local/share/virtualenvs/news-site-columnist-8tsXn7bh/lib/python3.10/site-packages/sentry_sdk/integrations/django/middleware.py in __call__(177)
  return f(*args, **kwargs)

/home/youser/.local/share/virtualenvs/news-site-columnist-8tsXn7bh/lib/python3.10/site-packages/sentry_sdk/integrations/django/middleware.py in __call__(177)
  return f(*args, **kwargs)

/home/youser/.local/share/virtualenvs/news-site-columnist-8tsXn7bh/lib/python3.10/site-packages/sentry_sdk/integrations/django/middleware.py in __call__(177)
  return f(*args, **kwargs)

/home/youser/.local/share/virtualenvs/news-site-columnist-8tsXn7bh/lib/python3.10/site-packages/sentry_sdk/integrations/django/middleware.py in __call__(177)
  return f(*args, **kwargs)

/home/youser/.local/share/virtualenvs/news-site-columnist-8tsXn7bh/lib/python3.10/site-packages/sentry_sdk/integrations/django/middleware.py in __call__(177)
  return f(*args, **kwargs)

/home/youser/.local/share/virtualenvs/news-site-columnist-8tsXn7bh/lib/python3.10/site-packages/sentry_sdk/integrations/django/middleware.py in __call__(177)
  return f(*args, **kwargs)

/home/youser/.local/share/virtualenvs/news-site-columnist-8tsXn7bh/lib/python3.10/site-packages/sentry_sdk/integrations/django/middleware.py in __call__(177)
  return f(*args, **kwargs)

/home/youser/.local/share/virtualenvs/news-site-columnist-8tsXn7bh/lib/python3.10/site-packages/sentry_sdk/integrations/django/middleware.py in __call__(177)
  return f(*args, **kwargs)

/var/www/news-site-columnist/news/middleware/subdomain_middleare.py in __call__(22)
  response = self.get_response(request)

/home/youser/.local/share/virtualenvs/news-site-columnist-8tsXn7bh/lib/python3.10/site-packages/sentry_sdk/integrations/django/views.py in sentry_patched_render(41)
  return old_render(self)

/home/youser/.local/share/virtualenvs/news-site-columnist-8tsXn7bh/lib/python3.10/site-packages/django/template/response.py in render(114)
  self.content = self.rendered_content

/home/youser/.local/share/virtualenvs/news-site-columnist-8tsXn7bh/lib/python3.10/site-packages/sentry_sdk/utils.py in runner(1864)
  return sentry_patched_function(*args, **kwargs)

/home/youser/.local/share/virtualenvs/news-site-columnist-8tsXn7bh/lib/python3.10/site-packages/sentry_sdk/integrations/django/templates.py in rendered_content(77)
  return real_rendered_content.fget(self)

/home/youser/.local/share/virtualenvs/news-site-columnist-8tsXn7bh/lib/python3.10/site-packages/django/template/response.py in rendered_content(92)
  return template.render(context, self._request)

/home/youser/.local/share/virtualenvs/news-site-columnist-8tsXn7bh/lib/python3.10/site-packages/django/template/backends/django.py in render(61)
  return self.template.render(context)

/home/youser/.local/share/virtualenvs/news-site-columnist-8tsXn7bh/lib/python3.10/site-packages/template_timings_panel/panels/TemplateTimings.py in timing_hook(139)
  result = func(self, *args, **kwargs)

/home/youser/.local/share/virtualenvs/news-site-columnist-8tsXn7bh/lib/python3.10/site-packages/django/template/base.py in render(175)
  return self._render(context)

/home/youser/.local/share/virtualenvs/news-site-columnist-8tsXn7bh/lib/python3.10/site-packages/django/test/utils.py in instrumented_test_render(112)
  return self.nodelist.render(context)

/home/youser/.local/share/virtualenvs/news-site-columnist-8tsXn7bh/lib/python3.10/site-packages/django/template/base.py in render(1005)
  return SafeString("".join([node.render_annotated(context) for node in self]))

/home/youser/.local/share/virtualenvs/news-site-columnist-8tsXn7bh/lib/python3.10/site-packages/django/template/base.py in <listcomp>(1005)
  return SafeString("".join([node.render_annotated(context) for node in self]))

/home/youser/.local/share/virtualenvs/news-site-columnist-8tsXn7bh/lib/python3.10/site-packages/django/template/base.py in render_annotated(966)
  return self.render(context)

/home/youser/.local/share/virtualenvs/news-site-columnist-8tsXn7bh/lib/python3.10/site-packages/django/template/loader_tags.py in render(157)
  return compiled_parent._render(context)

/home/youser/.local/share/virtualenvs/news-site-columnist-8tsXn7bh/lib/python3.10/site-packages/django/test/utils.py in instrumented_test_render(112)
  return self.nodelist.render(context)

/home/youser/.local/share/virtualenvs/news-site-columnist-8tsXn7bh/lib/python3.10/site-packages/django/template/base.py in render(1005)
  return SafeString("".join([node.render_annotated(context) for node in self]))

/home/youser/.local/share/virtualenvs/news-site-columnist-8tsXn7bh/lib/python3.10/site-packages/django/template/base.py in <listcomp>(1005)
  return SafeString("".join([node.render_annotated(context) for node in self]))

/home/youser/.local/share/virtualenvs/news-site-columnist-8tsXn7bh/lib/python3.10/site-packages/django/template/base.py in render_annotated(966)
  return self.render(context)

/home/youser/.local/share/virtualenvs/news-site-columnist-8tsXn7bh/lib/python3.10/site-packages/template_timings_panel/panels/TemplateTimings.py in timing_hook(139)
  result = func(self, *args, **kwargs)

/home/youser/.local/share/virtualenvs/news-site-columnist-8tsXn7bh/lib/python3.10/site-packages/django/template/loader_tags.py in render(63)
  result = block.nodelist.render(context)

/home/youser/.local/share/virtualenvs/news-site-columnist-8tsXn7bh/lib/python3.10/site-packages/django/template/base.py in render(1005)
  return SafeString("".join([node.render_annotated(context) for node in self]))

/home/youser/.local/share/virtualenvs/news-site-columnist-8tsXn7bh/lib/python3.10/site-packages/django/template/base.py in <listcomp>(1005)
  return SafeString("".join([node.render_annotated(context) for node in self]))

/home/youser/.local/share/virtualenvs/news-site-columnist-8tsXn7bh/lib/python3.10/site-packages/django/template/base.py in render_annotated(966)
  return self.render(context)

/home/youser/.local/share/virtualenvs/news-site-columnist-8tsXn7bh/lib/python3.10/site-packages/template_timings_panel/panels/TemplateTimings.py in timing_hook(139)
  result = func(self, *args, **kwargs)

/home/youser/.local/share/virtualenvs/news-site-columnist-8tsXn7bh/lib/python3.10/site-packages/django/template/loader_tags.py in render(63)
  result = block.nodelist.render(context)

/home/youser/.local/share/virtualenvs/news-site-columnist-8tsXn7bh/lib/python3.10/site-packages/django/template/base.py in render(1005)
  return SafeString("".join([node.render_annotated(context) for node in self]))

/home/youser/.local/share/virtualenvs/news-site-columnist-8tsXn7bh/lib/python3.10/site-packages/django/template/base.py in <listcomp>(1005)
  return SafeString("".join([node.render_annotated(context) for node in self]))

/home/youser/.local/share/virtualenvs/news-site-columnist-8tsXn7bh/lib/python3.10/site-packages/django/template/base.py in render_annotated(966)
  return self.render(context)

/home/youser/.local/share/virtualenvs/news-site-columnist-8tsXn7bh/lib/python3.10/site-packages/django/template/loader_tags.py in render(208)
  return template.render(context)

/home/youser/.local/share/virtualenvs/news-site-columnist-8tsXn7bh/lib/python3.10/site-packages/template_timings_panel/panels/TemplateTimings.py in timing_hook(139)
  result = func(self, *args, **kwargs)

/home/youser/.local/share/virtualenvs/news-site-columnist-8tsXn7bh/lib/python3.10/site-packages/django/template/base.py in render(177)
  return self._render(context)

/home/youser/.local/share/virtualenvs/news-site-columnist-8tsXn7bh/lib/python3.10/site-packages/django/test/utils.py in instrumented_test_render(112)
  return self.nodelist.render(context)

/home/youser/.local/share/virtualenvs/news-site-columnist-8tsXn7bh/lib/python3.10/site-packages/django/template/base.py in render(1005)
  return SafeString("".join([node.render_annotated(context) for node in self]))

/home/youser/.local/share/virtualenvs/news-site-columnist-8tsXn7bh/lib/python3.10/site-packages/django/template/base.py in <listcomp>(1005)
  return SafeString("".join([node.render_annotated(context) for node in self]))

/home/youser/.local/share/virtualenvs/news-site-columnist-8tsXn7bh/lib/python3.10/site-packages/django/template/base.py in render_annotated(966)
  return self.render(context)

/home/youser/.local/share/virtualenvs/news-site-columnist-8tsXn7bh/lib/python3.10/site-packages/template_timings_panel/panels/TemplateTimings.py in timing_hook(139)
  result = func(self, *args, **kwargs)

/home/youser/.local/share/virtualenvs/news-site-columnist-8tsXn7bh/lib/python3.10/site-packages/django/template/loader_tags.py in render(54)
  result = self.nodelist.render(context)

/home/youser/.local/share/virtualenvs/news-site-columnist-8tsXn7bh/lib/python3.10/site-packages/django/template/base.py in render(1005)
  return SafeString("".join([node.render_annotated(context) for node in self]))

/home/youser/.local/share/virtualenvs/news-site-columnist-8tsXn7bh/lib/python3.10/site-packages/django/template/base.py in <listcomp>(1005)
  return SafeString("".join([node.render_annotated(context) for node in self]))

/home/youser/.local/share/virtualenvs/news-site-columnist-8tsXn7bh/lib/python3.10/site-packages/django/template/base.py in render_annotated(966)
  return self.render(context)

/home/youser/.local/share/virtualenvs/news-site-columnist-8tsXn7bh/lib/python3.10/site-packages/django/template/defaulttags.py in render(52)
  output = self.nodelist.render(context)

/home/youser/.local/share/virtualenvs/news-site-columnist-8tsXn7bh/lib/python3.10/site-packages/django/template/base.py in render(1005)
  return SafeString("".join([node.render_annotated(context) for node in self]))

/home/youser/.local/share/virtualenvs/news-site-columnist-8tsXn7bh/lib/python3.10/site-packages/django/template/base.py in <listcomp>(1005)
  return SafeString("".join([node.render_annotated(context) for node in self]))

/home/youser/.local/share/virtualenvs/news-site-columnist-8tsXn7bh/lib/python3.10/site-packages/django/template/base.py in render_annotated(966)
  return self.render(context)

/home/youser/.local/share/virtualenvs/news-site-columnist-8tsXn7bh/lib/python3.10/site-packages/django/template/defaulttags.py in render(321)
  return nodelist.render(context)

/home/youser/.local/share/virtualenvs/news-site-columnist-8tsXn7bh/lib/python3.10/site-packages/django/template/base.py in render(1005)
  return SafeString("".join([node.render_annotated(context) for node in self]))

/home/youser/.local/share/virtualenvs/news-site-columnist-8tsXn7bh/lib/python3.10/site-packages/django/template/base.py in <listcomp>(1005)
  return SafeString("".join([node.render_annotated(context) for node in self]))

/home/youser/.local/share/virtualenvs/news-site-columnist-8tsXn7bh/lib/python3.10/site-packages/django/template/base.py in render_annotated(966)
  return self.render(context)

/home/youser/.local/share/virtualenvs/news-site-columnist-8tsXn7bh/lib/python3.10/site-packages/django/template/library.py in render(237)
  output = self.func(*resolved_args, **resolved_kwargs)

/var/www/news-site-columnist/news/templatetags/component_tags.py in post_content_read_more(389)
  user_agent = get_user_agent(context["request"])

/home/youser/.local/share/virtualenvs/news-site-columnist-8tsXn7bh/lib/python3.10/site-packages/django_user_agents/utils.py in get_user_agent(54)
  user_agent = cache.get(key)

Сигнали

Сигнал Отримувачі сигнала
class_prepared
connection_created register_type_handlers
got_request_exception _got_request_exception
m2m_changed
post_delete ModelBase.update_changed, ModelBase.update_changed, ModelBase.update_changed, HistoricalRecords.post_delete, HistoricalRecords.post_delete, HistoricalRecords.post_delete
post_init ImageField.update_dimension_fields, ImageField.update_dimension_fields, ImageField.update_dimension_fields, ImageField.update_dimension_fields, ImageField.update_dimension_fields, CloudflareImagesField.update_dimension_fields, CloudflareImagesField.update_dimension_fields, ImageField.update_dimension_fields, ImageField.update_dimension_fields, ImageField.update_dimension_fields, CloudflareImagesField.update_dimension_fields, CloudflareImagesField.update_dimension_fields, ImageField.update_dimension_fields, ImageField.update_dimension_fields, ImageField.update_dimension_fields, ImageField.update_dimension_fields, CloudflareImagesField.update_dimension_fields, CloudflareImagesField.update_dimension_fields, CloudflareImagesField.update_dimension_fields, ImageField.update_dimension_fields, ImageField.update_dimension_fields, ImageField.update_dimension_fields, ImageField.update_dimension_fields, delete_mt_init, delete_mt_init, delete_mt_init, delete_mt_init, delete_mt_init, delete_mt_init, delete_mt_init, delete_mt_init, delete_mt_init, delete_mt_init, delete_mt_init, delete_mt_init, delete_mt_init, delete_mt_init, delete_mt_init, delete_mt_init, delete_mt_init, delete_mt_init, delete_mt_init, delete_mt_init, delete_mt_init, delete_mt_init, delete_mt_init, delete_mt_init, delete_mt_init, delete_mt_init, delete_mt_init, delete_mt_init, delete_mt_init, delete_mt_init, delete_mt_init, delete_mt_init, delete_mt_init, delete_mt_init, delete_mt_init, delete_mt_init, delete_mt_init, delete_mt_init, delete_mt_init, delete_mt_init, CloudflareImagesField.update_dimension_fields
post_migrate change_site_domain, create_permissions, create_contenttypes, create_default_site
post_save call_hook, sitemap_ping_google, save_youtube_data, ModelBase.update_changed, ModelBase.update_changed, ModelBase.update_changed, ModelBase.update_changed, HistoricalRecords.post_save, HistoricalRecords.post_save, HistoricalRecords.post_save
pre_delete clear_site_cache, ModelBase.changed, ModelBase.update_changed, HistoricalRecords.pre_delete, HistoricalRecords.pre_delete, HistoricalRecords.pre_delete
pre_init
pre_migrate inject_rename_contenttypes_operations
pre_save clear_site_cache, ModelBase.changed
request_finished close_old_connections, close_caches, reset_urlconf
request_started reset_queries, close_old_connections
setting_changed reset_cache, setting_changed_receiver, clear_cache_handlers, update_installed_apps, update_connections_time_zone, clear_routers_cache, reset_template_engines, storages_changed, clear_serializers_cache, language_changed, localize_settings_changed, file_storage_changed, complex_setting_changed, root_urlconf_changed, static_storage_changed, static_finders_changed, auth_password_validators_changed, user_model_swapped, update_toolbar_config, reset_hashers, SitemapStorage._clear_cached_properties, SitemapStorage._clear_cached_properties, SitemapStorage._clear_cached_properties, ChannelLayerManager._reset_backends, reload_api_settings, update_level_tags, uninstall_if_needed, clear_caches, StaticFilesStorage._clear_cached_properties, FileSystemStorage._clear_cached_properties, FileSystemStorage._clear_cached_properties, FileSystemStorage._clear_cached_properties, FileSystemStorage._clear_cached_properties, FileSystemStorage._clear_cached_properties, FileSystemStorage._clear_cached_properties, FileSystemStorage._clear_cached_properties, FileSystemStorage._clear_cached_properties, FileSystemStorage._clear_cached_properties, FileSystemStorage._clear_cached_properties, FileSystemStorage._clear_cached_properties, FileSystemStorage._clear_cached_properties, FileSystemStorage._clear_cached_properties, FileSystemStorage._clear_cached_properties, FileSystemStorage._clear_cached_properties, FileSystemStorage._clear_cached_properties, FileSystemStorage._clear_cached_properties

Template Timings